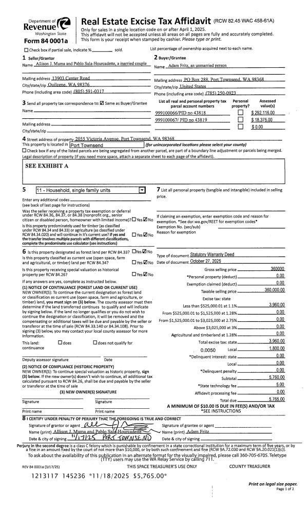
| 1 | 10/27/2025 | SWD | Statutory Warranty Deed | ALLISON J MUMA & PABLO SALA HOURCADETTE | ADAM FRITZ | | | $360,000.00 | 145236 | |
|   | |
| 2 | 09/16/2021 | SWD | Statutory Warranty Deed | MICHAEL K HOSKINS | ALLISON J MUMA & PABLO SALA HOURCADETTE | | | $300,000.00 | 137715 | |
|   | |
| 3 | 02/10/2013 | SWD | Statutory Warranty Deed | MICHAEL K HOSKINS | | | | | 118806 | |
| 4 | 07/25/2012 | SWD | Statutory Warranty Deed | US BANK NA | SECRETARY HOUSING & URBAN DEV | | | $0.00 | 117838 | 0 |
| 5 | 08/24/2011 | WD | Warranty Deed | LSI TITLE AGENCY INC | US BANK NA | 0 | 0 | $0.00 | 116441 | 0 |
| 6 | 10/29/2008 | SWD | Statutory Warranty Deed | MARTIN, JASON/HILLARI | LUND, TODD A | 0 | 0 | $170,000.00 | 112098 | 0 |
|   | |
| 7 | 10/29/2008 | SWD | Statutory Warranty Deed | MARTIN, JASON / HILLARI G | LUND, TODD A | 0 | 0 | $0.00 | 112150 | 0 |
| 8 | 10/29/2008 | QCD | Quit Claim Deed | LUND, LISA | LUND, TODD A | 0 | 0 | $0.00 | 112099 | 0 |
| 9 | 08/28/2003 | SWD | Statutory Warranty Deed | REYNOLDS, RACHEL M | MARTIN,JASON/GULLIKSON,HILLARI | 0 | 0 | $0.00 | 99661 | 0 |
| 10 | 06/28/1999 | SWD | Statutory Warranty Deed | ANDERSEN, KENNETH S | REYNOLDS, RACHEL M | 0 | 0 | $88,000.00 | 87250 | 0 |
|   | |