Property
Account |
| Property ID: | 43863 | Abbreviated Legal Description: | TOWNE POINT II LOT 111 |
| Parcel # / Geo ID: | 999100111 | Agent Code: | |
| Type: | Real | | |
| Tax Area: | 0110 - C-50F1E1H2 | Land Use Code | 11 |
| Open Space: | N | DFL | N |
| Historic Property: | N | Remodel Property: | N |
| Multi-Family Redevelopment: | N | | |
| Township: | 30N | Section: | 9 |
| Range: | 1W |
Location |
| Address: | 2194 VICTORIA AVE PORT TOWNSEND, WA 98368 | Mapsco: | 140/028 |
| Neighborhood: | TOWNE POINT I & TOWNE POINT II | Map ID: | |
| Neighborhood CD: | 6150 |
Owner |
| Name: | JAMMCO INVESTORS LLC | Owner ID: | 104525 |
| Mailing Address: | 100 Belvedere Dr. PORT TOWNSEND, WA 98368-9514 | % Ownership: | 100.0000000000% |
| | | Exemptions: | |
Pay Tax Due
Select the appropriate checkbox next to the year to be paid. Multiple years may be selected.
*Convenience Fee not included
Taxes and Assessment Details
Property Tax Information as of
03/13/2026
Click on "Statement Details" to expand or collapse a tax statement.
* Please enter a valid date ** Please enter a valid date *
Statement Details |
| 2026 | 33006 | STATE - STATE LEVY (SCHOOL) | $404.08 | $404.06 | $0.00 | $0.00 | $0.00 | $808.14 |
| 2026 | 33006 | COUNTY - COUNTY LEVIES (CE, DD, VET, MH) | $161.56 | $161.53 | $0.00 | $0.00 | $0.00 | $323.09 |
| 2026 | 33006 | CONSERVE - CONSERVATION FUTURES | $4.85 | $4.84 | $0.00 | $0.00 | $0.00 | $9.69 |
| 2026 | 33006 | CITYPT - CITY OF PT | $229.31 | $229.30 | $0.00 | $0.00 | $0.00 | $458.61 |
| 2026 | 33006 | PORTPT - PORT DISTRICT | $65.25 | $65.24 | $0.00 | $0.00 | $0.00 | $130.49 |
| 2026 | 33006 | PUD1 - PUD #1 | $10.51 | $10.51 | $0.00 | $0.00 | $0.00 | $21.02 |
| 2026 | 33006 | HD2 - HOSP DIST #2 | $9.42 | $9.42 | $0.00 | $0.00 | $0.00 | $18.84 |
| 2026 | 33006 | SD50 - SCHOOL DIST #50 | $320.11 | $320.11 | $0.00 | $0.00 | $0.00 | $640.22 |
| 2026 | 33006 | FD1 - FIRE DISTRICT #1 | $213.93 | $213.92 | $0.00 | $0.00 | $0.00 | $427.85 |
| 2026 | 33006 | EMS1 - FIRE DIST #1 EMS | $82.25 | $82.25 | $0.00 | $0.00 | $0.00 | $164.50 |
| 2026 | 33006 | JCCD - JC Conservation District | $2.55 | $2.55 | $0.00 | $0.00 | $0.00 | $5.10 |
| 2026 | 33006 | NWA - Noxious Weed Assessment | $2.98 | $2.97 | $0.00 | $0.00 | $0.00 | $5.95 |
| 2026 | 33006 | TOTAL: | $1506.80 | $1506.70 | $0.00 | $0.00 | $0.00 | $3013.50 |
|
| 2026 | 33006 | $1506.80 | $1506.70 | $0.00 | $0.00 | $0.00 | $3013.50 |
Statement Details |
| 2025 | 33082 | STATE - STATE LEVY (SCHOOL) | $355.30 | $355.29 | $0.00 | $0.00 | $710.59 | $0.00 |
| 2025 | 33082 | COUNTY - COUNTY LEVIES (CE, DD, VET, MH) | $139.72 | $139.71 | $0.00 | $0.00 | $279.43 | $0.00 |
| 2025 | 33082 | CONSERVE - CONSERVATION FUTURES | $4.19 | $4.19 | $0.00 | $0.00 | $8.38 | $0.00 |
| 2025 | 33082 | CITYPT - CITY OF PT | $201.49 | $201.49 | $0.00 | $0.00 | $402.98 | $0.00 |
| 2025 | 33082 | PORTPT - PORT DISTRICT | $57.01 | $57.01 | $0.00 | $0.00 | $114.02 | $0.00 |
| 2025 | 33082 | PUD1 - PUD #1 | $9.14 | $9.14 | $0.00 | $0.00 | $18.28 | $0.00 |
| 2025 | 33082 | HD2 - HOSP DIST #2 | $8.15 | $8.15 | $0.00 | $0.00 | $16.30 | $0.00 |
| 2025 | 33082 | SD50 - SCHOOL DIST #50 | $259.68 | $259.65 | $0.00 | $0.00 | $519.33 | $0.00 |
| 2025 | 33082 | FD1 - FIRE DISTRICT #1 | $184.38 | $184.37 | $0.00 | $0.00 | $368.75 | $0.00 |
| 2025 | 33082 | EMS1 - FIRE DIST #1 EMS | $70.92 | $70.91 | $0.00 | $0.00 | $141.83 | $0.00 |
| 2025 | 33082 | JCCD - JC Conservation District | $2.55 | $2.55 | $0.00 | $0.00 | $5.10 | $0.00 |
| 2025 | 33082 | NWA - Noxious Weed Assessment | $2.15 | $2.15 | $0.00 | $0.00 | $4.30 | $0.00 |
| 2025 | 33082 | TOTAL: | $1294.68 | $1294.61 | $0.00 | $0.00 | $2589.29 | $0.00 |
|
| 2025 | 33082 | $1294.68 | $1294.61 | $0.00 | $0.00 | $2589.29 | $0.00 |
Statement Details |
| 2024 | 33144 | STATE - STATE LEVY (SCHOOL) | $112.49 | $112.47 | $0.00 | $0.00 | $224.96 | $0.00 |
| 2024 | 33144 | COUNTY - COUNTY LEVIES (CE, DD, VET, MH) | $52.78 | $52.78 | $0.00 | $0.00 | $105.56 | $0.00 |
| 2024 | 33144 | CONSERVE - CONSERVATION FUTURES | $1.59 | $1.58 | $0.00 | $0.00 | $3.17 | $0.00 |
| 2024 | 33144 | CITYPT - CITY OF PT | $74.70 | $74.67 | $0.00 | $0.00 | $149.37 | $0.00 |
| 2024 | 33144 | PORTPT - PORT DISTRICT | $21.81 | $21.79 | $0.00 | $0.00 | $43.60 | $0.00 |
| 2024 | 33144 | PUD1 - PUD #1 | $3.47 | $3.46 | $0.00 | $0.00 | $6.93 | $0.00 |
| 2024 | 33144 | HD2 - HOSP DIST #2 | $3.08 | $3.08 | $0.00 | $0.00 | $6.16 | $0.00 |
| 2024 | 33144 | SD50 - SCHOOL DIST #50 | $74.64 | $74.61 | $0.00 | $0.00 | $149.25 | $0.00 |
| 2024 | 33144 | FD1 - FIRE DISTRICT #1 | $69.79 | $69.78 | $0.00 | $0.00 | $139.57 | $0.00 |
| 2024 | 33144 | EMS1 - FIRE DIST #1 EMS | $26.66 | $26.65 | $0.00 | $0.00 | $53.31 | $0.00 |
| 2024 | 33144 | TOTAL: | $441.01 | $440.87 | $0.00 | $0.00 | $881.88 | $0.00 |
|
| 2024 | 33144 | $441.01 | $440.87 | $0.00 | $0.00 | $881.88 | $0.00 |
Statement Details |
| 2023 | 33187 | STATE - STATE LEVY (SCHOOL) | $36.59 | $36.58 | $0.00 | $0.00 | $73.17 | $0.00 |
| 2023 | 33187 | COUNTY - COUNTY LEVIES (CE, DD, VET, MH) | $24.51 | $24.50 | $0.00 | $0.00 | $49.01 | $0.00 |
| 2023 | 33187 | CONSERVE - CONSERVATION FUTURES | $0.74 | $0.73 | $0.00 | $0.00 | $1.47 | $0.00 |
| 2023 | 33187 | CITYPT - CITY OF PT | $33.27 | $33.26 | $0.00 | $0.00 | $66.53 | $0.00 |
| 2023 | 33187 | PORTPT - PORT DISTRICT | $10.33 | $10.31 | $0.00 | $0.00 | $20.64 | $0.00 |
| 2023 | 33187 | PUD1 - PUD #1 | $1.63 | $1.62 | $0.00 | $0.00 | $3.25 | $0.00 |
| 2023 | 33187 | HD2 - HOSP DIST #2 | $1.43 | $1.43 | $0.00 | $0.00 | $2.86 | $0.00 |
| 2023 | 33187 | SD50 - SCHOOL DIST #50 | $0.00 | $0.00 | $0.00 | $0.00 | $0.00 | $0.00 |
| 2023 | 33187 | FD1 - FIRE DISTRICT #1 | $20.19 | $20.18 | $0.00 | $0.00 | $40.37 | $0.00 |
| 2023 | 33187 | EMS1 - FIRE DIST #1 EMS | $8.59 | $8.58 | $0.00 | $0.00 | $17.17 | $0.00 |
| 2023 | 33187 | TOTAL: | $137.28 | $137.19 | $0.00 | $0.00 | $274.47 | $0.00 |
|
| 2023 | 33187 | $137.28 | $137.19 | $0.00 | $0.00 | $274.47 | $0.00 |
Values
| (+) Improvement Homesite Value: | + | $222,505 | |
| (+) Improvement Non-Homesite Value: | + | $0 | |
| (+) Land Homesite Value: | + | $129,000 | |
| (+) Land Non-Homesite Value: | + | $0 | |
| (+) Curr Use (HS): | + | $0 | $0 |
| (+) Curr Use (NHS): | + | $0 | $0 |
| | | -------------------------- | |
| (=) Market Value: | = | $351,505 | |
| (–) Productivity Loss: | – | $0 | |
| | | -------------------------- | |
| (=) Subtotal: | = | $351,505 | |
| (+) Senior Appraised Value: | + | $0 | |
| (+) Non-Senior Appraised Value: | + | $351,505 | |
| | | -------------------------- | |
| (=) Total Appraised Value: | = | $351,505 | |
| (–) Senior Exemption Loss: | – | $0 | |
| (–) Exemption Loss: | – | $0 | |
| | | -------------------------- | |
| (=) Taxable Value: | = | $351,505 | |
Taxing Jurisdiction
| Owner: | JAMMCO INVESTORS LLC | | |
| % Ownership: | 100.0000000000% | | |
| Total Value: | $351,505 | | |
| Tax Area: | 0110 - C-50F1E1H2 |
| CE | COUNTY CURRENT EXPENSE | 0.9034619479 | $351,505 | $351,505 | $317.57 | | |
| CNTYDD | DEVELOPMENTAL DISABILITIES | 0.0052121823 | $351,505 | $351,505 | $1.83 | | |
| CNTYVET | VETERANS RELIEF | 0.0052777810 | $351,505 | $351,505 | $1.86 | | |
| MENTAL | MENTAL HEALTH | 0.0052121823 | $351,505 | $351,505 | $1.83 | | |
| PTGEN | CITY OF PT GENERAL | 0.8551967795 | $351,505 | $351,505 | $300.61 | | |
| PTLLL | CITY OF PT - LIBRARY LID LIFT | 0.4010114288 | $351,505 | $351,505 | $140.96 | | |
| PTMVBOND | CITY OF PT MV BOND | 0.0484717981 | $351,505 | $351,505 | $17.04 | | |
| HOSP2CASH | HOSP DIST #2 GENERAL | 0.0536075306 | $351,505 | $351,505 | $18.84 | | |
| SCH50BOND | SCHOOL DIST #50 BOND 2016 | 0.5377451389 | $351,505 | $351,505 | $189.02 | | |
| SCH50CP | SCHOOL DIST #50 CAP PROJ | 0.4573475088 | $351,505 | $351,505 | $160.76 | | |
| SCH50MO | SCHOOL DIST #50 EP & O | 0.8262822886 | $351,505 | $351,505 | $290.44 | | |
| CONSERVE | CONSERVATION FUTURES | 0.0275621078 | $351,505 | $351,505 | $9.69 | | |
| EMS1 | FIRE DIST #1 EMS | 0.4679948282 | $351,505 | $351,505 | $164.50 | | |
| FD1 | FIRE DIST #1 GENERAL | 1.2171942929 | $351,505 | $351,505 | $427.85 | | |
| PORTPT | PORT OF PT GENERAL | 0.1134941229 | $351,505 | $351,505 | $39.89 | | |
| PORTPTIDD | PORT OF PT IDD 2019 | 0.2577346692 | $351,505 | $351,505 | $90.60 | | |
| PUD1 | PUD #1 GENERAL | 0.0597888892 | $351,505 | $351,505 | $21.02 | | |
| STATE | STATE SCHOOL PART 1 | 1.4940692947 | $351,505 | $351,505 | $525.17 | | |
| STATE2 | STATE SCHOOL PART 2 | 0.8050170049 | $351,505 | $351,505 | $282.97 | | |
| | Total Tax Rate: | 8.5416817766 | | | | | |
| | | | | Taxes w/Current Exemptions: | $3,002.45 | | |
| | | | | Taxes w/o Exemptions: | $3,002.45 | | |
Improvement / Building
| Improvement #1: | Manufactured Home | State Code: | 11 | 1692.0 sqft | Value: | $222,505 |
| Bathrooms (#): | 2 (FULL) | Bedrooms (#): | 3 | | Exterior Wall: | PL/T1 | Fireplace: | WD ST-AVG | | Floor Construction: | FRAME | Foundation: | PO&BL | | Heating/Cooling: | F/A | Inside Verify: | YES-FIX | | Roof Cover: | COMP |   |   |
|
| | Type | Description | Class CD | Sub Class CD | Year Built | Area |
| | MA | Main Area | 4 | MFH | 1993 | 1692.0 |
| | MATT | MH Attached Garage | 4 | MFH | 1993 | 528.0 |
Sketch
| No sketches available for this property. |
Property Image
Land
| 1 | 6150-1185L | | 0.0000 | 0.00 | 0.00 | 0.00 | 1.00 | $129,000 | $0 |
Roll Value History
| 2026 | N/A | N/A | N/A | N/A | N/A |
| 2025 | $222,505 | $129,000 | $0 | $351,505 | $351,505 |
| 2024 | $172,424 | $123,900 | $0 | $296,324 | $296,324 |
| 2023 | $164,927 | $113,000 | $0 | $277,927 | $37,705 |
| 2022 | $164,927 | $108,000 | $0 | $272,927 | $47,705 |
Deed and Sales History
| 1 | 09/11/2024 | SWD | Statutory Warranty Deed | JEFFREY G FRETTINGHAM | JAMMCO INVESTORS LLC | | | $362,815.00 | 143228 | |
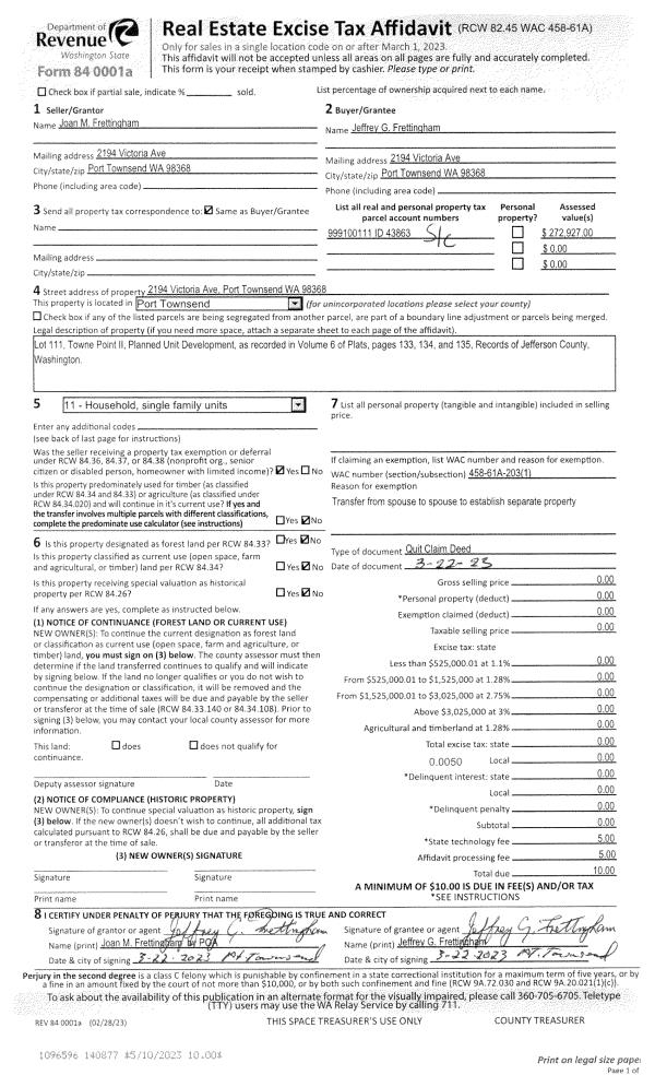
| 2 | 03/22/2023 | QCD | Quit Claim Deed | JOAN M FRETTINGHAM | JEFFREY G FRETTINGHAM | | | | 140877 | |
Payout Agreement
| No payout information available.. |