Property
Account |
| Property ID: | 43930 | Abbreviated Legal Description: | TOWNE POINT II LOT 180 |
| Parcel # / Geo ID: | 999100180 | Agent Code: | |
| Type: | Real | | |
| Tax Area: | 0110 - C-50F1E1H2 | Land Use Code | 11 |
| Open Space: | N | DFL | N |
| Historic Property: | N | Remodel Property: | N |
| Multi-Family Redevelopment: | N | | |
| Township: | 30N | Section: | 9 |
| Range: | 1W |
Location |
| Address: | 2120 RENEE PL PORT TOWNSEND, WA 98368 | Mapsco: | 141/059 |
| Neighborhood: | TOWNE POINT I & TOWNE POINT II | Map ID: | |
| Neighborhood CD: | 6150 |
Owner |
| Name: | MARSHAL DAVIS | Owner ID: | 98243 |
| Mailing Address: | 1322 WASHINGTON ST # 457 PORT TOWNSEND, WA 98368-6764 | % Ownership: | 100.0000000000% |
| | | Exemptions: | |
Pay Tax Due
Select the appropriate checkbox next to the year to be paid. Multiple years may be selected.
*Convenience Fee not included
Taxes and Assessment Details
Property Tax Information as of
03/11/2026
Click on "Statement Details" to expand or collapse a tax statement.
* Please enter a valid date ** Please enter a valid date *
Statement Details |
| 2026 | 33072 | STATE - STATE LEVY (SCHOOL) | $342.77 | $342.77 | $0.00 | $0.00 | $0.00 | $685.54 |
| 2026 | 33072 | COUNTY - COUNTY LEVIES (CE, DD, VET, MH) | $137.05 | $137.01 | $0.00 | $0.00 | $0.00 | $274.06 |
| 2026 | 33072 | CONSERVE - CONSERVATION FUTURES | $4.11 | $4.11 | $0.00 | $0.00 | $0.00 | $8.22 |
| 2026 | 33072 | CITYPT - CITY OF PT | $194.52 | $194.50 | $0.00 | $0.00 | $0.00 | $389.02 |
| 2026 | 33072 | PORTPT - PORT DISTRICT | $55.35 | $55.34 | $0.00 | $0.00 | $0.00 | $110.69 |
| 2026 | 33072 | PUD1 - PUD #1 | $8.92 | $8.91 | $0.00 | $0.00 | $0.00 | $17.83 |
| 2026 | 33072 | HD2 - HOSP DIST #2 | $7.99 | $7.99 | $0.00 | $0.00 | $0.00 | $15.98 |
| 2026 | 33072 | SD50 - SCHOOL DIST #50 | $271.55 | $271.54 | $0.00 | $0.00 | $0.00 | $543.09 |
| 2026 | 33072 | FD1 - FIRE DISTRICT #1 | $181.47 | $181.47 | $0.00 | $0.00 | $0.00 | $362.94 |
| 2026 | 33072 | EMS1 - FIRE DIST #1 EMS | $69.78 | $69.77 | $0.00 | $0.00 | $0.00 | $139.55 |
| 2026 | 33072 | JCCD - JC Conservation District | $2.55 | $2.55 | $0.00 | $0.00 | $0.00 | $5.10 |
| 2026 | 33072 | NWA - Noxious Weed Assessment | $2.98 | $2.97 | $0.00 | $0.00 | $0.00 | $5.95 |
| 2026 | 33072 | TOTAL: | $1279.04 | $1278.93 | $0.00 | $0.00 | $0.00 | $2557.97 |
|
| 2026 | 33072 | $1279.04 | $1278.93 | $0.00 | $0.00 | $0.00 | $2557.97 |
Statement Details |
| 2025 | 33148 | STATE - STATE LEVY (SCHOOL) | $333.83 | $333.81 | $0.00 | $0.00 | $667.64 | $0.00 |
| 2025 | 33148 | COUNTY - COUNTY LEVIES (CE, DD, VET, MH) | $131.29 | $131.26 | $0.00 | $0.00 | $262.55 | $0.00 |
| 2025 | 33148 | CONSERVE - CONSERVATION FUTURES | $3.94 | $3.93 | $0.00 | $0.00 | $7.87 | $0.00 |
| 2025 | 33148 | CITYPT - CITY OF PT | $189.31 | $189.31 | $0.00 | $0.00 | $378.62 | $0.00 |
| 2025 | 33148 | PORTPT - PORT DISTRICT | $53.57 | $53.57 | $0.00 | $0.00 | $107.14 | $0.00 |
| 2025 | 33148 | PUD1 - PUD #1 | $8.59 | $8.59 | $0.00 | $0.00 | $17.18 | $0.00 |
| 2025 | 33148 | HD2 - HOSP DIST #2 | $7.66 | $7.66 | $0.00 | $0.00 | $15.32 | $0.00 |
| 2025 | 33148 | SD50 - SCHOOL DIST #50 | $243.97 | $243.96 | $0.00 | $0.00 | $487.93 | $0.00 |
| 2025 | 33148 | FD1 - FIRE DISTRICT #1 | $173.23 | $173.23 | $0.00 | $0.00 | $346.46 | $0.00 |
| 2025 | 33148 | EMS1 - FIRE DIST #1 EMS | $66.63 | $66.63 | $0.00 | $0.00 | $133.26 | $0.00 |
| 2025 | 33148 | JCCD - JC Conservation District | $2.55 | $2.55 | $0.00 | $0.00 | $5.10 | $0.00 |
| 2025 | 33148 | NWA - Noxious Weed Assessment | $2.15 | $2.15 | $0.00 | $0.00 | $4.30 | $0.00 |
| 2025 | 33148 | TOTAL: | $1216.72 | $1216.65 | $0.00 | $0.00 | $2433.37 | $0.00 |
|
| 2025 | 33148 | $1216.72 | $1216.65 | $0.00 | $0.00 | $2433.37 | $0.00 |
Statement Details |
| 2024 | 33210 | STATE - STATE LEVY (SCHOOL) | $301.73 | $301.72 | $0.00 | $0.00 | $603.45 | $0.00 |
| 2024 | 33210 | COUNTY - COUNTY LEVIES (CE, DD, VET, MH) | $129.12 | $129.11 | $0.00 | $0.00 | $258.23 | $0.00 |
| 2024 | 33210 | CONSERVE - CONSERVATION FUTURES | $3.87 | $3.87 | $0.00 | $0.00 | $7.74 | $0.00 |
| 2024 | 33210 | CITYPT - CITY OF PT | $184.49 | $184.48 | $0.00 | $0.00 | $368.97 | $0.00 |
| 2024 | 33210 | PORTPT - PORT DISTRICT | $53.33 | $53.32 | $0.00 | $0.00 | $106.65 | $0.00 |
| 2024 | 33210 | PUD1 - PUD #1 | $8.48 | $8.48 | $0.00 | $0.00 | $16.96 | $0.00 |
| 2024 | 33210 | HD2 - HOSP DIST #2 | $7.54 | $7.53 | $0.00 | $0.00 | $15.07 | $0.00 |
| 2024 | 33210 | SD50 - SCHOOL DIST #50 | $244.11 | $244.11 | $0.00 | $0.00 | $488.22 | $0.00 |
| 2024 | 33210 | FD1 - FIRE DISTRICT #1 | $170.72 | $170.71 | $0.00 | $0.00 | $341.43 | $0.00 |
| 2024 | 33210 | EMS1 - FIRE DIST #1 EMS | $65.21 | $65.20 | $0.00 | $0.00 | $130.41 | $0.00 |
| 2024 | 33210 | JCCD - JC Conservation District | $2.55 | $2.55 | $0.00 | $0.00 | $5.10 | $0.00 |
| 2024 | 33210 | NWA - Noxious Weed Assessment | $2.15 | $2.15 | $0.00 | $0.00 | $4.30 | $0.00 |
| 2024 | 33210 | TOTAL: | $1173.30 | $1173.23 | $0.00 | $0.00 | $2346.53 | $0.00 |
|
| 2024 | 33210 | $1173.30 | $1173.23 | $0.00 | $0.00 | $2346.53 | $0.00 |
Statement Details |
| 2023 | 33254 | STATE - STATE LEVY (SCHOOL) | $301.13 | $301.13 | $0.00 | $0.00 | $602.26 | $0.00 |
| 2023 | 33254 | COUNTY - COUNTY LEVIES (CE, DD, VET, MH) | $131.42 | $131.38 | $0.00 | $0.00 | $262.80 | $0.00 |
| 2023 | 33254 | CONSERVE - CONSERVATION FUTURES | $3.94 | $3.94 | $0.00 | $0.00 | $7.88 | $0.00 |
| 2023 | 33254 | CITYPT - CITY OF PT | $185.72 | $185.71 | $0.00 | $0.00 | $371.43 | $0.00 |
| 2023 | 33254 | PORTPT - PORT DISTRICT | $55.36 | $55.35 | $0.00 | $0.00 | $110.71 | $0.00 |
| 2023 | 33254 | PUD1 - PUD #1 | $8.71 | $8.71 | $0.00 | $0.00 | $17.42 | $0.00 |
| 2023 | 33254 | HD2 - HOSP DIST #2 | $7.68 | $7.66 | $0.00 | $0.00 | $15.34 | $0.00 |
| 2023 | 33254 | SD50 - SCHOOL DIST #50 | $238.96 | $238.95 | $0.00 | $0.00 | $477.91 | $0.00 |
| 2023 | 33254 | FD1 - FIRE DISTRICT #1 | $108.25 | $108.25 | $0.00 | $0.00 | $216.50 | $0.00 |
| 2023 | 33254 | EMS1 - FIRE DIST #1 EMS | $46.05 | $46.05 | $0.00 | $0.00 | $92.10 | $0.00 |
| 2023 | 33254 | JCCD - JC Conservation District | $2.55 | $2.55 | $0.00 | $0.00 | $5.10 | $0.00 |
| 2023 | 33254 | NWA - Noxious Weed Assessment | $2.15 | $2.15 | $0.00 | $0.00 | $4.30 | $0.00 |
| 2023 | 33254 | TOTAL: | $1091.92 | $1091.83 | $0.00 | $0.00 | $2183.75 | $0.00 |
|
| 2023 | 33254 | $1091.92 | $1091.83 | $0.00 | $0.00 | $2183.75 | $0.00 |
Values
| (+) Improvement Homesite Value: | + | $178,179 | |
| (+) Improvement Non-Homesite Value: | + | $0 | |
| (+) Land Homesite Value: | + | $120,000 | |
| (+) Land Non-Homesite Value: | + | $0 | |
| (+) Curr Use (HS): | + | $0 | $0 |
| (+) Curr Use (NHS): | + | $0 | $0 |
| | | -------------------------- | |
| (=) Market Value: | = | $298,179 | |
| (–) Productivity Loss: | – | $0 | |
| | | -------------------------- | |
| (=) Subtotal: | = | $298,179 | |
| (+) Senior Appraised Value: | + | $0 | |
| (+) Non-Senior Appraised Value: | + | $298,179 | |
| | | -------------------------- | |
| (=) Total Appraised Value: | = | $298,179 | |
| (–) Senior Exemption Loss: | – | $0 | |
| (–) Exemption Loss: | – | $0 | |
| | | -------------------------- | |
| (=) Taxable Value: | = | $298,179 | |
Taxing Jurisdiction
| Owner: | MARSHAL DAVIS | | |
| % Ownership: | 100.0000000000% | | |
| Total Value: | $298,179 | | |
| Tax Area: | 0110 - C-50F1E1H2 |
| CE | COUNTY CURRENT EXPENSE | 0.9034619479 | $298,179 | $298,179 | $269.39 | | |
| CNTYDD | DEVELOPMENTAL DISABILITIES | 0.0052121823 | $298,179 | $298,179 | $1.55 | | |
| CNTYVET | VETERANS RELIEF | 0.0052777810 | $298,179 | $298,179 | $1.57 | | |
| MENTAL | MENTAL HEALTH | 0.0052121823 | $298,179 | $298,179 | $1.55 | | |
| PTGEN | CITY OF PT GENERAL | 0.8551967795 | $298,179 | $298,179 | $255.00 | | |
| PTLLL | CITY OF PT - LIBRARY LID LIFT | 0.4010114288 | $298,179 | $298,179 | $119.57 | | |
| PTMVBOND | CITY OF PT MV BOND | 0.0484717981 | $298,179 | $298,179 | $14.45 | | |
| HOSP2CASH | HOSP DIST #2 GENERAL | 0.0536075306 | $298,179 | $298,179 | $15.98 | | |
| SCH50BOND | SCHOOL DIST #50 BOND 2016 | 0.5377451389 | $298,179 | $298,179 | $160.34 | | |
| SCH50CP | SCHOOL DIST #50 CAP PROJ | 0.4573475088 | $298,179 | $298,179 | $136.37 | | |
| SCH50MO | SCHOOL DIST #50 EP & O | 0.8262822886 | $298,179 | $298,179 | $246.38 | | |
| CONSERVE | CONSERVATION FUTURES | 0.0275621078 | $298,179 | $298,179 | $8.22 | | |
| EMS1 | FIRE DIST #1 EMS | 0.4679948282 | $298,179 | $298,179 | $139.55 | | |
| FD1 | FIRE DIST #1 GENERAL | 1.2171942929 | $298,179 | $298,179 | $362.94 | | |
| PORTPT | PORT OF PT GENERAL | 0.1134941229 | $298,179 | $298,179 | $33.84 | | |
| PORTPTIDD | PORT OF PT IDD 2019 | 0.2577346692 | $298,179 | $298,179 | $76.85 | | |
| PUD1 | PUD #1 GENERAL | 0.0597888892 | $298,179 | $298,179 | $17.83 | | |
| STATE | STATE SCHOOL PART 1 | 1.4940692947 | $298,179 | $298,179 | $445.50 | | |
| STATE2 | STATE SCHOOL PART 2 | 0.8050170049 | $298,179 | $298,179 | $240.04 | | |
| | Total Tax Rate: | 8.5416817766 | | | | | |
| | | | | Taxes w/Current Exemptions: | $2,546.92 | | |
| | | | | Taxes w/o Exemptions: | $2,546.92 | | |
Improvement / Building
| Improvement #1: | Manufactured Home | State Code: | 11 | 1300.0 sqft | Value: | $178,179 |
| Bathrooms (#): | 2 (FULL) | Bedrooms (#): | 3 | | Exterior Wall: | PL/T1 | Fireplace: | WD ST-AVG | | Floor Construction: | FRAME | Foundation: | PO&BL | | Heating/Cooling: | F/A | Inside Verify: | YES-FIX | | Roof Cover: | COMP |   |   |
|
| | Type | Description | Class CD | Sub Class CD | Year Built | Area |
| | MA | Main Area | 4 | MDBL | 1991 | 1300.0 |
| | MATT | MH Attached Garage | 4 | MDBL | 1991 | 494.0 |
Sketch
| No sketches available for this property. |
Property Image
Land
| 1 | 6150-1185L | | 0.0000 | 0.00 | 0.00 | 0.00 | 1.00 | $120,000 | $0 |
Roll Value History
| 2026 | N/A | N/A | N/A | N/A | N/A |
| 2025 | $178,179 | $120,000 | $0 | $298,179 | $298,179 |
| 2024 | $162,911 | $115,500 | $0 | $278,411 | $278,411 |
| 2023 | $155,828 | $105,000 | $0 | $260,828 | $260,828 |
| 2022 | $155,828 | $100,000 | $0 | $255,828 | $255,828 |
Deed and Sales History
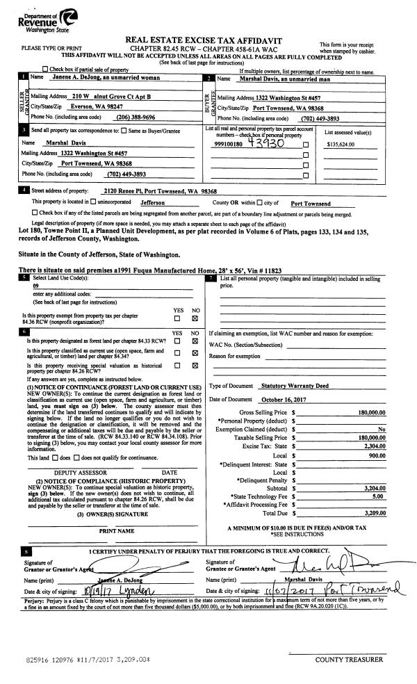
| 1 | 10/16/2017 | SWD | Statutory Warranty Deed | JANENE A DE JONG | MARSHAL DAVIS | | | $180,000.00 | 128976 | |
| 2 | 12/17/2014 | PRD | Personal Representatives Deed | HAROLD DE JONG | JANENE A DE JONG | | | | 122489 | |
| 3 | 06/08/2006 | SWD | Statutory Warranty Deed | SUNDSTEDT, LAURIE LEE | DEJONG, HAROLD | | | $140,000.00 | 106911 | 0 |
| 4 | 09/01/2005 | QCD | Quit Claim Deed | MATHEWS, PATRICIA L | SUNDSTEDT, LAURIE L | 0 | 0 | $0.00 | 104636 | 0 |
Payout Agreement
| No payout information available.. |