Property
Account |
| Property ID: | 44004 | Abbreviated Legal Description: | WOODLAND LOTS 20 TO 22(ALL), 23(TX 76) |
| Parcel # / Geo ID: | 999400007 | Agent Code: | |
| Type: | Real | | |
| Tax Area: | 0110 - C-50F1E1H2 | Land Use Code | 11 |
| Open Space: | N | DFL | N |
| Historic Property: | N | Remodel Property: | N |
| Multi-Family Redevelopment: | N | | |
| Township: | 30N | Section: | 3 |
| Range: | 1W |
Location |
| Address: | 2564 WILSON ST PORT TOWNSEND, WA 98368 | Mapsco: | 150/064 |
| Neighborhood: | COLUMBIA//HUSSEY/WEYMOUNT-DYER/WOODLAND LP-ACREAGE; CEMETERY | Map ID: | |
| Neighborhood CD: | 6120 |
Owner |
| Name: | MICHAEL S EARLEY | Owner ID: | 96693 |
| Mailing Address: | 2564 WILSON ST PORT TOWNSEND, WA 98368 | % Ownership: | 100.0000000000% |
| | | Exemptions: | |
Pay Tax Due
Select the appropriate checkbox next to the year to be paid. Multiple years may be selected.
*Convenience Fee not included
Taxes and Assessment Details
Property Tax Information as of
03/11/2026
Click on "Statement Details" to expand or collapse a tax statement.
* Please enter a valid date ** Please enter a valid date *
Statement Details |
| 2026 | 33142 | STATE - STATE LEVY (SCHOOL) | $238.61 | $238.61 | $0.00 | $0.00 | $0.00 | $477.22 |
| 2026 | 33142 | COUNTY - COUNTY LEVIES (CE, DD, VET, MH) | $95.40 | $95.39 | $0.00 | $0.00 | $0.00 | $190.79 |
| 2026 | 33142 | CONSERVE - CONSERVATION FUTURES | $2.86 | $2.86 | $0.00 | $0.00 | $0.00 | $5.72 |
| 2026 | 33142 | CITYPT - CITY OF PT | $135.41 | $135.40 | $0.00 | $0.00 | $0.00 | $270.81 |
| 2026 | 33142 | PORTPT - PORT DISTRICT | $38.53 | $38.53 | $0.00 | $0.00 | $0.00 | $77.06 |
| 2026 | 33142 | PUD1 - PUD #1 | $6.21 | $6.20 | $0.00 | $0.00 | $0.00 | $12.41 |
| 2026 | 33142 | HD2 - HOSP DIST #2 | $5.57 | $5.56 | $0.00 | $0.00 | $0.00 | $11.13 |
| 2026 | 33142 | SD50 - SCHOOL DIST #50 | $189.04 | $189.02 | $0.00 | $0.00 | $0.00 | $378.06 |
| 2026 | 33142 | FD1 - FIRE DISTRICT #1 | $126.33 | $126.32 | $0.00 | $0.00 | $0.00 | $252.65 |
| 2026 | 33142 | EMS1 - FIRE DIST #1 EMS | $48.57 | $48.57 | $0.00 | $0.00 | $0.00 | $97.14 |
| 2026 | 33142 | JCCD - JC Conservation District | $2.55 | $2.55 | $0.00 | $0.00 | $0.00 | $5.10 |
| 2026 | 33142 | NWA - Noxious Weed Assessment | $2.98 | $2.97 | $0.00 | $0.00 | $0.00 | $5.95 |
| 2026 | 33142 | TOTAL: | $892.06 | $891.98 | $0.00 | $0.00 | $0.00 | $1784.04 |
|
| 2026 | 33142 | $892.06 | $891.98 | $0.00 | $0.00 | $0.00 | $1784.04 |
Statement Details |
| 2025 | 33218 | STATE - STATE LEVY (SCHOOL) | $247.63 | $247.61 | $0.00 | $0.00 | $495.24 | $0.00 |
| 2025 | 33218 | COUNTY - COUNTY LEVIES (CE, DD, VET, MH) | $97.38 | $97.37 | $0.00 | $0.00 | $194.75 | $0.00 |
| 2025 | 33218 | CONSERVE - CONSERVATION FUTURES | $2.92 | $2.92 | $0.00 | $0.00 | $5.84 | $0.00 |
| 2025 | 33218 | CITYPT - CITY OF PT | $140.43 | $140.42 | $0.00 | $0.00 | $280.85 | $0.00 |
| 2025 | 33218 | PORTPT - PORT DISTRICT | $39.74 | $39.73 | $0.00 | $0.00 | $79.47 | $0.00 |
| 2025 | 33218 | PUD1 - PUD #1 | $6.37 | $6.37 | $0.00 | $0.00 | $12.74 | $0.00 |
| 2025 | 33218 | HD2 - HOSP DIST #2 | $5.68 | $5.68 | $0.00 | $0.00 | $11.36 | $0.00 |
| 2025 | 33218 | SD50 - SCHOOL DIST #50 | $180.98 | $180.96 | $0.00 | $0.00 | $361.94 | $0.00 |
| 2025 | 33218 | FD1 - FIRE DISTRICT #1 | $128.50 | $128.49 | $0.00 | $0.00 | $256.99 | $0.00 |
| 2025 | 33218 | EMS1 - FIRE DIST #1 EMS | $49.43 | $49.42 | $0.00 | $0.00 | $98.85 | $0.00 |
| 2025 | 33218 | JCCD - JC Conservation District | $2.55 | $2.55 | $0.00 | $0.00 | $5.10 | $0.00 |
| 2025 | 33218 | NWA - Noxious Weed Assessment | $2.15 | $2.15 | $0.00 | $0.00 | $4.30 | $0.00 |
| 2025 | 33218 | TOTAL: | $903.76 | $903.67 | $0.00 | $0.00 | $1807.43 | $0.00 |
|
| 2025 | 33218 | $903.76 | $903.67 | $0.00 | $0.00 | $1807.43 | $0.00 |
Statement Details |
| 2024 | 33280 | STATE - STATE LEVY (SCHOOL) | $232.83 | $232.83 | $0.00 | $0.00 | $465.66 | $0.00 |
| 2024 | 33280 | COUNTY - COUNTY LEVIES (CE, DD, VET, MH) | $99.65 | $99.62 | $0.00 | $0.00 | $199.27 | $0.00 |
| 2024 | 33280 | CONSERVE - CONSERVATION FUTURES | $2.99 | $2.99 | $0.00 | $0.00 | $5.98 | $0.00 |
| 2024 | 33280 | CITYPT - CITY OF PT | $142.36 | $142.35 | $0.00 | $0.00 | $284.71 | $0.00 |
| 2024 | 33280 | PORTPT - PORT DISTRICT | $41.15 | $41.15 | $0.00 | $0.00 | $82.30 | $0.00 |
| 2024 | 33280 | PUD1 - PUD #1 | $6.55 | $6.54 | $0.00 | $0.00 | $13.09 | $0.00 |
| 2024 | 33280 | HD2 - HOSP DIST #2 | $5.82 | $5.81 | $0.00 | $0.00 | $11.63 | $0.00 |
| 2024 | 33280 | SD50 - SCHOOL DIST #50 | $188.38 | $188.36 | $0.00 | $0.00 | $376.74 | $0.00 |
| 2024 | 33280 | FD1 - FIRE DISTRICT #1 | $131.74 | $131.73 | $0.00 | $0.00 | $263.47 | $0.00 |
| 2024 | 33280 | EMS1 - FIRE DIST #1 EMS | $50.32 | $50.32 | $0.00 | $0.00 | $100.64 | $0.00 |
| 2024 | 33280 | JCCD - JC Conservation District | $2.55 | $2.55 | $0.00 | $0.00 | $5.10 | $0.00 |
| 2024 | 33280 | NWA - Noxious Weed Assessment | $2.15 | $2.15 | $0.00 | $0.00 | $4.30 | $0.00 |
| 2024 | 33280 | TOTAL: | $906.49 | $906.40 | $0.00 | $0.00 | $1812.89 | $0.00 |
|
| 2024 | 33280 | $906.49 | $906.40 | $0.00 | $0.00 | $1812.89 | $0.00 |
Statement Details |
| 2023 | 33324 | STATE - STATE LEVY (SCHOOL) | $217.65 | $217.63 | $0.00 | $0.00 | $435.28 | $0.00 |
| 2023 | 33324 | COUNTY - COUNTY LEVIES (CE, DD, VET, MH) | $94.98 | $94.96 | $0.00 | $0.00 | $189.94 | $0.00 |
| 2023 | 33324 | CONSERVE - CONSERVATION FUTURES | $2.85 | $2.85 | $0.00 | $0.00 | $5.70 | $0.00 |
| 2023 | 33324 | CITYPT - CITY OF PT | $134.23 | $134.23 | $0.00 | $0.00 | $268.46 | $0.00 |
| 2023 | 33324 | PORTPT - PORT DISTRICT | $40.01 | $40.00 | $0.00 | $0.00 | $80.01 | $0.00 |
| 2023 | 33324 | PUD1 - PUD #1 | $6.30 | $6.29 | $0.00 | $0.00 | $12.59 | $0.00 |
| 2023 | 33324 | HD2 - HOSP DIST #2 | $5.55 | $5.54 | $0.00 | $0.00 | $11.09 | $0.00 |
| 2023 | 33324 | SD50 - SCHOOL DIST #50 | $172.71 | $172.69 | $0.00 | $0.00 | $345.40 | $0.00 |
| 2023 | 33324 | FD1 - FIRE DISTRICT #1 | $78.24 | $78.23 | $0.00 | $0.00 | $156.47 | $0.00 |
| 2023 | 33324 | EMS1 - FIRE DIST #1 EMS | $33.28 | $33.28 | $0.00 | $0.00 | $66.56 | $0.00 |
| 2023 | 33324 | JCCD - JC Conservation District | $2.55 | $2.55 | $0.00 | $0.00 | $5.10 | $0.00 |
| 2023 | 33324 | NWA - Noxious Weed Assessment | $2.15 | $2.15 | $0.00 | $0.00 | $4.30 | $0.00 |
| 2023 | 33324 | TOTAL: | $790.50 | $790.40 | $0.00 | $0.00 | $1580.90 | $0.00 |
|
| 2023 | 33324 | $790.50 | $790.40 | $0.00 | $0.00 | $1580.90 | $0.00 |
Values
| (+) Improvement Homesite Value: | + | $0 | |
| (+) Improvement Non-Homesite Value: | + | $50,070 | |
| (+) Land Homesite Value: | + | $0 | |
| (+) Land Non-Homesite Value: | + | $157,500 | |
| (+) Curr Use (HS): | + | $0 | $0 |
| (+) Curr Use (NHS): | + | $0 | $0 |
| | | -------------------------- | |
| (=) Market Value: | = | $207,570 | |
| (–) Productivity Loss: | – | $0 | |
| | | -------------------------- | |
| (=) Subtotal: | = | $207,570 | |
| (+) Senior Appraised Value: | + | $0 | |
| (+) Non-Senior Appraised Value: | + | $207,570 | |
| | | -------------------------- | |
| (=) Total Appraised Value: | = | $207,570 | |
| (–) Senior Exemption Loss: | – | $0 | |
| (–) Exemption Loss: | – | $0 | |
| | | -------------------------- | |
| (=) Taxable Value: | = | $207,570 | |
Taxing Jurisdiction
| Owner: | MICHAEL S EARLEY | | |
| % Ownership: | 100.0000000000% | | |
| Total Value: | $207,570 | | |
| Tax Area: | 0110 - C-50F1E1H2 |
| CE | COUNTY CURRENT EXPENSE | 0.9034619479 | $207,570 | $207,570 | $187.53 | | |
| CNTYDD | DEVELOPMENTAL DISABILITIES | 0.0052121823 | $207,570 | $207,570 | $1.08 | | |
| CNTYVET | VETERANS RELIEF | 0.0052777810 | $207,570 | $207,570 | $1.10 | | |
| MENTAL | MENTAL HEALTH | 0.0052121823 | $207,570 | $207,570 | $1.08 | | |
| PTGEN | CITY OF PT GENERAL | 0.8551967795 | $207,570 | $207,570 | $177.51 | | |
| PTLLL | CITY OF PT - LIBRARY LID LIFT | 0.4010114288 | $207,570 | $207,570 | $83.24 | | |
| PTMVBOND | CITY OF PT MV BOND | 0.0484717981 | $207,570 | $207,570 | $10.06 | | |
| HOSP2CASH | HOSP DIST #2 GENERAL | 0.0536075306 | $207,570 | $207,570 | $11.13 | | |
| SCH50BOND | SCHOOL DIST #50 BOND 2016 | 0.5377451389 | $207,570 | $207,570 | $111.62 | | |
| SCH50CP | SCHOOL DIST #50 CAP PROJ | 0.4573475088 | $207,570 | $207,570 | $94.93 | | |
| SCH50MO | SCHOOL DIST #50 EP & O | 0.8262822886 | $207,570 | $207,570 | $171.51 | | |
| CONSERVE | CONSERVATION FUTURES | 0.0275621078 | $207,570 | $207,570 | $5.72 | | |
| EMS1 | FIRE DIST #1 EMS | 0.4679948282 | $207,570 | $207,570 | $97.14 | | |
| FD1 | FIRE DIST #1 GENERAL | 1.2171942929 | $207,570 | $207,570 | $252.65 | | |
| PORTPT | PORT OF PT GENERAL | 0.1134941229 | $207,570 | $207,570 | $23.56 | | |
| PORTPTIDD | PORT OF PT IDD 2019 | 0.2577346692 | $207,570 | $207,570 | $53.50 | | |
| PUD1 | PUD #1 GENERAL | 0.0597888892 | $207,570 | $207,570 | $12.41 | | |
| STATE | STATE SCHOOL PART 1 | 1.4940692947 | $207,570 | $207,570 | $310.12 | | |
| STATE2 | STATE SCHOOL PART 2 | 0.8050170049 | $207,570 | $207,570 | $167.10 | | |
| | Total Tax Rate: | 8.5416817766 | | | | | |
| | | | | Taxes w/Current Exemptions: | $1,772.99 | | |
| | | | | Taxes w/o Exemptions: | $1,772.99 | | |
Improvement / Building
| Improvement #1: | Residential Bldg | State Code: | 11 | 1190.0 sqft | Value: | $50,070 |
| Bathrooms (#): | 1 (FULL) | Bedrooms (#): | 3 | | Exterior Wall: | SI/ST | Fireplace: | WD ST-GOOD | | Floor Construction: | FRAME | Foundation: | PO&BL | | Heating/Cooling: | WD/NO | Roof Cover: | COMP |
|
| | Type | Description | Class CD | Sub Class CD | Year Built | Area |
| | MA | Main Area | 2 | 15SF | 1890 | 722.0 |
| | MA2 | Second Floor Main Area | 2 | 15SF | 1890 | 468.0 |
| | HCPOR | House Concrete Porch | 2 | * | 1890 | 79.5 |
Sketch
Property Image
Land
| 1 | 6120-1185L | | 0.0000 | 0.00 | 0.00 | 0.00 | 1.00 | $157,500 | $0 |
Roll Value History
| 2026 | N/A | N/A | N/A | N/A | N/A |
| 2025 | $50,070 | $157,500 | $0 | $207,570 | $207,570 |
| 2024 | $50,070 | $156,450 | $0 | $206,520 | $206,520 |
| 2023 | $50,070 | $151,200 | $0 | $201,270 | $201,270 |
| 2022 | $45,897 | $139,000 | $0 | $184,897 | $184,897 |
Deed and Sales History
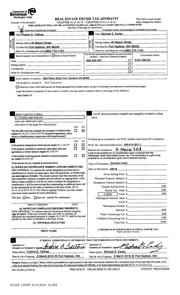
| 1 | 03/06/2018 | QCD | Quit Claim Deed | | | | | | 129698 | |
| 2 | 03/31/1992 | SWD | Statutory Warranty Deed | MUGGY, CECIL L | TALLTREE, FROSTINE B/WALKER, B | 0 | 0 | $46,500.00 | 68048 | 0 |
Payout Agreement
| No payout information available.. |