| 1 | 08/03/2021 | QCD | Quit Claim Deed | J DEAN MATTONI & MICHELLE L MATTONI | MATTONI LIVING TRUST | | | | 137304 | |
| 2 | 08/03/2021 | QCD | Quit Claim Deed | MATTONI LIVING TRUST | J DEAN MATTONI & MICHELLE L MATTONI | | | | 137303 | |
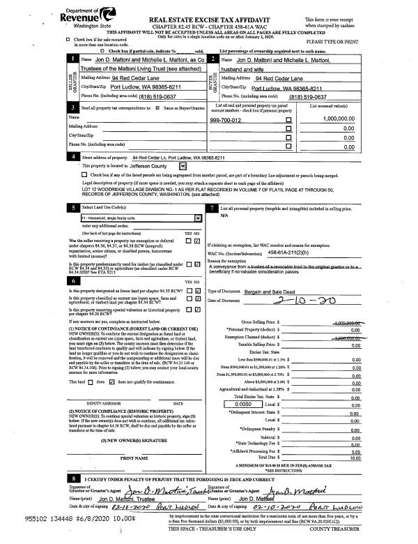
| 3 | 02/10/2020 | BSD | Bargain and Sale Deed | J DEAN MATTONI & MICHELLE L MATTONI | MATTONI LIVING TRUST | | | | 134449 | |
| 4 | 02/10/2020 | BSD | Bargain and Sale Deed | MATTONI LIVING TRUST | J DEAN MATTONI & MICHELLE L MATTONI | | | | 134448 | |
| 5 | 12/09/2014 | QCD | Quit Claim Deed | J DEAN MATTONI & MICHELLE L MATTONI | MATTONI LIVING TRUST | | | | 122573 | |
| 6 | 12/09/2014 | QCD | Quit Claim Deed | MATTONI LIVING TRUST | J DEAN MATTONI & MICHELLE L MATTONI | | | | 122572 | |
| 7 | 04/14/2014 | QCD | Quit Claim Deed | J DEAN MATTONI & MICHELLE L MATTONI | MATTONI LIVING TRUST | | | | 121045 | |
| 8 | 04/14/2014 | QCD | Quit Claim Deed | MATTONI LIVING TRUST | J DEAN MATTONI & MICHELLE L MATTONI | | | | 121044 | |
| 9 | 12/03/2013 | QCD | Quit Claim Deed | J DEAN MATTONI & MICHELLE L MATTONI | MATTONI LIVING TRUST | | | | 120587 | |
| 10 | 12/03/2013 | QCD | Quit Claim Deed | DEAN MATTONI TRUSTEE | J DEAN MATTONI & MICHELLE L MATTONI | | | | 120586 | |
| 11 | 08/24/2004 | SWD | Statutory Warranty Deed | DAVIS, DICKY D/ERIKA E | MATTONI, DEAN & MICHELLE/TRUST | 0 | 0 | $0.00 | 101602 | 0 |
| 12 | 08/24/2004 | SWD | Statutory Warranty Deed | DAVIS, DICKY D/ERIKA E | MATTONI, DEAN/MICHELLE | 0 | 0 | $265,000.00 | 101327 | 0 |
| 13 | 09/22/2003 | BLA | Boundary Line Adjustment | DAVIS, DICKY/ERIKA | STONE, THOMAS/LUCY | 0 | 0 | $0.00 | 98464 | 0 |
| 14 | 09/18/2003 | QCD | Quit Claim Deed | DAVIS, DICKY/ERIKA | STONE, THOMAS/LUCY | 0 | 0 | $0.00 | 98465 | 0 |
| 15 | 07/07/1998 | SWD | Statutory Warranty Deed | DOW, MURRAY & JULIE | DAVIS, DICKY & ERIKA E | 0 | 0 | $114,950.00 | 84909 | 0 |
| 16 | 04/08/1998 | SWD | Statutory Warranty Deed | POPE RESOURCES | DOW, MURRAY/JULIE | 0 | 0 | $76,000.00 | 84262 | 0 |