Property
Account |
| Property ID: | 44071 | Abbreviated Legal Description: | WORTHINGTON'S BLK 1 LOTS 9 THRU 11 |
| Parcel # / Geo ID: | 999800104 | Agent Code: | |
| Type: | Real | | |
| Tax Area: | 0320 - 1-48F2E2H2C2L1Z2 | Land Use Code | 91 |
| Open Space: | N | DFL | N |
| Historic Property: | N | Remodel Property: | N |
| Multi-Family Redevelopment: | N | | |
| Township: | 27N | Section: | 24 |
| Range: | 2W |
Location |
| Address: | 70 ROBERTS ST QUILCENE, WA 98376 | Mapsco: | 112/006 |
| Neighborhood: | JOSEPHINE CAMBELLS, HW CAMBELLS AND WORTHINGTONS LONG PLATS | Map ID: | |
| Neighborhood CD: | 2555 |
Owner |
| Name: | TERRY L BUDE | Owner ID: | 108334 |
| Mailing Address: | 5922 NE 111TH ST VANCOUVER, WA 98686-5942 | % Ownership: | 100.0000000000% |
| | | Exemptions: | |
Pay Tax Due
Select the appropriate checkbox next to the year to be paid. Multiple years may be selected.
*Convenience Fee not included
Taxes and Assessment Details
Property Tax Information as of
03/10/2026
Click on "Statement Details" to expand or collapse a tax statement.
* Please enter a valid date ** Please enter a valid date *
Statement Details |
| 2026 | 33209 | STATE - STATE LEVY (SCHOOL) | $31.73 | $31.73 | $0.00 | $0.00 | $0.00 | $63.46 |
| 2026 | 33209 | COUNTY - COUNTY LEVIES (CE, DD, VET, MH) | $12.69 | $12.68 | $0.00 | $0.00 | $0.00 | $25.37 |
| 2026 | 33209 | CONSERVE - CONSERVATION FUTURES | $0.38 | $0.38 | $0.00 | $0.00 | $0.00 | $0.76 |
| 2026 | 33209 | COROADS - COUNTY ROADS (ROADS, DIV TO CE) | $10.24 | $10.23 | $0.00 | $0.00 | $0.00 | $20.47 |
| 2026 | 33209 | PORTPT - PORT DISTRICT | $5.13 | $5.11 | $0.00 | $0.00 | $0.00 | $10.24 |
| 2026 | 33209 | PUD1 - PUD #1 | $0.83 | $0.82 | $0.00 | $0.00 | $0.00 | $1.65 |
| 2026 | 33209 | LIB1 - LIBRARY DIST #1 | $3.96 | $3.96 | $0.00 | $0.00 | $0.00 | $7.92 |
| 2026 | 33209 | HD2 - HOSP DIST #2 | $0.74 | $0.74 | $0.00 | $0.00 | $0.00 | $1.48 |
| 2026 | 33209 | SD48 - SCHOOL DIST #48 | $19.49 | $19.48 | $0.00 | $0.00 | $0.00 | $38.97 |
| 2026 | 33209 | FD2 - FIRE DISTRICT #2 | $10.42 | $10.42 | $0.00 | $0.00 | $0.00 | $20.84 |
| 2026 | 33209 | EMS2 - FIRE DIST #2 EMS | $5.87 | $5.86 | $0.00 | $0.00 | $0.00 | $11.73 |
| 2026 | 33209 | CEM2 - CEMETERY DIST #2 | $0.34 | $0.33 | $0.00 | $0.00 | $0.00 | $0.67 |
| 2026 | 33209 | JCCD - JC Conservation District | $2.53 | $2.53 | $0.00 | $0.00 | $0.00 | $5.06 |
| 2026 | 33209 | NWA - Noxious Weed Assessment | $2.98 | $2.97 | $0.00 | $0.00 | $0.00 | $5.95 |
| 2026 | 33209 | WAT - Clean Water District | $13.00 | $13.00 | $0.00 | $0.00 | $0.00 | $26.00 |
| 2026 | 33209 | TOTAL: | $120.33 | $120.24 | $0.00 | $0.00 | $0.00 | $240.57 |
|
| 2026 | 33209 | $120.33 | $120.24 | $0.00 | $0.00 | $0.00 | $240.57 |
Statement Details |
| 2025 | 33285 | STATE - STATE LEVY (SCHOOL) | $31.66 | $31.65 | $0.00 | $0.00 | $63.31 | $0.00 |
| 2025 | 33285 | COUNTY - COUNTY LEVIES (CE, DD, VET, MH) | $12.45 | $12.44 | $0.00 | $0.00 | $24.89 | $0.00 |
| 2025 | 33285 | CONSERVE - CONSERVATION FUTURES | $0.38 | $0.37 | $0.00 | $0.00 | $0.75 | $0.00 |
| 2025 | 33285 | COROADS - COUNTY ROADS (ROADS, DIV TO CE) | $9.98 | $9.96 | $0.00 | $0.00 | $19.94 | $0.00 |
| 2025 | 33285 | PORTPT - PORT DISTRICT | $5.08 | $5.07 | $0.00 | $0.00 | $10.15 | $0.00 |
| 2025 | 33285 | PUD1 - PUD #1 | $0.82 | $0.81 | $0.00 | $0.00 | $1.63 | $0.00 |
| 2025 | 33285 | LIB1 - LIBRARY DIST #1 | $3.86 | $3.86 | $0.00 | $0.00 | $7.72 | $0.00 |
| 2025 | 33285 | HD2 - HOSP DIST #2 | $0.73 | $0.72 | $0.00 | $0.00 | $1.45 | $0.00 |
| 2025 | 33285 | SD48 - SCHOOL DIST #48 | $18.64 | $18.64 | $0.00 | $0.00 | $37.28 | $0.00 |
| 2025 | 33285 | FD2 - FIRE DISTRICT #2 | $10.29 | $10.29 | $0.00 | $0.00 | $20.58 | $0.00 |
| 2025 | 33285 | EMS2 - FIRE DIST #2 EMS | $5.80 | $5.79 | $0.00 | $0.00 | $11.59 | $0.00 |
| 2025 | 33285 | CEM2 - CEMETERY DIST #2 | $0.33 | $0.33 | $0.00 | $0.00 | $0.66 | $0.00 |
| 2025 | 33285 | JCCD - JC Conservation District | $2.53 | $2.53 | $0.00 | $0.00 | $5.06 | $0.00 |
| 2025 | 33285 | NWA - Noxious Weed Assessment | $2.15 | $2.15 | $0.00 | $0.00 | $4.30 | $0.00 |
| 2025 | 33285 | WAT - Clean Water District | $13.00 | $13.00 | $0.00 | $0.00 | $26.00 | $0.00 |
| 2025 | 33285 | TOTAL: | $117.70 | $117.61 | $0.00 | $0.00 | $235.31 | $0.00 |
|
| 2025 | 33285 | $117.70 | $117.61 | $0.00 | $0.00 | $235.31 | $0.00 |
Statement Details |
| 2024 | 33347 | STATE - STATE LEVY (SCHOOL) | $29.16 | $29.15 | $0.00 | $0.00 | $58.31 | $0.00 |
| 2024 | 33347 | COUNTY - COUNTY LEVIES (CE, DD, VET, MH) | $12.47 | $12.47 | $0.00 | $0.00 | $24.94 | $0.00 |
| 2024 | 33347 | CONSERVE - CONSERVATION FUTURES | $0.38 | $0.37 | $0.00 | $0.00 | $0.75 | $0.00 |
| 2024 | 33347 | COROADS - COUNTY ROADS (ROADS, DIV TO CE) | $10.05 | $10.03 | $0.00 | $0.00 | $20.08 | $0.00 |
| 2024 | 33347 | PORTPT - PORT DISTRICT | $5.15 | $5.15 | $0.00 | $0.00 | $10.30 | $0.00 |
| 2024 | 33347 | PUD1 - PUD #1 | $0.82 | $0.82 | $0.00 | $0.00 | $1.64 | $0.00 |
| 2024 | 33347 | LIB1 - LIBRARY DIST #1 | $3.89 | $3.88 | $0.00 | $0.00 | $7.77 | $0.00 |
| 2024 | 33347 | HD2 - HOSP DIST #2 | $0.73 | $0.73 | $0.00 | $0.00 | $1.46 | $0.00 |
| 2024 | 33347 | SD48 - SCHOOL DIST #48 | $13.06 | $13.05 | $0.00 | $0.00 | $26.11 | $0.00 |
| 2024 | 33347 | FD2 - FIRE DISTRICT #2 | $10.37 | $10.37 | $0.00 | $0.00 | $20.74 | $0.00 |
| 2024 | 33347 | EMS2 - FIRE DIST #2 EMS | $5.84 | $5.84 | $0.00 | $0.00 | $11.68 | $0.00 |
| 2024 | 33347 | CEM2 - CEMETERY DIST #2 | $0.33 | $0.33 | $0.00 | $0.00 | $0.66 | $0.00 |
| 2024 | 33347 | JCCD - JC Conservation District | $2.53 | $2.53 | $0.00 | $0.00 | $5.06 | $0.00 |
| 2024 | 33347 | NWA - Noxious Weed Assessment | $2.15 | $2.15 | $0.00 | $0.00 | $4.30 | $0.00 |
| 2024 | 33347 | WAT - Clean Water District | $12.50 | $12.50 | $0.00 | $0.00 | $25.00 | $0.00 |
| 2024 | 33347 | TOTAL: | $109.43 | $109.37 | $0.00 | $0.00 | $218.80 | $0.00 |
|
| 2024 | 33347 | $109.43 | $109.37 | $0.00 | $0.00 | $218.80 | $0.00 |
Statement Details |
| 2023 | 33391 | STATE - STATE LEVY (SCHOOL) | $24.73 | $24.71 | $0.00 | $0.00 | $49.44 | $0.00 |
| 2023 | 33391 | COUNTY - COUNTY LEVIES (CE, DD, VET, MH) | $10.78 | $10.78 | $0.00 | $0.00 | $21.56 | $0.00 |
| 2023 | 33391 | CONSERVE - CONSERVATION FUTURES | $0.33 | $0.32 | $0.00 | $0.00 | $0.65 | $0.00 |
| 2023 | 33391 | COROADS - COUNTY ROADS (ROADS, DIV TO CE) | $8.74 | $8.72 | $0.00 | $0.00 | $17.46 | $0.00 |
| 2023 | 33391 | PORTPT - PORT DISTRICT | $4.54 | $4.54 | $0.00 | $0.00 | $9.08 | $0.00 |
| 2023 | 33391 | PUD1 - PUD #1 | $0.72 | $0.71 | $0.00 | $0.00 | $1.43 | $0.00 |
| 2023 | 33391 | LIB1 - LIBRARY DIST #1 | $3.38 | $3.37 | $0.00 | $0.00 | $6.75 | $0.00 |
| 2023 | 33391 | HD2 - HOSP DIST #2 | $0.63 | $0.62 | $0.00 | $0.00 | $1.25 | $0.00 |
| 2023 | 33391 | SD48 - SCHOOL DIST #48 | $11.94 | $11.93 | $0.00 | $0.00 | $23.87 | $0.00 |
| 2023 | 33391 | FD2 - FIRE DISTRICT #2 | $9.37 | $9.36 | $0.00 | $0.00 | $18.73 | $0.00 |
| 2023 | 33391 | EMS2 - FIRE DIST #2 EMS | $5.25 | $5.25 | $0.00 | $0.00 | $10.50 | $0.00 |
| 2023 | 33391 | CEM2 - CEMETERY DIST #2 | $0.30 | $0.30 | $0.00 | $0.00 | $0.60 | $0.00 |
| 2023 | 33391 | JCCD - JC Conservation District | $2.53 | $2.53 | $0.00 | $0.00 | $5.06 | $0.00 |
| 2023 | 33391 | NWA - Noxious Weed Assessment | $2.15 | $2.15 | $0.00 | $0.00 | $4.30 | $0.00 |
| 2023 | 33391 | WAT - Clean Water District | $12.00 | $12.00 | $0.00 | $0.00 | $24.00 | $0.00 |
| 2023 | 33391 | TOTAL: | $97.39 | $97.29 | $0.00 | $0.00 | $194.68 | $0.00 |
|
| 2023 | 33391 | $97.39 | $97.29 | $0.00 | $0.00 | $194.68 | $0.00 |
Values
| (+) Improvement Homesite Value: | + | $0 | |
| (+) Improvement Non-Homesite Value: | + | $0 | |
| (+) Land Homesite Value: | + | $0 | |
| (+) Land Non-Homesite Value: | + | $27,600 | |
| (+) Curr Use (HS): | + | $0 | $0 |
| (+) Curr Use (NHS): | + | $0 | $0 |
| | | -------------------------- | |
| (=) Market Value: | = | $27,600 | |
| (–) Productivity Loss: | – | $0 | |
| | | -------------------------- | |
| (=) Subtotal: | = | $27,600 | |
| (+) Senior Appraised Value: | + | $0 | |
| (+) Non-Senior Appraised Value: | + | $27,600 | |
| | | -------------------------- | |
| (=) Total Appraised Value: | = | $27,600 | |
| (–) Senior Exemption Loss: | – | $0 | |
| (–) Exemption Loss: | – | $0 | |
| | | -------------------------- | |
| (=) Taxable Value: | = | $27,600 | |
Taxing Jurisdiction
| Owner: | TERRY L BUDE | | |
| % Ownership: | 100.0000000000% | | |
| Total Value: | $27,600 | | |
| Tax Area: | 0320 - 1-48F2E2H2C2L1Z2 |
| CE | COUNTY CURRENT EXPENSE | 0.9034619479 | $27,600 | $27,600 | $24.94 | | |
| CNTYDD | DEVELOPMENTAL DISABILITIES | 0.0052121823 | $27,600 | $27,600 | $0.14 | | |
| CNTYVET | VETERANS RELIEF | 0.0052777810 | $27,600 | $27,600 | $0.15 | | |
| MENTAL | MENTAL HEALTH | 0.0052121823 | $27,600 | $27,600 | $0.14 | | |
| ROADS | COUNTY ROADS | 0.7415066410 | $27,600 | $27,600 | $20.47 | | |
| ROADSCU | COUNTY ROADS TO CUR EXP | 0.0000000000 | $27,600 | $27,600 | $0.00 | | |
| HOSP2CASH | HOSP DIST #2 GENERAL | 0.0536075306 | $27,600 | $27,600 | $1.48 | | |
| SCH48MO | SCHOOL DIST #48 EP & O | 1.4120478917 | $27,600 | $27,600 | $38.97 | | |
| CEM2 | CEMETERY DIST #2 GENERAL | 0.0241266154 | $27,600 | $27,600 | $0.67 | | |
| CONSERVE | CONSERVATION FUTURES | 0.0275621078 | $27,600 | $27,600 | $0.76 | | |
| FD2 | FIRE DIST #2 GENERAL | 0.7549976873 | $27,600 | $27,600 | $20.84 | | |
| LIB1 | LIBRARY DIST #1 GENERAL | 0.2868827388 | $27,600 | $27,600 | $7.92 | | |
| PORTPT | PORT OF PT GENERAL | 0.1134941229 | $27,600 | $27,600 | $3.13 | | |
| PORTPTIDD | PORT OF PT IDD 2019 | 0.2577346692 | $27,600 | $27,600 | $7.11 | | |
| PUD1 | PUD #1 GENERAL | 0.0597888892 | $27,600 | $27,600 | $1.65 | | |
| STATE | STATE SCHOOL PART 1 | 1.4940692947 | $27,600 | $27,600 | $41.24 | | |
| STATE2 | STATE SCHOOL PART 2 | 0.8050170049 | $27,600 | $27,600 | $22.22 | | |
| EMS2 | FIRE DIST #2 EMS | 0.4251727858 | $27,600 | $27,600 | $11.73 | | |
| | Total Tax Rate: | 7.3751720728 | | | | | |
| | | | | Taxes w/Current Exemptions: | $203.56 | | |
| | | | | Taxes w/o Exemptions: | $203.56 | | |
Improvement / Building
Sketch
| No sketches available for this property. |
Property Image
Land
| 1 | 2555-1375S | | 0.0000 | 0.00 | 0.00 | 0.00 | 1.00 | $27,600 | $0 |
Roll Value History
| 2026 | N/A | N/A | N/A | N/A | N/A |
| 2025 | $0 | $27,600 | $0 | $27,600 | $27,600 |
| 2024 | $0 | $26,400 | $0 | $26,400 | $26,400 |
| 2023 | $0 | $25,200 | $0 | $25,200 | $25,200 |
| 2022 | $0 | $21,000 | $0 | $21,000 | $21,000 |
Deed and Sales History
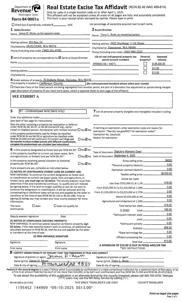
| 1 | 09/04/2025 | SWD | Statutory Warranty Deed | JAMES H MUNN | TERRY L BUDE | | | $38,000.00 | 144909 | |
| 2 | 09/15/2003 | SWD | Statutory Warranty Deed | REEVES, DOUGLAS | MUNN, JAMES H | 0 | 0 | $10,000.00 | 98321 | 0 |
| 3 | 08/20/2003 | QCD | Quit Claim Deed | REEVES, JAN | REEVES, DOUGLAS | 0 | 0 | $0.00 | 98117 | 0 |
| 4 | 07/27/1994 | SWD | Statutory Warranty Deed | WORTHINGTON, TRENA B/KENN | REEVES, DOUGLAS/JAN | 0 | 0 | $4,500.00 | 75043 | 0 |
Payout Agreement
| No payout information available.. |