Property
Account |
| Property ID: | 44099 | Abbreviated Legal Description: | WOODLAND HILLS #2 PHASE 1 DIV 2 LOT 4 SUBJ TO OPEN SPACE |
| Parcel # / Geo ID: | 999900104 | Agent Code: | |
| Type: | Real | | |
| Tax Area: | 0111 - 1-50F1E1H2L1 | Land Use Code | 91 |
| Open Space: | N | DFL | N |
| Historic Property: | N | Remodel Property: | N |
| Multi-Family Redevelopment: | N | | |
| Township: | 30N | Section: | 27 |
| Range: | 1W |
Location |
| Address: | 1603 WOODLAND DR PORT TOWNSEND, WA 98368 | Mapsco: | 071/004 |
| Neighborhood: | WOODLAND HILLS, WALTHEWS ACRE, MISC LONG PLATS, MEYER SUBDIV | Map ID: | |
| Neighborhood CD: | 5387 |
Owner |
| Name: | CHRISTOPHER R & CLAIRE L AFRICA | Owner ID: | 31459 |
| Mailing Address: | 1673 WOODLAND DR PORT TOWNSEND, WA 98368-2594 | % Ownership: | 100.0000000000% |
| | | Exemptions: | |
Pay Tax Due
Select the appropriate checkbox next to the year to be paid. Multiple years may be selected.
*Convenience Fee not included
Taxes and Assessment Details
Property Tax Information as of
03/10/2026
Click on "Statement Details" to expand or collapse a tax statement.
* Please enter a valid date ** Please enter a valid date *
Statement Details |
| 2026 | 33237 | STATE - STATE LEVY (SCHOOL) | $264.20 | $264.18 | $0.00 | $0.00 | $0.00 | $528.38 |
| 2026 | 33237 | COUNTY - COUNTY LEVIES (CE, DD, VET, MH) | $105.63 | $105.61 | $0.00 | $0.00 | $0.00 | $211.24 |
| 2026 | 33237 | CONSERVE - CONSERVATION FUTURES | $3.17 | $3.16 | $0.00 | $0.00 | $0.00 | $6.33 |
| 2026 | 33237 | COROADS - COUNTY ROADS (ROADS, DIV TO CE) | $85.21 | $85.20 | $0.00 | $0.00 | $0.00 | $170.41 |
| 2026 | 33237 | PORTPT - PORT DISTRICT | $42.66 | $42.65 | $0.00 | $0.00 | $0.00 | $85.31 |
| 2026 | 33237 | PUD1 - PUD #1 | $6.87 | $6.87 | $0.00 | $0.00 | $0.00 | $13.74 |
| 2026 | 33237 | LIB1 - LIBRARY DIST #1 | $32.97 | $32.96 | $0.00 | $0.00 | $0.00 | $65.93 |
| 2026 | 33237 | HD2 - HOSP DIST #2 | $6.16 | $6.16 | $0.00 | $0.00 | $0.00 | $12.32 |
| 2026 | 33237 | SD50 - SCHOOL DIST #50 | $209.30 | $209.29 | $0.00 | $0.00 | $0.00 | $418.59 |
| 2026 | 33237 | FD1 - FIRE DISTRICT #1 | $139.87 | $139.86 | $0.00 | $0.00 | $0.00 | $279.73 |
| 2026 | 33237 | EMS1 - FIRE DIST #1 EMS | $53.78 | $53.77 | $0.00 | $0.00 | $0.00 | $107.55 |
| 2026 | 33237 | FP - DNR Forest Fire Protection Assmt | $8.50 | $8.50 | $0.00 | $0.00 | $0.00 | $17.00 |
| 2026 | 33237 | FPLCA - DNR Landowner Contingency Assmt | $3.00 | $3.00 | $0.00 | $0.00 | $0.00 | $6.00 |
| 2026 | 33237 | JCCD - JC Conservation District | $2.65 | $2.65 | $0.00 | $0.00 | $0.00 | $5.30 |
| 2026 | 33237 | NWA - Noxious Weed Assessment | $3.65 | $3.65 | $0.00 | $0.00 | $0.00 | $7.30 |
| 2026 | 33237 | WAT - Clean Water District | $13.00 | $13.00 | $0.00 | $0.00 | $0.00 | $26.00 |
| 2026 | 33237 | FP ADMIN - FP ADMIN | $0.50 | $0.00 | $0.00 | $0.00 | $0.00 | $0.50 |
| 2026 | 33237 | TOTAL: | $981.12 | $980.51 | $0.00 | $0.00 | $0.00 | $1961.63 |
|
| 2026 | 33237 | $981.12 | $980.51 | $0.00 | $0.00 | $0.00 | $1961.63 |
Statement Details |
| 2025 | 33313 | STATE - STATE LEVY (SCHOOL) | $275.47 | $275.47 | $0.00 | $0.00 | $550.94 | $0.00 |
| 2025 | 33313 | COUNTY - COUNTY LEVIES (CE, DD, VET, MH) | $108.34 | $108.32 | $0.00 | $0.00 | $216.66 | $0.00 |
| 2025 | 33313 | CONSERVE - CONSERVATION FUTURES | $3.25 | $3.25 | $0.00 | $0.00 | $6.50 | $0.00 |
| 2025 | 33313 | COROADS - COUNTY ROADS (ROADS, DIV TO CE) | $86.79 | $86.78 | $0.00 | $0.00 | $173.57 | $0.00 |
| 2025 | 33313 | PORTPT - PORT DISTRICT | $44.21 | $44.19 | $0.00 | $0.00 | $88.40 | $0.00 |
| 2025 | 33313 | PUD1 - PUD #1 | $7.09 | $7.09 | $0.00 | $0.00 | $14.18 | $0.00 |
| 2025 | 33313 | LIB1 - LIBRARY DIST #1 | $33.58 | $33.57 | $0.00 | $0.00 | $67.15 | $0.00 |
| 2025 | 33313 | HD2 - HOSP DIST #2 | $6.32 | $6.32 | $0.00 | $0.00 | $12.64 | $0.00 |
| 2025 | 33313 | SD50 - SCHOOL DIST #50 | $201.33 | $201.31 | $0.00 | $0.00 | $402.64 | $0.00 |
| 2025 | 33313 | FD1 - FIRE DISTRICT #1 | $142.95 | $142.94 | $0.00 | $0.00 | $285.89 | $0.00 |
| 2025 | 33313 | EMS1 - FIRE DIST #1 EMS | $54.98 | $54.98 | $0.00 | $0.00 | $109.96 | $0.00 |
| 2025 | 33313 | FP - DNR Forest Fire Protection Assmt | $8.50 | $8.50 | $0.00 | $0.00 | $17.00 | $0.00 |
| 2025 | 33313 | FPLCA - DNR Landowner Contingency Assmt | $3.00 | $3.00 | $0.00 | $0.00 | $6.00 | $0.00 |
| 2025 | 33313 | JCCD - JC Conservation District | $2.65 | $2.65 | $0.00 | $0.00 | $5.30 | $0.00 |
| 2025 | 33313 | NWA - Noxious Weed Assessment | $2.60 | $2.60 | $0.00 | $0.00 | $5.20 | $0.00 |
| 2025 | 33313 | WAT - Clean Water District | $13.00 | $13.00 | $0.00 | $0.00 | $26.00 | $0.00 |
| 2025 | 33313 | FP ADMIN - FP ADMIN | $0.50 | $0.00 | $0.00 | $0.00 | $0.50 | $0.00 |
| 2025 | 33313 | TOTAL: | $994.56 | $993.97 | $0.00 | $0.00 | $1988.53 | $0.00 |
|
| 2025 | 33313 | $994.56 | $993.97 | $0.00 | $0.00 | $1988.53 | $0.00 |
Statement Details |
| 2024 | 33375 | STATE - STATE LEVY (SCHOOL) | $237.06 | $237.04 | $0.00 | $0.00 | $474.10 | $0.00 |
| 2024 | 33375 | COUNTY - COUNTY LEVIES (CE, DD, VET, MH) | $101.45 | $101.43 | $0.00 | $0.00 | $202.88 | $0.00 |
| 2024 | 33375 | CONSERVE - CONSERVATION FUTURES | $3.04 | $3.04 | $0.00 | $0.00 | $6.08 | $0.00 |
| 2024 | 33375 | COROADS - COUNTY ROADS (ROADS, DIV TO CE) | $81.63 | $81.62 | $0.00 | $0.00 | $163.25 | $0.00 |
| 2024 | 33375 | PORTPT - PORT DISTRICT | $41.90 | $41.89 | $0.00 | $0.00 | $83.79 | $0.00 |
| 2024 | 33375 | PUD1 - PUD #1 | $6.67 | $6.66 | $0.00 | $0.00 | $13.33 | $0.00 |
| 2024 | 33375 | LIB1 - LIBRARY DIST #1 | $31.58 | $31.58 | $0.00 | $0.00 | $63.16 | $0.00 |
| 2024 | 33375 | HD2 - HOSP DIST #2 | $5.92 | $5.92 | $0.00 | $0.00 | $11.84 | $0.00 |
| 2024 | 33375 | SD50 - SCHOOL DIST #50 | $191.79 | $191.77 | $0.00 | $0.00 | $383.56 | $0.00 |
| 2024 | 33375 | FD1 - FIRE DISTRICT #1 | $134.12 | $134.12 | $0.00 | $0.00 | $268.24 | $0.00 |
| 2024 | 33375 | EMS1 - FIRE DIST #1 EMS | $51.23 | $51.23 | $0.00 | $0.00 | $102.46 | $0.00 |
| 2024 | 33375 | FP - DNR Forest Fire Protection Assmt | $8.50 | $8.50 | $0.00 | $0.00 | $17.00 | $0.00 |
| 2024 | 33375 | FPLCA - DNR Landowner Contingency Assmt | $3.00 | $3.00 | $0.00 | $0.00 | $6.00 | $0.00 |
| 2024 | 33375 | JCCD - JC Conservation District | $2.65 | $2.65 | $0.00 | $0.00 | $5.30 | $0.00 |
| 2024 | 33375 | NWA - Noxious Weed Assessment | $2.60 | $2.60 | $0.00 | $0.00 | $5.20 | $0.00 |
| 2024 | 33375 | WAT - Clean Water District | $12.50 | $12.50 | $0.00 | $0.00 | $25.00 | $0.00 |
| 2024 | 33375 | FP ADMIN - FP ADMIN | $0.50 | $0.00 | $0.00 | $0.00 | $0.50 | $0.00 |
| 2024 | 33375 | TOTAL: | $916.14 | $915.55 | $0.00 | $0.00 | $1831.69 | $0.00 |
|
| 2024 | 33375 | $916.14 | $915.55 | $0.00 | $0.00 | $1831.69 | $0.00 |
Statement Details |
| 2023 | 33419 | STATE - STATE LEVY (SCHOOL) | $218.66 | $218.66 | $0.00 | $0.00 | $437.32 | $0.00 |
| 2023 | 33419 | COUNTY - COUNTY LEVIES (CE, DD, VET, MH) | $95.42 | $95.41 | $0.00 | $0.00 | $190.83 | $0.00 |
| 2023 | 33419 | CONSERVE - CONSERVATION FUTURES | $2.86 | $2.86 | $0.00 | $0.00 | $5.72 | $0.00 |
| 2023 | 33419 | COROADS - COUNTY ROADS (ROADS, DIV TO CE) | $77.20 | $77.20 | $0.00 | $0.00 | $154.40 | $0.00 |
| 2023 | 33419 | PORTPT - PORT DISTRICT | $40.20 | $40.19 | $0.00 | $0.00 | $80.39 | $0.00 |
| 2023 | 33419 | PUD1 - PUD #1 | $6.33 | $6.32 | $0.00 | $0.00 | $12.65 | $0.00 |
| 2023 | 33419 | LIB1 - LIBRARY DIST #1 | $29.87 | $29.87 | $0.00 | $0.00 | $59.74 | $0.00 |
| 2023 | 33419 | HD2 - HOSP DIST #2 | $5.57 | $5.56 | $0.00 | $0.00 | $11.13 | $0.00 |
| 2023 | 33419 | SD50 - SCHOOL DIST #50 | $173.52 | $173.50 | $0.00 | $0.00 | $347.02 | $0.00 |
| 2023 | 33419 | FD1 - FIRE DISTRICT #1 | $78.61 | $78.60 | $0.00 | $0.00 | $157.21 | $0.00 |
| 2023 | 33419 | EMS1 - FIRE DIST #1 EMS | $33.44 | $33.43 | $0.00 | $0.00 | $66.87 | $0.00 |
| 2023 | 33419 | FP - DNR Forest Fire Protection Assmt | $8.50 | $8.50 | $0.00 | $0.00 | $17.00 | $0.00 |
| 2023 | 33419 | FPLCA - DNR Landowner Contingency Assmt | $3.00 | $3.00 | $0.00 | $0.00 | $6.00 | $0.00 |
| 2023 | 33419 | JCCD - JC Conservation District | $2.65 | $2.65 | $0.00 | $0.00 | $5.30 | $0.00 |
| 2023 | 33419 | NWA - Noxious Weed Assessment | $2.60 | $2.60 | $0.00 | $0.00 | $5.20 | $0.00 |
| 2023 | 33419 | WAT - Clean Water District | $12.00 | $12.00 | $0.00 | $0.00 | $24.00 | $0.00 |
| 2023 | 33419 | FP ADMIN - FP ADMIN | $0.50 | $0.00 | $0.00 | $0.00 | $0.50 | $0.00 |
| 2023 | 33419 | TOTAL: | $790.93 | $790.35 | $0.00 | $0.00 | $1581.28 | $0.00 |
|
| 2023 | 33419 | $790.93 | $790.35 | $0.00 | $0.00 | $1581.28 | $0.00 |
Values
| (+) Improvement Homesite Value: | + | $0 | |
| (+) Improvement Non-Homesite Value: | + | $1,725 | |
| (+) Land Homesite Value: | + | $0 | |
| (+) Land Non-Homesite Value: | + | $228,094 | |
| (+) Curr Use (HS): | + | $0 | $0 |
| (+) Curr Use (NHS): | + | $0 | $0 |
| | | -------------------------- | |
| (=) Market Value: | = | $229,819 | |
| (–) Productivity Loss: | – | $0 | |
| | | -------------------------- | |
| (=) Subtotal: | = | $229,819 | |
| (+) Senior Appraised Value: | + | $0 | |
| (+) Non-Senior Appraised Value: | + | $229,819 | |
| | | -------------------------- | |
| (=) Total Appraised Value: | = | $229,819 | |
| (–) Senior Exemption Loss: | – | $0 | |
| (–) Exemption Loss: | – | $0 | |
| | | -------------------------- | |
| (=) Taxable Value: | = | $229,819 | |
Taxing Jurisdiction
| Owner: | CHRISTOPHER R & CLAIRE L AFRICA | | |
| % Ownership: | 100.0000000000% | | |
| Total Value: | $229,819 | | |
| Tax Area: | 0111 - 1-50F1E1H2L1 |
| CE | COUNTY CURRENT EXPENSE | 0.9034619479 | $229,819 | $229,819 | $207.63 | | |
| CNTYDD | DEVELOPMENTAL DISABILITIES | 0.0052121823 | $229,819 | $229,819 | $1.20 | | |
| CNTYVET | VETERANS RELIEF | 0.0052777810 | $229,819 | $229,819 | $1.21 | | |
| MENTAL | MENTAL HEALTH | 0.0052121823 | $229,819 | $229,819 | $1.20 | | |
| ROADS | COUNTY ROADS | 0.7415066410 | $229,819 | $229,819 | $170.41 | | |
| ROADSCU | COUNTY ROADS TO CUR EXP | 0.0000000000 | $229,819 | $229,819 | $0.00 | | |
| HOSP2CASH | HOSP DIST #2 GENERAL | 0.0536075306 | $229,819 | $229,819 | $12.32 | | |
| SCH50BOND | SCHOOL DIST #50 BOND 2016 | 0.5377451389 | $229,819 | $229,819 | $123.58 | | |
| SCH50CP | SCHOOL DIST #50 CAP PROJ | 0.4573475088 | $229,819 | $229,819 | $105.11 | | |
| SCH50MO | SCHOOL DIST #50 EP & O | 0.8262822886 | $229,819 | $229,819 | $189.90 | | |
| CONSERVE | CONSERVATION FUTURES | 0.0275621078 | $229,819 | $229,819 | $6.33 | | |
| EMS1 | FIRE DIST #1 EMS | 0.4679948282 | $229,819 | $229,819 | $107.55 | | |
| FD1 | FIRE DIST #1 GENERAL | 1.2171942929 | $229,819 | $229,819 | $279.73 | | |
| LIB1 | LIBRARY DIST #1 GENERAL | 0.2868827388 | $229,819 | $229,819 | $65.93 | | |
| PORTPT | PORT OF PT GENERAL | 0.1134941229 | $229,819 | $229,819 | $26.08 | | |
| PORTPTIDD | PORT OF PT IDD 2019 | 0.2577346692 | $229,819 | $229,819 | $59.23 | | |
| PUD1 | PUD #1 GENERAL | 0.0597888892 | $229,819 | $229,819 | $13.74 | | |
| STATE | STATE SCHOOL PART 1 | 1.4940692947 | $229,819 | $229,819 | $343.37 | | |
| STATE2 | STATE SCHOOL PART 2 | 0.8050170049 | $229,819 | $229,819 | $185.01 | | |
| | Total Tax Rate: | 8.2653911500 | | | | | |
| | | | | Taxes w/Current Exemptions: | $1,899.53 | | |
| | | | | Taxes w/o Exemptions: | $1,899.53 | | |
Improvement / Building
| Improvement #1: | Residential Bldg | State Code: | 18 | 0.0 sqft | Value: | $1,725 |
Sketch
| No sketches available for this property. |
Property Image
Land
| 1 | 5387-1371S | | 1.0000 | 43560.00 | 0.00 | 0.00 | 1.00 | $187,000 | $0 |
| 2 | 1574A | | 2.9300 | 127630.80 | 0.00 | 0.00 | 0.00 | $41,094 | $0 |
Roll Value History
| 2026 | N/A | N/A | N/A | N/A | N/A |
| 2025 | $1,725 | $228,094 | $0 | $229,819 | $229,819 |
| 2024 | $1,650 | $228,094 | $0 | $229,744 | $229,744 |
| 2023 | $0 | $204,918 | $0 | $204,918 | $204,918 |
| 2022 | $0 | $185,765 | $0 | $185,765 | $185,765 |
Deed and Sales History
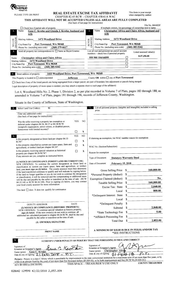
| 1 | 02/15/2018 | SWD | Statutory Warranty Deed | GENE C KROTKE | CHRISTOPHER R & CLAIRE L AFRICA | | | $160,000.00 | 129598 | |
| 2 | 07/02/2003 | SWD | Statutory Warranty Deed | EAGLE EYE INC | KROTKE, GENE C/GLENDA J | 0 | 0 | $80,000.00 | 97686 | 0 |
Payout Agreement
| No payout information available.. |