Property
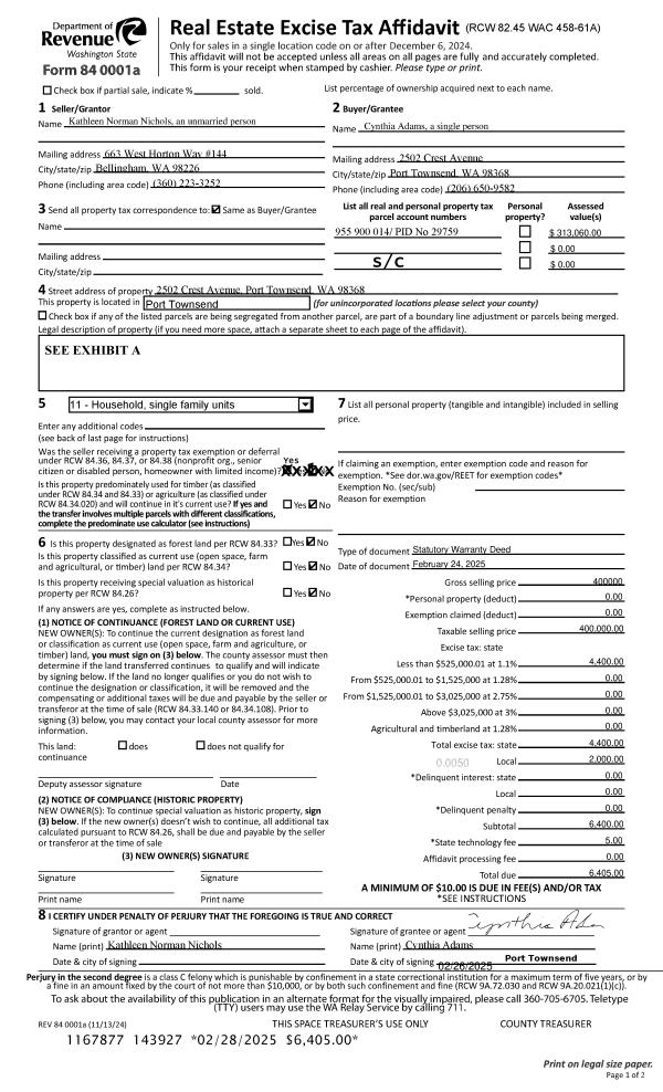
Account |
| Property ID: | 10036 | Abbreviated Legal Description: | S2 T30 R1W TAX 41(W15'), TAX 42(ALL) |
| Parcel # / Geo ID: | 001021005 | Agent Code: | |
| Type: | Real | | |
| Tax Area: | 0110 - C-50F1E1H2 | Land Use Code | 11 |
| Open Space: | N | DFL | N |
| Historic Property: | N | Remodel Property: | N |
| Multi-Family Redevelopment: | N | | |
| Township: | 30N | Section: | 2 |
| Range: | 1W |
Location |
| Address: | 1544 MADISON ST PORT TOWNSEND, WA 98368 | Mapsco: | 153/004 |
| Neighborhood: | MOUNTAIN VIEW 1ST & 2ND PICKETT SP & TX #'S | Map ID: | |
| Neighborhood CD: | 6305 |
Owner |
| Name: | RONALD J MOLLER TRUSTEE | Owner ID: | 22766 |
| Mailing Address: | ELIZABETH MOLLER TRUSTEE R & E MOLLER REV TRUST 1544 MADISON ST PORT TOWNSEND, WA 98368 | % Ownership: | 100.0000000000% |
| | | Exemptions: | |
Pay Tax Due
Select the appropriate checkbox next to the year to be paid. Multiple years may be selected.
*Convenience Fee not included
Taxes and Assessment Details
Property Tax Information as of
10/23/2025
Click on "Statement Details" to expand or collapse a tax statement.
* Please enter a valid date ** Please enter a valid date *
Statement Details |
| 2025 | 29 | STATE - STATE LEVY (SCHOOL) | $1254.16 | $1254.14 | $0.00 | $0.00 | $1254.16 | $1254.14 |
| 2025 | 29 | COUNTY - COUNTY LEVIES (CE, DD, VET, MH) | $493.19 | $493.18 | $0.00 | $0.00 | $493.19 | $493.18 |
| 2025 | 29 | CONSERVE - CONSERVATION FUTURES | $14.79 | $14.79 | $0.00 | $0.00 | $14.79 | $14.79 |
| 2025 | 29 | CITYPT - CITY OF PT | $711.23 | $711.23 | $0.00 | $0.00 | $711.23 | $711.23 |
| 2025 | 29 | PORTPT - PORT DISTRICT | $201.25 | $201.24 | $0.00 | $0.00 | $201.25 | $201.24 |
| 2025 | 29 | PUD1 - PUD #1 | $32.27 | $32.27 | $0.00 | $0.00 | $32.27 | $32.27 |
| 2025 | 29 | HD2 - HOSP DIST #2 | $28.78 | $28.77 | $0.00 | $0.00 | $28.78 | $28.77 |
| 2025 | 29 | SD50 - SCHOOL DIST #50 | $916.58 | $916.58 | $0.00 | $0.00 | $916.58 | $916.58 |
| 2025 | 29 | FD1 - FIRE DISTRICT #1 | $650.82 | $650.81 | $0.00 | $0.00 | $650.82 | $650.81 |
| 2025 | 29 | EMS1 - FIRE DIST #1 EMS | $250.32 | $250.32 | $0.00 | $0.00 | $250.32 | $250.32 |
| 2025 | 29 | JCCD - JC Conservation District | $2.55 | $2.55 | $0.00 | $0.00 | $2.55 | $2.55 |
| 2025 | 29 | NWA - Noxious Weed Assessment | $2.15 | $2.15 | $0.00 | $0.00 | $2.15 | $2.15 |
| 2025 | 29 | TOTAL: | $4558.09 | $4558.03 | $0.00 | $0.00 | $4558.09 | $4558.03 |
|
| 2025 | 29 | $4558.09 | $4558.03 | $0.00 | $0.00 | $4558.09 | $4558.03 |
Statement Details |
| 2024 | 29 | STATE - STATE LEVY (SCHOOL) | $1153.55 | $1153.55 | $0.00 | $0.00 | $2307.10 | $0.00 |
| 2024 | 29 | COUNTY - COUNTY LEVIES (CE, DD, VET, MH) | $493.62 | $493.60 | $0.00 | $0.00 | $987.22 | $0.00 |
| 2024 | 29 | CONSERVE - CONSERVATION FUTURES | $14.80 | $14.80 | $0.00 | $0.00 | $29.60 | $0.00 |
| 2024 | 29 | CITYPT - CITY OF PT | $705.31 | $705.30 | $0.00 | $0.00 | $1410.61 | $0.00 |
| 2024 | 29 | PORTPT - PORT DISTRICT | $203.89 | $203.88 | $0.00 | $0.00 | $407.77 | $0.00 |
| 2024 | 29 | PUD1 - PUD #1 | $32.43 | $32.42 | $0.00 | $0.00 | $64.85 | $0.00 |
| 2024 | 29 | HD2 - HOSP DIST #2 | $28.80 | $28.80 | $0.00 | $0.00 | $57.60 | $0.00 |
| 2024 | 29 | SD50 - SCHOOL DIST #50 | $933.29 | $933.26 | $0.00 | $0.00 | $1866.55 | $0.00 |
| 2024 | 29 | FD1 - FIRE DISTRICT #1 | $652.68 | $652.67 | $0.00 | $0.00 | $1305.35 | $0.00 |
| 2024 | 29 | EMS1 - FIRE DIST #1 EMS | $249.30 | $249.30 | $0.00 | $0.00 | $498.60 | $0.00 |
| 2024 | 29 | JCCD - JC Conservation District | $2.55 | $2.55 | $0.00 | $0.00 | $5.10 | $0.00 |
| 2024 | 29 | NWA - Noxious Weed Assessment | $2.15 | $2.15 | $0.00 | $0.00 | $4.30 | $0.00 |
| 2024 | 29 | TOTAL: | $4472.37 | $4472.28 | $0.00 | $0.00 | $8944.65 | $0.00 |
|
| 2024 | 29 | $4472.37 | $4472.28 | $0.00 | $0.00 | $8944.65 | $0.00 |
Statement Details |
| 2023 | 29 | STATE - STATE LEVY (SCHOOL) | $1082.40 | $1082.38 | $0.00 | $0.00 | $2164.78 | $0.00 |
| 2023 | 29 | COUNTY - COUNTY LEVIES (CE, DD, VET, MH) | $472.33 | $472.31 | $0.00 | $0.00 | $944.64 | $0.00 |
| 2023 | 29 | CONSERVE - CONSERVATION FUTURES | $14.17 | $14.16 | $0.00 | $0.00 | $28.33 | $0.00 |
| 2023 | 29 | CITYPT - CITY OF PT | $667.56 | $667.54 | $0.00 | $0.00 | $1335.10 | $0.00 |
| 2023 | 29 | PORTPT - PORT DISTRICT | $198.97 | $198.97 | $0.00 | $0.00 | $397.94 | $0.00 |
| 2023 | 29 | PUD1 - PUD #1 | $31.31 | $31.31 | $0.00 | $0.00 | $62.62 | $0.00 |
| 2023 | 29 | HD2 - HOSP DIST #2 | $27.57 | $27.56 | $0.00 | $0.00 | $55.13 | $0.00 |
| 2023 | 29 | SD50 - SCHOOL DIST #50 | $858.91 | $858.89 | $0.00 | $0.00 | $1717.80 | $0.00 |
| 2023 | 29 | FD1 - FIRE DISTRICT #1 | $389.10 | $389.10 | $0.00 | $0.00 | $778.20 | $0.00 |
| 2023 | 29 | EMS1 - FIRE DIST #1 EMS | $165.52 | $165.51 | $0.00 | $0.00 | $331.03 | $0.00 |
| 2023 | 29 | JCCD - JC Conservation District | $2.55 | $2.55 | $0.00 | $0.00 | $5.10 | $0.00 |
| 2023 | 29 | NWA - Noxious Weed Assessment | $2.15 | $2.15 | $0.00 | $0.00 | $4.30 | $0.00 |
| 2023 | 29 | TOTAL: | $3912.54 | $3912.43 | $0.00 | $0.00 | $7824.97 | $0.00 |
|
| 2023 | 29 | $3912.54 | $3912.43 | $0.00 | $0.00 | $7824.97 | $0.00 |
Statement Details |
| 2022 | 29 | STATE - STATE LEVY (SCHOOL) | $1073.62 | $1073.61 | $0.00 | $0.00 | $2147.23 | $0.00 |
| 2022 | 29 | COUNTY - COUNTY LEVIES (CE, DD, VET, MH) | $478.37 | $478.35 | $0.00 | $0.00 | $956.72 | $0.00 |
| 2022 | 29 | CONSERVE - CONSERVATION FUTURES | $14.35 | $14.34 | $0.00 | $0.00 | $28.69 | $0.00 |
| 2022 | 29 | CITYPT - CITY OF PT | $615.55 | $615.53 | $0.00 | $0.00 | $1231.08 | $0.00 |
| 2022 | 29 | PORTPT - PORT DISTRICT | $204.79 | $204.77 | $0.00 | $0.00 | $409.56 | $0.00 |
| 2022 | 29 | PUD1 - PUD #1 | $31.99 | $31.99 | $0.00 | $0.00 | $63.98 | $0.00 |
| 2022 | 29 | HD2 - HOSP DIST #2 | $27.93 | $27.92 | $0.00 | $0.00 | $55.85 | $0.00 |
| 2022 | 29 | SD50 - SCHOOL DIST #50 | $795.61 | $795.60 | $0.00 | $0.00 | $1591.21 | $0.00 |
| 2022 | 29 | FD1 - FIRE DISTRICT #1 | $392.43 | $392.42 | $0.00 | $0.00 | $784.85 | $0.00 |
| 2022 | 29 | EMS1 - FIRE DIST #1 EMS | $166.93 | $166.92 | $0.00 | $0.00 | $333.85 | $0.00 |
| 2022 | 29 | JCCD - JC Conservation District | $2.55 | $2.55 | $0.00 | $0.00 | $5.10 | $0.00 |
| 2022 | 29 | NWA - Noxious Weed Assessment | $2.15 | $2.15 | $0.00 | $0.00 | $4.30 | $0.00 |
| 2022 | 29 | TOTAL: | $3806.27 | $3806.15 | $0.00 | $0.00 | $7612.42 | $0.00 |
|
| 2022 | 29 | $3806.27 | $3806.15 | $0.00 | $0.00 | $7612.42 | $0.00 |
Values
| (+) Improvement Homesite Value: | + | $0 | |
| (+) Improvement Non-Homesite Value: | + | $777,100 | |
| (+) Land Homesite Value: | + | $0 | |
| (+) Land Non-Homesite Value: | + | $308,300 | |
| (+) Curr Use (HS): | + | $0 | $0 |
| (+) Curr Use (NHS): | + | $0 | $0 |
| | | -------------------------- | |
| (=) Market Value: | = | $1,085,400 | |
| (–) Productivity Loss: | – | $0 | |
| | | -------------------------- | |
| (=) Subtotal: | = | $1,085,400 | |
| (+) Senior Appraised Value: | + | $0 | |
| (+) Non-Senior Appraised Value: | + | $1,085,400 | |
| | | -------------------------- | |
| (=) Total Appraised Value: | = | $1,085,400 | |
| (–) Senior Exemption Loss: | – | $0 | |
| (–) Exemption Loss: | – | $0 | |
| | | -------------------------- | |
| (=) Taxable Value: | = | $1,085,400 | |
Taxing Jurisdiction
| Owner: | RONALD J MOLLER TRUSTEE | | |
| % Ownership: | 100.0000000000% | | |
| Total Value: | N/A | | |
| Tax Area: | 0110 - C-50F1E1H2 |
| CE | COUNTY CURRENT EXPENSE | N/A | N/A | N/A | N/A | | |
| CNTYDD | DEVELOPMENTAL DISABILITIES | N/A | N/A | N/A | N/A | | |
| CNTYVET | VETERANS RELIEF | N/A | N/A | N/A | N/A | | |
| MENTAL | MENTAL HEALTH | N/A | N/A | N/A | N/A | | |
| PTGEN | CITY OF PT GENERAL | N/A | N/A | N/A | N/A | | |
| PTLLL | CITY OF PT - LIBRARY LID LIFT | N/A | N/A | N/A | N/A | | |
| PTMVBOND | CITY OF PT MV BOND | N/A | N/A | N/A | N/A | | |
| HOSP2CASH | HOSP DIST #2 GENERAL | N/A | N/A | N/A | N/A | | |
| SCH50BOND | SCHOOL DIST #50 BOND 2016 | N/A | N/A | N/A | N/A | | |
| SCH50CP | SCHOOL DIST #50 CAP PROJ | N/A | N/A | N/A | N/A | | |
| SCH50MO | SCHOOL DIST #50 EP & O | N/A | N/A | N/A | N/A | | |
| CONSERVE | CONSERVATION FUTURES | N/A | N/A | N/A | N/A | | |
| EMS1 | FIRE DIST #1 EMS | N/A | N/A | N/A | N/A | | |
| FD1 | FIRE DIST #1 GENERAL | N/A | N/A | N/A | N/A | | |
| PORTPT | PORT OF PT GENERAL | N/A | N/A | N/A | N/A | | |
| PORTPTIDD | PORT OF PT IDD 2019 | N/A | N/A | N/A | N/A | | |
| PUD1 | PUD #1 GENERAL | N/A | N/A | N/A | N/A | | |
| STATE | STATE SCHOOL PART 1 | N/A | N/A | N/A | N/A | | |
| STATE2 | STATE SCHOOL PART 2 | N/A | N/A | N/A | N/A | | |
| | Total Tax Rate: | N/A | | | | | |
| | | | | Taxes w/Current Exemptions: | N/A | | |
| | | | | Taxes w/o Exemptions: | N/A | | |
Improvement / Building
| Improvement #1: | Residential Bldg | State Code: | 11 | 2204.0 sqft | Value: | $739,765 |
| Bathrooms (#): | 2 (FULL) | Bathrooms (#): | 1 (HALF) | | Bedrooms (#): | 2 | Exterior Wall: | SI/ST | | Foundation: | CONPR | Heating/Cooling: | HTWTR | | Roof Cover: | METAL |   |   |
|
| | Type | Description | Class CD | Sub Class CD | Year Built | Area |
| | MA | Main Area | 5 | 2S | 2018 | 1366.0 |
| | MA2 | Second Floor Main Area | 5 | 2S | 2018 | 838.0 |
| | GDET | Detached Garage | 4 | * | 2018 | 494.0 |
| | HWPOR | House Wood Porch | 4 | * | 2018 | 315.0 |
| | HBAL | House Balcony | 4 | * | 2018 | 94.0 |
| | SOLAR | Solar Panel | 3 | * | 2018 | 0.0 |
| Improvement #2: | Residential Bldg | State Code: | 11 | 0.0 sqft | Value: | $37,335 |
Sketch
Property Image
Land
| 1 | 6305-1145L | | 0.0000 | 0.00 | 0.00 | 0.00 | 1.00 | $283,000 | $0 |
| 2 | 6305-1145L | | 0.0000 | 0.00 | 0.00 | 0.00 | 1.00 | $25,300 | $0 |
Roll Value History
| 2025 | N/A | N/A | N/A | N/A | N/A |
| 2024 | $733,476 | $312,510 | $0 | $1,045,986 | $1,045,986 |
| 2023 | $704,136 | $293,055 | $0 | $997,191 | $997,191 |
| 2022 | $645,458 | $274,100 | $0 | $919,558 | $919,558 |
| 2021 | $539,681 | $245,625 | $0 | $785,306 | $785,306 |
Deed and Sales History
| 1 | 05/26/2015 | SWD | Statutory Warranty Deed | RONALD J MOLLER | RONALD J MOLLER TRUSTEE | | | | 124208 | |
| 2 | 09/24/2004 | SWD | Statutory Warranty Deed | HAWTHORNE, JENNY D | MOLLER, RONALD J/ELIZABETH | 0 | 0 | $264,000.00 | 101629 | 0 |
Payout Agreement
| No payout information available.. |