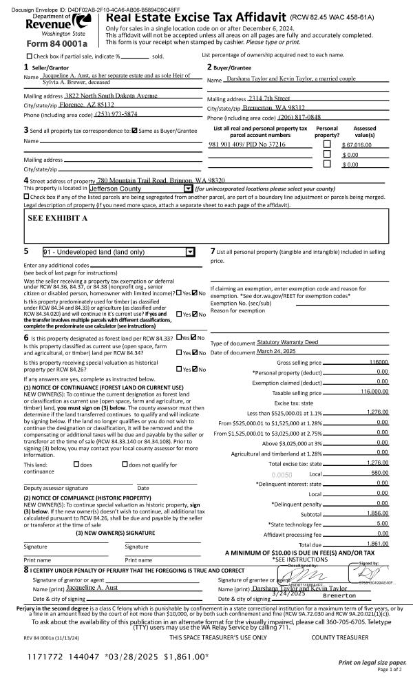
Property
Account |
| Property ID: | 10039 | Abbreviated Legal Description: | S2 T30 R1W TAX 80(W80' & N14') |
| Parcel # / Geo ID: | 001021010 | Agent Code: | |
| Type: | Real | | |
| Tax Area: | 0110 - C-50F1E1H2 | Land Use Code | 11 |
| Open Space: | N | DFL | N |
| Historic Property: | N | Remodel Property: | N |
| Multi-Family Redevelopment: | N | | |
| Township: | 30N | Section: | 2 |
| Range: | 1W |
Location |
| Address: | 928 OAK ST PORT TOWNSEND, WA 98368 | Mapsco: | 153/034 |
| Neighborhood: | CARROLS, WILLIAMS, FLEMMINGS, BAKER SP & SURROUNDING TAX #'S | Map ID: | |
| Neighborhood CD: | 6320 |
Owner |
| Name: | NANCY A SCOTT TRUSTEE | Owner ID: | 26909 |
| Mailing Address: | NANCY SCOTT LIVING TRUST 14902 25TH AVE E TACOMA, WA 98445-4918 | % Ownership: | 100.0000000000% |
| | | Exemptions: | |
Pay Tax Due
Select the appropriate checkbox next to the year to be paid. Multiple years may be selected.
*Convenience Fee not included
Taxes and Assessment Details
Property Tax Information as of
10/23/2025
Click on "Statement Details" to expand or collapse a tax statement.
* Please enter a valid date ** Please enter a valid date *
Statement Details |
| 2025 | 32 | STATE - STATE LEVY (SCHOOL) | $869.77 | $869.75 | $0.00 | $0.00 | $869.77 | $869.75 |
| 2025 | 32 | COUNTY - COUNTY LEVIES (CE, DD, VET, MH) | $342.04 | $342.02 | $0.00 | $0.00 | $342.04 | $342.02 |
| 2025 | 32 | CONSERVE - CONSERVATION FUTURES | $10.26 | $10.25 | $0.00 | $0.00 | $10.26 | $10.25 |
| 2025 | 32 | CITYPT - CITY OF PT | $493.24 | $493.24 | $0.00 | $0.00 | $493.24 | $493.24 |
| 2025 | 32 | PORTPT - PORT DISTRICT | $139.57 | $139.56 | $0.00 | $0.00 | $139.57 | $139.56 |
| 2025 | 32 | PUD1 - PUD #1 | $22.38 | $22.38 | $0.00 | $0.00 | $22.38 | $22.38 |
| 2025 | 32 | HD2 - HOSP DIST #2 | $19.96 | $19.95 | $0.00 | $0.00 | $19.96 | $19.95 |
| 2025 | 32 | SD50 - SCHOOL DIST #50 | $635.66 | $635.64 | $0.00 | $0.00 | $635.66 | $635.64 |
| 2025 | 32 | FD1 - FIRE DISTRICT #1 | $451.35 | $451.34 | $0.00 | $0.00 | $451.35 | $451.34 |
| 2025 | 32 | EMS1 - FIRE DIST #1 EMS | $173.60 | $173.60 | $0.00 | $0.00 | $173.60 | $173.60 |
| 2025 | 32 | JCCD - JC Conservation District | $2.55 | $2.55 | $0.00 | $0.00 | $2.55 | $2.55 |
| 2025 | 32 | NWA - Noxious Weed Assessment | $2.15 | $2.15 | $0.00 | $0.00 | $2.15 | $2.15 |
| 2025 | 32 | TOTAL: | $3162.53 | $3162.43 | $0.00 | $0.00 | $3162.53 | $3162.43 |
|
| 2025 | 32 | $3162.53 | $3162.43 | $0.00 | $0.00 | $3162.53 | $3162.43 |
Statement Details |
| 2024 | 32 | STATE - STATE LEVY (SCHOOL) | $796.78 | $796.76 | $0.00 | $0.00 | $1593.54 | $0.00 |
| 2024 | 32 | COUNTY - COUNTY LEVIES (CE, DD, VET, MH) | $340.96 | $340.93 | $0.00 | $0.00 | $681.89 | $0.00 |
| 2024 | 32 | CONSERVE - CONSERVATION FUTURES | $10.23 | $10.22 | $0.00 | $0.00 | $20.45 | $0.00 |
| 2024 | 32 | CITYPT - CITY OF PT | $487.16 | $487.15 | $0.00 | $0.00 | $974.31 | $0.00 |
| 2024 | 32 | PORTPT - PORT DISTRICT | $140.83 | $140.82 | $0.00 | $0.00 | $281.65 | $0.00 |
| 2024 | 32 | PUD1 - PUD #1 | $22.40 | $22.39 | $0.00 | $0.00 | $44.79 | $0.00 |
| 2024 | 32 | HD2 - HOSP DIST #2 | $19.90 | $19.89 | $0.00 | $0.00 | $39.79 | $0.00 |
| 2024 | 32 | SD50 - SCHOOL DIST #50 | $644.63 | $644.61 | $0.00 | $0.00 | $1289.24 | $0.00 |
| 2024 | 32 | FD1 - FIRE DISTRICT #1 | $450.81 | $450.81 | $0.00 | $0.00 | $901.62 | $0.00 |
| 2024 | 32 | EMS1 - FIRE DIST #1 EMS | $172.19 | $172.19 | $0.00 | $0.00 | $344.38 | $0.00 |
| 2024 | 32 | JCCD - JC Conservation District | $2.55 | $2.55 | $0.00 | $0.00 | $5.10 | $0.00 |
| 2024 | 32 | NWA - Noxious Weed Assessment | $2.15 | $2.15 | $0.00 | $0.00 | $4.30 | $0.00 |
| 2024 | 32 | TOTAL: | $3090.59 | $3090.47 | $0.00 | $0.00 | $6181.06 | $0.00 |
|
| 2024 | 32 | $3090.59 | $3090.47 | $0.00 | $0.00 | $6181.06 | $0.00 |
Statement Details |
| 2023 | 32 | STATE - STATE LEVY (SCHOOL) | $754.46 | $754.45 | $0.00 | $0.00 | $1508.91 | $0.00 |
| 2023 | 32 | COUNTY - COUNTY LEVIES (CE, DD, VET, MH) | $329.22 | $329.22 | $0.00 | $0.00 | $658.44 | $0.00 |
| 2023 | 32 | CONSERVE - CONSERVATION FUTURES | $9.87 | $9.87 | $0.00 | $0.00 | $19.74 | $0.00 |
| 2023 | 32 | CITYPT - CITY OF PT | $465.31 | $465.29 | $0.00 | $0.00 | $930.60 | $0.00 |
| 2023 | 32 | PORTPT - PORT DISTRICT | $138.69 | $138.68 | $0.00 | $0.00 | $277.37 | $0.00 |
| 2023 | 32 | PUD1 - PUD #1 | $21.83 | $21.82 | $0.00 | $0.00 | $43.65 | $0.00 |
| 2023 | 32 | HD2 - HOSP DIST #2 | $19.21 | $19.21 | $0.00 | $0.00 | $38.42 | $0.00 |
| 2023 | 32 | SD50 - SCHOOL DIST #50 | $598.69 | $598.67 | $0.00 | $0.00 | $1197.36 | $0.00 |
| 2023 | 32 | FD1 - FIRE DISTRICT #1 | $271.22 | $271.21 | $0.00 | $0.00 | $542.43 | $0.00 |
| 2023 | 32 | EMS1 - FIRE DIST #1 EMS | $115.37 | $115.37 | $0.00 | $0.00 | $230.74 | $0.00 |
| 2023 | 32 | JCCD - JC Conservation District | $2.55 | $2.55 | $0.00 | $0.00 | $5.10 | $0.00 |
| 2023 | 32 | NWA - Noxious Weed Assessment | $2.15 | $2.15 | $0.00 | $0.00 | $4.30 | $0.00 |
| 2023 | 32 | TOTAL: | $2728.57 | $2728.49 | $0.00 | $0.00 | $5457.06 | $0.00 |
|
| 2023 | 32 | $2728.57 | $2728.49 | $0.00 | $0.00 | $5457.06 | $0.00 |
Statement Details |
| 2022 | 32 | STATE - STATE LEVY (SCHOOL) | $768.64 | $768.63 | $0.00 | $0.00 | $1537.27 | $0.00 |
| 2022 | 32 | COUNTY - COUNTY LEVIES (CE, DD, VET, MH) | $342.49 | $342.46 | $0.00 | $0.00 | $684.95 | $0.00 |
| 2022 | 32 | CONSERVE - CONSERVATION FUTURES | $10.27 | $10.27 | $0.00 | $0.00 | $20.54 | $0.00 |
| 2022 | 32 | CITYPT - CITY OF PT | $440.69 | $440.68 | $0.00 | $0.00 | $881.37 | $0.00 |
| 2022 | 32 | PORTPT - PORT DISTRICT | $146.62 | $146.60 | $0.00 | $0.00 | $293.22 | $0.00 |
| 2022 | 32 | PUD1 - PUD #1 | $22.90 | $22.90 | $0.00 | $0.00 | $45.80 | $0.00 |
| 2022 | 32 | HD2 - HOSP DIST #2 | $20.00 | $19.99 | $0.00 | $0.00 | $39.99 | $0.00 |
| 2022 | 32 | SD50 - SCHOOL DIST #50 | $569.60 | $569.58 | $0.00 | $0.00 | $1139.18 | $0.00 |
| 2022 | 32 | FD1 - FIRE DISTRICT #1 | $280.95 | $280.95 | $0.00 | $0.00 | $561.90 | $0.00 |
| 2022 | 32 | EMS1 - FIRE DIST #1 EMS | $119.51 | $119.50 | $0.00 | $0.00 | $239.01 | $0.00 |
| 2022 | 32 | JCCD - JC Conservation District | $2.55 | $2.55 | $0.00 | $0.00 | $5.10 | $0.00 |
| 2022 | 32 | NWA - Noxious Weed Assessment | $2.15 | $2.15 | $0.00 | $0.00 | $4.30 | $0.00 |
| 2022 | 32 | TOTAL: | $2726.37 | $2726.26 | $0.00 | $0.00 | $5452.63 | $0.00 |
|
| 2022 | 32 | $2726.37 | $2726.26 | $0.00 | $0.00 | $5452.63 | $0.00 |
Values
| (+) Improvement Homesite Value: | + | $0 | |
| (+) Improvement Non-Homesite Value: | + | $317,004 | |
| (+) Land Homesite Value: | + | $0 | |
| (+) Land Non-Homesite Value: | + | $431,900 | |
| (+) Curr Use (HS): | + | $0 | $0 |
| (+) Curr Use (NHS): | + | $0 | $0 |
| | | -------------------------- | |
| (=) Market Value: | = | $748,904 | |
| (–) Productivity Loss: | – | $0 | |
| | | -------------------------- | |
| (=) Subtotal: | = | $748,904 | |
| (+) Senior Appraised Value: | + | $0 | |
| (+) Non-Senior Appraised Value: | + | $748,904 | |
| | | -------------------------- | |
| (=) Total Appraised Value: | = | $748,904 | |
| (–) Senior Exemption Loss: | – | $0 | |
| (–) Exemption Loss: | – | $0 | |
| | | -------------------------- | |
| (=) Taxable Value: | = | $748,904 | |
Taxing Jurisdiction
| Owner: | NANCY A SCOTT TRUSTEE | | |
| % Ownership: | 100.0000000000% | | |
| Total Value: | N/A | | |
| Tax Area: | 0110 - C-50F1E1H2 |
| CE | COUNTY CURRENT EXPENSE | N/A | N/A | N/A | N/A | | |
| CNTYDD | DEVELOPMENTAL DISABILITIES | N/A | N/A | N/A | N/A | | |
| CNTYVET | VETERANS RELIEF | N/A | N/A | N/A | N/A | | |
| MENTAL | MENTAL HEALTH | N/A | N/A | N/A | N/A | | |
| PTGEN | CITY OF PT GENERAL | N/A | N/A | N/A | N/A | | |
| PTLLL | CITY OF PT - LIBRARY LID LIFT | N/A | N/A | N/A | N/A | | |
| PTMVBOND | CITY OF PT MV BOND | N/A | N/A | N/A | N/A | | |
| HOSP2CASH | HOSP DIST #2 GENERAL | N/A | N/A | N/A | N/A | | |
| SCH50BOND | SCHOOL DIST #50 BOND 2016 | N/A | N/A | N/A | N/A | | |
| SCH50CP | SCHOOL DIST #50 CAP PROJ | N/A | N/A | N/A | N/A | | |
| SCH50MO | SCHOOL DIST #50 EP & O | N/A | N/A | N/A | N/A | | |
| CONSERVE | CONSERVATION FUTURES | N/A | N/A | N/A | N/A | | |
| EMS1 | FIRE DIST #1 EMS | N/A | N/A | N/A | N/A | | |
| FD1 | FIRE DIST #1 GENERAL | N/A | N/A | N/A | N/A | | |
| PORTPT | PORT OF PT GENERAL | N/A | N/A | N/A | N/A | | |
| PORTPTIDD | PORT OF PT IDD 2019 | N/A | N/A | N/A | N/A | | |
| PUD1 | PUD #1 GENERAL | N/A | N/A | N/A | N/A | | |
| STATE | STATE SCHOOL PART 1 | N/A | N/A | N/A | N/A | | |
| STATE2 | STATE SCHOOL PART 2 | N/A | N/A | N/A | N/A | | |
| | Total Tax Rate: | N/A | | | | | |
| | | | | Taxes w/Current Exemptions: | N/A | | |
| | | | | Taxes w/o Exemptions: | N/A | | |
Improvement / Building
| Improvement #1: | Residential Bldg | State Code: | 11 | 1292.0 sqft | Value: | $317,004 |
| Bathrooms (#): | 2 (FULL) | Bedrooms (#): | 2 | | Exterior Wall: | PL/T1 | Fireplace: | DBL 2-AVG | | Floor Construction: | FRAME | Foundation: | CONPR | | Heating/Cooling: | ELBB | Inside Verify: | YES-FIX | | Roof Cover: | BLTUP |   |   |
|
| | Type | Description | Class CD | Sub Class CD | Year Built | Area |
| | MA | Main Area | 3+ | 1S | 1965 | 1292.0 |
| | HDECK | House Deck | 3 | * | 1965 | 316.0 |
| | GATT | House Attached Garage | 3 | 1S | 1965 | 299.0 |
| | CARPTF | Carport W/Floor | 3 | * | 1965 | 391.0 |
| | BSMTF | House basement finished | 3 | * | 1965 | 714.0 |
| | CONCD | Concrete Drive | 3 | * | 1965 | 540.0 |
Sketch
Property Image
Land
| 1 | 6320-1165L | | 0.0000 | 0.00 | 0.00 | 0.00 | 1.00 | $114,400 | $0 |
| 2 | 6320-1185L | | 0.0000 | 0.00 | 0.00 | 0.00 | 1.00 | $67,500 | $0 |
| 3 | 6320-1165L | | 0.0000 | 0.00 | 0.00 | 0.00 | 1.00 | $250,000 | $0 |
Roll Value History
| 2025 | N/A | N/A | N/A | N/A | N/A |
| 2024 | $291,998 | $433,400 | $0 | $725,398 | $725,398 |
| 2023 | $280,318 | $408,450 | $0 | $688,768 | $688,768 |
| 2022 | $256,958 | $384,000 | $0 | $640,958 | $640,958 |
| 2021 | $214,848 | $347,375 | $0 | $562,223 | $562,223 |
Deed and Sales History
| 1 | 10/06/2008 | QCD | Quit Claim Deed | SCOTT, NANCY ANN | SCOTT, NANCY ANN TRUSTEE | 0 | 0 | $0.00 | 112041 | 0 |
| 2 | 12/09/1998 | QCD | Quit Claim Deed | SIEVERT, MILDRED H/EST | SCOTT, NANCY | 0 | 0 | $0.00 | 85883 | 0 |
Payout Agreement
| No payout information available.. |