Property
Account |
| Property ID: | 10046 | Abbreviated Legal Description: | BAKER SHORT PLAT LOT 1 SUBJ/EASE |
| Parcel # / Geo ID: | 001021020 | Agent Code: | |
| Type: | Real | | |
| Tax Area: | 0110 - C-50F1E1H2 | Land Use Code | 11 |
| Open Space: | N | DFL | N |
| Historic Property: | N | Remodel Property: | N |
| Multi-Family Redevelopment: | N | | |
| Township: | 30N | Section: | 2 |
| Range: | 1W |
Location |
| Address: | 1603 TYLER ST PORT TOWNSEND, WA 98368 | Mapsco: | 160/020 |
| Neighborhood: | CARROLS, WILLIAMS, FLEMMINGS, BAKER SP & SURROUNDING TAX #'S | Map ID: | |
| Neighborhood CD: | 6320 |
Owner |
| Name: | JOHN C MILLER & BETH E KISSINGER | Owner ID: | 99959 |
| Mailing Address: | CHRISTINE ANN EDWARDS JTWROS 1603 TYLER ST PORT TOWNSEND, WA 98368-4224 | % Ownership: | 100.0000000000% |
| | | Exemptions: | |
Pay Tax Due
Select the appropriate checkbox next to the year to be paid. Multiple years may be selected.
*Convenience Fee not included
Taxes and Assessment Details
Property Tax Information as of
10/23/2025
Click on "Statement Details" to expand or collapse a tax statement.
* Please enter a valid date ** Please enter a valid date *
Statement Details |
| 2025 | 39 | STATE - STATE LEVY (SCHOOL) | $1425.60 | $1425.59 | $0.00 | $0.00 | $1425.60 | $1425.59 |
| 2025 | 39 | COUNTY - COUNTY LEVIES (CE, DD, VET, MH) | $560.60 | $560.60 | $0.00 | $0.00 | $560.60 | $560.60 |
| 2025 | 39 | CONSERVE - CONSERVATION FUTURES | $16.81 | $16.81 | $0.00 | $0.00 | $16.81 | $16.81 |
| 2025 | 39 | CITYPT - CITY OF PT | $808.47 | $808.45 | $0.00 | $0.00 | $808.47 | $808.45 |
| 2025 | 39 | PORTPT - PORT DISTRICT | $228.76 | $228.76 | $0.00 | $0.00 | $228.76 | $228.76 |
| 2025 | 39 | PUD1 - PUD #1 | $36.69 | $36.68 | $0.00 | $0.00 | $36.69 | $36.68 |
| 2025 | 39 | HD2 - HOSP DIST #2 | $32.71 | $32.70 | $0.00 | $0.00 | $32.71 | $32.70 |
| 2025 | 39 | SD50 - SCHOOL DIST #50 | $1041.88 | $1041.88 | $0.00 | $0.00 | $1041.88 | $1041.88 |
| 2025 | 39 | FD1 - FIRE DISTRICT #1 | $739.79 | $739.78 | $0.00 | $0.00 | $739.79 | $739.78 |
| 2025 | 39 | EMS1 - FIRE DIST #1 EMS | $284.54 | $284.54 | $0.00 | $0.00 | $284.54 | $284.54 |
| 2025 | 39 | JCCD - JC Conservation District | $2.55 | $2.55 | $0.00 | $0.00 | $2.55 | $2.55 |
| 2025 | 39 | NWA - Noxious Weed Assessment | $2.15 | $2.15 | $0.00 | $0.00 | $2.15 | $2.15 |
| 2025 | 39 | TOTAL: | $5180.55 | $5180.49 | $0.00 | $0.00 | $5180.55 | $5180.49 |
|
| 2025 | 39 | $5180.55 | $5180.49 | $0.00 | $0.00 | $5180.55 | $5180.49 |
Statement Details |
| 2024 | 39 | STATE - STATE LEVY (SCHOOL) | $1311.62 | $1311.61 | $0.00 | $0.00 | $2623.23 | $0.00 |
| 2024 | 39 | COUNTY - COUNTY LEVIES (CE, DD, VET, MH) | $561.26 | $561.25 | $0.00 | $0.00 | $1122.51 | $0.00 |
| 2024 | 39 | CONSERVE - CONSERVATION FUTURES | $16.83 | $16.83 | $0.00 | $0.00 | $33.66 | $0.00 |
| 2024 | 39 | CITYPT - CITY OF PT | $801.95 | $801.95 | $0.00 | $0.00 | $1603.90 | $0.00 |
| 2024 | 39 | PORTPT - PORT DISTRICT | $231.82 | $231.82 | $0.00 | $0.00 | $463.64 | $0.00 |
| 2024 | 39 | PUD1 - PUD #1 | $36.87 | $36.86 | $0.00 | $0.00 | $73.73 | $0.00 |
| 2024 | 39 | HD2 - HOSP DIST #2 | $32.75 | $32.75 | $0.00 | $0.00 | $65.50 | $0.00 |
| 2024 | 39 | SD50 - SCHOOL DIST #50 | $1061.17 | $1061.15 | $0.00 | $0.00 | $2122.32 | $0.00 |
| 2024 | 39 | FD1 - FIRE DISTRICT #1 | $742.11 | $742.11 | $0.00 | $0.00 | $1484.22 | $0.00 |
| 2024 | 39 | EMS1 - FIRE DIST #1 EMS | $283.46 | $283.46 | $0.00 | $0.00 | $566.92 | $0.00 |
| 2024 | 39 | JCCD - JC Conservation District | $2.55 | $2.55 | $0.00 | $0.00 | $5.10 | $0.00 |
| 2024 | 39 | NWA - Noxious Weed Assessment | $2.15 | $2.15 | $0.00 | $0.00 | $4.30 | $0.00 |
| 2024 | 39 | TOTAL: | $5084.54 | $5084.49 | $0.00 | $0.00 | $10169.03 | $0.00 |
|
| 2024 | 39 | $5084.54 | $5084.49 | $0.00 | $0.00 | $10169.03 | $0.00 |
Statement Details |
| 2023 | 39 | STATE - STATE LEVY (SCHOOL) | $1234.49 | $1234.47 | $0.00 | $0.00 | $2468.96 | $0.00 |
| 2023 | 39 | COUNTY - COUNTY LEVIES (CE, DD, VET, MH) | $538.70 | $538.68 | $0.00 | $0.00 | $1077.38 | $0.00 |
| 2023 | 39 | CONSERVE - CONSERVATION FUTURES | $16.16 | $16.15 | $0.00 | $0.00 | $32.31 | $0.00 |
| 2023 | 39 | CITYPT - CITY OF PT | $761.35 | $761.34 | $0.00 | $0.00 | $1522.69 | $0.00 |
| 2023 | 39 | PORTPT - PORT DISTRICT | $226.93 | $226.92 | $0.00 | $0.00 | $453.85 | $0.00 |
| 2023 | 39 | PUD1 - PUD #1 | $35.71 | $35.71 | $0.00 | $0.00 | $71.42 | $0.00 |
| 2023 | 39 | HD2 - HOSP DIST #2 | $31.44 | $31.43 | $0.00 | $0.00 | $62.87 | $0.00 |
| 2023 | 39 | SD50 - SCHOOL DIST #50 | $979.58 | $979.58 | $0.00 | $0.00 | $1959.16 | $0.00 |
| 2023 | 39 | FD1 - FIRE DISTRICT #1 | $443.77 | $443.77 | $0.00 | $0.00 | $887.54 | $0.00 |
| 2023 | 39 | EMS1 - FIRE DIST #1 EMS | $188.77 | $188.77 | $0.00 | $0.00 | $377.54 | $0.00 |
| 2023 | 39 | JCCD - JC Conservation District | $2.55 | $2.55 | $0.00 | $0.00 | $5.10 | $0.00 |
| 2023 | 39 | NWA - Noxious Weed Assessment | $2.15 | $2.15 | $0.00 | $0.00 | $4.30 | $0.00 |
| 2023 | 39 | TOTAL: | $4461.60 | $4461.52 | $0.00 | $0.00 | $8923.12 | $0.00 |
|
| 2023 | 39 | $4461.60 | $4461.52 | $0.00 | $0.00 | $8923.12 | $0.00 |
Statement Details |
| 2022 | 39 | STATE - STATE LEVY (SCHOOL) | $1239.36 | $1239.36 | $0.00 | $0.00 | $2478.72 | $0.00 |
| 2022 | 39 | COUNTY - COUNTY LEVIES (CE, DD, VET, MH) | $552.22 | $552.19 | $0.00 | $0.00 | $1104.41 | $0.00 |
| 2022 | 39 | CONSERVE - CONSERVATION FUTURES | $16.56 | $16.56 | $0.00 | $0.00 | $33.12 | $0.00 |
| 2022 | 39 | CITYPT - CITY OF PT | $710.57 | $710.56 | $0.00 | $0.00 | $1421.13 | $0.00 |
| 2022 | 39 | PORTPT - PORT DISTRICT | $236.40 | $236.39 | $0.00 | $0.00 | $472.79 | $0.00 |
| 2022 | 39 | PUD1 - PUD #1 | $36.93 | $36.92 | $0.00 | $0.00 | $73.85 | $0.00 |
| 2022 | 39 | HD2 - HOSP DIST #2 | $32.24 | $32.23 | $0.00 | $0.00 | $64.47 | $0.00 |
| 2022 | 39 | SD50 - SCHOOL DIST #50 | $918.43 | $918.41 | $0.00 | $0.00 | $1836.84 | $0.00 |
| 2022 | 39 | FD1 - FIRE DISTRICT #1 | $453.01 | $453.01 | $0.00 | $0.00 | $906.02 | $0.00 |
| 2022 | 39 | EMS1 - FIRE DIST #1 EMS | $192.69 | $192.69 | $0.00 | $0.00 | $385.38 | $0.00 |
| 2022 | 39 | JCCD - JC Conservation District | $2.55 | $2.55 | $0.00 | $0.00 | $5.10 | $0.00 |
| 2022 | 39 | NWA - Noxious Weed Assessment | $2.15 | $2.15 | $0.00 | $0.00 | $4.30 | $0.00 |
| 2022 | 39 | TOTAL: | $4393.11 | $4393.02 | $0.00 | $0.00 | $8786.13 | $0.00 |
|
| 2022 | 39 | $4393.11 | $4393.02 | $0.00 | $0.00 | $8786.13 | $0.00 |
Values
| (+) Improvement Homesite Value: | + | $0 | |
| (+) Improvement Non-Homesite Value: | + | $796,631 | |
| (+) Land Homesite Value: | + | $0 | |
| (+) Land Non-Homesite Value: | + | $425,688 | |
| (+) Curr Use (HS): | + | $0 | $0 |
| (+) Curr Use (NHS): | + | $0 | $0 |
| | | -------------------------- | |
| (=) Market Value: | = | $1,222,319 | |
| (–) Productivity Loss: | – | $0 | |
| | | -------------------------- | |
| (=) Subtotal: | = | $1,222,319 | |
| (+) Senior Appraised Value: | + | $0 | |
| (+) Non-Senior Appraised Value: | + | $1,222,319 | |
| | | -------------------------- | |
| (=) Total Appraised Value: | = | $1,222,319 | |
| (–) Senior Exemption Loss: | – | $0 | |
| (–) Exemption Loss: | – | $0 | |
| | | -------------------------- | |
| (=) Taxable Value: | = | $1,222,319 | |
Taxing Jurisdiction
| Owner: | JOHN C MILLER & BETH E KISSINGER | | |
| % Ownership: | 100.0000000000% | | |
| Total Value: | N/A | | |
| Tax Area: | 0110 - C-50F1E1H2 |
| CE | COUNTY CURRENT EXPENSE | N/A | N/A | N/A | N/A | | |
| CNTYDD | DEVELOPMENTAL DISABILITIES | N/A | N/A | N/A | N/A | | |
| CNTYVET | VETERANS RELIEF | N/A | N/A | N/A | N/A | | |
| MENTAL | MENTAL HEALTH | N/A | N/A | N/A | N/A | | |
| PTGEN | CITY OF PT GENERAL | N/A | N/A | N/A | N/A | | |
| PTLLL | CITY OF PT - LIBRARY LID LIFT | N/A | N/A | N/A | N/A | | |
| PTMVBOND | CITY OF PT MV BOND | N/A | N/A | N/A | N/A | | |
| HOSP2CASH | HOSP DIST #2 GENERAL | N/A | N/A | N/A | N/A | | |
| SCH50BOND | SCHOOL DIST #50 BOND 2016 | N/A | N/A | N/A | N/A | | |
| SCH50CP | SCHOOL DIST #50 CAP PROJ | N/A | N/A | N/A | N/A | | |
| SCH50MO | SCHOOL DIST #50 EP & O | N/A | N/A | N/A | N/A | | |
| CONSERVE | CONSERVATION FUTURES | N/A | N/A | N/A | N/A | | |
| EMS1 | FIRE DIST #1 EMS | N/A | N/A | N/A | N/A | | |
| FD1 | FIRE DIST #1 GENERAL | N/A | N/A | N/A | N/A | | |
| PORTPT | PORT OF PT GENERAL | N/A | N/A | N/A | N/A | | |
| PORTPTIDD | PORT OF PT IDD 2019 | N/A | N/A | N/A | N/A | | |
| PUD1 | PUD #1 GENERAL | N/A | N/A | N/A | N/A | | |
| STATE | STATE SCHOOL PART 1 | N/A | N/A | N/A | N/A | | |
| STATE2 | STATE SCHOOL PART 2 | N/A | N/A | N/A | N/A | | |
| | Total Tax Rate: | N/A | | | | | |
| | | | | Taxes w/Current Exemptions: | N/A | | |
| | | | | Taxes w/o Exemptions: | N/A | | |
Improvement / Building
| Improvement #1: | Residential Bldg | State Code: | 11 | 2142.0 sqft | Value: | $531,040 |
| Bathrooms (#): | 2 (FULL) | Bathrooms (#): | 1 (HALF) | | Bedrooms (#): | 2 | Exterior Wall: | SI/ST | | Fireplace: | SIN 1-GOOD | Floor Construction: | FRAME | | Foundation: | CONPR | Heating/Cooling: | F/A | | Inside Verify: | YES-FIX | Roof Cover: | SHAKE |
|
| | Type | Description | Class CD | Sub Class CD | Year Built | Area |
| | MA | Main Area | 4 | 1S | 1989 | 2142.0 |
| | HBAL | House Balcony | 4 | * | 1989 | 60.0 |
| | HDECK | House Deck | 4 | * | 1989 | 816.0 |
| | HLOFT | House Loft | 4 | * | 1989 | 480.0 |
| Improvement #2: | Residential Bldg | State Code: | 18 | 720.0 sqft | Value: | $265,591 |
| Bathrooms (#): | 1 (FULL) | Exterior Wall: | SI/ST | | Floor Construction: | FRAME | Foundation: | CONPR | | Heating/Cooling: | ELBB | Interior Finish: | FIN | | Roof Cover: | COMP |   |   |
|
| | Type | Description | Class CD | Sub Class CD | Year Built | Area |
| | MA | Main Area | 4 | 1S | 2018 | 720.0 |
| | GBLTIN | Builtin Garage | 4 | 1S | 2018 | 720.0 |
| | HBAL | House Balcony | 4 | * | 2018 | 64.0 |
Sketch
Property Image
Land
| 1 | 6320-1185L | | 0.0000 | 0.00 | 0.00 | 0.00 | 1.00 | $55,688 | $0 |
| 2 | 6320-1165L | | 0.0000 | 0.00 | 0.00 | 0.00 | 1.00 | $260,000 | $0 |
| 3 | 6320-1165L | | 0.0000 | 0.00 | 0.00 | 0.00 | 1.00 | $110,000 | $0 |
Roll Value History
| 2025 | N/A | N/A | N/A | N/A | N/A |
| 2024 | $760,526 | $428,450 | $0 | $1,188,976 | $1,188,976 |
| 2023 | $730,106 | $403,725 | $0 | $1,133,831 | $1,133,831 |
| 2022 | $669,263 | $379,500 | $0 | $1,048,763 | $1,048,763 |
| 2021 | $559,584 | $346,954 | $0 | $906,538 | $906,538 |
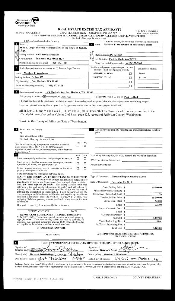
Deed and Sales History
| 1 | 09/24/2018 | SWD | Statutory Warranty Deed | CHRISTINE A EDWARDS REV TRUST | JOHN C MILLER & BETH E KISSINGER | | | $369,500.00 | 131086 | |
| 2 | 05/27/2016 | SWD | Statutory Warranty Deed | IAN P OWENS | CHRISTINE A EDWARDS REV TRUST | | | $475,000.00 | 125697 | |
| 3 | 01/26/2007 | SWD | Statutory Warranty Deed | OWENS, IAN P | OWENS, IAN P, JUSTICE, JANE L | 0 | 0 | $0.00 | 108528 | 0 |
| 4 | 04/17/2000 | SWD | Statutory Warranty Deed | BRACKETT, RANDALL C/LAURA | OWENS, IAN P | 0 | 0 | $270,000.00 | 89479 | 0 |
Payout Agreement
| No payout information available.. |