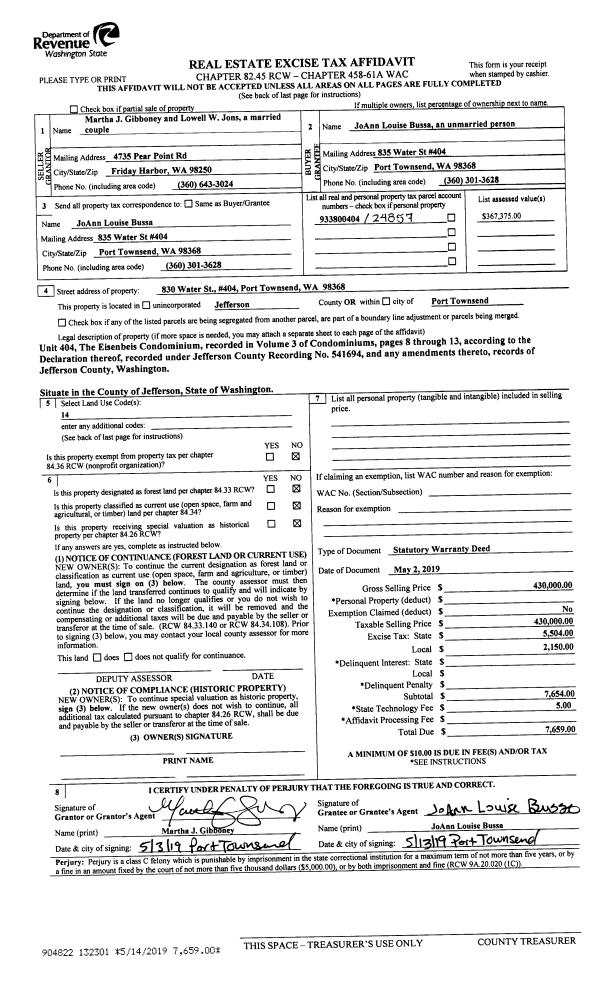
Property
Account |
| Property ID: | 10087 | Abbreviated Legal Description: | S2 T30 R1W TAX 5(N7'), TAX 6(ALL) SUBJ TO EASE |
| Parcel # / Geo ID: | 001024006 | Agent Code: | |
| Type: | Real | | |
| Tax Area: | 0110 - C-50F1E1H2 | Land Use Code | 11 |
| Open Space: | N | DFL | N |
| Historic Property: | N | Remodel Property: | N |
| Multi-Family Redevelopment: | N | | |
| Township: | 30N | Section: | 2 |
| Range: | 1W |
Location |
| Address: | 829 TYLER ST PORT TOWNSEND, WA 98368 | Mapsco: | 152/005 |
| Neighborhood: | BARTLETT,DENNYS,NOLTONS,LEARNEDS 1ST, POWER,WINSLOW & TX #'S | Map ID: | |
| Neighborhood CD: | 6360 |
Owner |
| Name: | FAITH ECHTERMEYER | Owner ID: | 94974 |
| Mailing Address: | 829 TYLER ST PORT TOWNSEND, WA 98368-6539 | % Ownership: | 100.0000000000% |
| | | Exemptions: | |
Pay Tax Due
Select the appropriate checkbox next to the year to be paid. Multiple years may be selected.
*Convenience Fee not included
Taxes and Assessment Details
Property Tax Information as of
10/23/2025
Click on "Statement Details" to expand or collapse a tax statement.
* Please enter a valid date ** Please enter a valid date *
Statement Details |
| 2025 | 78 | STATE - STATE LEVY (SCHOOL) | $589.79 | $589.78 | $0.00 | $0.00 | $589.79 | $589.78 |
| 2025 | 78 | COUNTY - COUNTY LEVIES (CE, DD, VET, MH) | $231.93 | $231.92 | $0.00 | $0.00 | $231.93 | $231.92 |
| 2025 | 78 | CONSERVE - CONSERVATION FUTURES | $6.96 | $6.95 | $0.00 | $0.00 | $6.96 | $6.95 |
| 2025 | 78 | CITYPT - CITY OF PT | $334.48 | $334.46 | $0.00 | $0.00 | $334.48 | $334.46 |
| 2025 | 78 | PORTPT - PORT DISTRICT | $94.65 | $94.64 | $0.00 | $0.00 | $94.65 | $94.64 |
| 2025 | 78 | PUD1 - PUD #1 | $15.18 | $15.17 | $0.00 | $0.00 | $15.18 | $15.17 |
| 2025 | 78 | HD2 - HOSP DIST #2 | $13.53 | $13.53 | $0.00 | $0.00 | $13.53 | $13.53 |
| 2025 | 78 | SD50 - SCHOOL DIST #50 | $431.04 | $431.02 | $0.00 | $0.00 | $431.04 | $431.02 |
| 2025 | 78 | FD1 - FIRE DISTRICT #1 | $306.06 | $306.05 | $0.00 | $0.00 | $306.06 | $306.05 |
| 2025 | 78 | EMS1 - FIRE DIST #1 EMS | $117.72 | $117.72 | $0.00 | $0.00 | $117.72 | $117.72 |
| 2025 | 78 | JCCD - JC Conservation District | $2.55 | $2.55 | $0.00 | $0.00 | $2.55 | $2.55 |
| 2025 | 78 | NWA - Noxious Weed Assessment | $2.15 | $2.15 | $0.00 | $0.00 | $2.15 | $2.15 |
| 2025 | 78 | TOTAL: | $2146.04 | $2145.94 | $0.00 | $0.00 | $2146.04 | $2145.94 |
|
| 2025 | 78 | $2146.04 | $2145.94 | $0.00 | $0.00 | $2146.04 | $2145.94 |
Statement Details |
| 2024 | 78 | STATE - STATE LEVY (SCHOOL) | $537.48 | $537.47 | $0.00 | $0.00 | $1074.95 | $0.00 |
| 2024 | 78 | COUNTY - COUNTY LEVIES (CE, DD, VET, MH) | $230.00 | $229.98 | $0.00 | $0.00 | $459.98 | $0.00 |
| 2024 | 78 | CONSERVE - CONSERVATION FUTURES | $6.90 | $6.89 | $0.00 | $0.00 | $13.79 | $0.00 |
| 2024 | 78 | CITYPT - CITY OF PT | $328.63 | $328.62 | $0.00 | $0.00 | $657.25 | $0.00 |
| 2024 | 78 | PORTPT - PORT DISTRICT | $95.00 | $94.99 | $0.00 | $0.00 | $189.99 | $0.00 |
| 2024 | 78 | PUD1 - PUD #1 | $15.11 | $15.10 | $0.00 | $0.00 | $30.21 | $0.00 |
| 2024 | 78 | HD2 - HOSP DIST #2 | $13.42 | $13.42 | $0.00 | $0.00 | $26.84 | $0.00 |
| 2024 | 78 | SD50 - SCHOOL DIST #50 | $434.85 | $434.83 | $0.00 | $0.00 | $869.68 | $0.00 |
| 2024 | 78 | FD1 - FIRE DISTRICT #1 | $304.10 | $304.10 | $0.00 | $0.00 | $608.20 | $0.00 |
| 2024 | 78 | EMS1 - FIRE DIST #1 EMS | $116.16 | $116.15 | $0.00 | $0.00 | $232.31 | $0.00 |
| 2024 | 78 | JCCD - JC Conservation District | $2.55 | $2.55 | $0.00 | $0.00 | $5.10 | $0.00 |
| 2024 | 78 | NWA - Noxious Weed Assessment | $2.15 | $2.15 | $0.00 | $0.00 | $4.30 | $0.00 |
| 2024 | 78 | TOTAL: | $2086.35 | $2086.25 | $0.00 | $0.00 | $4172.60 | $0.00 |
|
| 2024 | 78 | $2086.35 | $2086.25 | $0.00 | $0.00 | $4172.60 | $0.00 |
Statement Details |
| 2023 | 78 | STATE - STATE LEVY (SCHOOL) | $541.02 | $541.00 | $0.00 | $0.00 | $1082.02 | $0.00 |
| 2023 | 78 | COUNTY - COUNTY LEVIES (CE, DD, VET, MH) | $236.08 | $236.07 | $0.00 | $0.00 | $472.15 | $0.00 |
| 2023 | 78 | CONSERVE - CONSERVATION FUTURES | $7.08 | $7.08 | $0.00 | $0.00 | $14.16 | $0.00 |
| 2023 | 78 | CITYPT - CITY OF PT | $333.66 | $333.65 | $0.00 | $0.00 | $667.31 | $0.00 |
| 2023 | 78 | PORTPT - PORT DISTRICT | $99.45 | $99.45 | $0.00 | $0.00 | $198.90 | $0.00 |
| 2023 | 78 | PUD1 - PUD #1 | $15.65 | $15.65 | $0.00 | $0.00 | $31.30 | $0.00 |
| 2023 | 78 | HD2 - HOSP DIST #2 | $13.78 | $13.77 | $0.00 | $0.00 | $27.55 | $0.00 |
| 2023 | 78 | SD50 - SCHOOL DIST #50 | $429.31 | $429.30 | $0.00 | $0.00 | $858.61 | $0.00 |
| 2023 | 78 | FD1 - FIRE DISTRICT #1 | $194.48 | $194.48 | $0.00 | $0.00 | $388.96 | $0.00 |
| 2023 | 78 | EMS1 - FIRE DIST #1 EMS | $82.73 | $82.73 | $0.00 | $0.00 | $165.46 | $0.00 |
| 2023 | 78 | JCCD - JC Conservation District | $2.55 | $2.55 | $0.00 | $0.00 | $5.10 | $0.00 |
| 2023 | 78 | NWA - Noxious Weed Assessment | $2.15 | $2.15 | $0.00 | $0.00 | $4.30 | $0.00 |
| 2023 | 78 | TOTAL: | $1957.94 | $1957.88 | $0.00 | $0.00 | $3915.82 | $0.00 |
|
| 2023 | 78 | $1957.94 | $1957.88 | $0.00 | $0.00 | $3915.82 | $0.00 |
Statement Details |
| 2022 | 78 | STATE - STATE LEVY (SCHOOL) | $544.85 | $544.83 | $0.00 | $0.00 | $1089.68 | $0.00 |
| 2022 | 78 | COUNTY - COUNTY LEVIES (CE, DD, VET, MH) | $242.77 | $242.75 | $0.00 | $0.00 | $485.52 | $0.00 |
| 2022 | 78 | CONSERVE - CONSERVATION FUTURES | $7.28 | $7.28 | $0.00 | $0.00 | $14.56 | $0.00 |
| 2022 | 78 | CITYPT - CITY OF PT | $312.38 | $312.37 | $0.00 | $0.00 | $624.75 | $0.00 |
| 2022 | 78 | PORTPT - PORT DISTRICT | $103.93 | $103.92 | $0.00 | $0.00 | $207.85 | $0.00 |
| 2022 | 78 | PUD1 - PUD #1 | $16.24 | $16.23 | $0.00 | $0.00 | $32.47 | $0.00 |
| 2022 | 78 | HD2 - HOSP DIST #2 | $14.17 | $14.17 | $0.00 | $0.00 | $28.34 | $0.00 |
| 2022 | 78 | SD50 - SCHOOL DIST #50 | $403.76 | $403.75 | $0.00 | $0.00 | $807.51 | $0.00 |
| 2022 | 78 | FD1 - FIRE DISTRICT #1 | $199.15 | $199.15 | $0.00 | $0.00 | $398.30 | $0.00 |
| 2022 | 78 | EMS1 - FIRE DIST #1 EMS | $84.71 | $84.71 | $0.00 | $0.00 | $169.42 | $0.00 |
| 2022 | 78 | JCCD - JC Conservation District | $2.55 | $2.55 | $0.00 | $0.00 | $5.10 | $0.00 |
| 2022 | 78 | NWA - Noxious Weed Assessment | $2.15 | $2.15 | $0.00 | $0.00 | $4.30 | $0.00 |
| 2022 | 78 | TOTAL: | $1933.94 | $1933.86 | $0.00 | $0.00 | $3867.80 | $0.00 |
|
| 2022 | 78 | $1933.94 | $1933.86 | $0.00 | $0.00 | $3867.80 | $0.00 |
Values
| (+) Improvement Homesite Value: | + | $0 | |
| (+) Improvement Non-Homesite Value: | + | $299,101 | |
| (+) Land Homesite Value: | + | $0 | |
| (+) Land Non-Homesite Value: | + | $212,700 | |
| (+) Curr Use (HS): | + | $0 | $0 |
| (+) Curr Use (NHS): | + | $0 | $0 |
| | | -------------------------- | |
| (=) Market Value: | = | $511,801 | |
| (–) Productivity Loss: | – | $0 | |
| | | -------------------------- | |
| (=) Subtotal: | = | $511,801 | |
| (+) Senior Appraised Value: | + | $0 | |
| (+) Non-Senior Appraised Value: | + | $511,801 | |
| | | -------------------------- | |
| (=) Total Appraised Value: | = | $511,801 | |
| (–) Senior Exemption Loss: | – | $0 | |
| (–) Exemption Loss: | – | $0 | |
| | | -------------------------- | |
| (=) Taxable Value: | = | $511,801 | |
Taxing Jurisdiction
| Owner: | FAITH ECHTERMEYER | | |
| % Ownership: | 100.0000000000% | | |
| Total Value: | N/A | | |
| Tax Area: | 0110 - C-50F1E1H2 |
| CE | COUNTY CURRENT EXPENSE | N/A | N/A | N/A | N/A | | |
| CNTYDD | DEVELOPMENTAL DISABILITIES | N/A | N/A | N/A | N/A | | |
| CNTYVET | VETERANS RELIEF | N/A | N/A | N/A | N/A | | |
| MENTAL | MENTAL HEALTH | N/A | N/A | N/A | N/A | | |
| PTGEN | CITY OF PT GENERAL | N/A | N/A | N/A | N/A | | |
| PTLLL | CITY OF PT - LIBRARY LID LIFT | N/A | N/A | N/A | N/A | | |
| PTMVBOND | CITY OF PT MV BOND | N/A | N/A | N/A | N/A | | |
| HOSP2CASH | HOSP DIST #2 GENERAL | N/A | N/A | N/A | N/A | | |
| SCH50BOND | SCHOOL DIST #50 BOND 2016 | N/A | N/A | N/A | N/A | | |
| SCH50CP | SCHOOL DIST #50 CAP PROJ | N/A | N/A | N/A | N/A | | |
| SCH50MO | SCHOOL DIST #50 EP & O | N/A | N/A | N/A | N/A | | |
| CONSERVE | CONSERVATION FUTURES | N/A | N/A | N/A | N/A | | |
| EMS1 | FIRE DIST #1 EMS | N/A | N/A | N/A | N/A | | |
| FD1 | FIRE DIST #1 GENERAL | N/A | N/A | N/A | N/A | | |
| PORTPT | PORT OF PT GENERAL | N/A | N/A | N/A | N/A | | |
| PORTPTIDD | PORT OF PT IDD 2019 | N/A | N/A | N/A | N/A | | |
| PUD1 | PUD #1 GENERAL | N/A | N/A | N/A | N/A | | |
| STATE | STATE SCHOOL PART 1 | N/A | N/A | N/A | N/A | | |
| STATE2 | STATE SCHOOL PART 2 | N/A | N/A | N/A | N/A | | |
| | Total Tax Rate: | N/A | | | | | |
| | | | | Taxes w/Current Exemptions: | N/A | | |
| | | | | Taxes w/o Exemptions: | N/A | | |
Improvement / Building
| Improvement #1: | Residential Bldg | State Code: | 11 | 1566.0 sqft | Value: | $299,101 |
| Exterior Wall: | SI/ST | Floor Construction: | FRAME | | Foundation: | CONPR | Heating/Cooling: | ELBB | | Inside Verify: | YES-FIX | Roof Cover: | COMP |
|
| | Type | Description | Class CD | Sub Class CD | Year Built | Area |
| | MA | Main Area | 4 | 15SF | 1875 | 1026.0 |
| | MA2 | Second Floor Main Area | 4 | 15SF | 1875 | 540.0 |
| | HWPOR | House Wood Porch | 3 | * | 1875 | 28.0 |
| | GDET | Detached Garage | 2 | * | 1875 | 396.0 |
Sketch
Property Image
Land
| 1 | 6360-1165L | | 0.0000 | 0.00 | 0.00 | 0.00 | 1.00 | $212,700 | $0 |
Roll Value History
| 2025 | N/A | N/A | N/A | N/A | N/A |
| 2024 | $277,693 | $214,200 | $0 | $491,893 | $491,893 |
| 2023 | $265,619 | $199,000 | $0 | $464,619 | $464,619 |
| 2022 | $265,619 | $194,000 | $0 | $459,619 | $459,619 |
| 2021 | $222,089 | $176,438 | $0 | $398,527 | $398,527 |
Deed and Sales History
| 1 | 08/13/2018 | QCD | Quit Claim Deed | | | | | | 130794 | |
| 2 | 07/31/2018 | SWD | Statutory Warranty Deed | LELAH & DAMIAN WRIGHT | FAITH ECHTERMEYER | | | $346,000.00 | 130793 | ` |
| 3 | 06/06/2017 | SWD | Statutory Warranty Deed | AARON VON AWE | LELAH & DAMIAN WRIGHT | | | $280,000.00 | 127848 | |
Payout Agreement
| No payout information available.. |