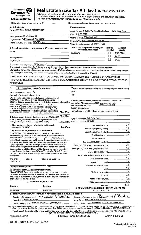
Property
Account |
| Property ID: | 10112 | Abbreviated Legal Description: | S2 T30 R1W TAX 66(W44') |
| Parcel # / Geo ID: | 001024033 | Agent Code: | |
| Type: | Real | | |
| Tax Area: | 0110 - C-50F1E1H2 | Land Use Code | 11 |
| Open Space: | N | DFL | N |
| Historic Property: | N | Remodel Property: | N |
| Multi-Family Redevelopment: | N | | |
| Township: | 30N | Section: | 2 |
| Range: | 1W |
Location |
| Address: | 1042 BLAINE ST PORT TOWNSEND, WA 98368 | Mapsco: | 153/021 |
| Neighborhood: | BARTLETT,DENNYS,NOLTONS,LEARNEDS 1ST, POWER,WINSLOW & TX #'S | Map ID: | |
| Neighborhood CD: | 6360 |
Owner |
| Name: | JOHN M SCOTT TRUSTEE | Owner ID: | 26901 |
| Mailing Address: | SCOTT LIVING TRUST 151 STADIUM AVE MILL VALLEY, CA 94941-3506 | % Ownership: | 100.0000000000% |
| | | Exemptions: | |
Pay Tax Due
There is currently No Amount Due on this property.
Taxes and Assessment Details
Property Tax Information as of
10/23/2025
Click on "Statement Details" to expand or collapse a tax statement.
* Please enter a valid date ** Please enter a valid date *
Statement Details |
| 2025 | 103 | STATE - STATE LEVY (SCHOOL) | $418.67 | $418.66 | $0.00 | $0.00 | $837.33 | $0.00 |
| 2025 | 103 | COUNTY - COUNTY LEVIES (CE, DD, VET, MH) | $164.64 | $164.63 | $0.00 | $0.00 | $329.27 | $0.00 |
| 2025 | 103 | CONSERVE - CONSERVATION FUTURES | $4.94 | $4.93 | $0.00 | $0.00 | $9.87 | $0.00 |
| 2025 | 103 | CITYPT - CITY OF PT | $237.43 | $237.42 | $0.00 | $0.00 | $474.85 | $0.00 |
| 2025 | 103 | PORTPT - PORT DISTRICT | $67.19 | $67.18 | $0.00 | $0.00 | $134.37 | $0.00 |
| 2025 | 103 | PUD1 - PUD #1 | $10.78 | $10.77 | $0.00 | $0.00 | $21.55 | $0.00 |
| 2025 | 103 | HD2 - HOSP DIST #2 | $9.61 | $9.60 | $0.00 | $0.00 | $19.21 | $0.00 |
| 2025 | 103 | SD50 - SCHOOL DIST #50 | $305.98 | $305.97 | $0.00 | $0.00 | $611.95 | $0.00 |
| 2025 | 103 | FD1 - FIRE DISTRICT #1 | $217.26 | $217.25 | $0.00 | $0.00 | $434.51 | $0.00 |
| 2025 | 103 | EMS1 - FIRE DIST #1 EMS | $83.57 | $83.56 | $0.00 | $0.00 | $167.13 | $0.00 |
| 2025 | 103 | JCCD - JC Conservation District | $2.55 | $2.55 | $0.00 | $0.00 | $5.10 | $0.00 |
| 2025 | 103 | NWA - Noxious Weed Assessment | $2.15 | $2.15 | $0.00 | $0.00 | $4.30 | $0.00 |
| 2025 | 103 | TOTAL: | $1524.77 | $1524.67 | $0.00 | $0.00 | $3049.44 | $0.00 |
|
| 2025 | 103 | $1524.77 | $1524.67 | $0.00 | $0.00 | $3049.44 | $0.00 |
Statement Details |
| 2024 | 103 | STATE - STATE LEVY (SCHOOL) | $379.58 | $379.57 | $0.00 | $0.00 | $759.15 | $0.00 |
| 2024 | 103 | COUNTY - COUNTY LEVIES (CE, DD, VET, MH) | $162.43 | $162.41 | $0.00 | $0.00 | $324.84 | $0.00 |
| 2024 | 103 | CONSERVE - CONSERVATION FUTURES | $4.87 | $4.87 | $0.00 | $0.00 | $9.74 | $0.00 |
| 2024 | 103 | CITYPT - CITY OF PT | $232.09 | $232.06 | $0.00 | $0.00 | $464.15 | $0.00 |
| 2024 | 103 | PORTPT - PORT DISTRICT | $67.09 | $67.08 | $0.00 | $0.00 | $134.17 | $0.00 |
| 2024 | 103 | PUD1 - PUD #1 | $10.67 | $10.67 | $0.00 | $0.00 | $21.34 | $0.00 |
| 2024 | 103 | HD2 - HOSP DIST #2 | $9.48 | $9.47 | $0.00 | $0.00 | $18.95 | $0.00 |
| 2024 | 103 | SD50 - SCHOOL DIST #50 | $307.10 | $307.09 | $0.00 | $0.00 | $614.19 | $0.00 |
| 2024 | 103 | FD1 - FIRE DISTRICT #1 | $214.76 | $214.76 | $0.00 | $0.00 | $429.52 | $0.00 |
| 2024 | 103 | EMS1 - FIRE DIST #1 EMS | $82.03 | $82.03 | $0.00 | $0.00 | $164.06 | $0.00 |
| 2024 | 103 | JCCD - JC Conservation District | $2.55 | $2.55 | $0.00 | $0.00 | $5.10 | $0.00 |
| 2024 | 103 | NWA - Noxious Weed Assessment | $2.15 | $2.15 | $0.00 | $0.00 | $4.30 | $0.00 |
| 2024 | 103 | TOTAL: | $1474.80 | $1474.71 | $0.00 | $0.00 | $2949.51 | $0.00 |
|
| 2024 | 103 | $1474.80 | $1474.71 | $0.00 | $0.00 | $2949.51 | $0.00 |
Statement Details |
| 2023 | 103 | STATE - STATE LEVY (SCHOOL) | $380.35 | $380.34 | $0.00 | $0.00 | $760.69 | $0.00 |
| 2023 | 103 | COUNTY - COUNTY LEVIES (CE, DD, VET, MH) | $165.97 | $165.96 | $0.00 | $0.00 | $331.93 | $0.00 |
| 2023 | 103 | CONSERVE - CONSERVATION FUTURES | $4.98 | $4.97 | $0.00 | $0.00 | $9.95 | $0.00 |
| 2023 | 103 | CITYPT - CITY OF PT | $234.58 | $234.56 | $0.00 | $0.00 | $469.14 | $0.00 |
| 2023 | 103 | PORTPT - PORT DISTRICT | $69.92 | $69.91 | $0.00 | $0.00 | $139.83 | $0.00 |
| 2023 | 103 | PUD1 - PUD #1 | $11.00 | $11.00 | $0.00 | $0.00 | $22.00 | $0.00 |
| 2023 | 103 | HD2 - HOSP DIST #2 | $9.69 | $9.68 | $0.00 | $0.00 | $19.37 | $0.00 |
| 2023 | 103 | SD50 - SCHOOL DIST #50 | $301.82 | $301.80 | $0.00 | $0.00 | $603.62 | $0.00 |
| 2023 | 103 | FD1 - FIRE DISTRICT #1 | $136.73 | $136.72 | $0.00 | $0.00 | $273.45 | $0.00 |
| 2023 | 103 | EMS1 - FIRE DIST #1 EMS | $58.16 | $58.16 | $0.00 | $0.00 | $116.32 | $0.00 |
| 2023 | 103 | JCCD - JC Conservation District | $2.55 | $2.55 | $0.00 | $0.00 | $5.10 | $0.00 |
| 2023 | 103 | NWA - Noxious Weed Assessment | $2.15 | $2.15 | $0.00 | $0.00 | $4.30 | $0.00 |
| 2023 | 103 | TOTAL: | $1377.90 | $1377.80 | $0.00 | $0.00 | $2755.70 | $0.00 |
|
| 2023 | 103 | $1377.90 | $1377.80 | $0.00 | $0.00 | $2755.70 | $0.00 |
Statement Details |
| 2022 | 103 | STATE - STATE LEVY (SCHOOL) | $382.88 | $382.86 | $0.00 | $0.00 | $765.74 | $0.00 |
| 2022 | 103 | COUNTY - COUNTY LEVIES (CE, DD, VET, MH) | $170.60 | $170.59 | $0.00 | $0.00 | $341.19 | $0.00 |
| 2022 | 103 | CONSERVE - CONSERVATION FUTURES | $5.12 | $5.11 | $0.00 | $0.00 | $10.23 | $0.00 |
| 2022 | 103 | CITYPT - CITY OF PT | $219.53 | $219.50 | $0.00 | $0.00 | $439.03 | $0.00 |
| 2022 | 103 | PORTPT - PORT DISTRICT | $73.04 | $73.02 | $0.00 | $0.00 | $146.06 | $0.00 |
| 2022 | 103 | PUD1 - PUD #1 | $11.41 | $11.41 | $0.00 | $0.00 | $22.82 | $0.00 |
| 2022 | 103 | HD2 - HOSP DIST #2 | $9.96 | $9.95 | $0.00 | $0.00 | $19.91 | $0.00 |
| 2022 | 103 | SD50 - SCHOOL DIST #50 | $283.73 | $283.73 | $0.00 | $0.00 | $567.46 | $0.00 |
| 2022 | 103 | FD1 - FIRE DISTRICT #1 | $139.95 | $139.95 | $0.00 | $0.00 | $279.90 | $0.00 |
| 2022 | 103 | EMS1 - FIRE DIST #1 EMS | $59.53 | $59.53 | $0.00 | $0.00 | $119.06 | $0.00 |
| 2022 | 103 | JCCD - JC Conservation District | $2.55 | $2.55 | $0.00 | $0.00 | $5.10 | $0.00 |
| 2022 | 103 | NWA - Noxious Weed Assessment | $2.15 | $2.15 | $0.00 | $0.00 | $4.30 | $0.00 |
| 2022 | 103 | TOTAL: | $1360.45 | $1360.35 | $0.00 | $0.00 | $2720.80 | $0.00 |
|
| 2022 | 103 | $1360.45 | $1360.35 | $0.00 | $0.00 | $2720.80 | $0.00 |
Values
| (+) Improvement Homesite Value: | + | $0 | |
| (+) Improvement Non-Homesite Value: | + | $152,667 | |
| (+) Land Homesite Value: | + | $0 | |
| (+) Land Non-Homesite Value: | + | $210,000 | |
| (+) Curr Use (HS): | + | $0 | $0 |
| (+) Curr Use (NHS): | + | $0 | $0 |
| | | -------------------------- | |
| (=) Market Value: | = | $362,667 | |
| (–) Productivity Loss: | – | $0 | |
| | | -------------------------- | |
| (=) Subtotal: | = | $362,667 | |
| (+) Senior Appraised Value: | + | $0 | |
| (+) Non-Senior Appraised Value: | + | $362,667 | |
| | | -------------------------- | |
| (=) Total Appraised Value: | = | $362,667 | |
| (–) Senior Exemption Loss: | – | $0 | |
| (–) Exemption Loss: | – | $0 | |
| | | -------------------------- | |
| (=) Taxable Value: | = | $362,667 | |
Taxing Jurisdiction
| Owner: | JOHN M SCOTT TRUSTEE | | |
| % Ownership: | 100.0000000000% | | |
| Total Value: | N/A | | |
| Tax Area: | 0110 - C-50F1E1H2 |
| CE | COUNTY CURRENT EXPENSE | N/A | N/A | N/A | N/A | | |
| CNTYDD | DEVELOPMENTAL DISABILITIES | N/A | N/A | N/A | N/A | | |
| CNTYVET | VETERANS RELIEF | N/A | N/A | N/A | N/A | | |
| MENTAL | MENTAL HEALTH | N/A | N/A | N/A | N/A | | |
| PTGEN | CITY OF PT GENERAL | N/A | N/A | N/A | N/A | | |
| PTLLL | CITY OF PT - LIBRARY LID LIFT | N/A | N/A | N/A | N/A | | |
| PTMVBOND | CITY OF PT MV BOND | N/A | N/A | N/A | N/A | | |
| HOSP2CASH | HOSP DIST #2 GENERAL | N/A | N/A | N/A | N/A | | |
| SCH50BOND | SCHOOL DIST #50 BOND 2016 | N/A | N/A | N/A | N/A | | |
| SCH50CP | SCHOOL DIST #50 CAP PROJ | N/A | N/A | N/A | N/A | | |
| SCH50MO | SCHOOL DIST #50 EP & O | N/A | N/A | N/A | N/A | | |
| CONSERVE | CONSERVATION FUTURES | N/A | N/A | N/A | N/A | | |
| EMS1 | FIRE DIST #1 EMS | N/A | N/A | N/A | N/A | | |
| FD1 | FIRE DIST #1 GENERAL | N/A | N/A | N/A | N/A | | |
| PORTPT | PORT OF PT GENERAL | N/A | N/A | N/A | N/A | | |
| PORTPTIDD | PORT OF PT IDD 2019 | N/A | N/A | N/A | N/A | | |
| PUD1 | PUD #1 GENERAL | N/A | N/A | N/A | N/A | | |
| STATE | STATE SCHOOL PART 1 | N/A | N/A | N/A | N/A | | |
| STATE2 | STATE SCHOOL PART 2 | N/A | N/A | N/A | N/A | | |
| | Total Tax Rate: | N/A | | | | | |
| | | | | Taxes w/Current Exemptions: | N/A | | |
| | | | | Taxes w/o Exemptions: | N/A | | |
Improvement / Building
| Improvement #1: | Residential Bldg | State Code: | 11 | 1454.0 sqft | Value: | $152,667 |
| Exterior Wall: | SI/ST | Fireplace: | WD ST-AVG | | Floor Construction: | FRAME | Foundation: | CONPR | | Heating/Cooling: | ELBB | Inside Verify: | YES-FIX | | Roof Cover: | COMP |   |   |
|
| | Type | Description | Class CD | Sub Class CD | Year Built | Area |
| | MA | Main Area | 3+ | 2S | 1920 | 794.0 |
| | MA2 | Second Floor Main Area | 3+ | 2S | 1920 | 660.0 |
| | HCPOR | House Concrete Porch | 3 | * | 1920 | 120.0 |
Sketch
Property Image
Land
| 1 | 6360-1175L | | 0.0000 | 0.00 | 0.00 | 0.00 | 1.00 | $210,000 | $0 |
Roll Value History
| 2025 | N/A | N/A | N/A | N/A | N/A |
| 2024 | $139,174 | $210,000 | $0 | $349,174 | $349,174 |
| 2023 | $133,123 | $195,000 | $0 | $328,123 | $328,123 |
| 2022 | $133,123 | $190,000 | $0 | $323,123 | $323,123 |
| 2021 | $111,306 | $168,750 | $0 | $280,056 | $280,056 |
Deed and Sales History
| 1 | 02/02/2012 | QCD | Quit Claim Deed | SCOTT, JOHN MERRILL | SCOTT, JOHN MERRILL TRUSTEE OF | 0 | 0 | $0.00 | 117131 | 0 |
Payout Agreement
| No payout information available.. |