Property
Account |
| Property ID: | 10154 | Abbreviated Legal Description: | S3 T30 R1W TAX 13 & TAX 14 BND THRU RESTRICTIVE COVENANT AF#618772 |
| Parcel # / Geo ID: | 001031002 | Agent Code: | |
| Type: | Real | | |
| Tax Area: | 0110 - C-50F1E1H2 | Land Use Code | 11 |
| Open Space: | N | DFL | N |
| Historic Property: | N | Remodel Property: | N |
| Multi-Family Redevelopment: | N | | |
| Township: | 30N | Section: | 3 |
| Range: | 1W |
Location |
| Address: | 2945 HAINES ST PORT TOWNSEND, WA 98368 | Mapsco: | 155/014 |
| Neighborhood: | LITTLEFIELD,MOORES,PT ECO,ROSEWIND,TIBBALS 2ND,WAYSONS+SP AC | Map ID: | |
| Neighborhood CD: | 6090 |
Owner |
| Name: | KIMBERLY FAIRBANKS & STEVEN C STRATTON | Owner ID: | 106108 |
| Mailing Address: | 2945 HAINES ST PORT TOWNSEND, WA 98368-6126 | % Ownership: | 100.0000000000% |
| | | Exemptions: | |
Pay Tax Due
Select the appropriate checkbox next to the year to be paid. Multiple years may be selected.
*Convenience Fee not included
Taxes and Assessment Details
Property Tax Information as of
10/23/2025
Click on "Statement Details" to expand or collapse a tax statement.
* Please enter a valid date ** Please enter a valid date *
Statement Details |
| 2025 | 143 | STATE - STATE LEVY (SCHOOL) | $509.57 | $509.56 | $0.00 | $0.00 | $509.57 | $509.56 |
| 2025 | 143 | COUNTY - COUNTY LEVIES (CE, DD, VET, MH) | $200.40 | $200.38 | $0.00 | $0.00 | $200.40 | $200.38 |
| 2025 | 143 | CONSERVE - CONSERVATION FUTURES | $6.01 | $6.01 | $0.00 | $0.00 | $6.01 | $6.01 |
| 2025 | 143 | CITYPT - CITY OF PT | $288.98 | $288.96 | $0.00 | $0.00 | $288.98 | $288.96 |
| 2025 | 143 | PORTPT - PORT DISTRICT | $81.77 | $81.76 | $0.00 | $0.00 | $81.77 | $81.76 |
| 2025 | 143 | PUD1 - PUD #1 | $13.11 | $13.11 | $0.00 | $0.00 | $13.11 | $13.11 |
| 2025 | 143 | HD2 - HOSP DIST #2 | $11.69 | $11.69 | $0.00 | $0.00 | $11.69 | $11.69 |
| 2025 | 143 | SD50 - SCHOOL DIST #50 | $372.41 | $372.40 | $0.00 | $0.00 | $372.41 | $372.40 |
| 2025 | 143 | FD1 - FIRE DISTRICT #1 | $264.43 | $264.43 | $0.00 | $0.00 | $264.43 | $264.43 |
| 2025 | 143 | EMS1 - FIRE DIST #1 EMS | $101.71 | $101.70 | $0.00 | $0.00 | $101.71 | $101.70 |
| 2025 | 143 | JCCD - JC Conservation District | $2.55 | $2.55 | $0.00 | $0.00 | $2.55 | $2.55 |
| 2025 | 143 | NWA - Noxious Weed Assessment | $2.15 | $2.15 | $0.00 | $0.00 | $2.15 | $2.15 |
| 2025 | 143 | TOTAL: | $1854.78 | $1854.70 | $0.00 | $0.00 | $1854.78 | $1854.70 |
|
| 2025 | 143 | $1854.78 | $1854.70 | $0.00 | $0.00 | $1854.78 | $1854.70 |
Statement Details |
| 2024 | 143 | STATE - STATE LEVY (SCHOOL) | $451.99 | $451.97 | $0.00 | $0.00 | $903.96 | $0.00 |
| 2024 | 143 | COUNTY - COUNTY LEVIES (CE, DD, VET, MH) | $193.41 | $193.39 | $0.00 | $0.00 | $386.80 | $0.00 |
| 2024 | 143 | CONSERVE - CONSERVATION FUTURES | $5.80 | $5.80 | $0.00 | $0.00 | $11.60 | $0.00 |
| 2024 | 143 | CITYPT - CITY OF PT | $276.36 | $276.34 | $0.00 | $0.00 | $552.70 | $0.00 |
| 2024 | 143 | PORTPT - PORT DISTRICT | $79.89 | $79.88 | $0.00 | $0.00 | $159.77 | $0.00 |
| 2024 | 143 | PUD1 - PUD #1 | $12.71 | $12.70 | $0.00 | $0.00 | $25.41 | $0.00 |
| 2024 | 143 | HD2 - HOSP DIST #2 | $11.29 | $11.28 | $0.00 | $0.00 | $22.57 | $0.00 |
| 2024 | 143 | SD50 - SCHOOL DIST #50 | $365.68 | $365.66 | $0.00 | $0.00 | $731.34 | $0.00 |
| 2024 | 143 | FD1 - FIRE DISTRICT #1 | $255.73 | $255.73 | $0.00 | $0.00 | $511.46 | $0.00 |
| 2024 | 143 | EMS1 - FIRE DIST #1 EMS | $97.68 | $97.68 | $0.00 | $0.00 | $195.36 | $0.00 |
| 2024 | 143 | JCCD - JC Conservation District | $2.55 | $2.55 | $0.00 | $0.00 | $5.10 | $0.00 |
| 2024 | 143 | NWA - Noxious Weed Assessment | $2.15 | $2.15 | $0.00 | $0.00 | $4.30 | $0.00 |
| 2024 | 143 | TOTAL: | $1755.24 | $1755.13 | $0.00 | $0.00 | $3510.37 | $0.00 |
|
| 2024 | 143 | $1755.24 | $1755.13 | $0.00 | $0.00 | $3510.37 | $0.00 |
Statement Details |
| 2023 | 143 | STATE - STATE LEVY (SCHOOL) | $454.02 | $454.01 | $0.00 | $0.00 | $908.03 | $0.00 |
| 2023 | 143 | COUNTY - COUNTY LEVIES (CE, DD, VET, MH) | $198.13 | $198.11 | $0.00 | $0.00 | $396.24 | $0.00 |
| 2023 | 143 | CONSERVE - CONSERVATION FUTURES | $5.94 | $5.94 | $0.00 | $0.00 | $11.88 | $0.00 |
| 2023 | 143 | CITYPT - CITY OF PT | $280.01 | $280.00 | $0.00 | $0.00 | $560.01 | $0.00 |
| 2023 | 143 | PORTPT - PORT DISTRICT | $83.47 | $83.45 | $0.00 | $0.00 | $166.92 | $0.00 |
| 2023 | 143 | PUD1 - PUD #1 | $13.14 | $13.13 | $0.00 | $0.00 | $26.27 | $0.00 |
| 2023 | 143 | HD2 - HOSP DIST #2 | $11.57 | $11.55 | $0.00 | $0.00 | $23.12 | $0.00 |
| 2023 | 143 | SD50 - SCHOOL DIST #50 | $360.28 | $360.26 | $0.00 | $0.00 | $720.54 | $0.00 |
| 2023 | 143 | FD1 - FIRE DISTRICT #1 | $163.21 | $163.21 | $0.00 | $0.00 | $326.42 | $0.00 |
| 2023 | 143 | EMS1 - FIRE DIST #1 EMS | $69.43 | $69.42 | $0.00 | $0.00 | $138.85 | $0.00 |
| 2023 | 143 | JCCD - JC Conservation District | $2.55 | $2.55 | $0.00 | $0.00 | $5.10 | $0.00 |
| 2023 | 143 | NWA - Noxious Weed Assessment | $2.15 | $2.15 | $0.00 | $0.00 | $4.30 | $0.00 |
| 2023 | 143 | TOTAL: | $1643.90 | $1643.78 | $0.00 | $0.00 | $3287.68 | $0.00 |
|
| 2023 | 143 | $1643.90 | $1643.78 | $0.00 | $0.00 | $3287.68 | $0.00 |
Statement Details |
| 2022 | 143 | STATE - STATE LEVY (SCHOOL) | $454.99 | $454.98 | $0.00 | $0.00 | $909.97 | $0.00 |
| 2022 | 143 | COUNTY - COUNTY LEVIES (CE, DD, VET, MH) | $202.73 | $202.71 | $0.00 | $0.00 | $405.44 | $0.00 |
| 2022 | 143 | CONSERVE - CONSERVATION FUTURES | $6.08 | $6.08 | $0.00 | $0.00 | $12.16 | $0.00 |
| 2022 | 143 | CITYPT - CITY OF PT | $260.86 | $260.85 | $0.00 | $0.00 | $521.71 | $0.00 |
| 2022 | 143 | PORTPT - PORT DISTRICT | $86.79 | $86.78 | $0.00 | $0.00 | $173.57 | $0.00 |
| 2022 | 143 | PUD1 - PUD #1 | $13.56 | $13.55 | $0.00 | $0.00 | $27.11 | $0.00 |
| 2022 | 143 | HD2 - HOSP DIST #2 | $11.84 | $11.83 | $0.00 | $0.00 | $23.67 | $0.00 |
| 2022 | 143 | SD50 - SCHOOL DIST #50 | $337.17 | $337.17 | $0.00 | $0.00 | $674.34 | $0.00 |
| 2022 | 143 | FD1 - FIRE DISTRICT #1 | $166.31 | $166.30 | $0.00 | $0.00 | $332.61 | $0.00 |
| 2022 | 143 | EMS1 - FIRE DIST #1 EMS | $70.74 | $70.74 | $0.00 | $0.00 | $141.48 | $0.00 |
| 2022 | 143 | JCCD - JC Conservation District | $2.55 | $2.55 | $0.00 | $0.00 | $5.10 | $0.00 |
| 2022 | 143 | NWA - Noxious Weed Assessment | $2.15 | $2.15 | $0.00 | $0.00 | $4.30 | $0.00 |
| 2022 | 143 | TOTAL: | $1615.77 | $1615.69 | $0.00 | $0.00 | $3231.46 | $0.00 |
|
| 2022 | 143 | $1615.77 | $1615.69 | $0.00 | $0.00 | $3231.46 | $0.00 |
Values
| (+) Improvement Homesite Value: | + | $0 | |
| (+) Improvement Non-Homesite Value: | + | $272,862 | |
| (+) Land Homesite Value: | + | $0 | |
| (+) Land Non-Homesite Value: | + | $172,000 | |
| (+) Curr Use (HS): | + | $0 | $0 |
| (+) Curr Use (NHS): | + | $0 | $0 |
| | | -------------------------- | |
| (=) Market Value: | = | $444,862 | |
| (–) Productivity Loss: | – | $0 | |
| | | -------------------------- | |
| (=) Subtotal: | = | $444,862 | |
| (+) Senior Appraised Value: | + | $0 | |
| (+) Non-Senior Appraised Value: | + | $444,862 | |
| | | -------------------------- | |
| (=) Total Appraised Value: | = | $444,862 | |
| (–) Senior Exemption Loss: | – | $0 | |
| (–) Exemption Loss: | – | $0 | |
| | | -------------------------- | |
| (=) Taxable Value: | = | $444,862 | |
Taxing Jurisdiction
| Owner: | KIMBERLY FAIRBANKS & STEVEN C STRATTON | | |
| % Ownership: | 100.0000000000% | | |
| Total Value: | N/A | | |
| Tax Area: | 0110 - C-50F1E1H2 |
| CE | COUNTY CURRENT EXPENSE | N/A | N/A | N/A | N/A | | |
| CNTYDD | DEVELOPMENTAL DISABILITIES | N/A | N/A | N/A | N/A | | |
| CNTYVET | VETERANS RELIEF | N/A | N/A | N/A | N/A | | |
| MENTAL | MENTAL HEALTH | N/A | N/A | N/A | N/A | | |
| PTGEN | CITY OF PT GENERAL | N/A | N/A | N/A | N/A | | |
| PTLLL | CITY OF PT - LIBRARY LID LIFT | N/A | N/A | N/A | N/A | | |
| PTMVBOND | CITY OF PT MV BOND | N/A | N/A | N/A | N/A | | |
| HOSP2CASH | HOSP DIST #2 GENERAL | N/A | N/A | N/A | N/A | | |
| SCH50BOND | SCHOOL DIST #50 BOND 2016 | N/A | N/A | N/A | N/A | | |
| SCH50CP | SCHOOL DIST #50 CAP PROJ | N/A | N/A | N/A | N/A | | |
| SCH50MO | SCHOOL DIST #50 EP & O | N/A | N/A | N/A | N/A | | |
| CONSERVE | CONSERVATION FUTURES | N/A | N/A | N/A | N/A | | |
| EMS1 | FIRE DIST #1 EMS | N/A | N/A | N/A | N/A | | |
| FD1 | FIRE DIST #1 GENERAL | N/A | N/A | N/A | N/A | | |
| PORTPT | PORT OF PT GENERAL | N/A | N/A | N/A | N/A | | |
| PORTPTIDD | PORT OF PT IDD 2019 | N/A | N/A | N/A | N/A | | |
| PUD1 | PUD #1 GENERAL | N/A | N/A | N/A | N/A | | |
| STATE | STATE SCHOOL PART 1 | N/A | N/A | N/A | N/A | | |
| STATE2 | STATE SCHOOL PART 2 | N/A | N/A | N/A | N/A | | |
| | Total Tax Rate: | N/A | | | | | |
| | | | | Taxes w/Current Exemptions: | N/A | | |
| | | | | Taxes w/o Exemptions: | N/A | | |
Improvement / Building
| Improvement #1: | Residential Bldg | State Code: | 11 | 784.0 sqft | Value: | $203,846 |
| Bathrooms (#): | 1 (FULL) | Bedrooms (#): | 1 | | Exterior Wall: | SI/ST | Fireplace: | SIN 1-GOOD | | Floor Construction: | FRAME | Foundation: | CONPR | | Heating/Cooling: | ELBB | Roof Cover: | COMP |
|
| | Type | Description | Class CD | Sub Class CD | Year Built | Area |
| | MA | Main Area | 3+ | 1S | 1905 | 784.0 |
| | HWPOR | House Wood Porch | 3 | * | 1905 | 114.0 |
| | HADDN | House Addition | 3+ | * | 2018 | 152.0 |
| | BSMTU | House basement unfinished | 3 | * | 1905 | 395.5 |
| | PATIO | House Patio | 3 | * | 1905 | 108.0 |
| | HWPOR | House Wood Porch | 3 | * | 2018 | 12.0 |
| Improvement #2: | Residential Bldg | State Code: | 11 | 240.0 sqft | Value: | $69,016 |
| Bathrooms (#): | 1 (FULL) | Bedrooms (#): | 1 | | Exterior Wall: | PL/T1 | Floor Construction: | FRAME | | Foundation: | PO&BL | Heating/Cooling: | ELBB | | Roof Cover: | COMP |   |   |
|
| | Type | Description | Class CD | Sub Class CD | Year Built | Area |
| | MA | Main Area | 3 | 1S | 2008 | 240.0 |
| | HWPOR | House Wood Porch | 3 | * | 2008 | 128.0 |
| | HDECK | House Deck | 3 | * | 2018 | 144.0 |
| | ADDN | Addition (Table Not Dep) | 2 | * | 2018 | 48.0 |
| | SHED | Shed (Table Not Dep) | 3 | * | 2018 | 50.0 |
Sketch
Property Image
Land
| 1 | 6090-1176L | | 0.0000 | 0.00 | 0.00 | 0.00 | 1.00 | $172,000 | $0 |
Roll Value History
| 2025 | N/A | N/A | N/A | N/A | N/A |
| 2024 | $253,051 | $171,938 | $0 | $424,989 | $424,989 |
| 2023 | $231,964 | $158,750 | $0 | $390,714 | $390,714 |
| 2022 | $231,964 | $153,750 | $0 | $385,714 | $385,714 |
| 2021 | $191,864 | $140,938 | $0 | $332,802 | $332,802 |
Deed and Sales History
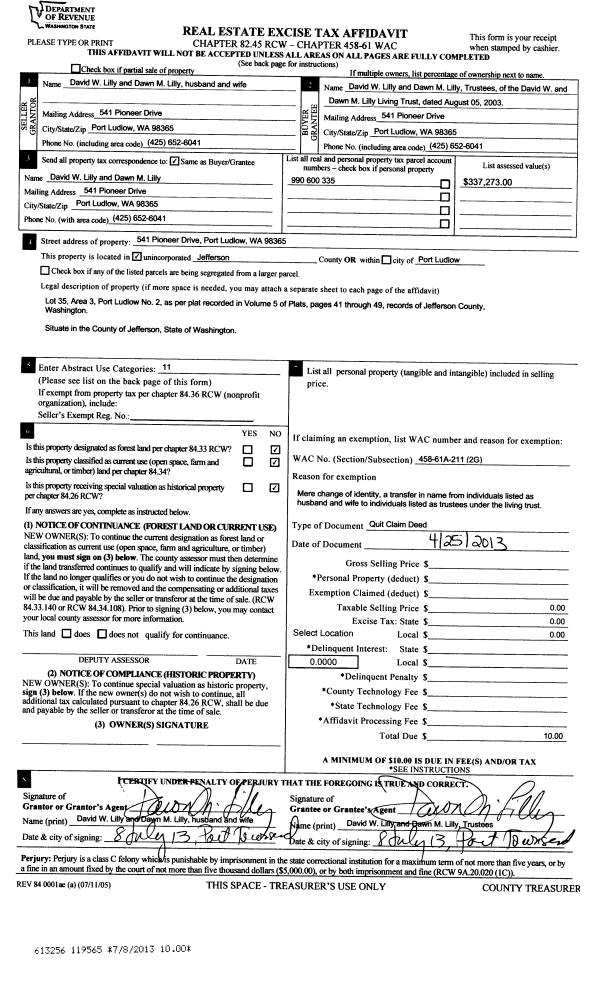
| 1 | 12/14/2021 | QCD | Quit Claim Deed | KIMBERLY FAIRBANKS | KIMBERLY FAIRBANKS & STEVEN C STRATTON | | | | 138216 | |
| 2 | 09/08/2014 | SWD | Statutory Warranty Deed | RICHARD M PRESTON | KIMBERLY FAIRBANKS | | | $180,000.00 | 121877 | |
| 3 | 09/08/2014 | SWD | Statutory Warranty Deed | KIMBERLY FAIRBANKS | | | | | 122083 | |
| 4 | 09/09/2014 | QCD | Quit Claim Deed | KIMBERLY FAIRBANKS | | | | | 121878 | |
| 5 | 08/18/2004 | TRED | Trustee Deed | PRESTON, RICHARD M | PRESTON, RICHARD M/ANN H TRUST | 0 | 0 | $0.00 | 102445 | 0 |
| 6 | 08/18/2004 | TRED | Trustee Deed | PRESTON, RICHARD M | HOLDER & PRESTON FAMILY TRUST | 0 | 0 | $0.00 | 101990 | 0 |
| 7 | 12/06/2002 | QCD | Quit Claim Deed | PRESTON, KATHRYN | PRESTON, RICHARD M | 0 | 0 | $0.00 | 96124 | 0 |
| 8 | 12/04/2002 | SWD | Statutory Warranty Deed | LITTLE, SHIRLEY M | PRESTON, RICHARD M | 0 | 0 | $161,000.00 | 96123 | 0 |
|   | |
| 9 | 06/25/1998 | QCD | Quit Claim Deed | MINISH, JOSEPH/TRUST | LITTLE, SHIRLEY MARIE | 0 | 0 | $0.00 | 84752 | 0 |
| 10 | 05/10/1995 | QCD | Quit Claim Deed | MINISH, JOSEPH | MINISH, JOSEPH/TRUST | 0 | 0 | $0.00 | 76967 | 0 |
| 11 | 01/27/1995 | QCD | Quit Claim Deed | MINISH, JOSEPH | MINISH, JOSEPH/TRUST | 0 | 0 | $0.00 | 76134 | 0 |
Payout Agreement
| No payout information available.. |