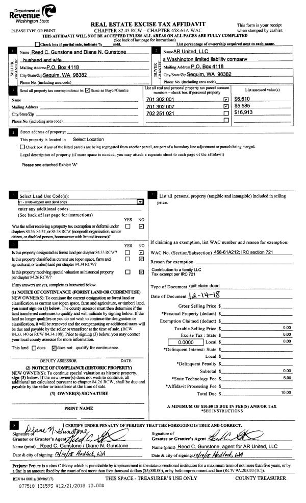
Property
Account |
| Property ID: | 10161 | Abbreviated Legal Description: | WAYSON'S SUBDIVISION SHORT PLAT LOT 1 SUBJ/EASE |
| Parcel # / Geo ID: | 001031016 | Agent Code: | |
| Type: | Real | | |
| Tax Area: | 0110 - C-50F1E1H2 | Land Use Code | 11 |
| Open Space: | N | DFL | N |
| Historic Property: | N | Remodel Property: | N |
| Multi-Family Redevelopment: | N | | |
| Township: | 30N | Section: | 3 |
| Range: | 1W |
Location |
| Address: | 3723 SAN JUAN AVE PORT TOWNSEND, WA 98368 | Mapsco: | 166/071 |
| Neighborhood: | LITTLEFIELD,MOORES,PT ECO,ROSEWIND,TIBBALS 2ND,WAYSONS+SP AC | Map ID: | |
| Neighborhood CD: | 6090 |
Owner |
| Name: | ERIK WENNSTROM | Owner ID: | 90090 |
| Mailing Address: | 3723 SAN JUAN AVE PORT TOWNSEND, WA 98368-3305 | % Ownership: | 100.0000000000% |
| | | Exemptions: | |
Pay Tax Due
Select the appropriate checkbox next to the year to be paid. Multiple years may be selected.
*Convenience Fee not included
Taxes and Assessment Details
Property Tax Information as of
10/23/2025
Click on "Statement Details" to expand or collapse a tax statement.
* Please enter a valid date ** Please enter a valid date *
Statement Details |
| 2025 | 150 | STATE - STATE LEVY (SCHOOL) | $1339.58 | $1339.56 | $0.00 | $65.72 | $1218.71 | $1526.15 |
| 2025 | 150 | COUNTY - COUNTY LEVIES (CE, DD, VET, MH) | $526.78 | $526.78 | $0.00 | $25.85 | $479.25 | $600.16 |
| 2025 | 150 | CONSERVE - CONSERVATION FUTURES | $15.80 | $15.79 | $0.00 | $0.77 | $14.37 | $17.99 |
| 2025 | 150 | CITYPT - CITY OF PT | $759.67 | $759.67 | $0.00 | $37.27 | $691.14 | $865.47 |
| 2025 | 150 | PORTPT - PORT DISTRICT | $214.96 | $214.95 | $0.00 | $10.54 | $195.56 | $244.89 |
| 2025 | 150 | PUD1 - PUD #1 | $34.47 | $34.47 | $0.00 | $1.69 | $31.36 | $39.27 |
| 2025 | 150 | HD2 - HOSP DIST #2 | $30.74 | $30.73 | $0.00 | $1.51 | $27.97 | $35.01 |
| 2025 | 150 | SD50 - SCHOOL DIST #50 | $979.01 | $978.99 | $0.00 | $48.04 | $890.68 | $1115.36 |
| 2025 | 150 | FD1 - FIRE DISTRICT #1 | $695.14 | $695.14 | $0.00 | $34.10 | $632.42 | $791.96 |
| 2025 | 150 | EMS1 - FIRE DIST #1 EMS | $267.37 | $267.37 | $0.00 | $13.12 | $243.25 | $304.61 |
| 2025 | 150 | FPLCA - DNR Landowner Contingency Assmt | $3.00 | $3.00 | $0.00 | $0.15 | $2.73 | $3.42 |
| 2025 | 150 | JCCD - JC Conservation District | $2.65 | $2.65 | $0.00 | $0.13 | $2.42 | $3.01 |
| 2025 | 150 | NWA - Noxious Weed Assessment | $2.45 | $2.45 | $0.00 | $0.12 | $2.23 | $2.79 |
| 2025 | 150 | TOTAL: | $4871.62 | $4871.55 | $0.00 | $239.01 | $4432.09 | $5550.09 |
|
| 2025 | 150 | $4871.62 | $4871.55 | $0.00 | $239.01 | $4432.09 | $5550.09 |
Statement Details |
| 2024 | 150 | STATE - STATE LEVY (SCHOOL) | $1204.19 | $1204.19 | $0.00 | $0.00 | $2408.38 | $0.00 |
| 2024 | 150 | COUNTY - COUNTY LEVIES (CE, DD, VET, MH) | $515.29 | $515.28 | $0.00 | $0.00 | $1030.57 | $0.00 |
| 2024 | 150 | CONSERVE - CONSERVATION FUTURES | $15.45 | $15.45 | $0.00 | $0.00 | $30.90 | $0.00 |
| 2024 | 150 | CITYPT - CITY OF PT | $736.28 | $736.26 | $0.00 | $0.00 | $1472.54 | $0.00 |
| 2024 | 150 | PORTPT - PORT DISTRICT | $212.84 | $212.83 | $0.00 | $0.00 | $425.67 | $0.00 |
| 2024 | 150 | PUD1 - PUD #1 | $33.85 | $33.84 | $0.00 | $0.00 | $67.69 | $0.00 |
| 2024 | 150 | HD2 - HOSP DIST #2 | $30.07 | $30.06 | $0.00 | $0.00 | $60.13 | $0.00 |
| 2024 | 150 | SD50 - SCHOOL DIST #50 | $974.25 | $974.24 | $0.00 | $0.00 | $1948.49 | $0.00 |
| 2024 | 150 | FD1 - FIRE DISTRICT #1 | $681.33 | $681.33 | $0.00 | $0.00 | $1362.66 | $0.00 |
| 2024 | 150 | EMS1 - FIRE DIST #1 EMS | $260.24 | $260.24 | $0.00 | $0.00 | $520.48 | $0.00 |
| 2024 | 150 | JCCD - JC Conservation District | $2.65 | $2.65 | $0.00 | $0.00 | $5.30 | $0.00 |
| 2024 | 150 | NWA - Noxious Weed Assessment | $2.45 | $2.45 | $0.00 | $0.00 | $4.90 | $0.00 |
| 2024 | 150 | TOTAL: | $4668.89 | $4668.82 | $0.00 | $0.00 | $9337.71 | $0.00 |
|
| 2024 | 150 | $4668.89 | $4668.82 | $0.00 | $0.00 | $9337.71 | $0.00 |
Statement Details |
| 2023 | 150 | STATE - STATE LEVY (SCHOOL) | $1209.79 | $1209.78 | $0.00 | $0.00 | $2419.57 | $0.00 |
| 2023 | 150 | COUNTY - COUNTY LEVIES (CE, DD, VET, MH) | $527.93 | $527.89 | $0.00 | $0.00 | $1055.82 | $0.00 |
| 2023 | 150 | CONSERVE - CONSERVATION FUTURES | $15.83 | $15.83 | $0.00 | $0.00 | $31.66 | $0.00 |
| 2023 | 150 | CITYPT - CITY OF PT | $746.13 | $746.11 | $0.00 | $0.00 | $1492.24 | $0.00 |
| 2023 | 150 | PORTPT - PORT DISTRICT | $222.39 | $222.38 | $0.00 | $0.00 | $444.77 | $0.00 |
| 2023 | 150 | PUD1 - PUD #1 | $35.00 | $34.99 | $0.00 | $0.00 | $69.99 | $0.00 |
| 2023 | 150 | HD2 - HOSP DIST #2 | $30.81 | $30.80 | $0.00 | $0.00 | $61.61 | $0.00 |
| 2023 | 150 | SD50 - SCHOOL DIST #50 | $960.00 | $959.98 | $0.00 | $0.00 | $1919.98 | $0.00 |
| 2023 | 150 | FD1 - FIRE DISTRICT #1 | $434.90 | $434.89 | $0.00 | $0.00 | $869.79 | $0.00 |
| 2023 | 150 | EMS1 - FIRE DIST #1 EMS | $185.00 | $184.99 | $0.00 | $0.00 | $369.99 | $0.00 |
| 2023 | 150 | JCCD - JC Conservation District | $2.65 | $2.65 | $0.00 | $0.00 | $5.30 | $0.00 |
| 2023 | 150 | NWA - Noxious Weed Assessment | $2.45 | $2.45 | $0.00 | $0.00 | $4.90 | $0.00 |
| 2023 | 150 | TOTAL: | $4372.88 | $4372.74 | $0.00 | $0.00 | $8745.62 | $0.00 |
|
| 2023 | 150 | $4372.88 | $4372.74 | $0.00 | $0.00 | $8745.62 | $0.00 |
Statement Details |
| 2022 | 150 | STATE - STATE LEVY (SCHOOL) | $1187.49 | $1187.47 | $0.00 | $0.00 | $2374.96 | $0.00 |
| 2022 | 150 | COUNTY - COUNTY LEVIES (CE, DD, VET, MH) | $529.08 | $529.08 | $0.00 | $0.00 | $1058.16 | $0.00 |
| 2022 | 150 | CONSERVE - CONSERVATION FUTURES | $15.87 | $15.86 | $0.00 | $0.00 | $31.73 | $0.00 |
| 2022 | 150 | CITYPT - CITY OF PT | $680.83 | $680.81 | $0.00 | $0.00 | $1361.64 | $0.00 |
| 2022 | 150 | PORTPT - PORT DISTRICT | $226.50 | $226.50 | $0.00 | $0.00 | $453.00 | $0.00 |
| 2022 | 150 | PUD1 - PUD #1 | $35.38 | $35.38 | $0.00 | $0.00 | $70.76 | $0.00 |
| 2022 | 150 | HD2 - HOSP DIST #2 | $30.89 | $30.88 | $0.00 | $0.00 | $61.77 | $0.00 |
| 2022 | 150 | SD50 - SCHOOL DIST #50 | $879.99 | $879.97 | $0.00 | $0.00 | $1759.96 | $0.00 |
| 2022 | 150 | FD1 - FIRE DISTRICT #1 | $434.05 | $434.04 | $0.00 | $0.00 | $868.09 | $0.00 |
| 2022 | 150 | EMS1 - FIRE DIST #1 EMS | $184.63 | $184.62 | $0.00 | $0.00 | $369.25 | $0.00 |
| 2022 | 150 | JCCD - JC Conservation District | $2.65 | $2.65 | $0.00 | $0.00 | $5.30 | $0.00 |
| 2022 | 150 | NWA - Noxious Weed Assessment | $2.45 | $2.45 | $0.00 | $0.00 | $4.90 | $0.00 |
| 2022 | 150 | TOTAL: | $4209.81 | $4209.71 | $0.00 | $0.00 | $8419.52 | $0.00 |
|
| 2022 | 150 | $4209.81 | $4209.71 | $0.00 | $0.00 | $8419.52 | $0.00 |
Values
| (+) Improvement Homesite Value: | + | $0 | |
| (+) Improvement Non-Homesite Value: | + | $886,439 | |
| (+) Land Homesite Value: | + | $0 | |
| (+) Land Non-Homesite Value: | + | $228,620 | |
| (+) Curr Use (HS): | + | $0 | $0 |
| (+) Curr Use (NHS): | + | $0 | $0 |
| | | -------------------------- | |
| (=) Market Value: | = | $1,115,059 | |
| (–) Productivity Loss: | – | $0 | |
| | | -------------------------- | |
| (=) Subtotal: | = | $1,115,059 | |
| (+) Senior Appraised Value: | + | $0 | |
| (+) Non-Senior Appraised Value: | + | $1,115,059 | |
| | | -------------------------- | |
| (=) Total Appraised Value: | = | $1,115,059 | |
| (–) Senior Exemption Loss: | – | $0 | |
| (–) Exemption Loss: | – | $0 | |
| | | -------------------------- | |
| (=) Taxable Value: | = | $1,115,059 | |
Taxing Jurisdiction
| Owner: | ERIK WENNSTROM | | |
| % Ownership: | 100.0000000000% | | |
| Total Value: | N/A | | |
| Tax Area: | 0110 - C-50F1E1H2 |
| CE | COUNTY CURRENT EXPENSE | N/A | N/A | N/A | N/A | | |
| CNTYDD | DEVELOPMENTAL DISABILITIES | N/A | N/A | N/A | N/A | | |
| CNTYVET | VETERANS RELIEF | N/A | N/A | N/A | N/A | | |
| MENTAL | MENTAL HEALTH | N/A | N/A | N/A | N/A | | |
| PTGEN | CITY OF PT GENERAL | N/A | N/A | N/A | N/A | | |
| PTLLL | CITY OF PT - LIBRARY LID LIFT | N/A | N/A | N/A | N/A | | |
| PTMVBOND | CITY OF PT MV BOND | N/A | N/A | N/A | N/A | | |
| HOSP2CASH | HOSP DIST #2 GENERAL | N/A | N/A | N/A | N/A | | |
| SCH50BOND | SCHOOL DIST #50 BOND 2016 | N/A | N/A | N/A | N/A | | |
| SCH50CP | SCHOOL DIST #50 CAP PROJ | N/A | N/A | N/A | N/A | | |
| SCH50MO | SCHOOL DIST #50 EP & O | N/A | N/A | N/A | N/A | | |
| CONSERVE | CONSERVATION FUTURES | N/A | N/A | N/A | N/A | | |
| EMS1 | FIRE DIST #1 EMS | N/A | N/A | N/A | N/A | | |
| FD1 | FIRE DIST #1 GENERAL | N/A | N/A | N/A | N/A | | |
| PORTPT | PORT OF PT GENERAL | N/A | N/A | N/A | N/A | | |
| PORTPTIDD | PORT OF PT IDD 2019 | N/A | N/A | N/A | N/A | | |
| PUD1 | PUD #1 GENERAL | N/A | N/A | N/A | N/A | | |
| STATE | STATE SCHOOL PART 1 | N/A | N/A | N/A | N/A | | |
| STATE2 | STATE SCHOOL PART 2 | N/A | N/A | N/A | N/A | | |
| | Total Tax Rate: | N/A | | | | | |
| | | | | Taxes w/Current Exemptions: | N/A | | |
| | | | | Taxes w/o Exemptions: | N/A | | |
Improvement / Building
| Improvement #1: | Residential Bldg | State Code: | 11 | 2657.0 sqft | Value: | $604,135 |
| Bathrooms (#): | 2 (FULL) | Bedrooms (#): | 2 | | Exterior Wall: | SI/ST | Fireplace: | DBL 2-GOOD | | Fireplace: | PROPS-GOOD | Floor Construction: | FRAME | | Foundation: | CONBL | Heating/Cooling: | F/A | | Roof Cover: | METAL |   |   |
|
| | Type | Description | Class CD | Sub Class CD | Year Built | Area |
| | MA | Main Area | 4+ | 15SF | 1882 | 1725.0 |
| | MA2 | Second Floor Main Area | 4+ | 15SF | 1882 | 932.0 |
| | HWPOR | House Wood Porch | 4 | * | 1882 | 242.5 |
| | HDECK | House Deck | 4 | * | 1882 | 323.5 |
| | CARPT | Carport (Table Not Dep) | 2 | * | 1882 | 792.0 |
| | SHED | Shed (Table Not Dep) | 3 | * | 1882 | 110.0 |
| | OTHER | Other | 3 | * | 1882 | 308.0 |
| | BSMTF | House basement finished | 4 | * | 1882 | 823.0 |
| | SHED | Shed (Table Not Dep) | 3 | * | 1882 | 96.0 |
| | SOLAR | Solar Panel | 4 | * | 1882 | 0.0 |
| Improvement #2: | Residential Bldg | State Code: | 11 | 1174.0 sqft | Value: | $187,054 |
| Bathrooms (#): | 1 (FULL) | Bedrooms (#): | 2 | | Exterior Wall: | SI/ST | Floor Construction: | FRAME | | Foundation: | CONPR | Heating/Cooling: | ELBB | | Roof Cover: | METAL |   |   |
|
| | Type | Description | Class CD | Sub Class CD | Year Built | Area |
| | MA | Main Area | 3- | 1S | 0 | 1174.0 |
| | GATT | House Attached Garage | 2 | 1S | 0 | 2330.0 |
| | HWPOR | House Wood Porch | 3 | * | 0 | 100.0 |
| | HCPOR | House Concrete Porch | 3 | * | 0 | 80.0 |
| Improvement #3: | Residential Bldg | State Code: | 11 | 396.0 sqft | Value: | $95,250 |
| Bathrooms (#): | 1 (FULL) | Bedrooms (#): | 1 | | Exterior Wall: | SI/ST | Floor Construction: | FRAME | | Foundation: | CONPR | Heating/Cooling: | ELBB | | Roof Cover: | METAL |   |   |
|
| | Type | Description | Class CD | Sub Class CD | Year Built | Area |
| | MA | Main Area | 3- | 15SF | 0 | 396.0 |
| | HBAL | House Balcony | 3 | * | 0 | 80.0 |
| | HRPO | House Roof Patio | 3 | * | 0 | 80.0 |
| | HLOFT | House Loft | 3 | * | 0 | 192.0 |
| | SHED | Shed (Table Not Dep) | 3 | * | 0 | 648.0 |
| | HRPO | House Roof Patio | 3 | * | 0 | 92.0 |
| | SHED | Shed (Table Not Dep) | 3 | * | 2012 | 189.0 |
| | HWPOR | House Wood Porch | 2 | * | 2012 | 56.0 |
Sketch
Property Image
Land
| 1 | 6090-1375S | | 1.0000 | 43560.00 | 0.00 | 0.00 | 1.00 | $200,000 | $0 |
| 2 | 1571A | | 1.0600 | 46173.60 | 0.00 | 0.00 | 0.00 | $28,620 | $0 |
Roll Value History
| 2025 | N/A | N/A | N/A | N/A | N/A |
| 2024 | $888,511 | $228,716 | $0 | $1,117,227 | $1,117,227 |
| 2023 | $814,469 | $226,500 | $0 | $1,040,969 | $1,040,969 |
| 2022 | $814,468 | $213,320 | $0 | $1,027,788 | $1,027,788 |
| 2021 | $673,671 | $194,920 | $0 | $868,591 | $868,591 |
Deed and Sales History
| 1 | 05/17/2024 | QCD | Quit Claim Deed | ELIZABETH U WENNSTROM | ERIK WENNSTROM | | | | 142676 | |
| 2 | 06/25/2013 | QCD | Quit Claim Deed | ELIZABETH CARLSON | ERIK WENNSTROM | | | | 119508 | |
| 3 | 11/25/2002 | SWD | Statutory Warranty Deed | STADER-HILL, FRANK C & JA | WENNSTROM, ERIK & ELIZABETH | 0 | 0 | $410,000.00 | 96056 | 0 |
| 4 | 08/21/2000 | SWD | Statutory Warranty Deed | LOUCHARD, O'NEILL DIANNE/ | STADER-HILL, FRANK C/JANE C | 0 | 0 | $360,000.00 | 90580 | 0 |
| 5 | 05/03/1995 | QCD | Quit Claim Deed | ROBERTS, DIANNE L/TRUST | LOUCHARD, O'NEILL D/TRUST | 0 | 0 | $0.00 | 77002 | 0 |
Payout Agreement
| No payout information available.. |