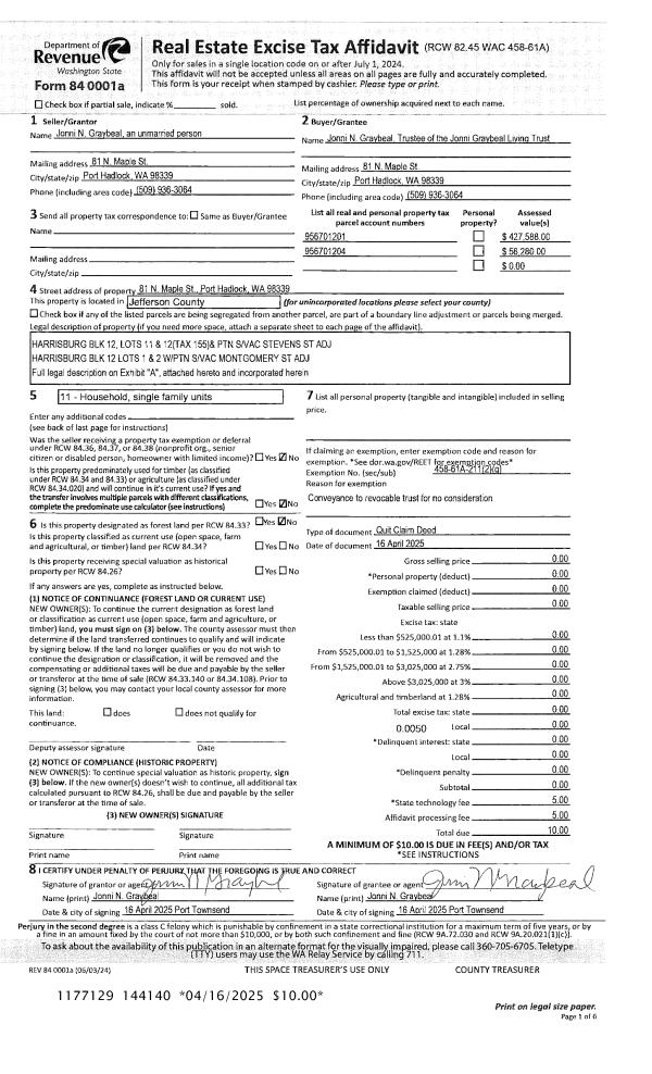
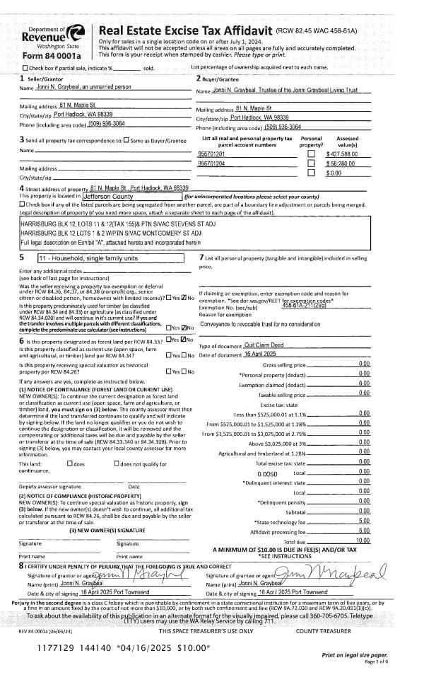
Property
Account |
| Property ID: | 10167 | Abbreviated Legal Description: | S3 T30 R1W TAX 44 |
| Parcel # / Geo ID: | 001033003 | Agent Code: | |
| Type: | Real | | |
| Tax Area: | 0110 - C-50F1E1H2 | Land Use Code | 11 |
| Open Space: | N | DFL | N |
| Historic Property: | N | Remodel Property: | N |
| Multi-Family Redevelopment: | N | | |
| Township: | 30N | Section: | 3 |
| Range: | 1W |
Location |
| Address: | 2710 THOMAS ST PORT TOWNSEND, WA 98368 | Mapsco: | 155/035 |
| Neighborhood: | LAUREL SHADE, HASTINGS HEIGHTS & ACREAGE PROXIMITY | Map ID: | |
| Neighborhood CD: | 6115 |
Owner |
| Name: | DANIEL R MOLOTSKY | Owner ID: | 22771 |
| Mailing Address: | KATHRYN MOLOTSKY 2710 THOMAS ST PORT TOWNSEND, WA 98368-6844 | % Ownership: | 100.0000000000% |
| | | Exemptions: | |
Pay Tax Due
Select the appropriate checkbox next to the year to be paid. Multiple years may be selected.
*Convenience Fee not included
Taxes and Assessment Details
Property Tax Information as of
10/23/2025
Click on "Statement Details" to expand or collapse a tax statement.
* Please enter a valid date ** Please enter a valid date *
Statement Details |
| 2025 | 155 | STATE - STATE LEVY (SCHOOL) | $553.55 | $553.55 | $0.00 | $0.00 | $553.55 | $553.55 |
| 2025 | 155 | COUNTY - COUNTY LEVIES (CE, DD, VET, MH) | $217.68 | $217.67 | $0.00 | $0.00 | $217.68 | $217.67 |
| 2025 | 155 | CONSERVE - CONSERVATION FUTURES | $6.53 | $6.52 | $0.00 | $0.00 | $6.53 | $6.52 |
| 2025 | 155 | CITYPT - CITY OF PT | $313.93 | $313.91 | $0.00 | $0.00 | $313.93 | $313.91 |
| 2025 | 155 | PORTPT - PORT DISTRICT | $88.83 | $88.83 | $0.00 | $0.00 | $88.83 | $88.83 |
| 2025 | 155 | PUD1 - PUD #1 | $14.25 | $14.24 | $0.00 | $0.00 | $14.25 | $14.24 |
| 2025 | 155 | HD2 - HOSP DIST #2 | $12.70 | $12.70 | $0.00 | $0.00 | $12.70 | $12.70 |
| 2025 | 155 | SD50 - SCHOOL DIST #50 | $404.56 | $404.55 | $0.00 | $0.00 | $404.56 | $404.55 |
| 2025 | 155 | FD1 - FIRE DISTRICT #1 | $287.26 | $287.25 | $0.00 | $0.00 | $287.26 | $287.25 |
| 2025 | 155 | EMS1 - FIRE DIST #1 EMS | $110.49 | $110.48 | $0.00 | $0.00 | $110.49 | $110.48 |
| 2025 | 155 | FP - DNR Forest Fire Protection Assmt | $8.50 | $8.50 | $0.00 | $0.00 | $8.50 | $8.50 |
| 2025 | 155 | FPLCA - DNR Landowner Contingency Assmt | $3.00 | $3.00 | $0.00 | $0.00 | $3.00 | $3.00 |
| 2025 | 155 | JCCD - JC Conservation District | $2.95 | $2.95 | $0.00 | $0.00 | $2.95 | $2.95 |
| 2025 | 155 | NWA - Noxious Weed Assessment | $3.35 | $3.35 | $0.00 | $0.00 | $3.35 | $3.35 |
| 2025 | 155 | FP ADMIN - FP ADMIN | $0.50 | $0.00 | $0.00 | $0.00 | $0.50 | $0.00 |
| 2025 | 155 | TOTAL: | $2028.08 | $2027.50 | $0.00 | $0.00 | $2028.08 | $2027.50 |
|
| 2025 | 155 | $2028.08 | $2027.50 | $0.00 | $0.00 | $2028.08 | $2027.50 |
Statement Details |
| 2024 | 155 | STATE - STATE LEVY (SCHOOL) | $522.77 | $522.77 | $0.00 | $0.00 | $1045.54 | $0.00 |
| 2024 | 155 | COUNTY - COUNTY LEVIES (CE, DD, VET, MH) | $223.72 | $223.69 | $0.00 | $0.00 | $447.41 | $0.00 |
| 2024 | 155 | CONSERVE - CONSERVATION FUTURES | $6.71 | $6.71 | $0.00 | $0.00 | $13.42 | $0.00 |
| 2024 | 155 | CITYPT - CITY OF PT | $319.64 | $319.63 | $0.00 | $0.00 | $639.27 | $0.00 |
| 2024 | 155 | PORTPT - PORT DISTRICT | $92.40 | $92.39 | $0.00 | $0.00 | $184.79 | $0.00 |
| 2024 | 155 | PUD1 - PUD #1 | $14.70 | $14.69 | $0.00 | $0.00 | $29.39 | $0.00 |
| 2024 | 155 | HD2 - HOSP DIST #2 | $13.05 | $13.05 | $0.00 | $0.00 | $26.10 | $0.00 |
| 2024 | 155 | SD50 - SCHOOL DIST #50 | $422.95 | $422.94 | $0.00 | $0.00 | $845.89 | $0.00 |
| 2024 | 155 | FD1 - FIRE DISTRICT #1 | $295.78 | $295.78 | $0.00 | $0.00 | $591.56 | $0.00 |
| 2024 | 155 | EMS1 - FIRE DIST #1 EMS | $112.98 | $112.98 | $0.00 | $0.00 | $225.96 | $0.00 |
| 2024 | 155 | JCCD - JC Conservation District | $2.95 | $2.95 | $0.00 | $0.00 | $5.90 | $0.00 |
| 2024 | 155 | NWA - Noxious Weed Assessment | $3.35 | $3.35 | $0.00 | $0.00 | $6.70 | $0.00 |
| 2024 | 155 | TOTAL: | $2031.00 | $2030.93 | $0.00 | $0.00 | $4061.93 | $0.00 |
|
| 2024 | 155 | $2031.00 | $2030.93 | $0.00 | $0.00 | $4061.93 | $0.00 |
Statement Details |
| 2023 | 155 | STATE - STATE LEVY (SCHOOL) | $480.25 | $480.25 | $0.00 | $0.00 | $960.50 | $0.00 |
| 2023 | 155 | COUNTY - COUNTY LEVIES (CE, DD, VET, MH) | $209.57 | $209.56 | $0.00 | $0.00 | $419.13 | $0.00 |
| 2023 | 155 | CONSERVE - CONSERVATION FUTURES | $6.29 | $6.28 | $0.00 | $0.00 | $12.57 | $0.00 |
| 2023 | 155 | CITYPT - CITY OF PT | $296.19 | $296.18 | $0.00 | $0.00 | $592.37 | $0.00 |
| 2023 | 155 | PORTPT - PORT DISTRICT | $88.29 | $88.27 | $0.00 | $0.00 | $176.56 | $0.00 |
| 2023 | 155 | PUD1 - PUD #1 | $13.89 | $13.89 | $0.00 | $0.00 | $27.78 | $0.00 |
| 2023 | 155 | HD2 - HOSP DIST #2 | $12.24 | $12.22 | $0.00 | $0.00 | $24.46 | $0.00 |
| 2023 | 155 | SD50 - SCHOOL DIST #50 | $381.10 | $381.07 | $0.00 | $0.00 | $762.17 | $0.00 |
| 2023 | 155 | FD1 - FIRE DISTRICT #1 | $172.64 | $172.64 | $0.00 | $0.00 | $345.28 | $0.00 |
| 2023 | 155 | EMS1 - FIRE DIST #1 EMS | $73.44 | $73.44 | $0.00 | $0.00 | $146.88 | $0.00 |
| 2023 | 155 | JCCD - JC Conservation District | $2.95 | $2.95 | $0.00 | $0.00 | $5.90 | $0.00 |
| 2023 | 155 | NWA - Noxious Weed Assessment | $3.35 | $3.35 | $0.00 | $0.00 | $6.70 | $0.00 |
| 2023 | 155 | TOTAL: | $1740.20 | $1740.10 | $0.00 | $0.00 | $3480.30 | $0.00 |
|
| 2023 | 155 | $1740.20 | $1740.10 | $0.00 | $0.00 | $3480.30 | $0.00 |
Statement Details |
| 2022 | 155 | STATE - STATE LEVY (SCHOOL) | $508.74 | $508.74 | $0.00 | $0.00 | $1017.48 | $0.00 |
| 2022 | 155 | COUNTY - COUNTY LEVIES (CE, DD, VET, MH) | $226.68 | $226.65 | $0.00 | $0.00 | $453.33 | $0.00 |
| 2022 | 155 | CONSERVE - CONSERVATION FUTURES | $6.80 | $6.79 | $0.00 | $0.00 | $13.59 | $0.00 |
| 2022 | 155 | CITYPT - CITY OF PT | $291.68 | $291.67 | $0.00 | $0.00 | $583.35 | $0.00 |
| 2022 | 155 | PORTPT - PORT DISTRICT | $97.04 | $97.04 | $0.00 | $0.00 | $194.08 | $0.00 |
| 2022 | 155 | PUD1 - PUD #1 | $15.16 | $15.16 | $0.00 | $0.00 | $30.32 | $0.00 |
| 2022 | 155 | HD2 - HOSP DIST #2 | $13.23 | $13.23 | $0.00 | $0.00 | $26.46 | $0.00 |
| 2022 | 155 | SD50 - SCHOOL DIST #50 | $377.01 | $377.00 | $0.00 | $0.00 | $754.01 | $0.00 |
| 2022 | 155 | FD1 - FIRE DISTRICT #1 | $185.96 | $185.95 | $0.00 | $0.00 | $371.91 | $0.00 |
| 2022 | 155 | EMS1 - FIRE DIST #1 EMS | $79.10 | $79.09 | $0.00 | $0.00 | $158.19 | $0.00 |
| 2022 | 155 | JCCD - JC Conservation District | $2.95 | $2.95 | $0.00 | $0.00 | $5.90 | $0.00 |
| 2022 | 155 | NWA - Noxious Weed Assessment | $3.35 | $3.35 | $0.00 | $0.00 | $6.70 | $0.00 |
| 2022 | 155 | TOTAL: | $1807.70 | $1807.62 | $0.00 | $0.00 | $3615.32 | $0.00 |
|
| 2022 | 155 | $1807.70 | $1807.62 | $0.00 | $0.00 | $3615.32 | $0.00 |
Values
| (+) Improvement Homesite Value: | + | $0 | |
| (+) Improvement Non-Homesite Value: | + | $242,543 | |
| (+) Land Homesite Value: | + | $0 | |
| (+) Land Non-Homesite Value: | + | $215,110 | |
| (+) Curr Use (HS): | + | $0 | $0 |
| (+) Curr Use (NHS): | + | $0 | $0 |
| | | -------------------------- | |
| (=) Market Value: | = | $457,653 | |
| (–) Productivity Loss: | – | $0 | |
| | | -------------------------- | |
| (=) Subtotal: | = | $457,653 | |
| (+) Senior Appraised Value: | + | $0 | |
| (+) Non-Senior Appraised Value: | + | $457,653 | |
| | | -------------------------- | |
| (=) Total Appraised Value: | = | $457,653 | |
| (–) Senior Exemption Loss: | – | $0 | |
| (–) Exemption Loss: | – | $0 | |
| | | -------------------------- | |
| (=) Taxable Value: | = | $457,653 | |
Taxing Jurisdiction
| Owner: | DANIEL R MOLOTSKY | | |
| % Ownership: | 100.0000000000% | | |
| Total Value: | N/A | | |
| Tax Area: | 0110 - C-50F1E1H2 |
| CE | COUNTY CURRENT EXPENSE | N/A | N/A | N/A | N/A | | |
| CNTYDD | DEVELOPMENTAL DISABILITIES | N/A | N/A | N/A | N/A | | |
| CNTYVET | VETERANS RELIEF | N/A | N/A | N/A | N/A | | |
| MENTAL | MENTAL HEALTH | N/A | N/A | N/A | N/A | | |
| PTGEN | CITY OF PT GENERAL | N/A | N/A | N/A | N/A | | |
| PTLLL | CITY OF PT - LIBRARY LID LIFT | N/A | N/A | N/A | N/A | | |
| PTMVBOND | CITY OF PT MV BOND | N/A | N/A | N/A | N/A | | |
| HOSP2CASH | HOSP DIST #2 GENERAL | N/A | N/A | N/A | N/A | | |
| SCH50BOND | SCHOOL DIST #50 BOND 2016 | N/A | N/A | N/A | N/A | | |
| SCH50CP | SCHOOL DIST #50 CAP PROJ | N/A | N/A | N/A | N/A | | |
| SCH50MO | SCHOOL DIST #50 EP & O | N/A | N/A | N/A | N/A | | |
| CONSERVE | CONSERVATION FUTURES | N/A | N/A | N/A | N/A | | |
| EMS1 | FIRE DIST #1 EMS | N/A | N/A | N/A | N/A | | |
| FD1 | FIRE DIST #1 GENERAL | N/A | N/A | N/A | N/A | | |
| PORTPT | PORT OF PT GENERAL | N/A | N/A | N/A | N/A | | |
| PORTPTIDD | PORT OF PT IDD 2019 | N/A | N/A | N/A | N/A | | |
| PUD1 | PUD #1 GENERAL | N/A | N/A | N/A | N/A | | |
| STATE | STATE SCHOOL PART 1 | N/A | N/A | N/A | N/A | | |
| STATE2 | STATE SCHOOL PART 2 | N/A | N/A | N/A | N/A | | |
| | Total Tax Rate: | N/A | | | | | |
| | | | | Taxes w/Current Exemptions: | N/A | | |
| | | | | Taxes w/o Exemptions: | N/A | | |
Improvement / Building
| Improvement #1: | Residential Bldg | State Code: | 11 | 1160.0 sqft | Value: | $242,543 |
| Bathrooms (#): | 1 (FULL) | Bedrooms (#): | 3 | | Exterior Wall: | SI/ST | Fireplace: | WD ST-GOOD | | Floor Construction: | FRAME | Foundation: | CONPR | | Heating/Cooling: | WD/NO | Roof Cover: | COMP |
|
| | Type | Description | Class CD | Sub Class CD | Year Built | Area |
| | MA | Main Area | 3 | 1S | 1925 | 1160.0 |
| | ADDN | Addition (Table Not Dep) | 4 | * | 2010 | 352.0 |
| | PATIO | House Patio | 3 | * | 1925 | 789.8 |
Sketch
Property Image
Land
| 1 | 6115-1375S | | 1.0000 | 43560.00 | 0.00 | 0.00 | 1.00 | $133,500 | $0 |
| 2 | 1676A | | 7.4700 | 325393.20 | 0.00 | 0.00 | 0.00 | $81,610 | $0 |
Roll Value History
| 2025 | N/A | N/A | N/A | N/A | N/A |
| 2024 | $246,353 | $215,319 | $0 | $461,672 | $461,672 |
| 2023 | $246,353 | $205,558 | $0 | $451,911 | $451,911 |
| 2022 | $225,823 | $182,179 | $0 | $408,002 | $408,002 |
| 2021 | $193,011 | $179,111 | $0 | $372,122 | $372,122 |
Deed and Sales History
| 1 | 11/20/2002 | QCD | Quit Claim Deed | MOLOTSKY, DANIEL R | MOLOTSKY, DANIEL R & KATHRYN | 0 | 0 | $0.00 | 96000 | 0 |
| 2 | 01/18/2000 | SWD | Statutory Warranty Deed | HARPER, CHESTER Z/HATTIE | HARPER, CHESTER Z/TRUST | 0 | 0 | $0.00 | 89095 | 0 |
| 3 | 03/30/1998 | SWD | Statutory Warranty Deed | HARPER, CHESTER Z/HATTIE | MOLOTSKY, DANIEL R | 0 | 0 | $136,000.00 | 84131 | 0 |
Payout Agreement
| No payout information available.. |