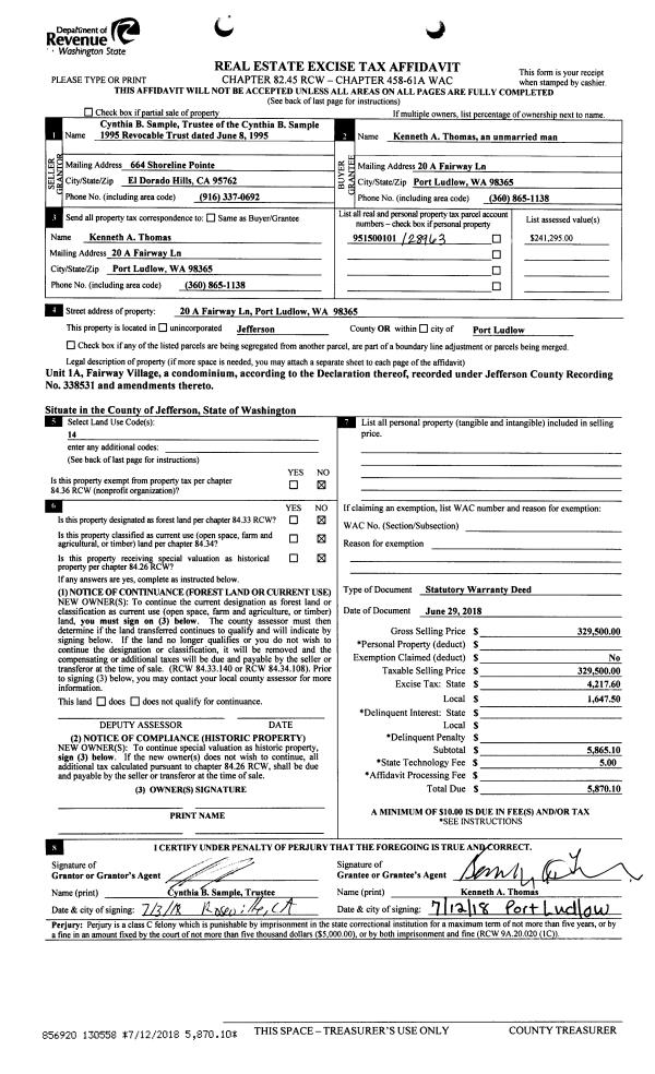
Property
Account |
| Property ID: | 10206 | Abbreviated Legal Description: | S3 T30 R1W TAX 63(LS TAX 83) |
| Parcel # / Geo ID: | 001034036 | Agent Code: | |
| Type: | Real | | |
| Tax Area: | 0110 - C-50F1E1H2 | Land Use Code | 11 |
| Open Space: | N | DFL | N |
| Historic Property: | N | Remodel Property: | N |
| Multi-Family Redevelopment: | N | | |
| Township: | 30N | Section: | 3 |
| Range: | 1W |
Location |
| Address: | 214 24TH ST PORT TOWNSEND, WA 98368 | Mapsco: | 155/053 |
| Neighborhood: | ELLIS AND PEDERSEN ADD | Map ID: | |
| Neighborhood CD: | 6125 |
Owner |
| Name: | CLAUDIA L NEVA | Owner ID: | 23447 |
| Mailing Address: | 214 24TH ST PORT TOWNSEND, WA 98368-6203 | % Ownership: | 100.0000000000% |
| | | Exemptions: | |
Pay Tax Due
Select the appropriate checkbox next to the year to be paid. Multiple years may be selected.
*Convenience Fee not included
Taxes and Assessment Details
Property Tax Information as of
10/23/2025
Click on "Statement Details" to expand or collapse a tax statement.
* Please enter a valid date ** Please enter a valid date *
Statement Details |
| 2025 | 192 | STATE - STATE LEVY (SCHOOL) | $302.22 | $302.20 | $0.00 | $0.00 | $302.22 | $302.20 |
| 2025 | 192 | COUNTY - COUNTY LEVIES (CE, DD, VET, MH) | $118.84 | $118.83 | $0.00 | $0.00 | $118.84 | $118.83 |
| 2025 | 192 | CONSERVE - CONSERVATION FUTURES | $3.57 | $3.56 | $0.00 | $0.00 | $3.57 | $3.56 |
| 2025 | 192 | CITYPT - CITY OF PT | $171.39 | $171.38 | $0.00 | $0.00 | $171.39 | $171.38 |
| 2025 | 192 | PORTPT - PORT DISTRICT | $48.50 | $48.49 | $0.00 | $0.00 | $48.50 | $48.49 |
| 2025 | 192 | PUD1 - PUD #1 | $7.78 | $7.77 | $0.00 | $0.00 | $7.78 | $7.77 |
| 2025 | 192 | HD2 - HOSP DIST #2 | $6.94 | $6.93 | $0.00 | $0.00 | $6.94 | $6.93 |
| 2025 | 192 | SD50 - SCHOOL DIST #50 | $220.87 | $220.86 | $0.00 | $0.00 | $220.87 | $220.86 |
| 2025 | 192 | FD1 - FIRE DISTRICT #1 | $156.83 | $156.82 | $0.00 | $0.00 | $156.83 | $156.82 |
| 2025 | 192 | EMS1 - FIRE DIST #1 EMS | $60.32 | $60.32 | $0.00 | $0.00 | $60.32 | $60.32 |
| 2025 | 192 | JCCD - JC Conservation District | $2.55 | $2.55 | $0.00 | $0.00 | $2.55 | $2.55 |
| 2025 | 192 | NWA - Noxious Weed Assessment | $2.15 | $2.15 | $0.00 | $0.00 | $2.15 | $2.15 |
| 2025 | 192 | TOTAL: | $1101.96 | $1101.86 | $0.00 | $0.00 | $1101.96 | $1101.86 |
|
| 2025 | 192 | $1101.96 | $1101.86 | $0.00 | $0.00 | $1101.96 | $1101.86 |
Statement Details |
| 2024 | 192 | STATE - STATE LEVY (SCHOOL) | $272.64 | $272.64 | $0.00 | $0.00 | $545.28 | $0.00 |
| 2024 | 192 | COUNTY - COUNTY LEVIES (CE, DD, VET, MH) | $116.67 | $116.66 | $0.00 | $0.00 | $233.33 | $0.00 |
| 2024 | 192 | CONSERVE - CONSERVATION FUTURES | $3.50 | $3.50 | $0.00 | $0.00 | $7.00 | $0.00 |
| 2024 | 192 | CITYPT - CITY OF PT | $166.70 | $166.69 | $0.00 | $0.00 | $333.39 | $0.00 |
| 2024 | 192 | PORTPT - PORT DISTRICT | $48.19 | $48.18 | $0.00 | $0.00 | $96.37 | $0.00 |
| 2024 | 192 | PUD1 - PUD #1 | $7.67 | $7.66 | $0.00 | $0.00 | $15.33 | $0.00 |
| 2024 | 192 | HD2 - HOSP DIST #2 | $6.81 | $6.80 | $0.00 | $0.00 | $13.61 | $0.00 |
| 2024 | 192 | SD50 - SCHOOL DIST #50 | $220.58 | $220.57 | $0.00 | $0.00 | $441.15 | $0.00 |
| 2024 | 192 | FD1 - FIRE DISTRICT #1 | $154.26 | $154.25 | $0.00 | $0.00 | $308.51 | $0.00 |
| 2024 | 192 | EMS1 - FIRE DIST #1 EMS | $58.92 | $58.92 | $0.00 | $0.00 | $117.84 | $0.00 |
| 2024 | 192 | JCCD - JC Conservation District | $2.55 | $2.55 | $0.00 | $0.00 | $5.10 | $0.00 |
| 2024 | 192 | NWA - Noxious Weed Assessment | $2.15 | $2.15 | $0.00 | $0.00 | $4.30 | $0.00 |
| 2024 | 192 | TOTAL: | $1060.64 | $1060.57 | $0.00 | $0.00 | $2121.21 | $0.00 |
|
| 2024 | 192 | $1060.64 | $1060.57 | $0.00 | $0.00 | $2121.21 | $0.00 |
Statement Details |
| 2023 | 192 | STATE - STATE LEVY (SCHOOL) | $271.54 | $271.52 | $0.00 | $0.00 | $543.06 | $0.00 |
| 2023 | 192 | COUNTY - COUNTY LEVIES (CE, DD, VET, MH) | $118.50 | $118.48 | $0.00 | $0.00 | $236.98 | $0.00 |
| 2023 | 192 | CONSERVE - CONSERVATION FUTURES | $3.56 | $3.55 | $0.00 | $0.00 | $7.11 | $0.00 |
| 2023 | 192 | CITYPT - CITY OF PT | $167.47 | $167.46 | $0.00 | $0.00 | $334.93 | $0.00 |
| 2023 | 192 | PORTPT - PORT DISTRICT | $49.92 | $49.91 | $0.00 | $0.00 | $99.83 | $0.00 |
| 2023 | 192 | PUD1 - PUD #1 | $7.86 | $7.85 | $0.00 | $0.00 | $15.71 | $0.00 |
| 2023 | 192 | HD2 - HOSP DIST #2 | $6.92 | $6.90 | $0.00 | $0.00 | $13.82 | $0.00 |
| 2023 | 192 | SD50 - SCHOOL DIST #50 | $215.47 | $215.46 | $0.00 | $0.00 | $430.93 | $0.00 |
| 2023 | 192 | FD1 - FIRE DISTRICT #1 | $97.61 | $97.61 | $0.00 | $0.00 | $195.22 | $0.00 |
| 2023 | 192 | EMS1 - FIRE DIST #1 EMS | $41.52 | $41.52 | $0.00 | $0.00 | $83.04 | $0.00 |
| 2023 | 192 | JCCD - JC Conservation District | $2.55 | $2.55 | $0.00 | $0.00 | $5.10 | $0.00 |
| 2023 | 192 | NWA - Noxious Weed Assessment | $2.15 | $2.15 | $0.00 | $0.00 | $4.30 | $0.00 |
| 2023 | 192 | TOTAL: | $985.07 | $984.96 | $0.00 | $0.00 | $1970.03 | $0.00 |
|
| 2023 | 192 | $985.07 | $984.96 | $0.00 | $0.00 | $1970.03 | $0.00 |
Statement Details |
| 2022 | 192 | STATE - STATE LEVY (SCHOOL) | $266.93 | $266.92 | $0.00 | $0.00 | $533.85 | $0.00 |
| 2022 | 192 | COUNTY - COUNTY LEVIES (CE, DD, VET, MH) | $118.95 | $118.91 | $0.00 | $0.00 | $237.86 | $0.00 |
| 2022 | 192 | CONSERVE - CONSERVATION FUTURES | $3.57 | $3.56 | $0.00 | $0.00 | $7.13 | $0.00 |
| 2022 | 192 | CITYPT - CITY OF PT | $153.05 | $153.02 | $0.00 | $0.00 | $306.07 | $0.00 |
| 2022 | 192 | PORTPT - PORT DISTRICT | $50.92 | $50.91 | $0.00 | $0.00 | $101.83 | $0.00 |
| 2022 | 192 | PUD1 - PUD #1 | $7.96 | $7.95 | $0.00 | $0.00 | $15.91 | $0.00 |
| 2022 | 192 | HD2 - HOSP DIST #2 | $6.95 | $6.94 | $0.00 | $0.00 | $13.89 | $0.00 |
| 2022 | 192 | SD50 - SCHOOL DIST #50 | $197.81 | $197.80 | $0.00 | $0.00 | $395.61 | $0.00 |
| 2022 | 192 | FD1 - FIRE DISTRICT #1 | $97.57 | $97.56 | $0.00 | $0.00 | $195.13 | $0.00 |
| 2022 | 192 | EMS1 - FIRE DIST #1 EMS | $41.50 | $41.50 | $0.00 | $0.00 | $83.00 | $0.00 |
| 2022 | 192 | JCCD - JC Conservation District | $2.55 | $2.55 | $0.00 | $0.00 | $5.10 | $0.00 |
| 2022 | 192 | NWA - Noxious Weed Assessment | $2.15 | $2.15 | $0.00 | $0.00 | $4.30 | $0.00 |
| 2022 | 192 | TOTAL: | $949.91 | $949.77 | $0.00 | $0.00 | $1899.68 | $0.00 |
|
| 2022 | 192 | $949.91 | $949.77 | $0.00 | $0.00 | $1899.68 | $0.00 |
Values
| (+) Improvement Homesite Value: | + | $0 | |
| (+) Improvement Non-Homesite Value: | + | $192,870 | |
| (+) Land Homesite Value: | + | $0 | |
| (+) Land Non-Homesite Value: | + | $125,000 | |
| (+) Curr Use (HS): | + | $0 | $0 |
| (+) Curr Use (NHS): | + | $0 | $0 |
| | | -------------------------- | |
| (=) Market Value: | = | $317,870 | |
| (–) Productivity Loss: | – | $0 | |
| | | -------------------------- | |
| (=) Subtotal: | = | $317,870 | |
| (+) Senior Appraised Value: | + | $0 | |
| (+) Non-Senior Appraised Value: | + | $317,870 | |
| | | -------------------------- | |
| (=) Total Appraised Value: | = | $317,870 | |
| (–) Senior Exemption Loss: | – | $0 | |
| (–) Exemption Loss: | – | $0 | |
| | | -------------------------- | |
| (=) Taxable Value: | = | $317,870 | |
Taxing Jurisdiction
| Owner: | CLAUDIA L NEVA | | |
| % Ownership: | 100.0000000000% | | |
| Total Value: | N/A | | |
| Tax Area: | 0110 - C-50F1E1H2 |
| CE | COUNTY CURRENT EXPENSE | N/A | N/A | N/A | N/A | | |
| CNTYDD | DEVELOPMENTAL DISABILITIES | N/A | N/A | N/A | N/A | | |
| CNTYVET | VETERANS RELIEF | N/A | N/A | N/A | N/A | | |
| MENTAL | MENTAL HEALTH | N/A | N/A | N/A | N/A | | |
| PTGEN | CITY OF PT GENERAL | N/A | N/A | N/A | N/A | | |
| PTLLL | CITY OF PT - LIBRARY LID LIFT | N/A | N/A | N/A | N/A | | |
| PTMVBOND | CITY OF PT MV BOND | N/A | N/A | N/A | N/A | | |
| HOSP2CASH | HOSP DIST #2 GENERAL | N/A | N/A | N/A | N/A | | |
| SCH50BOND | SCHOOL DIST #50 BOND 2016 | N/A | N/A | N/A | N/A | | |
| SCH50CP | SCHOOL DIST #50 CAP PROJ | N/A | N/A | N/A | N/A | | |
| SCH50MO | SCHOOL DIST #50 EP & O | N/A | N/A | N/A | N/A | | |
| CONSERVE | CONSERVATION FUTURES | N/A | N/A | N/A | N/A | | |
| EMS1 | FIRE DIST #1 EMS | N/A | N/A | N/A | N/A | | |
| FD1 | FIRE DIST #1 GENERAL | N/A | N/A | N/A | N/A | | |
| PORTPT | PORT OF PT GENERAL | N/A | N/A | N/A | N/A | | |
| PORTPTIDD | PORT OF PT IDD 2019 | N/A | N/A | N/A | N/A | | |
| PUD1 | PUD #1 GENERAL | N/A | N/A | N/A | N/A | | |
| STATE | STATE SCHOOL PART 1 | N/A | N/A | N/A | N/A | | |
| STATE2 | STATE SCHOOL PART 2 | N/A | N/A | N/A | N/A | | |
| | Total Tax Rate: | N/A | | | | | |
| | | | | Taxes w/Current Exemptions: | N/A | | |
| | | | | Taxes w/o Exemptions: | N/A | | |
Improvement / Building
| Improvement #1: | Residential Bldg | State Code: | 11 | 918.0 sqft | Value: | $192,870 |
| Bathrooms (#): | 1 (FULL) | Bedrooms (#): | 1 | | Exterior Wall: | SI/ST | Floor Construction: | CONCR | | Foundation: | CONPR | Heating/Cooling: | OTHER | | Inside Verify: | YES-FIX | Roof Cover: | COMP |
|
| | Type | Description | Class CD | Sub Class CD | Year Built | Area |
| | MA | Main Area | 4- | 1S | 1920 | 918.0 |
| | SHED | Shed (Table Not Dep) | 4 | 1S | 1920 | 144.0 |
| | SHED | Shed (Table Not Dep) | 3 | 1S | 1920 | 180.0 |
Sketch
Property Image
Land
| 1 | 6125-1275S | | 0.0000 | 0.00 | 0.00 | 0.00 | 1.00 | $125,000 | $0 |
Roll Value History
| 2025 | N/A | N/A | N/A | N/A | N/A |
| 2024 | $153,349 | $98,700 | $0 | $252,049 | $252,049 |
| 2023 | $146,682 | $89,000 | $0 | $235,682 | $235,682 |
| 2022 | $146,682 | $84,000 | $0 | $230,682 | $230,682 |
| 2021 | $120,034 | $75,210 | $0 | $195,244 | $195,244 |
Deed and Sales History
| 1 | 07/07/1999 | SWD | Statutory Warranty Deed | EICHHORN, DENNIS P | NEVA, CLAUDIA L | 0 | 0 | $85,500.00 | 87330 | 0 |
| 2 | 07/07/1999 | QCD | Quit Claim Deed | CADY, DONALD | NEVA, CLAUDIA L | 0 | 0 | $0.00 | 87331 | 0 |
| 3 | 11/20/1995 | REC | Real Estate Contract | REGAN, MICHAEL P | EICHHORN, DENNIS P | 0 | 0 | $65,000.00 | 78275 | 0 |
Payout Agreement
| No payout information available.. |