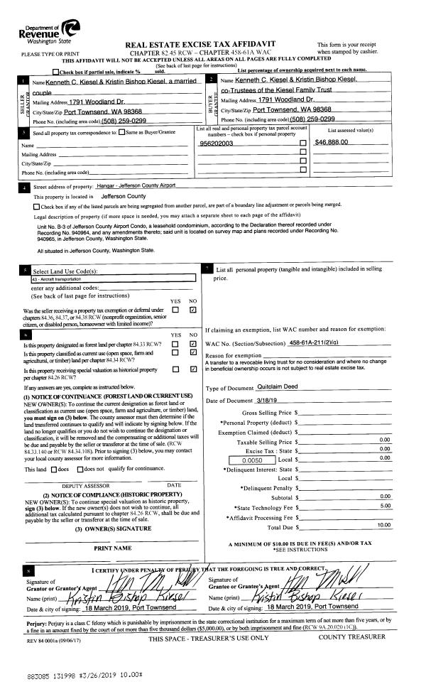
Property
Account |
| Property ID: | 10207 | Abbreviated Legal Description: | RUTH SHORT SHORT PLAT LOT 1 |
| Parcel # / Geo ID: | 001034038 | Agent Code: | |
| Type: | Real | | |
| Tax Area: | 0110 - C-50F1E1H2 | Land Use Code | 11 |
| Open Space: | N | DFL | N |
| Historic Property: | N | Remodel Property: | N |
| Multi-Family Redevelopment: | N | | |
| Township: | 30N | Section: | 3 |
| Range: | 1W |
Location |
| Address: | 373 DISCOVERY RD PORT TOWNSEND, WA 98368 | Mapsco: | 165/070 |
| Neighborhood: | ELLIS AND PEDERSEN ADD | Map ID: | |
| Neighborhood CD: | 6125 |
Owner |
| Name: | HUGGING TREE LEGACY | Owner ID: | 112340 |
| Mailing Address: | 3229 STATE ROUTE 20 PORT TOWNSEND, WA 98368-9825 | % Ownership: | 100.0000000000% |
| | | Exemptions: | |
Pay Tax Due
Select the appropriate checkbox next to the year to be paid. Multiple years may be selected.
*Convenience Fee not included
Taxes and Assessment Details
Property Tax Information as of
10/23/2025
Click on "Statement Details" to expand or collapse a tax statement.
* Please enter a valid date ** Please enter a valid date *
Statement Details |
| 2025 | 193 | STATE - STATE LEVY (SCHOOL) | $634.60 | $634.59 | $0.00 | $0.00 | $634.60 | $634.59 |
| 2025 | 193 | COUNTY - COUNTY LEVIES (CE, DD, VET, MH) | $249.55 | $249.54 | $0.00 | $0.00 | $249.55 | $249.54 |
| 2025 | 193 | CONSERVE - CONSERVATION FUTURES | $7.49 | $7.48 | $0.00 | $0.00 | $7.49 | $7.48 |
| 2025 | 193 | CITYPT - CITY OF PT | $359.88 | $359.88 | $0.00 | $0.00 | $359.88 | $359.88 |
| 2025 | 193 | PORTPT - PORT DISTRICT | $101.84 | $101.82 | $0.00 | $0.00 | $101.84 | $101.82 |
| 2025 | 193 | PUD1 - PUD #1 | $16.33 | $16.33 | $0.00 | $0.00 | $16.33 | $16.33 |
| 2025 | 193 | HD2 - HOSP DIST #2 | $14.56 | $14.56 | $0.00 | $0.00 | $14.56 | $14.56 |
| 2025 | 193 | SD50 - SCHOOL DIST #50 | $463.80 | $463.77 | $0.00 | $0.00 | $463.80 | $463.77 |
| 2025 | 193 | FD1 - FIRE DISTRICT #1 | $329.31 | $329.31 | $0.00 | $0.00 | $329.31 | $329.31 |
| 2025 | 193 | EMS1 - FIRE DIST #1 EMS | $126.66 | $126.66 | $0.00 | $0.00 | $126.66 | $126.66 |
| 2025 | 193 | JCCD - JC Conservation District | $2.55 | $2.55 | $0.00 | $0.00 | $2.55 | $2.55 |
| 2025 | 193 | NWA - Noxious Weed Assessment | $2.15 | $2.15 | $0.00 | $0.00 | $2.15 | $2.15 |
| 2025 | 193 | TOTAL: | $2308.72 | $2308.64 | $0.00 | $0.00 | $2308.72 | $2308.64 |
|
| 2025 | 193 | $2308.72 | $2308.64 | $0.00 | $0.00 | $2308.72 | $2308.64 |
Statement Details |
| 2024 | 193 | STATE - STATE LEVY (SCHOOL) | $579.30 | $579.29 | $0.00 | $0.00 | $1158.59 | $0.00 |
| 2024 | 193 | COUNTY - COUNTY LEVIES (CE, DD, VET, MH) | $247.89 | $247.88 | $0.00 | $0.00 | $495.77 | $0.00 |
| 2024 | 193 | CONSERVE - CONSERVATION FUTURES | $7.44 | $7.43 | $0.00 | $0.00 | $14.87 | $0.00 |
| 2024 | 193 | CITYPT - CITY OF PT | $354.19 | $354.19 | $0.00 | $0.00 | $708.38 | $0.00 |
| 2024 | 193 | PORTPT - PORT DISTRICT | $102.39 | $102.39 | $0.00 | $0.00 | $204.78 | $0.00 |
| 2024 | 193 | PUD1 - PUD #1 | $16.28 | $16.28 | $0.00 | $0.00 | $32.56 | $0.00 |
| 2024 | 193 | HD2 - HOSP DIST #2 | $14.47 | $14.46 | $0.00 | $0.00 | $28.93 | $0.00 |
| 2024 | 193 | SD50 - SCHOOL DIST #50 | $468.69 | $468.66 | $0.00 | $0.00 | $937.35 | $0.00 |
| 2024 | 193 | FD1 - FIRE DISTRICT #1 | $327.77 | $327.76 | $0.00 | $0.00 | $655.53 | $0.00 |
| 2024 | 193 | EMS1 - FIRE DIST #1 EMS | $125.20 | $125.19 | $0.00 | $0.00 | $250.39 | $0.00 |
| 2024 | 193 | JCCD - JC Conservation District | $2.55 | $2.55 | $0.00 | $0.00 | $5.10 | $0.00 |
| 2024 | 193 | NWA - Noxious Weed Assessment | $2.15 | $2.15 | $0.00 | $0.00 | $4.30 | $0.00 |
| 2024 | 193 | TOTAL: | $2248.32 | $2248.23 | $0.00 | $0.00 | $4496.55 | $0.00 |
|
| 2024 | 193 | $2248.32 | $2248.23 | $0.00 | $0.00 | $4496.55 | $0.00 |
Statement Details |
| 2023 | 193 | STATE - STATE LEVY (SCHOOL) | $492.77 | $492.76 | $0.00 | $0.00 | $985.53 | $0.00 |
| 2023 | 193 | COUNTY - COUNTY LEVIES (CE, DD, VET, MH) | $215.03 | $215.02 | $0.00 | $0.00 | $430.05 | $0.00 |
| 2023 | 193 | CONSERVE - CONSERVATION FUTURES | $6.45 | $6.45 | $0.00 | $0.00 | $12.90 | $0.00 |
| 2023 | 193 | CITYPT - CITY OF PT | $303.91 | $303.90 | $0.00 | $0.00 | $607.81 | $0.00 |
| 2023 | 193 | PORTPT - PORT DISTRICT | $90.58 | $90.58 | $0.00 | $0.00 | $181.16 | $0.00 |
| 2023 | 193 | PUD1 - PUD #1 | $14.26 | $14.25 | $0.00 | $0.00 | $28.51 | $0.00 |
| 2023 | 193 | HD2 - HOSP DIST #2 | $12.55 | $12.54 | $0.00 | $0.00 | $25.09 | $0.00 |
| 2023 | 193 | SD50 - SCHOOL DIST #50 | $391.02 | $391.01 | $0.00 | $0.00 | $782.03 | $0.00 |
| 2023 | 193 | FD1 - FIRE DISTRICT #1 | $177.14 | $177.14 | $0.00 | $0.00 | $354.28 | $0.00 |
| 2023 | 193 | EMS1 - FIRE DIST #1 EMS | $75.35 | $75.35 | $0.00 | $0.00 | $150.70 | $0.00 |
| 2023 | 193 | JCCD - JC Conservation District | $2.55 | $2.55 | $0.00 | $0.00 | $5.10 | $0.00 |
| 2023 | 193 | NWA - Noxious Weed Assessment | $2.15 | $2.15 | $0.00 | $0.00 | $4.30 | $0.00 |
| 2023 | 193 | TOTAL: | $1783.76 | $1783.70 | $0.00 | $0.00 | $3567.46 | $0.00 |
|
| 2023 | 193 | $1783.76 | $1783.70 | $0.00 | $0.00 | $3567.46 | $0.00 |
Statement Details |
| 2022 | 193 | STATE - STATE LEVY (SCHOOL) | $454.04 | $454.04 | $0.00 | $0.00 | $908.08 | $0.00 |
| 2022 | 193 | COUNTY - COUNTY LEVIES (CE, DD, VET, MH) | $202.30 | $202.30 | $0.00 | $0.00 | $404.60 | $0.00 |
| 2022 | 193 | CONSERVE - CONSERVATION FUTURES | $6.07 | $6.06 | $0.00 | $0.00 | $12.13 | $0.00 |
| 2022 | 193 | CITYPT - CITY OF PT | $260.32 | $260.31 | $0.00 | $0.00 | $520.63 | $0.00 |
| 2022 | 193 | PORTPT - PORT DISTRICT | $86.61 | $86.60 | $0.00 | $0.00 | $173.21 | $0.00 |
| 2022 | 193 | PUD1 - PUD #1 | $13.53 | $13.53 | $0.00 | $0.00 | $27.06 | $0.00 |
| 2022 | 193 | HD2 - HOSP DIST #2 | $11.81 | $11.80 | $0.00 | $0.00 | $23.61 | $0.00 |
| 2022 | 193 | SD50 - SCHOOL DIST #50 | $336.47 | $336.46 | $0.00 | $0.00 | $672.93 | $0.00 |
| 2022 | 193 | FD1 - FIRE DISTRICT #1 | $165.96 | $165.96 | $0.00 | $0.00 | $331.92 | $0.00 |
| 2022 | 193 | EMS1 - FIRE DIST #1 EMS | $70.60 | $70.59 | $0.00 | $0.00 | $141.19 | $0.00 |
| 2022 | 193 | JCCD - JC Conservation District | $2.55 | $2.55 | $0.00 | $0.00 | $5.10 | $0.00 |
| 2022 | 193 | NWA - Noxious Weed Assessment | $2.15 | $2.15 | $0.00 | $0.00 | $4.30 | $0.00 |
| 2022 | 193 | TOTAL: | $1612.41 | $1612.35 | $0.00 | $0.00 | $3224.76 | $0.00 |
|
| 2022 | 193 | $1612.41 | $1612.35 | $0.00 | $0.00 | $3224.76 | $0.00 |
Values
| (+) Improvement Homesite Value: | + | $0 | |
| (+) Improvement Non-Homesite Value: | + | $607,385 | |
| (+) Land Homesite Value: | + | $0 | |
| (+) Land Non-Homesite Value: | + | $125,000 | |
| (+) Curr Use (HS): | + | $0 | $0 |
| (+) Curr Use (NHS): | + | $0 | $0 |
| | | -------------------------- | |
| (=) Market Value: | = | $732,385 | |
| (–) Productivity Loss: | – | $0 | |
| | | -------------------------- | |
| (=) Subtotal: | = | $732,385 | |
| (+) Senior Appraised Value: | + | $0 | |
| (+) Non-Senior Appraised Value: | + | $732,385 | |
| | | -------------------------- | |
| (=) Total Appraised Value: | = | $732,385 | |
| (–) Senior Exemption Loss: | – | $0 | |
| (–) Exemption Loss: | – | $0 | |
| | | -------------------------- | |
| (=) Taxable Value: | = | $732,385 | |
Taxing Jurisdiction
| Owner: | HUGGING TREE LEGACY | | |
| % Ownership: | 100.0000000000% | | |
| Total Value: | N/A | | |
| Tax Area: | 0110 - C-50F1E1H2 |
| CE | COUNTY CURRENT EXPENSE | N/A | N/A | N/A | N/A | | |
| CNTYDD | DEVELOPMENTAL DISABILITIES | N/A | N/A | N/A | N/A | | |
| CNTYVET | VETERANS RELIEF | N/A | N/A | N/A | N/A | | |
| MENTAL | MENTAL HEALTH | N/A | N/A | N/A | N/A | | |
| PTGEN | CITY OF PT GENERAL | N/A | N/A | N/A | N/A | | |
| PTLLL | CITY OF PT - LIBRARY LID LIFT | N/A | N/A | N/A | N/A | | |
| PTMVBOND | CITY OF PT MV BOND | N/A | N/A | N/A | N/A | | |
| HOSP2CASH | HOSP DIST #2 GENERAL | N/A | N/A | N/A | N/A | | |
| SCH50BOND | SCHOOL DIST #50 BOND 2016 | N/A | N/A | N/A | N/A | | |
| SCH50CP | SCHOOL DIST #50 CAP PROJ | N/A | N/A | N/A | N/A | | |
| SCH50MO | SCHOOL DIST #50 EP & O | N/A | N/A | N/A | N/A | | |
| CONSERVE | CONSERVATION FUTURES | N/A | N/A | N/A | N/A | | |
| EMS1 | FIRE DIST #1 EMS | N/A | N/A | N/A | N/A | | |
| FD1 | FIRE DIST #1 GENERAL | N/A | N/A | N/A | N/A | | |
| PORTPT | PORT OF PT GENERAL | N/A | N/A | N/A | N/A | | |
| PORTPTIDD | PORT OF PT IDD 2019 | N/A | N/A | N/A | N/A | | |
| PUD1 | PUD #1 GENERAL | N/A | N/A | N/A | N/A | | |
| STATE | STATE SCHOOL PART 1 | N/A | N/A | N/A | N/A | | |
| STATE2 | STATE SCHOOL PART 2 | N/A | N/A | N/A | N/A | | |
| | Total Tax Rate: | N/A | | | | | |
| | | | | Taxes w/Current Exemptions: | N/A | | |
| | | | | Taxes w/o Exemptions: | N/A | | |
Improvement / Building
| Improvement #1: | Residential Bldg | State Code: | 11 | 1352.0 sqft | Value: | $607,385 |
| Bathrooms (#): | 2 (FULL) | Bedrooms (#): | 3 | | Exterior Wall: | SI/ST | Floor Construction: | FRAME | | Foundation: | CONPR | Heating/Cooling: | ELBB | | Inside Verify: | YES-FIX | Roof Cover: | COMP |
|
| | Type | Description | Class CD | Sub Class CD | Year Built | Area |
| | MA | Main Area | 5+ | 1S | 1975 | 1352.0 |
| | HDECK | House Deck | 5 | 1S | 1975 | 360.0 |
| | ADDN-D | Addition (Table Depreciated) | 5 | 1S | 2022 | 520.0 |
| | HCPOR | House Concrete Porch | 5 | 1S | 2022 | 165.0 |
| | ADDN-D | Addition (Table Depreciated) | 5 | 1S | 2022 | 480.0 |
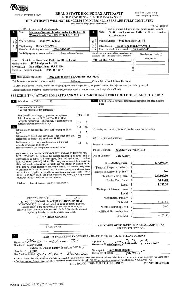
Sketch
Property Image
Land
| 1 | 6125-1275S | | 0.0000 | 0.00 | 0.00 | 0.00 | 1.00 | $125,000 | $0 |
Roll Value History
| 2025 | N/A | N/A | N/A | N/A | N/A |
| 2024 | $413,763 | $115,500 | $0 | $529,263 | $529,263 |
| 2023 | $395,773 | $105,000 | $0 | $500,773 | $500,773 |
| 2022 | $318,635 | $100,000 | $0 | $418,635 | $418,635 |
| 2021 | $242,411 | $89,700 | $0 | $332,111 | $332,111 |
Deed and Sales History
| 1 | 03/28/2025 | SWD | Statutory Warranty Deed | DISCOVERY HOLDINGS LLC | HUGGING TREE LEGACY | | | $785,000.00 | 144065 | |
| 2 | 06/05/2020 | QCD | Quit Claim Deed | BALLERINI TRUST | DISCOVERY HOLDINGS LLC | | | $293,477.00 | 134551 | |
| 3 | 03/30/2020 | PRD | Personal Representatives Deed | ANDREW A BALLERINI | BALLERINI TRUST | | | | 134276 | |
| 4 | 06/27/2019 | SWD | Statutory Warranty Deed | BRADLEY B SEAMANS | ANDREW A BALLERINI | | | $315,000.00 | 132753 | |
| 5 | 06/24/2016 | SWD | Statutory Warranty Deed | TEMUR L PERKINS | BRADLEY B SEAMANS | | | $252,000.00 | 125777 | |
| 6 | 11/15/2007 | WD | Warranty Deed | SCHEEMER, WANDA ESTATE OF | PERKINS, TEMUR LANE/ROSEMARIE | 0 | 0 | $175,000.00 | 110436 | 0 |
| 7 | 11/26/1996 | QCD | Quit Claim Deed | SCHERMERHORN, WANDA/TRUST | SCHERMERHORN, WANDA | 0 | 0 | $0.00 | 80917 | 0 |
| 8 | 12/12/1995 | QCD | Quit Claim Deed | SCHERMERHORN, WANDA | SCHERMERHORN, WANDA/TRUST | 0 | 0 | $0.00 | 78445 | 0 |
| 9 | 12/05/1994 | SWD | Statutory Warranty Deed | YOUNG, BRIAN/ELSE | SCHERMERHORN, WANDA | 0 | 0 | $100,000.00 | 75782 | 0 |
Payout Agreement
| No payout information available.. |