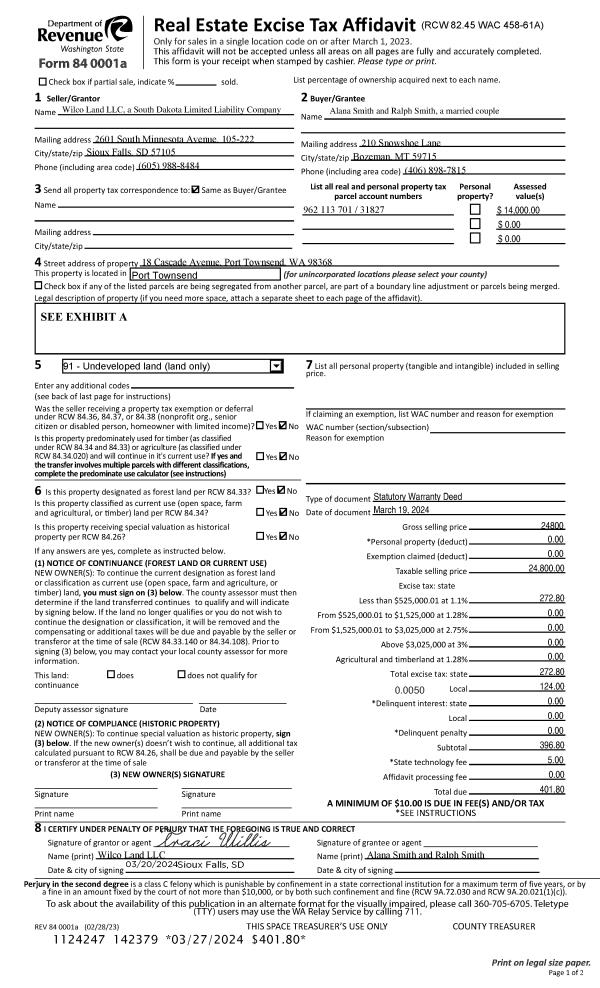
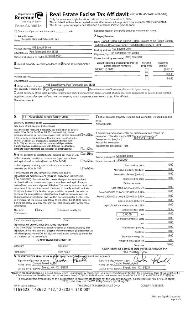
Property
Account |
| Property ID: | 10239 | Abbreviated Legal Description: | S4 T30 R1W TAX 77 BND TGTH THRU BLA#108163 |
| Parcel # / Geo ID: | 001042009 | Agent Code: | |
| Type: | Real | | |
| Tax Area: | 0110 - C-50F1E1H2 | Land Use Code | 11 |
| Open Space: | N | DFL | N |
| Historic Property: | N | Remodel Property: | N |
| Multi-Family Redevelopment: | N | | |
| Township: | 30N | Section: | 4 |
| Range: | 1W |
Location |
| Address: | 3345 LAURAL ST PORT TOWNSEND, WA 98368 | Mapsco: | 156/050 |
| Neighborhood: | DICKERSON'S FARM & AREA W OF HOWARD ST,N OF 30TH & N OF 35TH | Map ID: | |
| Neighborhood CD: | 6060 |
Owner |
| Name: | BLY WINDSTORM | Owner ID: | 30642 |
| Mailing Address: | MARTHA W BREUNIG 3345 LAURAL ST PORT TOWNSEND, WA 98368-8853 | % Ownership: | 100.0000000000% |
| | | Exemptions: | |
Pay Tax Due
Select the appropriate checkbox next to the year to be paid. Multiple years may be selected.
*Convenience Fee not included
Taxes and Assessment Details
Property Tax Information as of
10/23/2025
Click on "Statement Details" to expand or collapse a tax statement.
* Please enter a valid date ** Please enter a valid date *
Statement Details |
| 2025 | 225 | STATE - STATE LEVY (SCHOOL) | $892.60 | $892.59 | $0.00 | $0.00 | $892.60 | $892.59 |
| 2025 | 225 | COUNTY - COUNTY LEVIES (CE, DD, VET, MH) | $351.02 | $350.99 | $0.00 | $0.00 | $351.02 | $350.99 |
| 2025 | 225 | CONSERVE - CONSERVATION FUTURES | $10.53 | $10.52 | $0.00 | $0.00 | $10.53 | $10.52 |
| 2025 | 225 | CITYPT - CITY OF PT | $506.20 | $506.18 | $0.00 | $0.00 | $506.20 | $506.18 |
| 2025 | 225 | PORTPT - PORT DISTRICT | $143.23 | $143.23 | $0.00 | $0.00 | $143.23 | $143.23 |
| 2025 | 225 | PUD1 - PUD #1 | $22.97 | $22.97 | $0.00 | $0.00 | $22.97 | $22.97 |
| 2025 | 225 | HD2 - HOSP DIST #2 | $20.48 | $20.48 | $0.00 | $0.00 | $20.48 | $20.48 |
| 2025 | 225 | SD50 - SCHOOL DIST #50 | $652.34 | $652.34 | $0.00 | $0.00 | $652.34 | $652.34 |
| 2025 | 225 | FD1 - FIRE DISTRICT #1 | $463.20 | $463.19 | $0.00 | $0.00 | $463.20 | $463.19 |
| 2025 | 225 | EMS1 - FIRE DIST #1 EMS | $178.16 | $178.15 | $0.00 | $0.00 | $178.16 | $178.15 |
| 2025 | 225 | FP - DNR Forest Fire Protection Assmt | $8.50 | $8.50 | $0.00 | $0.00 | $8.50 | $8.50 |
| 2025 | 225 | FPLCA - DNR Landowner Contingency Assmt | $3.00 | $3.00 | $0.00 | $0.00 | $3.00 | $3.00 |
| 2025 | 225 | JCCD - JC Conservation District | $3.05 | $3.05 | $0.00 | $0.00 | $3.05 | $3.05 |
| 2025 | 225 | NWA - Noxious Weed Assessment | $3.65 | $3.65 | $0.00 | $0.00 | $3.65 | $3.65 |
| 2025 | 225 | OSS - On Site Septic | $21.50 | $21.50 | $0.00 | $0.00 | $21.50 | $21.50 |
| 2025 | 225 | WAT - Clean Water District | $13.00 | $13.00 | $0.00 | $0.00 | $13.00 | $13.00 |
| 2025 | 225 | FP ADMIN - FP ADMIN | $0.50 | $0.00 | $0.00 | $0.00 | $0.50 | $0.00 |
| 2025 | 225 | TOTAL: | $3293.93 | $3293.34 | $0.00 | $0.00 | $3293.93 | $3293.34 |
|
| 2025 | 225 | $3293.93 | $3293.34 | $0.00 | $0.00 | $3293.93 | $3293.34 |
Statement Details |
| 2024 | 225 | STATE - STATE LEVY (SCHOOL) | $805.38 | $805.38 | $0.00 | $0.00 | $1610.76 | $0.00 |
| 2024 | 225 | COUNTY - COUNTY LEVIES (CE, DD, VET, MH) | $344.64 | $344.62 | $0.00 | $0.00 | $689.26 | $0.00 |
| 2024 | 225 | CONSERVE - CONSERVATION FUTURES | $10.34 | $10.33 | $0.00 | $0.00 | $20.67 | $0.00 |
| 2024 | 225 | CITYPT - CITY OF PT | $492.44 | $492.42 | $0.00 | $0.00 | $984.86 | $0.00 |
| 2024 | 225 | PORTPT - PORT DISTRICT | $142.36 | $142.34 | $0.00 | $0.00 | $284.70 | $0.00 |
| 2024 | 225 | PUD1 - PUD #1 | $22.64 | $22.63 | $0.00 | $0.00 | $45.27 | $0.00 |
| 2024 | 225 | HD2 - HOSP DIST #2 | $20.11 | $20.11 | $0.00 | $0.00 | $40.22 | $0.00 |
| 2024 | 225 | SD50 - SCHOOL DIST #50 | $651.60 | $651.58 | $0.00 | $0.00 | $1303.18 | $0.00 |
| 2024 | 225 | FD1 - FIRE DISTRICT #1 | $455.69 | $455.68 | $0.00 | $0.00 | $911.37 | $0.00 |
| 2024 | 225 | EMS1 - FIRE DIST #1 EMS | $174.06 | $174.05 | $0.00 | $0.00 | $348.11 | $0.00 |
| 2024 | 225 | FP - DNR Forest Fire Protection Assmt | $8.50 | $8.50 | $0.00 | $0.00 | $17.00 | $0.00 |
| 2024 | 225 | FPLCA - DNR Landowner Contingency Assmt | $3.00 | $3.00 | $0.00 | $0.00 | $6.00 | $0.00 |
| 2024 | 225 | JCCD - JC Conservation District | $3.05 | $3.05 | $0.00 | $0.00 | $6.10 | $0.00 |
| 2024 | 225 | NWA - Noxious Weed Assessment | $3.65 | $3.65 | $0.00 | $0.00 | $7.30 | $0.00 |
| 2024 | 225 | OSS - On Site Septic | $21.00 | $21.00 | $0.00 | $0.00 | $42.00 | $0.00 |
| 2024 | 225 | WAT - Clean Water District | $12.50 | $12.50 | $0.00 | $0.00 | $25.00 | $0.00 |
| 2024 | 225 | FP ADMIN - FP ADMIN | $0.50 | $0.00 | $0.00 | $0.00 | $0.50 | $0.00 |
| 2024 | 225 | TOTAL: | $3171.46 | $3170.84 | $0.00 | $0.00 | $6342.30 | $0.00 |
|
| 2024 | 225 | $3171.46 | $3170.84 | $0.00 | $0.00 | $6342.30 | $0.00 |
Statement Details |
| 2023 | 225 | STATE - STATE LEVY (SCHOOL) | $799.23 | $799.22 | $0.00 | $0.00 | $1598.45 | $0.00 |
| 2023 | 225 | COUNTY - COUNTY LEVIES (CE, DD, VET, MH) | $348.77 | $348.75 | $0.00 | $0.00 | $697.52 | $0.00 |
| 2023 | 225 | CONSERVE - CONSERVATION FUTURES | $10.46 | $10.46 | $0.00 | $0.00 | $20.92 | $0.00 |
| 2023 | 225 | CITYPT - CITY OF PT | $492.92 | $492.90 | $0.00 | $0.00 | $985.82 | $0.00 |
| 2023 | 225 | PORTPT - PORT DISTRICT | $146.93 | $146.91 | $0.00 | $0.00 | $293.84 | $0.00 |
| 2023 | 225 | PUD1 - PUD #1 | $23.12 | $23.12 | $0.00 | $0.00 | $46.24 | $0.00 |
| 2023 | 225 | HD2 - HOSP DIST #2 | $20.36 | $20.35 | $0.00 | $0.00 | $40.71 | $0.00 |
| 2023 | 225 | SD50 - SCHOOL DIST #50 | $634.20 | $634.20 | $0.00 | $0.00 | $1268.40 | $0.00 |
| 2023 | 225 | FD1 - FIRE DISTRICT #1 | $287.31 | $287.30 | $0.00 | $0.00 | $574.61 | $0.00 |
| 2023 | 225 | EMS1 - FIRE DIST #1 EMS | $122.22 | $122.21 | $0.00 | $0.00 | $244.43 | $0.00 |
| 2023 | 225 | FP - DNR Forest Fire Protection Assmt | $8.50 | $8.50 | $0.00 | $0.00 | $17.00 | $0.00 |
| 2023 | 225 | FPLCA - DNR Landowner Contingency Assmt | $3.00 | $3.00 | $0.00 | $0.00 | $6.00 | $0.00 |
| 2023 | 225 | JCCD - JC Conservation District | $3.05 | $3.05 | $0.00 | $0.00 | $6.10 | $0.00 |
| 2023 | 225 | NWA - Noxious Weed Assessment | $3.65 | $3.65 | $0.00 | $0.00 | $7.30 | $0.00 |
| 2023 | 225 | OSS - On Site Septic | $20.50 | $20.50 | $0.00 | $0.00 | $41.00 | $0.00 |
| 2023 | 225 | WAT - Clean Water District | $12.00 | $12.00 | $0.00 | $0.00 | $24.00 | $0.00 |
| 2023 | 225 | FP ADMIN - FP ADMIN | $0.50 | $0.00 | $0.00 | $0.00 | $0.50 | $0.00 |
| 2023 | 225 | TOTAL: | $2936.72 | $2936.12 | $0.00 | $0.00 | $5872.84 | $0.00 |
|
| 2023 | 225 | $2936.72 | $2936.12 | $0.00 | $0.00 | $5872.84 | $0.00 |
Statement Details |
| 2022 | 225 | STATE - STATE LEVY (SCHOOL) | $794.74 | $794.74 | $0.00 | $0.00 | $1589.48 | $0.00 |
| 2022 | 225 | COUNTY - COUNTY LEVIES (CE, DD, VET, MH) | $354.11 | $354.09 | $0.00 | $0.00 | $708.20 | $0.00 |
| 2022 | 225 | CONSERVE - CONSERVATION FUTURES | $10.62 | $10.62 | $0.00 | $0.00 | $21.24 | $0.00 |
| 2022 | 225 | CITYPT - CITY OF PT | $455.65 | $455.64 | $0.00 | $0.00 | $911.29 | $0.00 |
| 2022 | 225 | PORTPT - PORT DISTRICT | $151.60 | $151.58 | $0.00 | $0.00 | $303.18 | $0.00 |
| 2022 | 225 | PUD1 - PUD #1 | $23.68 | $23.68 | $0.00 | $0.00 | $47.36 | $0.00 |
| 2022 | 225 | HD2 - HOSP DIST #2 | $20.68 | $20.66 | $0.00 | $0.00 | $41.34 | $0.00 |
| 2022 | 225 | SD50 - SCHOOL DIST #50 | $588.95 | $588.94 | $0.00 | $0.00 | $1177.89 | $0.00 |
| 2022 | 225 | FD1 - FIRE DISTRICT #1 | $290.49 | $290.49 | $0.00 | $0.00 | $580.98 | $0.00 |
| 2022 | 225 | EMS1 - FIRE DIST #1 EMS | $123.57 | $123.56 | $0.00 | $0.00 | $247.13 | $0.00 |
| 2022 | 225 | FP - DNR Forest Fire Protection Assmt | $8.50 | $8.50 | $0.00 | $0.00 | $17.00 | $0.00 |
| 2022 | 225 | FPLCA - DNR Landowner Contingency Assmt | $3.00 | $3.00 | $0.00 | $0.00 | $6.00 | $0.00 |
| 2022 | 225 | JCCD - JC Conservation District | $3.05 | $3.05 | $0.00 | $0.00 | $6.10 | $0.00 |
| 2022 | 225 | NWA - Noxious Weed Assessment | $3.65 | $3.65 | $0.00 | $0.00 | $7.30 | $0.00 |
| 2022 | 225 | OSS - On Site Septic | $19.50 | $19.50 | $0.00 | $0.00 | $39.00 | $0.00 |
| 2022 | 225 | WAT - Clean Water District | $11.50 | $11.50 | $0.00 | $0.00 | $23.00 | $0.00 |
| 2022 | 225 | FP ADMIN - FP ADMIN | $0.50 | $0.00 | $0.00 | $0.00 | $0.50 | $0.00 |
| 2022 | 225 | TOTAL: | $2863.79 | $2863.20 | $0.00 | $0.00 | $5726.99 | $0.00 |
|
| 2022 | 225 | $2863.79 | $2863.20 | $0.00 | $0.00 | $5726.99 | $0.00 |
Values
| (+) Improvement Homesite Value: | + | $0 | |
| (+) Improvement Non-Homesite Value: | + | $497,896 | |
| (+) Land Homesite Value: | + | $0 | |
| (+) Land Non-Homesite Value: | + | $260,670 | |
| (+) Curr Use (HS): | + | $0 | $0 |
| (+) Curr Use (NHS): | + | $0 | $0 |
| | | -------------------------- | |
| (=) Market Value: | = | $758,566 | |
| (–) Productivity Loss: | – | $0 | |
| | | -------------------------- | |
| (=) Subtotal: | = | $758,566 | |
| (+) Senior Appraised Value: | + | $0 | |
| (+) Non-Senior Appraised Value: | + | $758,566 | |
| | | -------------------------- | |
| (=) Total Appraised Value: | = | $758,566 | |
| (–) Senior Exemption Loss: | – | $0 | |
| (–) Exemption Loss: | – | $0 | |
| | | -------------------------- | |
| (=) Taxable Value: | = | $758,566 | |
Taxing Jurisdiction
| Owner: | BLY WINDSTORM | | |
| % Ownership: | 100.0000000000% | | |
| Total Value: | N/A | | |
| Tax Area: | 0110 - C-50F1E1H2 |
| CE | COUNTY CURRENT EXPENSE | N/A | N/A | N/A | N/A | | |
| CNTYDD | DEVELOPMENTAL DISABILITIES | N/A | N/A | N/A | N/A | | |
| CNTYVET | VETERANS RELIEF | N/A | N/A | N/A | N/A | | |
| MENTAL | MENTAL HEALTH | N/A | N/A | N/A | N/A | | |
| PTGEN | CITY OF PT GENERAL | N/A | N/A | N/A | N/A | | |
| PTLLL | CITY OF PT - LIBRARY LID LIFT | N/A | N/A | N/A | N/A | | |
| PTMVBOND | CITY OF PT MV BOND | N/A | N/A | N/A | N/A | | |
| HOSP2CASH | HOSP DIST #2 GENERAL | N/A | N/A | N/A | N/A | | |
| SCH50BOND | SCHOOL DIST #50 BOND 2016 | N/A | N/A | N/A | N/A | | |
| SCH50CP | SCHOOL DIST #50 CAP PROJ | N/A | N/A | N/A | N/A | | |
| SCH50MO | SCHOOL DIST #50 EP & O | N/A | N/A | N/A | N/A | | |
| CONSERVE | CONSERVATION FUTURES | N/A | N/A | N/A | N/A | | |
| EMS1 | FIRE DIST #1 EMS | N/A | N/A | N/A | N/A | | |
| FD1 | FIRE DIST #1 GENERAL | N/A | N/A | N/A | N/A | | |
| PORTPT | PORT OF PT GENERAL | N/A | N/A | N/A | N/A | | |
| PORTPTIDD | PORT OF PT IDD 2019 | N/A | N/A | N/A | N/A | | |
| PUD1 | PUD #1 GENERAL | N/A | N/A | N/A | N/A | | |
| STATE | STATE SCHOOL PART 1 | N/A | N/A | N/A | N/A | | |
| STATE2 | STATE SCHOOL PART 2 | N/A | N/A | N/A | N/A | | |
| | Total Tax Rate: | N/A | | | | | |
| | | | | Taxes w/Current Exemptions: | N/A | | |
| | | | | Taxes w/o Exemptions: | N/A | | |
Improvement / Building
| Improvement #1: | Residential Bldg | State Code: | 11 | 2370.0 sqft | Value: | $497,896 |
| Bathrooms (#): | 2 (FULL) | Bedrooms (#): | 2 | | Exterior Wall: | MASON | Fireplace: | WD ST-GOOD | | Floor Construction: | FRAME | Foundation: | CONPR | | Heating/Cooling: | ELBB | Roof Cover: | METAL |
|
| | Type | Description | Class CD | Sub Class CD | Year Built | Area |
| | MA | Main Area | 4- | 1S | 2009 | 2370.0 |
| | BSMTU | House basement unfinished | 3 | 1S | 2009 | 540.0 |
| | OTHER | Other | 3 | * | 2009 | 201.1 |
| | HDECK | House Deck | 1 | * | 2009 | 41.6 |
| | SHED | Shed (Table Not Dep) | 2 | * | 2009 | 96.0 |
| | OTHER | Other | 3 | * | 2009 | 0.0 |
| | HDECK | House Deck | 1 | * | 2009 | 41.6 |
Sketch
Property Image
Land
| 1 | 6060-1375S | | 1.0000 | 43560.00 | 0.00 | 0.00 | 1.00 | $142,500 | $0 |
| 2 | 1575A | | 9.0900 | 395960.40 | 0.00 | 0.00 | 0.00 | $118,170 | $0 |
Roll Value History
| 2025 | N/A | N/A | N/A | N/A | N/A |
| 2024 | $492,932 | $251,512 | $0 | $744,444 | $744,444 |
| 2023 | $466,227 | $229,990 | $0 | $696,217 | $696,217 |
| 2022 | $463,091 | $215,900 | $0 | $678,991 | $678,991 |
| 2021 | $384,651 | $196,668 | $0 | $581,319 | $581,319 |
Deed and Sales History
| 1 | 10/20/2006 | BLA | Boundary Line Adjustment | DINSMORE, P/NORDQUIST, W | WINDSTORM, B/BREUNIG, MW | 0 | 0 | $0.00 | 108163 | 0 |
| 2 | 07/20/2005 | SWD | Statutory Warranty Deed | BRAMHALL, CLARENCE & MARI | WINDSTORM, BLY/BRUENIG, MARTHA | | | $62,500.00 | 104286 | 0 |
Payout Agreement
| No payout information available.. |