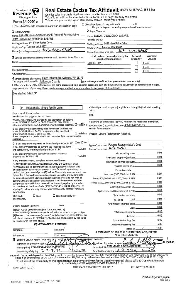
Property
Account |
| Property ID: | 10248 | Abbreviated Legal Description: | S4 T30 R1W NW NE NW SW(LESS TAX 54) ENLG BY TAX 53 - BND TGTH THRU BLA #87719 |
| Parcel # / Geo ID: | 001043011 | Agent Code: | |
| Type: | Real | | |
| Tax Area: | 0111 - 1-50F1E1H2L1 | Land Use Code | 11 |
| Open Space: | N | DFL | N |
| Historic Property: | N | Remodel Property: | N |
| Multi-Family Redevelopment: | N | | |
| Township: | 30N | Section: | 4 |
| Range: | 1W |
Location |
| Address: | 94 COOK AVE EXT PORT TOWNSEND, WA 98368 | Mapsco: | 080/003 |
| Neighborhood: | S 4, 5 & 6 T30 R1W | Map ID: | |
| Neighborhood CD: | 5310 |
Owner |
| Name: | GREG M & ELAINE A MYERS | Owner ID: | 106953 |
| Mailing Address: | 94 COOK AVENUE EXT PORT TOWNSEND, WA 98368-9285 | % Ownership: | 100.0000000000% |
| | | Exemptions: | |
Pay Tax Due
Select the appropriate checkbox next to the year to be paid. Multiple years may be selected.
*Convenience Fee not included
Taxes and Assessment Details
Property Tax Information as of
10/23/2025
Click on "Statement Details" to expand or collapse a tax statement.
* Please enter a valid date ** Please enter a valid date *
Statement Details |
| 2025 | 234 | STATE - STATE LEVY (SCHOOL) | $878.75 | $878.75 | $0.00 | $0.00 | $878.75 | $878.75 |
| 2025 | 234 | COUNTY - COUNTY LEVIES (CE, DD, VET, MH) | $345.58 | $345.55 | $0.00 | $0.00 | $345.58 | $345.55 |
| 2025 | 234 | CONSERVE - CONSERVATION FUTURES | $10.36 | $10.36 | $0.00 | $0.00 | $10.36 | $10.36 |
| 2025 | 234 | COROADS - COUNTY ROADS (ROADS, DIV TO CE) | $276.86 | $276.85 | $0.00 | $0.00 | $276.86 | $276.85 |
| 2025 | 234 | PORTPT - PORT DISTRICT | $141.01 | $141.01 | $0.00 | $0.00 | $141.01 | $141.01 |
| 2025 | 234 | PUD1 - PUD #1 | $22.61 | $22.61 | $0.00 | $0.00 | $22.61 | $22.61 |
| 2025 | 234 | LIB1 - LIBRARY DIST #1 | $107.11 | $107.11 | $0.00 | $0.00 | $107.11 | $107.11 |
| 2025 | 234 | HD2 - HOSP DIST #2 | $20.16 | $20.16 | $0.00 | $0.00 | $20.16 | $20.16 |
| 2025 | 234 | SD50 - SCHOOL DIST #50 | $642.23 | $642.21 | $0.00 | $0.00 | $642.23 | $642.21 |
| 2025 | 234 | FD1 - FIRE DISTRICT #1 | $456.01 | $456.01 | $0.00 | $0.00 | $456.01 | $456.01 |
| 2025 | 234 | EMS1 - FIRE DIST #1 EMS | $175.40 | $175.39 | $0.00 | $0.00 | $175.40 | $175.39 |
| 2025 | 234 | FP - DNR Forest Fire Protection Assmt | $8.50 | $8.50 | $0.00 | $0.00 | $8.50 | $8.50 |
| 2025 | 234 | FPLCA - DNR Landowner Contingency Assmt | $3.00 | $3.00 | $0.00 | $0.00 | $3.00 | $3.00 |
| 2025 | 234 | JCCD - JC Conservation District | $2.65 | $2.65 | $0.00 | $0.00 | $2.65 | $2.65 |
| 2025 | 234 | NWA - Noxious Weed Assessment | $2.45 | $2.45 | $0.00 | $0.00 | $2.45 | $2.45 |
| 2025 | 234 | OSS - On Site Septic | $21.50 | $21.50 | $0.00 | $0.00 | $21.50 | $21.50 |
| 2025 | 234 | WAT - Clean Water District | $13.00 | $13.00 | $0.00 | $0.00 | $13.00 | $13.00 |
| 2025 | 234 | FP ADMIN - FP ADMIN | $0.50 | $0.00 | $0.00 | $0.00 | $0.50 | $0.00 |
| 2025 | 234 | TOTAL: | $3127.68 | $3127.11 | $0.00 | $0.00 | $3127.68 | $3127.11 |
|
| 2025 | 234 | $3127.68 | $3127.11 | $0.00 | $0.00 | $3127.68 | $3127.11 |
Statement Details |
| 2024 | 234 | STATE - STATE LEVY (SCHOOL) | $759.01 | $759.00 | $0.00 | $0.00 | $1518.01 | $0.00 |
| 2024 | 234 | COUNTY - COUNTY LEVIES (CE, DD, VET, MH) | $324.80 | $324.77 | $0.00 | $0.00 | $649.57 | $0.00 |
| 2024 | 234 | CONSERVE - CONSERVATION FUTURES | $9.74 | $9.74 | $0.00 | $0.00 | $19.48 | $0.00 |
| 2024 | 234 | COROADS - COUNTY ROADS (ROADS, DIV TO CE) | $261.35 | $261.34 | $0.00 | $0.00 | $522.69 | $0.00 |
| 2024 | 234 | PORTPT - PORT DISTRICT | $134.16 | $134.14 | $0.00 | $0.00 | $268.30 | $0.00 |
| 2024 | 234 | PUD1 - PUD #1 | $21.34 | $21.33 | $0.00 | $0.00 | $42.67 | $0.00 |
| 2024 | 234 | LIB1 - LIBRARY DIST #1 | $101.11 | $101.11 | $0.00 | $0.00 | $202.22 | $0.00 |
| 2024 | 234 | HD2 - HOSP DIST #2 | $18.95 | $18.95 | $0.00 | $0.00 | $37.90 | $0.00 |
| 2024 | 234 | SD50 - SCHOOL DIST #50 | $614.07 | $614.07 | $0.00 | $0.00 | $1228.14 | $0.00 |
| 2024 | 234 | FD1 - FIRE DISTRICT #1 | $429.44 | $429.44 | $0.00 | $0.00 | $858.88 | $0.00 |
| 2024 | 234 | EMS1 - FIRE DIST #1 EMS | $164.03 | $164.03 | $0.00 | $0.00 | $328.06 | $0.00 |
| 2024 | 234 | JCCD - JC Conservation District | $2.65 | $2.65 | $0.00 | $0.00 | $5.30 | $0.00 |
| 2024 | 234 | NWA - Noxious Weed Assessment | $2.45 | $2.45 | $0.00 | $0.00 | $4.90 | $0.00 |
| 2024 | 234 | OSS - On Site Septic | $21.00 | $21.00 | $0.00 | $0.00 | $42.00 | $0.00 |
| 2024 | 234 | WAT - Clean Water District | $12.50 | $12.50 | $0.00 | $0.00 | $25.00 | $0.00 |
| 2024 | 234 | TOTAL: | $2876.60 | $2876.52 | $0.00 | $0.00 | $5753.12 | $0.00 |
|
| 2024 | 234 | $2876.60 | $2876.52 | $0.00 | $0.00 | $5753.12 | $0.00 |
Statement Details |
| 2023 | 234 | STATE - STATE LEVY (SCHOOL) | $710.67 | $710.65 | $0.00 | $0.00 | $1421.32 | $0.00 |
| 2023 | 234 | COUNTY - COUNTY LEVIES (CE, DD, VET, MH) | $310.12 | $310.10 | $0.00 | $0.00 | $620.22 | $0.00 |
| 2023 | 234 | CONSERVE - CONSERVATION FUTURES | $9.30 | $9.30 | $0.00 | $0.00 | $18.60 | $0.00 |
| 2023 | 234 | COROADS - COUNTY ROADS (ROADS, DIV TO CE) | $250.90 | $250.90 | $0.00 | $0.00 | $501.80 | $0.00 |
| 2023 | 234 | PORTPT - PORT DISTRICT | $130.64 | $130.63 | $0.00 | $0.00 | $261.27 | $0.00 |
| 2023 | 234 | PUD1 - PUD #1 | $20.56 | $20.55 | $0.00 | $0.00 | $41.11 | $0.00 |
| 2023 | 234 | LIB1 - LIBRARY DIST #1 | $97.07 | $97.07 | $0.00 | $0.00 | $194.14 | $0.00 |
| 2023 | 234 | HD2 - HOSP DIST #2 | $18.10 | $18.10 | $0.00 | $0.00 | $36.20 | $0.00 |
| 2023 | 234 | SD50 - SCHOOL DIST #50 | $563.93 | $563.91 | $0.00 | $0.00 | $1127.84 | $0.00 |
| 2023 | 234 | FD1 - FIRE DISTRICT #1 | $255.47 | $255.47 | $0.00 | $0.00 | $510.94 | $0.00 |
| 2023 | 234 | EMS1 - FIRE DIST #1 EMS | $108.67 | $108.67 | $0.00 | $0.00 | $217.34 | $0.00 |
| 2023 | 234 | JCCD - JC Conservation District | $2.65 | $2.65 | $0.00 | $0.00 | $5.30 | $0.00 |
| 2023 | 234 | NWA - Noxious Weed Assessment | $2.45 | $2.45 | $0.00 | $0.00 | $4.90 | $0.00 |
| 2023 | 234 | OSS - On Site Septic | $20.50 | $20.50 | $0.00 | $0.00 | $41.00 | $0.00 |
| 2023 | 234 | WAT - Clean Water District | $12.00 | $12.00 | $0.00 | $0.00 | $24.00 | $0.00 |
| 2023 | 234 | TOTAL: | $2513.03 | $2512.95 | $0.00 | $0.00 | $5025.98 | $0.00 |
|
| 2023 | 234 | $2513.03 | $2512.95 | $0.00 | $0.00 | $5025.98 | $0.00 |
Statement Details |
| 2022 | 234 | STATE - STATE LEVY (SCHOOL) | $495.38 | $495.36 | $0.00 | $0.00 | $990.74 | $0.00 |
| 2022 | 234 | COUNTY - COUNTY LEVIES (CE, DD, VET, MH) | $220.71 | $220.71 | $0.00 | $0.00 | $441.42 | $0.00 |
| 2022 | 234 | CONSERVE - CONSERVATION FUTURES | $6.62 | $6.62 | $0.00 | $0.00 | $13.24 | $0.00 |
| 2022 | 234 | COROADS - COUNTY ROADS (ROADS, DIV TO CE) | $179.40 | $179.38 | $0.00 | $0.00 | $358.78 | $0.00 |
| 2022 | 234 | PORTPT - PORT DISTRICT | $94.50 | $94.48 | $0.00 | $0.00 | $188.98 | $0.00 |
| 2022 | 234 | PUD1 - PUD #1 | $14.76 | $14.76 | $0.00 | $0.00 | $29.52 | $0.00 |
| 2022 | 234 | LIB1 - LIBRARY DIST #1 | $69.41 | $69.40 | $0.00 | $0.00 | $138.81 | $0.00 |
| 2022 | 234 | HD2 - HOSP DIST #2 | $12.89 | $12.88 | $0.00 | $0.00 | $25.77 | $0.00 |
| 2022 | 234 | SD50 - SCHOOL DIST #50 | $367.11 | $367.08 | $0.00 | $0.00 | $734.19 | $0.00 |
| 2022 | 234 | FD1 - FIRE DISTRICT #1 | $181.07 | $181.06 | $0.00 | $0.00 | $362.13 | $0.00 |
| 2022 | 234 | EMS1 - FIRE DIST #1 EMS | $77.02 | $77.02 | $0.00 | $0.00 | $154.04 | $0.00 |
| 2022 | 234 | JCCD - JC Conservation District | $2.65 | $2.65 | $0.00 | $0.00 | $5.30 | $0.00 |
| 2022 | 234 | NWA - Noxious Weed Assessment | $2.45 | $2.45 | $0.00 | $0.00 | $4.90 | $0.00 |
| 2022 | 234 | OSS - On Site Septic | $19.50 | $19.50 | $0.00 | $0.00 | $39.00 | $0.00 |
| 2022 | 234 | WAT - Clean Water District | $11.50 | $11.50 | $0.00 | $0.00 | $23.00 | $0.00 |
| 2022 | 234 | TOTAL: | $1754.97 | $1754.85 | $0.00 | $0.00 | $3509.82 | $0.00 |
|
| 2022 | 234 | $1754.97 | $1754.85 | $0.00 | $0.00 | $3509.82 | $0.00 |
Values
| (+) Improvement Homesite Value: | + | $0 | |
| (+) Improvement Non-Homesite Value: | + | $566,947 | |
| (+) Land Homesite Value: | + | $0 | |
| (+) Land Non-Homesite Value: | + | $198,191 | |
| (+) Curr Use (HS): | + | $0 | $0 |
| (+) Curr Use (NHS): | + | $0 | $0 |
| | | -------------------------- | |
| (=) Market Value: | = | $765,138 | |
| (–) Productivity Loss: | – | $0 | |
| | | -------------------------- | |
| (=) Subtotal: | = | $765,138 | |
| (+) Senior Appraised Value: | + | $0 | |
| (+) Non-Senior Appraised Value: | + | $765,138 | |
| | | -------------------------- | |
| (=) Total Appraised Value: | = | $765,138 | |
| (–) Senior Exemption Loss: | – | $0 | |
| (–) Exemption Loss: | – | $0 | |
| | | -------------------------- | |
| (=) Taxable Value: | = | $765,138 | |
Taxing Jurisdiction
| Owner: | GREG M & ELAINE A MYERS | | |
| % Ownership: | 100.0000000000% | | |
| Total Value: | N/A | | |
| Tax Area: | 0111 - 1-50F1E1H2L1 |
| CE | COUNTY CURRENT EXPENSE | N/A | N/A | N/A | N/A | | |
| CNTYDD | DEVELOPMENTAL DISABILITIES | N/A | N/A | N/A | N/A | | |
| CNTYVET | VETERANS RELIEF | N/A | N/A | N/A | N/A | | |
| MENTAL | MENTAL HEALTH | N/A | N/A | N/A | N/A | | |
| ROADS | COUNTY ROADS | N/A | N/A | N/A | N/A | | |
| ROADSCU | COUNTY ROADS TO CUR EXP | N/A | N/A | N/A | N/A | | |
| HOSP2CASH | HOSP DIST #2 GENERAL | N/A | N/A | N/A | N/A | | |
| SCH50BOND | SCHOOL DIST #50 BOND 2016 | N/A | N/A | N/A | N/A | | |
| SCH50CP | SCHOOL DIST #50 CAP PROJ | N/A | N/A | N/A | N/A | | |
| SCH50MO | SCHOOL DIST #50 EP & O | N/A | N/A | N/A | N/A | | |
| CONSERVE | CONSERVATION FUTURES | N/A | N/A | N/A | N/A | | |
| EMS1 | FIRE DIST #1 EMS | N/A | N/A | N/A | N/A | | |
| FD1 | FIRE DIST #1 GENERAL | N/A | N/A | N/A | N/A | | |
| LIB1 | LIBRARY DIST #1 GENERAL | N/A | N/A | N/A | N/A | | |
| PORTPT | PORT OF PT GENERAL | N/A | N/A | N/A | N/A | | |
| PORTPTIDD | PORT OF PT IDD 2019 | N/A | N/A | N/A | N/A | | |
| PUD1 | PUD #1 GENERAL | N/A | N/A | N/A | N/A | | |
| STATE | STATE SCHOOL PART 1 | N/A | N/A | N/A | N/A | | |
| STATE2 | STATE SCHOOL PART 2 | N/A | N/A | N/A | N/A | | |
| | Total Tax Rate: | N/A | | | | | |
| | | | | Taxes w/Current Exemptions: | N/A | | |
| | | | | Taxes w/o Exemptions: | N/A | | |
Improvement / Building
| Improvement #1: | Residential Bldg | State Code: | 11 | 1744.0 sqft | Value: | $566,947 |
| Bathrooms (#): | 2 (FULL) | Bathrooms (#): | 1 (HALF) | | Bedrooms (#): | 3 | Exterior Wall: | SI/ST | | Fireplace: | SIN 1-AVG | Floor Construction: | FRAME | | Foundation: | CONPR | Heating/Cooling: | HPUMP | | Roof Cover: | COMP |   |   |
|
| | Type | Description | Class CD | Sub Class CD | Year Built | Area |
| | MA | Main Area | 5- | 2S | 1993 | 1052.0 |
| | MA2 | Second Floor Main Area | 4+ | 2S | 1993 | 692.0 |
| | HDECK | House Deck | 4 | * | 1993 | 230.0 |
| | GBLTIN | Builtin Garage | 4 | 2S | 1993 | 544.0 |
| | ADDN | Addition (Table Not Dep) | 4 | * | 1993 | 264.0 |
| | CONCD | Concrete Drive | 4 | * | 1993 | 543.0 |
| | SOLAR | Solar Panel | 4 | * | 2012 | 0.0 |
Sketch
Property Image
Land
| 1 | 5310-1571A | | 1.4700 | 64033.20 | 0.00 | 0.00 | 0.00 | $37,191 | $0 |
| 2 | 5310-1371S | | 1.0000 | 43560.00 | 0.00 | 0.00 | 1.00 | $161,000 | $0 |
Roll Value History
| 2025 | N/A | N/A | N/A | N/A | N/A |
| 2024 | $543,324 | $189,574 | $0 | $732,898 | $732,898 |
| 2023 | $488,784 | $167,340 | $0 | $656,124 | $656,124 |
| 2022 | $444,349 | $159,400 | $0 | $603,749 | $603,749 |
| 2021 | $226,854 | $135,487 | $0 | $362,341 | $362,341 |
Deed and Sales History
| 1 | 05/04/2022 | SWD | Statutory Warranty Deed | DANIEL PAUL GOLDSTEIN | GREG M & ELAINE A MYERS | | | $800,000.00 | 139083 | |
| 2 | 10/01/1999 | QCD | Quit Claim Deed | GOLDSTEIN, DANIEL & ELIZA | BOLLING, FRED & DEBRA | 0 | 0 | $0.00 | 87984 | 0 |
| 3 | 08/18/1999 | BLA | Boundary Line Adjustment | GOLDSTEIN, D/E BOLLING, F | GOLDSTEIN, D/E BOLLING, F/D | 0 | 0 | $0.00 | 87719 | 0 |
| 4 | 03/16/1999 | SWD | Statutory Warranty Deed | BOLLING, JANINE ELAINE | GOLDSTEIN, DANIEL P/ELIZABETH | 0 | 0 | $175,000.00 | 86538 | 0 |
Payout Agreement
| No payout information available.. |