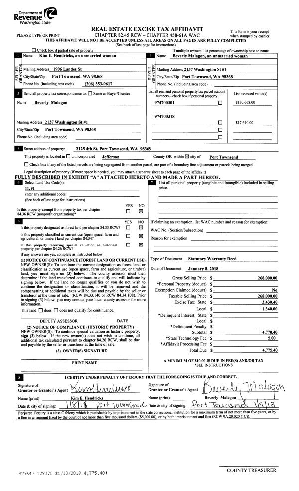
Property
Account |
| Property ID: | 10249 | Abbreviated Legal Description: | S4 T30 R1W SW SW SW SUBJ. TO EASE. |
| Parcel # / Geo ID: | 001043012 | Agent Code: | |
| Type: | Real | | |
| Tax Area: | 0111 - 1-50F1E1H2L1 | Land Use Code | 83 |
| Open Space: | Y | DFL | N |
| Historic Property: | N | Remodel Property: | N |
| Multi-Family Redevelopment: | N | | |
| Township: | 30N | Section: | 4 |
| Range: | 1W |
Location |
| Address: | | Mapsco: | 080/010 |
| Neighborhood: | S 4, 5 & 6 T30 R1W | Map ID: | |
| Neighborhood CD: | 5310 |
Owner |
| Name: | KATHLEEN M WATKINS | Owner ID: | 29985 |
| Mailing Address: | 8557 IRIS CREST WAY ELK GROVE, CA 95624-2834 | % Ownership: | 100.0000000000% |
| | | Exemptions: | |
Pay Tax Due
There is currently No Amount Due on this property.
Taxes and Assessment Details
Property Tax Information as of
10/23/2025
Click on "Statement Details" to expand or collapse a tax statement.
* Please enter a valid date ** Please enter a valid date *
Statement Details |
| 2025 | 235 | STATE - STATE LEVY (SCHOOL) | $5.51 | $5.49 | $0.00 | $0.00 | $11.00 | $0.00 |
| 2025 | 235 | COUNTY - COUNTY LEVIES (CE, DD, VET, MH) | $2.16 | $2.15 | $0.00 | $0.00 | $4.31 | $0.00 |
| 2025 | 235 | CONSERVE - CONSERVATION FUTURES | $0.07 | $0.06 | $0.00 | $0.00 | $0.13 | $0.00 |
| 2025 | 235 | COROADS - COUNTY ROADS (ROADS, DIV TO CE) | $1.74 | $1.73 | $0.00 | $0.00 | $3.47 | $0.00 |
| 2025 | 235 | PORTPT - PORT DISTRICT | $0.89 | $0.87 | $0.00 | $0.00 | $1.76 | $0.00 |
| 2025 | 235 | PUD1 - PUD #1 | $0.14 | $0.14 | $0.00 | $0.00 | $0.28 | $0.00 |
| 2025 | 235 | LIB1 - LIBRARY DIST #1 | $0.67 | $0.67 | $0.00 | $0.00 | $1.34 | $0.00 |
| 2025 | 235 | HD2 - HOSP DIST #2 | $0.13 | $0.12 | $0.00 | $0.00 | $0.25 | $0.00 |
| 2025 | 235 | SD50 - SCHOOL DIST #50 | $4.03 | $4.01 | $0.00 | $0.00 | $8.04 | $0.00 |
| 2025 | 235 | FD1 - FIRE DISTRICT #1 | $2.86 | $2.85 | $0.00 | $0.00 | $5.71 | $0.00 |
| 2025 | 235 | EMS1 - FIRE DIST #1 EMS | $1.10 | $1.10 | $0.00 | $0.00 | $2.20 | $0.00 |
| 2025 | 235 | FPLCA - DNR Landowner Contingency Assmt | $3.00 | $3.00 | $0.00 | $0.00 | $6.00 | $0.00 |
| 2025 | 235 | JCCD - JC Conservation District | $3.00 | $2.99 | $0.00 | $0.00 | $5.99 | $0.00 |
| 2025 | 235 | NWA - Noxious Weed Assessment | $3.50 | $3.50 | $0.00 | $0.00 | $7.00 | $0.00 |
| 2025 | 235 | WAT - Clean Water District | $13.00 | $13.00 | $0.00 | $0.00 | $26.00 | $0.00 |
| 2025 | 235 | TOTAL: | $41.80 | $41.68 | $0.00 | $0.00 | $83.48 | $0.00 |
|
| 2025 | 235 | $41.80 | $41.68 | $0.00 | $0.00 | $83.48 | $0.00 |
Statement Details |
| 2024 | 235 | STATE - STATE LEVY (SCHOOL) | $5.23 | $5.22 | $0.00 | $0.00 | $10.45 | $0.00 |
| 2024 | 235 | COUNTY - COUNTY LEVIES (CE, DD, VET, MH) | $2.26 | $2.23 | $0.00 | $0.00 | $4.49 | $0.00 |
| 2024 | 235 | CONSERVE - CONSERVATION FUTURES | $0.07 | $0.06 | $0.00 | $0.00 | $0.13 | $0.00 |
| 2024 | 235 | COROADS - COUNTY ROADS (ROADS, DIV TO CE) | $1.80 | $1.80 | $0.00 | $0.00 | $3.60 | $0.00 |
| 2024 | 235 | PORTPT - PORT DISTRICT | $0.93 | $0.92 | $0.00 | $0.00 | $1.85 | $0.00 |
| 2024 | 235 | PUD1 - PUD #1 | $0.15 | $0.14 | $0.00 | $0.00 | $0.29 | $0.00 |
| 2024 | 235 | LIB1 - LIBRARY DIST #1 | $0.70 | $0.69 | $0.00 | $0.00 | $1.39 | $0.00 |
| 2024 | 235 | HD2 - HOSP DIST #2 | $0.13 | $0.13 | $0.00 | $0.00 | $0.26 | $0.00 |
| 2024 | 235 | SD50 - SCHOOL DIST #50 | $4.24 | $4.22 | $0.00 | $0.00 | $8.46 | $0.00 |
| 2024 | 235 | FD1 - FIRE DISTRICT #1 | $2.96 | $2.95 | $0.00 | $0.00 | $5.91 | $0.00 |
| 2024 | 235 | EMS1 - FIRE DIST #1 EMS | $1.13 | $1.13 | $0.00 | $0.00 | $2.26 | $0.00 |
| 2024 | 235 | FPLCA - DNR Landowner Contingency Assmt | $3.00 | $3.00 | $0.00 | $0.00 | $6.00 | $0.00 |
| 2024 | 235 | JCCD - JC Conservation District | $3.00 | $2.99 | $0.00 | $0.00 | $5.99 | $0.00 |
| 2024 | 235 | NWA - Noxious Weed Assessment | $3.50 | $3.50 | $0.00 | $0.00 | $7.00 | $0.00 |
| 2024 | 235 | WAT - Clean Water District | $12.50 | $12.50 | $0.00 | $0.00 | $25.00 | $0.00 |
| 2024 | 235 | TOTAL: | $41.60 | $41.48 | $0.00 | $0.00 | $83.08 | $0.00 |
|
| 2024 | 235 | $41.60 | $41.48 | $0.00 | $0.00 | $83.08 | $0.00 |
Statement Details |
| 2023 | 235 | STATE - STATE LEVY (SCHOOL) | $5.16 | $5.15 | $0.00 | $0.00 | $10.31 | $0.00 |
| 2023 | 235 | COUNTY - COUNTY LEVIES (CE, DD, VET, MH) | $2.27 | $2.24 | $0.00 | $0.00 | $4.51 | $0.00 |
| 2023 | 235 | CONSERVE - CONSERVATION FUTURES | $0.07 | $0.06 | $0.00 | $0.00 | $0.13 | $0.00 |
| 2023 | 235 | COROADS - COUNTY ROADS (ROADS, DIV TO CE) | $1.82 | $1.82 | $0.00 | $0.00 | $3.64 | $0.00 |
| 2023 | 235 | PORTPT - PORT DISTRICT | $0.95 | $0.95 | $0.00 | $0.00 | $1.90 | $0.00 |
| 2023 | 235 | PUD1 - PUD #1 | $0.15 | $0.15 | $0.00 | $0.00 | $0.30 | $0.00 |
| 2023 | 235 | LIB1 - LIBRARY DIST #1 | $0.71 | $0.70 | $0.00 | $0.00 | $1.41 | $0.00 |
| 2023 | 235 | HD2 - HOSP DIST #2 | $0.14 | $0.12 | $0.00 | $0.00 | $0.26 | $0.00 |
| 2023 | 235 | SD50 - SCHOOL DIST #50 | $4.10 | $4.08 | $0.00 | $0.00 | $8.18 | $0.00 |
| 2023 | 235 | FD1 - FIRE DISTRICT #1 | $1.86 | $1.85 | $0.00 | $0.00 | $3.71 | $0.00 |
| 2023 | 235 | EMS1 - FIRE DIST #1 EMS | $0.79 | $0.79 | $0.00 | $0.00 | $1.58 | $0.00 |
| 2023 | 235 | FPLCA - DNR Landowner Contingency Assmt | $3.00 | $3.00 | $0.00 | $0.00 | $6.00 | $0.00 |
| 2023 | 235 | JCCD - JC Conservation District | $3.00 | $2.99 | $0.00 | $0.00 | $5.99 | $0.00 |
| 2023 | 235 | NWA - Noxious Weed Assessment | $3.50 | $3.50 | $0.00 | $0.00 | $7.00 | $0.00 |
| 2023 | 235 | WAT - Clean Water District | $12.00 | $12.00 | $0.00 | $0.00 | $24.00 | $0.00 |
| 2023 | 235 | TOTAL: | $39.52 | $39.40 | $0.00 | $0.00 | $78.92 | $0.00 |
|
| 2023 | 235 | $39.52 | $39.40 | $0.00 | $0.00 | $78.92 | $0.00 |
Statement Details |
| 2022 | 235 | STATE - STATE LEVY (SCHOOL) | $5.68 | $5.67 | $0.00 | $0.00 | $11.35 | $0.00 |
| 2022 | 235 | COUNTY - COUNTY LEVIES (CE, DD, VET, MH) | $2.55 | $2.51 | $0.00 | $0.00 | $5.06 | $0.00 |
| 2022 | 235 | CONSERVE - CONSERVATION FUTURES | $0.08 | $0.07 | $0.00 | $0.00 | $0.15 | $0.00 |
| 2022 | 235 | COROADS - COUNTY ROADS (ROADS, DIV TO CE) | $2.06 | $2.05 | $0.00 | $0.00 | $4.11 | $0.00 |
| 2022 | 235 | PORTPT - PORT DISTRICT | $1.08 | $1.08 | $0.00 | $0.00 | $2.16 | $0.00 |
| 2022 | 235 | PUD1 - PUD #1 | $0.17 | $0.17 | $0.00 | $0.00 | $0.34 | $0.00 |
| 2022 | 235 | LIB1 - LIBRARY DIST #1 | $0.80 | $0.79 | $0.00 | $0.00 | $1.59 | $0.00 |
| 2022 | 235 | HD2 - HOSP DIST #2 | $0.16 | $0.14 | $0.00 | $0.00 | $0.30 | $0.00 |
| 2022 | 235 | SD50 - SCHOOL DIST #50 | $4.21 | $4.20 | $0.00 | $0.00 | $8.41 | $0.00 |
| 2022 | 235 | FD1 - FIRE DISTRICT #1 | $2.08 | $2.07 | $0.00 | $0.00 | $4.15 | $0.00 |
| 2022 | 235 | EMS1 - FIRE DIST #1 EMS | $0.88 | $0.88 | $0.00 | $0.00 | $1.76 | $0.00 |
| 2022 | 235 | FPLCA - DNR Landowner Contingency Assmt | $3.00 | $3.00 | $0.00 | $0.00 | $6.00 | $0.00 |
| 2022 | 235 | JCCD - JC Conservation District | $3.00 | $2.99 | $0.00 | $0.00 | $5.99 | $0.00 |
| 2022 | 235 | NWA - Noxious Weed Assessment | $3.50 | $3.50 | $0.00 | $0.00 | $7.00 | $0.00 |
| 2022 | 235 | WAT - Clean Water District | $11.50 | $11.50 | $0.00 | $0.00 | $23.00 | $0.00 |
| 2022 | 235 | TOTAL: | $40.75 | $40.62 | $0.00 | $0.00 | $81.37 | $0.00 |
|
| 2022 | 235 | $40.75 | $40.62 | $0.00 | $0.00 | $81.37 | $0.00 |
Values
| (+) Improvement Homesite Value: | + | $0 | |
| (+) Improvement Non-Homesite Value: | + | $1,656 | |
| (+) Land Homesite Value: | + | $0 | |
| (+) Land Non-Homesite Value: | + | $0 | |
| (+) Curr Use (HS): | + | $0 | $0 |
| (+) Curr Use (NHS): | + | $302,450 | $3,000 |
| | | -------------------------- | |
| (=) Market Value: | = | $304,106 | |
| (–) Productivity Loss: | – | $299,450 | |
| | | -------------------------- | |
| (=) Subtotal: | = | $4,656 | |
| (+) Senior Appraised Value: | + | $0 | |
| (+) Non-Senior Appraised Value: | + | $4,656 | |
| | | -------------------------- | |
| (=) Total Appraised Value: | = | $4,656 | |
| (–) Senior Exemption Loss: | – | $0 | |
| (–) Exemption Loss: | – | $0 | |
| | | -------------------------- | |
| (=) Taxable Value: | = | $4,656 | |
Taxing Jurisdiction
| Owner: | KATHLEEN M WATKINS | | |
| % Ownership: | 100.0000000000% | | |
| Total Value: | N/A | | |
| Tax Area: | 0111 - 1-50F1E1H2L1 |
| CE | COUNTY CURRENT EXPENSE | N/A | N/A | N/A | N/A | | |
| CNTYDD | DEVELOPMENTAL DISABILITIES | N/A | N/A | N/A | N/A | | |
| CNTYVET | VETERANS RELIEF | N/A | N/A | N/A | N/A | | |
| MENTAL | MENTAL HEALTH | N/A | N/A | N/A | N/A | | |
| ROADS | COUNTY ROADS | N/A | N/A | N/A | N/A | | |
| ROADSCU | COUNTY ROADS TO CUR EXP | N/A | N/A | N/A | N/A | | |
| HOSP2CASH | HOSP DIST #2 GENERAL | N/A | N/A | N/A | N/A | | |
| SCH50BOND | SCHOOL DIST #50 BOND 2016 | N/A | N/A | N/A | N/A | | |
| SCH50CP | SCHOOL DIST #50 CAP PROJ | N/A | N/A | N/A | N/A | | |
| SCH50MO | SCHOOL DIST #50 EP & O | N/A | N/A | N/A | N/A | | |
| CONSERVE | CONSERVATION FUTURES | N/A | N/A | N/A | N/A | | |
| EMS1 | FIRE DIST #1 EMS | N/A | N/A | N/A | N/A | | |
| FD1 | FIRE DIST #1 GENERAL | N/A | N/A | N/A | N/A | | |
| LIB1 | LIBRARY DIST #1 GENERAL | N/A | N/A | N/A | N/A | | |
| PORTPT | PORT OF PT GENERAL | N/A | N/A | N/A | N/A | | |
| PORTPTIDD | PORT OF PT IDD 2019 | N/A | N/A | N/A | N/A | | |
| PUD1 | PUD #1 GENERAL | N/A | N/A | N/A | N/A | | |
| STATE | STATE SCHOOL PART 1 | N/A | N/A | N/A | N/A | | |
| STATE2 | STATE SCHOOL PART 2 | N/A | N/A | N/A | N/A | | |
| | Total Tax Rate: | N/A | | | | | |
| | | | | Taxes w/Current Exemptions: | N/A | | |
| | | | | Taxes w/o Exemptions: | N/A | | |
Improvement / Building
| Improvement #1: | Residential Bldg | State Code: | 19 | 320.0 sqft | Value: | $1,656 |
| Exterior Wall: | SI/ST | Floor Construction: | FRAME | | Foundation: | PO&BL | Roof Cover: | COMP |
|
Sketch
Property Image
Land
| 1 | 5310-1671A | | 9.0000 | 392040.00 | 0.00 | 0.00 | 0.00 | $175,950 | $2,700 |
| 2 | 5310-1371S | | 1.0000 | 43560.00 | 0.00 | 0.00 | 1.00 | $126,500 | $300 |
Roll Value History
| 2025 | N/A | N/A | N/A | N/A | N/A |
| 2024 | $1,587 | $289,300 | $3,000 | $4,587 | $4,587 |
| 2023 | $1,518 | $263,000 | $3,000 | $4,518 | $4,518 |
| 2022 | $1,380 | $245,000 | $3,000 | $4,380 | $4,380 |
| 2021 | $1,150 | $181,390 | $3,000 | $4,150 | $4,150 |
Deed and Sales History
| 1 | 09/21/2009 | WD | Warranty Deed | YESBERGER TRSTE, MILDRED | WATKINS, KATHLEEN MARY | 0 | 0 | $0.00 | 113745 | 0 |
| 2 | 11/20/2008 | TRED | Trustee Deed | YESBERGER, MILDRED MAUDE | YESBERGER, MILDRED MAUDE TRUST | 0 | 0 | $0.00 | 112328 | 0 |
Payout Agreement
| No payout information available.. |