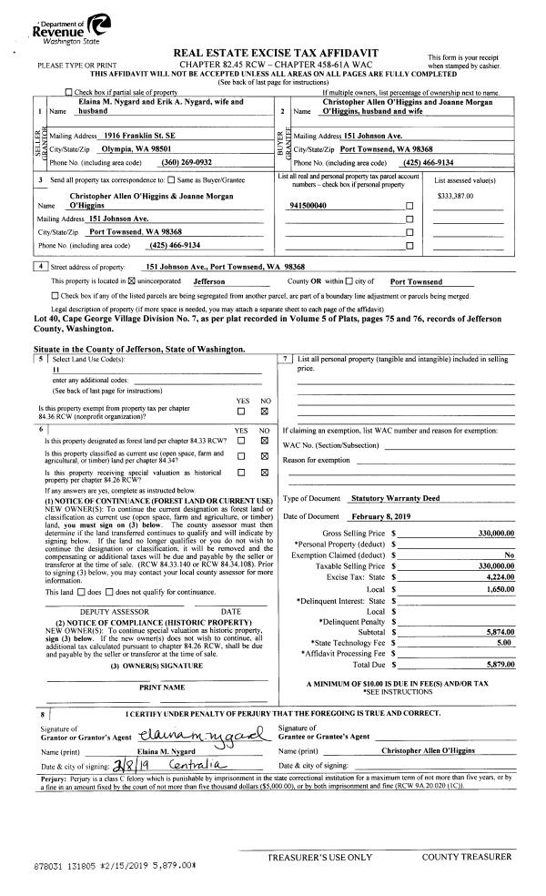
Property
Account |
| Property ID: | 10251 | Abbreviated Legal Description: | S4 T30 R1W S1/2 NE SE SW |
| Parcel # / Geo ID: | 001043014 | Agent Code: | |
| Type: | Real | | |
| Tax Area: | 0110 - C-50F1E1H2 | Land Use Code | 11 |
| Open Space: | N | DFL | N |
| Historic Property: | N | Remodel Property: | N |
| Multi-Family Redevelopment: | N | | |
| Township: | 30N | Section: | 4 |
| Range: | 1W |
Location |
| Address: | 2320 IVY ST PORT TOWNSEND, WA 98368 | Mapsco: | 156/010 |
| Neighborhood: | S 1/2 S4-30-1W INC HAMILTON HEIGHTS & PHOENIX | Map ID: | |
| Neighborhood CD: | 6100 |
Owner |
| Name: | CHARLES W O'SHEA | Owner ID: | 23827 |
| Mailing Address: | CATHY L BEATTY PO BOX 385 PORT TOWNSEND, WA 98368-0385 | % Ownership: | 100.0000000000% |
| | | Exemptions: | |
Pay Tax Due
Select the appropriate checkbox next to the year to be paid. Multiple years may be selected.
*Convenience Fee not included
Taxes and Assessment Details
Property Tax Information as of
10/23/2025
Click on "Statement Details" to expand or collapse a tax statement.
* Please enter a valid date ** Please enter a valid date *
Statement Details |
| 2025 | 237 | STATE - STATE LEVY (SCHOOL) | $702.73 | $702.72 | $0.00 | $0.00 | $702.73 | $702.72 |
| 2025 | 237 | COUNTY - COUNTY LEVIES (CE, DD, VET, MH) | $276.36 | $276.33 | $0.00 | $0.00 | $276.36 | $276.33 |
| 2025 | 237 | CONSERVE - CONSERVATION FUTURES | $8.29 | $8.28 | $0.00 | $0.00 | $8.29 | $8.28 |
| 2025 | 237 | CITYPT - CITY OF PT | $398.52 | $398.51 | $0.00 | $0.00 | $398.52 | $398.51 |
| 2025 | 237 | PORTPT - PORT DISTRICT | $112.76 | $112.76 | $0.00 | $0.00 | $112.76 | $112.76 |
| 2025 | 237 | PUD1 - PUD #1 | $18.08 | $18.08 | $0.00 | $0.00 | $18.08 | $18.08 |
| 2025 | 237 | HD2 - HOSP DIST #2 | $16.12 | $16.12 | $0.00 | $0.00 | $16.12 | $16.12 |
| 2025 | 237 | SD50 - SCHOOL DIST #50 | $513.58 | $513.57 | $0.00 | $0.00 | $513.58 | $513.57 |
| 2025 | 237 | FD1 - FIRE DISTRICT #1 | $364.67 | $364.66 | $0.00 | $0.00 | $364.67 | $364.66 |
| 2025 | 237 | EMS1 - FIRE DIST #1 EMS | $140.26 | $140.26 | $0.00 | $0.00 | $140.26 | $140.26 |
| 2025 | 237 | FP - DNR Forest Fire Protection Assmt | $8.50 | $8.50 | $0.00 | $0.00 | $8.50 | $8.50 |
| 2025 | 237 | FPLCA - DNR Landowner Contingency Assmt | $3.00 | $3.00 | $0.00 | $0.00 | $3.00 | $3.00 |
| 2025 | 237 | JCCD - JC Conservation District | $2.75 | $2.75 | $0.00 | $0.00 | $2.75 | $2.75 |
| 2025 | 237 | NWA - Noxious Weed Assessment | $2.75 | $2.75 | $0.00 | $0.00 | $2.75 | $2.75 |
| 2025 | 237 | OSS - On Site Septic | $21.50 | $21.50 | $0.00 | $0.00 | $21.50 | $21.50 |
| 2025 | 237 | WAT - Clean Water District | $13.00 | $13.00 | $0.00 | $0.00 | $13.00 | $13.00 |
| 2025 | 237 | FP ADMIN - FP ADMIN | $0.50 | $0.00 | $0.00 | $0.00 | $0.50 | $0.00 |
| 2025 | 237 | TOTAL: | $2603.37 | $2602.79 | $0.00 | $0.00 | $2603.37 | $2602.79 |
|
| 2025 | 237 | $2603.37 | $2602.79 | $0.00 | $0.00 | $2603.37 | $2602.79 |
Statement Details |
| 2024 | 237 | STATE - STATE LEVY (SCHOOL) | $637.08 | $637.06 | $0.00 | $0.00 | $1274.14 | $0.00 |
| 2024 | 237 | COUNTY - COUNTY LEVIES (CE, DD, VET, MH) | $272.61 | $272.61 | $0.00 | $0.00 | $545.22 | $0.00 |
| 2024 | 237 | CONSERVE - CONSERVATION FUTURES | $8.18 | $8.17 | $0.00 | $0.00 | $16.35 | $0.00 |
| 2024 | 237 | CITYPT - CITY OF PT | $389.53 | $389.51 | $0.00 | $0.00 | $779.04 | $0.00 |
| 2024 | 237 | PORTPT - PORT DISTRICT | $112.60 | $112.60 | $0.00 | $0.00 | $225.20 | $0.00 |
| 2024 | 237 | PUD1 - PUD #1 | $17.91 | $17.90 | $0.00 | $0.00 | $35.81 | $0.00 |
| 2024 | 237 | HD2 - HOSP DIST #2 | $15.91 | $15.90 | $0.00 | $0.00 | $31.81 | $0.00 |
| 2024 | 237 | SD50 - SCHOOL DIST #50 | $515.42 | $515.41 | $0.00 | $0.00 | $1030.83 | $0.00 |
| 2024 | 237 | FD1 - FIRE DISTRICT #1 | $360.46 | $360.45 | $0.00 | $0.00 | $720.91 | $0.00 |
| 2024 | 237 | EMS1 - FIRE DIST #1 EMS | $137.68 | $137.68 | $0.00 | $0.00 | $275.36 | $0.00 |
| 2024 | 237 | FP - DNR Forest Fire Protection Assmt | $8.50 | $8.50 | $0.00 | $0.00 | $17.00 | $0.00 |
| 2024 | 237 | FPLCA - DNR Landowner Contingency Assmt | $3.00 | $3.00 | $0.00 | $0.00 | $6.00 | $0.00 |
| 2024 | 237 | JCCD - JC Conservation District | $2.75 | $2.75 | $0.00 | $0.00 | $5.50 | $0.00 |
| 2024 | 237 | NWA - Noxious Weed Assessment | $2.75 | $2.75 | $0.00 | $0.00 | $5.50 | $0.00 |
| 2024 | 237 | OSS - On Site Septic | $21.00 | $21.00 | $0.00 | $0.00 | $42.00 | $0.00 |
| 2024 | 237 | WAT - Clean Water District | $12.50 | $12.50 | $0.00 | $0.00 | $25.00 | $0.00 |
| 2024 | 237 | FP ADMIN - FP ADMIN | $0.50 | $0.00 | $0.00 | $0.00 | $0.50 | $0.00 |
| 2024 | 237 | TOTAL: | $2518.38 | $2517.79 | $0.00 | $0.00 | $5036.17 | $0.00 |
|
| 2024 | 237 | $2518.38 | $2517.79 | $0.00 | $0.00 | $5036.17 | $0.00 |
Statement Details |
| 2023 | 237 | STATE - STATE LEVY (SCHOOL) | $633.20 | $633.20 | $0.00 | $0.00 | $1266.40 | $0.00 |
| 2023 | 237 | COUNTY - COUNTY LEVIES (CE, DD, VET, MH) | $276.31 | $276.31 | $0.00 | $0.00 | $552.62 | $0.00 |
| 2023 | 237 | CONSERVE - CONSERVATION FUTURES | $8.29 | $8.28 | $0.00 | $0.00 | $16.57 | $0.00 |
| 2023 | 237 | CITYPT - CITY OF PT | $390.53 | $390.50 | $0.00 | $0.00 | $781.03 | $0.00 |
| 2023 | 237 | PORTPT - PORT DISTRICT | $116.40 | $116.39 | $0.00 | $0.00 | $232.79 | $0.00 |
| 2023 | 237 | PUD1 - PUD #1 | $18.32 | $18.31 | $0.00 | $0.00 | $36.63 | $0.00 |
| 2023 | 237 | HD2 - HOSP DIST #2 | $16.13 | $16.12 | $0.00 | $0.00 | $32.25 | $0.00 |
| 2023 | 237 | SD50 - SCHOOL DIST #50 | $502.45 | $502.45 | $0.00 | $0.00 | $1004.90 | $0.00 |
| 2023 | 237 | FD1 - FIRE DISTRICT #1 | $227.62 | $227.62 | $0.00 | $0.00 | $455.24 | $0.00 |
| 2023 | 237 | EMS1 - FIRE DIST #1 EMS | $96.83 | $96.82 | $0.00 | $0.00 | $193.65 | $0.00 |
| 2023 | 237 | FP - DNR Forest Fire Protection Assmt | $8.50 | $8.50 | $0.00 | $0.00 | $17.00 | $0.00 |
| 2023 | 237 | FPLCA - DNR Landowner Contingency Assmt | $3.00 | $3.00 | $0.00 | $0.00 | $6.00 | $0.00 |
| 2023 | 237 | JCCD - JC Conservation District | $2.75 | $2.75 | $0.00 | $0.00 | $5.50 | $0.00 |
| 2023 | 237 | NWA - Noxious Weed Assessment | $2.75 | $2.75 | $0.00 | $0.00 | $5.50 | $0.00 |
| 2023 | 237 | OSS - On Site Septic | $20.50 | $20.50 | $0.00 | $0.00 | $41.00 | $0.00 |
| 2023 | 237 | WAT - Clean Water District | $12.00 | $12.00 | $0.00 | $0.00 | $24.00 | $0.00 |
| 2023 | 237 | FP ADMIN - FP ADMIN | $0.50 | $0.00 | $0.00 | $0.00 | $0.50 | $0.00 |
| 2023 | 237 | TOTAL: | $2336.08 | $2335.50 | $0.00 | $0.00 | $4671.58 | $0.00 |
|
| 2023 | 237 | $2336.08 | $2335.50 | $0.00 | $0.00 | $4671.58 | $0.00 |
Statement Details |
| 2022 | 237 | STATE - STATE LEVY (SCHOOL) | $630.46 | $630.46 | $0.00 | $0.00 | $1260.92 | $0.00 |
| 2022 | 237 | COUNTY - COUNTY LEVIES (CE, DD, VET, MH) | $280.93 | $280.89 | $0.00 | $0.00 | $561.82 | $0.00 |
| 2022 | 237 | CONSERVE - CONSERVATION FUTURES | $8.43 | $8.42 | $0.00 | $0.00 | $16.85 | $0.00 |
| 2022 | 237 | CITYPT - CITY OF PT | $361.47 | $361.46 | $0.00 | $0.00 | $722.93 | $0.00 |
| 2022 | 237 | PORTPT - PORT DISTRICT | $120.26 | $120.25 | $0.00 | $0.00 | $240.51 | $0.00 |
| 2022 | 237 | PUD1 - PUD #1 | $18.79 | $18.78 | $0.00 | $0.00 | $37.57 | $0.00 |
| 2022 | 237 | HD2 - HOSP DIST #2 | $16.40 | $16.39 | $0.00 | $0.00 | $32.79 | $0.00 |
| 2022 | 237 | SD50 - SCHOOL DIST #50 | $467.22 | $467.19 | $0.00 | $0.00 | $934.41 | $0.00 |
| 2022 | 237 | FD1 - FIRE DISTRICT #1 | $230.45 | $230.44 | $0.00 | $0.00 | $460.89 | $0.00 |
| 2022 | 237 | EMS1 - FIRE DIST #1 EMS | $98.03 | $98.02 | $0.00 | $0.00 | $196.05 | $0.00 |
| 2022 | 237 | FP - DNR Forest Fire Protection Assmt | $8.50 | $8.50 | $0.00 | $0.00 | $17.00 | $0.00 |
| 2022 | 237 | FPLCA - DNR Landowner Contingency Assmt | $3.00 | $3.00 | $0.00 | $0.00 | $6.00 | $0.00 |
| 2022 | 237 | JCCD - JC Conservation District | $2.75 | $2.75 | $0.00 | $0.00 | $5.50 | $0.00 |
| 2022 | 237 | NWA - Noxious Weed Assessment | $2.75 | $2.75 | $0.00 | $0.00 | $5.50 | $0.00 |
| 2022 | 237 | OSS - On Site Septic | $19.50 | $19.50 | $0.00 | $0.00 | $39.00 | $0.00 |
| 2022 | 237 | WAT - Clean Water District | $11.50 | $11.50 | $0.00 | $0.00 | $23.00 | $0.00 |
| 2022 | 237 | FP ADMIN - FP ADMIN | $0.50 | $0.00 | $0.00 | $0.00 | $0.50 | $0.00 |
| 2022 | 237 | TOTAL: | $2280.94 | $2280.30 | $0.00 | $0.00 | $4561.24 | $0.00 |
|
| 2022 | 237 | $2280.94 | $2280.30 | $0.00 | $0.00 | $4561.24 | $0.00 |
Values
| (+) Improvement Homesite Value: | + | $0 | |
| (+) Improvement Non-Homesite Value: | + | $343,081 | |
| (+) Land Homesite Value: | + | $0 | |
| (+) Land Non-Homesite Value: | + | $239,800 | |
| (+) Curr Use (HS): | + | $0 | $0 |
| (+) Curr Use (NHS): | + | $0 | $0 |
| | | -------------------------- | |
| (=) Market Value: | = | $582,881 | |
| (–) Productivity Loss: | – | $0 | |
| | | -------------------------- | |
| (=) Subtotal: | = | $582,881 | |
| (+) Senior Appraised Value: | + | $0 | |
| (+) Non-Senior Appraised Value: | + | $582,881 | |
| | | -------------------------- | |
| (=) Total Appraised Value: | = | $582,881 | |
| (–) Senior Exemption Loss: | – | $0 | |
| (–) Exemption Loss: | – | $0 | |
| | | -------------------------- | |
| (=) Taxable Value: | = | $582,881 | |
Taxing Jurisdiction
| Owner: | CHARLES W O'SHEA | | |
| % Ownership: | 100.0000000000% | | |
| Total Value: | N/A | | |
| Tax Area: | 0110 - C-50F1E1H2 |
| CE | COUNTY CURRENT EXPENSE | N/A | N/A | N/A | N/A | | |
| CNTYDD | DEVELOPMENTAL DISABILITIES | N/A | N/A | N/A | N/A | | |
| CNTYVET | VETERANS RELIEF | N/A | N/A | N/A | N/A | | |
| MENTAL | MENTAL HEALTH | N/A | N/A | N/A | N/A | | |
| PTGEN | CITY OF PT GENERAL | N/A | N/A | N/A | N/A | | |
| PTLLL | CITY OF PT - LIBRARY LID LIFT | N/A | N/A | N/A | N/A | | |
| PTMVBOND | CITY OF PT MV BOND | N/A | N/A | N/A | N/A | | |
| HOSP2CASH | HOSP DIST #2 GENERAL | N/A | N/A | N/A | N/A | | |
| SCH50BOND | SCHOOL DIST #50 BOND 2016 | N/A | N/A | N/A | N/A | | |
| SCH50CP | SCHOOL DIST #50 CAP PROJ | N/A | N/A | N/A | N/A | | |
| SCH50MO | SCHOOL DIST #50 EP & O | N/A | N/A | N/A | N/A | | |
| CONSERVE | CONSERVATION FUTURES | N/A | N/A | N/A | N/A | | |
| EMS1 | FIRE DIST #1 EMS | N/A | N/A | N/A | N/A | | |
| FD1 | FIRE DIST #1 GENERAL | N/A | N/A | N/A | N/A | | |
| PORTPT | PORT OF PT GENERAL | N/A | N/A | N/A | N/A | | |
| PORTPTIDD | PORT OF PT IDD 2019 | N/A | N/A | N/A | N/A | | |
| PUD1 | PUD #1 GENERAL | N/A | N/A | N/A | N/A | | |
| STATE | STATE SCHOOL PART 1 | N/A | N/A | N/A | N/A | | |
| STATE2 | STATE SCHOOL PART 2 | N/A | N/A | N/A | N/A | | |
| | Total Tax Rate: | N/A | | | | | |
| | | | | Taxes w/Current Exemptions: | N/A | | |
| | | | | Taxes w/o Exemptions: | N/A | | |
Improvement / Building
| Improvement #1: | Residential Bldg | State Code: | 11 | 1596.0 sqft | Value: | $343,081 |
| Bathrooms (#): | 2 (FULL) | Bathrooms (#): | 1 (HALF) | | Bedrooms (#): | 3 | Exterior Wall: | SI/ST | | Fireplace: | WD ST-GOOD | Floor Construction: | FRAME | | Foundation: | CONPR | Heating/Cooling: | ELBB | | Roof Cover: | COMP |   |   |
|
| | Type | Description | Class CD | Sub Class CD | Year Built | Area |
| | MA | Main Area | 3+ | 2S | 1989 | 924.0 |
| | MA2 | Second Floor Main Area | 3+ | 2S | 1989 | 672.0 |
| | HBAL | House Balcony | 3 | * | 1989 | 28.0 |
| | HCPOR | House Concrete Porch | 3 | * | 1989 | 192.0 |
| | HDECK | House Deck | 3 | * | 1989 | 574.0 |
| | GDET | Detached Garage | 4 | 2S | 1989 | 864.0 |
| | ADDN | Addition (Table Not Dep) | 4 | * | 1989 | 384.0 |
| | HWPOR | House Wood Porch | 3 | * | 1989 | 10.0 |
| | PATIO | House Patio | 3 | * | 1989 | 70.6 |
| | CONCD | Concrete Drive | 3 | * | 1989 | 600.0 |
| | HWPOR | House Wood Porch | 3 | * | 1989 | 28.0 |
Sketch
Property Image
Land
| 1 | 6100-1385S | | 1.0000 | 43560.00 | 0.00 | 0.00 | 1.00 | $162,000 | $0 |
| 2 | 1573A | | 3.8900 | 169448.40 | 0.00 | 0.00 | 0.00 | $77,800 | $0 |
Roll Value History
| 2025 | N/A | N/A | N/A | N/A | N/A |
| 2024 | $345,730 | $240,356 | $0 | $586,086 | $586,086 |
| 2023 | $330,699 | $220,020 | $0 | $550,719 | $550,719 |
| 2022 | $330,698 | $207,240 | $0 | $537,938 | $537,938 |
| 2021 | $273,530 | $187,627 | $0 | $461,157 | $461,157 |
Deed and Sales History
Payout Agreement
| No payout information available.. |