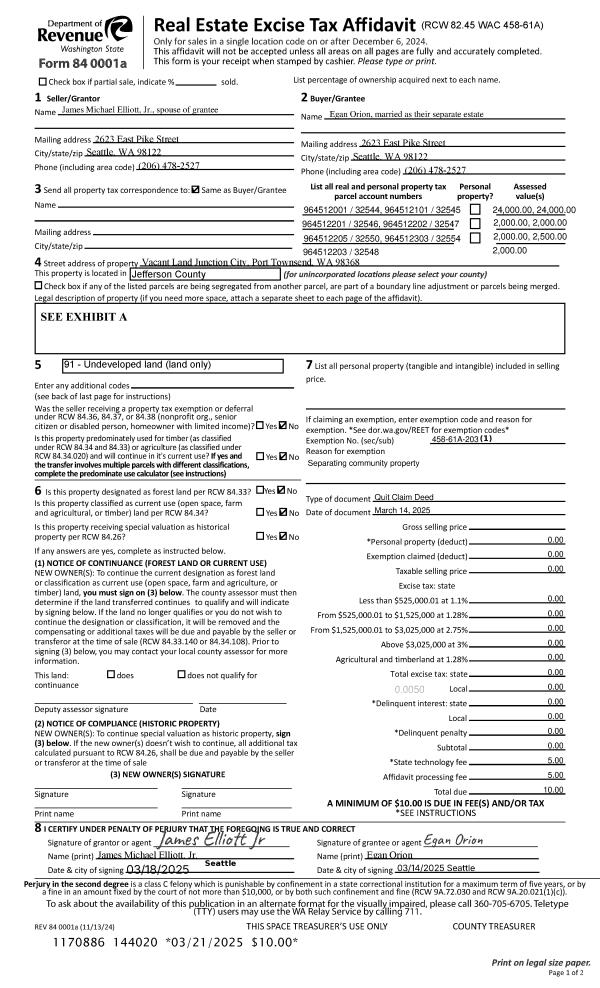
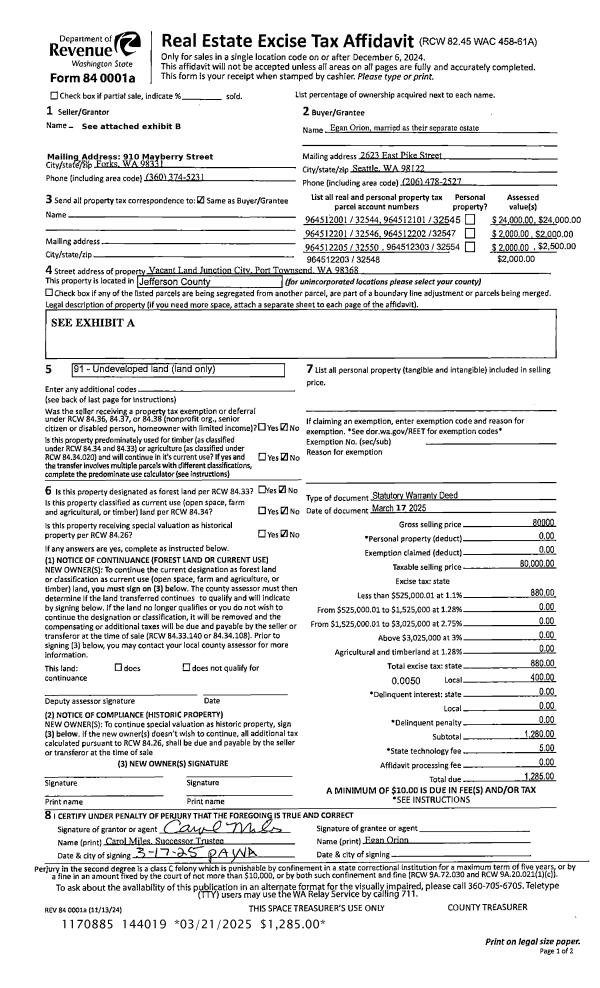
Property
Account |
| Property ID: | 10253 | Abbreviated Legal Description: | S4 T30 R1W TAX 73 BND BY LLA#103188 |
| Parcel # / Geo ID: | 001043017 | Agent Code: | |
| Type: | Real | | |
| Tax Area: | 0110 - C-50F1E1H2 | Land Use Code | 11 |
| Open Space: | N | DFL | N |
| Historic Property: | N | Remodel Property: | N |
| Multi-Family Redevelopment: | N | | |
| Township: | 30N | Section: | 4 |
| Range: | 1W |
Location |
| Address: | 2145 IVY ST PORT TOWNSEND, WA 98368 | Mapsco: | 156/049 |
| Neighborhood: | S 1/2 S4-30-1W INC HAMILTON HEIGHTS & PHOENIX | Map ID: | |
| Neighborhood CD: | 6100 |
Owner |
| Name: | STEPHEN C EVANS TRUSTEE | Owner ID: | 15388 |
| Mailing Address: | MONICA J FLETCHER TRUSTEE EVANS & FLETCHER TRUST 2145 IVY ST PORT TOWNSEND, WA 98368-6829 | % Ownership: | 100.0000000000% |
| | | Exemptions: | |
Pay Tax Due
Select the appropriate checkbox next to the year to be paid. Multiple years may be selected.
*Convenience Fee not included
Taxes and Assessment Details
Property Tax Information as of
10/23/2025
Click on "Statement Details" to expand or collapse a tax statement.
* Please enter a valid date ** Please enter a valid date *
Statement Details |
| 2025 | 239 | STATE - STATE LEVY (SCHOOL) | $1328.01 | $1328.01 | $0.00 | $0.00 | $1328.01 | $1328.01 |
| 2025 | 239 | COUNTY - COUNTY LEVIES (CE, DD, VET, MH) | $522.24 | $522.22 | $0.00 | $0.00 | $522.24 | $522.22 |
| 2025 | 239 | CONSERVE - CONSERVATION FUTURES | $15.66 | $15.66 | $0.00 | $0.00 | $15.66 | $15.66 |
| 2025 | 239 | CITYPT - CITY OF PT | $753.13 | $753.10 | $0.00 | $0.00 | $753.13 | $753.10 |
| 2025 | 239 | PORTPT - PORT DISTRICT | $213.11 | $213.10 | $0.00 | $0.00 | $213.11 | $213.10 |
| 2025 | 239 | PUD1 - PUD #1 | $34.17 | $34.17 | $0.00 | $0.00 | $34.17 | $34.17 |
| 2025 | 239 | HD2 - HOSP DIST #2 | $30.47 | $30.47 | $0.00 | $0.00 | $30.47 | $30.47 |
| 2025 | 239 | SD50 - SCHOOL DIST #50 | $970.56 | $970.55 | $0.00 | $0.00 | $970.56 | $970.55 |
| 2025 | 239 | FD1 - FIRE DISTRICT #1 | $689.15 | $689.14 | $0.00 | $0.00 | $689.15 | $689.14 |
| 2025 | 239 | EMS1 - FIRE DIST #1 EMS | $265.07 | $265.06 | $0.00 | $0.00 | $265.07 | $265.06 |
| 2025 | 239 | FP - DNR Forest Fire Protection Assmt | $8.50 | $8.50 | $0.00 | $0.00 | $8.50 | $8.50 |
| 2025 | 239 | FPLCA - DNR Landowner Contingency Assmt | $3.00 | $3.00 | $0.00 | $0.00 | $3.00 | $3.00 |
| 2025 | 239 | JCCD - JC Conservation District | $2.75 | $2.75 | $0.00 | $0.00 | $2.75 | $2.75 |
| 2025 | 239 | NWA - Noxious Weed Assessment | $2.75 | $2.75 | $0.00 | $0.00 | $2.75 | $2.75 |
| 2025 | 239 | FP ADMIN - FP ADMIN | $0.50 | $0.00 | $0.00 | $0.00 | $0.50 | $0.00 |
| 2025 | 239 | TOTAL: | $4839.07 | $4838.48 | $0.00 | $0.00 | $4839.07 | $4838.48 |
|
| 2025 | 239 | $4839.07 | $4838.48 | $0.00 | $0.00 | $4839.07 | $4838.48 |
Statement Details |
| 2024 | 239 | STATE - STATE LEVY (SCHOOL) | $1214.86 | $1214.85 | $0.00 | $0.00 | $2429.71 | $0.00 |
| 2024 | 239 | COUNTY - COUNTY LEVIES (CE, DD, VET, MH) | $519.86 | $519.83 | $0.00 | $0.00 | $1039.69 | $0.00 |
| 2024 | 239 | CONSERVE - CONSERVATION FUTURES | $15.59 | $15.59 | $0.00 | $0.00 | $31.18 | $0.00 |
| 2024 | 239 | CITYPT - CITY OF PT | $742.80 | $742.78 | $0.00 | $0.00 | $1485.58 | $0.00 |
| 2024 | 239 | PORTPT - PORT DISTRICT | $214.72 | $214.72 | $0.00 | $0.00 | $429.44 | $0.00 |
| 2024 | 239 | PUD1 - PUD #1 | $34.15 | $34.14 | $0.00 | $0.00 | $68.29 | $0.00 |
| 2024 | 239 | HD2 - HOSP DIST #2 | $30.33 | $30.33 | $0.00 | $0.00 | $60.66 | $0.00 |
| 2024 | 239 | SD50 - SCHOOL DIST #50 | $982.88 | $982.86 | $0.00 | $0.00 | $1965.74 | $0.00 |
| 2024 | 239 | FD1 - FIRE DISTRICT #1 | $687.36 | $687.36 | $0.00 | $0.00 | $1374.72 | $0.00 |
| 2024 | 239 | EMS1 - FIRE DIST #1 EMS | $262.55 | $262.54 | $0.00 | $0.00 | $525.09 | $0.00 |
| 2024 | 239 | FP - DNR Forest Fire Protection Assmt | $8.50 | $8.50 | $0.00 | $0.00 | $17.00 | $0.00 |
| 2024 | 239 | FPLCA - DNR Landowner Contingency Assmt | $3.00 | $3.00 | $0.00 | $0.00 | $6.00 | $0.00 |
| 2024 | 239 | JCCD - JC Conservation District | $2.75 | $2.75 | $0.00 | $0.00 | $5.50 | $0.00 |
| 2024 | 239 | NWA - Noxious Weed Assessment | $2.75 | $2.75 | $0.00 | $0.00 | $5.50 | $0.00 |
| 2024 | 239 | FP ADMIN - FP ADMIN | $0.50 | $0.00 | $0.00 | $0.00 | $0.50 | $0.00 |
| 2024 | 239 | TOTAL: | $4722.60 | $4722.00 | $0.00 | $0.00 | $9444.60 | $0.00 |
|
| 2024 | 239 | $4722.60 | $4722.00 | $0.00 | $0.00 | $9444.60 | $0.00 |
Statement Details |
| 2023 | 239 | STATE - STATE LEVY (SCHOOL) | $1222.50 | $1222.49 | $0.00 | $0.00 | $2444.99 | $0.00 |
| 2023 | 239 | COUNTY - COUNTY LEVIES (CE, DD, VET, MH) | $533.47 | $533.45 | $0.00 | $0.00 | $1066.92 | $0.00 |
| 2023 | 239 | CONSERVE - CONSERVATION FUTURES | $16.00 | $15.99 | $0.00 | $0.00 | $31.99 | $0.00 |
| 2023 | 239 | CITYPT - CITY OF PT | $753.96 | $753.96 | $0.00 | $0.00 | $1507.92 | $0.00 |
| 2023 | 239 | PORTPT - PORT DISTRICT | $224.73 | $224.72 | $0.00 | $0.00 | $449.45 | $0.00 |
| 2023 | 239 | PUD1 - PUD #1 | $35.36 | $35.36 | $0.00 | $0.00 | $70.72 | $0.00 |
| 2023 | 239 | HD2 - HOSP DIST #2 | $31.13 | $31.13 | $0.00 | $0.00 | $62.26 | $0.00 |
| 2023 | 239 | SD50 - SCHOOL DIST #50 | $970.07 | $970.07 | $0.00 | $0.00 | $1940.14 | $0.00 |
| 2023 | 239 | FD1 - FIRE DISTRICT #1 | $439.47 | $439.46 | $0.00 | $0.00 | $878.93 | $0.00 |
| 2023 | 239 | EMS1 - FIRE DIST #1 EMS | $186.94 | $186.94 | $0.00 | $0.00 | $373.88 | $0.00 |
| 2023 | 239 | FP - DNR Forest Fire Protection Assmt | $8.50 | $8.50 | $0.00 | $0.00 | $17.00 | $0.00 |
| 2023 | 239 | FPLCA - DNR Landowner Contingency Assmt | $3.00 | $3.00 | $0.00 | $0.00 | $6.00 | $0.00 |
| 2023 | 239 | JCCD - JC Conservation District | $2.75 | $2.75 | $0.00 | $0.00 | $5.50 | $0.00 |
| 2023 | 239 | NWA - Noxious Weed Assessment | $2.75 | $2.75 | $0.00 | $0.00 | $5.50 | $0.00 |
| 2023 | 239 | FP ADMIN - FP ADMIN | $0.50 | $0.00 | $0.00 | $0.00 | $0.50 | $0.00 |
| 2023 | 239 | TOTAL: | $4431.13 | $4430.57 | $0.00 | $0.00 | $8861.70 | $0.00 |
|
| 2023 | 239 | $4431.13 | $4430.57 | $0.00 | $0.00 | $8861.70 | $0.00 |
Statement Details |
| 2022 | 239 | STATE - STATE LEVY (SCHOOL) | $1195.74 | $1195.73 | $0.00 | $0.00 | $2391.47 | $0.00 |
| 2022 | 239 | COUNTY - COUNTY LEVIES (CE, DD, VET, MH) | $532.78 | $532.75 | $0.00 | $0.00 | $1065.53 | $0.00 |
| 2022 | 239 | CONSERVE - CONSERVATION FUTURES | $15.98 | $15.97 | $0.00 | $0.00 | $31.95 | $0.00 |
| 2022 | 239 | CITYPT - CITY OF PT | $685.56 | $685.54 | $0.00 | $0.00 | $1371.10 | $0.00 |
| 2022 | 239 | PORTPT - PORT DISTRICT | $228.08 | $228.07 | $0.00 | $0.00 | $456.15 | $0.00 |
| 2022 | 239 | PUD1 - PUD #1 | $35.63 | $35.62 | $0.00 | $0.00 | $71.25 | $0.00 |
| 2022 | 239 | HD2 - HOSP DIST #2 | $31.10 | $31.10 | $0.00 | $0.00 | $62.20 | $0.00 |
| 2022 | 239 | SD50 - SCHOOL DIST #50 | $886.10 | $886.09 | $0.00 | $0.00 | $1772.19 | $0.00 |
| 2022 | 239 | FD1 - FIRE DISTRICT #1 | $437.07 | $437.06 | $0.00 | $0.00 | $874.13 | $0.00 |
| 2022 | 239 | EMS1 - FIRE DIST #1 EMS | $185.91 | $185.91 | $0.00 | $0.00 | $371.82 | $0.00 |
| 2022 | 239 | FP - DNR Forest Fire Protection Assmt | $8.50 | $8.50 | $0.00 | $0.00 | $17.00 | $0.00 |
| 2022 | 239 | FPLCA - DNR Landowner Contingency Assmt | $3.00 | $3.00 | $0.00 | $0.00 | $6.00 | $0.00 |
| 2022 | 239 | JCCD - JC Conservation District | $2.75 | $2.75 | $0.00 | $0.00 | $5.50 | $0.00 |
| 2022 | 239 | NWA - Noxious Weed Assessment | $2.75 | $2.75 | $0.00 | $0.00 | $5.50 | $0.00 |
| 2022 | 239 | FP ADMIN - FP ADMIN | $0.50 | $0.00 | $0.00 | $0.00 | $0.50 | $0.00 |
| 2022 | 239 | TOTAL: | $4251.45 | $4250.84 | $0.00 | $0.00 | $8502.29 | $0.00 |
|
| 2022 | 239 | $4251.45 | $4250.84 | $0.00 | $0.00 | $8502.29 | $0.00 |
Values
| (+) Improvement Homesite Value: | + | $0 | |
| (+) Improvement Non-Homesite Value: | + | $918,913 | |
| (+) Land Homesite Value: | + | $0 | |
| (+) Land Non-Homesite Value: | + | $228,000 | |
| (+) Curr Use (HS): | + | $0 | $0 |
| (+) Curr Use (NHS): | + | $0 | $0 |
| | | -------------------------- | |
| (=) Market Value: | = | $1,146,913 | |
| (–) Productivity Loss: | – | $0 | |
| | | -------------------------- | |
| (=) Subtotal: | = | $1,146,913 | |
| (+) Senior Appraised Value: | + | $0 | |
| (+) Non-Senior Appraised Value: | + | $1,146,913 | |
| | | -------------------------- | |
| (=) Total Appraised Value: | = | $1,146,913 | |
| (–) Senior Exemption Loss: | – | $0 | |
| (–) Exemption Loss: | – | $0 | |
| | | -------------------------- | |
| (=) Taxable Value: | = | $1,146,913 | |
Taxing Jurisdiction
| Owner: | STEPHEN C EVANS TRUSTEE | | |
| % Ownership: | 100.0000000000% | | |
| Total Value: | N/A | | |
| Tax Area: | 0110 - C-50F1E1H2 |
| CE | COUNTY CURRENT EXPENSE | N/A | N/A | N/A | N/A | | |
| CNTYDD | DEVELOPMENTAL DISABILITIES | N/A | N/A | N/A | N/A | | |
| CNTYVET | VETERANS RELIEF | N/A | N/A | N/A | N/A | | |
| MENTAL | MENTAL HEALTH | N/A | N/A | N/A | N/A | | |
| PTGEN | CITY OF PT GENERAL | N/A | N/A | N/A | N/A | | |
| PTLLL | CITY OF PT - LIBRARY LID LIFT | N/A | N/A | N/A | N/A | | |
| PTMVBOND | CITY OF PT MV BOND | N/A | N/A | N/A | N/A | | |
| HOSP2CASH | HOSP DIST #2 GENERAL | N/A | N/A | N/A | N/A | | |
| SCH50BOND | SCHOOL DIST #50 BOND 2016 | N/A | N/A | N/A | N/A | | |
| SCH50CP | SCHOOL DIST #50 CAP PROJ | N/A | N/A | N/A | N/A | | |
| SCH50MO | SCHOOL DIST #50 EP & O | N/A | N/A | N/A | N/A | | |
| CONSERVE | CONSERVATION FUTURES | N/A | N/A | N/A | N/A | | |
| EMS1 | FIRE DIST #1 EMS | N/A | N/A | N/A | N/A | | |
| FD1 | FIRE DIST #1 GENERAL | N/A | N/A | N/A | N/A | | |
| PORTPT | PORT OF PT GENERAL | N/A | N/A | N/A | N/A | | |
| PORTPTIDD | PORT OF PT IDD 2019 | N/A | N/A | N/A | N/A | | |
| PUD1 | PUD #1 GENERAL | N/A | N/A | N/A | N/A | | |
| STATE | STATE SCHOOL PART 1 | N/A | N/A | N/A | N/A | | |
| STATE2 | STATE SCHOOL PART 2 | N/A | N/A | N/A | N/A | | |
| | Total Tax Rate: | N/A | | | | | |
| | | | | Taxes w/Current Exemptions: | N/A | | |
| | | | | Taxes w/o Exemptions: | N/A | | |
Improvement / Building
| Improvement #1: | Residential Bldg | State Code: | 11 | 2392.0 sqft | Value: | $918,913 |
| Bathrooms (#): | 3 (FULL) | Bedrooms (#): | 3 | | Exterior Wall: | SI/ST | Fireplace: | WD ST-GOOD | | Floor Construction: | FRAME | Foundation: | CONPR | | Heating/Cooling: | F/A | Roof Cover: | COMP |
|
| | Type | Description | Class CD | Sub Class CD | Year Built | Area |
| | MA | Main Area | 5+ | 1S | 1977 | 2112.0 |
| | MA2 | Second Floor Main Area | 5+ | 1S | 1977 | 280.0 |
| | PATIO | House Patio | 5 | * | 1977 | 627.0 |
| | HDECK | House Deck | 5 | * | 1977 | 845.5 |
| | GBSMT | Basement Garage | 4 | 1S | 1977 | 480.0 |
| | CARPTN | Carport W/O Floor | 3 | * | 1977 | 380.0 |
| | BSMTF | House basement finished | 4 | * | 1977 | 1632.0 |
| | GARAG | Garage (Table Not Dep) | 4 | * | 1977 | 532.0 |
| | GARAG | Garage (Table Not Dep) | 4 | * | 1977 | 772.0 |
| | CARPTN | Carport W/O Floor | 3 | * | 1977 | 512.0 |
| | SOLAR | Solar Panel | 4 | * | 1977 | 0.0 |
| | GARAG | Garage (Table Not Dep) | 4 | * | 1977 | 1632.0 |
| | HENCL | House Enclosure | 5 | * | 1977 | 216.0 |
| | SHED | Shed (Table Not Dep) | 5 | * | 1977 | 259.6 |
Sketch
Property Image
Land
| 1 | 6100-1385S | | 1.0000 | 43560.00 | 0.00 | 0.00 | 1.00 | $162,000 | $0 |
| 2 | 1573A | | 3.3000 | 143748.00 | 0.00 | 0.00 | 0.00 | $66,000 | $0 |
Roll Value History
| 2025 | N/A | N/A | N/A | N/A | N/A |
| 2024 | $879,003 | $228,585 | $0 | $1,107,588 | $1,107,588 |
| 2023 | $840,785 | $209,400 | $0 | $1,050,185 | $1,050,185 |
| 2022 | $840,785 | $197,800 | $0 | $1,038,585 | $1,038,585 |
| 2021 | $695,439 | $179,190 | $0 | $874,629 | $874,629 |
Deed and Sales History
| 1 | 05/16/2005 | SWD | Statutory Warranty Deed | HUDSON, KATHLEEN | EVANS, STEPHEN & FLETCHER, | | | $750,000.00 | 103531 | 0 |
| 2 | 04/07/2005 | BLA | Boundary Line Adjustment | HUDSON, KATHLEEN | HUDSON, KATHLEEN | | | $0.00 | 103188 | 0 |
| 3 | 12/02/2002 | QCD | Quit Claim Deed | MCDONALD, KIRK A | HUDSON, KATHLEEN | 0 | 0 | $0.00 | 96064 | 0 |
| 4 | 10/01/2001 | SWD | Statutory Warranty Deed | O'HARA, CHARLES W/SHARON | HUDSON, KATHLEEN, MCDONALD, KI | 0 | 0 | $0.00 | 93241 | 0 |
| 5 | 10/01/2001 | SWD | Statutory Warranty Deed | O'HARA, CHARLES W/SHARON | HUDSON, KATHLEEN, MCDONALD, KI | 0 | 0 | $0.00 | 93387 | 0 |
Payout Agreement
| No payout information available.. |