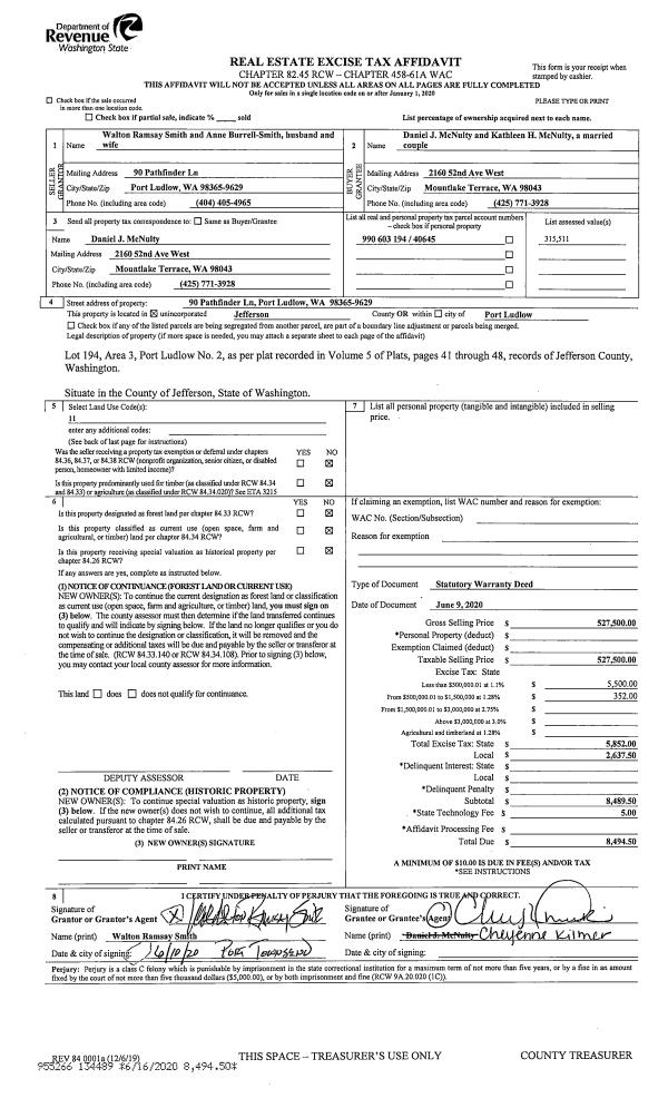
Property
Account |
| Property ID: | 10264 | Abbreviated Legal Description: | S4 T30 R1W TAX 25 & 33(LS PTN TAX 39 ENLGD BY TAX 38) WITH EASE |
| Parcel # / Geo ID: | 001043029 | Agent Code: | |
| Type: | Real | | |
| Tax Area: | 0110 - C-50F1E1H2 | Land Use Code | 11 |
| Open Space: | N | DFL | N |
| Historic Property: | N | Remodel Property: | N |
| Multi-Family Redevelopment: | N | | |
| Township: | 30N | Section: | 4 |
| Range: | 1W |
Location |
| Address: | 3115 HASTINGS AVE PORT TOWNSEND, WA 98368 | Mapsco: | 156/039 |
| Neighborhood: | S 1/2 S4-30-1W INC HAMILTON HEIGHTS & PHOENIX | Map ID: | |
| Neighborhood CD: | 6100 |
Owner |
| Name: | LAURIE A EVANS | Owner ID: | 103826 |
| Mailing Address: | 3115 HASTINGS AVE PORT TOWNSEND, WA 98368-5939 | % Ownership: | 100.0000000000% |
| | | Exemptions: | |
Pay Tax Due
There is currently No Amount Due on this property.
Taxes and Assessment Details
Property Tax Information as of
10/23/2025
Click on "Statement Details" to expand or collapse a tax statement.
* Please enter a valid date ** Please enter a valid date *
Statement Details |
| 2025 | 250 | STATE - STATE LEVY (SCHOOL) | $681.34 | $681.33 | $0.00 | $0.00 | $1362.67 | $0.00 |
| 2025 | 250 | COUNTY - COUNTY LEVIES (CE, DD, VET, MH) | $267.95 | $267.91 | $0.00 | $0.00 | $535.86 | $0.00 |
| 2025 | 250 | CONSERVE - CONSERVATION FUTURES | $8.04 | $8.03 | $0.00 | $0.00 | $16.07 | $0.00 |
| 2025 | 250 | CITYPT - CITY OF PT | $386.39 | $386.37 | $0.00 | $0.00 | $772.76 | $0.00 |
| 2025 | 250 | PORTPT - PORT DISTRICT | $109.34 | $109.33 | $0.00 | $0.00 | $218.67 | $0.00 |
| 2025 | 250 | PUD1 - PUD #1 | $17.53 | $17.53 | $0.00 | $0.00 | $35.06 | $0.00 |
| 2025 | 250 | HD2 - HOSP DIST #2 | $15.63 | $15.63 | $0.00 | $0.00 | $31.26 | $0.00 |
| 2025 | 250 | SD50 - SCHOOL DIST #50 | $497.95 | $497.93 | $0.00 | $0.00 | $995.88 | $0.00 |
| 2025 | 250 | FD1 - FIRE DISTRICT #1 | $353.56 | $353.56 | $0.00 | $0.00 | $707.12 | $0.00 |
| 2025 | 250 | EMS1 - FIRE DIST #1 EMS | $135.99 | $135.99 | $0.00 | $0.00 | $271.98 | $0.00 |
| 2025 | 250 | FP - DNR Forest Fire Protection Assmt | $8.50 | $8.50 | $0.00 | $0.00 | $17.00 | $0.00 |
| 2025 | 250 | FPLCA - DNR Landowner Contingency Assmt | $3.00 | $3.00 | $0.00 | $0.00 | $6.00 | $0.00 |
| 2025 | 250 | JCCD - JC Conservation District | $2.65 | $2.65 | $0.00 | $0.00 | $5.30 | $0.00 |
| 2025 | 250 | NWA - Noxious Weed Assessment | $2.45 | $2.45 | $0.00 | $0.00 | $4.90 | $0.00 |
| 2025 | 250 | OSS - On Site Septic | $21.50 | $21.50 | $0.00 | $0.00 | $43.00 | $0.00 |
| 2025 | 250 | WAT - Clean Water District | $13.00 | $13.00 | $0.00 | $0.00 | $26.00 | $0.00 |
| 2025 | 250 | FP ADMIN - FP ADMIN | $0.50 | $0.00 | $0.00 | $0.00 | $0.50 | $0.00 |
| 2025 | 250 | TOTAL: | $2525.32 | $2524.71 | $0.00 | $0.00 | $5050.03 | $0.00 |
|
| 2025 | 250 | $2525.32 | $2524.71 | $0.00 | $0.00 | $5050.03 | $0.00 |
Statement Details |
| 2024 | 250 | STATE - STATE LEVY (SCHOOL) | $620.40 | $620.39 | $0.00 | $0.00 | $1240.79 | $0.00 |
| 2024 | 250 | COUNTY - COUNTY LEVIES (CE, DD, VET, MH) | $265.48 | $265.48 | $0.00 | $0.00 | $530.96 | $0.00 |
| 2024 | 250 | CONSERVE - CONSERVATION FUTURES | $7.96 | $7.96 | $0.00 | $0.00 | $15.92 | $0.00 |
| 2024 | 250 | CITYPT - CITY OF PT | $379.34 | $379.31 | $0.00 | $0.00 | $758.65 | $0.00 |
| 2024 | 250 | PORTPT - PORT DISTRICT | $109.65 | $109.65 | $0.00 | $0.00 | $219.30 | $0.00 |
| 2024 | 250 | PUD1 - PUD #1 | $17.44 | $17.43 | $0.00 | $0.00 | $34.87 | $0.00 |
| 2024 | 250 | HD2 - HOSP DIST #2 | $15.49 | $15.49 | $0.00 | $0.00 | $30.98 | $0.00 |
| 2024 | 250 | SD50 - SCHOOL DIST #50 | $501.94 | $501.92 | $0.00 | $0.00 | $1003.86 | $0.00 |
| 2024 | 250 | FD1 - FIRE DISTRICT #1 | $351.02 | $351.02 | $0.00 | $0.00 | $702.04 | $0.00 |
| 2024 | 250 | EMS1 - FIRE DIST #1 EMS | $134.08 | $134.07 | $0.00 | $0.00 | $268.15 | $0.00 |
| 2024 | 250 | FP - DNR Forest Fire Protection Assmt | $8.50 | $8.50 | $0.00 | $0.00 | $17.00 | $0.00 |
| 2024 | 250 | FPLCA - DNR Landowner Contingency Assmt | $3.00 | $3.00 | $0.00 | $0.00 | $6.00 | $0.00 |
| 2024 | 250 | JCCD - JC Conservation District | $2.65 | $2.65 | $0.00 | $0.00 | $5.30 | $0.00 |
| 2024 | 250 | NWA - Noxious Weed Assessment | $2.45 | $2.45 | $0.00 | $0.00 | $4.90 | $0.00 |
| 2024 | 250 | OSS - On Site Septic | $21.00 | $21.00 | $0.00 | $0.00 | $42.00 | $0.00 |
| 2024 | 250 | WAT - Clean Water District | $12.50 | $12.50 | $0.00 | $0.00 | $25.00 | $0.00 |
| 2024 | 250 | FP ADMIN - FP ADMIN | $0.50 | $0.00 | $0.00 | $0.00 | $0.50 | $0.00 |
| 2024 | 250 | TOTAL: | $2453.40 | $2452.82 | $0.00 | $0.00 | $4906.22 | $0.00 |
|
| 2024 | 250 | $2453.40 | $2452.82 | $0.00 | $0.00 | $4906.22 | $0.00 |
Statement Details |
| 2023 | 250 | STATE - STATE LEVY (SCHOOL) | $622.00 | $621.99 | $0.00 | $0.00 | $1243.99 | $0.00 |
| 2023 | 250 | COUNTY - COUNTY LEVIES (CE, DD, VET, MH) | $271.42 | $271.42 | $0.00 | $0.00 | $542.84 | $0.00 |
| 2023 | 250 | CONSERVE - CONSERVATION FUTURES | $8.14 | $8.14 | $0.00 | $0.00 | $16.28 | $0.00 |
| 2023 | 250 | CITYPT - CITY OF PT | $383.61 | $383.61 | $0.00 | $0.00 | $767.22 | $0.00 |
| 2023 | 250 | PORTPT - PORT DISTRICT | $114.35 | $114.33 | $0.00 | $0.00 | $228.68 | $0.00 |
| 2023 | 250 | PUD1 - PUD #1 | $17.99 | $17.99 | $0.00 | $0.00 | $35.98 | $0.00 |
| 2023 | 250 | HD2 - HOSP DIST #2 | $15.85 | $15.83 | $0.00 | $0.00 | $31.68 | $0.00 |
| 2023 | 250 | SD50 - SCHOOL DIST #50 | $493.57 | $493.56 | $0.00 | $0.00 | $987.13 | $0.00 |
| 2023 | 250 | FD1 - FIRE DISTRICT #1 | $223.60 | $223.59 | $0.00 | $0.00 | $447.19 | $0.00 |
| 2023 | 250 | EMS1 - FIRE DIST #1 EMS | $95.12 | $95.11 | $0.00 | $0.00 | $190.23 | $0.00 |
| 2023 | 250 | FP - DNR Forest Fire Protection Assmt | $8.50 | $8.50 | $0.00 | $0.00 | $17.00 | $0.00 |
| 2023 | 250 | FPLCA - DNR Landowner Contingency Assmt | $3.00 | $3.00 | $0.00 | $0.00 | $6.00 | $0.00 |
| 2023 | 250 | JCCD - JC Conservation District | $2.65 | $2.65 | $0.00 | $0.00 | $5.30 | $0.00 |
| 2023 | 250 | NWA - Noxious Weed Assessment | $2.45 | $2.45 | $0.00 | $0.00 | $4.90 | $0.00 |
| 2023 | 250 | OSS - On Site Septic | $20.50 | $20.50 | $0.00 | $0.00 | $41.00 | $0.00 |
| 2023 | 250 | WAT - Clean Water District | $12.00 | $12.00 | $0.00 | $0.00 | $24.00 | $0.00 |
| 2023 | 250 | FP ADMIN - FP ADMIN | $0.50 | $0.00 | $0.00 | $0.00 | $0.50 | $0.00 |
| 2023 | 250 | TOTAL: | $2295.25 | $2294.67 | $0.00 | $0.00 | $4589.92 | $0.00 |
|
| 2023 | 250 | $2295.25 | $2294.67 | $0.00 | $0.00 | $4589.92 | $0.00 |
Statement Details |
| 2022 | 250 | STATE - STATE LEVY (SCHOOL) | $616.15 | $616.13 | $0.00 | $0.00 | $1232.28 | $0.00 |
| 2022 | 250 | COUNTY - COUNTY LEVIES (CE, DD, VET, MH) | $274.53 | $274.52 | $0.00 | $0.00 | $549.05 | $0.00 |
| 2022 | 250 | CONSERVE - CONSERVATION FUTURES | $8.23 | $8.23 | $0.00 | $0.00 | $16.46 | $0.00 |
| 2022 | 250 | CITYPT - CITY OF PT | $353.26 | $353.24 | $0.00 | $0.00 | $706.50 | $0.00 |
| 2022 | 250 | PORTPT - PORT DISTRICT | $117.53 | $117.51 | $0.00 | $0.00 | $235.04 | $0.00 |
| 2022 | 250 | PUD1 - PUD #1 | $18.36 | $18.36 | $0.00 | $0.00 | $36.72 | $0.00 |
| 2022 | 250 | HD2 - HOSP DIST #2 | $16.02 | $16.02 | $0.00 | $0.00 | $32.04 | $0.00 |
| 2022 | 250 | SD50 - SCHOOL DIST #50 | $456.59 | $456.58 | $0.00 | $0.00 | $913.17 | $0.00 |
| 2022 | 250 | FD1 - FIRE DISTRICT #1 | $225.21 | $225.21 | $0.00 | $0.00 | $450.42 | $0.00 |
| 2022 | 250 | EMS1 - FIRE DIST #1 EMS | $95.80 | $95.79 | $0.00 | $0.00 | $191.59 | $0.00 |
| 2022 | 250 | FP - DNR Forest Fire Protection Assmt | $8.50 | $8.50 | $0.00 | $0.00 | $17.00 | $0.00 |
| 2022 | 250 | FPLCA - DNR Landowner Contingency Assmt | $3.00 | $3.00 | $0.00 | $0.00 | $6.00 | $0.00 |
| 2022 | 250 | JCCD - JC Conservation District | $2.65 | $2.65 | $0.00 | $0.00 | $5.30 | $0.00 |
| 2022 | 250 | NWA - Noxious Weed Assessment | $2.45 | $2.45 | $0.00 | $0.00 | $4.90 | $0.00 |
| 2022 | 250 | OSS - On Site Septic | $19.50 | $19.50 | $0.00 | $0.00 | $39.00 | $0.00 |
| 2022 | 250 | WAT - Clean Water District | $11.50 | $11.50 | $0.00 | $0.00 | $23.00 | $0.00 |
| 2022 | 250 | FP ADMIN - FP ADMIN | $0.50 | $0.00 | $0.00 | $0.00 | $0.50 | $0.00 |
| 2022 | 250 | TOTAL: | $2229.78 | $2229.19 | $0.00 | $0.00 | $4458.97 | $0.00 |
|
| 2022 | 250 | $2229.78 | $2229.19 | $0.00 | $0.00 | $4458.97 | $0.00 |
Values
| (+) Improvement Homesite Value: | + | $0 | |
| (+) Improvement Non-Homesite Value: | + | $481,704 | |
| (+) Land Homesite Value: | + | $0 | |
| (+) Land Non-Homesite Value: | + | $228,880 | |
| (+) Curr Use (HS): | + | $0 | $0 |
| (+) Curr Use (NHS): | + | $0 | $0 |
| | | -------------------------- | |
| (=) Market Value: | = | $710,584 | |
| (–) Productivity Loss: | – | $0 | |
| | | -------------------------- | |
| (=) Subtotal: | = | $710,584 | |
| (+) Senior Appraised Value: | + | $0 | |
| (+) Non-Senior Appraised Value: | + | $710,584 | |
| | | -------------------------- | |
| (=) Total Appraised Value: | = | $710,584 | |
| (–) Senior Exemption Loss: | – | $0 | |
| (–) Exemption Loss: | – | $0 | |
| | | -------------------------- | |
| (=) Taxable Value: | = | $710,584 | |
Taxing Jurisdiction
| Owner: | LAURIE A EVANS | | |
| % Ownership: | 100.0000000000% | | |
| Total Value: | N/A | | |
| Tax Area: | 0110 - C-50F1E1H2 |
| CE | COUNTY CURRENT EXPENSE | N/A | N/A | N/A | N/A | | |
| CNTYDD | DEVELOPMENTAL DISABILITIES | N/A | N/A | N/A | N/A | | |
| CNTYVET | VETERANS RELIEF | N/A | N/A | N/A | N/A | | |
| MENTAL | MENTAL HEALTH | N/A | N/A | N/A | N/A | | |
| PTGEN | CITY OF PT GENERAL | N/A | N/A | N/A | N/A | | |
| PTLLL | CITY OF PT - LIBRARY LID LIFT | N/A | N/A | N/A | N/A | | |
| PTMVBOND | CITY OF PT MV BOND | N/A | N/A | N/A | N/A | | |
| HOSP2CASH | HOSP DIST #2 GENERAL | N/A | N/A | N/A | N/A | | |
| SCH50BOND | SCHOOL DIST #50 BOND 2016 | N/A | N/A | N/A | N/A | | |
| SCH50CP | SCHOOL DIST #50 CAP PROJ | N/A | N/A | N/A | N/A | | |
| SCH50MO | SCHOOL DIST #50 EP & O | N/A | N/A | N/A | N/A | | |
| CONSERVE | CONSERVATION FUTURES | N/A | N/A | N/A | N/A | | |
| EMS1 | FIRE DIST #1 EMS | N/A | N/A | N/A | N/A | | |
| FD1 | FIRE DIST #1 GENERAL | N/A | N/A | N/A | N/A | | |
| PORTPT | PORT OF PT GENERAL | N/A | N/A | N/A | N/A | | |
| PORTPTIDD | PORT OF PT IDD 2019 | N/A | N/A | N/A | N/A | | |
| PUD1 | PUD #1 GENERAL | N/A | N/A | N/A | N/A | | |
| STATE | STATE SCHOOL PART 1 | N/A | N/A | N/A | N/A | | |
| STATE2 | STATE SCHOOL PART 2 | N/A | N/A | N/A | N/A | | |
| | Total Tax Rate: | N/A | | | | | |
| | | | | Taxes w/Current Exemptions: | N/A | | |
| | | | | Taxes w/o Exemptions: | N/A | | |
Improvement / Building
| Improvement #1: | Residential Bldg | State Code: | 11 | 1379.5 sqft | Value: | $481,704 |
| Bathrooms (#): | 1 (FULL) | Bedrooms (#): | 2 | | Exterior Wall: | SI/ST | Fireplace: | WD ST-GOOD | | Floor Construction: | FRAME | Foundation: | CONPR | | Heating/Cooling: | ELBB | Roof Cover: | METAL |
|
| | Type | Description | Class CD | Sub Class CD | Year Built | Area |
| | MA | Main Area | 5 | 1S | 1950 | 1379.5 |
| | HWPOR | House Wood Porch | 4 | * | 1950 | 76.0 |
| | HDECK | House Deck | 4 | * | 1950 | 739.0 |
| | HENCL | House Enclosure | 4 | * | 1950 | 97.0 |
| | GDET | Detached Garage | 4 | 1S | 1950 | 528.0 |
| | SHED | Shed (Table Not Dep) | 5 | * | 1950 | 168.0 |
| | CARPTN | Carport W/O Floor | 3 | * | 1950 | 240.0 |
| | PATIO | House Patio | 3 | * | 1950 | 413.5 |
| | BARN | Barn (Table Not Dep) | 3 | * | 1950 | 240.0 |
| | HWPOR | House Wood Porch | 4 | * | 1950 | 80.0 |
Sketch
Property Image
Land
| 1 | 1571A | | 1.4400 | 62726.40 | 0.00 | 0.00 | 0.00 | $38,880 | $0 |
| 2 | 6100-1375S | | 1.0000 | 43560.00 | 0.00 | 0.00 | 1.00 | $190,000 | $0 |
Roll Value History
| 2025 | N/A | N/A | N/A | N/A | N/A |
| 2024 | $376,766 | $191,478 | $0 | $568,244 | $568,244 |
| 2023 | $360,385 | $175,920 | $0 | $536,305 | $536,305 |
| 2022 | $360,385 | $168,040 | $0 | $528,425 | $528,425 |
| 2021 | $298,085 | $152,592 | $0 | $450,677 | $450,677 |
Deed and Sales History
| 1 | 12/01/2020 | SWD | Statutory Warranty Deed | NORMAN D & WENDY K STEVENS | LAURIE A EVANS | | | $435,000.00 | 135692 | |
| 2 | 05/08/2019 | QCD | Quit Claim Deed | WENDY K STEVENS | NORMAN D & WENDY K STEVENS | | | | 132290 | |
| 3 | 03/26/2014 | QCD | Quit Claim Deed | | | | | | 120928 | |
| 4 | 06/06/2003 | QCD | Quit Claim Deed | STEVENS, NORMAN/WENDY | STEVENS LIVING TRUST | 0 | 0 | $0.00 | 97470 | 0 |
| 5 | 12/12/1994 | SWD | Statutory Warranty Deed | WILCOXON, CECILIA D | STEVENS, WENDY K/NORMAN D | 0 | 0 | $115,000.00 | 75950 | 0 |
Payout Agreement
| No payout information available.. |