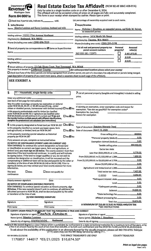
Property
Account |
| Property ID: | 10283 | Abbreviated Legal Description: | S4 T30 R1W 7.90AC TAX 40(PARCEL.1 SURVEY V11/P155) |
| Parcel # / Geo ID: | 001044009 | Agent Code: | |
| Type: | Real | | |
| Tax Area: | 0110 - C-50F1E1H2 | Land Use Code | 11 |
| Open Space: | N | DFL | N |
| Historic Property: | N | Remodel Property: | N |
| Multi-Family Redevelopment: | N | | |
| Township: | 30N | Section: | 4 |
| Range: | 1W |
Location |
| Address: | 2313 BAKER ST PORT TOWNSEND, WA 98368 | Mapsco: | 156/045 |
| Neighborhood: | S 1/2 S4-30-1W INC HAMILTON HEIGHTS & PHOENIX | Map ID: | |
| Neighborhood CD: | 6100 |
Owner |
| Name: | DREW C COLEMAN | Owner ID: | 13449 |
| Mailing Address: | FUSA M COLEMAN PO BOX 1783 PORT TOWNSEND, WA 98368-0199 | % Ownership: | 100.0000000000% |
| | | Exemptions: | |
Pay Tax Due
There is currently No Amount Due on this property.
Taxes and Assessment Details
Property Tax Information as of
10/23/2025
Click on "Statement Details" to expand or collapse a tax statement.
* Please enter a valid date ** Please enter a valid date *
Statement Details |
| 2025 | 268 | STATE - STATE LEVY (SCHOOL) | $1009.01 | $1009.01 | $0.00 | $0.00 | $2018.02 | $0.00 |
| 2025 | 268 | COUNTY - COUNTY LEVIES (CE, DD, VET, MH) | $396.81 | $396.77 | $0.00 | $0.00 | $793.58 | $0.00 |
| 2025 | 268 | CONSERVE - CONSERVATION FUTURES | $11.90 | $11.90 | $0.00 | $0.00 | $23.80 | $0.00 |
| 2025 | 268 | CITYPT - CITY OF PT | $572.22 | $572.21 | $0.00 | $0.00 | $1144.43 | $0.00 |
| 2025 | 268 | PORTPT - PORT DISTRICT | $161.92 | $161.91 | $0.00 | $0.00 | $323.83 | $0.00 |
| 2025 | 268 | PUD1 - PUD #1 | $25.97 | $25.96 | $0.00 | $0.00 | $51.93 | $0.00 |
| 2025 | 268 | HD2 - HOSP DIST #2 | $23.15 | $23.15 | $0.00 | $0.00 | $46.30 | $0.00 |
| 2025 | 268 | SD50 - SCHOOL DIST #50 | $737.43 | $737.41 | $0.00 | $0.00 | $1474.84 | $0.00 |
| 2025 | 268 | FD1 - FIRE DISTRICT #1 | $523.61 | $523.60 | $0.00 | $0.00 | $1047.21 | $0.00 |
| 2025 | 268 | EMS1 - FIRE DIST #1 EMS | $201.39 | $201.39 | $0.00 | $0.00 | $402.78 | $0.00 |
| 2025 | 268 | FP - DNR Forest Fire Protection Assmt | $8.50 | $8.50 | $0.00 | $0.00 | $17.00 | $0.00 |
| 2025 | 268 | FPLCA - DNR Landowner Contingency Assmt | $3.00 | $3.00 | $0.00 | $0.00 | $6.00 | $0.00 |
| 2025 | 268 | JCCD - JC Conservation District | $2.90 | $2.90 | $0.00 | $0.00 | $5.80 | $0.00 |
| 2025 | 268 | NWA - Noxious Weed Assessment | $3.20 | $3.20 | $0.00 | $0.00 | $6.40 | $0.00 |
| 2025 | 268 | OSS - On Site Septic | $21.50 | $21.50 | $0.00 | $0.00 | $43.00 | $0.00 |
| 2025 | 268 | WAT - Clean Water District | $13.00 | $13.00 | $0.00 | $0.00 | $26.00 | $0.00 |
| 2025 | 268 | FP ADMIN - FP ADMIN | $0.50 | $0.00 | $0.00 | $0.00 | $0.50 | $0.00 |
| 2025 | 268 | TOTAL: | $3716.01 | $3715.41 | $0.00 | $0.00 | $7431.42 | $0.00 |
|
| 2025 | 268 | $3716.01 | $3715.41 | $0.00 | $0.00 | $7431.42 | $0.00 |
Statement Details |
| 2024 | 268 | STATE - STATE LEVY (SCHOOL) | $918.05 | $918.04 | $0.00 | $0.00 | $1836.09 | $0.00 |
| 2024 | 268 | COUNTY - COUNTY LEVIES (CE, DD, VET, MH) | $392.85 | $392.84 | $0.00 | $0.00 | $785.69 | $0.00 |
| 2024 | 268 | CONSERVE - CONSERVATION FUTURES | $11.78 | $11.78 | $0.00 | $0.00 | $23.56 | $0.00 |
| 2024 | 268 | CITYPT - CITY OF PT | $561.32 | $561.30 | $0.00 | $0.00 | $1122.62 | $0.00 |
| 2024 | 268 | PORTPT - PORT DISTRICT | $162.27 | $162.25 | $0.00 | $0.00 | $324.52 | $0.00 |
| 2024 | 268 | PUD1 - PUD #1 | $25.81 | $25.80 | $0.00 | $0.00 | $51.61 | $0.00 |
| 2024 | 268 | HD2 - HOSP DIST #2 | $22.92 | $22.92 | $0.00 | $0.00 | $45.84 | $0.00 |
| 2024 | 268 | SD50 - SCHOOL DIST #50 | $742.75 | $742.73 | $0.00 | $0.00 | $1485.48 | $0.00 |
| 2024 | 268 | FD1 - FIRE DISTRICT #1 | $519.43 | $519.43 | $0.00 | $0.00 | $1038.86 | $0.00 |
| 2024 | 268 | EMS1 - FIRE DIST #1 EMS | $198.41 | $198.40 | $0.00 | $0.00 | $396.81 | $0.00 |
| 2024 | 268 | FP - DNR Forest Fire Protection Assmt | $8.50 | $8.50 | $0.00 | $0.00 | $17.00 | $0.00 |
| 2024 | 268 | FPLCA - DNR Landowner Contingency Assmt | $3.00 | $3.00 | $0.00 | $0.00 | $6.00 | $0.00 |
| 2024 | 268 | JCCD - JC Conservation District | $2.90 | $2.90 | $0.00 | $0.00 | $5.80 | $0.00 |
| 2024 | 268 | NWA - Noxious Weed Assessment | $3.20 | $3.20 | $0.00 | $0.00 | $6.40 | $0.00 |
| 2024 | 268 | OSS - On Site Septic | $21.00 | $21.00 | $0.00 | $0.00 | $42.00 | $0.00 |
| 2024 | 268 | WAT - Clean Water District | $12.50 | $12.50 | $0.00 | $0.00 | $25.00 | $0.00 |
| 2024 | 268 | FP ADMIN - FP ADMIN | $0.50 | $0.00 | $0.00 | $0.00 | $0.50 | $0.00 |
| 2024 | 268 | TOTAL: | $3607.19 | $3606.59 | $0.00 | $0.00 | $7213.78 | $0.00 |
|
| 2024 | 268 | $3607.19 | $3606.59 | $0.00 | $0.00 | $7213.78 | $0.00 |
Statement Details |
| 2023 | 268 | STATE - STATE LEVY (SCHOOL) | $916.08 | $916.07 | $0.00 | $0.00 | $1832.15 | $0.00 |
| 2023 | 268 | COUNTY - COUNTY LEVIES (CE, DD, VET, MH) | $399.75 | $399.75 | $0.00 | $0.00 | $799.50 | $0.00 |
| 2023 | 268 | CONSERVE - CONSERVATION FUTURES | $11.99 | $11.98 | $0.00 | $0.00 | $23.97 | $0.00 |
| 2023 | 268 | CITYPT - CITY OF PT | $564.98 | $564.97 | $0.00 | $0.00 | $1129.95 | $0.00 |
| 2023 | 268 | PORTPT - PORT DISTRICT | $168.40 | $168.39 | $0.00 | $0.00 | $336.79 | $0.00 |
| 2023 | 268 | PUD1 - PUD #1 | $26.50 | $26.50 | $0.00 | $0.00 | $53.00 | $0.00 |
| 2023 | 268 | HD2 - HOSP DIST #2 | $23.33 | $23.33 | $0.00 | $0.00 | $46.66 | $0.00 |
| 2023 | 268 | SD50 - SCHOOL DIST #50 | $726.93 | $726.91 | $0.00 | $0.00 | $1453.84 | $0.00 |
| 2023 | 268 | FD1 - FIRE DISTRICT #1 | $329.31 | $329.31 | $0.00 | $0.00 | $658.62 | $0.00 |
| 2023 | 268 | EMS1 - FIRE DIST #1 EMS | $140.09 | $140.08 | $0.00 | $0.00 | $280.17 | $0.00 |
| 2023 | 268 | FP - DNR Forest Fire Protection Assmt | $8.50 | $8.50 | $0.00 | $0.00 | $17.00 | $0.00 |
| 2023 | 268 | FPLCA - DNR Landowner Contingency Assmt | $3.00 | $3.00 | $0.00 | $0.00 | $6.00 | $0.00 |
| 2023 | 268 | JCCD - JC Conservation District | $2.90 | $2.90 | $0.00 | $0.00 | $5.80 | $0.00 |
| 2023 | 268 | NWA - Noxious Weed Assessment | $3.20 | $3.20 | $0.00 | $0.00 | $6.40 | $0.00 |
| 2023 | 268 | OSS - On Site Septic | $20.50 | $20.50 | $0.00 | $0.00 | $41.00 | $0.00 |
| 2023 | 268 | WAT - Clean Water District | $12.00 | $12.00 | $0.00 | $0.00 | $24.00 | $0.00 |
| 2023 | 268 | FP ADMIN - FP ADMIN | $0.50 | $0.00 | $0.00 | $0.00 | $0.50 | $0.00 |
| 2023 | 268 | TOTAL: | $3357.96 | $3357.39 | $0.00 | $0.00 | $6715.35 | $0.00 |
|
| 2023 | 268 | $3357.96 | $3357.39 | $0.00 | $0.00 | $6715.35 | $0.00 |
Statement Details |
| 2022 | 268 | STATE - STATE LEVY (SCHOOL) | $901.46 | $901.45 | $0.00 | $0.00 | $1802.91 | $0.00 |
| 2022 | 268 | COUNTY - COUNTY LEVIES (CE, DD, VET, MH) | $401.65 | $401.65 | $0.00 | $0.00 | $803.30 | $0.00 |
| 2022 | 268 | CONSERVE - CONSERVATION FUTURES | $12.05 | $12.04 | $0.00 | $0.00 | $24.09 | $0.00 |
| 2022 | 268 | CITYPT - CITY OF PT | $516.84 | $516.82 | $0.00 | $0.00 | $1033.66 | $0.00 |
| 2022 | 268 | PORTPT - PORT DISTRICT | $171.95 | $171.94 | $0.00 | $0.00 | $343.89 | $0.00 |
| 2022 | 268 | PUD1 - PUD #1 | $26.86 | $26.86 | $0.00 | $0.00 | $53.72 | $0.00 |
| 2022 | 268 | HD2 - HOSP DIST #2 | $23.45 | $23.44 | $0.00 | $0.00 | $46.89 | $0.00 |
| 2022 | 268 | SD50 - SCHOOL DIST #50 | $668.03 | $668.02 | $0.00 | $0.00 | $1336.05 | $0.00 |
| 2022 | 268 | FD1 - FIRE DISTRICT #1 | $329.50 | $329.50 | $0.00 | $0.00 | $659.00 | $0.00 |
| 2022 | 268 | EMS1 - FIRE DIST #1 EMS | $140.16 | $140.15 | $0.00 | $0.00 | $280.31 | $0.00 |
| 2022 | 268 | FP - DNR Forest Fire Protection Assmt | $8.50 | $8.50 | $0.00 | $0.00 | $17.00 | $0.00 |
| 2022 | 268 | FPLCA - DNR Landowner Contingency Assmt | $3.00 | $3.00 | $0.00 | $0.00 | $6.00 | $0.00 |
| 2022 | 268 | JCCD - JC Conservation District | $2.90 | $2.90 | $0.00 | $0.00 | $5.80 | $0.00 |
| 2022 | 268 | NWA - Noxious Weed Assessment | $3.20 | $3.20 | $0.00 | $0.00 | $6.40 | $0.00 |
| 2022 | 268 | OSS - On Site Septic | $19.50 | $19.50 | $0.00 | $0.00 | $39.00 | $0.00 |
| 2022 | 268 | WAT - Clean Water District | $11.50 | $11.50 | $0.00 | $0.00 | $23.00 | $0.00 |
| 2022 | 268 | FP ADMIN - FP ADMIN | $0.50 | $0.00 | $0.00 | $0.00 | $0.50 | $0.00 |
| 2022 | 268 | TOTAL: | $3241.05 | $3240.47 | $0.00 | $0.00 | $6481.52 | $0.00 |
|
| 2022 | 268 | $3241.05 | $3240.47 | $0.00 | $0.00 | $6481.52 | $0.00 |
Values
| (+) Improvement Homesite Value: | + | $0 | |
| (+) Improvement Non-Homesite Value: | + | $623,913 | |
| (+) Land Homesite Value: | + | $0 | |
| (+) Land Non-Homesite Value: | + | $279,300 | |
| (+) Curr Use (HS): | + | $0 | $0 |
| (+) Curr Use (NHS): | + | $0 | $0 |
| | | -------------------------- | |
| (=) Market Value: | = | $903,213 | |
| (–) Productivity Loss: | – | $0 | |
| | | -------------------------- | |
| (=) Subtotal: | = | $903,213 | |
| (+) Senior Appraised Value: | + | $0 | |
| (+) Non-Senior Appraised Value: | + | $903,213 | |
| | | -------------------------- | |
| (=) Total Appraised Value: | = | $903,213 | |
| (–) Senior Exemption Loss: | – | $0 | |
| (–) Exemption Loss: | – | $0 | |
| | | -------------------------- | |
| (=) Taxable Value: | = | $903,213 | |
Taxing Jurisdiction
| Owner: | DREW C COLEMAN | | |
| % Ownership: | 100.0000000000% | | |
| Total Value: | N/A | | |
| Tax Area: | 0110 - C-50F1E1H2 |
| CE | COUNTY CURRENT EXPENSE | N/A | N/A | N/A | N/A | | |
| CNTYDD | DEVELOPMENTAL DISABILITIES | N/A | N/A | N/A | N/A | | |
| CNTYVET | VETERANS RELIEF | N/A | N/A | N/A | N/A | | |
| MENTAL | MENTAL HEALTH | N/A | N/A | N/A | N/A | | |
| PTGEN | CITY OF PT GENERAL | N/A | N/A | N/A | N/A | | |
| PTLLL | CITY OF PT - LIBRARY LID LIFT | N/A | N/A | N/A | N/A | | |
| PTMVBOND | CITY OF PT MV BOND | N/A | N/A | N/A | N/A | | |
| HOSP2CASH | HOSP DIST #2 GENERAL | N/A | N/A | N/A | N/A | | |
| SCH50BOND | SCHOOL DIST #50 BOND 2016 | N/A | N/A | N/A | N/A | | |
| SCH50CP | SCHOOL DIST #50 CAP PROJ | N/A | N/A | N/A | N/A | | |
| SCH50MO | SCHOOL DIST #50 EP & O | N/A | N/A | N/A | N/A | | |
| CONSERVE | CONSERVATION FUTURES | N/A | N/A | N/A | N/A | | |
| EMS1 | FIRE DIST #1 EMS | N/A | N/A | N/A | N/A | | |
| FD1 | FIRE DIST #1 GENERAL | N/A | N/A | N/A | N/A | | |
| PORTPT | PORT OF PT GENERAL | N/A | N/A | N/A | N/A | | |
| PORTPTIDD | PORT OF PT IDD 2019 | N/A | N/A | N/A | N/A | | |
| PUD1 | PUD #1 GENERAL | N/A | N/A | N/A | N/A | | |
| STATE | STATE SCHOOL PART 1 | N/A | N/A | N/A | N/A | | |
| STATE2 | STATE SCHOOL PART 2 | N/A | N/A | N/A | N/A | | |
| | Total Tax Rate: | N/A | | | | | |
| | | | | Taxes w/Current Exemptions: | N/A | | |
| | | | | Taxes w/o Exemptions: | N/A | | |
Improvement / Building
| Improvement #1: | Residential Bldg | State Code: | 11 | 1571.0 sqft | Value: | $623,913 |
| Bathrooms (#): | 1 (FULL) | Bedrooms (#): | 1 | | Exterior Wall: | SI/ST | Floor Construction: | FRAME | | Foundation: | CONPR | Heating/Cooling: | OTHER | | Roof Cover: | METAL |   |   |
|
| | Type | Description | Class CD | Sub Class CD | Year Built | Area |
| | MA | Main Area | 3+ | 1S | 1995 | 1571.0 |
| | HDECK | House Deck | 4 | * | 1995 | 364.0 |
| | GDET | Detached Garage | 4 | 1S | 1995 | 480.0 |
| | GARAG | Garage (Table Not Dep) | 3 | * | 1995 | 1496.0 |
| | HWPOR | House Wood Porch | 4 | * | 1995 | 1048.0 |
| | HLOFT | House Loft | 4 | * | 1995 | 903.0 |
| | GARAG | Garage (Table Not Dep) | 3 | * | 2004 | 1176.0 |
| | BSMTF | House basement finished | 4 | * | 1995 | 1247.0 |
| | SHED | Shed (Table Not Dep) | 3 | * | 1995 | 84.0 |
Sketch
Property Image
Land
| 1 | 1673A | | 6.9000 | 300564.00 | 0.00 | 0.00 | 0.00 | $117,300 | $0 |
| 2 | 6100-1385S | | 1.0000 | 43560.00 | 0.00 | 0.00 | 1.00 | $162,000 | $0 |
Roll Value History
| 2025 | N/A | N/A | N/A | N/A | N/A |
| 2024 | $561,054 | $280,481 | $0 | $841,535 | $841,535 |
| 2023 | $536,660 | $256,950 | $0 | $793,610 | $793,610 |
| 2022 | $536,660 | $241,600 | $0 | $778,260 | $778,260 |
| 2021 | $443,887 | $215,490 | $0 | $659,377 | $659,377 |
Deed and Sales History
Payout Agreement
| No payout information available.. |