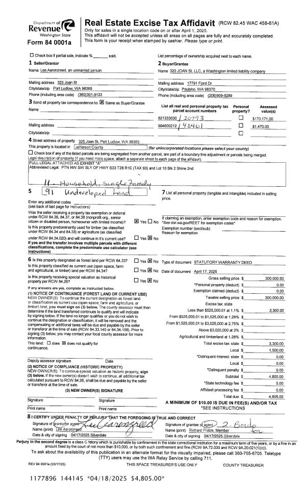
Property
Account |
| Property ID: | 10286 | Abbreviated Legal Description: | S4 T30 R1W TAX 20 |
| Parcel # / Geo ID: | 001044012 | Agent Code: | |
| Type: | Real | | |
| Tax Area: | 0110 - C-50F1E1H2 | Land Use Code | 11 |
| Open Space: | N | DFL | N |
| Historic Property: | N | Remodel Property: | N |
| Multi-Family Redevelopment: | N | | |
| Township: | 30N | Section: | 4 |
| Range: | 1W |
Location |
| Address: | 2241 THOMAS ST PORT TOWNSEND, WA 98368 | Mapsco: | 156/035 |
| Neighborhood: | S 1/2 S4-30-1W INC HAMILTON HEIGHTS & PHOENIX | Map ID: | |
| Neighborhood CD: | 6100 |
Owner |
| Name: | PAUL E CAHILL | Owner ID: | 12572 |
| Mailing Address: | TAMAR LOWELL 2241 THOMAS ST PORT TOWNSEND, WA 98368-7326 | % Ownership: | 100.0000000000% |
| | | Exemptions: | |
Pay Tax Due
Select the appropriate checkbox next to the year to be paid. Multiple years may be selected.
*Convenience Fee not included
Taxes and Assessment Details
Property Tax Information as of
10/23/2025
Click on "Statement Details" to expand or collapse a tax statement.
* Please enter a valid date ** Please enter a valid date *
Statement Details |
| 2025 | 271 | STATE - STATE LEVY (SCHOOL) | $792.03 | $792.01 | $0.00 | $0.00 | $792.03 | $792.01 |
| 2025 | 271 | COUNTY - COUNTY LEVIES (CE, DD, VET, MH) | $311.46 | $311.45 | $0.00 | $0.00 | $311.46 | $311.45 |
| 2025 | 271 | CONSERVE - CONSERVATION FUTURES | $9.34 | $9.34 | $0.00 | $0.00 | $9.34 | $9.34 |
| 2025 | 271 | CITYPT - CITY OF PT | $449.17 | $449.14 | $0.00 | $0.00 | $449.17 | $449.14 |
| 2025 | 271 | PORTPT - PORT DISTRICT | $127.10 | $127.08 | $0.00 | $0.00 | $127.10 | $127.08 |
| 2025 | 271 | PUD1 - PUD #1 | $20.38 | $20.38 | $0.00 | $0.00 | $20.38 | $20.38 |
| 2025 | 271 | HD2 - HOSP DIST #2 | $18.17 | $18.17 | $0.00 | $0.00 | $18.17 | $18.17 |
| 2025 | 271 | SD50 - SCHOOL DIST #50 | $578.84 | $578.83 | $0.00 | $0.00 | $578.84 | $578.83 |
| 2025 | 271 | FD1 - FIRE DISTRICT #1 | $411.00 | $411.00 | $0.00 | $0.00 | $411.00 | $411.00 |
| 2025 | 271 | EMS1 - FIRE DIST #1 EMS | $158.08 | $158.08 | $0.00 | $0.00 | $158.08 | $158.08 |
| 2025 | 271 | FP - DNR Forest Fire Protection Assmt | $8.50 | $8.50 | $0.00 | $0.00 | $8.50 | $8.50 |
| 2025 | 271 | FPLCA - DNR Landowner Contingency Assmt | $3.00 | $3.00 | $0.00 | $0.00 | $3.00 | $3.00 |
| 2025 | 271 | JCCD - JC Conservation District | $2.75 | $2.75 | $0.00 | $0.00 | $2.75 | $2.75 |
| 2025 | 271 | NWA - Noxious Weed Assessment | $2.75 | $2.75 | $0.00 | $0.00 | $2.75 | $2.75 |
| 2025 | 271 | OSS - On Site Septic | $21.50 | $21.50 | $0.00 | $0.00 | $21.50 | $21.50 |
| 2025 | 271 | WAT - Clean Water District | $13.00 | $13.00 | $0.00 | $0.00 | $13.00 | $13.00 |
| 2025 | 271 | FP ADMIN - FP ADMIN | $0.50 | $0.00 | $0.00 | $0.00 | $0.50 | $0.00 |
| 2025 | 271 | TOTAL: | $2927.57 | $2926.98 | $0.00 | $0.00 | $2927.57 | $2926.98 |
|
| 2025 | 271 | $2927.57 | $2926.98 | $0.00 | $0.00 | $2927.57 | $2926.98 |
Statement Details |
| 2024 | 271 | STATE - STATE LEVY (SCHOOL) | $719.63 | $719.62 | $0.00 | $0.00 | $1439.25 | $0.00 |
| 2024 | 271 | COUNTY - COUNTY LEVIES (CE, DD, VET, MH) | $307.94 | $307.94 | $0.00 | $0.00 | $615.88 | $0.00 |
| 2024 | 271 | CONSERVE - CONSERVATION FUTURES | $9.24 | $9.23 | $0.00 | $0.00 | $18.47 | $0.00 |
| 2024 | 271 | CITYPT - CITY OF PT | $440.00 | $439.99 | $0.00 | $0.00 | $879.99 | $0.00 |
| 2024 | 271 | PORTPT - PORT DISTRICT | $127.19 | $127.19 | $0.00 | $0.00 | $254.38 | $0.00 |
| 2024 | 271 | PUD1 - PUD #1 | $20.23 | $20.22 | $0.00 | $0.00 | $40.45 | $0.00 |
| 2024 | 271 | HD2 - HOSP DIST #2 | $17.97 | $17.96 | $0.00 | $0.00 | $35.93 | $0.00 |
| 2024 | 271 | SD50 - SCHOOL DIST #50 | $582.23 | $582.20 | $0.00 | $0.00 | $1164.43 | $0.00 |
| 2024 | 271 | FD1 - FIRE DISTRICT #1 | $407.17 | $407.16 | $0.00 | $0.00 | $814.33 | $0.00 |
| 2024 | 271 | EMS1 - FIRE DIST #1 EMS | $155.52 | $155.52 | $0.00 | $0.00 | $311.04 | $0.00 |
| 2024 | 271 | FP - DNR Forest Fire Protection Assmt | $8.50 | $8.50 | $0.00 | $0.00 | $17.00 | $0.00 |
| 2024 | 271 | FPLCA - DNR Landowner Contingency Assmt | $3.00 | $3.00 | $0.00 | $0.00 | $6.00 | $0.00 |
| 2024 | 271 | JCCD - JC Conservation District | $2.75 | $2.75 | $0.00 | $0.00 | $5.50 | $0.00 |
| 2024 | 271 | NWA - Noxious Weed Assessment | $2.75 | $2.75 | $0.00 | $0.00 | $5.50 | $0.00 |
| 2024 | 271 | OSS - On Site Septic | $21.00 | $21.00 | $0.00 | $0.00 | $42.00 | $0.00 |
| 2024 | 271 | WAT - Clean Water District | $12.50 | $12.50 | $0.00 | $0.00 | $25.00 | $0.00 |
| 2024 | 271 | FP ADMIN - FP ADMIN | $0.50 | $0.00 | $0.00 | $0.00 | $0.50 | $0.00 |
| 2024 | 271 | TOTAL: | $2838.12 | $2837.53 | $0.00 | $0.00 | $5675.65 | $0.00 |
|
| 2024 | 271 | $2838.12 | $2837.53 | $0.00 | $0.00 | $5675.65 | $0.00 |
Statement Details |
| 2023 | 271 | STATE - STATE LEVY (SCHOOL) | $717.48 | $717.48 | $0.00 | $0.00 | $1434.96 | $0.00 |
| 2023 | 271 | COUNTY - COUNTY LEVIES (CE, DD, VET, MH) | $313.10 | $313.07 | $0.00 | $0.00 | $626.17 | $0.00 |
| 2023 | 271 | CONSERVE - CONSERVATION FUTURES | $9.39 | $9.39 | $0.00 | $0.00 | $18.78 | $0.00 |
| 2023 | 271 | CITYPT - CITY OF PT | $442.50 | $442.49 | $0.00 | $0.00 | $884.99 | $0.00 |
| 2023 | 271 | PORTPT - PORT DISTRICT | $131.89 | $131.89 | $0.00 | $0.00 | $263.78 | $0.00 |
| 2023 | 271 | PUD1 - PUD #1 | $20.76 | $20.75 | $0.00 | $0.00 | $41.51 | $0.00 |
| 2023 | 271 | HD2 - HOSP DIST #2 | $18.28 | $18.26 | $0.00 | $0.00 | $36.54 | $0.00 |
| 2023 | 271 | SD50 - SCHOOL DIST #50 | $569.34 | $569.33 | $0.00 | $0.00 | $1138.67 | $0.00 |
| 2023 | 271 | FD1 - FIRE DISTRICT #1 | $257.92 | $257.92 | $0.00 | $0.00 | $515.84 | $0.00 |
| 2023 | 271 | EMS1 - FIRE DIST #1 EMS | $109.72 | $109.71 | $0.00 | $0.00 | $219.43 | $0.00 |
| 2023 | 271 | FP - DNR Forest Fire Protection Assmt | $8.50 | $8.50 | $0.00 | $0.00 | $17.00 | $0.00 |
| 2023 | 271 | FPLCA - DNR Landowner Contingency Assmt | $3.00 | $3.00 | $0.00 | $0.00 | $6.00 | $0.00 |
| 2023 | 271 | JCCD - JC Conservation District | $2.75 | $2.75 | $0.00 | $0.00 | $5.50 | $0.00 |
| 2023 | 271 | NWA - Noxious Weed Assessment | $2.75 | $2.75 | $0.00 | $0.00 | $5.50 | $0.00 |
| 2023 | 271 | OSS - On Site Septic | $20.50 | $20.50 | $0.00 | $0.00 | $41.00 | $0.00 |
| 2023 | 271 | WAT - Clean Water District | $12.00 | $12.00 | $0.00 | $0.00 | $24.00 | $0.00 |
| 2023 | 271 | FP ADMIN - FP ADMIN | $0.50 | $0.00 | $0.00 | $0.00 | $0.50 | $0.00 |
| 2023 | 271 | TOTAL: | $2640.38 | $2639.79 | $0.00 | $0.00 | $5280.17 | $0.00 |
|
| 2023 | 271 | $2640.38 | $2639.79 | $0.00 | $0.00 | $5280.17 | $0.00 |
Statement Details |
| 2022 | 271 | STATE - STATE LEVY (SCHOOL) | $711.27 | $711.25 | $0.00 | $0.00 | $1422.52 | $0.00 |
| 2022 | 271 | COUNTY - COUNTY LEVIES (CE, DD, VET, MH) | $316.91 | $316.91 | $0.00 | $0.00 | $633.82 | $0.00 |
| 2022 | 271 | CONSERVE - CONSERVATION FUTURES | $9.51 | $9.50 | $0.00 | $0.00 | $19.01 | $0.00 |
| 2022 | 271 | CITYPT - CITY OF PT | $407.80 | $407.78 | $0.00 | $0.00 | $815.58 | $0.00 |
| 2022 | 271 | PORTPT - PORT DISTRICT | $135.67 | $135.66 | $0.00 | $0.00 | $271.33 | $0.00 |
| 2022 | 271 | PUD1 - PUD #1 | $21.19 | $21.19 | $0.00 | $0.00 | $42.38 | $0.00 |
| 2022 | 271 | HD2 - HOSP DIST #2 | $18.51 | $18.49 | $0.00 | $0.00 | $37.00 | $0.00 |
| 2022 | 271 | SD50 - SCHOOL DIST #50 | $527.08 | $527.07 | $0.00 | $0.00 | $1054.15 | $0.00 |
| 2022 | 271 | FD1 - FIRE DISTRICT #1 | $259.98 | $259.98 | $0.00 | $0.00 | $519.96 | $0.00 |
| 2022 | 271 | EMS1 - FIRE DIST #1 EMS | $110.59 | $110.58 | $0.00 | $0.00 | $221.17 | $0.00 |
| 2022 | 271 | FP - DNR Forest Fire Protection Assmt | $8.50 | $8.50 | $0.00 | $0.00 | $17.00 | $0.00 |
| 2022 | 271 | FPLCA - DNR Landowner Contingency Assmt | $3.00 | $3.00 | $0.00 | $0.00 | $6.00 | $0.00 |
| 2022 | 271 | JCCD - JC Conservation District | $2.75 | $2.75 | $0.00 | $0.00 | $5.50 | $0.00 |
| 2022 | 271 | NWA - Noxious Weed Assessment | $2.75 | $2.75 | $0.00 | $0.00 | $5.50 | $0.00 |
| 2022 | 271 | OSS - On Site Septic | $19.50 | $19.50 | $0.00 | $0.00 | $39.00 | $0.00 |
| 2022 | 271 | WAT - Clean Water District | $11.50 | $11.50 | $0.00 | $0.00 | $23.00 | $0.00 |
| 2022 | 271 | FP ADMIN - FP ADMIN | $0.50 | $0.00 | $0.00 | $0.00 | $0.50 | $0.00 |
| 2022 | 271 | TOTAL: | $2567.01 | $2566.41 | $0.00 | $0.00 | $5133.42 | $0.00 |
|
| 2022 | 271 | $2567.01 | $2566.41 | $0.00 | $0.00 | $5133.42 | $0.00 |
Values
| (+) Improvement Homesite Value: | + | $0 | |
| (+) Improvement Non-Homesite Value: | + | $455,567 | |
| (+) Land Homesite Value: | + | $0 | |
| (+) Land Non-Homesite Value: | + | $237,400 | |
| (+) Curr Use (HS): | + | $0 | $0 |
| (+) Curr Use (NHS): | + | $0 | $0 |
| | | -------------------------- | |
| (=) Market Value: | = | $692,967 | |
| (–) Productivity Loss: | – | $0 | |
| | | -------------------------- | |
| (=) Subtotal: | = | $692,967 | |
| (+) Senior Appraised Value: | + | $0 | |
| (+) Non-Senior Appraised Value: | + | $692,967 | |
| | | -------------------------- | |
| (=) Total Appraised Value: | = | $692,967 | |
| (–) Senior Exemption Loss: | – | $0 | |
| (–) Exemption Loss: | – | $0 | |
| | | -------------------------- | |
| (=) Taxable Value: | = | $692,967 | |
Taxing Jurisdiction
| Owner: | PAUL E CAHILL | | |
| % Ownership: | 100.0000000000% | | |
| Total Value: | N/A | | |
| Tax Area: | 0110 - C-50F1E1H2 |
| CE | COUNTY CURRENT EXPENSE | N/A | N/A | N/A | N/A | | |
| CNTYDD | DEVELOPMENTAL DISABILITIES | N/A | N/A | N/A | N/A | | |
| CNTYVET | VETERANS RELIEF | N/A | N/A | N/A | N/A | | |
| MENTAL | MENTAL HEALTH | N/A | N/A | N/A | N/A | | |
| PTGEN | CITY OF PT GENERAL | N/A | N/A | N/A | N/A | | |
| PTLLL | CITY OF PT - LIBRARY LID LIFT | N/A | N/A | N/A | N/A | | |
| PTMVBOND | CITY OF PT MV BOND | N/A | N/A | N/A | N/A | | |
| HOSP2CASH | HOSP DIST #2 GENERAL | N/A | N/A | N/A | N/A | | |
| SCH50BOND | SCHOOL DIST #50 BOND 2016 | N/A | N/A | N/A | N/A | | |
| SCH50CP | SCHOOL DIST #50 CAP PROJ | N/A | N/A | N/A | N/A | | |
| SCH50MO | SCHOOL DIST #50 EP & O | N/A | N/A | N/A | N/A | | |
| CONSERVE | CONSERVATION FUTURES | N/A | N/A | N/A | N/A | | |
| EMS1 | FIRE DIST #1 EMS | N/A | N/A | N/A | N/A | | |
| FD1 | FIRE DIST #1 GENERAL | N/A | N/A | N/A | N/A | | |
| PORTPT | PORT OF PT GENERAL | N/A | N/A | N/A | N/A | | |
| PORTPTIDD | PORT OF PT IDD 2019 | N/A | N/A | N/A | N/A | | |
| PUD1 | PUD #1 GENERAL | N/A | N/A | N/A | N/A | | |
| STATE | STATE SCHOOL PART 1 | N/A | N/A | N/A | N/A | | |
| STATE2 | STATE SCHOOL PART 2 | N/A | N/A | N/A | N/A | | |
| | Total Tax Rate: | N/A | | | | | |
| | | | | Taxes w/Current Exemptions: | N/A | | |
| | | | | Taxes w/o Exemptions: | N/A | | |
Improvement / Building
| Improvement #1: | Residential Bldg | State Code: | 11 | 1840.0 sqft | Value: | $455,567 |
| Bathrooms (#): | 2 (FULL) | Bedrooms (#): | 4 | | Exterior Wall: | PL/T1 | Fireplace: | WD ST-GOOD | | Floor Construction: | FRAME | Foundation: | CONPR | | Heating/Cooling: | ELBB | Roof Cover: | SHAKE |
|
| | Type | Description | Class CD | Sub Class CD | Year Built | Area |
| | MA | Main Area | 4+ | 15SF | 1977 | 1040.0 |
| | MA2 | Second Floor Main Area | 4+ | 15SF | 1977 | 800.0 |
| | HDECK | House Deck | 4 | * | 1977 | 1399.5 |
| | GATT | House Attached Garage | 4 | 15SF | 1977 | 672.0 |
| | OTHER | Other | 4 | * | 1977 | 234.0 |
| | CONCD | Concrete Drive | 3 | * | 1977 | 600.0 |
| | SHED | Shed (Table Not Dep) | 4 | * | 1977 | 60.0 |
| | CARPTN | Carport W/O Floor | 1 | * | 1977 | 544.0 |
| | SHED | Shed (Table Not Dep) | 4 | * | 1977 | 224.0 |
Sketch
Property Image
Land
| 1 | 6100-1385S | | 1.0000 | 43560.00 | 0.00 | 0.00 | 1.00 | $162,000 | $0 |
| 2 | 1573A | | 3.7700 | 164221.20 | 0.00 | 0.00 | 0.00 | $75,400 | $0 |
Roll Value History
| 2025 | N/A | N/A | N/A | N/A | N/A |
| 2024 | $422,599 | $237,962 | $0 | $660,561 | $660,561 |
| 2023 | $404,225 | $217,860 | $0 | $622,085 | $622,085 |
| 2022 | $404,225 | $205,320 | $0 | $609,545 | $609,545 |
| 2021 | $334,346 | $185,911 | $0 | $520,257 | $520,257 |
Deed and Sales History
| 1 | 08/15/2012 | SWD | Statutory Warranty Deed | BARRETT, KATHLEEN, WRIGHT | CAHILL, PAUL/LOWELL, TAMAR | 0 | 0 | $353,500.00 | 117931 | 0 |
| 2 | 03/29/2004 | SWD | Statutory Warranty Deed | FOX, RANDI/ANGEL, JEANNET | BARRETT, KATHLEEN/WRIGHT, | 0 | 0 | $289,000.00 | 99868 | 0 |
| 3 | 03/23/2004 | SWD | Statutory Warranty Deed | STEINKE, RICHARD D/GAILE | FOX, RANDI/ANGEL, JEANNETTE | 0 | 0 | $230,000.00 | 99867 | 0 |
Payout Agreement
| No payout information available.. |