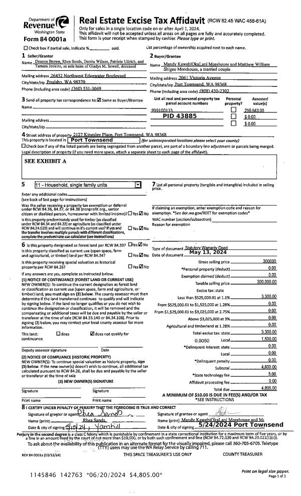
Property
Account |
| Property ID: | 10309 | Abbreviated Legal Description: | J LYONS SHORT PLAT LOT 2 S/EASE |
| Parcel # / Geo ID: | 001051019 | Agent Code: | |
| Type: | Real | | |
| Tax Area: | 0111 - 1-50F1E1H2L1 | Land Use Code | 11 |
| Open Space: | N | DFL | N |
| Historic Property: | N | Remodel Property: | N |
| Multi-Family Redevelopment: | N | | |
| Township: | 30N | Section: | 5 |
| Range: | 1W |
Location |
| Address: | 395 N JACOB MILLER RD PORT TOWNSEND, WA 98368 | Mapsco: | 132/066 |
| Neighborhood: | S 4, 5 & 6 T30 R1W | Map ID: | |
| Neighborhood CD: | 5310 |
Owner |
| Name: | TESSA GOWANS | Owner ID: | 16779 |
| Mailing Address: | 395 JACOB MILLER RD PORT TOWNSEND, WA 98368-9649 | % Ownership: | 100.0000000000% |
| | | Exemptions: | SNR/DSBL |
Pay Tax Due
There is currently No Amount Due on this property.
Taxes and Assessment Details
Property Tax Information as of
10/23/2025
Click on "Statement Details" to expand or collapse a tax statement.
* Please enter a valid date ** Please enter a valid date *
Statement Details |
| 2025 | 293 | STATE - STATE LEVY (SCHOOL) | $42.11 | $42.10 | $0.00 | $0.00 | $84.21 | $0.00 |
| 2025 | 293 | COUNTY - COUNTY LEVIES (CE, DD, VET, MH) | $25.49 | $25.45 | $0.00 | $0.00 | $50.94 | $0.00 |
| 2025 | 293 | CONSERVE - CONSERVATION FUTURES | $0.77 | $0.76 | $0.00 | $0.00 | $1.53 | $0.00 |
| 2025 | 293 | COROADS - COUNTY ROADS (ROADS, DIV TO CE) | $20.41 | $20.40 | $0.00 | $0.00 | $40.81 | $0.00 |
| 2025 | 293 | PORTPT - PORT DISTRICT | $10.40 | $10.39 | $0.00 | $0.00 | $20.79 | $0.00 |
| 2025 | 293 | PUD1 - PUD #1 | $1.67 | $1.66 | $0.00 | $0.00 | $3.33 | $0.00 |
| 2025 | 293 | LIB1 - LIBRARY DIST #1 | $7.90 | $7.89 | $0.00 | $0.00 | $15.79 | $0.00 |
| 2025 | 293 | HD2 - HOSP DIST #2 | $1.49 | $1.48 | $0.00 | $0.00 | $2.97 | $0.00 |
| 2025 | 293 | SD50 - SCHOOL DIST #50 | $0.00 | $0.00 | $0.00 | $0.00 | $0.00 | $0.00 |
| 2025 | 293 | FD1 - FIRE DISTRICT #1 | $33.61 | $33.61 | $0.00 | $0.00 | $67.22 | $0.00 |
| 2025 | 293 | EMS1 - FIRE DIST #1 EMS | $12.93 | $12.92 | $0.00 | $0.00 | $25.85 | $0.00 |
| 2025 | 293 | FP - DNR Forest Fire Protection Assmt | $8.50 | $8.50 | $0.00 | $0.00 | $17.00 | $0.00 |
| 2025 | 293 | FPLCA - DNR Landowner Contingency Assmt | $3.00 | $3.00 | $0.00 | $0.00 | $6.00 | $0.00 |
| 2025 | 293 | OSS - On Site Septic | $21.50 | $21.50 | $0.00 | $0.00 | $43.00 | $0.00 |
| 2025 | 293 | FP ADMIN - FP ADMIN | $0.50 | $0.00 | $0.00 | $0.00 | $0.50 | $0.00 |
| 2025 | 293 | TOTAL: | $190.28 | $189.66 | $0.00 | $0.00 | $379.94 | $0.00 |
|
| 2025 | 293 | $190.28 | $189.66 | $0.00 | $0.00 | $379.94 | $0.00 |
Statement Details |
| 2024 | 293 | STATE - STATE LEVY (SCHOOL) | $40.67 | $40.67 | $0.00 | $0.00 | $81.34 | $0.00 |
| 2024 | 293 | COUNTY - COUNTY LEVIES (CE, DD, VET, MH) | $26.75 | $26.73 | $0.00 | $0.00 | $53.48 | $0.00 |
| 2024 | 293 | CONSERVE - CONSERVATION FUTURES | $0.80 | $0.80 | $0.00 | $0.00 | $1.60 | $0.00 |
| 2024 | 293 | COROADS - COUNTY ROADS (ROADS, DIV TO CE) | $21.52 | $21.51 | $0.00 | $0.00 | $43.03 | $0.00 |
| 2024 | 293 | PORTPT - PORT DISTRICT | $11.04 | $11.04 | $0.00 | $0.00 | $22.08 | $0.00 |
| 2024 | 293 | PUD1 - PUD #1 | $1.76 | $1.75 | $0.00 | $0.00 | $3.51 | $0.00 |
| 2024 | 293 | LIB1 - LIBRARY DIST #1 | $8.33 | $8.32 | $0.00 | $0.00 | $16.65 | $0.00 |
| 2024 | 293 | HD2 - HOSP DIST #2 | $1.56 | $1.56 | $0.00 | $0.00 | $3.12 | $0.00 |
| 2024 | 293 | SD50 - SCHOOL DIST #50 | $0.00 | $0.00 | $0.00 | $0.00 | $0.00 | $0.00 |
| 2024 | 293 | FD1 - FIRE DISTRICT #1 | $35.36 | $35.35 | $0.00 | $0.00 | $70.71 | $0.00 |
| 2024 | 293 | EMS1 - FIRE DIST #1 EMS | $13.51 | $13.50 | $0.00 | $0.00 | $27.01 | $0.00 |
| 2024 | 293 | FP - DNR Forest Fire Protection Assmt | $8.50 | $8.50 | $0.00 | $0.00 | $17.00 | $0.00 |
| 2024 | 293 | FPLCA - DNR Landowner Contingency Assmt | $3.00 | $3.00 | $0.00 | $0.00 | $6.00 | $0.00 |
| 2024 | 293 | OSS - On Site Septic | $21.00 | $21.00 | $0.00 | $0.00 | $42.00 | $0.00 |
| 2024 | 293 | FP ADMIN - FP ADMIN | $0.50 | $0.00 | $0.00 | $0.00 | $0.50 | $0.00 |
| 2024 | 293 | TOTAL: | $194.30 | $193.73 | $0.00 | $0.00 | $388.03 | $0.00 |
|
| 2024 | 293 | $194.30 | $193.73 | $0.00 | $0.00 | $388.03 | $0.00 |
Statement Details |
| 2023 | 293 | STATE - STATE LEVY (SCHOOL) | $41.43 | $41.42 | $0.00 | $0.00 | $82.85 | $0.00 |
| 2023 | 293 | COUNTY - COUNTY LEVIES (CE, DD, VET, MH) | $27.75 | $27.75 | $0.00 | $0.00 | $55.50 | $0.00 |
| 2023 | 293 | CONSERVE - CONSERVATION FUTURES | $0.83 | $0.83 | $0.00 | $0.00 | $1.66 | $0.00 |
| 2023 | 293 | COROADS - COUNTY ROADS (ROADS, DIV TO CE) | $22.45 | $22.44 | $0.00 | $0.00 | $44.89 | $0.00 |
| 2023 | 293 | PORTPT - PORT DISTRICT | $11.69 | $11.68 | $0.00 | $0.00 | $23.37 | $0.00 |
| 2023 | 293 | PUD1 - PUD #1 | $1.84 | $1.84 | $0.00 | $0.00 | $3.68 | $0.00 |
| 2023 | 293 | LIB1 - LIBRARY DIST #1 | $8.69 | $8.68 | $0.00 | $0.00 | $17.37 | $0.00 |
| 2023 | 293 | HD2 - HOSP DIST #2 | $1.62 | $1.62 | $0.00 | $0.00 | $3.24 | $0.00 |
| 2023 | 293 | SD50 - SCHOOL DIST #50 | $0.00 | $0.00 | $0.00 | $0.00 | $0.00 | $0.00 |
| 2023 | 293 | FD1 - FIRE DISTRICT #1 | $22.86 | $22.85 | $0.00 | $0.00 | $45.71 | $0.00 |
| 2023 | 293 | EMS1 - FIRE DIST #1 EMS | $9.73 | $9.72 | $0.00 | $0.00 | $19.45 | $0.00 |
| 2023 | 293 | FP - DNR Forest Fire Protection Assmt | $8.50 | $8.50 | $0.00 | $0.00 | $17.00 | $0.00 |
| 2023 | 293 | FPLCA - DNR Landowner Contingency Assmt | $3.00 | $3.00 | $0.00 | $0.00 | $6.00 | $0.00 |
| 2023 | 293 | JCCD - JC Conservation District | $2.65 | $2.65 | $0.00 | $0.00 | $5.30 | $0.00 |
| 2023 | 293 | NWA - Noxious Weed Assessment | $2.45 | $2.45 | $0.00 | $0.00 | $4.90 | $0.00 |
| 2023 | 293 | OSS - On Site Septic | $20.50 | $20.50 | $0.00 | $0.00 | $41.00 | $0.00 |
| 2023 | 293 | WAT - Clean Water District | $12.00 | $12.00 | $0.00 | $0.00 | $24.00 | $0.00 |
| 2023 | 293 | FP ADMIN - FP ADMIN | $0.50 | $0.00 | $0.00 | $0.00 | $0.50 | $0.00 |
| 2023 | 293 | TOTAL: | $198.49 | $197.93 | $0.00 | $0.00 | $396.42 | $0.00 |
|
| 2023 | 293 | $198.49 | $197.93 | $0.00 | $0.00 | $396.42 | $0.00 |
Statement Details |
| 2022 | 293 | STATE - STATE LEVY (SCHOOL) | $314.63 | $0.00 | $0.00 | $0.00 | $314.63 | $0.00 |
| 2022 | 293 | COUNTY - COUNTY LEVIES (CE, DD, VET, MH) | $140.20 | $0.00 | $0.00 | $0.00 | $140.20 | $0.00 |
| 2022 | 293 | CONSERVE - CONSERVATION FUTURES | $4.20 | $0.00 | $0.00 | $0.00 | $4.20 | $0.00 |
| 2022 | 293 | COROADS - COUNTY ROADS (ROADS, DIV TO CE) | $113.94 | $0.00 | $0.00 | $0.00 | $113.94 | $0.00 |
| 2022 | 293 | PORTPT - PORT DISTRICT | $60.01 | $0.00 | $0.00 | $0.00 | $60.01 | $0.00 |
| 2022 | 293 | PUD1 - PUD #1 | $9.37 | $0.00 | $0.00 | $0.00 | $9.37 | $0.00 |
| 2022 | 293 | LIB1 - LIBRARY DIST #1 | $44.08 | $0.00 | $0.00 | $0.00 | $44.08 | $0.00 |
| 2022 | 293 | HD2 - HOSP DIST #2 | $8.18 | $0.00 | $0.00 | $0.00 | $8.18 | $0.00 |
| 2022 | 293 | SD50 - SCHOOL DIST #50 | $233.16 | $0.00 | $0.00 | $0.00 | $233.16 | $0.00 |
| 2022 | 293 | FD1 - FIRE DISTRICT #1 | $115.00 | $0.00 | $0.00 | $0.00 | $115.00 | $0.00 |
| 2022 | 293 | EMS1 - FIRE DIST #1 EMS | $48.92 | $0.00 | $0.00 | $0.00 | $48.92 | $0.00 |
| 2022 | 293 | FP - DNR Forest Fire Protection Assmt | $17.00 | $0.00 | $0.00 | $0.00 | $17.00 | $0.00 |
| 2022 | 293 | FPLCA - DNR Landowner Contingency Assmt | $6.00 | $0.00 | $0.00 | $0.00 | $6.00 | $0.00 |
| 2022 | 293 | JCCD - JC Conservation District | $5.30 | $0.00 | $0.00 | $0.00 | $5.30 | $0.00 |
| 2022 | 293 | NWA - Noxious Weed Assessment | $4.90 | $0.00 | $0.00 | $0.00 | $4.90 | $0.00 |
| 2022 | 293 | OSS - On Site Septic | $39.00 | $0.00 | $0.00 | $0.00 | $39.00 | $0.00 |
| 2022 | 293 | WAT - Clean Water District | $23.00 | $0.00 | $0.00 | $0.00 | $23.00 | $0.00 |
| 2022 | 293 | FP ADMIN - FP ADMIN | $0.50 | $0.00 | $0.00 | $0.00 | $0.50 | $0.00 |
| 2022 | 293 | TOTAL: | $1187.39 | $0.00 | $0.00 | $0.00 | $1187.39 | $0.00 |
|
| 2022 | 293 | $1187.39 | $0.00 | $0.00 | $0.00 | $1187.39 | $0.00 |
Values
| (+) Improvement Homesite Value: | + | $31,297 | |
| (+) Improvement Non-Homesite Value: | + | $0 | |
| (+) Land Homesite Value: | + | $147,939 | |
| (+) Land Non-Homesite Value: | + | $0 | |
| (+) Curr Use (HS): | + | $0 | $0 |
| (+) Curr Use (NHS): | + | $0 | $0 |
| | | -------------------------- | |
| (=) Market Value: | = | $179,236 | |
| (–) Productivity Loss: | – | $0 | |
| | | -------------------------- | |
| (=) Subtotal: | = | $179,236 | |
| (+) Senior Appraised Value: | + | $135,040 | |
| (+) Non-Senior Appraised Value: | + | $0 | |
| | | -------------------------- | |
| (=) Total Appraised Value: | = | $135,040 | |
| (–) Senior Exemption Loss: | – | $81,024 | |
| (–) Exemption Loss: | – | $0 | |
| | | -------------------------- | |
| (=) Taxable Value: | = | $54,016 | |
Taxing Jurisdiction
| Owner: | TESSA GOWANS | | |
| % Ownership: | 100.0000000000% | | |
| Total Value: | N/A | | |
| Tax Area: | 0111 - 1-50F1E1H2L1 |
| CE | COUNTY CURRENT EXPENSE | N/A | N/A | N/A | N/A | | |
| CNTYDD | DEVELOPMENTAL DISABILITIES | N/A | N/A | N/A | N/A | | |
| CNTYVET | VETERANS RELIEF | N/A | N/A | N/A | N/A | | |
| MENTAL | MENTAL HEALTH | N/A | N/A | N/A | N/A | | |
| ROADS | COUNTY ROADS | N/A | N/A | N/A | N/A | | |
| ROADSCU | COUNTY ROADS TO CUR EXP | N/A | N/A | N/A | N/A | | |
| HOSP2CASH | HOSP DIST #2 GENERAL | N/A | N/A | N/A | N/A | | |
| SCH50BOND | SCHOOL DIST #50 BOND 2016 | N/A | N/A | N/A | N/A | | |
| SCH50CP | SCHOOL DIST #50 CAP PROJ | N/A | N/A | N/A | N/A | | |
| SCH50MO | SCHOOL DIST #50 EP & O | N/A | N/A | N/A | N/A | | |
| CONSERVE | CONSERVATION FUTURES | N/A | N/A | N/A | N/A | | |
| EMS1 | FIRE DIST #1 EMS | N/A | N/A | N/A | N/A | | |
| FD1 | FIRE DIST #1 GENERAL | N/A | N/A | N/A | N/A | | |
| LIB1 | LIBRARY DIST #1 GENERAL | N/A | N/A | N/A | N/A | | |
| PORTPT | PORT OF PT GENERAL | N/A | N/A | N/A | N/A | | |
| PORTPTIDD | PORT OF PT IDD 2019 | N/A | N/A | N/A | N/A | | |
| PUD1 | PUD #1 GENERAL | N/A | N/A | N/A | N/A | | |
| STATE | STATE SCHOOL PART 1 | N/A | N/A | N/A | N/A | | |
| STATE2 | STATE SCHOOL PART 2 | N/A | N/A | N/A | N/A | | |
| | Total Tax Rate: | N/A | | | | | |
| | | | | Taxes w/Current Exemptions: | N/A | | |
| | | | | Taxes w/o Exemptions: | N/A | | |
Improvement / Building
| Improvement #1: | Residential Bldg | State Code: | 11 | 336.0 sqft | Value: | $31,297 |
| Bathrooms (#): | 1 (FULL) | Exterior Wall: | SI/ST | | Fireplace: | WD ST-AVG | Floor Construction: | FRAME | | Foundation: | PO&BL | Heating/Cooling: | WD/NO | | Inside Verify: | YES-FIX | Interior Finish: | FIN | | Roof Cover: | COMP |   |   |
|
| | Type | Description | Class CD | Sub Class CD | Year Built | Area |
| | MA | Main Area | 3+ | C1S | 1975 | 336.0 |
| | SHED | Shed (Table Not Dep) | 2 | * | 1975 | 96.0 |
| | CWPOR | Cabin Wood Porch | 1 | * | 2016 | 96.0 |
| | OTHER | Other | 3 | * | 1975 | 80.0 |
Sketch
Property Image
Land
| 1 | 1574A | | 1.0700 | 46609.20 | 0.00 | 0.00 | 0.00 | $15,689 | $0 |
| 2 | 5310-1373S | | 1.0000 | 43560.00 | 0.00 | 0.00 | 1.00 | $132,250 | $0 |
Roll Value History
| 2025 | N/A | N/A | N/A | N/A | N/A |
| 2024 | $29,993 | $141,507 | $0 | $171,500 | $54,016 |
| 2023 | $20,686 | $122,840 | $0 | $143,526 | $54,016 |
| 2022 | $18,805 | $116,235 | $0 | $135,040 | $54,016 |
| 2021 | $15,671 | $99,399 | $0 | $115,070 | $115,070 |
Deed and Sales History
| 1 | 07/12/2000 | QCD | Quit Claim Deed | CHAMBERLIN, CARL | GOWANS, TESSA | 0 | 0 | $20,000.00 | 90043 | 0 |
Payout Agreement
| No payout information available.. |