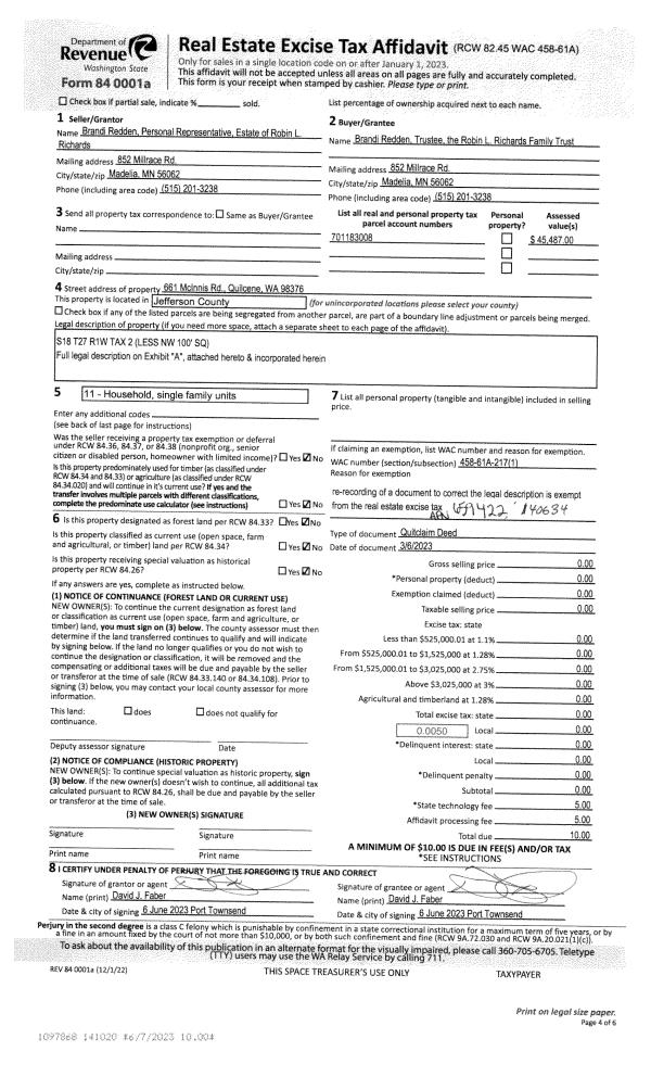
Property
Account |
| Property ID: | 10313 | Abbreviated Legal Description: | S5 T30 R1W W1/2 SW NW (S 660' E OF RD)LESS TX 15 SUBJ TO EASE |
| Parcel # / Geo ID: | 001052007 | Agent Code: | |
| Type: | Real | | |
| Tax Area: | 0111 - 1-50F1E1H2L1 | Land Use Code | 11 |
| Open Space: | N | DFL | N |
| Historic Property: | N | Remodel Property: | N |
| Multi-Family Redevelopment: | N | | |
| Township: | 30N | Section: | 5 |
| Range: | 1W |
Location |
| Address: | 312 MIDDLEPOINT RD PORT TOWNSEND, WA 98368 | Mapsco: | 081/003 |
| Neighborhood: | S 4, 5 & 6 T30 R1W | Map ID: | |
| Neighborhood CD: | 5310 |
Owner |
| Name: | KATHY BUSIC POTOCKI | Owner ID: | 25099 |
| Mailing Address: | GERALD LEE BUSIC 312 MIDDLEPOINT RD PORT TOWNSEND, WA 98368-9647 | % Ownership: | 100.0000000000% |
| | | Exemptions: | SNR/DSBL |
Pay Tax Due
Select the appropriate checkbox next to the year to be paid. Multiple years may be selected.
*Convenience Fee not included
Taxes and Assessment Details
Property Tax Information as of
10/23/2025
Click on "Statement Details" to expand or collapse a tax statement.
* Please enter a valid date ** Please enter a valid date *
Statement Details |
| 2025 | 297 | STATE - STATE LEVY (SCHOOL) | $50.82 | $50.81 | $0.00 | $0.00 | $50.82 | $50.81 |
| 2025 | 297 | COUNTY - COUNTY LEVIES (CE, DD, VET, MH) | $30.76 | $30.72 | $0.00 | $0.00 | $30.76 | $30.72 |
| 2025 | 297 | CONSERVE - CONSERVATION FUTURES | $0.92 | $0.92 | $0.00 | $0.00 | $0.92 | $0.92 |
| 2025 | 297 | COROADS - COUNTY ROADS (ROADS, DIV TO CE) | $24.63 | $24.62 | $0.00 | $0.00 | $24.63 | $24.62 |
| 2025 | 297 | PORTPT - PORT DISTRICT | $12.55 | $12.53 | $0.00 | $0.00 | $12.55 | $12.53 |
| 2025 | 297 | PUD1 - PUD #1 | $2.01 | $2.01 | $0.00 | $0.00 | $2.01 | $2.01 |
| 2025 | 297 | LIB1 - LIBRARY DIST #1 | $9.53 | $9.52 | $0.00 | $0.00 | $9.53 | $9.52 |
| 2025 | 297 | HD2 - HOSP DIST #2 | $1.80 | $1.79 | $0.00 | $0.00 | $1.80 | $1.79 |
| 2025 | 297 | SD50 - SCHOOL DIST #50 | $0.00 | $0.00 | $0.00 | $0.00 | $0.00 | $0.00 |
| 2025 | 297 | FD1 - FIRE DISTRICT #1 | $40.56 | $40.56 | $0.00 | $0.00 | $40.56 | $40.56 |
| 2025 | 297 | EMS1 - FIRE DIST #1 EMS | $15.60 | $15.60 | $0.00 | $0.00 | $15.60 | $15.60 |
| 2025 | 297 | FP - DNR Forest Fire Protection Assmt | $8.50 | $8.50 | $0.00 | $0.00 | $8.50 | $8.50 |
| 2025 | 297 | FPLCA - DNR Landowner Contingency Assmt | $3.00 | $3.00 | $0.00 | $0.00 | $3.00 | $3.00 |
| 2025 | 297 | OSS - On Site Septic | $21.50 | $21.50 | $0.00 | $0.00 | $21.50 | $21.50 |
| 2025 | 297 | FP ADMIN - FP ADMIN | $0.50 | $0.00 | $0.00 | $0.00 | $0.50 | $0.00 |
| 2025 | 297 | TOTAL: | $222.68 | $222.08 | $0.00 | $0.00 | $222.68 | $222.08 |
|
| 2025 | 297 | $222.68 | $222.08 | $0.00 | $0.00 | $222.68 | $222.08 |
Statement Details |
| 2024 | 297 | STATE - STATE LEVY (SCHOOL) | $49.08 | $49.08 | $0.00 | $0.00 | $98.16 | $0.00 |
| 2024 | 297 | COUNTY - COUNTY LEVIES (CE, DD, VET, MH) | $32.27 | $32.26 | $0.00 | $0.00 | $64.53 | $0.00 |
| 2024 | 297 | CONSERVE - CONSERVATION FUTURES | $0.97 | $0.97 | $0.00 | $0.00 | $1.94 | $0.00 |
| 2024 | 297 | COROADS - COUNTY ROADS (ROADS, DIV TO CE) | $25.97 | $25.96 | $0.00 | $0.00 | $51.93 | $0.00 |
| 2024 | 297 | PORTPT - PORT DISTRICT | $13.34 | $13.32 | $0.00 | $0.00 | $26.66 | $0.00 |
| 2024 | 297 | PUD1 - PUD #1 | $2.12 | $2.12 | $0.00 | $0.00 | $4.24 | $0.00 |
| 2024 | 297 | LIB1 - LIBRARY DIST #1 | $10.05 | $10.04 | $0.00 | $0.00 | $20.09 | $0.00 |
| 2024 | 297 | HD2 - HOSP DIST #2 | $1.89 | $1.88 | $0.00 | $0.00 | $3.77 | $0.00 |
| 2024 | 297 | SD50 - SCHOOL DIST #50 | $0.00 | $0.00 | $0.00 | $0.00 | $0.00 | $0.00 |
| 2024 | 297 | FD1 - FIRE DISTRICT #1 | $42.67 | $42.67 | $0.00 | $0.00 | $85.34 | $0.00 |
| 2024 | 297 | EMS1 - FIRE DIST #1 EMS | $16.30 | $16.30 | $0.00 | $0.00 | $32.60 | $0.00 |
| 2024 | 297 | FP - DNR Forest Fire Protection Assmt | $8.50 | $8.50 | $0.00 | $0.00 | $17.00 | $0.00 |
| 2024 | 297 | FPLCA - DNR Landowner Contingency Assmt | $3.00 | $3.00 | $0.00 | $0.00 | $6.00 | $0.00 |
| 2024 | 297 | OSS - On Site Septic | $21.00 | $21.00 | $0.00 | $0.00 | $42.00 | $0.00 |
| 2024 | 297 | FP ADMIN - FP ADMIN | $0.50 | $0.00 | $0.00 | $0.00 | $0.50 | $0.00 |
| 2024 | 297 | TOTAL: | $227.66 | $227.10 | $0.00 | $0.00 | $454.76 | $0.00 |
|
| 2024 | 297 | $227.66 | $227.10 | $0.00 | $0.00 | $454.76 | $0.00 |
Statement Details |
| 2023 | 297 | STATE - STATE LEVY (SCHOOL) | $50.00 | $49.99 | $0.00 | $0.00 | $99.99 | $0.00 |
| 2023 | 297 | COUNTY - COUNTY LEVIES (CE, DD, VET, MH) | $33.48 | $33.48 | $0.00 | $0.00 | $66.96 | $0.00 |
| 2023 | 297 | CONSERVE - CONSERVATION FUTURES | $1.01 | $1.00 | $0.00 | $0.00 | $2.01 | $0.00 |
| 2023 | 297 | COROADS - COUNTY ROADS (ROADS, DIV TO CE) | $27.10 | $27.09 | $0.00 | $0.00 | $54.19 | $0.00 |
| 2023 | 297 | PORTPT - PORT DISTRICT | $14.11 | $14.10 | $0.00 | $0.00 | $28.21 | $0.00 |
| 2023 | 297 | PUD1 - PUD #1 | $2.22 | $2.22 | $0.00 | $0.00 | $4.44 | $0.00 |
| 2023 | 297 | LIB1 - LIBRARY DIST #1 | $10.48 | $10.48 | $0.00 | $0.00 | $20.96 | $0.00 |
| 2023 | 297 | HD2 - HOSP DIST #2 | $1.96 | $1.95 | $0.00 | $0.00 | $3.91 | $0.00 |
| 2023 | 297 | SD50 - SCHOOL DIST #50 | $0.00 | $0.00 | $0.00 | $0.00 | $0.00 | $0.00 |
| 2023 | 297 | FD1 - FIRE DISTRICT #1 | $27.59 | $27.58 | $0.00 | $0.00 | $55.17 | $0.00 |
| 2023 | 297 | EMS1 - FIRE DIST #1 EMS | $11.74 | $11.73 | $0.00 | $0.00 | $23.47 | $0.00 |
| 2023 | 297 | FP - DNR Forest Fire Protection Assmt | $8.50 | $8.50 | $0.00 | $0.00 | $17.00 | $0.00 |
| 2023 | 297 | FPLCA - DNR Landowner Contingency Assmt | $3.00 | $3.00 | $0.00 | $0.00 | $6.00 | $0.00 |
| 2023 | 297 | OSS - On Site Septic | $20.50 | $20.50 | $0.00 | $0.00 | $41.00 | $0.00 |
| 2023 | 297 | FP ADMIN - FP ADMIN | $0.50 | $0.00 | $0.00 | $0.00 | $0.50 | $0.00 |
| 2023 | 297 | TOTAL: | $212.19 | $211.62 | $0.00 | $0.00 | $423.81 | $0.00 |
|
| 2023 | 297 | $212.19 | $211.62 | $0.00 | $0.00 | $423.81 | $0.00 |
Statement Details |
| 2022 | 297 | STATE - STATE LEVY (SCHOOL) | $57.90 | $57.90 | $0.00 | $0.00 | $115.80 | $0.00 |
| 2022 | 297 | COUNTY - COUNTY LEVIES (CE, DD, VET, MH) | $39.72 | $39.70 | $0.00 | $0.00 | $79.42 | $0.00 |
| 2022 | 297 | CONSERVE - CONSERVATION FUTURES | $1.19 | $1.19 | $0.00 | $0.00 | $2.38 | $0.00 |
| 2022 | 297 | COROADS - COUNTY ROADS (ROADS, DIV TO CE) | $32.28 | $32.27 | $0.00 | $0.00 | $64.55 | $0.00 |
| 2022 | 297 | PORTPT - PORT DISTRICT | $17.01 | $16.99 | $0.00 | $0.00 | $34.00 | $0.00 |
| 2022 | 297 | PUD1 - PUD #1 | $2.66 | $2.65 | $0.00 | $0.00 | $5.31 | $0.00 |
| 2022 | 297 | LIB1 - LIBRARY DIST #1 | $12.49 | $12.48 | $0.00 | $0.00 | $24.97 | $0.00 |
| 2022 | 297 | HD2 - HOSP DIST #2 | $2.33 | $2.31 | $0.00 | $0.00 | $4.64 | $0.00 |
| 2022 | 297 | SD50 - SCHOOL DIST #50 | $0.00 | $0.00 | $0.00 | $0.00 | $0.00 | $0.00 |
| 2022 | 297 | FD1 - FIRE DISTRICT #1 | $32.58 | $32.57 | $0.00 | $0.00 | $65.15 | $0.00 |
| 2022 | 297 | EMS1 - FIRE DIST #1 EMS | $13.86 | $13.85 | $0.00 | $0.00 | $27.71 | $0.00 |
| 2022 | 297 | FP - DNR Forest Fire Protection Assmt | $8.50 | $8.50 | $0.00 | $0.00 | $17.00 | $0.00 |
| 2022 | 297 | FPLCA - DNR Landowner Contingency Assmt | $3.00 | $3.00 | $0.00 | $0.00 | $6.00 | $0.00 |
| 2022 | 297 | OSS - On Site Septic | $19.50 | $19.50 | $0.00 | $0.00 | $39.00 | $0.00 |
| 2022 | 297 | FP ADMIN - FP ADMIN | $0.50 | $0.00 | $0.00 | $0.00 | $0.50 | $0.00 |
| 2022 | 297 | TOTAL: | $243.52 | $242.91 | $0.00 | $0.00 | $486.43 | $0.00 |
|
| 2022 | 297 | $243.52 | $242.91 | $0.00 | $0.00 | $486.43 | $0.00 |
Values
| (+) Improvement Homesite Value: | + | $99,305 | |
| (+) Improvement Non-Homesite Value: | + | $0 | |
| (+) Land Homesite Value: | + | $239,936 | |
| (+) Land Non-Homesite Value: | + | $0 | |
| (+) Curr Use (HS): | + | $0 | $0 |
| (+) Curr Use (NHS): | + | $0 | $0 |
| | | -------------------------- | |
| (=) Market Value: | = | $339,241 | |
| (–) Productivity Loss: | – | $0 | |
| | | -------------------------- | |
| (=) Subtotal: | = | $339,241 | |
| (+) Senior Appraised Value: | + | $162,974 | |
| (+) Non-Senior Appraised Value: | + | $0 | |
| | | -------------------------- | |
| (=) Total Appraised Value: | = | $162,974 | |
| (–) Senior Exemption Loss: | – | $97,784 | |
| (–) Exemption Loss: | – | $0 | |
| | | -------------------------- | |
| (=) Taxable Value: | = | $65,190 | |
Taxing Jurisdiction
| Owner: | KATHY BUSIC POTOCKI | | |
| % Ownership: | 100.0000000000% | | |
| Total Value: | N/A | | |
| Tax Area: | 0111 - 1-50F1E1H2L1 |
| CE | COUNTY CURRENT EXPENSE | N/A | N/A | N/A | N/A | | |
| CNTYDD | DEVELOPMENTAL DISABILITIES | N/A | N/A | N/A | N/A | | |
| CNTYVET | VETERANS RELIEF | N/A | N/A | N/A | N/A | | |
| MENTAL | MENTAL HEALTH | N/A | N/A | N/A | N/A | | |
| ROADS | COUNTY ROADS | N/A | N/A | N/A | N/A | | |
| ROADSCU | COUNTY ROADS TO CUR EXP | N/A | N/A | N/A | N/A | | |
| HOSP2CASH | HOSP DIST #2 GENERAL | N/A | N/A | N/A | N/A | | |
| SCH50BOND | SCHOOL DIST #50 BOND 2016 | N/A | N/A | N/A | N/A | | |
| SCH50CP | SCHOOL DIST #50 CAP PROJ | N/A | N/A | N/A | N/A | | |
| SCH50MO | SCHOOL DIST #50 EP & O | N/A | N/A | N/A | N/A | | |
| CONSERVE | CONSERVATION FUTURES | N/A | N/A | N/A | N/A | | |
| EMS1 | FIRE DIST #1 EMS | N/A | N/A | N/A | N/A | | |
| FD1 | FIRE DIST #1 GENERAL | N/A | N/A | N/A | N/A | | |
| LIB1 | LIBRARY DIST #1 GENERAL | N/A | N/A | N/A | N/A | | |
| PORTPT | PORT OF PT GENERAL | N/A | N/A | N/A | N/A | | |
| PORTPTIDD | PORT OF PT IDD 2019 | N/A | N/A | N/A | N/A | | |
| PUD1 | PUD #1 GENERAL | N/A | N/A | N/A | N/A | | |
| STATE | STATE SCHOOL PART 1 | N/A | N/A | N/A | N/A | | |
| STATE2 | STATE SCHOOL PART 2 | N/A | N/A | N/A | N/A | | |
| | Total Tax Rate: | N/A | | | | | |
| | | | | Taxes w/Current Exemptions: | N/A | | |
| | | | | Taxes w/o Exemptions: | N/A | | |
Improvement / Building
| Improvement #1: | Residential Bldg | State Code: | 11 | 728.0 sqft | Value: | $99,305 |
| Bathrooms (#): | 1 (FULL) | Bedrooms (#): | 1 | | Exterior Wall: | SI/ST | Fireplace: | WD ST-AVG | | Floor Construction: | FRAME | Foundation: | PO&BL | | Heating/Cooling: | WD/NO | Interior Finish: | FIN | | Roof Cover: | METAL |   |   |
|
| | Type | Description | Class CD | Sub Class CD | Year Built | Area |
| | MA | Main Area | 4 | C1S | 1978 | 728.0 |
| | CLOFT | Cabin Loft | 3 | * | 1978 | 280.0 |
| | CWPOR | Cabin Wood Porch | 3 | * | 1978 | 328.4 |
| | CDECK | Cabin Deck | 3 | * | 1978 | 120.0 |
| | SHED | Shed (Table Not Dep) | 3 | * | 1978 | 336.0 |
| | SHED | Shed (Table Not Dep) | 3 | * | 1978 | 30.0 |
Sketch
Property Image
Land
| 1 | 5310-1571A | | 3.1200 | 135907.20 | 0.00 | 0.00 | 0.00 | $78,936 | $0 |
| 2 | 5310-1371S | | 1.0000 | 43560.00 | 0.00 | 0.00 | 1.00 | $161,000 | $0 |
Roll Value History
| 2025 | N/A | N/A | N/A | N/A | N/A |
| 2024 | $95,167 | $229,504 | $0 | $324,671 | $65,190 |
| 2023 | $85,213 | $203,640 | $0 | $288,853 | $65,190 |
| 2022 | $77,466 | $192,400 | $0 | $269,866 | $65,190 |
| 2021 | $58,686 | $155,452 | $0 | $214,138 | $65,190 |
Deed and Sales History
Payout Agreement
| No payout information available.. |