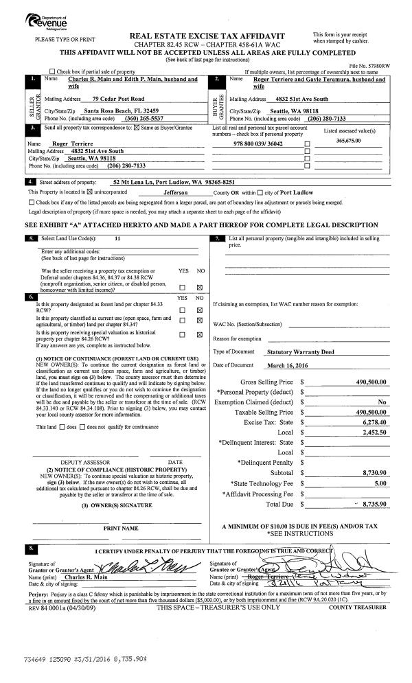
Property
Account |
| Property ID: | 10329 | Abbreviated Legal Description: | S5 T30 R1W TAX 29 |
| Parcel # / Geo ID: | 001052032 | Agent Code: | |
| Type: | Real | | |
| Tax Area: | 0111 - 1-50F1E1H2L1 | Land Use Code | 18 |
| Open Space: | N | DFL | N |
| Historic Property: | N | Remodel Property: | N |
| Multi-Family Redevelopment: | N | | |
| Township: | 30N | Section: | 5 |
| Range: | 1W |
Location |
| Address: | | Mapsco: | 082/023 |
| Neighborhood: | S 4, 5 & 6 T30 R1W | Map ID: | |
| Neighborhood CD: | 5310 |
Owner |
| Name: | DAVID JANOS REVOCABLE LIVING TRUST | Owner ID: | 55856 |
| Mailing Address: | DAVID A JANOS TRUSTEE 4485 LOPEZ AVE PORT TOWNSEND, WA 98368-2711 | % Ownership: | 100.0000000000% |
| | | Exemptions: | |
Pay Tax Due
Select the appropriate checkbox next to the year to be paid. Multiple years may be selected.
*Convenience Fee not included
Taxes and Assessment Details
Property Tax Information as of
10/23/2025
Click on "Statement Details" to expand or collapse a tax statement.
* Please enter a valid date ** Please enter a valid date *
Statement Details |
| 2025 | 312 | STATE - STATE LEVY (SCHOOL) | $274.21 | $274.19 | $0.00 | $24.68 | $0.00 | $573.08 |
| 2025 | 312 | COUNTY - COUNTY LEVIES (CE, DD, VET, MH) | $107.83 | $107.83 | $0.00 | $9.70 | $0.00 | $225.36 |
| 2025 | 312 | CONSERVE - CONSERVATION FUTURES | $3.24 | $3.23 | $0.00 | $0.29 | $0.00 | $6.76 |
| 2025 | 312 | COROADS - COUNTY ROADS (ROADS, DIV TO CE) | $86.39 | $86.38 | $0.00 | $7.77 | $0.00 | $180.54 |
| 2025 | 312 | PORTPT - PORT DISTRICT | $44.01 | $43.99 | $0.00 | $3.96 | $0.00 | $91.96 |
| 2025 | 312 | PUD1 - PUD #1 | $7.06 | $7.05 | $0.00 | $0.63 | $0.00 | $14.74 |
| 2025 | 312 | LIB1 - LIBRARY DIST #1 | $33.43 | $33.42 | $0.00 | $3.01 | $0.00 | $69.86 |
| 2025 | 312 | HD2 - HOSP DIST #2 | $6.29 | $6.29 | $0.00 | $0.57 | $0.00 | $13.15 |
| 2025 | 312 | SD50 - SCHOOL DIST #50 | $200.41 | $200.38 | $0.00 | $18.03 | $0.00 | $418.82 |
| 2025 | 312 | FD1 - FIRE DISTRICT #1 | $142.29 | $142.29 | $0.00 | $12.81 | $0.00 | $297.39 |
| 2025 | 312 | EMS1 - FIRE DIST #1 EMS | $54.73 | $54.73 | $0.00 | $4.93 | $0.00 | $114.39 |
| 2025 | 312 | FP - DNR Forest Fire Protection Assmt | $8.50 | $8.50 | $0.00 | $0.76 | $0.00 | $17.76 |
| 2025 | 312 | FPLCA - DNR Landowner Contingency Assmt | $3.00 | $3.00 | $0.00 | $0.27 | $0.00 | $6.27 |
| 2025 | 312 | JCCD - JC Conservation District | $2.80 | $2.80 | $0.00 | $0.25 | $0.00 | $5.85 |
| 2025 | 312 | NWA - Noxious Weed Assessment | $2.90 | $2.90 | $0.00 | $0.26 | $0.00 | $6.06 |
| 2025 | 312 | WAT - Clean Water District | $13.00 | $13.00 | $0.00 | $1.17 | $0.00 | $27.17 |
| 2025 | 312 | FP ADMIN - FP ADMIN | $0.50 | $0.00 | $0.00 | $0.00 | $0.00 | $0.50 |
| 2025 | 312 | TOTAL: | $990.59 | $989.98 | $0.00 | $89.09 | $0.00 | $2069.66 |
|
| 2025 | 312 | $990.59 | $989.98 | $0.00 | $89.09 | $0.00 | $2069.66 |
Statement Details |
| 2024 | 312 | STATE - STATE LEVY (SCHOOL) | $240.50 | $240.50 | $0.00 | $64.93 | $0.00 | $545.93 |
| 2024 | 312 | COUNTY - COUNTY LEVIES (CE, DD, VET, MH) | $102.91 | $102.91 | $0.00 | $27.79 | $0.00 | $233.61 |
| 2024 | 312 | CONSERVE - CONSERVATION FUTURES | $3.09 | $3.08 | $0.00 | $0.83 | $0.00 | $7.00 |
| 2024 | 312 | COROADS - COUNTY ROADS (ROADS, DIV TO CE) | $82.81 | $82.81 | $0.00 | $22.36 | $0.00 | $187.98 |
| 2024 | 312 | PORTPT - PORT DISTRICT | $42.51 | $42.50 | $0.00 | $11.48 | $0.00 | $96.49 |
| 2024 | 312 | PUD1 - PUD #1 | $6.76 | $6.76 | $0.00 | $1.83 | $0.00 | $15.35 |
| 2024 | 312 | LIB1 - LIBRARY DIST #1 | $32.04 | $32.04 | $0.00 | $8.65 | $0.00 | $72.73 |
| 2024 | 312 | HD2 - HOSP DIST #2 | $6.01 | $6.00 | $0.00 | $1.62 | $0.00 | $13.63 |
| 2024 | 312 | SD50 - SCHOOL DIST #50 | $194.58 | $194.57 | $0.00 | $52.53 | $0.00 | $441.68 |
| 2024 | 312 | FD1 - FIRE DISTRICT #1 | $136.08 | $136.07 | $0.00 | $36.74 | $0.00 | $308.89 |
| 2024 | 312 | EMS1 - FIRE DIST #1 EMS | $51.98 | $51.97 | $0.00 | $14.03 | $0.00 | $117.98 |
| 2024 | 312 | FP - DNR Forest Fire Protection Assmt | $8.50 | $8.50 | $0.00 | $2.30 | $0.00 | $19.30 |
| 2024 | 312 | FPLCA - DNR Landowner Contingency Assmt | $3.00 | $3.00 | $0.00 | $0.81 | $0.00 | $6.81 |
| 2024 | 312 | JCCD - JC Conservation District | $2.80 | $2.80 | $0.00 | $0.76 | $0.00 | $6.36 |
| 2024 | 312 | NWA - Noxious Weed Assessment | $2.90 | $2.90 | $0.00 | $0.78 | $0.00 | $6.58 |
| 2024 | 312 | WAT - Clean Water District | $12.50 | $12.50 | $0.00 | $3.38 | $0.00 | $28.38 |
| 2024 | 312 | FP ADMIN - FP ADMIN | $0.50 | $0.00 | $0.00 | $0.00 | $0.00 | $0.50 |
| 2024 | 312 | TOTAL: | $929.47 | $928.91 | $0.00 | $250.82 | $0.00 | $2109.20 |
|
| 2024 | 312 | $929.47 | $928.91 | $0.00 | $250.82 | $0.00 | $2109.20 |
Statement Details |
| 2023 | 312 | STATE - STATE LEVY (SCHOOL) | $234.24 | $234.24 | $0.00 | $0.00 | $468.48 | $0.00 |
| 2023 | 312 | COUNTY - COUNTY LEVIES (CE, DD, VET, MH) | $102.22 | $102.21 | $0.00 | $0.00 | $204.43 | $0.00 |
| 2023 | 312 | CONSERVE - CONSERVATION FUTURES | $3.07 | $3.06 | $0.00 | $0.00 | $6.13 | $0.00 |
| 2023 | 312 | COROADS - COUNTY ROADS (ROADS, DIV TO CE) | $82.70 | $82.70 | $0.00 | $0.00 | $165.40 | $0.00 |
| 2023 | 312 | PORTPT - PORT DISTRICT | $43.06 | $43.05 | $0.00 | $0.00 | $86.11 | $0.00 |
| 2023 | 312 | PUD1 - PUD #1 | $6.78 | $6.77 | $0.00 | $0.00 | $13.55 | $0.00 |
| 2023 | 312 | LIB1 - LIBRARY DIST #1 | $32.00 | $31.99 | $0.00 | $0.00 | $63.99 | $0.00 |
| 2023 | 312 | HD2 - HOSP DIST #2 | $5.97 | $5.96 | $0.00 | $0.00 | $11.93 | $0.00 |
| 2023 | 312 | SD50 - SCHOOL DIST #50 | $185.89 | $185.86 | $0.00 | $0.00 | $371.75 | $0.00 |
| 2023 | 312 | FD1 - FIRE DISTRICT #1 | $84.21 | $84.20 | $0.00 | $0.00 | $168.41 | $0.00 |
| 2023 | 312 | EMS1 - FIRE DIST #1 EMS | $35.82 | $35.82 | $0.00 | $0.00 | $71.64 | $0.00 |
| 2023 | 312 | FP - DNR Forest Fire Protection Assmt | $8.50 | $8.50 | $0.00 | $0.00 | $17.00 | $0.00 |
| 2023 | 312 | FPLCA - DNR Landowner Contingency Assmt | $3.00 | $3.00 | $0.00 | $0.00 | $6.00 | $0.00 |
| 2023 | 312 | JCCD - JC Conservation District | $2.80 | $2.80 | $0.00 | $0.00 | $5.60 | $0.00 |
| 2023 | 312 | NWA - Noxious Weed Assessment | $2.90 | $2.90 | $0.00 | $0.00 | $5.80 | $0.00 |
| 2023 | 312 | WAT - Clean Water District | $12.00 | $12.00 | $0.00 | $0.00 | $24.00 | $0.00 |
| 2023 | 312 | FP ADMIN - FP ADMIN | $0.50 | $0.00 | $0.00 | $0.00 | $0.50 | $0.00 |
| 2023 | 312 | TOTAL: | $845.66 | $845.06 | $0.00 | $0.00 | $1690.72 | $0.00 |
|
| 2023 | 312 | $845.66 | $845.06 | $0.00 | $0.00 | $1690.72 | $0.00 |
Statement Details |
| 2022 | 312 | STATE - STATE LEVY (SCHOOL) | $211.97 | $211.96 | $0.00 | $0.00 | $423.93 | $0.00 |
| 2022 | 312 | COUNTY - COUNTY LEVIES (CE, DD, VET, MH) | $94.46 | $94.43 | $0.00 | $0.00 | $188.89 | $0.00 |
| 2022 | 312 | CONSERVE - CONSERVATION FUTURES | $2.83 | $2.83 | $0.00 | $0.00 | $5.66 | $0.00 |
| 2022 | 312 | COROADS - COUNTY ROADS (ROADS, DIV TO CE) | $76.77 | $76.75 | $0.00 | $0.00 | $153.52 | $0.00 |
| 2022 | 312 | PORTPT - PORT DISTRICT | $40.43 | $40.43 | $0.00 | $0.00 | $80.86 | $0.00 |
| 2022 | 312 | PUD1 - PUD #1 | $6.32 | $6.31 | $0.00 | $0.00 | $12.63 | $0.00 |
| 2022 | 312 | LIB1 - LIBRARY DIST #1 | $29.70 | $29.69 | $0.00 | $0.00 | $59.39 | $0.00 |
| 2022 | 312 | HD2 - HOSP DIST #2 | $5.51 | $5.51 | $0.00 | $0.00 | $11.02 | $0.00 |
| 2022 | 312 | SD50 - SCHOOL DIST #50 | $157.09 | $157.07 | $0.00 | $0.00 | $314.16 | $0.00 |
| 2022 | 312 | FD1 - FIRE DISTRICT #1 | $77.48 | $77.48 | $0.00 | $0.00 | $154.96 | $0.00 |
| 2022 | 312 | EMS1 - FIRE DIST #1 EMS | $32.96 | $32.95 | $0.00 | $0.00 | $65.91 | $0.00 |
| 2022 | 312 | FP - DNR Forest Fire Protection Assmt | $8.50 | $8.50 | $0.00 | $0.00 | $17.00 | $0.00 |
| 2022 | 312 | FPLCA - DNR Landowner Contingency Assmt | $3.00 | $3.00 | $0.00 | $0.00 | $6.00 | $0.00 |
| 2022 | 312 | JCCD - JC Conservation District | $2.80 | $2.80 | $0.00 | $0.00 | $5.60 | $0.00 |
| 2022 | 312 | NWA - Noxious Weed Assessment | $2.90 | $2.90 | $0.00 | $0.00 | $5.80 | $0.00 |
| 2022 | 312 | WAT - Clean Water District | $11.50 | $11.50 | $0.00 | $0.00 | $23.00 | $0.00 |
| 2022 | 312 | FP ADMIN - FP ADMIN | $0.50 | $0.00 | $0.00 | $0.00 | $0.50 | $0.00 |
| 2022 | 312 | TOTAL: | $764.72 | $764.11 | $0.00 | $0.00 | $1528.83 | $0.00 |
|
| 2022 | 312 | $764.72 | $764.11 | $0.00 | $0.00 | $1528.83 | $0.00 |
Values
| (+) Improvement Homesite Value: | + | $0 | |
| (+) Improvement Non-Homesite Value: | + | $0 | |
| (+) Land Homesite Value: | + | $0 | |
| (+) Land Non-Homesite Value: | + | $239,085 | |
| (+) Curr Use (HS): | + | $0 | $0 |
| (+) Curr Use (NHS): | + | $0 | $0 |
| | | -------------------------- | |
| (=) Market Value: | = | $239,085 | |
| (–) Productivity Loss: | – | $0 | |
| | | -------------------------- | |
| (=) Subtotal: | = | $239,085 | |
| (+) Senior Appraised Value: | + | $0 | |
| (+) Non-Senior Appraised Value: | + | $239,085 | |
| | | -------------------------- | |
| (=) Total Appraised Value: | = | $239,085 | |
| (–) Senior Exemption Loss: | – | $0 | |
| (–) Exemption Loss: | – | $0 | |
| | | -------------------------- | |
| (=) Taxable Value: | = | $239,085 | |
Taxing Jurisdiction
| Owner: | DAVID JANOS REVOCABLE LIVING TRUST | | |
| % Ownership: | 100.0000000000% | | |
| Total Value: | N/A | | |
| Tax Area: | 0111 - 1-50F1E1H2L1 |
| CE | COUNTY CURRENT EXPENSE | N/A | N/A | N/A | N/A | | |
| CNTYDD | DEVELOPMENTAL DISABILITIES | N/A | N/A | N/A | N/A | | |
| CNTYVET | VETERANS RELIEF | N/A | N/A | N/A | N/A | | |
| MENTAL | MENTAL HEALTH | N/A | N/A | N/A | N/A | | |
| ROADS | COUNTY ROADS | N/A | N/A | N/A | N/A | | |
| ROADSCU | COUNTY ROADS TO CUR EXP | N/A | N/A | N/A | N/A | | |
| HOSP2CASH | HOSP DIST #2 GENERAL | N/A | N/A | N/A | N/A | | |
| SCH50BOND | SCHOOL DIST #50 BOND 2016 | N/A | N/A | N/A | N/A | | |
| SCH50CP | SCHOOL DIST #50 CAP PROJ | N/A | N/A | N/A | N/A | | |
| SCH50MO | SCHOOL DIST #50 EP & O | N/A | N/A | N/A | N/A | | |
| CONSERVE | CONSERVATION FUTURES | N/A | N/A | N/A | N/A | | |
| EMS1 | FIRE DIST #1 EMS | N/A | N/A | N/A | N/A | | |
| FD1 | FIRE DIST #1 GENERAL | N/A | N/A | N/A | N/A | | |
| LIB1 | LIBRARY DIST #1 GENERAL | N/A | N/A | N/A | N/A | | |
| PORTPT | PORT OF PT GENERAL | N/A | N/A | N/A | N/A | | |
| PORTPTIDD | PORT OF PT IDD 2019 | N/A | N/A | N/A | N/A | | |
| PUD1 | PUD #1 GENERAL | N/A | N/A | N/A | N/A | | |
| STATE | STATE SCHOOL PART 1 | N/A | N/A | N/A | N/A | | |
| STATE2 | STATE SCHOOL PART 2 | N/A | N/A | N/A | N/A | | |
| | Total Tax Rate: | N/A | | | | | |
| | | | | Taxes w/Current Exemptions: | N/A | | |
| | | | | Taxes w/o Exemptions: | N/A | | |
Improvement / Building
Sketch
| No sketches available for this property. |
Property Image
Land
| 1 | 5310-1571A | | 4.4500 | 193842.00 | 0.00 | 0.00 | 0.00 | $112,585 | $0 |
| 2 | 5310-1371S | | 1.0000 | 43560.00 | 0.00 | 0.00 | 1.00 | $126,500 | $0 |
Roll Value History
| 2025 | N/A | N/A | N/A | N/A | N/A |
| 2024 | $0 | $228,690 | $0 | $228,690 | $228,690 |
| 2023 | $0 | $207,900 | $0 | $207,900 | $207,900 |
| 2022 | $0 | $199,000 | $0 | $199,000 | $199,000 |
| 2021 | $0 | $155,045 | $0 | $155,045 | $155,045 |
Deed and Sales History
| 1 | 03/23/2017 | QCD | Quit Claim Deed | DAVID A JANOS | DAVID JANOS REVOCABLE LIVING TRUST | | | | 127345 | |
| 2 | 04/30/2002 | QCD | Quit Claim Deed | CATHERINE S JANOS | DAVID A JANOS | 0 | 0 | $0.00 | 94540 | 0 |
| 3 | 12/23/1994 | QCD | Quit Claim Deed | JANOS, DAVID A | JANOS, CATHERINE S | 0 | 0 | $0.00 | 76105 | 0 |
Payout Agreement
| No payout information available.. |