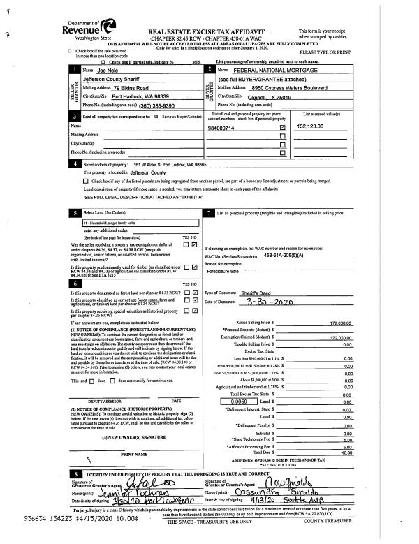
Property
Account |
| Property ID: | 10367 | Abbreviated Legal Description: | S5 T30 R1W TX 18 |
| Parcel # / Geo ID: | 001053021 | Agent Code: | |
| Type: | Real | | |
| Tax Area: | 0111 - 1-50F1E1H2L1 | Land Use Code | 91 |
| Open Space: | N | DFL | N |
| Historic Property: | N | Remodel Property: | N |
| Multi-Family Redevelopment: | N | | |
| Township: | 30N | Section: | 5 |
| Range: | 1W |
Location |
| Address: | | Mapsco: | 082/016 |
| Neighborhood: | S 4, 5 & 6 T30 R1W | Map ID: | |
| Neighborhood CD: | 5310 |
Owner |
| Name: | SAMANTHA TRONE HARPER & ANDRE HARPER | Owner ID: | 91734 |
| Mailing Address: | 367 CHERRY ST PORT TOWNSEND, WA 98368-6336 | % Ownership: | 100.0000000000% |
| | | Exemptions: | |
Pay Tax Due
Select the appropriate checkbox next to the year to be paid. Multiple years may be selected.
*Convenience Fee not included
Taxes and Assessment Details
Property Tax Information as of
10/23/2025
Click on "Statement Details" to expand or collapse a tax statement.
* Please enter a valid date ** Please enter a valid date *
Statement Details |
| 2025 | 350 | STATE - STATE LEVY (SCHOOL) | $260.28 | $260.27 | $0.00 | $0.00 | $260.28 | $260.27 |
| 2025 | 350 | COUNTY - COUNTY LEVIES (CE, DD, VET, MH) | $102.36 | $102.34 | $0.00 | $0.00 | $102.36 | $102.34 |
| 2025 | 350 | CONSERVE - CONSERVATION FUTURES | $3.07 | $3.07 | $0.00 | $0.00 | $3.07 | $3.07 |
| 2025 | 350 | COROADS - COUNTY ROADS (ROADS, DIV TO CE) | $82.00 | $82.00 | $0.00 | $0.00 | $82.00 | $82.00 |
| 2025 | 350 | PORTPT - PORT DISTRICT | $41.77 | $41.76 | $0.00 | $0.00 | $41.77 | $41.76 |
| 2025 | 350 | PUD1 - PUD #1 | $6.70 | $6.69 | $0.00 | $0.00 | $6.70 | $6.69 |
| 2025 | 350 | LIB1 - LIBRARY DIST #1 | $31.73 | $31.72 | $0.00 | $0.00 | $31.73 | $31.72 |
| 2025 | 350 | HD2 - HOSP DIST #2 | $5.97 | $5.97 | $0.00 | $0.00 | $5.97 | $5.97 |
| 2025 | 350 | SD50 - SCHOOL DIST #50 | $190.23 | $190.21 | $0.00 | $0.00 | $190.23 | $190.21 |
| 2025 | 350 | FD1 - FIRE DISTRICT #1 | $135.07 | $135.06 | $0.00 | $0.00 | $135.07 | $135.06 |
| 2025 | 350 | EMS1 - FIRE DIST #1 EMS | $51.95 | $51.95 | $0.00 | $0.00 | $51.95 | $51.95 |
| 2025 | 350 | FP - DNR Forest Fire Protection Assmt | $8.50 | $8.50 | $0.00 | $0.00 | $8.50 | $8.50 |
| 2025 | 350 | FPLCA - DNR Landowner Contingency Assmt | $3.00 | $3.00 | $0.00 | $0.00 | $3.00 | $3.00 |
| 2025 | 350 | JCCD - JC Conservation District | $2.69 | $2.69 | $0.00 | $0.00 | $2.69 | $2.69 |
| 2025 | 350 | NWA - Noxious Weed Assessment | $2.75 | $2.75 | $0.00 | $0.00 | $2.75 | $2.75 |
| 2025 | 350 | WAT - Clean Water District | $13.00 | $13.00 | $0.00 | $0.00 | $13.00 | $13.00 |
| 2025 | 350 | FP ADMIN - FP ADMIN | $0.50 | $0.00 | $0.00 | $0.00 | $0.50 | $0.00 |
| 2025 | 350 | TOTAL: | $941.57 | $940.98 | $0.00 | $0.00 | $941.57 | $940.98 |
|
| 2025 | 350 | $941.57 | $940.98 | $0.00 | $0.00 | $941.57 | $940.98 |
Statement Details |
| 2024 | 350 | STATE - STATE LEVY (SCHOOL) | $228.29 | $228.28 | $0.00 | $0.00 | $456.57 | $0.00 |
| 2024 | 350 | COUNTY - COUNTY LEVIES (CE, DD, VET, MH) | $97.69 | $97.68 | $0.00 | $0.00 | $195.37 | $0.00 |
| 2024 | 350 | CONSERVE - CONSERVATION FUTURES | $2.93 | $2.93 | $0.00 | $0.00 | $5.86 | $0.00 |
| 2024 | 350 | COROADS - COUNTY ROADS (ROADS, DIV TO CE) | $78.61 | $78.60 | $0.00 | $0.00 | $157.21 | $0.00 |
| 2024 | 350 | PORTPT - PORT DISTRICT | $40.35 | $40.34 | $0.00 | $0.00 | $80.69 | $0.00 |
| 2024 | 350 | PUD1 - PUD #1 | $6.42 | $6.41 | $0.00 | $0.00 | $12.83 | $0.00 |
| 2024 | 350 | LIB1 - LIBRARY DIST #1 | $30.41 | $30.41 | $0.00 | $0.00 | $60.82 | $0.00 |
| 2024 | 350 | HD2 - HOSP DIST #2 | $5.70 | $5.70 | $0.00 | $0.00 | $11.40 | $0.00 |
| 2024 | 350 | SD50 - SCHOOL DIST #50 | $184.70 | $184.68 | $0.00 | $0.00 | $369.38 | $0.00 |
| 2024 | 350 | FD1 - FIRE DISTRICT #1 | $129.16 | $129.16 | $0.00 | $0.00 | $258.32 | $0.00 |
| 2024 | 350 | EMS1 - FIRE DIST #1 EMS | $49.34 | $49.33 | $0.00 | $0.00 | $98.67 | $0.00 |
| 2024 | 350 | FP - DNR Forest Fire Protection Assmt | $8.50 | $8.50 | $0.00 | $0.00 | $17.00 | $0.00 |
| 2024 | 350 | FPLCA - DNR Landowner Contingency Assmt | $3.00 | $3.00 | $0.00 | $0.00 | $6.00 | $0.00 |
| 2024 | 350 | JCCD - JC Conservation District | $2.69 | $2.69 | $0.00 | $0.00 | $5.38 | $0.00 |
| 2024 | 350 | NWA - Noxious Weed Assessment | $2.75 | $2.75 | $0.00 | $0.00 | $5.50 | $0.00 |
| 2024 | 350 | WAT - Clean Water District | $12.50 | $12.50 | $0.00 | $0.00 | $25.00 | $0.00 |
| 2024 | 350 | FP ADMIN - FP ADMIN | $0.50 | $0.00 | $0.00 | $0.00 | $0.50 | $0.00 |
| 2024 | 350 | TOTAL: | $883.54 | $882.96 | $0.00 | $0.00 | $1766.50 | $0.00 |
|
| 2024 | 350 | $883.54 | $882.96 | $0.00 | $0.00 | $1766.50 | $0.00 |
Statement Details |
| 2023 | 350 | STATE - STATE LEVY (SCHOOL) | $222.94 | $222.94 | $0.00 | $0.00 | $445.88 | $0.00 |
| 2023 | 350 | COUNTY - COUNTY LEVIES (CE, DD, VET, MH) | $97.28 | $97.28 | $0.00 | $0.00 | $194.56 | $0.00 |
| 2023 | 350 | CONSERVE - CONSERVATION FUTURES | $2.92 | $2.91 | $0.00 | $0.00 | $5.83 | $0.00 |
| 2023 | 350 | COROADS - COUNTY ROADS (ROADS, DIV TO CE) | $78.71 | $78.71 | $0.00 | $0.00 | $157.42 | $0.00 |
| 2023 | 350 | PORTPT - PORT DISTRICT | $40.98 | $40.98 | $0.00 | $0.00 | $81.96 | $0.00 |
| 2023 | 350 | PUD1 - PUD #1 | $6.45 | $6.45 | $0.00 | $0.00 | $12.90 | $0.00 |
| 2023 | 350 | LIB1 - LIBRARY DIST #1 | $30.45 | $30.45 | $0.00 | $0.00 | $60.90 | $0.00 |
| 2023 | 350 | HD2 - HOSP DIST #2 | $5.69 | $5.67 | $0.00 | $0.00 | $11.36 | $0.00 |
| 2023 | 350 | SD50 - SCHOOL DIST #50 | $176.92 | $176.89 | $0.00 | $0.00 | $353.81 | $0.00 |
| 2023 | 350 | FD1 - FIRE DISTRICT #1 | $80.14 | $80.14 | $0.00 | $0.00 | $160.28 | $0.00 |
| 2023 | 350 | EMS1 - FIRE DIST #1 EMS | $34.09 | $34.09 | $0.00 | $0.00 | $68.18 | $0.00 |
| 2023 | 350 | FP - DNR Forest Fire Protection Assmt | $8.50 | $8.50 | $0.00 | $0.00 | $17.00 | $0.00 |
| 2023 | 350 | FPLCA - DNR Landowner Contingency Assmt | $3.00 | $3.00 | $0.00 | $0.00 | $6.00 | $0.00 |
| 2023 | 350 | JCCD - JC Conservation District | $2.69 | $2.69 | $0.00 | $0.00 | $5.38 | $0.00 |
| 2023 | 350 | NWA - Noxious Weed Assessment | $2.75 | $2.75 | $0.00 | $0.00 | $5.50 | $0.00 |
| 2023 | 350 | WAT - Clean Water District | $12.00 | $12.00 | $0.00 | $0.00 | $24.00 | $0.00 |
| 2023 | 350 | FP ADMIN - FP ADMIN | $0.50 | $0.00 | $0.00 | $0.00 | $0.50 | $0.00 |
| 2023 | 350 | TOTAL: | $806.01 | $805.45 | $0.00 | $0.00 | $1611.46 | $0.00 |
|
| 2023 | 350 | $806.01 | $805.45 | $0.00 | $0.00 | $1611.46 | $0.00 |
Statement Details |
| 2022 | 350 | STATE - STATE LEVY (SCHOOL) | $204.04 | $204.02 | $0.00 | $0.00 | $408.06 | $0.00 |
| 2022 | 350 | COUNTY - COUNTY LEVIES (CE, DD, VET, MH) | $90.91 | $90.89 | $0.00 | $0.00 | $181.80 | $0.00 |
| 2022 | 350 | CONSERVE - CONSERVATION FUTURES | $2.73 | $2.72 | $0.00 | $0.00 | $5.45 | $0.00 |
| 2022 | 350 | COROADS - COUNTY ROADS (ROADS, DIV TO CE) | $73.89 | $73.88 | $0.00 | $0.00 | $147.77 | $0.00 |
| 2022 | 350 | PORTPT - PORT DISTRICT | $38.92 | $38.91 | $0.00 | $0.00 | $77.83 | $0.00 |
| 2022 | 350 | PUD1 - PUD #1 | $6.08 | $6.08 | $0.00 | $0.00 | $12.16 | $0.00 |
| 2022 | 350 | LIB1 - LIBRARY DIST #1 | $28.59 | $28.58 | $0.00 | $0.00 | $57.17 | $0.00 |
| 2022 | 350 | HD2 - HOSP DIST #2 | $5.31 | $5.30 | $0.00 | $0.00 | $10.61 | $0.00 |
| 2022 | 350 | SD50 - SCHOOL DIST #50 | $151.20 | $151.19 | $0.00 | $0.00 | $302.39 | $0.00 |
| 2022 | 350 | FD1 - FIRE DISTRICT #1 | $74.58 | $74.57 | $0.00 | $0.00 | $149.15 | $0.00 |
| 2022 | 350 | EMS1 - FIRE DIST #1 EMS | $31.72 | $31.72 | $0.00 | $0.00 | $63.44 | $0.00 |
| 2022 | 350 | FP - DNR Forest Fire Protection Assmt | $8.50 | $8.50 | $0.00 | $0.00 | $17.00 | $0.00 |
| 2022 | 350 | FPLCA - DNR Landowner Contingency Assmt | $3.00 | $3.00 | $0.00 | $0.00 | $6.00 | $0.00 |
| 2022 | 350 | JCCD - JC Conservation District | $2.69 | $2.69 | $0.00 | $0.00 | $5.38 | $0.00 |
| 2022 | 350 | NWA - Noxious Weed Assessment | $2.75 | $2.75 | $0.00 | $0.00 | $5.50 | $0.00 |
| 2022 | 350 | WAT - Clean Water District | $11.50 | $11.50 | $0.00 | $0.00 | $23.00 | $0.00 |
| 2022 | 350 | FP ADMIN - FP ADMIN | $0.50 | $0.00 | $0.00 | $0.00 | $0.50 | $0.00 |
| 2022 | 350 | TOTAL: | $736.91 | $736.30 | $0.00 | $0.00 | $1473.21 | $0.00 |
|
| 2022 | 350 | $736.91 | $736.30 | $0.00 | $0.00 | $1473.21 | $0.00 |
Values
| (+) Improvement Homesite Value: | + | $0 | |
| (+) Improvement Non-Homesite Value: | + | $0 | |
| (+) Land Homesite Value: | + | $0 | |
| (+) Land Non-Homesite Value: | + | $226,941 | |
| (+) Curr Use (HS): | + | $0 | $0 |
| (+) Curr Use (NHS): | + | $0 | $0 |
| | | -------------------------- | |
| (=) Market Value: | = | $226,941 | |
| (–) Productivity Loss: | – | $0 | |
| | | -------------------------- | |
| (=) Subtotal: | = | $226,941 | |
| (+) Senior Appraised Value: | + | $0 | |
| (+) Non-Senior Appraised Value: | + | $226,941 | |
| | | -------------------------- | |
| (=) Total Appraised Value: | = | $226,941 | |
| (–) Senior Exemption Loss: | – | $0 | |
| (–) Exemption Loss: | – | $0 | |
| | | -------------------------- | |
| (=) Taxable Value: | = | $226,941 | |
Taxing Jurisdiction
| Owner: | SAMANTHA TRONE HARPER & ANDRE HARPER | | |
| % Ownership: | 100.0000000000% | | |
| Total Value: | N/A | | |
| Tax Area: | 0111 - 1-50F1E1H2L1 |
| CE | COUNTY CURRENT EXPENSE | N/A | N/A | N/A | N/A | | |
| CNTYDD | DEVELOPMENTAL DISABILITIES | N/A | N/A | N/A | N/A | | |
| CNTYVET | VETERANS RELIEF | N/A | N/A | N/A | N/A | | |
| MENTAL | MENTAL HEALTH | N/A | N/A | N/A | N/A | | |
| ROADS | COUNTY ROADS | N/A | N/A | N/A | N/A | | |
| ROADSCU | COUNTY ROADS TO CUR EXP | N/A | N/A | N/A | N/A | | |
| HOSP2CASH | HOSP DIST #2 GENERAL | N/A | N/A | N/A | N/A | | |
| SCH50BOND | SCHOOL DIST #50 BOND 2016 | N/A | N/A | N/A | N/A | | |
| SCH50CP | SCHOOL DIST #50 CAP PROJ | N/A | N/A | N/A | N/A | | |
| SCH50MO | SCHOOL DIST #50 EP & O | N/A | N/A | N/A | N/A | | |
| CONSERVE | CONSERVATION FUTURES | N/A | N/A | N/A | N/A | | |
| EMS1 | FIRE DIST #1 EMS | N/A | N/A | N/A | N/A | | |
| FD1 | FIRE DIST #1 GENERAL | N/A | N/A | N/A | N/A | | |
| LIB1 | LIBRARY DIST #1 GENERAL | N/A | N/A | N/A | N/A | | |
| PORTPT | PORT OF PT GENERAL | N/A | N/A | N/A | N/A | | |
| PORTPTIDD | PORT OF PT IDD 2019 | N/A | N/A | N/A | N/A | | |
| PUD1 | PUD #1 GENERAL | N/A | N/A | N/A | N/A | | |
| STATE | STATE SCHOOL PART 1 | N/A | N/A | N/A | N/A | | |
| STATE2 | STATE SCHOOL PART 2 | N/A | N/A | N/A | N/A | | |
| | Total Tax Rate: | N/A | | | | | |
| | | | | Taxes w/Current Exemptions: | N/A | | |
| | | | | Taxes w/o Exemptions: | N/A | | |
Improvement / Building
Sketch
| No sketches available for this property. |
Property Image
Land
| 1 | 5310-1371S | | 1.0000 | 43560.00 | 0.00 | 0.00 | 1.00 | $126,500 | $0 |
| 2 | 5310-1571A | | 3.9700 | 172933.20 | 0.00 | 0.00 | 0.00 | $100,441 | $0 |
Roll Value History
| 2025 | N/A | N/A | N/A | N/A | N/A |
| 2024 | $0 | $217,074 | $0 | $217,074 | $217,074 |
| 2023 | $0 | $197,340 | $0 | $197,340 | $197,340 |
| 2022 | $0 | $189,400 | $0 | $189,400 | $189,400 |
| 2021 | $0 | $149,237 | $0 | $149,237 | $149,237 |
Deed and Sales History
| 1 | 11/04/2020 | REC | Real Estate Contract | ART GREENBERG | SAMANTHA TRONE HARPER & ANDRE HARPER | | | $190,000.00 | 135519 | |
| 2 | 05/21/2007 | SWD | Statutory Warranty Deed | KRULISH, ROBERT/ELIZABETH | GREENBERG, ARTHUR/PATRICIA | | | $185,000.00 | 109269 | 0 |
Payout Agreement
| No payout information available.. |