Property
Account |
| Property ID: | 10409 | Abbreviated Legal Description: | MOORE SHORT PLAT II LOT 1 |
| Parcel # / Geo ID: | 001061014 | Agent Code: | |
| Type: | Real | | |
| Tax Area: | 0111 - 1-50F1E1H2L1 | Land Use Code | 11 |
| Open Space: | N | DFL | N |
| Historic Property: | N | Remodel Property: | N |
| Multi-Family Redevelopment: | N | | |
| Township: | 30N | Section: | 6 |
| Range: | 1W |
Location |
| Address: | 385 HAADA LAAS RD PORT TOWNSEND, WA 98368 | Mapsco: | 133/071 |
| Neighborhood: | S 4, 5 & 6 T30 R1W | Map ID: | |
| Neighborhood CD: | 5310 |
Owner |
| Name: | GAYLE A MOORE | Owner ID: | 95120 |
| Mailing Address: | 385 HAADA LAAS RD PORT TOWNSEND, WA 98368-9238 | % Ownership: | 100.0000000000% |
| | | Exemptions: | |
Pay Tax Due
There is currently No Amount Due on this property.
Taxes and Assessment Details
Property Tax Information as of
10/23/2025
Click on "Statement Details" to expand or collapse a tax statement.
* Please enter a valid date ** Please enter a valid date *
Statement Details |
| 2025 | 391 | STATE - STATE LEVY (SCHOOL) | $869.98 | $869.97 | $0.00 | $0.00 | $1739.95 | $0.00 |
| 2025 | 391 | COUNTY - COUNTY LEVIES (CE, DD, VET, MH) | $342.12 | $342.10 | $0.00 | $0.00 | $684.22 | $0.00 |
| 2025 | 391 | CONSERVE - CONSERVATION FUTURES | $10.26 | $10.26 | $0.00 | $0.00 | $20.52 | $0.00 |
| 2025 | 391 | COROADS - COUNTY ROADS (ROADS, DIV TO CE) | $274.09 | $274.08 | $0.00 | $0.00 | $548.17 | $0.00 |
| 2025 | 391 | PORTPT - PORT DISTRICT | $139.60 | $139.60 | $0.00 | $0.00 | $279.20 | $0.00 |
| 2025 | 391 | PUD1 - PUD #1 | $22.39 | $22.38 | $0.00 | $0.00 | $44.77 | $0.00 |
| 2025 | 391 | LIB1 - LIBRARY DIST #1 | $106.04 | $106.04 | $0.00 | $0.00 | $212.08 | $0.00 |
| 2025 | 391 | HD2 - HOSP DIST #2 | $19.96 | $19.96 | $0.00 | $0.00 | $39.92 | $0.00 |
| 2025 | 391 | SD50 - SCHOOL DIST #50 | $635.81 | $635.80 | $0.00 | $0.00 | $1271.61 | $0.00 |
| 2025 | 391 | FD1 - FIRE DISTRICT #1 | $451.46 | $451.45 | $0.00 | $0.00 | $902.91 | $0.00 |
| 2025 | 391 | EMS1 - FIRE DIST #1 EMS | $173.64 | $173.64 | $0.00 | $0.00 | $347.28 | $0.00 |
| 2025 | 391 | FP - DNR Forest Fire Protection Assmt | $8.50 | $8.50 | $0.00 | $0.00 | $17.00 | $0.00 |
| 2025 | 391 | FPLCA - DNR Landowner Contingency Assmt | $3.00 | $3.00 | $0.00 | $0.00 | $6.00 | $0.00 |
| 2025 | 391 | JCCD - JC Conservation District | $2.95 | $2.95 | $0.00 | $0.00 | $5.90 | $0.00 |
| 2025 | 391 | NWA - Noxious Weed Assessment | $3.35 | $3.35 | $0.00 | $0.00 | $6.70 | $0.00 |
| 2025 | 391 | OSS - On Site Septic | $21.50 | $21.50 | $0.00 | $0.00 | $43.00 | $0.00 |
| 2025 | 391 | WAT - Clean Water District | $13.00 | $13.00 | $0.00 | $0.00 | $26.00 | $0.00 |
| 2025 | 391 | FP ADMIN - FP ADMIN | $0.50 | $0.00 | $0.00 | $0.00 | $0.50 | $0.00 |
| 2025 | 391 | TOTAL: | $3098.15 | $3097.58 | $0.00 | $0.00 | $6195.73 | $0.00 |
|
| 2025 | 391 | $3098.15 | $3097.58 | $0.00 | $0.00 | $6195.73 | $0.00 |
Statement Details |
| 2024 | 391 | STATE - STATE LEVY (SCHOOL) | $749.70 | $749.69 | $0.00 | $0.00 | $1499.39 | $0.00 |
| 2024 | 391 | COUNTY - COUNTY LEVIES (CE, DD, VET, MH) | $320.81 | $320.79 | $0.00 | $0.00 | $641.60 | $0.00 |
| 2024 | 391 | CONSERVE - CONSERVATION FUTURES | $9.62 | $9.62 | $0.00 | $0.00 | $19.24 | $0.00 |
| 2024 | 391 | COROADS - COUNTY ROADS (ROADS, DIV TO CE) | $258.14 | $258.13 | $0.00 | $0.00 | $516.27 | $0.00 |
| 2024 | 391 | PORTPT - PORT DISTRICT | $132.51 | $132.50 | $0.00 | $0.00 | $265.01 | $0.00 |
| 2024 | 391 | PUD1 - PUD #1 | $21.07 | $21.07 | $0.00 | $0.00 | $42.14 | $0.00 |
| 2024 | 391 | LIB1 - LIBRARY DIST #1 | $99.87 | $99.87 | $0.00 | $0.00 | $199.74 | $0.00 |
| 2024 | 391 | HD2 - HOSP DIST #2 | $18.72 | $18.72 | $0.00 | $0.00 | $37.44 | $0.00 |
| 2024 | 391 | SD50 - SCHOOL DIST #50 | $606.54 | $606.53 | $0.00 | $0.00 | $1213.07 | $0.00 |
| 2024 | 391 | FD1 - FIRE DISTRICT #1 | $424.18 | $424.17 | $0.00 | $0.00 | $848.35 | $0.00 |
| 2024 | 391 | EMS1 - FIRE DIST #1 EMS | $162.02 | $162.02 | $0.00 | $0.00 | $324.04 | $0.00 |
| 2024 | 391 | FP - DNR Forest Fire Protection Assmt | $8.50 | $8.50 | $0.00 | $0.00 | $17.00 | $0.00 |
| 2024 | 391 | FPLCA - DNR Landowner Contingency Assmt | $3.00 | $3.00 | $0.00 | $0.00 | $6.00 | $0.00 |
| 2024 | 391 | JCCD - JC Conservation District | $2.95 | $2.95 | $0.00 | $0.00 | $5.90 | $0.00 |
| 2024 | 391 | NWA - Noxious Weed Assessment | $3.35 | $3.35 | $0.00 | $0.00 | $6.70 | $0.00 |
| 2024 | 391 | OSS - On Site Septic | $21.00 | $21.00 | $0.00 | $0.00 | $42.00 | $0.00 |
| 2024 | 391 | WAT - Clean Water District | $12.50 | $12.50 | $0.00 | $0.00 | $25.00 | $0.00 |
| 2024 | 391 | FP ADMIN - FP ADMIN | $0.50 | $0.00 | $0.00 | $0.00 | $0.50 | $0.00 |
| 2024 | 391 | TOTAL: | $2854.98 | $2854.41 | $0.00 | $0.00 | $5709.39 | $0.00 |
|
| 2024 | 391 | $2854.98 | $2854.41 | $0.00 | $0.00 | $5709.39 | $0.00 |
Statement Details |
| 2023 | 391 | STATE - STATE LEVY (SCHOOL) | $697.81 | $697.80 | $0.00 | $0.00 | $1395.61 | $0.00 |
| 2023 | 391 | COUNTY - COUNTY LEVIES (CE, DD, VET, MH) | $304.50 | $304.50 | $0.00 | $0.00 | $609.00 | $0.00 |
| 2023 | 391 | CONSERVE - CONSERVATION FUTURES | $9.13 | $9.13 | $0.00 | $0.00 | $18.26 | $0.00 |
| 2023 | 391 | COROADS - COUNTY ROADS (ROADS, DIV TO CE) | $246.36 | $246.36 | $0.00 | $0.00 | $492.72 | $0.00 |
| 2023 | 391 | PORTPT - PORT DISTRICT | $128.28 | $128.27 | $0.00 | $0.00 | $256.55 | $0.00 |
| 2023 | 391 | PUD1 - PUD #1 | $20.19 | $20.18 | $0.00 | $0.00 | $40.37 | $0.00 |
| 2023 | 391 | LIB1 - LIBRARY DIST #1 | $95.32 | $95.31 | $0.00 | $0.00 | $190.63 | $0.00 |
| 2023 | 391 | HD2 - HOSP DIST #2 | $17.77 | $17.76 | $0.00 | $0.00 | $35.53 | $0.00 |
| 2023 | 391 | SD50 - SCHOOL DIST #50 | $553.73 | $553.72 | $0.00 | $0.00 | $1107.45 | $0.00 |
| 2023 | 391 | FD1 - FIRE DISTRICT #1 | $250.85 | $250.84 | $0.00 | $0.00 | $501.69 | $0.00 |
| 2023 | 391 | EMS1 - FIRE DIST #1 EMS | $106.71 | $106.70 | $0.00 | $0.00 | $213.41 | $0.00 |
| 2023 | 391 | FP - DNR Forest Fire Protection Assmt | $8.50 | $8.50 | $0.00 | $0.00 | $17.00 | $0.00 |
| 2023 | 391 | FPLCA - DNR Landowner Contingency Assmt | $3.00 | $3.00 | $0.00 | $0.00 | $6.00 | $0.00 |
| 2023 | 391 | JCCD - JC Conservation District | $2.95 | $2.95 | $0.00 | $0.00 | $5.90 | $0.00 |
| 2023 | 391 | NWA - Noxious Weed Assessment | $3.35 | $3.35 | $0.00 | $0.00 | $6.70 | $0.00 |
| 2023 | 391 | OSS - On Site Septic | $20.50 | $20.50 | $0.00 | $0.00 | $41.00 | $0.00 |
| 2023 | 391 | WAT - Clean Water District | $12.00 | $12.00 | $0.00 | $0.00 | $24.00 | $0.00 |
| 2023 | 391 | FP ADMIN - FP ADMIN | $0.50 | $0.00 | $0.00 | $0.00 | $0.50 | $0.00 |
| 2023 | 391 | TOTAL: | $2481.45 | $2480.87 | $0.00 | $0.00 | $4962.32 | $0.00 |
|
| 2023 | 391 | $2481.45 | $2480.87 | $0.00 | $0.00 | $4962.32 | $0.00 |
Statement Details |
| 2022 | 392 | STATE - STATE LEVY (SCHOOL) | $605.78 | $605.77 | $0.00 | $0.00 | $1211.55 | $0.00 |
| 2022 | 392 | COUNTY - COUNTY LEVIES (CE, DD, VET, MH) | $269.90 | $269.90 | $0.00 | $0.00 | $539.80 | $0.00 |
| 2022 | 392 | CONSERVE - CONSERVATION FUTURES | $8.10 | $8.09 | $0.00 | $0.00 | $16.19 | $0.00 |
| 2022 | 392 | COROADS - COUNTY ROADS (ROADS, DIV TO CE) | $219.37 | $219.36 | $0.00 | $0.00 | $438.73 | $0.00 |
| 2022 | 392 | PORTPT - PORT DISTRICT | $115.55 | $115.54 | $0.00 | $0.00 | $231.09 | $0.00 |
| 2022 | 392 | PUD1 - PUD #1 | $18.05 | $18.05 | $0.00 | $0.00 | $36.10 | $0.00 |
| 2022 | 392 | LIB1 - LIBRARY DIST #1 | $84.87 | $84.87 | $0.00 | $0.00 | $169.74 | $0.00 |
| 2022 | 392 | HD2 - HOSP DIST #2 | $15.76 | $15.75 | $0.00 | $0.00 | $31.51 | $0.00 |
| 2022 | 392 | SD50 - SCHOOL DIST #50 | $448.91 | $448.91 | $0.00 | $0.00 | $897.82 | $0.00 |
| 2022 | 392 | FD1 - FIRE DISTRICT #1 | $221.42 | $221.42 | $0.00 | $0.00 | $442.84 | $0.00 |
| 2022 | 392 | EMS1 - FIRE DIST #1 EMS | $94.19 | $94.18 | $0.00 | $0.00 | $188.37 | $0.00 |
| 2022 | 392 | FP - DNR Forest Fire Protection Assmt | $8.50 | $8.50 | $0.00 | $0.00 | $17.00 | $0.00 |
| 2022 | 392 | FPLCA - DNR Landowner Contingency Assmt | $3.00 | $3.00 | $0.00 | $0.00 | $6.00 | $0.00 |
| 2022 | 392 | JCCD - JC Conservation District | $2.95 | $2.95 | $0.00 | $0.00 | $5.90 | $0.00 |
| 2022 | 392 | NWA - Noxious Weed Assessment | $3.35 | $3.35 | $0.00 | $0.00 | $6.70 | $0.00 |
| 2022 | 392 | OSS - On Site Septic | $19.50 | $19.50 | $0.00 | $0.00 | $39.00 | $0.00 |
| 2022 | 392 | WAT - Clean Water District | $11.50 | $11.50 | $0.00 | $0.00 | $23.00 | $0.00 |
| 2022 | 392 | FP ADMIN - FP ADMIN | $0.50 | $0.00 | $0.00 | $0.00 | $0.50 | $0.00 |
| 2022 | 392 | TOTAL: | $2151.20 | $2150.64 | $0.00 | $0.00 | $4301.84 | $0.00 |
|
| 2022 | 392 | $2151.20 | $2150.64 | $0.00 | $0.00 | $4301.84 | $0.00 |
Values
| (+) Improvement Homesite Value: | + | $0 | |
| (+) Improvement Non-Homesite Value: | + | $460,628 | |
| (+) Land Homesite Value: | + | $0 | |
| (+) Land Non-Homesite Value: | + | $297,057 | |
| (+) Curr Use (HS): | + | $0 | $0 |
| (+) Curr Use (NHS): | + | $0 | $0 |
| | | -------------------------- | |
| (=) Market Value: | = | $757,685 | |
| (–) Productivity Loss: | – | $0 | |
| | | -------------------------- | |
| (=) Subtotal: | = | $757,685 | |
| (+) Senior Appraised Value: | + | $0 | |
| (+) Non-Senior Appraised Value: | + | $757,685 | |
| | | -------------------------- | |
| (=) Total Appraised Value: | = | $757,685 | |
| (–) Senior Exemption Loss: | – | $0 | |
| (–) Exemption Loss: | – | $0 | |
| | | -------------------------- | |
| (=) Taxable Value: | = | $757,685 | |
Taxing Jurisdiction
| Owner: | GAYLE A MOORE | | |
| % Ownership: | 100.0000000000% | | |
| Total Value: | N/A | | |
| Tax Area: | 0111 - 1-50F1E1H2L1 |
| CE | COUNTY CURRENT EXPENSE | N/A | N/A | N/A | N/A | | |
| CNTYDD | DEVELOPMENTAL DISABILITIES | N/A | N/A | N/A | N/A | | |
| CNTYVET | VETERANS RELIEF | N/A | N/A | N/A | N/A | | |
| MENTAL | MENTAL HEALTH | N/A | N/A | N/A | N/A | | |
| ROADS | COUNTY ROADS | N/A | N/A | N/A | N/A | | |
| ROADSCU | COUNTY ROADS TO CUR EXP | N/A | N/A | N/A | N/A | | |
| HOSP2CASH | HOSP DIST #2 GENERAL | N/A | N/A | N/A | N/A | | |
| SCH50BOND | SCHOOL DIST #50 BOND 2016 | N/A | N/A | N/A | N/A | | |
| SCH50CP | SCHOOL DIST #50 CAP PROJ | N/A | N/A | N/A | N/A | | |
| SCH50MO | SCHOOL DIST #50 EP & O | N/A | N/A | N/A | N/A | | |
| CONSERVE | CONSERVATION FUTURES | N/A | N/A | N/A | N/A | | |
| EMS1 | FIRE DIST #1 EMS | N/A | N/A | N/A | N/A | | |
| FD1 | FIRE DIST #1 GENERAL | N/A | N/A | N/A | N/A | | |
| LIB1 | LIBRARY DIST #1 GENERAL | N/A | N/A | N/A | N/A | | |
| PORTPT | PORT OF PT GENERAL | N/A | N/A | N/A | N/A | | |
| PORTPTIDD | PORT OF PT IDD 2019 | N/A | N/A | N/A | N/A | | |
| PUD1 | PUD #1 GENERAL | N/A | N/A | N/A | N/A | | |
| STATE | STATE SCHOOL PART 1 | N/A | N/A | N/A | N/A | | |
| STATE2 | STATE SCHOOL PART 2 | N/A | N/A | N/A | N/A | | |
| | Total Tax Rate: | N/A | | | | | |
| | | | | Taxes w/Current Exemptions: | N/A | | |
| | | | | Taxes w/o Exemptions: | N/A | | |
Improvement / Building
| Improvement #1: | Residential Bldg | State Code: | 11 | 2040.0 sqft | Value: | $460,628 |
| Bathrooms (#): | 2 (FULL) | Bedrooms (#): | 3 | | Exterior Wall: | SI/ST | Floor Construction: | CONCR | | Foundation: | CONPR | Heating/Cooling: | HTWTR | | Roof Cover: | COMP |   |   |
|
| | Type | Description | Class CD | Sub Class CD | Year Built | Area |
| | MA | Main Area | 4+ | 15SF | 1989 | 1160.0 |
| | MA2 | Second Floor Main Area | 4+ | 15SF | 1989 | 800.0 |
| | MA3 | Third Floor Main Area | 4+ | 15SF | 1989 | 80.0 |
| | HCPOR | House Concrete Porch | 4 | * | 1989 | 260.0 |
| | GDET | Detached Garage | 2 | 15SF | 1999 | 1200.0 |
Sketch
Property Image
Land
| 1 | 5310-1671A | | 7.1800 | 312760.80 | 0.00 | 0.00 | 0.00 | $140,369 | $0 |
| 2 | 5310-1373S | | 1.0000 | 43560.00 | 0.00 | 0.00 | 1.00 | $156,688 | $0 |
Roll Value History
| 2025 | N/A | N/A | N/A | N/A | N/A |
| 2024 | $441,436 | $284,141 | $0 | $725,577 | $725,577 |
| 2023 | $394,764 | $253,310 | $0 | $648,074 | $648,074 |
| 2022 | $358,876 | $233,950 | $0 | $592,826 | $592,826 |
| 2021 | $271,875 | $171,224 | $0 | $443,099 | $443,099 |
Deed and Sales History
| 1 | 03/16/2016 | PRD | Personal Representatives Deed | | | | | | 125035 | |
| 2 | 10/15/2002 | QCD | Quit Claim Deed | MOORE, CHARLES/GAYLE TRUS | MOORE, CHARLES/GAYLE | 0 | 0 | $0.00 | 95759 | 0 |
| 3 | 03/01/2001 | QCD | Quit Claim Deed | MOORE, CHARLES ALLEN/GAYL | MOORE, CHARLES A/ GAYLE A | 0 | 0 | $0.00 | 92163 | 0 |
| 4 | 03/01/2001 | QCD | Quit Claim Deed | MOORE, CHARLES A/GAYLE A | MOORE, CHARLES ALLEN/GAYLE ARL | 0 | 0 | $0.00 | 92221 | 0 |
| 5 | 06/08/1994 | QCD | Quit Claim Deed | MOORE, CHARLES A/GAYLE A | MOORE FAMILY TRUST | 0 | 0 | $0.00 | 74894 | 0 |
Payout Agreement
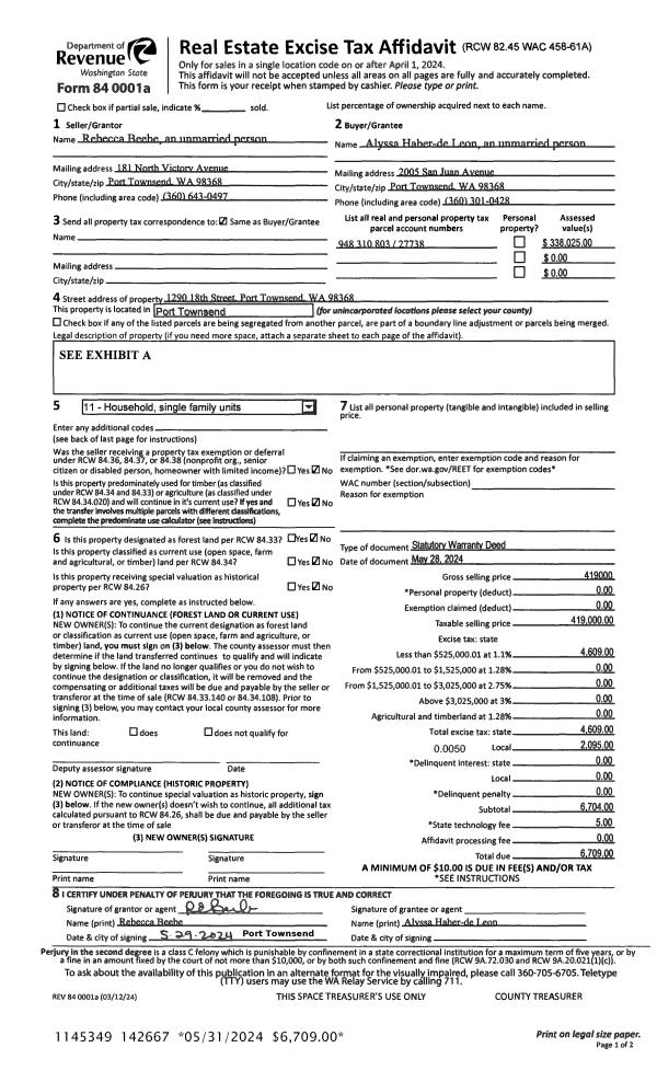
| No payout information available.. |