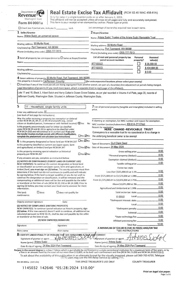
Property
Account |
| Property ID: | 10413 | Abbreviated Legal Description: | S6 T30 R1W TAX 25(W OF RD) ENGL BY TX 61 LS TX 30-33 WITH EASE |
| Parcel # / Geo ID: | 001062025 | Agent Code: | |
| Type: | Real | | |
| Tax Area: | 0111 - 1-50F1E1H2L1 | Land Use Code | 91 |
| Open Space: | N | DFL | N |
| Historic Property: | N | Remodel Property: | N |
| Multi-Family Redevelopment: | N | | |
| Township: | 30N | Section: | 6 |
| Range: | 1W |
Location |
| Address: | | Mapsco: | 083/028 |
| Neighborhood: | S 4, 5 & 6 T30 R1W | Map ID: | |
| Neighborhood CD: | 5310 |
Owner |
| Name: | LZA PROPERTIES LP | Owner ID: | 103534 |
| Mailing Address: | 1039 E 15TH ST PLANO, TX 75074-6221 | % Ownership: | 100.0000000000% |
| | | Exemptions: | |
Pay Tax Due
There is currently No Amount Due on this property.
Taxes and Assessment Details
Property Tax Information as of
10/23/2025
Click on "Statement Details" to expand or collapse a tax statement.
* Please enter a valid date ** Please enter a valid date *
Statement Details |
| 2025 | 395 | STATE - STATE LEVY (SCHOOL) | $342.51 | $342.50 | $0.00 | $0.00 | $685.01 | $0.00 |
| 2025 | 395 | COUNTY - COUNTY LEVIES (CE, DD, VET, MH) | $134.69 | $134.68 | $0.00 | $0.00 | $269.37 | $0.00 |
| 2025 | 395 | CONSERVE - CONSERVATION FUTURES | $4.04 | $4.04 | $0.00 | $0.00 | $8.08 | $0.00 |
| 2025 | 395 | COROADS - COUNTY ROADS (ROADS, DIV TO CE) | $107.91 | $107.90 | $0.00 | $0.00 | $215.81 | $0.00 |
| 2025 | 395 | PORTPT - PORT DISTRICT | $54.96 | $54.96 | $0.00 | $0.00 | $109.92 | $0.00 |
| 2025 | 395 | PUD1 - PUD #1 | $8.82 | $8.81 | $0.00 | $0.00 | $17.63 | $0.00 |
| 2025 | 395 | LIB1 - LIBRARY DIST #1 | $41.75 | $41.75 | $0.00 | $0.00 | $83.50 | $0.00 |
| 2025 | 395 | HD2 - HOSP DIST #2 | $7.86 | $7.86 | $0.00 | $0.00 | $15.72 | $0.00 |
| 2025 | 395 | SD50 - SCHOOL DIST #50 | $250.33 | $250.31 | $0.00 | $0.00 | $500.64 | $0.00 |
| 2025 | 395 | FD1 - FIRE DISTRICT #1 | $177.74 | $177.73 | $0.00 | $0.00 | $355.47 | $0.00 |
| 2025 | 395 | EMS1 - FIRE DIST #1 EMS | $68.36 | $68.36 | $0.00 | $0.00 | $136.72 | $0.00 |
| 2025 | 395 | FP - DNR Forest Fire Protection Assmt | $8.50 | $8.50 | $0.00 | $0.00 | $17.00 | $0.00 |
| 2025 | 395 | FPLCA - DNR Landowner Contingency Assmt | $3.00 | $3.00 | $0.00 | $0.00 | $6.00 | $0.00 |
| 2025 | 395 | JCCD - JC Conservation District | $2.57 | $2.57 | $0.00 | $0.00 | $5.14 | $0.00 |
| 2025 | 395 | NWA - Noxious Weed Assessment | $2.30 | $2.30 | $0.00 | $0.00 | $4.60 | $0.00 |
| 2025 | 395 | WAT - Clean Water District | $13.00 | $13.00 | $0.00 | $0.00 | $26.00 | $0.00 |
| 2025 | 395 | FP ADMIN - FP ADMIN | $0.50 | $0.00 | $0.00 | $0.00 | $0.50 | $0.00 |
| 2025 | 395 | TOTAL: | $1228.84 | $1228.27 | $0.00 | $0.00 | $2457.11 | $0.00 |
|
| 2025 | 395 | $1228.84 | $1228.27 | $0.00 | $0.00 | $2457.11 | $0.00 |
Statement Details |
| 2024 | 395 | STATE - STATE LEVY (SCHOOL) | $300.42 | $300.40 | $0.00 | $0.00 | $600.82 | $0.00 |
| 2024 | 395 | COUNTY - COUNTY LEVIES (CE, DD, VET, MH) | $128.56 | $128.53 | $0.00 | $0.00 | $257.09 | $0.00 |
| 2024 | 395 | CONSERVE - CONSERVATION FUTURES | $3.86 | $3.85 | $0.00 | $0.00 | $7.71 | $0.00 |
| 2024 | 395 | COROADS - COUNTY ROADS (ROADS, DIV TO CE) | $103.45 | $103.43 | $0.00 | $0.00 | $206.88 | $0.00 |
| 2024 | 395 | PORTPT - PORT DISTRICT | $53.10 | $53.09 | $0.00 | $0.00 | $106.19 | $0.00 |
| 2024 | 395 | PUD1 - PUD #1 | $8.45 | $8.44 | $0.00 | $0.00 | $16.89 | $0.00 |
| 2024 | 395 | LIB1 - LIBRARY DIST #1 | $40.02 | $40.02 | $0.00 | $0.00 | $80.04 | $0.00 |
| 2024 | 395 | HD2 - HOSP DIST #2 | $7.50 | $7.50 | $0.00 | $0.00 | $15.00 | $0.00 |
| 2024 | 395 | SD50 - SCHOOL DIST #50 | $243.06 | $243.03 | $0.00 | $0.00 | $486.09 | $0.00 |
| 2024 | 395 | FD1 - FIRE DISTRICT #1 | $169.97 | $169.97 | $0.00 | $0.00 | $339.94 | $0.00 |
| 2024 | 395 | EMS1 - FIRE DIST #1 EMS | $64.92 | $64.92 | $0.00 | $0.00 | $129.84 | $0.00 |
| 2024 | 395 | FP - DNR Forest Fire Protection Assmt | $8.50 | $8.50 | $0.00 | $0.00 | $17.00 | $0.00 |
| 2024 | 395 | FPLCA - DNR Landowner Contingency Assmt | $3.00 | $3.00 | $0.00 | $0.00 | $6.00 | $0.00 |
| 2024 | 395 | JCCD - JC Conservation District | $2.57 | $2.57 | $0.00 | $0.00 | $5.14 | $0.00 |
| 2024 | 395 | NWA - Noxious Weed Assessment | $2.30 | $2.30 | $0.00 | $0.00 | $4.60 | $0.00 |
| 2024 | 395 | WAT - Clean Water District | $12.50 | $12.50 | $0.00 | $0.00 | $25.00 | $0.00 |
| 2024 | 395 | FP ADMIN - FP ADMIN | $0.50 | $0.00 | $0.00 | $0.00 | $0.50 | $0.00 |
| 2024 | 395 | TOTAL: | $1152.68 | $1152.05 | $0.00 | $0.00 | $2304.73 | $0.00 |
|
| 2024 | 395 | $1152.68 | $1152.05 | $0.00 | $0.00 | $2304.73 | $0.00 |
Statement Details |
| 2023 | 395 | STATE - STATE LEVY (SCHOOL) | $305.67 | $305.67 | $0.00 | $0.00 | $611.34 | $0.00 |
| 2023 | 395 | COUNTY - COUNTY LEVIES (CE, DD, VET, MH) | $133.40 | $133.36 | $0.00 | $0.00 | $266.76 | $0.00 |
| 2023 | 395 | CONSERVE - CONSERVATION FUTURES | $4.00 | $4.00 | $0.00 | $0.00 | $8.00 | $0.00 |
| 2023 | 395 | COROADS - COUNTY ROADS (ROADS, DIV TO CE) | $107.92 | $107.92 | $0.00 | $0.00 | $215.84 | $0.00 |
| 2023 | 395 | PORTPT - PORT DISTRICT | $56.19 | $56.19 | $0.00 | $0.00 | $112.38 | $0.00 |
| 2023 | 395 | PUD1 - PUD #1 | $8.84 | $8.84 | $0.00 | $0.00 | $17.68 | $0.00 |
| 2023 | 395 | LIB1 - LIBRARY DIST #1 | $41.76 | $41.75 | $0.00 | $0.00 | $83.51 | $0.00 |
| 2023 | 395 | HD2 - HOSP DIST #2 | $7.79 | $7.78 | $0.00 | $0.00 | $15.57 | $0.00 |
| 2023 | 395 | SD50 - SCHOOL DIST #50 | $242.56 | $242.55 | $0.00 | $0.00 | $485.11 | $0.00 |
| 2023 | 395 | FD1 - FIRE DISTRICT #1 | $109.89 | $109.88 | $0.00 | $0.00 | $219.77 | $0.00 |
| 2023 | 395 | EMS1 - FIRE DIST #1 EMS | $46.75 | $46.74 | $0.00 | $0.00 | $93.49 | $0.00 |
| 2023 | 395 | FP - DNR Forest Fire Protection Assmt | $8.50 | $8.50 | $0.00 | $0.00 | $17.00 | $0.00 |
| 2023 | 395 | FPLCA - DNR Landowner Contingency Assmt | $3.00 | $3.00 | $0.00 | $0.00 | $6.00 | $0.00 |
| 2023 | 395 | JCCD - JC Conservation District | $2.57 | $2.57 | $0.00 | $0.00 | $5.14 | $0.00 |
| 2023 | 395 | NWA - Noxious Weed Assessment | $2.30 | $2.30 | $0.00 | $0.00 | $4.60 | $0.00 |
| 2023 | 395 | WAT - Clean Water District | $12.00 | $12.00 | $0.00 | $0.00 | $24.00 | $0.00 |
| 2023 | 395 | FP ADMIN - FP ADMIN | $0.50 | $0.00 | $0.00 | $0.00 | $0.50 | $0.00 |
| 2023 | 395 | TOTAL: | $1093.64 | $1093.05 | $0.00 | $0.00 | $2186.69 | $0.00 |
|
| 2023 | 395 | $1093.64 | $1093.05 | $0.00 | $0.00 | $2186.69 | $0.00 |
Statement Details |
| 2022 | 396 | STATE - STATE LEVY (SCHOOL) | $330.45 | $330.45 | $0.00 | $0.00 | $660.90 | $0.00 |
| 2022 | 396 | COUNTY - COUNTY LEVIES (CE, DD, VET, MH) | $147.25 | $147.21 | $0.00 | $0.00 | $294.46 | $0.00 |
| 2022 | 396 | CONSERVE - CONSERVATION FUTURES | $4.42 | $4.41 | $0.00 | $0.00 | $8.83 | $0.00 |
| 2022 | 396 | COROADS - COUNTY ROADS (ROADS, DIV TO CE) | $119.66 | $119.66 | $0.00 | $0.00 | $239.32 | $0.00 |
| 2022 | 396 | PORTPT - PORT DISTRICT | $63.03 | $63.03 | $0.00 | $0.00 | $126.06 | $0.00 |
| 2022 | 396 | PUD1 - PUD #1 | $9.85 | $9.84 | $0.00 | $0.00 | $19.69 | $0.00 |
| 2022 | 396 | LIB1 - LIBRARY DIST #1 | $46.30 | $46.29 | $0.00 | $0.00 | $92.59 | $0.00 |
| 2022 | 396 | HD2 - HOSP DIST #2 | $8.60 | $8.59 | $0.00 | $0.00 | $17.19 | $0.00 |
| 2022 | 396 | SD50 - SCHOOL DIST #50 | $244.89 | $244.87 | $0.00 | $0.00 | $489.76 | $0.00 |
| 2022 | 396 | FD1 - FIRE DISTRICT #1 | $120.79 | $120.78 | $0.00 | $0.00 | $241.57 | $0.00 |
| 2022 | 396 | EMS1 - FIRE DIST #1 EMS | $51.38 | $51.37 | $0.00 | $0.00 | $102.75 | $0.00 |
| 2022 | 396 | FP - DNR Forest Fire Protection Assmt | $8.50 | $8.50 | $0.00 | $0.00 | $17.00 | $0.00 |
| 2022 | 396 | FPLCA - DNR Landowner Contingency Assmt | $3.00 | $3.00 | $0.00 | $0.00 | $6.00 | $0.00 |
| 2022 | 396 | JCCD - JC Conservation District | $2.57 | $2.57 | $0.00 | $0.00 | $5.14 | $0.00 |
| 2022 | 396 | NWA - Noxious Weed Assessment | $2.30 | $2.30 | $0.00 | $0.00 | $4.60 | $0.00 |
| 2022 | 396 | WAT - Clean Water District | $11.50 | $11.50 | $0.00 | $0.00 | $23.00 | $0.00 |
| 2022 | 396 | FP ADMIN - FP ADMIN | $0.50 | $0.00 | $0.00 | $0.00 | $0.50 | $0.00 |
| 2022 | 396 | TOTAL: | $1174.99 | $1174.37 | $0.00 | $0.00 | $2349.36 | $0.00 |
|
| 2022 | 396 | $1174.99 | $1174.37 | $0.00 | $0.00 | $2349.36 | $0.00 |
Values
| (+) Improvement Homesite Value: | + | $0 | |
| (+) Improvement Non-Homesite Value: | + | $0 | |
| (+) Land Homesite Value: | + | $0 | |
| (+) Land Non-Homesite Value: | + | $298,641 | |
| (+) Curr Use (HS): | + | $0 | $0 |
| (+) Curr Use (NHS): | + | $0 | $0 |
| | | -------------------------- | |
| (=) Market Value: | = | $298,641 | |
| (–) Productivity Loss: | – | $0 | |
| | | -------------------------- | |
| (=) Subtotal: | = | $298,641 | |
| (+) Senior Appraised Value: | + | $0 | |
| (+) Non-Senior Appraised Value: | + | $298,641 | |
| | | -------------------------- | |
| (=) Total Appraised Value: | = | $298,641 | |
| (–) Senior Exemption Loss: | – | $0 | |
| (–) Exemption Loss: | – | $0 | |
| | | -------------------------- | |
| (=) Taxable Value: | = | $298,641 | |
Taxing Jurisdiction
| Owner: | LZA PROPERTIES LP | | |
| % Ownership: | 100.0000000000% | | |
| Total Value: | N/A | | |
| Tax Area: | 0111 - 1-50F1E1H2L1 |
| CE | COUNTY CURRENT EXPENSE | N/A | N/A | N/A | N/A | | |
| CNTYDD | DEVELOPMENTAL DISABILITIES | N/A | N/A | N/A | N/A | | |
| CNTYVET | VETERANS RELIEF | N/A | N/A | N/A | N/A | | |
| MENTAL | MENTAL HEALTH | N/A | N/A | N/A | N/A | | |
| ROADS | COUNTY ROADS | N/A | N/A | N/A | N/A | | |
| ROADSCU | COUNTY ROADS TO CUR EXP | N/A | N/A | N/A | N/A | | |
| HOSP2CASH | HOSP DIST #2 GENERAL | N/A | N/A | N/A | N/A | | |
| SCH50BOND | SCHOOL DIST #50 BOND 2016 | N/A | N/A | N/A | N/A | | |
| SCH50CP | SCHOOL DIST #50 CAP PROJ | N/A | N/A | N/A | N/A | | |
| SCH50MO | SCHOOL DIST #50 EP & O | N/A | N/A | N/A | N/A | | |
| CONSERVE | CONSERVATION FUTURES | N/A | N/A | N/A | N/A | | |
| EMS1 | FIRE DIST #1 EMS | N/A | N/A | N/A | N/A | | |
| FD1 | FIRE DIST #1 GENERAL | N/A | N/A | N/A | N/A | | |
| LIB1 | LIBRARY DIST #1 GENERAL | N/A | N/A | N/A | N/A | | |
| PORTPT | PORT OF PT GENERAL | N/A | N/A | N/A | N/A | | |
| PORTPTIDD | PORT OF PT IDD 2019 | N/A | N/A | N/A | N/A | | |
| PUD1 | PUD #1 GENERAL | N/A | N/A | N/A | N/A | | |
| STATE | STATE SCHOOL PART 1 | N/A | N/A | N/A | N/A | | |
| STATE2 | STATE SCHOOL PART 2 | N/A | N/A | N/A | N/A | | |
| | Total Tax Rate: | N/A | | | | | |
| | | | | Taxes w/Current Exemptions: | N/A | | |
| | | | | Taxes w/o Exemptions: | N/A | | |
Improvement / Building
Sketch
| No sketches available for this property. |
Property Image
Land
| 1 | 5310-1535F | | 0.0000 | 0.00 | 0.00 | 0.00 | 0.00 | $239,200 | $0 |
| 2 | 5310-1535F | | 0.0000 | 0.00 | 0.00 | 0.00 | 0.00 | $59,441 | $0 |
Roll Value History
| 2025 | N/A | N/A | N/A | N/A | N/A |
| 2024 | $0 | $285,657 | $0 | $285,657 | $285,657 |
| 2023 | $0 | $259,688 | $0 | $259,688 | $259,688 |
| 2022 | $0 | $259,688 | $0 | $259,688 | $259,688 |
| 2021 | $0 | $241,710 | $0 | $241,710 | $241,710 |
Deed and Sales History
| 1 | 10/21/2020 | SWD | Statutory Warranty Deed | | | | | | 136114 | |
| 2 | 10/19/2020 | SWD | Statutory Warranty Deed | EDWARD W DAVIS | LZA PROPERTIES LP | | | $244,000.00 | 135388 | |
Payout Agreement
| No payout information available.. |