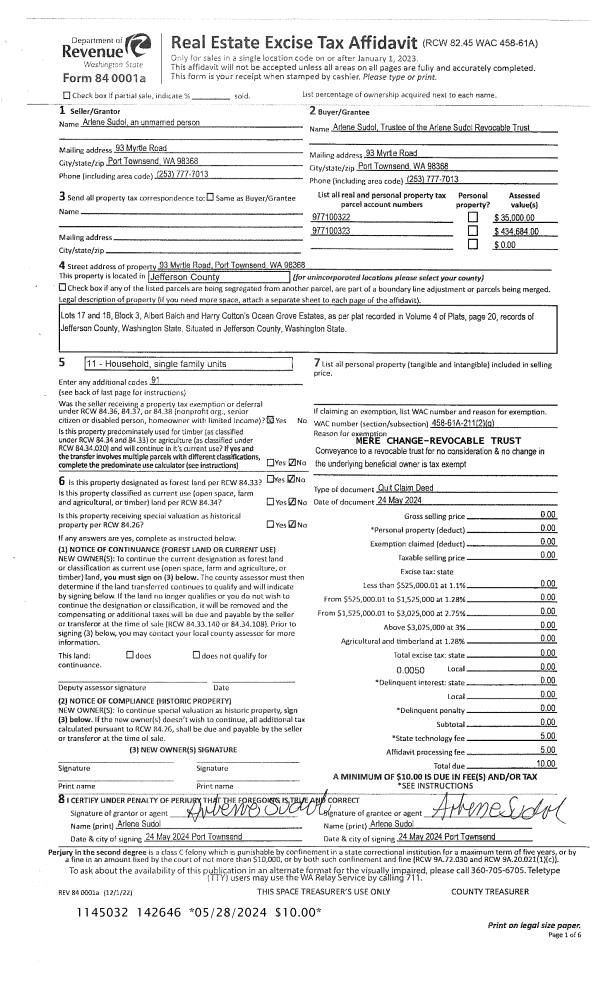
Property
Account |
| Property ID: | 10415 | Abbreviated Legal Description: | S6 T30 R1W TAX 64 BND BY BLA #91932 |
| Parcel # / Geo ID: | 001062029 | Agent Code: | |
| Type: | Real | | |
| Tax Area: | 0111 - 1-50F1E1H2L1 | Land Use Code | 11 |
| Open Space: | N | DFL | N |
| Historic Property: | N | Remodel Property: | N |
| Multi-Family Redevelopment: | N | | |
| Township: | 30N | Section: | 6 |
| Range: | 1W |
Location |
| Address: | 302 HAADA LAAS RD PORT TOWNSEND, WA 98368 | Mapsco: | 083/056 |
| Neighborhood: | S 4, 5 & 6 T30 R1W | Map ID: | |
| Neighborhood CD: | 5310 |
Owner |
| Name: | KNILL PEDERSEN FAMILY TRUST | Owner ID: | 107952 |
| Mailing Address: | 7811 SHADY COVE AVE BURBANK, CA 91504-1036 | % Ownership: | 100.0000000000% |
| | | Exemptions: | |
Pay Tax Due
There is currently No Amount Due on this property.
Taxes and Assessment Details
Property Tax Information as of
10/23/2025
Click on "Statement Details" to expand or collapse a tax statement.
* Please enter a valid date ** Please enter a valid date *
Statement Details |
| 2025 | 397 | STATE - STATE LEVY (SCHOOL) | $789.00 | $788.99 | $0.00 | $0.00 | $1577.99 | $0.00 |
| 2025 | 397 | COUNTY - COUNTY LEVIES (CE, DD, VET, MH) | $310.28 | $310.25 | $0.00 | $0.00 | $620.53 | $0.00 |
| 2025 | 397 | CONSERVE - CONSERVATION FUTURES | $9.31 | $9.30 | $0.00 | $0.00 | $18.61 | $0.00 |
| 2025 | 397 | COROADS - COUNTY ROADS (ROADS, DIV TO CE) | $248.58 | $248.56 | $0.00 | $0.00 | $497.14 | $0.00 |
| 2025 | 397 | PORTPT - PORT DISTRICT | $126.61 | $126.60 | $0.00 | $0.00 | $253.21 | $0.00 |
| 2025 | 397 | PUD1 - PUD #1 | $20.30 | $20.30 | $0.00 | $0.00 | $40.60 | $0.00 |
| 2025 | 397 | LIB1 - LIBRARY DIST #1 | $96.17 | $96.17 | $0.00 | $0.00 | $192.34 | $0.00 |
| 2025 | 397 | HD2 - HOSP DIST #2 | $18.10 | $18.10 | $0.00 | $0.00 | $36.20 | $0.00 |
| 2025 | 397 | SD50 - SCHOOL DIST #50 | $576.63 | $576.62 | $0.00 | $0.00 | $1153.25 | $0.00 |
| 2025 | 397 | FD1 - FIRE DISTRICT #1 | $409.43 | $409.43 | $0.00 | $0.00 | $818.86 | $0.00 |
| 2025 | 397 | EMS1 - FIRE DIST #1 EMS | $157.48 | $157.48 | $0.00 | $0.00 | $314.96 | $0.00 |
| 2025 | 397 | FP - DNR Forest Fire Protection Assmt | $8.50 | $8.50 | $0.00 | $0.00 | $17.00 | $0.00 |
| 2025 | 397 | FPLCA - DNR Landowner Contingency Assmt | $3.00 | $3.00 | $0.00 | $0.00 | $6.00 | $0.00 |
| 2025 | 397 | JCCD - JC Conservation District | $2.60 | $2.60 | $0.00 | $0.00 | $5.20 | $0.00 |
| 2025 | 397 | NWA - Noxious Weed Assessment | $2.30 | $2.30 | $0.00 | $0.00 | $4.60 | $0.00 |
| 2025 | 397 | OSS - On Site Septic | $21.50 | $21.50 | $0.00 | $0.00 | $43.00 | $0.00 |
| 2025 | 397 | WAT - Clean Water District | $13.00 | $13.00 | $0.00 | $0.00 | $26.00 | $0.00 |
| 2025 | 397 | FP ADMIN - FP ADMIN | $0.50 | $0.00 | $0.00 | $0.00 | $0.50 | $0.00 |
| 2025 | 397 | TOTAL: | $2813.29 | $2812.70 | $0.00 | $0.00 | $5625.99 | $0.00 |
|
| 2025 | 397 | $2813.29 | $2812.70 | $0.00 | $0.00 | $5625.99 | $0.00 |
Statement Details |
| 2024 | 397 | STATE - STATE LEVY (SCHOOL) | $676.95 | $676.95 | $0.00 | $0.00 | $1353.90 | $0.00 |
| 2024 | 397 | COUNTY - COUNTY LEVIES (CE, DD, VET, MH) | $289.69 | $289.65 | $0.00 | $0.00 | $579.34 | $0.00 |
| 2024 | 397 | CONSERVE - CONSERVATION FUTURES | $8.69 | $8.68 | $0.00 | $0.00 | $17.37 | $0.00 |
| 2024 | 397 | COROADS - COUNTY ROADS (ROADS, DIV TO CE) | $233.10 | $233.08 | $0.00 | $0.00 | $466.18 | $0.00 |
| 2024 | 397 | PORTPT - PORT DISTRICT | $119.65 | $119.64 | $0.00 | $0.00 | $239.29 | $0.00 |
| 2024 | 397 | PUD1 - PUD #1 | $19.03 | $19.02 | $0.00 | $0.00 | $38.05 | $0.00 |
| 2024 | 397 | LIB1 - LIBRARY DIST #1 | $90.18 | $90.18 | $0.00 | $0.00 | $180.36 | $0.00 |
| 2024 | 397 | HD2 - HOSP DIST #2 | $16.90 | $16.90 | $0.00 | $0.00 | $33.80 | $0.00 |
| 2024 | 397 | SD50 - SCHOOL DIST #50 | $547.70 | $547.67 | $0.00 | $0.00 | $1095.37 | $0.00 |
| 2024 | 397 | FD1 - FIRE DISTRICT #1 | $383.02 | $383.01 | $0.00 | $0.00 | $766.03 | $0.00 |
| 2024 | 397 | EMS1 - FIRE DIST #1 EMS | $146.30 | $146.30 | $0.00 | $0.00 | $292.60 | $0.00 |
| 2024 | 397 | FP - DNR Forest Fire Protection Assmt | $8.50 | $8.50 | $0.00 | $0.00 | $17.00 | $0.00 |
| 2024 | 397 | FPLCA - DNR Landowner Contingency Assmt | $3.00 | $3.00 | $0.00 | $0.00 | $6.00 | $0.00 |
| 2024 | 397 | JCCD - JC Conservation District | $2.60 | $2.60 | $0.00 | $0.00 | $5.20 | $0.00 |
| 2024 | 397 | NWA - Noxious Weed Assessment | $2.30 | $2.30 | $0.00 | $0.00 | $4.60 | $0.00 |
| 2024 | 397 | OSS - On Site Septic | $21.00 | $21.00 | $0.00 | $0.00 | $42.00 | $0.00 |
| 2024 | 397 | WAT - Clean Water District | $12.50 | $12.50 | $0.00 | $0.00 | $25.00 | $0.00 |
| 2024 | 397 | FP ADMIN - FP ADMIN | $0.50 | $0.00 | $0.00 | $0.00 | $0.50 | $0.00 |
| 2024 | 397 | TOTAL: | $2581.61 | $2580.98 | $0.00 | $0.00 | $5162.59 | $0.00 |
|
| 2024 | 397 | $2581.61 | $2580.98 | $0.00 | $0.00 | $5162.59 | $0.00 |
Statement Details |
| 2023 | 397 | STATE - STATE LEVY (SCHOOL) | $653.43 | $653.42 | $0.00 | $0.00 | $1306.85 | $0.00 |
| 2023 | 397 | COUNTY - COUNTY LEVIES (CE, DD, VET, MH) | $285.14 | $285.14 | $0.00 | $0.00 | $570.28 | $0.00 |
| 2023 | 397 | CONSERVE - CONSERVATION FUTURES | $8.55 | $8.55 | $0.00 | $0.00 | $17.10 | $0.00 |
| 2023 | 397 | COROADS - COUNTY ROADS (ROADS, DIV TO CE) | $230.70 | $230.69 | $0.00 | $0.00 | $461.39 | $0.00 |
| 2023 | 397 | PORTPT - PORT DISTRICT | $120.12 | $120.10 | $0.00 | $0.00 | $240.22 | $0.00 |
| 2023 | 397 | PUD1 - PUD #1 | $18.90 | $18.90 | $0.00 | $0.00 | $37.80 | $0.00 |
| 2023 | 397 | LIB1 - LIBRARY DIST #1 | $89.26 | $89.25 | $0.00 | $0.00 | $178.51 | $0.00 |
| 2023 | 397 | HD2 - HOSP DIST #2 | $16.64 | $16.64 | $0.00 | $0.00 | $33.28 | $0.00 |
| 2023 | 397 | SD50 - SCHOOL DIST #50 | $518.51 | $518.50 | $0.00 | $0.00 | $1037.01 | $0.00 |
| 2023 | 397 | FD1 - FIRE DISTRICT #1 | $234.90 | $234.89 | $0.00 | $0.00 | $469.79 | $0.00 |
| 2023 | 397 | EMS1 - FIRE DIST #1 EMS | $99.92 | $99.92 | $0.00 | $0.00 | $199.84 | $0.00 |
| 2023 | 397 | FP - DNR Forest Fire Protection Assmt | $8.50 | $8.50 | $0.00 | $0.00 | $17.00 | $0.00 |
| 2023 | 397 | FPLCA - DNR Landowner Contingency Assmt | $3.00 | $3.00 | $0.00 | $0.00 | $6.00 | $0.00 |
| 2023 | 397 | JCCD - JC Conservation District | $2.60 | $2.60 | $0.00 | $0.00 | $5.20 | $0.00 |
| 2023 | 397 | NWA - Noxious Weed Assessment | $2.30 | $2.30 | $0.00 | $0.00 | $4.60 | $0.00 |
| 2023 | 397 | OSS - On Site Septic | $20.50 | $20.50 | $0.00 | $0.00 | $41.00 | $0.00 |
| 2023 | 397 | WAT - Clean Water District | $12.00 | $12.00 | $0.00 | $0.00 | $24.00 | $0.00 |
| 2023 | 397 | FP ADMIN - FP ADMIN | $0.50 | $0.00 | $0.00 | $0.00 | $0.50 | $0.00 |
| 2023 | 397 | TOTAL: | $2325.47 | $2324.90 | $0.00 | $0.00 | $4650.37 | $0.00 |
|
| 2023 | 397 | $2325.47 | $2324.90 | $0.00 | $0.00 | $4650.37 | $0.00 |
Statement Details |
| 2022 | 398 | STATE - STATE LEVY (SCHOOL) | $644.15 | $644.13 | $0.00 | $0.00 | $1288.28 | $0.00 |
| 2022 | 398 | COUNTY - COUNTY LEVIES (CE, DD, VET, MH) | $287.01 | $287.00 | $0.00 | $0.00 | $574.01 | $0.00 |
| 2022 | 398 | CONSERVE - CONSERVATION FUTURES | $8.61 | $8.60 | $0.00 | $0.00 | $17.21 | $0.00 |
| 2022 | 398 | COROADS - COUNTY ROADS (ROADS, DIV TO CE) | $233.27 | $233.25 | $0.00 | $0.00 | $466.52 | $0.00 |
| 2022 | 398 | PORTPT - PORT DISTRICT | $122.87 | $122.85 | $0.00 | $0.00 | $245.72 | $0.00 |
| 2022 | 398 | PUD1 - PUD #1 | $19.19 | $19.19 | $0.00 | $0.00 | $38.38 | $0.00 |
| 2022 | 398 | LIB1 - LIBRARY DIST #1 | $90.25 | $90.24 | $0.00 | $0.00 | $180.49 | $0.00 |
| 2022 | 398 | HD2 - HOSP DIST #2 | $16.75 | $16.75 | $0.00 | $0.00 | $33.50 | $0.00 |
| 2022 | 398 | SD50 - SCHOOL DIST #50 | $477.34 | $477.34 | $0.00 | $0.00 | $954.68 | $0.00 |
| 2022 | 398 | FD1 - FIRE DISTRICT #1 | $235.45 | $235.44 | $0.00 | $0.00 | $470.89 | $0.00 |
| 2022 | 398 | EMS1 - FIRE DIST #1 EMS | $100.15 | $100.15 | $0.00 | $0.00 | $200.30 | $0.00 |
| 2022 | 398 | FP - DNR Forest Fire Protection Assmt | $8.50 | $8.50 | $0.00 | $0.00 | $17.00 | $0.00 |
| 2022 | 398 | FPLCA - DNR Landowner Contingency Assmt | $3.00 | $3.00 | $0.00 | $0.00 | $6.00 | $0.00 |
| 2022 | 398 | JCCD - JC Conservation District | $2.60 | $2.60 | $0.00 | $0.00 | $5.20 | $0.00 |
| 2022 | 398 | NWA - Noxious Weed Assessment | $2.30 | $2.30 | $0.00 | $0.00 | $4.60 | $0.00 |
| 2022 | 398 | OSS - On Site Septic | $19.50 | $19.50 | $0.00 | $0.00 | $39.00 | $0.00 |
| 2022 | 398 | WAT - Clean Water District | $11.50 | $11.50 | $0.00 | $0.00 | $23.00 | $0.00 |
| 2022 | 398 | FP ADMIN - FP ADMIN | $0.50 | $0.00 | $0.00 | $0.00 | $0.50 | $0.00 |
| 2022 | 398 | TOTAL: | $2282.94 | $2282.34 | $0.00 | $0.00 | $4565.28 | $0.00 |
|
| 2022 | 398 | $2282.94 | $2282.34 | $0.00 | $0.00 | $4565.28 | $0.00 |
Values
| (+) Improvement Homesite Value: | + | $0 | |
| (+) Improvement Non-Homesite Value: | + | $325,726 | |
| (+) Land Homesite Value: | + | $0 | |
| (+) Land Non-Homesite Value: | + | $361,606 | |
| (+) Curr Use (HS): | + | $0 | $0 |
| (+) Curr Use (NHS): | + | $0 | $0 |
| | | -------------------------- | |
| (=) Market Value: | = | $687,332 | |
| (–) Productivity Loss: | – | $0 | |
| | | -------------------------- | |
| (=) Subtotal: | = | $687,332 | |
| (+) Senior Appraised Value: | + | $0 | |
| (+) Non-Senior Appraised Value: | + | $687,332 | |
| | | -------------------------- | |
| (=) Total Appraised Value: | = | $687,332 | |
| (–) Senior Exemption Loss: | – | $0 | |
| (–) Exemption Loss: | – | $0 | |
| | | -------------------------- | |
| (=) Taxable Value: | = | $687,332 | |
Taxing Jurisdiction
| Owner: | KNILL PEDERSEN FAMILY TRUST | | |
| % Ownership: | 100.0000000000% | | |
| Total Value: | N/A | | |
| Tax Area: | 0111 - 1-50F1E1H2L1 |
| CE | COUNTY CURRENT EXPENSE | N/A | N/A | N/A | N/A | | |
| CNTYDD | DEVELOPMENTAL DISABILITIES | N/A | N/A | N/A | N/A | | |
| CNTYVET | VETERANS RELIEF | N/A | N/A | N/A | N/A | | |
| MENTAL | MENTAL HEALTH | N/A | N/A | N/A | N/A | | |
| ROADS | COUNTY ROADS | N/A | N/A | N/A | N/A | | |
| ROADSCU | COUNTY ROADS TO CUR EXP | N/A | N/A | N/A | N/A | | |
| HOSP2CASH | HOSP DIST #2 GENERAL | N/A | N/A | N/A | N/A | | |
| SCH50BOND | SCHOOL DIST #50 BOND 2016 | N/A | N/A | N/A | N/A | | |
| SCH50CP | SCHOOL DIST #50 CAP PROJ | N/A | N/A | N/A | N/A | | |
| SCH50MO | SCHOOL DIST #50 EP & O | N/A | N/A | N/A | N/A | | |
| CONSERVE | CONSERVATION FUTURES | N/A | N/A | N/A | N/A | | |
| EMS1 | FIRE DIST #1 EMS | N/A | N/A | N/A | N/A | | |
| FD1 | FIRE DIST #1 GENERAL | N/A | N/A | N/A | N/A | | |
| LIB1 | LIBRARY DIST #1 GENERAL | N/A | N/A | N/A | N/A | | |
| PORTPT | PORT OF PT GENERAL | N/A | N/A | N/A | N/A | | |
| PORTPTIDD | PORT OF PT IDD 2019 | N/A | N/A | N/A | N/A | | |
| PUD1 | PUD #1 GENERAL | N/A | N/A | N/A | N/A | | |
| STATE | STATE SCHOOL PART 1 | N/A | N/A | N/A | N/A | | |
| STATE2 | STATE SCHOOL PART 2 | N/A | N/A | N/A | N/A | | |
| | Total Tax Rate: | N/A | | | | | |
| | | | | Taxes w/Current Exemptions: | N/A | | |
| | | | | Taxes w/o Exemptions: | N/A | | |
Improvement / Building
| Improvement #1: | Residential Bldg | State Code: | 11 | 1304.0 sqft | Value: | $325,726 |
| Bathrooms (#): | 2 (FULL) | Bedrooms (#): | 3 | | Exterior Wall: | SI/ST | Fireplace: | WD ST-GOOD | | Floor Construction: | FRAME | Foundation: | CONPR | | Heating/Cooling: | ELBB | Roof Cover: | METAL |
|
| | Type | Description | Class CD | Sub Class CD | Year Built | Area |
| | MA | Main Area | 4+ | 15SF | 2006 | 889.0 |
| | MA2 | Second Floor Main Area | 4+ | 15SF | 2006 | 415.0 |
| | HWPOR | House Wood Porch | 4 | * | 2006 | 130.0 |
| | HDECK | House Deck | 4 | * | 2006 | 348.0 |
Sketch
Property Image
Land
| 1 | 5310-1535F | | 0.0000 | 0.00 | 0.00 | 0.00 | 0.00 | $318,550 | $0 |
| 2 | 5310-1535F | | 0.0000 | 0.00 | 0.00 | 0.00 | 0.00 | $43,056 | $0 |
Roll Value History
| 2025 | N/A | N/A | N/A | N/A | N/A |
| 2024 | $312,154 | $345,884 | $0 | $658,038 | $658,038 |
| 2023 | $275,752 | $309,440 | $0 | $585,192 | $585,192 |
| 2022 | $250,684 | $304,440 | $0 | $555,124 | $555,124 |
| 2021 | $189,912 | $281,248 | $0 | $471,160 | $471,160 |
Deed and Sales History
| 1 | 10/21/2022 | QCD | Quit Claim Deed | JEFFREY A PEDERSEN | KNILL PEDERSEN FAMILY TRUST | | | | 140113 | |
| 2 | 05/15/2003 | SWD | Statutory Warranty Deed | HALSTENRUD, WILLIAM E | PEDERSEN,JEFFREY/KNILL,SUZANNE | 0 | 0 | $163,000.00 | 97364 | 0 |
| 3 | 07/10/1998 | SWD | Statutory Warranty Deed | HUCK, JANET & MEYER, ANDR | HALSTENRUD, WILLIAM E | 0 | 0 | $0.00 | 84915 | 0 |
Payout Agreement
| No payout information available.. |