Property
Account |
| Property ID: | 10438 | Abbreviated Legal Description: | S6 T30 R1W NE SE (N OF RD) LESS TAX 11,12,34,35 |
| Parcel # / Geo ID: | 001064001 | Agent Code: | |
| Type: | Real | | |
| Tax Area: | 0111 - 1-50F1E1H2L1 | Land Use Code | 11 |
| Open Space: | N | DFL | N |
| Historic Property: | N | Remodel Property: | N |
| Multi-Family Redevelopment: | N | | |
| Township: | 30N | Section: | 6 |
| Range: | 1W |
Location |
| Address: | 211 MIDDLEPOINT RD PORT TOWNSEND, WA 98368 | Mapsco: | 083/006 |
| Neighborhood: | S 4, 5 & 6 T30 R1W | Map ID: | |
| Neighborhood CD: | 5310 |
Owner |
| Name: | AMY L & TREVOR R ANDERSON | Owner ID: | 104975 |
| Mailing Address: | 26 ACADEMY LN MYSTIC, CT 06355-2502 | % Ownership: | 100.0000000000% |
| | | Exemptions: | |
Pay Tax Due
There is currently No Amount Due on this property.
Taxes and Assessment Details
Property Tax Information as of
10/23/2025
Click on "Statement Details" to expand or collapse a tax statement.
* Please enter a valid date ** Please enter a valid date *
Statement Details |
| 2025 | 418 | STATE - STATE LEVY (SCHOOL) | $680.21 | $680.21 | $0.00 | $0.00 | $1360.42 | $0.00 |
| 2025 | 418 | COUNTY - COUNTY LEVIES (CE, DD, VET, MH) | $267.50 | $267.48 | $0.00 | $0.00 | $534.98 | $0.00 |
| 2025 | 418 | CONSERVE - CONSERVATION FUTURES | $8.02 | $8.02 | $0.00 | $0.00 | $16.04 | $0.00 |
| 2025 | 418 | COROADS - COUNTY ROADS (ROADS, DIV TO CE) | $214.30 | $214.30 | $0.00 | $0.00 | $428.60 | $0.00 |
| 2025 | 418 | PORTPT - PORT DISTRICT | $109.16 | $109.15 | $0.00 | $0.00 | $218.31 | $0.00 |
| 2025 | 418 | PUD1 - PUD #1 | $17.51 | $17.50 | $0.00 | $0.00 | $35.01 | $0.00 |
| 2025 | 418 | LIB1 - LIBRARY DIST #1 | $82.91 | $82.91 | $0.00 | $0.00 | $165.82 | $0.00 |
| 2025 | 418 | HD2 - HOSP DIST #2 | $15.61 | $15.60 | $0.00 | $0.00 | $31.21 | $0.00 |
| 2025 | 418 | SD50 - SCHOOL DIST #50 | $497.13 | $497.11 | $0.00 | $0.00 | $994.24 | $0.00 |
| 2025 | 418 | FD1 - FIRE DISTRICT #1 | $352.98 | $352.98 | $0.00 | $0.00 | $705.96 | $0.00 |
| 2025 | 418 | EMS1 - FIRE DIST #1 EMS | $135.77 | $135.76 | $0.00 | $0.00 | $271.53 | $0.00 |
| 2025 | 418 | FP - DNR Forest Fire Protection Assmt | $8.50 | $8.50 | $0.00 | $0.00 | $17.00 | $0.00 |
| 2025 | 418 | FPLCA - DNR Landowner Contingency Assmt | $3.00 | $3.00 | $0.00 | $0.00 | $6.00 | $0.00 |
| 2025 | 418 | JCCD - JC Conservation District | $2.65 | $2.65 | $0.00 | $0.00 | $5.30 | $0.00 |
| 2025 | 418 | NWA - Noxious Weed Assessment | $2.45 | $2.45 | $0.00 | $0.00 | $4.90 | $0.00 |
| 2025 | 418 | OSS - On Site Septic | $21.50 | $21.50 | $0.00 | $0.00 | $43.00 | $0.00 |
| 2025 | 418 | WAT - Clean Water District | $13.00 | $13.00 | $0.00 | $0.00 | $26.00 | $0.00 |
| 2025 | 418 | FP ADMIN - FP ADMIN | $0.50 | $0.00 | $0.00 | $0.00 | $0.50 | $0.00 |
| 2025 | 418 | TOTAL: | $2432.70 | $2432.12 | $0.00 | $0.00 | $4864.82 | $0.00 |
|
| 2025 | 418 | $2432.70 | $2432.12 | $0.00 | $0.00 | $4864.82 | $0.00 |
Statement Details |
| 2024 | 418 | STATE - STATE LEVY (SCHOOL) | $635.84 | $635.82 | $0.00 | $0.00 | $1271.66 | $0.00 |
| 2024 | 418 | COUNTY - COUNTY LEVIES (CE, DD, VET, MH) | $272.09 | $272.06 | $0.00 | $0.00 | $544.15 | $0.00 |
| 2024 | 418 | CONSERVE - CONSERVATION FUTURES | $8.16 | $8.16 | $0.00 | $0.00 | $16.32 | $0.00 |
| 2024 | 418 | COROADS - COUNTY ROADS (ROADS, DIV TO CE) | $218.94 | $218.92 | $0.00 | $0.00 | $437.86 | $0.00 |
| 2024 | 418 | PORTPT - PORT DISTRICT | $112.39 | $112.37 | $0.00 | $0.00 | $224.76 | $0.00 |
| 2024 | 418 | PUD1 - PUD #1 | $17.87 | $17.87 | $0.00 | $0.00 | $35.74 | $0.00 |
| 2024 | 418 | LIB1 - LIBRARY DIST #1 | $84.71 | $84.70 | $0.00 | $0.00 | $169.41 | $0.00 |
| 2024 | 418 | HD2 - HOSP DIST #2 | $15.88 | $15.87 | $0.00 | $0.00 | $31.75 | $0.00 |
| 2024 | 418 | SD50 - SCHOOL DIST #50 | $514.42 | $514.41 | $0.00 | $0.00 | $1028.83 | $0.00 |
| 2024 | 418 | FD1 - FIRE DISTRICT #1 | $359.75 | $359.75 | $0.00 | $0.00 | $719.50 | $0.00 |
| 2024 | 418 | EMS1 - FIRE DIST #1 EMS | $137.41 | $137.41 | $0.00 | $0.00 | $274.82 | $0.00 |
| 2024 | 418 | FP - DNR Forest Fire Protection Assmt | $8.50 | $8.50 | $0.00 | $0.00 | $17.00 | $0.00 |
| 2024 | 418 | FPLCA - DNR Landowner Contingency Assmt | $3.00 | $3.00 | $0.00 | $0.00 | $6.00 | $0.00 |
| 2024 | 418 | JCCD - JC Conservation District | $2.65 | $2.65 | $0.00 | $0.00 | $5.30 | $0.00 |
| 2024 | 418 | NWA - Noxious Weed Assessment | $2.45 | $2.45 | $0.00 | $0.00 | $4.90 | $0.00 |
| 2024 | 418 | OSS - On Site Septic | $21.00 | $21.00 | $0.00 | $0.00 | $42.00 | $0.00 |
| 2024 | 418 | WAT - Clean Water District | $12.50 | $12.50 | $0.00 | $0.00 | $25.00 | $0.00 |
| 2024 | 418 | FP ADMIN - FP ADMIN | $0.50 | $0.00 | $0.00 | $0.00 | $0.50 | $0.00 |
| 2024 | 418 | TOTAL: | $2428.06 | $2427.44 | $0.00 | $0.00 | $4855.50 | $0.00 |
|
| 2024 | 418 | $2428.06 | $2427.44 | $0.00 | $0.00 | $4855.50 | $0.00 |
Statement Details |
| 2023 | 418 | STATE - STATE LEVY (SCHOOL) | $594.05 | $594.04 | $0.00 | $0.00 | $1188.09 | $0.00 |
| 2023 | 418 | COUNTY - COUNTY LEVIES (CE, DD, VET, MH) | $259.22 | $259.22 | $0.00 | $0.00 | $518.44 | $0.00 |
| 2023 | 418 | CONSERVE - CONSERVATION FUTURES | $7.78 | $7.77 | $0.00 | $0.00 | $15.55 | $0.00 |
| 2023 | 418 | COROADS - COUNTY ROADS (ROADS, DIV TO CE) | $209.73 | $209.73 | $0.00 | $0.00 | $419.46 | $0.00 |
| 2023 | 418 | PORTPT - PORT DISTRICT | $109.20 | $109.20 | $0.00 | $0.00 | $218.40 | $0.00 |
| 2023 | 418 | PUD1 - PUD #1 | $17.19 | $17.18 | $0.00 | $0.00 | $34.37 | $0.00 |
| 2023 | 418 | LIB1 - LIBRARY DIST #1 | $81.15 | $81.14 | $0.00 | $0.00 | $162.29 | $0.00 |
| 2023 | 418 | HD2 - HOSP DIST #2 | $15.13 | $15.12 | $0.00 | $0.00 | $30.25 | $0.00 |
| 2023 | 418 | SD50 - SCHOOL DIST #50 | $471.39 | $471.38 | $0.00 | $0.00 | $942.77 | $0.00 |
| 2023 | 418 | FD1 - FIRE DISTRICT #1 | $213.55 | $213.55 | $0.00 | $0.00 | $427.10 | $0.00 |
| 2023 | 418 | EMS1 - FIRE DIST #1 EMS | $90.84 | $90.84 | $0.00 | $0.00 | $181.68 | $0.00 |
| 2023 | 418 | FP - DNR Forest Fire Protection Assmt | $8.50 | $8.50 | $0.00 | $0.00 | $17.00 | $0.00 |
| 2023 | 418 | FPLCA - DNR Landowner Contingency Assmt | $3.00 | $3.00 | $0.00 | $0.00 | $6.00 | $0.00 |
| 2023 | 418 | JCCD - JC Conservation District | $2.65 | $2.65 | $0.00 | $0.00 | $5.30 | $0.00 |
| 2023 | 418 | NWA - Noxious Weed Assessment | $2.45 | $2.45 | $0.00 | $0.00 | $4.90 | $0.00 |
| 2023 | 418 | OSS - On Site Septic | $20.50 | $20.50 | $0.00 | $0.00 | $41.00 | $0.00 |
| 2023 | 418 | WAT - Clean Water District | $12.00 | $12.00 | $0.00 | $0.00 | $24.00 | $0.00 |
| 2023 | 418 | FP ADMIN - FP ADMIN | $0.50 | $0.00 | $0.00 | $0.00 | $0.50 | $0.00 |
| 2023 | 418 | TOTAL: | $2118.83 | $2118.27 | $0.00 | $0.00 | $4237.10 | $0.00 |
|
| 2023 | 418 | $2118.83 | $2118.27 | $0.00 | $0.00 | $4237.10 | $0.00 |
Statement Details |
| 2022 | 420 | STATE - STATE LEVY (SCHOOL) | $528.72 | $528.70 | $0.00 | $0.00 | $1057.42 | $0.00 |
| 2022 | 420 | COUNTY - COUNTY LEVIES (CE, DD, VET, MH) | $235.58 | $235.55 | $0.00 | $0.00 | $471.13 | $0.00 |
| 2022 | 420 | CONSERVE - CONSERVATION FUTURES | $7.07 | $7.06 | $0.00 | $0.00 | $14.13 | $0.00 |
| 2022 | 420 | COROADS - COUNTY ROADS (ROADS, DIV TO CE) | $191.47 | $191.45 | $0.00 | $0.00 | $382.92 | $0.00 |
| 2022 | 420 | PORTPT - PORT DISTRICT | $100.85 | $100.84 | $0.00 | $0.00 | $201.69 | $0.00 |
| 2022 | 420 | PUD1 - PUD #1 | $15.76 | $15.75 | $0.00 | $0.00 | $31.51 | $0.00 |
| 2022 | 420 | LIB1 - LIBRARY DIST #1 | $74.08 | $74.07 | $0.00 | $0.00 | $148.15 | $0.00 |
| 2022 | 420 | HD2 - HOSP DIST #2 | $13.76 | $13.74 | $0.00 | $0.00 | $27.50 | $0.00 |
| 2022 | 420 | SD50 - SCHOOL DIST #50 | $391.81 | $391.79 | $0.00 | $0.00 | $783.60 | $0.00 |
| 2022 | 420 | FD1 - FIRE DISTRICT #1 | $193.26 | $193.25 | $0.00 | $0.00 | $386.51 | $0.00 |
| 2022 | 420 | EMS1 - FIRE DIST #1 EMS | $82.20 | $82.20 | $0.00 | $0.00 | $164.40 | $0.00 |
| 2022 | 420 | FP - DNR Forest Fire Protection Assmt | $8.50 | $8.50 | $0.00 | $0.00 | $17.00 | $0.00 |
| 2022 | 420 | FPLCA - DNR Landowner Contingency Assmt | $3.00 | $3.00 | $0.00 | $0.00 | $6.00 | $0.00 |
| 2022 | 420 | JCCD - JC Conservation District | $2.65 | $2.65 | $0.00 | $0.00 | $5.30 | $0.00 |
| 2022 | 420 | NWA - Noxious Weed Assessment | $2.45 | $2.45 | $0.00 | $0.00 | $4.90 | $0.00 |
| 2022 | 420 | OSS - On Site Septic | $19.50 | $19.50 | $0.00 | $0.00 | $39.00 | $0.00 |
| 2022 | 420 | WAT - Clean Water District | $11.50 | $11.50 | $0.00 | $0.00 | $23.00 | $0.00 |
| 2022 | 420 | FP ADMIN - FP ADMIN | $0.50 | $0.00 | $0.00 | $0.00 | $0.50 | $0.00 |
| 2022 | 420 | TOTAL: | $1882.66 | $1882.00 | $0.00 | $0.00 | $3764.66 | $0.00 |
|
| 2022 | 420 | $1882.66 | $1882.00 | $0.00 | $0.00 | $3764.66 | $0.00 |
Values
| (+) Improvement Homesite Value: | + | $0 | |
| (+) Improvement Non-Homesite Value: | + | $417,299 | |
| (+) Land Homesite Value: | + | $0 | |
| (+) Land Non-Homesite Value: | + | $175,007 | |
| (+) Curr Use (HS): | + | $0 | $0 |
| (+) Curr Use (NHS): | + | $0 | $0 |
| | | -------------------------- | |
| (=) Market Value: | = | $592,306 | |
| (–) Productivity Loss: | – | $0 | |
| | | -------------------------- | |
| (=) Subtotal: | = | $592,306 | |
| (+) Senior Appraised Value: | + | $0 | |
| (+) Non-Senior Appraised Value: | + | $592,306 | |
| | | -------------------------- | |
| (=) Total Appraised Value: | = | $592,306 | |
| (–) Senior Exemption Loss: | – | $0 | |
| (–) Exemption Loss: | – | $0 | |
| | | -------------------------- | |
| (=) Taxable Value: | = | $592,306 | |
Taxing Jurisdiction
| Owner: | AMY L & TREVOR R ANDERSON | | |
| % Ownership: | 100.0000000000% | | |
| Total Value: | N/A | | |
| Tax Area: | 0111 - 1-50F1E1H2L1 |
| CE | COUNTY CURRENT EXPENSE | N/A | N/A | N/A | N/A | | |
| CNTYDD | DEVELOPMENTAL DISABILITIES | N/A | N/A | N/A | N/A | | |
| CNTYVET | VETERANS RELIEF | N/A | N/A | N/A | N/A | | |
| MENTAL | MENTAL HEALTH | N/A | N/A | N/A | N/A | | |
| ROADS | COUNTY ROADS | N/A | N/A | N/A | N/A | | |
| ROADSCU | COUNTY ROADS TO CUR EXP | N/A | N/A | N/A | N/A | | |
| HOSP2CASH | HOSP DIST #2 GENERAL | N/A | N/A | N/A | N/A | | |
| SCH50BOND | SCHOOL DIST #50 BOND 2016 | N/A | N/A | N/A | N/A | | |
| SCH50CP | SCHOOL DIST #50 CAP PROJ | N/A | N/A | N/A | N/A | | |
| SCH50MO | SCHOOL DIST #50 EP & O | N/A | N/A | N/A | N/A | | |
| CONSERVE | CONSERVATION FUTURES | N/A | N/A | N/A | N/A | | |
| EMS1 | FIRE DIST #1 EMS | N/A | N/A | N/A | N/A | | |
| FD1 | FIRE DIST #1 GENERAL | N/A | N/A | N/A | N/A | | |
| LIB1 | LIBRARY DIST #1 GENERAL | N/A | N/A | N/A | N/A | | |
| PORTPT | PORT OF PT GENERAL | N/A | N/A | N/A | N/A | | |
| PORTPTIDD | PORT OF PT IDD 2019 | N/A | N/A | N/A | N/A | | |
| PUD1 | PUD #1 GENERAL | N/A | N/A | N/A | N/A | | |
| STATE | STATE SCHOOL PART 1 | N/A | N/A | N/A | N/A | | |
| STATE2 | STATE SCHOOL PART 2 | N/A | N/A | N/A | N/A | | |
| | Total Tax Rate: | N/A | | | | | |
| | | | | Taxes w/Current Exemptions: | N/A | | |
| | | | | Taxes w/o Exemptions: | N/A | | |
Improvement / Building
| Improvement #1: | Manufactured Home | State Code: | 11 | 1404.0 sqft | Value: | $417,299 |
| Bathrooms (#): | 2 (FULL) | Bedrooms (#): | 3 | | Exterior Wall: | SI/ST | Fireplace: | WD ST-GOOD | | Foundation: | CONBL | Heating/Cooling: | HPUMP | | Roof Cover: | METAL |   |   |
|
| | Type | Description | Class CD | Sub Class CD | Year Built | Area |
| | MA | Main Area | 5+ | MFH | 2010 | 1404.0 |
| | MWPOR | MH Wood Porch | 5 | * | 2010 | 252.0 |
| | MDECK | MH Deck | 5 | * | 2010 | 128.0 |
| | MDET | MH Detached Garage | 3 | MFH | 2010 | 384.0 |
| | GARAG | Garage (Table Not Dep) | 4 | * | 2017 | 528.0 |
Sketch
Property Image
Land
| 1 | 5310-1571A | | 1.6900 | 73616.40 | 0.00 | 0.00 | 0.00 | $42,757 | $0 |
| 2 | 5310-1373S | | 1.0000 | 43560.00 | 0.00 | 0.00 | 1.00 | $132,250 | $0 |
Roll Value History
| 2025 | N/A | N/A | N/A | N/A | N/A |
| 2024 | $399,911 | $167,398 | $0 | $567,309 | $567,309 |
| 2023 | $402,466 | $147,180 | $0 | $549,646 | $549,646 |
| 2022 | $365,878 | $138,800 | $0 | $504,678 | $504,678 |
| 2021 | $277,180 | $109,549 | $0 | $386,729 | $386,729 |
Deed and Sales History
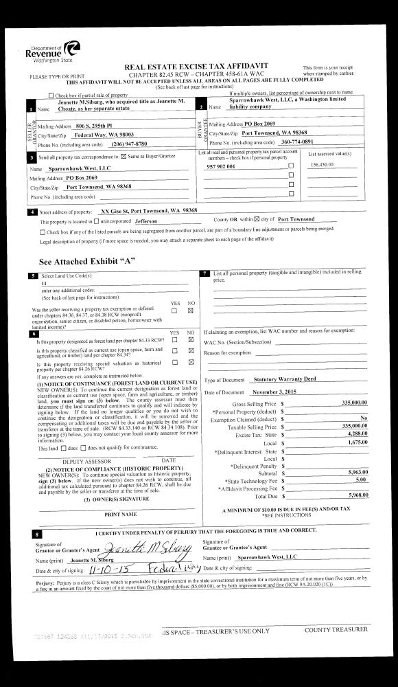
| 1 | 06/10/2021 | SWD | Statutory Warranty Deed | CLINT R & MAKAYLA R GUILFORD | AMY L & TREVOR R ANDERSON | | | $520,000.00 | 136952 | |
| 2 | 06/01/2020 | QCD | Quit Claim Deed | CLINT R GUILFORD | CLINT R & MAKAYLA R GUILFORD | | | | 134488 | |
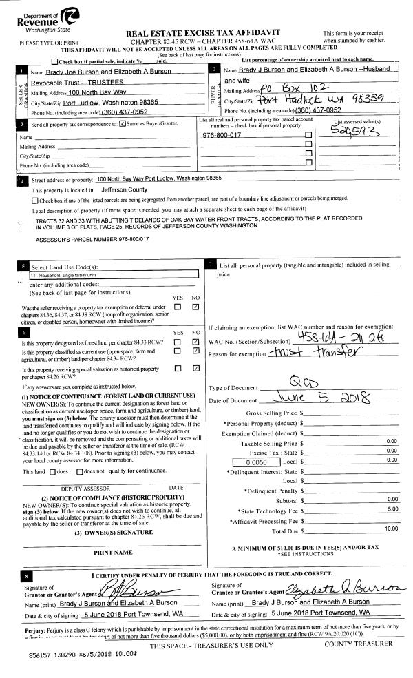
| 3 | 07/12/2016 | SWD | Statutory Warranty Deed | SUZANNE MCCANN | CLINT R GUILFORD | | | $244,000.00 | 125890 | |
| 4 | 04/25/2012 | SWD | Statutory Warranty Deed | BARROWS, DAVID FRANKLIN, | MC CANN, SUZANNE | 0 | 0 | $226,600.00 | 117499 | 0 |
| 5 | 01/02/2009 | SWD | Statutory Warranty Deed | DVORKIN, ROBIN G | BARROWS, DAVID FRANKLIN/CAROL | 0 | 0 | $70,000.00 | 112381 | 0 |
| 6 | 12/07/2004 | QCD | Quit Claim Deed | DVORKIN, CRAIG | DVORKIN, ROBIN G | 0 | 0 | $0.00 | 102219 | 0 |
| 7 | 12/03/2004 | SWD | Statutory Warranty Deed | CRIST, ALBERT G/DONNA V | DVORKIN, ROBIN G | 0 | 0 | $58,000.00 | 102217 | 0 |
Payout Agreement
| No payout information available.. |