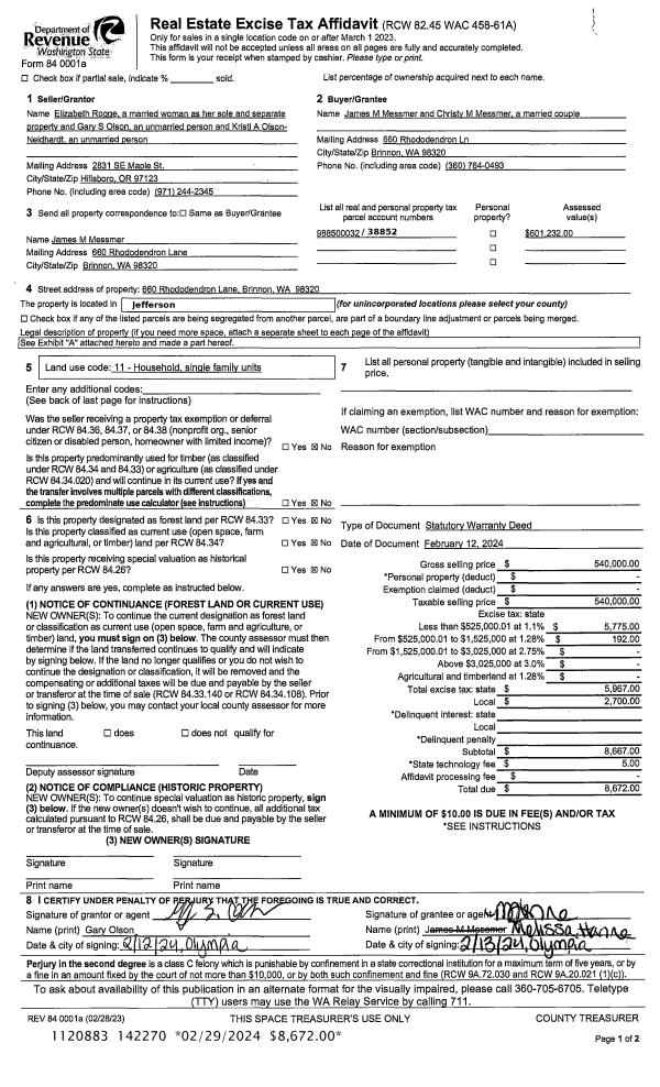
Property
Account |
| Property ID: | 10472 | Abbreviated Legal Description: | S7 T30N R1W N1/2 W1/2 E1/2 NW NE |
| Parcel # / Geo ID: | 001071011 | Agent Code: | |
| Type: | Real | | |
| Tax Area: | 0111 - 1-50F1E1H2L1 | Land Use Code | 19 |
| Open Space: | N | DFL | N |
| Historic Property: | N | Remodel Property: | N |
| Multi-Family Redevelopment: | N | | |
| Township: | 30N | Section: | 7 |
| Range: | 1W |
Location |
| Address: | 147 JOLIE WAY PORT TOWNSEND, WA 98368 | Mapsco: | 084/014 |
| Neighborhood: | S7 T30 R1W, ROSEBURG ADD | Map ID: | |
| Neighborhood CD: | 5325 |
Owner |
| Name: | WONDERLAND 147 TRUST | Owner ID: | 108251 |
| Mailing Address: | ANDREAS NIESEN TRUSTEE 159 JOLIE WAY PORT TOWNSEND, WA 98368-9009 | % Ownership: | 100.0000000000% |
| | | Exemptions: | |
Pay Tax Due
Select the appropriate checkbox next to the year to be paid. Multiple years may be selected.
*Convenience Fee not included
Taxes and Assessment Details
Property Tax Information as of
10/23/2025
Click on "Statement Details" to expand or collapse a tax statement.
* Please enter a valid date ** Please enter a valid date *
Statement Details |
| 2025 | 452 | STATE - STATE LEVY (SCHOOL) | $329.00 | $328.98 | $0.00 | $0.00 | $329.00 | $328.98 |
| 2025 | 452 | COUNTY - COUNTY LEVIES (CE, DD, VET, MH) | $129.37 | $129.37 | $0.00 | $0.00 | $129.37 | $129.37 |
| 2025 | 452 | CONSERVE - CONSERVATION FUTURES | $3.88 | $3.88 | $0.00 | $0.00 | $3.88 | $3.88 |
| 2025 | 452 | COROADS - COUNTY ROADS (ROADS, DIV TO CE) | $103.65 | $103.64 | $0.00 | $0.00 | $103.65 | $103.64 |
| 2025 | 452 | PORTPT - PORT DISTRICT | $52.80 | $52.78 | $0.00 | $0.00 | $52.80 | $52.78 |
| 2025 | 452 | PUD1 - PUD #1 | $8.47 | $8.46 | $0.00 | $0.00 | $8.47 | $8.46 |
| 2025 | 452 | LIB1 - LIBRARY DIST #1 | $40.10 | $40.10 | $0.00 | $0.00 | $40.10 | $40.10 |
| 2025 | 452 | HD2 - HOSP DIST #2 | $7.55 | $7.55 | $0.00 | $0.00 | $7.55 | $7.55 |
| 2025 | 452 | SD50 - SCHOOL DIST #50 | $240.44 | $240.43 | $0.00 | $0.00 | $240.44 | $240.43 |
| 2025 | 452 | FD1 - FIRE DISTRICT #1 | $170.72 | $170.72 | $0.00 | $0.00 | $170.72 | $170.72 |
| 2025 | 452 | EMS1 - FIRE DIST #1 EMS | $65.67 | $65.66 | $0.00 | $0.00 | $65.67 | $65.66 |
| 2025 | 452 | FP - DNR Forest Fire Protection Assmt | $8.50 | $8.50 | $0.00 | $0.00 | $8.50 | $8.50 |
| 2025 | 452 | FPLCA - DNR Landowner Contingency Assmt | $3.00 | $3.00 | $0.00 | $0.00 | $3.00 | $3.00 |
| 2025 | 452 | JCCD - JC Conservation District | $2.80 | $2.80 | $0.00 | $0.00 | $2.80 | $2.80 |
| 2025 | 452 | NWA - Noxious Weed Assessment | $2.90 | $2.90 | $0.00 | $0.00 | $2.90 | $2.90 |
| 2025 | 452 | OSS - On Site Septic | $21.50 | $21.50 | $0.00 | $0.00 | $21.50 | $21.50 |
| 2025 | 452 | WAT - Clean Water District | $13.00 | $13.00 | $0.00 | $0.00 | $13.00 | $13.00 |
| 2025 | 452 | FP ADMIN - FP ADMIN | $0.50 | $0.00 | $0.00 | $0.00 | $0.50 | $0.00 |
| 2025 | 452 | TOTAL: | $1203.85 | $1203.27 | $0.00 | $0.00 | $1203.85 | $1203.27 |
|
| 2025 | 452 | $1203.85 | $1203.27 | $0.00 | $0.00 | $1203.85 | $1203.27 |
Statement Details |
| 2024 | 452 | STATE - STATE LEVY (SCHOOL) | $282.18 | $282.18 | $0.00 | $0.00 | $564.36 | $0.00 |
| 2024 | 452 | COUNTY - COUNTY LEVIES (CE, DD, VET, MH) | $120.75 | $120.74 | $0.00 | $0.00 | $241.49 | $0.00 |
| 2024 | 452 | CONSERVE - CONSERVATION FUTURES | $3.62 | $3.62 | $0.00 | $0.00 | $7.24 | $0.00 |
| 2024 | 452 | COROADS - COUNTY ROADS (ROADS, DIV TO CE) | $97.17 | $97.16 | $0.00 | $0.00 | $194.33 | $0.00 |
| 2024 | 452 | PORTPT - PORT DISTRICT | $49.88 | $49.87 | $0.00 | $0.00 | $99.75 | $0.00 |
| 2024 | 452 | PUD1 - PUD #1 | $7.93 | $7.93 | $0.00 | $0.00 | $15.86 | $0.00 |
| 2024 | 452 | LIB1 - LIBRARY DIST #1 | $37.59 | $37.59 | $0.00 | $0.00 | $75.18 | $0.00 |
| 2024 | 452 | HD2 - HOSP DIST #2 | $7.05 | $7.04 | $0.00 | $0.00 | $14.09 | $0.00 |
| 2024 | 452 | SD50 - SCHOOL DIST #50 | $228.30 | $228.30 | $0.00 | $0.00 | $456.60 | $0.00 |
| 2024 | 452 | FD1 - FIRE DISTRICT #1 | $159.66 | $159.65 | $0.00 | $0.00 | $319.31 | $0.00 |
| 2024 | 452 | EMS1 - FIRE DIST #1 EMS | $60.99 | $60.98 | $0.00 | $0.00 | $121.97 | $0.00 |
| 2024 | 452 | FP - DNR Forest Fire Protection Assmt | $8.50 | $8.50 | $0.00 | $0.00 | $17.00 | $0.00 |
| 2024 | 452 | FPLCA - DNR Landowner Contingency Assmt | $3.00 | $3.00 | $0.00 | $0.00 | $6.00 | $0.00 |
| 2024 | 452 | JCCD - JC Conservation District | $2.80 | $2.80 | $0.00 | $0.00 | $5.60 | $0.00 |
| 2024 | 452 | NWA - Noxious Weed Assessment | $2.90 | $2.90 | $0.00 | $0.00 | $5.80 | $0.00 |
| 2024 | 452 | OSS - On Site Septic | $21.00 | $21.00 | $0.00 | $0.00 | $42.00 | $0.00 |
| 2024 | 452 | WAT - Clean Water District | $12.50 | $12.50 | $0.00 | $0.00 | $25.00 | $0.00 |
| 2024 | 452 | FP ADMIN - FP ADMIN | $0.50 | $0.00 | $0.00 | $0.00 | $0.50 | $0.00 |
| 2024 | 452 | TOTAL: | $1106.32 | $1105.76 | $0.00 | $0.00 | $2212.08 | $0.00 |
|
| 2024 | 452 | $1106.32 | $1105.76 | $0.00 | $0.00 | $2212.08 | $0.00 |
Statement Details |
| 2023 | 452 | STATE - STATE LEVY (SCHOOL) | $268.19 | $268.17 | $0.00 | $0.00 | $536.36 | $0.00 |
| 2023 | 452 | COUNTY - COUNTY LEVIES (CE, DD, VET, MH) | $117.05 | $117.01 | $0.00 | $0.00 | $234.06 | $0.00 |
| 2023 | 452 | CONSERVE - CONSERVATION FUTURES | $3.51 | $3.51 | $0.00 | $0.00 | $7.02 | $0.00 |
| 2023 | 452 | COROADS - COUNTY ROADS (ROADS, DIV TO CE) | $94.68 | $94.68 | $0.00 | $0.00 | $189.36 | $0.00 |
| 2023 | 452 | PORTPT - PORT DISTRICT | $49.30 | $49.30 | $0.00 | $0.00 | $98.60 | $0.00 |
| 2023 | 452 | PUD1 - PUD #1 | $7.76 | $7.75 | $0.00 | $0.00 | $15.51 | $0.00 |
| 2023 | 452 | LIB1 - LIBRARY DIST #1 | $36.63 | $36.63 | $0.00 | $0.00 | $73.26 | $0.00 |
| 2023 | 452 | HD2 - HOSP DIST #2 | $6.83 | $6.83 | $0.00 | $0.00 | $13.66 | $0.00 |
| 2023 | 452 | SD50 - SCHOOL DIST #50 | $212.82 | $212.80 | $0.00 | $0.00 | $425.62 | $0.00 |
| 2023 | 452 | FD1 - FIRE DISTRICT #1 | $96.41 | $96.40 | $0.00 | $0.00 | $192.81 | $0.00 |
| 2023 | 452 | EMS1 - FIRE DIST #1 EMS | $41.01 | $41.01 | $0.00 | $0.00 | $82.02 | $0.00 |
| 2023 | 452 | FP - DNR Forest Fire Protection Assmt | $8.50 | $8.50 | $0.00 | $0.00 | $17.00 | $0.00 |
| 2023 | 452 | FPLCA - DNR Landowner Contingency Assmt | $3.00 | $3.00 | $0.00 | $0.00 | $6.00 | $0.00 |
| 2023 | 452 | JCCD - JC Conservation District | $2.80 | $2.80 | $0.00 | $0.00 | $5.60 | $0.00 |
| 2023 | 452 | NWA - Noxious Weed Assessment | $2.90 | $2.90 | $0.00 | $0.00 | $5.80 | $0.00 |
| 2023 | 452 | OSS - On Site Septic | $20.50 | $20.50 | $0.00 | $0.00 | $41.00 | $0.00 |
| 2023 | 452 | WAT - Clean Water District | $12.00 | $12.00 | $0.00 | $0.00 | $24.00 | $0.00 |
| 2023 | 452 | FP ADMIN - FP ADMIN | $0.50 | $0.00 | $0.00 | $0.00 | $0.50 | $0.00 |
| 2023 | 452 | TOTAL: | $984.39 | $983.79 | $0.00 | $0.00 | $1968.18 | $0.00 |
|
| 2023 | 452 | $984.39 | $983.79 | $0.00 | $0.00 | $1968.18 | $0.00 |
Statement Details |
| 2022 | 454 | STATE - STATE LEVY (SCHOOL) | $273.79 | $273.78 | $0.00 | $0.00 | $547.57 | $0.00 |
| 2022 | 454 | COUNTY - COUNTY LEVIES (CE, DD, VET, MH) | $121.98 | $121.98 | $0.00 | $0.00 | $243.96 | $0.00 |
| 2022 | 454 | CONSERVE - CONSERVATION FUTURES | $3.66 | $3.66 | $0.00 | $0.00 | $7.32 | $0.00 |
| 2022 | 454 | COROADS - COUNTY ROADS (ROADS, DIV TO CE) | $99.15 | $99.14 | $0.00 | $0.00 | $198.29 | $0.00 |
| 2022 | 454 | PORTPT - PORT DISTRICT | $52.22 | $52.22 | $0.00 | $0.00 | $104.44 | $0.00 |
| 2022 | 454 | PUD1 - PUD #1 | $8.16 | $8.15 | $0.00 | $0.00 | $16.31 | $0.00 |
| 2022 | 454 | LIB1 - LIBRARY DIST #1 | $38.36 | $38.36 | $0.00 | $0.00 | $76.72 | $0.00 |
| 2022 | 454 | HD2 - HOSP DIST #2 | $7.13 | $7.11 | $0.00 | $0.00 | $14.24 | $0.00 |
| 2022 | 454 | SD50 - SCHOOL DIST #50 | $202.89 | $202.88 | $0.00 | $0.00 | $405.77 | $0.00 |
| 2022 | 454 | FD1 - FIRE DISTRICT #1 | $100.08 | $100.07 | $0.00 | $0.00 | $200.15 | $0.00 |
| 2022 | 454 | EMS1 - FIRE DIST #1 EMS | $42.57 | $42.56 | $0.00 | $0.00 | $85.13 | $0.00 |
| 2022 | 454 | FP - DNR Forest Fire Protection Assmt | $8.50 | $8.50 | $0.00 | $0.00 | $17.00 | $0.00 |
| 2022 | 454 | FPLCA - DNR Landowner Contingency Assmt | $3.00 | $3.00 | $0.00 | $0.00 | $6.00 | $0.00 |
| 2022 | 454 | JCCD - JC Conservation District | $2.80 | $2.80 | $0.00 | $0.00 | $5.60 | $0.00 |
| 2022 | 454 | NWA - Noxious Weed Assessment | $2.90 | $2.90 | $0.00 | $0.00 | $5.80 | $0.00 |
| 2022 | 454 | OSS - On Site Septic | $19.50 | $19.50 | $0.00 | $0.00 | $39.00 | $0.00 |
| 2022 | 454 | WAT - Clean Water District | $11.50 | $11.50 | $0.00 | $0.00 | $23.00 | $0.00 |
| 2022 | 454 | FP ADMIN - FP ADMIN | $0.50 | $0.00 | $0.00 | $0.00 | $0.50 | $0.00 |
| 2022 | 454 | TOTAL: | $998.69 | $998.11 | $0.00 | $0.00 | $1996.80 | $0.00 |
|
| 2022 | 454 | $998.69 | $998.11 | $0.00 | $0.00 | $1996.80 | $0.00 |
Values
| (+) Improvement Homesite Value: | + | $58,363 | |
| (+) Improvement Non-Homesite Value: | + | $0 | |
| (+) Land Homesite Value: | + | $0 | |
| (+) Land Non-Homesite Value: | + | $216,021 | |
| (+) Curr Use (HS): | + | $0 | $0 |
| (+) Curr Use (NHS): | + | $0 | $0 |
| | | -------------------------- | |
| (=) Market Value: | = | $274,384 | |
| (–) Productivity Loss: | – | $0 | |
| | | -------------------------- | |
| (=) Subtotal: | = | $274,384 | |
| (+) Senior Appraised Value: | + | $0 | |
| (+) Non-Senior Appraised Value: | + | $274,384 | |
| | | -------------------------- | |
| (=) Total Appraised Value: | = | $274,384 | |
| (–) Senior Exemption Loss: | – | $0 | |
| (–) Exemption Loss: | – | $0 | |
| | | -------------------------- | |
| (=) Taxable Value: | = | $274,384 | |
Taxing Jurisdiction
| Owner: | WONDERLAND 147 TRUST | | |
| % Ownership: | 100.0000000000% | | |
| Total Value: | N/A | | |
| Tax Area: | 0111 - 1-50F1E1H2L1 |
| CE | COUNTY CURRENT EXPENSE | N/A | N/A | N/A | N/A | | |
| CNTYDD | DEVELOPMENTAL DISABILITIES | N/A | N/A | N/A | N/A | | |
| CNTYVET | VETERANS RELIEF | N/A | N/A | N/A | N/A | | |
| MENTAL | MENTAL HEALTH | N/A | N/A | N/A | N/A | | |
| ROADS | COUNTY ROADS | N/A | N/A | N/A | N/A | | |
| ROADSCU | COUNTY ROADS TO CUR EXP | N/A | N/A | N/A | N/A | | |
| HOSP2CASH | HOSP DIST #2 GENERAL | N/A | N/A | N/A | N/A | | |
| SCH50BOND | SCHOOL DIST #50 BOND 2016 | N/A | N/A | N/A | N/A | | |
| SCH50CP | SCHOOL DIST #50 CAP PROJ | N/A | N/A | N/A | N/A | | |
| SCH50MO | SCHOOL DIST #50 EP & O | N/A | N/A | N/A | N/A | | |
| CONSERVE | CONSERVATION FUTURES | N/A | N/A | N/A | N/A | | |
| EMS1 | FIRE DIST #1 EMS | N/A | N/A | N/A | N/A | | |
| FD1 | FIRE DIST #1 GENERAL | N/A | N/A | N/A | N/A | | |
| LIB1 | LIBRARY DIST #1 GENERAL | N/A | N/A | N/A | N/A | | |
| PORTPT | PORT OF PT GENERAL | N/A | N/A | N/A | N/A | | |
| PORTPTIDD | PORT OF PT IDD 2019 | N/A | N/A | N/A | N/A | | |
| PUD1 | PUD #1 GENERAL | N/A | N/A | N/A | N/A | | |
| STATE | STATE SCHOOL PART 1 | N/A | N/A | N/A | N/A | | |
| STATE2 | STATE SCHOOL PART 2 | N/A | N/A | N/A | N/A | | |
| | Total Tax Rate: | N/A | | | | | |
| | | | | Taxes w/Current Exemptions: | N/A | | |
| | | | | Taxes w/o Exemptions: | N/A | | |
Improvement / Building
| Improvement #1: | Residential Bldg | State Code: | 19 | 299.0 sqft | Value: | $58,363 |
| Bathrooms (#): | 1 (FULL) | Bedrooms (#): | 1 | | Exterior Wall: | SI/ST | Fireplace: | WD ST-GOOD | | Floor Construction: | FRAME | Foundation: | PO&BL | | Heating/Cooling: | ELBB | Interior Finish: | FIN | | Roof Cover: | METAL |   |   |
|
| | Type | Description | Class CD | Sub Class CD | Year Built | Area |
| | MA | Main Area | 5+ | C2S | 2017 | 219.0 |
| | MA2 | Second Floor Main Area | 5+ | C2S | 2017 | 80.0 |
| | CWPOR | Cabin Wood Porch | 5 | * | 2017 | 120.0 |
| | CDECK | Cabin Deck | 5 | C2S | 2017 | 69.5 |
| | SHED | Shed (Table Not Dep) | 4 | * | 2017 | 88.0 |
Sketch
Property Image
Land
| 1 | 1574A | | 4.0300 | 175546.80 | 0.00 | 0.00 | 0.00 | $56,521 | $0 |
| 2 | 5325-1371S | | 1.0000 | 43560.00 | 0.00 | 0.00 | 1.00 | $159,500 | $0 |
Roll Value History
| 2025 | N/A | N/A | N/A | N/A | N/A |
| 2024 | $58,363 | $216,021 | $0 | $274,384 | $274,384 |
| 2023 | $55,572 | $188,360 | $0 | $243,932 | $243,932 |
| 2022 | $50,520 | $177,315 | $0 | $227,835 | $227,835 |
| 2021 | $38,273 | $161,989 | $0 | $200,262 | $200,262 |
Deed and Sales History
| 1 | 01/19/2023 | QCD | Quit Claim Deed | ANDREAS NIESEN & BETH O'NEAL | WONDERLAND 147 TRUST | | | | 140395 | |
| 2 | 09/07/2016 | SWD | Statutory Warranty Deed | GERRY P SHERMAN | ANDREAS NIESEN & BETH O'NEAL | | | $138,000.00 | 126262 | |
| 3 | 05/12/2003 | SWD | Statutory Warranty Deed | SCHLIEPS, DAVID | SHERMAN, GERRY/THOMSON, KIM | 0 | 0 | $78,000.00 | 97282 | 0 |
| 4 | 07/17/2001 | SWD | Statutory Warranty Deed | VENDOURIS, DEAN/LONA KAY | SCHLIEPS, DAVID | 0 | 0 | $60,000.00 | 92688 | 0 |
| 5 | 02/27/1995 | SWD | Statutory Warranty Deed | CASWELL, GARY/DAWSON, J & | VENDOURIS, DEAN/LONA KAY | 0 | 0 | $40,000.00 | 76404 | 0 |
Payout Agreement
| No payout information available.. |