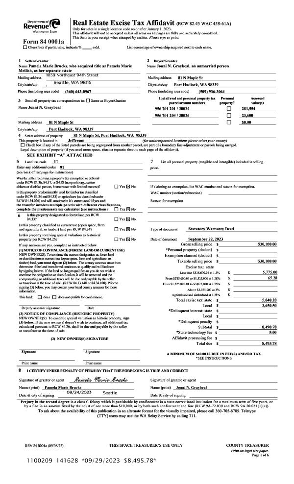
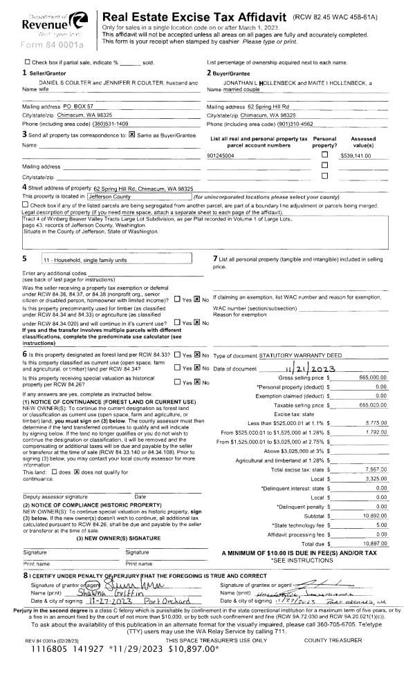
Property
Account |
| Property ID: | 10484 | Abbreviated Legal Description: | S7 T30N R1W TAX 20 W/EASE |
| Parcel # / Geo ID: | 001071023 | Agent Code: | |
| Type: | Real | | |
| Tax Area: | 0111 - 1-50F1E1H2L1 | Land Use Code | 11 |
| Open Space: | N | DFL | N |
| Historic Property: | N | Remodel Property: | N |
| Multi-Family Redevelopment: | N | | |
| Township: | 30N | Section: | 7 |
| Range: | 1W |
Location |
| Address: | 460 JOLIE WAY 462 PORT TOWNSEND, WA 98368 | Mapsco: | 086/013 |
| Neighborhood: | S7 T30 R1W, ROSEBURG ADD | Map ID: | |
| Neighborhood CD: | 5325 |
Owner |
| Name: | NICHOLE & KURT BRAKEMAN | Owner ID: | 110797 |
| Mailing Address: | 460 JOLIE WAY PORT TOWNSEND, WA 98368-9069 | % Ownership: | 100.0000000000% |
| | | Exemptions: | |
Pay Tax Due
Select the appropriate checkbox next to the year to be paid. Multiple years may be selected.
Payments MAY have already been made which will be reflected in the next update.
*Convenience Fee not included
Taxes and Assessment Details
Property Tax Information as of
10/23/2025
Click on "Statement Details" to expand or collapse a tax statement.
* Please enter a valid date ** Please enter a valid date *
Statement Details |
| 2025 | 464 | STATE - STATE LEVY (SCHOOL) | $493.97 | $493.96 | $0.00 | $44.46 | $0.00 | $1032.39 |
| 2025 | 464 | COUNTY - COUNTY LEVIES (CE, DD, VET, MH) | $194.26 | $194.25 | $0.00 | $17.48 | $0.00 | $405.99 |
| 2025 | 464 | CONSERVE - CONSERVATION FUTURES | $5.83 | $5.82 | $0.00 | $0.52 | $0.00 | $12.17 |
| 2025 | 464 | COROADS - COUNTY ROADS (ROADS, DIV TO CE) | $155.63 | $155.62 | $0.00 | $14.00 | $0.00 | $325.25 |
| 2025 | 464 | PORTPT - PORT DISTRICT | $79.27 | $79.26 | $0.00 | $7.14 | $0.00 | $165.67 |
| 2025 | 464 | PUD1 - PUD #1 | $12.71 | $12.71 | $0.00 | $1.14 | $0.00 | $26.56 |
| 2025 | 464 | LIB1 - LIBRARY DIST #1 | $60.21 | $60.21 | $0.00 | $5.42 | $0.00 | $125.84 |
| 2025 | 464 | HD2 - HOSP DIST #2 | $11.34 | $11.33 | $0.00 | $1.02 | $0.00 | $23.69 |
| 2025 | 464 | SD50 - SCHOOL DIST #50 | $361.02 | $361.00 | $0.00 | $32.49 | $0.00 | $754.51 |
| 2025 | 464 | FD1 - FIRE DISTRICT #1 | $256.33 | $256.33 | $0.00 | $23.07 | $0.00 | $535.73 |
| 2025 | 464 | EMS1 - FIRE DIST #1 EMS | $98.59 | $98.59 | $0.00 | $8.87 | $0.00 | $206.05 |
| 2025 | 464 | FP - DNR Forest Fire Protection Assmt | $8.50 | $8.50 | $0.00 | $0.76 | $0.00 | $17.76 |
| 2025 | 464 | FPLCA - DNR Landowner Contingency Assmt | $3.00 | $3.00 | $0.00 | $0.27 | $0.00 | $6.27 |
| 2025 | 464 | JCCD - JC Conservation District | $3.00 | $3.00 | $0.00 | $0.27 | $0.00 | $6.27 |
| 2025 | 464 | NWA - Noxious Weed Assessment | $3.50 | $3.50 | $0.00 | $0.32 | $0.00 | $7.32 |
| 2025 | 464 | OSS - On Site Septic | $86.00 | $86.00 | $0.00 | $7.74 | $0.00 | $179.74 |
| 2025 | 464 | WAT - Clean Water District | $13.00 | $13.00 | $0.00 | $1.17 | $0.00 | $27.17 |
| 2025 | 464 | FP ADMIN - FP ADMIN | $0.50 | $0.00 | $0.00 | $0.00 | $0.00 | $0.50 |
| 2025 | 464 | TOTAL: | $1846.66 | $1846.08 | $0.00 | $166.14 | $0.00 | $3858.88 |
|
| 2025 | 464 | $1846.66 | $1846.08 | $0.00 | $166.14 | $0.00 | $3858.88 |
Statement Details |
| 2024 | 464 | STATE - STATE LEVY (SCHOOL) | $636.54 | $636.53 | $0.00 | $57.29 | $636.54 | $693.82 |
| 2024 | 464 | COUNTY - COUNTY LEVIES (CE, DD, VET, MH) | $272.39 | $272.38 | $0.00 | $24.52 | $272.39 | $296.90 |
| 2024 | 464 | CONSERVE - CONSERVATION FUTURES | $8.17 | $8.17 | $0.00 | $0.74 | $8.17 | $8.91 |
| 2024 | 464 | COROADS - COUNTY ROADS (ROADS, DIV TO CE) | $219.18 | $219.17 | $0.00 | $19.72 | $219.18 | $238.89 |
| 2024 | 464 | PORTPT - PORT DISTRICT | $112.50 | $112.50 | $0.00 | $10.13 | $112.50 | $122.63 |
| 2024 | 464 | PUD1 - PUD #1 | $17.89 | $17.89 | $0.00 | $1.61 | $17.89 | $19.50 |
| 2024 | 464 | LIB1 - LIBRARY DIST #1 | $84.80 | $84.79 | $0.00 | $7.63 | $84.80 | $92.42 |
| 2024 | 464 | HD2 - HOSP DIST #2 | $15.90 | $15.89 | $0.00 | $1.43 | $15.90 | $17.32 |
| 2024 | 464 | SD50 - SCHOOL DIST #50 | $515.00 | $514.98 | $0.00 | $46.34 | $515.00 | $561.32 |
| 2024 | 464 | FD1 - FIRE DISTRICT #1 | $360.15 | $360.15 | $0.00 | $32.41 | $360.15 | $392.56 |
| 2024 | 464 | EMS1 - FIRE DIST #1 EMS | $137.57 | $137.56 | $0.00 | $12.38 | $137.57 | $149.94 |
| 2024 | 464 | FP - DNR Forest Fire Protection Assmt | $8.50 | $8.50 | $0.00 | $0.76 | $8.50 | $9.26 |
| 2024 | 464 | FPLCA - DNR Landowner Contingency Assmt | $3.00 | $3.00 | $0.00 | $0.27 | $3.00 | $3.27 |
| 2024 | 464 | JCCD - JC Conservation District | $3.00 | $3.00 | $0.00 | $0.27 | $3.00 | $3.27 |
| 2024 | 464 | NWA - Noxious Weed Assessment | $3.50 | $3.50 | $0.00 | $0.32 | $3.50 | $3.82 |
| 2024 | 464 | OSS - On Site Septic | $84.00 | $84.00 | $0.00 | $7.56 | $84.00 | $91.56 |
| 2024 | 464 | WAT - Clean Water District | $12.50 | $12.50 | $0.00 | $1.12 | $12.50 | $13.62 |
| 2024 | 464 | FP ADMIN - FP ADMIN | $0.50 | $0.00 | $0.00 | $0.00 | $0.50 | $0.00 |
| 2024 | 464 | TOTAL: | $2495.09 | $2494.51 | $0.00 | $224.50 | $2495.09 | $2719.01 |
|
| 2024 | 464 | $2495.09 | $2494.51 | $0.00 | $224.50 | $2495.09 | $2719.01 |
Statement Details |
| 2023 | 464 | STATE - STATE LEVY (SCHOOL) | $595.24 | $595.23 | $0.00 | $0.00 | $1190.47 | $0.00 |
| 2023 | 464 | COUNTY - COUNTY LEVIES (CE, DD, VET, MH) | $259.76 | $259.73 | $0.00 | $0.00 | $519.49 | $0.00 |
| 2023 | 464 | CONSERVE - CONSERVATION FUTURES | $7.79 | $7.79 | $0.00 | $0.00 | $15.58 | $0.00 |
| 2023 | 464 | COROADS - COUNTY ROADS (ROADS, DIV TO CE) | $210.16 | $210.14 | $0.00 | $0.00 | $420.30 | $0.00 |
| 2023 | 464 | PORTPT - PORT DISTRICT | $109.42 | $109.41 | $0.00 | $0.00 | $218.83 | $0.00 |
| 2023 | 464 | PUD1 - PUD #1 | $17.22 | $17.22 | $0.00 | $0.00 | $34.44 | $0.00 |
| 2023 | 464 | LIB1 - LIBRARY DIST #1 | $81.31 | $81.30 | $0.00 | $0.00 | $162.61 | $0.00 |
| 2023 | 464 | HD2 - HOSP DIST #2 | $15.16 | $15.16 | $0.00 | $0.00 | $30.32 | $0.00 |
| 2023 | 464 | SD50 - SCHOOL DIST #50 | $472.34 | $472.33 | $0.00 | $0.00 | $944.67 | $0.00 |
| 2023 | 464 | FD1 - FIRE DISTRICT #1 | $213.98 | $213.97 | $0.00 | $0.00 | $427.95 | $0.00 |
| 2023 | 464 | EMS1 - FIRE DIST #1 EMS | $91.02 | $91.02 | $0.00 | $0.00 | $182.04 | $0.00 |
| 2023 | 464 | FP - DNR Forest Fire Protection Assmt | $8.50 | $8.50 | $0.00 | $0.00 | $17.00 | $0.00 |
| 2023 | 464 | FPLCA - DNR Landowner Contingency Assmt | $3.00 | $3.00 | $0.00 | $0.00 | $6.00 | $0.00 |
| 2023 | 464 | JCCD - JC Conservation District | $3.00 | $3.00 | $0.00 | $0.00 | $6.00 | $0.00 |
| 2023 | 464 | NWA - Noxious Weed Assessment | $3.50 | $3.50 | $0.00 | $0.00 | $7.00 | $0.00 |
| 2023 | 464 | OSS - On Site Septic | $82.00 | $82.00 | $0.00 | $0.00 | $164.00 | $0.00 |
| 2023 | 464 | WAT - Clean Water District | $12.00 | $12.00 | $0.00 | $0.00 | $24.00 | $0.00 |
| 2023 | 464 | FP ADMIN - FP ADMIN | $0.50 | $0.00 | $0.00 | $0.00 | $0.50 | $0.00 |
| 2023 | 464 | TOTAL: | $2185.90 | $2185.30 | $0.00 | $0.00 | $4371.20 | $0.00 |
|
| 2023 | 464 | $2185.90 | $2185.30 | $0.00 | $0.00 | $4371.20 | $0.00 |
Statement Details |
| 2022 | 466 | STATE - STATE LEVY (SCHOOL) | $555.84 | $555.84 | $0.00 | $0.00 | $1111.68 | $0.00 |
| 2022 | 466 | COUNTY - COUNTY LEVIES (CE, DD, VET, MH) | $247.67 | $247.64 | $0.00 | $0.00 | $495.31 | $0.00 |
| 2022 | 466 | CONSERVE - CONSERVATION FUTURES | $7.43 | $7.42 | $0.00 | $0.00 | $14.85 | $0.00 |
| 2022 | 466 | COROADS - COUNTY ROADS (ROADS, DIV TO CE) | $201.29 | $201.28 | $0.00 | $0.00 | $402.57 | $0.00 |
| 2022 | 466 | PORTPT - PORT DISTRICT | $106.02 | $106.02 | $0.00 | $0.00 | $212.04 | $0.00 |
| 2022 | 466 | PUD1 - PUD #1 | $16.56 | $16.56 | $0.00 | $0.00 | $33.12 | $0.00 |
| 2022 | 466 | LIB1 - LIBRARY DIST #1 | $77.88 | $77.87 | $0.00 | $0.00 | $155.75 | $0.00 |
| 2022 | 466 | HD2 - HOSP DIST #2 | $14.46 | $14.45 | $0.00 | $0.00 | $28.91 | $0.00 |
| 2022 | 466 | SD50 - SCHOOL DIST #50 | $411.91 | $411.89 | $0.00 | $0.00 | $823.80 | $0.00 |
| 2022 | 466 | FD1 - FIRE DISTRICT #1 | $203.17 | $203.17 | $0.00 | $0.00 | $406.34 | $0.00 |
| 2022 | 466 | EMS1 - FIRE DIST #1 EMS | $86.42 | $86.42 | $0.00 | $0.00 | $172.84 | $0.00 |
| 2022 | 466 | FP - DNR Forest Fire Protection Assmt | $8.50 | $8.50 | $0.00 | $0.00 | $17.00 | $0.00 |
| 2022 | 466 | FPLCA - DNR Landowner Contingency Assmt | $3.00 | $3.00 | $0.00 | $0.00 | $6.00 | $0.00 |
| 2022 | 466 | JCCD - JC Conservation District | $3.00 | $3.00 | $0.00 | $0.00 | $6.00 | $0.00 |
| 2022 | 466 | NWA - Noxious Weed Assessment | $3.50 | $3.50 | $0.00 | $0.00 | $7.00 | $0.00 |
| 2022 | 466 | OSS - On Site Septic | $78.00 | $78.00 | $0.00 | $0.00 | $156.00 | $0.00 |
| 2022 | 466 | WAT - Clean Water District | $11.50 | $11.50 | $0.00 | $0.00 | $23.00 | $0.00 |
| 2022 | 466 | FP ADMIN - FP ADMIN | $0.50 | $0.00 | $0.00 | $0.00 | $0.50 | $0.00 |
| 2022 | 466 | TOTAL: | $2036.65 | $2036.06 | $0.00 | $0.00 | $4072.71 | $0.00 |
|
| 2022 | 466 | $2036.65 | $2036.06 | $0.00 | $0.00 | $4072.71 | $0.00 |
Values
| (+) Improvement Homesite Value: | + | $0 | |
| (+) Improvement Non-Homesite Value: | + | $172,176 | |
| (+) Land Homesite Value: | + | $0 | |
| (+) Land Non-Homesite Value: | + | $239,800 | |
| (+) Curr Use (HS): | + | $0 | $0 |
| (+) Curr Use (NHS): | + | $0 | $0 |
| | | -------------------------- | |
| (=) Market Value: | = | $411,976 | |
| (–) Productivity Loss: | – | $0 | |
| | | -------------------------- | |
| (=) Subtotal: | = | $411,976 | |
| (+) Senior Appraised Value: | + | $0 | |
| (+) Non-Senior Appraised Value: | + | $411,976 | |
| | | -------------------------- | |
| (=) Total Appraised Value: | = | $411,976 | |
| (–) Senior Exemption Loss: | – | $0 | |
| (–) Exemption Loss: | – | $0 | |
| | | -------------------------- | |
| (=) Taxable Value: | = | $411,976 | |
Taxing Jurisdiction
| Owner: | NICHOLE & KURT BRAKEMAN | | |
| % Ownership: | 100.0000000000% | | |
| Total Value: | N/A | | |
| Tax Area: | 0111 - 1-50F1E1H2L1 |
| CE | COUNTY CURRENT EXPENSE | N/A | N/A | N/A | N/A | | |
| CNTYDD | DEVELOPMENTAL DISABILITIES | N/A | N/A | N/A | N/A | | |
| CNTYVET | VETERANS RELIEF | N/A | N/A | N/A | N/A | | |
| MENTAL | MENTAL HEALTH | N/A | N/A | N/A | N/A | | |
| ROADS | COUNTY ROADS | N/A | N/A | N/A | N/A | | |
| ROADSCU | COUNTY ROADS TO CUR EXP | N/A | N/A | N/A | N/A | | |
| HOSP2CASH | HOSP DIST #2 GENERAL | N/A | N/A | N/A | N/A | | |
| SCH50BOND | SCHOOL DIST #50 BOND 2016 | N/A | N/A | N/A | N/A | | |
| SCH50CP | SCHOOL DIST #50 CAP PROJ | N/A | N/A | N/A | N/A | | |
| SCH50MO | SCHOOL DIST #50 EP & O | N/A | N/A | N/A | N/A | | |
| CONSERVE | CONSERVATION FUTURES | N/A | N/A | N/A | N/A | | |
| EMS1 | FIRE DIST #1 EMS | N/A | N/A | N/A | N/A | | |
| FD1 | FIRE DIST #1 GENERAL | N/A | N/A | N/A | N/A | | |
| LIB1 | LIBRARY DIST #1 GENERAL | N/A | N/A | N/A | N/A | | |
| PORTPT | PORT OF PT GENERAL | N/A | N/A | N/A | N/A | | |
| PORTPTIDD | PORT OF PT IDD 2019 | N/A | N/A | N/A | N/A | | |
| PUD1 | PUD #1 GENERAL | N/A | N/A | N/A | N/A | | |
| STATE | STATE SCHOOL PART 1 | N/A | N/A | N/A | N/A | | |
| STATE2 | STATE SCHOOL PART 2 | N/A | N/A | N/A | N/A | | |
| | Total Tax Rate: | N/A | | | | | |
| | | | | Taxes w/Current Exemptions: | N/A | | |
| | | | | Taxes w/o Exemptions: | N/A | | |
Improvement / Building
| Improvement #1: | Manufactured Home | State Code: | 11 | 1782.0 sqft | Value: | $117,589 |
| Bathrooms (#): | 2 (FULL) | Bedrooms (#): | 3 | | Exterior Wall: | PL/T1 | Fireplace: | WD ST-AVG | | Floor Construction: | FRAME | Foundation: | PO&BL | | Heating/Cooling: | F/A | Roof Cover: | COMP |
|
| | Type | Description | Class CD | Sub Class CD | Year Built | Area |
| | MA | Main Area | 3 | MDBL | 1987 | 1782.0 |
| | MDECK | MH Deck | 3 | * | 1987 | 110.0 |
| | MDET | MH Detached Garage | 1 | MDBL | 1987 | 1440.0 |
| | CARPTF | Carport W/Floor | 1 | * | 1987 | 480.0 |
| | MWPOR | MH Wood Porch | 3 | * | 1987 | 223.0 |
| | MWPOR | MH Wood Porch | 2 | * | 1987 | 48.0 |
| | MWPOR | MH Wood Porch | 3 | * | 1987 | 312.0 |
| | GARAG | Garage (Table Not Dep) | 1 | * | 1987 | 1080.0 |
| | SHED | Shed (Table Not Dep) | 2 | * | 1987 | 240.0 |
| | SHED | Shed (Table Not Dep) | 2 | * | 1987 | 144.0 |
| | SHED | Shed (Table Not Dep) | 3 | * | 1987 | 96.0 |
| Improvement #2: | Manufactured Home | State Code: | 11 | 768.0 sqft | Value: | $37,273 |
| Bathrooms (#): | 1 (FULL) | Bedrooms (#): | 2 | | Exterior Wall: | METAL | Floor Construction: | FRAME | | Foundation: | PO&BL | Heating/Cooling: | F/A | | Roof Cover: | COMP |   |   |
|
| | Type | Description | Class CD | Sub Class CD | Year Built | Area |
| | MA | Main Area | 3 | MDBL | 1988 | 768.0 |
| | MWPOR | MH Wood Porch | 3 | * | 1988 | 48.0 |
| | MENCL | MH Enclosure | 2 | * | 1988 | 48.0 |
| | MSKIRT_MTL | MH Skirting - Metal/Vinyl | 3 | * | 1988 | 120.0 |
| Improvement #3: | Manufactured Home | State Code: | 11M | 864.0 sqft | Value: | $17,314 |
| Exterior Wall: | PL/T1 | Floor Construction: | FRAME | | Foundation: | PO&BL | Roof Cover: | COMP |
|
| | Type | Description | Class CD | Sub Class CD | Year Built | Area |
| | MA | Main Area | 2 | MDBL | 1988 | 864.0 |
| | MDECK | MH Deck | 2 | * | 1988 | 192.0 |
| | MENCL | MH Enclosure | 2 | MDBL | 1988 | 50.0 |
| | MWPOR | MH Wood Porch | 2 | * | 1988 | 100.0 |
| | MSKIRT_MTL | MH Skirting - Metal/Vinyl | 2 | MDBL | 1988 | 118.0 |
Sketch
Property Image
Land
| 1 | 5325-1385S | | 1.0000 | 43560.00 | 0.00 | 0.00 | 1.00 | $82,500 | $0 |
| 2 | 5325-1385S | | 1.0000 | 43560.00 | 0.00 | 0.00 | 1.00 | $82,500 | $0 |
| 3 | 1774A | | 8.0000 | 348480.00 | 0.00 | 0.00 | 0.00 | $74,800 | $0 |
Roll Value History
| 2025 | N/A | N/A | N/A | N/A | N/A |
| 2024 | $172,176 | $239,800 | $0 | $411,976 | $411,976 |
| 2023 | $204,259 | $346,000 | $0 | $550,259 | $550,259 |
| 2022 | $185,690 | $320,000 | $0 | $505,690 | $505,690 |
| 2021 | $153,571 | $253,000 | $0 | $406,571 | $406,571 |
Deed and Sales History
| 1 | 05/06/2024 | REC | Real Estate Contract | AQ DEVELOPMENT LLC | NICHOLE & KURT BRAKEMAN | | | $425,000.00 | 142573 | |
| 2 | 05/06/2024 | SWD | Statutory Warranty Deed | CLIFFORD W MC FALL | AQ DEVELOPMENT LLC | | | $350,000.00 | 142565 | |
| 3 | 11/12/1998 | SWD | Statutory Warranty Deed | GADBAW, CHARLES W/SHIRLEY | MCFALL, CLIFFORD W/JACQUELINE | 0 | 0 | $169,500.00 | 85706 | 0 |
Payout Agreement
| No payout information available.. |