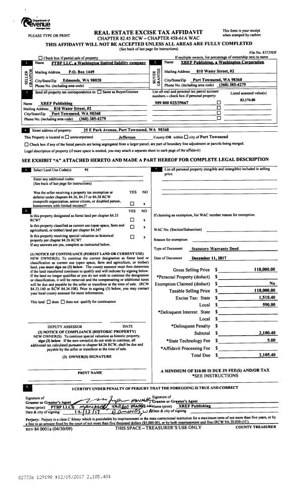
Property
Account |
| Property ID: | 10492 | Abbreviated Legal Description: | S7 T30N R1W W1/2 SE NE NE SUBJ/EASE |
| Parcel # / Geo ID: | 001071038 | Agent Code: | |
| Type: | Real | | |
| Tax Area: | 0111 - 1-50F1E1H2L1 | Land Use Code | 11 |
| Open Space: | N | DFL | N |
| Historic Property: | N | Remodel Property: | N |
| Multi-Family Redevelopment: | N | | |
| Township: | 30N | Section: | 7 |
| Range: | 1W |
Location |
| Address: | 661 ARABIAN LN PORT TOWNSEND, WA 98368 | Mapsco: | 084/011 |
| Neighborhood: | S7 T30 R1W, ROSEBURG ADD | Map ID: | |
| Neighborhood CD: | 5325 |
Owner |
| Name: | DAVID R BOMMER | Owner ID: | 11777 |
| Mailing Address: | DIANE H BOMMER 661 ARABIAN LN PORT TOWNSEND, WA 98368-9283 | % Ownership: | 100.0000000000% |
| | | Exemptions: | |
Pay Tax Due
There is currently No Amount Due on this property.
Taxes and Assessment Details
Property Tax Information as of
10/23/2025
Click on "Statement Details" to expand or collapse a tax statement.
* Please enter a valid date ** Please enter a valid date *
Statement Details |
| 2025 | 472 | STATE - STATE LEVY (SCHOOL) | $746.80 | $746.78 | $0.00 | $0.00 | $1493.58 | $0.00 |
| 2025 | 472 | COUNTY - COUNTY LEVIES (CE, DD, VET, MH) | $293.67 | $293.66 | $0.00 | $0.00 | $587.33 | $0.00 |
| 2025 | 472 | CONSERVE - CONSERVATION FUTURES | $8.81 | $8.80 | $0.00 | $0.00 | $17.61 | $0.00 |
| 2025 | 472 | COROADS - COUNTY ROADS (ROADS, DIV TO CE) | $235.28 | $235.27 | $0.00 | $0.00 | $470.55 | $0.00 |
| 2025 | 472 | PORTPT - PORT DISTRICT | $119.84 | $119.83 | $0.00 | $0.00 | $239.67 | $0.00 |
| 2025 | 472 | PUD1 - PUD #1 | $19.22 | $19.21 | $0.00 | $0.00 | $38.43 | $0.00 |
| 2025 | 472 | LIB1 - LIBRARY DIST #1 | $91.03 | $91.02 | $0.00 | $0.00 | $182.05 | $0.00 |
| 2025 | 472 | HD2 - HOSP DIST #2 | $17.14 | $17.13 | $0.00 | $0.00 | $34.27 | $0.00 |
| 2025 | 472 | SD50 - SCHOOL DIST #50 | $545.79 | $545.77 | $0.00 | $0.00 | $1091.56 | $0.00 |
| 2025 | 472 | FD1 - FIRE DISTRICT #1 | $387.53 | $387.53 | $0.00 | $0.00 | $775.06 | $0.00 |
| 2025 | 472 | EMS1 - FIRE DIST #1 EMS | $149.06 | $149.05 | $0.00 | $0.00 | $298.11 | $0.00 |
| 2025 | 472 | FP - DNR Forest Fire Protection Assmt | $8.50 | $8.50 | $0.00 | $0.00 | $17.00 | $0.00 |
| 2025 | 472 | FPLCA - DNR Landowner Contingency Assmt | $3.00 | $3.00 | $0.00 | $0.00 | $6.00 | $0.00 |
| 2025 | 472 | JCCD - JC Conservation District | $2.80 | $2.80 | $0.00 | $0.00 | $5.60 | $0.00 |
| 2025 | 472 | NWA - Noxious Weed Assessment | $2.90 | $2.90 | $0.00 | $0.00 | $5.80 | $0.00 |
| 2025 | 472 | OSS - On Site Septic | $21.50 | $21.50 | $0.00 | $0.00 | $43.00 | $0.00 |
| 2025 | 472 | WAT - Clean Water District | $13.00 | $13.00 | $0.00 | $0.00 | $26.00 | $0.00 |
| 2025 | 472 | FP ADMIN - FP ADMIN | $0.50 | $0.00 | $0.00 | $0.00 | $0.50 | $0.00 |
| 2025 | 472 | TOTAL: | $2666.37 | $2665.75 | $0.00 | $0.00 | $5332.12 | $0.00 |
|
| 2025 | 472 | $2666.37 | $2665.75 | $0.00 | $0.00 | $5332.12 | $0.00 |
Statement Details |
| 2024 | 472 | STATE - STATE LEVY (SCHOOL) | $546.74 | $546.72 | $0.00 | $0.00 | $1093.46 | $0.00 |
| 2024 | 472 | COUNTY - COUNTY LEVIES (CE, DD, VET, MH) | $233.95 | $233.95 | $0.00 | $0.00 | $467.90 | $0.00 |
| 2024 | 472 | CONSERVE - CONSERVATION FUTURES | $7.02 | $7.01 | $0.00 | $0.00 | $14.03 | $0.00 |
| 2024 | 472 | COROADS - COUNTY ROADS (ROADS, DIV TO CE) | $188.26 | $188.24 | $0.00 | $0.00 | $376.50 | $0.00 |
| 2024 | 472 | PORTPT - PORT DISTRICT | $96.64 | $96.62 | $0.00 | $0.00 | $193.26 | $0.00 |
| 2024 | 472 | PUD1 - PUD #1 | $15.37 | $15.36 | $0.00 | $0.00 | $30.73 | $0.00 |
| 2024 | 472 | LIB1 - LIBRARY DIST #1 | $72.84 | $72.83 | $0.00 | $0.00 | $145.67 | $0.00 |
| 2024 | 472 | HD2 - HOSP DIST #2 | $13.65 | $13.65 | $0.00 | $0.00 | $27.30 | $0.00 |
| 2024 | 472 | SD50 - SCHOOL DIST #50 | $442.34 | $442.32 | $0.00 | $0.00 | $884.66 | $0.00 |
| 2024 | 472 | FD1 - FIRE DISTRICT #1 | $309.34 | $309.34 | $0.00 | $0.00 | $618.68 | $0.00 |
| 2024 | 472 | EMS1 - FIRE DIST #1 EMS | $118.16 | $118.15 | $0.00 | $0.00 | $236.31 | $0.00 |
| 2024 | 472 | FP - DNR Forest Fire Protection Assmt | $8.50 | $8.50 | $0.00 | $0.00 | $17.00 | $0.00 |
| 2024 | 472 | FPLCA - DNR Landowner Contingency Assmt | $3.00 | $3.00 | $0.00 | $0.00 | $6.00 | $0.00 |
| 2024 | 472 | JCCD - JC Conservation District | $2.80 | $2.80 | $0.00 | $0.00 | $5.60 | $0.00 |
| 2024 | 472 | NWA - Noxious Weed Assessment | $2.90 | $2.90 | $0.00 | $0.00 | $5.80 | $0.00 |
| 2024 | 472 | OSS - On Site Septic | $21.00 | $21.00 | $0.00 | $0.00 | $42.00 | $0.00 |
| 2024 | 472 | WAT - Clean Water District | $12.50 | $12.50 | $0.00 | $0.00 | $25.00 | $0.00 |
| 2024 | 472 | FP ADMIN - FP ADMIN | $0.50 | $0.00 | $0.00 | $0.00 | $0.50 | $0.00 |
| 2024 | 472 | TOTAL: | $2095.51 | $2094.89 | $0.00 | $0.00 | $4190.40 | $0.00 |
|
| 2024 | 472 | $2095.51 | $2094.89 | $0.00 | $0.00 | $4190.40 | $0.00 |
Statement Details |
| 2023 | 472 | STATE - STATE LEVY (SCHOOL) | $509.70 | $509.69 | $0.00 | $0.00 | $1019.39 | $0.00 |
| 2023 | 472 | COUNTY - COUNTY LEVIES (CE, DD, VET, MH) | $222.43 | $222.41 | $0.00 | $0.00 | $444.84 | $0.00 |
| 2023 | 472 | CONSERVE - CONSERVATION FUTURES | $6.67 | $6.67 | $0.00 | $0.00 | $13.34 | $0.00 |
| 2023 | 472 | COROADS - COUNTY ROADS (ROADS, DIV TO CE) | $179.95 | $179.95 | $0.00 | $0.00 | $359.90 | $0.00 |
| 2023 | 472 | PORTPT - PORT DISTRICT | $93.70 | $93.69 | $0.00 | $0.00 | $187.39 | $0.00 |
| 2023 | 472 | PUD1 - PUD #1 | $14.75 | $14.74 | $0.00 | $0.00 | $29.49 | $0.00 |
| 2023 | 472 | LIB1 - LIBRARY DIST #1 | $69.62 | $69.62 | $0.00 | $0.00 | $139.24 | $0.00 |
| 2023 | 472 | HD2 - HOSP DIST #2 | $12.98 | $12.98 | $0.00 | $0.00 | $25.96 | $0.00 |
| 2023 | 472 | SD50 - SCHOOL DIST #50 | $404.46 | $404.45 | $0.00 | $0.00 | $808.91 | $0.00 |
| 2023 | 472 | FD1 - FIRE DISTRICT #1 | $183.23 | $183.22 | $0.00 | $0.00 | $366.45 | $0.00 |
| 2023 | 472 | EMS1 - FIRE DIST #1 EMS | $77.94 | $77.94 | $0.00 | $0.00 | $155.88 | $0.00 |
| 2023 | 472 | FP - DNR Forest Fire Protection Assmt | $8.50 | $8.50 | $0.00 | $0.00 | $17.00 | $0.00 |
| 2023 | 472 | FPLCA - DNR Landowner Contingency Assmt | $3.00 | $3.00 | $0.00 | $0.00 | $6.00 | $0.00 |
| 2023 | 472 | JCCD - JC Conservation District | $2.80 | $2.80 | $0.00 | $0.00 | $5.60 | $0.00 |
| 2023 | 472 | NWA - Noxious Weed Assessment | $2.90 | $2.90 | $0.00 | $0.00 | $5.80 | $0.00 |
| 2023 | 472 | OSS - On Site Septic | $20.50 | $20.50 | $0.00 | $0.00 | $41.00 | $0.00 |
| 2023 | 472 | WAT - Clean Water District | $12.00 | $12.00 | $0.00 | $0.00 | $24.00 | $0.00 |
| 2023 | 472 | FP ADMIN - FP ADMIN | $0.50 | $0.00 | $0.00 | $0.00 | $0.50 | $0.00 |
| 2023 | 472 | TOTAL: | $1825.63 | $1825.06 | $0.00 | $0.00 | $3650.69 | $0.00 |
|
| 2023 | 472 | $1825.63 | $1825.06 | $0.00 | $0.00 | $3650.69 | $0.00 |
Statement Details |
| 2022 | 474 | STATE - STATE LEVY (SCHOOL) | $476.72 | $476.71 | $0.00 | $0.00 | $953.43 | $0.00 |
| 2022 | 474 | COUNTY - COUNTY LEVIES (CE, DD, VET, MH) | $212.41 | $212.39 | $0.00 | $0.00 | $424.80 | $0.00 |
| 2022 | 474 | CONSERVE - CONSERVATION FUTURES | $6.37 | $6.37 | $0.00 | $0.00 | $12.74 | $0.00 |
| 2022 | 474 | COROADS - COUNTY ROADS (ROADS, DIV TO CE) | $172.64 | $172.62 | $0.00 | $0.00 | $345.26 | $0.00 |
| 2022 | 474 | PORTPT - PORT DISTRICT | $90.93 | $90.92 | $0.00 | $0.00 | $181.85 | $0.00 |
| 2022 | 474 | PUD1 - PUD #1 | $14.21 | $14.20 | $0.00 | $0.00 | $28.41 | $0.00 |
| 2022 | 474 | LIB1 - LIBRARY DIST #1 | $66.79 | $66.79 | $0.00 | $0.00 | $133.58 | $0.00 |
| 2022 | 474 | HD2 - HOSP DIST #2 | $12.41 | $12.39 | $0.00 | $0.00 | $24.80 | $0.00 |
| 2022 | 474 | SD50 - SCHOOL DIST #50 | $353.28 | $353.26 | $0.00 | $0.00 | $706.54 | $0.00 |
| 2022 | 474 | FD1 - FIRE DISTRICT #1 | $174.25 | $174.25 | $0.00 | $0.00 | $348.50 | $0.00 |
| 2022 | 474 | EMS1 - FIRE DIST #1 EMS | $74.12 | $74.12 | $0.00 | $0.00 | $148.24 | $0.00 |
| 2022 | 474 | FP - DNR Forest Fire Protection Assmt | $8.50 | $8.50 | $0.00 | $0.00 | $17.00 | $0.00 |
| 2022 | 474 | FPLCA - DNR Landowner Contingency Assmt | $3.00 | $3.00 | $0.00 | $0.00 | $6.00 | $0.00 |
| 2022 | 474 | JCCD - JC Conservation District | $2.80 | $2.80 | $0.00 | $0.00 | $5.60 | $0.00 |
| 2022 | 474 | NWA - Noxious Weed Assessment | $2.90 | $2.90 | $0.00 | $0.00 | $5.80 | $0.00 |
| 2022 | 474 | OSS - On Site Septic | $19.50 | $19.50 | $0.00 | $0.00 | $39.00 | $0.00 |
| 2022 | 474 | WAT - Clean Water District | $11.50 | $11.50 | $0.00 | $0.00 | $23.00 | $0.00 |
| 2022 | 474 | FP ADMIN - FP ADMIN | $0.50 | $0.00 | $0.00 | $0.00 | $0.50 | $0.00 |
| 2022 | 474 | TOTAL: | $1702.83 | $1702.22 | $0.00 | $0.00 | $3405.05 | $0.00 |
|
| 2022 | 474 | $1702.83 | $1702.22 | $0.00 | $0.00 | $3405.05 | $0.00 |
Values
| (+) Improvement Homesite Value: | + | $0 | |
| (+) Improvement Non-Homesite Value: | + | $440,096 | |
| (+) Land Homesite Value: | + | $0 | |
| (+) Land Non-Homesite Value: | + | $182,741 | |
| (+) Curr Use (HS): | + | $0 | $0 |
| (+) Curr Use (NHS): | + | $0 | $0 |
| | | -------------------------- | |
| (=) Market Value: | = | $622,837 | |
| (–) Productivity Loss: | – | $0 | |
| | | -------------------------- | |
| (=) Subtotal: | = | $622,837 | |
| (+) Senior Appraised Value: | + | $0 | |
| (+) Non-Senior Appraised Value: | + | $622,837 | |
| | | -------------------------- | |
| (=) Total Appraised Value: | = | $622,837 | |
| (–) Senior Exemption Loss: | – | $0 | |
| (–) Exemption Loss: | – | $0 | |
| | | -------------------------- | |
| (=) Taxable Value: | = | $622,837 | |
Taxing Jurisdiction
| Owner: | DAVID R BOMMER | | |
| % Ownership: | 100.0000000000% | | |
| Total Value: | N/A | | |
| Tax Area: | 0111 - 1-50F1E1H2L1 |
| CE | COUNTY CURRENT EXPENSE | N/A | N/A | N/A | N/A | | |
| CNTYDD | DEVELOPMENTAL DISABILITIES | N/A | N/A | N/A | N/A | | |
| CNTYVET | VETERANS RELIEF | N/A | N/A | N/A | N/A | | |
| MENTAL | MENTAL HEALTH | N/A | N/A | N/A | N/A | | |
| ROADS | COUNTY ROADS | N/A | N/A | N/A | N/A | | |
| ROADSCU | COUNTY ROADS TO CUR EXP | N/A | N/A | N/A | N/A | | |
| HOSP2CASH | HOSP DIST #2 GENERAL | N/A | N/A | N/A | N/A | | |
| SCH50BOND | SCHOOL DIST #50 BOND 2016 | N/A | N/A | N/A | N/A | | |
| SCH50CP | SCHOOL DIST #50 CAP PROJ | N/A | N/A | N/A | N/A | | |
| SCH50MO | SCHOOL DIST #50 EP & O | N/A | N/A | N/A | N/A | | |
| CONSERVE | CONSERVATION FUTURES | N/A | N/A | N/A | N/A | | |
| EMS1 | FIRE DIST #1 EMS | N/A | N/A | N/A | N/A | | |
| FD1 | FIRE DIST #1 GENERAL | N/A | N/A | N/A | N/A | | |
| LIB1 | LIBRARY DIST #1 GENERAL | N/A | N/A | N/A | N/A | | |
| PORTPT | PORT OF PT GENERAL | N/A | N/A | N/A | N/A | | |
| PORTPTIDD | PORT OF PT IDD 2019 | N/A | N/A | N/A | N/A | | |
| PUD1 | PUD #1 GENERAL | N/A | N/A | N/A | N/A | | |
| STATE | STATE SCHOOL PART 1 | N/A | N/A | N/A | N/A | | |
| STATE2 | STATE SCHOOL PART 2 | N/A | N/A | N/A | N/A | | |
| | Total Tax Rate: | N/A | | | | | |
| | | | | Taxes w/Current Exemptions: | N/A | | |
| | | | | Taxes w/o Exemptions: | N/A | | |
Improvement / Building
| Improvement #1: | Residential Bldg | State Code: | 11 | 1950.0 sqft | Value: | $440,096 |
| Bathrooms (#): | 2 (FULL) | Bathrooms (#): | 1 (HALF) | | Bedrooms (#): | 2 | Exterior Wall: | SI/ST | | Floor Construction: | FRAME | Foundation: | CONPR | | Heating/Cooling: | HPUMP | Roof Cover: | COMP |
|
| | Type | Description | Class CD | Sub Class CD | Year Built | Area |
| | MA | Main Area | 4+ | 15SF | 1993 | 1130.0 |
| | MA2 | Second Floor Main Area | 4- | 15SF | 1993 | 820.0 |
| | HWPOR | House Wood Porch | 4 | * | 1993 | 210.0 |
| | HDECK | House Deck | 4 | * | 1993 | 120.0 |
| | SHED | Shed (Table Not Dep) | 3 | * | 1993 | 120.0 |
| | HDECK | House Deck | 2 | * | 1993 | 24.0 |
Sketch
Property Image
Land
| 1 | 1574A | | 4.0100 | 174675.60 | 0.00 | 0.00 | 0.00 | $56,241 | $0 |
| 2 | 5325-1373S | | 1.0000 | 43560.00 | 0.00 | 0.00 | 1.00 | $126,500 | $0 |
Roll Value History
| 2025 | N/A | N/A | N/A | N/A | N/A |
| 2024 | $440,096 | $182,741 | $0 | $622,837 | $622,837 |
| 2023 | $314,503 | $158,120 | $0 | $472,623 | $472,623 |
| 2022 | $285,912 | $147,105 | $0 | $433,017 | $433,017 |
| 2021 | $216,600 | $132,097 | $0 | $348,697 | $348,697 |
Deed and Sales History
Payout Agreement
| No payout information available.. |