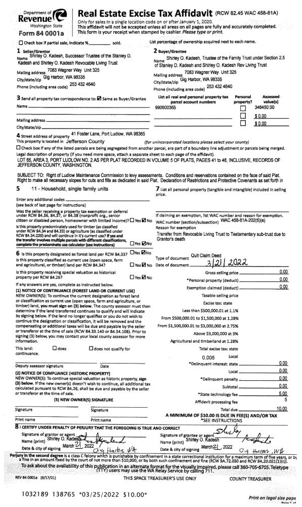
Property
Account |
| Property ID: | 10541 | Abbreviated Legal Description: | S7 T30 R1W W1/2 SW NW SE LESS PTN TAX 16 SUBJ/EASE |
| Parcel # / Geo ID: | 001074003 | Agent Code: | |
| Type: | Real | | |
| Tax Area: | 0111 - 1-50F1E1H2L1 | Land Use Code | 11 |
| Open Space: | N | DFL | N |
| Historic Property: | N | Remodel Property: | N |
| Multi-Family Redevelopment: | N | | |
| Township: | 30N | Section: | 7 |
| Range: | 1W |
Location |
| Address: | 143 LINDSEY LN PORT TOWNSEND, WA 98368 | Mapsco: | 085/018 |
| Neighborhood: | S7 T30 R1W, ROSEBURG ADD | Map ID: | |
| Neighborhood CD: | 5325 |
Owner |
| Name: | JOE D WHITE & ROBIN A RUNYAN | Owner ID: | 107270 |
| Mailing Address: | ALEXANDRIA A SANFORD 143 LINDSEY RD W PORT TOWNSEND, WA 98368-9634 | % Ownership: | 100.0000000000% |
| | | Exemptions: | |
Pay Tax Due
Select the appropriate checkbox next to the year to be paid. Multiple years may be selected.
*Convenience Fee not included
Taxes and Assessment Details
Property Tax Information as of
10/23/2025
Click on "Statement Details" to expand or collapse a tax statement.
* Please enter a valid date ** Please enter a valid date *
Statement Details |
| 2025 | 519 | STATE - STATE LEVY (SCHOOL) | $631.07 | $631.06 | $0.00 | $0.00 | $631.07 | $631.06 |
| 2025 | 519 | COUNTY - COUNTY LEVIES (CE, DD, VET, MH) | $248.17 | $248.15 | $0.00 | $0.00 | $248.17 | $248.15 |
| 2025 | 519 | CONSERVE - CONSERVATION FUTURES | $7.44 | $7.44 | $0.00 | $0.00 | $7.44 | $7.44 |
| 2025 | 519 | COROADS - COUNTY ROADS (ROADS, DIV TO CE) | $198.82 | $198.81 | $0.00 | $0.00 | $198.82 | $198.81 |
| 2025 | 519 | PORTPT - PORT DISTRICT | $101.26 | $101.26 | $0.00 | $0.00 | $101.26 | $101.26 |
| 2025 | 519 | PUD1 - PUD #1 | $16.24 | $16.24 | $0.00 | $0.00 | $16.24 | $16.24 |
| 2025 | 519 | LIB1 - LIBRARY DIST #1 | $76.92 | $76.92 | $0.00 | $0.00 | $76.92 | $76.92 |
| 2025 | 519 | HD2 - HOSP DIST #2 | $14.48 | $14.48 | $0.00 | $0.00 | $14.48 | $14.48 |
| 2025 | 519 | SD50 - SCHOOL DIST #50 | $461.20 | $461.20 | $0.00 | $0.00 | $461.20 | $461.20 |
| 2025 | 519 | FD1 - FIRE DISTRICT #1 | $327.48 | $327.47 | $0.00 | $0.00 | $327.48 | $327.47 |
| 2025 | 519 | EMS1 - FIRE DIST #1 EMS | $125.96 | $125.95 | $0.00 | $0.00 | $125.96 | $125.95 |
| 2025 | 519 | FP - DNR Forest Fire Protection Assmt | $8.50 | $8.50 | $0.00 | $0.00 | $8.50 | $8.50 |
| 2025 | 519 | FPLCA - DNR Landowner Contingency Assmt | $3.00 | $3.00 | $0.00 | $0.00 | $3.00 | $3.00 |
| 2025 | 519 | JCCD - JC Conservation District | $2.75 | $2.75 | $0.00 | $0.00 | $2.75 | $2.75 |
| 2025 | 519 | NWA - Noxious Weed Assessment | $2.75 | $2.75 | $0.00 | $0.00 | $2.75 | $2.75 |
| 2025 | 519 | OSS - On Site Septic | $21.50 | $21.50 | $0.00 | $0.00 | $21.50 | $21.50 |
| 2025 | 519 | WAT - Clean Water District | $13.00 | $13.00 | $0.00 | $0.00 | $13.00 | $13.00 |
| 2025 | 519 | FP ADMIN - FP ADMIN | $0.50 | $0.00 | $0.00 | $0.00 | $0.50 | $0.00 |
| 2025 | 519 | TOTAL: | $2261.04 | $2260.48 | $0.00 | $0.00 | $2261.04 | $2260.48 |
|
| 2025 | 519 | $2261.04 | $2260.48 | $0.00 | $0.00 | $2261.04 | $2260.48 |
Statement Details |
| 2024 | 520 | STATE - STATE LEVY (SCHOOL) | $560.18 | $560.17 | $0.00 | $0.00 | $1120.35 | $0.00 |
| 2024 | 520 | COUNTY - COUNTY LEVIES (CE, DD, VET, MH) | $239.72 | $239.69 | $0.00 | $0.00 | $479.41 | $0.00 |
| 2024 | 520 | CONSERVE - CONSERVATION FUTURES | $7.19 | $7.19 | $0.00 | $0.00 | $14.38 | $0.00 |
| 2024 | 520 | COROADS - COUNTY ROADS (ROADS, DIV TO CE) | $192.88 | $192.88 | $0.00 | $0.00 | $385.76 | $0.00 |
| 2024 | 520 | PORTPT - PORT DISTRICT | $99.01 | $99.00 | $0.00 | $0.00 | $198.01 | $0.00 |
| 2024 | 520 | PUD1 - PUD #1 | $15.75 | $15.74 | $0.00 | $0.00 | $31.49 | $0.00 |
| 2024 | 520 | LIB1 - LIBRARY DIST #1 | $74.63 | $74.62 | $0.00 | $0.00 | $149.25 | $0.00 |
| 2024 | 520 | HD2 - HOSP DIST #2 | $13.99 | $13.98 | $0.00 | $0.00 | $27.97 | $0.00 |
| 2024 | 520 | SD50 - SCHOOL DIST #50 | $453.21 | $453.20 | $0.00 | $0.00 | $906.41 | $0.00 |
| 2024 | 520 | FD1 - FIRE DISTRICT #1 | $316.95 | $316.94 | $0.00 | $0.00 | $633.89 | $0.00 |
| 2024 | 520 | EMS1 - FIRE DIST #1 EMS | $121.06 | $121.06 | $0.00 | $0.00 | $242.12 | $0.00 |
| 2024 | 520 | FP - DNR Forest Fire Protection Assmt | $8.50 | $8.50 | $0.00 | $0.00 | $17.00 | $0.00 |
| 2024 | 520 | FPLCA - DNR Landowner Contingency Assmt | $3.00 | $3.00 | $0.00 | $0.00 | $6.00 | $0.00 |
| 2024 | 520 | JCCD - JC Conservation District | $2.75 | $2.75 | $0.00 | $0.00 | $5.50 | $0.00 |
| 2024 | 520 | NWA - Noxious Weed Assessment | $2.75 | $2.75 | $0.00 | $0.00 | $5.50 | $0.00 |
| 2024 | 520 | OSS - On Site Septic | $21.00 | $21.00 | $0.00 | $0.00 | $42.00 | $0.00 |
| 2024 | 520 | WAT - Clean Water District | $12.50 | $12.50 | $0.00 | $0.00 | $25.00 | $0.00 |
| 2024 | 520 | FP ADMIN - FP ADMIN | $0.50 | $0.00 | $0.00 | $0.00 | $0.50 | $0.00 |
| 2024 | 520 | TOTAL: | $2145.57 | $2144.97 | $0.00 | $0.00 | $4290.54 | $0.00 |
|
| 2024 | 520 | $2145.57 | $2144.97 | $0.00 | $0.00 | $4290.54 | $0.00 |
Statement Details |
| 2023 | 520 | STATE - STATE LEVY (SCHOOL) | $526.13 | $526.12 | $0.00 | $0.00 | $1052.25 | $0.00 |
| 2023 | 520 | COUNTY - COUNTY LEVIES (CE, DD, VET, MH) | $229.60 | $229.58 | $0.00 | $0.00 | $459.18 | $0.00 |
| 2023 | 520 | CONSERVE - CONSERVATION FUTURES | $6.89 | $6.88 | $0.00 | $0.00 | $13.77 | $0.00 |
| 2023 | 520 | COROADS - COUNTY ROADS (ROADS, DIV TO CE) | $185.76 | $185.75 | $0.00 | $0.00 | $371.51 | $0.00 |
| 2023 | 520 | PORTPT - PORT DISTRICT | $96.72 | $96.71 | $0.00 | $0.00 | $193.43 | $0.00 |
| 2023 | 520 | PUD1 - PUD #1 | $15.22 | $15.22 | $0.00 | $0.00 | $30.44 | $0.00 |
| 2023 | 520 | LIB1 - LIBRARY DIST #1 | $71.87 | $71.86 | $0.00 | $0.00 | $143.73 | $0.00 |
| 2023 | 520 | HD2 - HOSP DIST #2 | $13.40 | $13.40 | $0.00 | $0.00 | $26.80 | $0.00 |
| 2023 | 520 | SD50 - SCHOOL DIST #50 | $417.50 | $417.48 | $0.00 | $0.00 | $834.98 | $0.00 |
| 2023 | 520 | FD1 - FIRE DISTRICT #1 | $189.14 | $189.13 | $0.00 | $0.00 | $378.27 | $0.00 |
| 2023 | 520 | EMS1 - FIRE DIST #1 EMS | $80.46 | $80.45 | $0.00 | $0.00 | $160.91 | $0.00 |
| 2023 | 520 | FP - DNR Forest Fire Protection Assmt | $8.50 | $8.50 | $0.00 | $0.00 | $17.00 | $0.00 |
| 2023 | 520 | FPLCA - DNR Landowner Contingency Assmt | $3.00 | $3.00 | $0.00 | $0.00 | $6.00 | $0.00 |
| 2023 | 520 | JCCD - JC Conservation District | $2.75 | $2.75 | $0.00 | $0.00 | $5.50 | $0.00 |
| 2023 | 520 | NWA - Noxious Weed Assessment | $2.75 | $2.75 | $0.00 | $0.00 | $5.50 | $0.00 |
| 2023 | 520 | OSS - On Site Septic | $20.50 | $20.50 | $0.00 | $0.00 | $41.00 | $0.00 |
| 2023 | 520 | WAT - Clean Water District | $12.00 | $12.00 | $0.00 | $0.00 | $24.00 | $0.00 |
| 2023 | 520 | FP ADMIN - FP ADMIN | $0.50 | $0.00 | $0.00 | $0.00 | $0.50 | $0.00 |
| 2023 | 520 | TOTAL: | $1882.69 | $1882.08 | $0.00 | $0.00 | $3764.77 | $0.00 |
|
| 2023 | 520 | $1882.69 | $1882.08 | $0.00 | $0.00 | $3764.77 | $0.00 |
Statement Details |
| 2022 | 522 | STATE - STATE LEVY (SCHOOL) | $396.99 | $396.98 | $0.00 | $0.00 | $793.97 | $0.00 |
| 2022 | 522 | COUNTY - COUNTY LEVIES (CE, DD, VET, MH) | $176.90 | $176.86 | $0.00 | $0.00 | $353.76 | $0.00 |
| 2022 | 522 | CONSERVE - CONSERVATION FUTURES | $5.31 | $5.30 | $0.00 | $0.00 | $10.61 | $0.00 |
| 2022 | 522 | COROADS - COUNTY ROADS (ROADS, DIV TO CE) | $143.77 | $143.75 | $0.00 | $0.00 | $287.52 | $0.00 |
| 2022 | 522 | PORTPT - PORT DISTRICT | $75.72 | $75.72 | $0.00 | $0.00 | $151.44 | $0.00 |
| 2022 | 522 | PUD1 - PUD #1 | $11.83 | $11.83 | $0.00 | $0.00 | $23.66 | $0.00 |
| 2022 | 522 | LIB1 - LIBRARY DIST #1 | $55.62 | $55.62 | $0.00 | $0.00 | $111.24 | $0.00 |
| 2022 | 522 | HD2 - HOSP DIST #2 | $10.33 | $10.32 | $0.00 | $0.00 | $20.65 | $0.00 |
| 2022 | 522 | SD50 - SCHOOL DIST #50 | $294.19 | $294.17 | $0.00 | $0.00 | $588.36 | $0.00 |
| 2022 | 522 | FD1 - FIRE DISTRICT #1 | $145.11 | $145.10 | $0.00 | $0.00 | $290.21 | $0.00 |
| 2022 | 522 | EMS1 - FIRE DIST #1 EMS | $61.72 | $61.72 | $0.00 | $0.00 | $123.44 | $0.00 |
| 2022 | 522 | FP - DNR Forest Fire Protection Assmt | $8.50 | $8.50 | $0.00 | $0.00 | $17.00 | $0.00 |
| 2022 | 522 | FPLCA - DNR Landowner Contingency Assmt | $3.00 | $3.00 | $0.00 | $0.00 | $6.00 | $0.00 |
| 2022 | 522 | JCCD - JC Conservation District | $2.75 | $2.75 | $0.00 | $0.00 | $5.50 | $0.00 |
| 2022 | 522 | NWA - Noxious Weed Assessment | $2.75 | $2.75 | $0.00 | $0.00 | $5.50 | $0.00 |
| 2022 | 522 | OSS - On Site Septic | $19.50 | $19.50 | $0.00 | $0.00 | $39.00 | $0.00 |
| 2022 | 522 | WAT - Clean Water District | $11.50 | $11.50 | $0.00 | $0.00 | $23.00 | $0.00 |
| 2022 | 522 | FP ADMIN - FP ADMIN | $0.50 | $0.00 | $0.00 | $0.00 | $0.50 | $0.00 |
| 2022 | 522 | TOTAL: | $1425.99 | $1425.37 | $0.00 | $0.00 | $2851.36 | $0.00 |
|
| 2022 | 522 | $1425.99 | $1425.37 | $0.00 | $0.00 | $2851.36 | $0.00 |
Values
| (+) Improvement Homesite Value: | + | $0 | |
| (+) Improvement Non-Homesite Value: | + | $288,498 | |
| (+) Land Homesite Value: | + | $0 | |
| (+) Land Non-Homesite Value: | + | $237,820 | |
| (+) Curr Use (HS): | + | $0 | $0 |
| (+) Curr Use (NHS): | + | $0 | $0 |
| | | -------------------------- | |
| (=) Market Value: | = | $526,318 | |
| (–) Productivity Loss: | – | $0 | |
| | | -------------------------- | |
| (=) Subtotal: | = | $526,318 | |
| (+) Senior Appraised Value: | + | $0 | |
| (+) Non-Senior Appraised Value: | + | $526,318 | |
| | | -------------------------- | |
| (=) Total Appraised Value: | = | $526,318 | |
| (–) Senior Exemption Loss: | – | $0 | |
| (–) Exemption Loss: | – | $0 | |
| | | -------------------------- | |
| (=) Taxable Value: | = | $526,318 | |
Taxing Jurisdiction
| Owner: | JOE D WHITE & ROBIN A RUNYAN | | |
| % Ownership: | 100.0000000000% | | |
| Total Value: | N/A | | |
| Tax Area: | 0111 - 1-50F1E1H2L1 |
| CE | COUNTY CURRENT EXPENSE | N/A | N/A | N/A | N/A | | |
| CNTYDD | DEVELOPMENTAL DISABILITIES | N/A | N/A | N/A | N/A | | |
| CNTYVET | VETERANS RELIEF | N/A | N/A | N/A | N/A | | |
| MENTAL | MENTAL HEALTH | N/A | N/A | N/A | N/A | | |
| ROADS | COUNTY ROADS | N/A | N/A | N/A | N/A | | |
| ROADSCU | COUNTY ROADS TO CUR EXP | N/A | N/A | N/A | N/A | | |
| HOSP2CASH | HOSP DIST #2 GENERAL | N/A | N/A | N/A | N/A | | |
| SCH50BOND | SCHOOL DIST #50 BOND 2016 | N/A | N/A | N/A | N/A | | |
| SCH50CP | SCHOOL DIST #50 CAP PROJ | N/A | N/A | N/A | N/A | | |
| SCH50MO | SCHOOL DIST #50 EP & O | N/A | N/A | N/A | N/A | | |
| CONSERVE | CONSERVATION FUTURES | N/A | N/A | N/A | N/A | | |
| EMS1 | FIRE DIST #1 EMS | N/A | N/A | N/A | N/A | | |
| FD1 | FIRE DIST #1 GENERAL | N/A | N/A | N/A | N/A | | |
| LIB1 | LIBRARY DIST #1 GENERAL | N/A | N/A | N/A | N/A | | |
| PORTPT | PORT OF PT GENERAL | N/A | N/A | N/A | N/A | | |
| PORTPTIDD | PORT OF PT IDD 2019 | N/A | N/A | N/A | N/A | | |
| PUD1 | PUD #1 GENERAL | N/A | N/A | N/A | N/A | | |
| STATE | STATE SCHOOL PART 1 | N/A | N/A | N/A | N/A | | |
| STATE2 | STATE SCHOOL PART 2 | N/A | N/A | N/A | N/A | | |
| | Total Tax Rate: | N/A | | | | | |
| | | | | Taxes w/Current Exemptions: | N/A | | |
| | | | | Taxes w/o Exemptions: | N/A | | |
Improvement / Building
| Improvement #1: | Manufactured Home | State Code: | 11 | 1693.0 sqft | Value: | $288,498 |
| Bathrooms (#): | 2 (FULL) | Bedrooms (#): | 3 | | Exterior Wall: | PL/T1 | Foundation: | PO&BL | | Heating/Cooling: | F/A | Roof Cover: | COMP |
|
| | Type | Description | Class CD | Sub Class CD | Year Built | Area |
| | MA | Main Area | 5- | MFH | 1994 | 1693.0 |
| | MDECK | MH Deck | 5 | * | 1994 | 492.0 |
| | SHED | Shed (Table Not Dep) | 5 | * | 2017 | 120.0 |
| | MSKIRT_WD | MH Skirting - Wood | 5 | * | 1994 | 175.0 |
| | MENCL | MH Enclosure | 5 | * | 2017 | 120.0 |
| | SHED | Shed (Table Not Dep) | 2 | * | 1994 | 640.0 |
Sketch
Property Image
Land
| 1 | 5325-1371S | | 1.0000 | 43560.00 | 0.00 | 0.00 | 1.00 | $159,500 | $0 |
| 2 | 1572A | | 3.5600 | 155073.60 | 0.00 | 0.00 | 0.00 | $78,320 | $0 |
Roll Value History
| 2025 | N/A | N/A | N/A | N/A | N/A |
| 2024 | $288,498 | $237,820 | $0 | $526,318 | $526,318 |
| 2023 | $276,604 | $207,640 | $0 | $484,244 | $484,244 |
| 2022 | $251,458 | $195,520 | $0 | $446,978 | $446,978 |
| 2021 | $132,911 | $157,465 | $0 | $290,376 | $290,376 |
Deed and Sales History
| 1 | 06/07/2022 | SWD | Statutory Warranty Deed | THOMAS M SESLAR | JOE D WHITE & ROBIN A RUNYAN | | | $521,000.00 | 139306 | |
| 2 | 05/17/2004 | SWD | Statutory Warranty Deed | BAINBRIDGE, ROBERT & DEBR | SESLAR, THOMAS M & CATHI R | 0 | 0 | $170,000.00 | 100398 | 0 |
| 3 | 12/21/1994 | QCD | Quit Claim Deed | LINDSEY, DEBRA | BAINBRIDGE, ROBERT/DEBRA | 0 | 0 | $0.00 | 75849 | 0 |
Payout Agreement
| No payout information available.. |