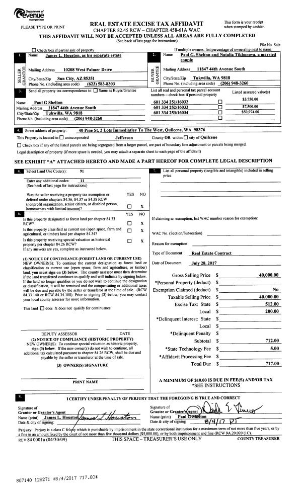
Property
Account |
| Property ID: | 10595 | Abbreviated Legal Description: | THE AL WEISENBURGER SHORT PLAT LOT 2 W/EASE |
| Parcel # / Geo ID: | 001083011 | Agent Code: | |
| Type: | Real | | |
| Tax Area: | 0111 - 1-50F1E1H2L1 | Land Use Code | 95 |
| Open Space: | Y | DFL | N |
| Historic Property: | N | Remodel Property: | N |
| Multi-Family Redevelopment: | N | | |
| Township: | 30N | Section: | 8 |
| Range: | 1W |
Location |
| Address: | 461 HIDDEN TRAILS RD PORT TOWNSEND, WA 98368 | Mapsco: | 139/008 |
| Neighborhood: | S8 & 9 T30 R1W, BRIGGS, SYNDICATE, HOMESTEAD, KOZELISKY | Map ID: | |
| Neighborhood CD: | 5330 |
Owner |
| Name: | JAN PIERSON | Owner ID: | 24848 |
| Mailing Address: | PO BOX 1153 PORT TOWNSEND, WA 98368-0953 | % Ownership: | 100.0000000000% |
| | | Exemptions: | |
Pay Tax Due
There is currently No Amount Due on this property.
Taxes and Assessment Details
Property Tax Information as of
10/23/2025
Click on "Statement Details" to expand or collapse a tax statement.
* Please enter a valid date ** Please enter a valid date *
Statement Details |
| 2025 | 572 | STATE - STATE LEVY (SCHOOL) | $588.68 | $588.67 | $0.00 | $0.00 | $1177.35 | $0.00 |
| 2025 | 572 | COUNTY - COUNTY LEVIES (CE, DD, VET, MH) | $231.50 | $231.48 | $0.00 | $0.00 | $462.98 | $0.00 |
| 2025 | 572 | CONSERVE - CONSERVATION FUTURES | $6.94 | $6.94 | $0.00 | $0.00 | $13.88 | $0.00 |
| 2025 | 572 | COROADS - COUNTY ROADS (ROADS, DIV TO CE) | $185.46 | $185.46 | $0.00 | $0.00 | $370.92 | $0.00 |
| 2025 | 572 | PORTPT - PORT DISTRICT | $94.47 | $94.46 | $0.00 | $0.00 | $188.93 | $0.00 |
| 2025 | 572 | PUD1 - PUD #1 | $15.15 | $15.15 | $0.00 | $0.00 | $30.30 | $0.00 |
| 2025 | 572 | LIB1 - LIBRARY DIST #1 | $71.76 | $71.75 | $0.00 | $0.00 | $143.51 | $0.00 |
| 2025 | 572 | HD2 - HOSP DIST #2 | $13.51 | $13.50 | $0.00 | $0.00 | $27.01 | $0.00 |
| 2025 | 572 | SD50 - SCHOOL DIST #50 | $430.23 | $430.22 | $0.00 | $0.00 | $860.45 | $0.00 |
| 2025 | 572 | FD1 - FIRE DISTRICT #1 | $305.48 | $305.48 | $0.00 | $0.00 | $610.96 | $0.00 |
| 2025 | 572 | EMS1 - FIRE DIST #1 EMS | $117.50 | $117.49 | $0.00 | $0.00 | $234.99 | $0.00 |
| 2025 | 572 | FPLCA - DNR Landowner Contingency Assmt | $3.00 | $3.00 | $0.00 | $0.00 | $6.00 | $0.00 |
| 2025 | 572 | NWA - Noxious Weed Assessment | $0.25 | $0.24 | $0.00 | $0.00 | $0.49 | $0.00 |
| 2025 | 572 | OSS - On Site Septic | $21.50 | $21.50 | $0.00 | $0.00 | $43.00 | $0.00 |
| 2025 | 572 | WAT - Clean Water District | $13.00 | $13.00 | $0.00 | $0.00 | $26.00 | $0.00 |
| 2025 | 572 | TOTAL: | $2098.43 | $2098.34 | $0.00 | $0.00 | $4196.77 | $0.00 |
|
| 2025 | 572 | $2098.43 | $2098.34 | $0.00 | $0.00 | $4196.77 | $0.00 |
Statement Details |
| 2024 | 573 | STATE - STATE LEVY (SCHOOL) | $514.16 | $514.15 | $0.00 | $0.00 | $1028.31 | $0.00 |
| 2024 | 573 | COUNTY - COUNTY LEVIES (CE, DD, VET, MH) | $220.01 | $220.01 | $0.00 | $0.00 | $440.02 | $0.00 |
| 2024 | 573 | CONSERVE - CONSERVATION FUTURES | $6.60 | $6.59 | $0.00 | $0.00 | $13.19 | $0.00 |
| 2024 | 573 | COROADS - COUNTY ROADS (ROADS, DIV TO CE) | $177.04 | $177.04 | $0.00 | $0.00 | $354.08 | $0.00 |
| 2024 | 573 | PORTPT - PORT DISTRICT | $90.88 | $90.87 | $0.00 | $0.00 | $181.75 | $0.00 |
| 2024 | 573 | PUD1 - PUD #1 | $14.45 | $14.45 | $0.00 | $0.00 | $28.90 | $0.00 |
| 2024 | 573 | LIB1 - LIBRARY DIST #1 | $68.50 | $68.49 | $0.00 | $0.00 | $136.99 | $0.00 |
| 2024 | 573 | HD2 - HOSP DIST #2 | $12.84 | $12.83 | $0.00 | $0.00 | $25.67 | $0.00 |
| 2024 | 573 | SD50 - SCHOOL DIST #50 | $415.99 | $415.96 | $0.00 | $0.00 | $831.95 | $0.00 |
| 2024 | 573 | FD1 - FIRE DISTRICT #1 | $290.91 | $290.91 | $0.00 | $0.00 | $581.82 | $0.00 |
| 2024 | 573 | EMS1 - FIRE DIST #1 EMS | $111.12 | $111.11 | $0.00 | $0.00 | $222.23 | $0.00 |
| 2024 | 573 | FPLCA - DNR Landowner Contingency Assmt | $3.00 | $3.00 | $0.00 | $0.00 | $6.00 | $0.00 |
| 2024 | 573 | NWA - Noxious Weed Assessment | $0.25 | $0.24 | $0.00 | $0.00 | $0.49 | $0.00 |
| 2024 | 573 | OSS - On Site Septic | $21.00 | $21.00 | $0.00 | $0.00 | $42.00 | $0.00 |
| 2024 | 573 | WAT - Clean Water District | $12.50 | $12.50 | $0.00 | $0.00 | $25.00 | $0.00 |
| 2024 | 573 | TOTAL: | $1959.25 | $1959.15 | $0.00 | $0.00 | $3918.40 | $0.00 |
|
| 2024 | 573 | $1959.25 | $1959.15 | $0.00 | $0.00 | $3918.40 | $0.00 |
Statement Details |
| 2023 | 573 | STATE - STATE LEVY (SCHOOL) | $477.23 | $477.22 | $0.00 | $0.00 | $954.45 | $0.00 |
| 2023 | 573 | COUNTY - COUNTY LEVIES (CE, DD, VET, MH) | $208.25 | $208.23 | $0.00 | $0.00 | $416.48 | $0.00 |
| 2023 | 573 | CONSERVE - CONSERVATION FUTURES | $6.25 | $6.24 | $0.00 | $0.00 | $12.49 | $0.00 |
| 2023 | 573 | COROADS - COUNTY ROADS (ROADS, DIV TO CE) | $168.49 | $168.48 | $0.00 | $0.00 | $336.97 | $0.00 |
| 2023 | 573 | PORTPT - PORT DISTRICT | $87.73 | $87.72 | $0.00 | $0.00 | $175.45 | $0.00 |
| 2023 | 573 | PUD1 - PUD #1 | $13.81 | $13.80 | $0.00 | $0.00 | $27.61 | $0.00 |
| 2023 | 573 | LIB1 - LIBRARY DIST #1 | $65.19 | $65.18 | $0.00 | $0.00 | $130.37 | $0.00 |
| 2023 | 573 | HD2 - HOSP DIST #2 | $12.15 | $12.15 | $0.00 | $0.00 | $24.30 | $0.00 |
| 2023 | 573 | SD50 - SCHOOL DIST #50 | $378.69 | $378.68 | $0.00 | $0.00 | $757.37 | $0.00 |
| 2023 | 573 | FD1 - FIRE DISTRICT #1 | $171.56 | $171.55 | $0.00 | $0.00 | $343.11 | $0.00 |
| 2023 | 573 | EMS1 - FIRE DIST #1 EMS | $72.98 | $72.97 | $0.00 | $0.00 | $145.95 | $0.00 |
| 2023 | 573 | FPLCA - DNR Landowner Contingency Assmt | $3.00 | $3.00 | $0.00 | $0.00 | $6.00 | $0.00 |
| 2023 | 573 | NWA - Noxious Weed Assessment | $0.25 | $0.24 | $0.00 | $0.00 | $0.49 | $0.00 |
| 2023 | 573 | OSS - On Site Septic | $20.50 | $20.50 | $0.00 | $0.00 | $41.00 | $0.00 |
| 2023 | 573 | WAT - Clean Water District | $12.00 | $12.00 | $0.00 | $0.00 | $24.00 | $0.00 |
| 2023 | 573 | TOTAL: | $1698.08 | $1697.96 | $0.00 | $0.00 | $3396.04 | $0.00 |
|
| 2023 | 573 | $1698.08 | $1697.96 | $0.00 | $0.00 | $3396.04 | $0.00 |
Statement Details |
| 2022 | 575 | STATE - STATE LEVY (SCHOOL) | $448.57 | $448.56 | $0.00 | $0.00 | $897.13 | $0.00 |
| 2022 | 575 | COUNTY - COUNTY LEVIES (CE, DD, VET, MH) | $199.88 | $199.85 | $0.00 | $0.00 | $399.73 | $0.00 |
| 2022 | 575 | CONSERVE - CONSERVATION FUTURES | $6.00 | $5.99 | $0.00 | $0.00 | $11.99 | $0.00 |
| 2022 | 575 | COROADS - COUNTY ROADS (ROADS, DIV TO CE) | $162.45 | $162.43 | $0.00 | $0.00 | $324.88 | $0.00 |
| 2022 | 575 | PORTPT - PORT DISTRICT | $85.56 | $85.56 | $0.00 | $0.00 | $171.12 | $0.00 |
| 2022 | 575 | PUD1 - PUD #1 | $13.37 | $13.36 | $0.00 | $0.00 | $26.73 | $0.00 |
| 2022 | 575 | LIB1 - LIBRARY DIST #1 | $62.85 | $62.84 | $0.00 | $0.00 | $125.69 | $0.00 |
| 2022 | 575 | HD2 - HOSP DIST #2 | $11.67 | $11.66 | $0.00 | $0.00 | $23.33 | $0.00 |
| 2022 | 575 | SD50 - SCHOOL DIST #50 | $332.42 | $332.40 | $0.00 | $0.00 | $664.82 | $0.00 |
| 2022 | 575 | FD1 - FIRE DISTRICT #1 | $163.96 | $163.96 | $0.00 | $0.00 | $327.92 | $0.00 |
| 2022 | 575 | EMS1 - FIRE DIST #1 EMS | $69.74 | $69.74 | $0.00 | $0.00 | $139.48 | $0.00 |
| 2022 | 575 | FPLCA - DNR Landowner Contingency Assmt | $3.00 | $3.00 | $0.00 | $0.00 | $6.00 | $0.00 |
| 2022 | 575 | NWA - Noxious Weed Assessment | $0.25 | $0.24 | $0.00 | $0.00 | $0.49 | $0.00 |
| 2022 | 575 | OSS - On Site Septic | $19.50 | $19.50 | $0.00 | $0.00 | $39.00 | $0.00 |
| 2022 | 575 | WAT - Clean Water District | $11.50 | $11.50 | $0.00 | $0.00 | $23.00 | $0.00 |
| 2022 | 575 | TOTAL: | $1590.72 | $1590.59 | $0.00 | $0.00 | $3181.31 | $0.00 |
|
| 2022 | 575 | $1590.72 | $1590.59 | $0.00 | $0.00 | $3181.31 | $0.00 |
Values
| (+) Improvement Homesite Value: | + | $0 | |
| (+) Improvement Non-Homesite Value: | + | $331,316 | |
| (+) Land Homesite Value: | + | $0 | |
| (+) Land Non-Homesite Value: | + | $159,500 | |
| (+) Curr Use (HS): | + | $0 | $0 |
| (+) Curr Use (NHS): | + | $31,218 | $151 |
| | | -------------------------- | |
| (=) Market Value: | = | $522,034 | |
| (–) Productivity Loss: | – | $31,067 | |
| | | -------------------------- | |
| (=) Subtotal: | = | $490,967 | |
| (+) Senior Appraised Value: | + | $0 | |
| (+) Non-Senior Appraised Value: | + | $490,967 | |
| | | -------------------------- | |
| (=) Total Appraised Value: | = | $490,967 | |
| (–) Senior Exemption Loss: | – | $0 | |
| (–) Exemption Loss: | – | $0 | |
| | | -------------------------- | |
| (=) Taxable Value: | = | $490,967 | |
Taxing Jurisdiction
| Owner: | JAN PIERSON | | |
| % Ownership: | 100.0000000000% | | |
| Total Value: | N/A | | |
| Tax Area: | 0111 - 1-50F1E1H2L1 |
| CE | COUNTY CURRENT EXPENSE | N/A | N/A | N/A | N/A | | |
| CNTYDD | DEVELOPMENTAL DISABILITIES | N/A | N/A | N/A | N/A | | |
| CNTYVET | VETERANS RELIEF | N/A | N/A | N/A | N/A | | |
| MENTAL | MENTAL HEALTH | N/A | N/A | N/A | N/A | | |
| ROADS | COUNTY ROADS | N/A | N/A | N/A | N/A | | |
| ROADSCU | COUNTY ROADS TO CUR EXP | N/A | N/A | N/A | N/A | | |
| HOSP2CASH | HOSP DIST #2 GENERAL | N/A | N/A | N/A | N/A | | |
| SCH50BOND | SCHOOL DIST #50 BOND 2016 | N/A | N/A | N/A | N/A | | |
| SCH50CP | SCHOOL DIST #50 CAP PROJ | N/A | N/A | N/A | N/A | | |
| SCH50MO | SCHOOL DIST #50 EP & O | N/A | N/A | N/A | N/A | | |
| CONSERVE | CONSERVATION FUTURES | N/A | N/A | N/A | N/A | | |
| EMS1 | FIRE DIST #1 EMS | N/A | N/A | N/A | N/A | | |
| FD1 | FIRE DIST #1 GENERAL | N/A | N/A | N/A | N/A | | |
| LIB1 | LIBRARY DIST #1 GENERAL | N/A | N/A | N/A | N/A | | |
| PORTPT | PORT OF PT GENERAL | N/A | N/A | N/A | N/A | | |
| PORTPTIDD | PORT OF PT IDD 2019 | N/A | N/A | N/A | N/A | | |
| PUD1 | PUD #1 GENERAL | N/A | N/A | N/A | N/A | | |
| STATE | STATE SCHOOL PART 1 | N/A | N/A | N/A | N/A | | |
| STATE2 | STATE SCHOOL PART 2 | N/A | N/A | N/A | N/A | | |
| | Total Tax Rate: | N/A | | | | | |
| | | | | Taxes w/Current Exemptions: | N/A | | |
| | | | | Taxes w/o Exemptions: | N/A | | |
Improvement / Building
| Improvement #1: | Residential Bldg | State Code: | 81 | 1624.0 sqft | Value: | $331,316 |
| Bathrooms (#): | 2 (FULL) | Bedrooms (#): | 2 | | Exterior Wall: | SI/ST | Fireplace: | WD ST-GOOD | | Floor Construction: | FRAME | Foundation: | CONPR | | Heating/Cooling: | ELBB | Roof Cover: | BLTUP |
|
| | Type | Description | Class CD | Sub Class CD | Year Built | Area |
| | MA | Main Area | 3+ | 15SF | 2009 | 899.0 |
| | MA2 | Second Floor Main Area | 3+ | 15SF | 2009 | 725.0 |
| | HDECK | House Deck | 3 | * | 2009 | 480.0 |
| | GDET | Detached Garage | 2 | 15SF | 2009 | 900.0 |
| | CARPTN | Carport W/O Floor | 3 | * | 2009 | 276.0 |
| | OTHER | Other | 3 | * | 2009 | 0.0 |
Sketch
Property Image
Land
| 1 | 5330-1371S | | 1.0000 | 43560.00 | 0.00 | 0.00 | 1.00 | $159,500 | $0 |
| 2 | 5330-1571A | | 1.2900 | 56192.40 | 0.00 | 0.00 | 0.00 | $31,218 | $151 |
Roll Value History
| 2025 | N/A | N/A | N/A | N/A | N/A |
| 2024 | $331,316 | $190,718 | $151 | $490,967 | $490,967 |
| 2023 | $297,316 | $176,799 | $148 | $444,464 | $444,464 |
| 2022 | $270,287 | $160,800 | $144 | $405,431 | $405,431 |
| 2021 | $204,763 | $139,590 | $144 | $328,107 | $328,107 |
Deed and Sales History
| 1 | 09/29/1997 | QCD | Quit Claim Deed | RYAN, JUNE FRANCES | PIERSON, JAN | 0 | 0 | $0.00 | 82874 | 0 |
Payout Agreement
| No payout information available.. |