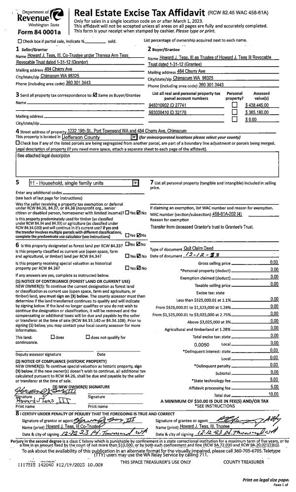
Property
Account |
| Property ID: | 10609 | Abbreviated Legal Description: | NORCUTT SHORT PLAT LOT 1 |
| Parcel # / Geo ID: | 001084014 | Agent Code: | |
| Type: | Real | | |
| Tax Area: | 0111 - 1-50F1E1H2L1 | Land Use Code | 11 |
| Open Space: | N | DFL | N |
| Historic Property: | N | Remodel Property: | N |
| Multi-Family Redevelopment: | N | | |
| Township: | 30N | Section: | 8 |
| Range: | 1W |
Location |
| Address: | 141 HIDDEN TRAILS RD PORT TOWNSEND, WA 98368 | Mapsco: | 134/020 |
| Neighborhood: | S8 & 9 T30 R1W, BRIGGS, SYNDICATE, HOMESTEAD, KOZELISKY | Map ID: | |
| Neighborhood CD: | 5330 |
Owner |
| Name: | JAN PIERSON | Owner ID: | 24848 |
| Mailing Address: | PO BOX 1153 PORT TOWNSEND, WA 98368-0953 | % Ownership: | 100.0000000000% |
| | | Exemptions: | |
Pay Tax Due
There is currently No Amount Due on this property.
Taxes and Assessment Details
Property Tax Information as of
10/23/2025
Click on "Statement Details" to expand or collapse a tax statement.
* Please enter a valid date ** Please enter a valid date *
Statement Details |
| 2025 | 586 | STATE - STATE LEVY (SCHOOL) | $339.58 | $339.57 | $0.00 | $0.00 | $679.15 | $0.00 |
| 2025 | 586 | COUNTY - COUNTY LEVIES (CE, DD, VET, MH) | $133.55 | $133.52 | $0.00 | $0.00 | $267.07 | $0.00 |
| 2025 | 586 | CONSERVE - CONSERVATION FUTURES | $4.01 | $4.00 | $0.00 | $0.00 | $8.01 | $0.00 |
| 2025 | 586 | COROADS - COUNTY ROADS (ROADS, DIV TO CE) | $106.99 | $106.98 | $0.00 | $0.00 | $213.97 | $0.00 |
| 2025 | 586 | PORTPT - PORT DISTRICT | $54.49 | $54.49 | $0.00 | $0.00 | $108.98 | $0.00 |
| 2025 | 586 | PUD1 - PUD #1 | $8.74 | $8.74 | $0.00 | $0.00 | $17.48 | $0.00 |
| 2025 | 586 | LIB1 - LIBRARY DIST #1 | $41.39 | $41.39 | $0.00 | $0.00 | $82.78 | $0.00 |
| 2025 | 586 | HD2 - HOSP DIST #2 | $7.79 | $7.79 | $0.00 | $0.00 | $15.58 | $0.00 |
| 2025 | 586 | SD50 - SCHOOL DIST #50 | $248.19 | $248.16 | $0.00 | $0.00 | $496.35 | $0.00 |
| 2025 | 586 | FD1 - FIRE DISTRICT #1 | $176.22 | $176.21 | $0.00 | $0.00 | $352.43 | $0.00 |
| 2025 | 586 | EMS1 - FIRE DIST #1 EMS | $67.78 | $67.77 | $0.00 | $0.00 | $135.55 | $0.00 |
| 2025 | 586 | FPLCA - DNR Landowner Contingency Assmt | $3.00 | $3.00 | $0.00 | $0.00 | $6.00 | $0.00 |
| 2025 | 586 | JCCD - JC Conservation District | $2.55 | $2.55 | $0.00 | $0.00 | $5.10 | $0.00 |
| 2025 | 586 | NWA - Noxious Weed Assessment | $2.15 | $2.15 | $0.00 | $0.00 | $4.30 | $0.00 |
| 2025 | 586 | OSS - On Site Septic | $21.50 | $21.50 | $0.00 | $0.00 | $43.00 | $0.00 |
| 2025 | 586 | WAT - Clean Water District | $13.00 | $13.00 | $0.00 | $0.00 | $26.00 | $0.00 |
| 2025 | 586 | TOTAL: | $1230.93 | $1230.82 | $0.00 | $0.00 | $2461.75 | $0.00 |
|
| 2025 | 586 | $1230.93 | $1230.82 | $0.00 | $0.00 | $2461.75 | $0.00 |
Statement Details |
| 2024 | 587 | STATE - STATE LEVY (SCHOOL) | $289.23 | $289.23 | $0.00 | $0.00 | $578.46 | $0.00 |
| 2024 | 587 | COUNTY - COUNTY LEVIES (CE, DD, VET, MH) | $123.77 | $123.77 | $0.00 | $0.00 | $247.54 | $0.00 |
| 2024 | 587 | CONSERVE - CONSERVATION FUTURES | $3.71 | $3.71 | $0.00 | $0.00 | $7.42 | $0.00 |
| 2024 | 587 | COROADS - COUNTY ROADS (ROADS, DIV TO CE) | $99.60 | $99.58 | $0.00 | $0.00 | $199.18 | $0.00 |
| 2024 | 587 | PORTPT - PORT DISTRICT | $51.12 | $51.12 | $0.00 | $0.00 | $102.24 | $0.00 |
| 2024 | 587 | PUD1 - PUD #1 | $8.13 | $8.13 | $0.00 | $0.00 | $16.26 | $0.00 |
| 2024 | 587 | LIB1 - LIBRARY DIST #1 | $38.53 | $38.53 | $0.00 | $0.00 | $77.06 | $0.00 |
| 2024 | 587 | HD2 - HOSP DIST #2 | $7.22 | $7.22 | $0.00 | $0.00 | $14.44 | $0.00 |
| 2024 | 587 | SD50 - SCHOOL DIST #50 | $234.00 | $234.00 | $0.00 | $0.00 | $468.00 | $0.00 |
| 2024 | 587 | FD1 - FIRE DISTRICT #1 | $163.65 | $163.64 | $0.00 | $0.00 | $327.29 | $0.00 |
| 2024 | 587 | EMS1 - FIRE DIST #1 EMS | $62.51 | $62.50 | $0.00 | $0.00 | $125.01 | $0.00 |
| 2024 | 587 | FPLCA - DNR Landowner Contingency Assmt | $3.00 | $3.00 | $0.00 | $0.00 | $6.00 | $0.00 |
| 2024 | 587 | JCCD - JC Conservation District | $2.55 | $2.55 | $0.00 | $0.00 | $5.10 | $0.00 |
| 2024 | 587 | NWA - Noxious Weed Assessment | $2.15 | $2.15 | $0.00 | $0.00 | $4.30 | $0.00 |
| 2024 | 587 | OSS - On Site Septic | $21.00 | $21.00 | $0.00 | $0.00 | $42.00 | $0.00 |
| 2024 | 587 | WAT - Clean Water District | $12.50 | $12.50 | $0.00 | $0.00 | $25.00 | $0.00 |
| 2024 | 587 | TOTAL: | $1122.67 | $1122.63 | $0.00 | $0.00 | $2245.30 | $0.00 |
|
| 2024 | 587 | $1122.67 | $1122.63 | $0.00 | $0.00 | $2245.30 | $0.00 |
Statement Details |
| 2023 | 587 | STATE - STATE LEVY (SCHOOL) | $267.62 | $267.61 | $0.00 | $0.00 | $535.23 | $0.00 |
| 2023 | 587 | COUNTY - COUNTY LEVIES (CE, DD, VET, MH) | $116.79 | $116.77 | $0.00 | $0.00 | $233.56 | $0.00 |
| 2023 | 587 | CONSERVE - CONSERVATION FUTURES | $3.50 | $3.50 | $0.00 | $0.00 | $7.00 | $0.00 |
| 2023 | 587 | COROADS - COUNTY ROADS (ROADS, DIV TO CE) | $94.49 | $94.47 | $0.00 | $0.00 | $188.96 | $0.00 |
| 2023 | 587 | PORTPT - PORT DISTRICT | $49.20 | $49.19 | $0.00 | $0.00 | $98.39 | $0.00 |
| 2023 | 587 | PUD1 - PUD #1 | $7.74 | $7.74 | $0.00 | $0.00 | $15.48 | $0.00 |
| 2023 | 587 | LIB1 - LIBRARY DIST #1 | $36.56 | $36.55 | $0.00 | $0.00 | $73.11 | $0.00 |
| 2023 | 587 | HD2 - HOSP DIST #2 | $6.82 | $6.81 | $0.00 | $0.00 | $13.63 | $0.00 |
| 2023 | 587 | SD50 - SCHOOL DIST #50 | $212.36 | $212.35 | $0.00 | $0.00 | $424.71 | $0.00 |
| 2023 | 587 | FD1 - FIRE DISTRICT #1 | $96.20 | $96.20 | $0.00 | $0.00 | $192.40 | $0.00 |
| 2023 | 587 | EMS1 - FIRE DIST #1 EMS | $40.93 | $40.92 | $0.00 | $0.00 | $81.85 | $0.00 |
| 2023 | 587 | FPLCA - DNR Landowner Contingency Assmt | $3.00 | $3.00 | $0.00 | $0.00 | $6.00 | $0.00 |
| 2023 | 587 | JCCD - JC Conservation District | $2.55 | $2.55 | $0.00 | $0.00 | $5.10 | $0.00 |
| 2023 | 587 | NWA - Noxious Weed Assessment | $2.15 | $2.15 | $0.00 | $0.00 | $4.30 | $0.00 |
| 2023 | 587 | OSS - On Site Septic | $20.50 | $20.50 | $0.00 | $0.00 | $41.00 | $0.00 |
| 2023 | 587 | WAT - Clean Water District | $12.00 | $12.00 | $0.00 | $0.00 | $24.00 | $0.00 |
| 2023 | 587 | TOTAL: | $972.41 | $972.31 | $0.00 | $0.00 | $1944.72 | $0.00 |
|
| 2023 | 587 | $972.41 | $972.31 | $0.00 | $0.00 | $1944.72 | $0.00 |
Statement Details |
| 2022 | 589 | STATE - STATE LEVY (SCHOOL) | $257.39 | $257.39 | $0.00 | $0.00 | $514.78 | $0.00 |
| 2022 | 589 | COUNTY - COUNTY LEVIES (CE, DD, VET, MH) | $114.68 | $114.68 | $0.00 | $0.00 | $229.36 | $0.00 |
| 2022 | 589 | CONSERVE - CONSERVATION FUTURES | $3.44 | $3.44 | $0.00 | $0.00 | $6.88 | $0.00 |
| 2022 | 589 | COROADS - COUNTY ROADS (ROADS, DIV TO CE) | $93.22 | $93.20 | $0.00 | $0.00 | $186.42 | $0.00 |
| 2022 | 589 | PORTPT - PORT DISTRICT | $49.10 | $49.09 | $0.00 | $0.00 | $98.19 | $0.00 |
| 2022 | 589 | PUD1 - PUD #1 | $7.67 | $7.67 | $0.00 | $0.00 | $15.34 | $0.00 |
| 2022 | 589 | LIB1 - LIBRARY DIST #1 | $36.06 | $36.06 | $0.00 | $0.00 | $72.12 | $0.00 |
| 2022 | 589 | HD2 - HOSP DIST #2 | $6.70 | $6.69 | $0.00 | $0.00 | $13.39 | $0.00 |
| 2022 | 589 | SD50 - SCHOOL DIST #50 | $190.74 | $190.74 | $0.00 | $0.00 | $381.48 | $0.00 |
| 2022 | 589 | FD1 - FIRE DISTRICT #1 | $94.08 | $94.08 | $0.00 | $0.00 | $188.16 | $0.00 |
| 2022 | 589 | EMS1 - FIRE DIST #1 EMS | $40.02 | $40.02 | $0.00 | $0.00 | $80.04 | $0.00 |
| 2022 | 589 | FPLCA - DNR Landowner Contingency Assmt | $3.00 | $3.00 | $0.00 | $0.00 | $6.00 | $0.00 |
| 2022 | 589 | JCCD - JC Conservation District | $2.55 | $2.55 | $0.00 | $0.00 | $5.10 | $0.00 |
| 2022 | 589 | NWA - Noxious Weed Assessment | $2.15 | $2.15 | $0.00 | $0.00 | $4.30 | $0.00 |
| 2022 | 589 | OSS - On Site Septic | $19.50 | $19.50 | $0.00 | $0.00 | $39.00 | $0.00 |
| 2022 | 589 | WAT - Clean Water District | $11.50 | $11.50 | $0.00 | $0.00 | $23.00 | $0.00 |
| 2022 | 589 | TOTAL: | $931.80 | $931.76 | $0.00 | $0.00 | $1863.56 | $0.00 |
|
| 2022 | 589 | $931.80 | $931.76 | $0.00 | $0.00 | $1863.56 | $0.00 |
Values
| (+) Improvement Homesite Value: | + | $0 | |
| (+) Improvement Non-Homesite Value: | + | $155,334 | |
| (+) Land Homesite Value: | + | $0 | |
| (+) Land Non-Homesite Value: | + | $127,875 | |
| (+) Curr Use (HS): | + | $0 | $0 |
| (+) Curr Use (NHS): | + | $0 | $0 |
| | | -------------------------- | |
| (=) Market Value: | = | $283,209 | |
| (–) Productivity Loss: | – | $0 | |
| | | -------------------------- | |
| (=) Subtotal: | = | $283,209 | |
| (+) Senior Appraised Value: | + | $0 | |
| (+) Non-Senior Appraised Value: | + | $283,209 | |
| | | -------------------------- | |
| (=) Total Appraised Value: | = | $283,209 | |
| (–) Senior Exemption Loss: | – | $0 | |
| (–) Exemption Loss: | – | $0 | |
| | | -------------------------- | |
| (=) Taxable Value: | = | $283,209 | |
Taxing Jurisdiction
| Owner: | JAN PIERSON | | |
| % Ownership: | 100.0000000000% | | |
| Total Value: | N/A | | |
| Tax Area: | 0111 - 1-50F1E1H2L1 |
| CE | COUNTY CURRENT EXPENSE | N/A | N/A | N/A | N/A | | |
| CNTYDD | DEVELOPMENTAL DISABILITIES | N/A | N/A | N/A | N/A | | |
| CNTYVET | VETERANS RELIEF | N/A | N/A | N/A | N/A | | |
| MENTAL | MENTAL HEALTH | N/A | N/A | N/A | N/A | | |
| ROADS | COUNTY ROADS | N/A | N/A | N/A | N/A | | |
| ROADSCU | COUNTY ROADS TO CUR EXP | N/A | N/A | N/A | N/A | | |
| HOSP2CASH | HOSP DIST #2 GENERAL | N/A | N/A | N/A | N/A | | |
| SCH50BOND | SCHOOL DIST #50 BOND 2016 | N/A | N/A | N/A | N/A | | |
| SCH50CP | SCHOOL DIST #50 CAP PROJ | N/A | N/A | N/A | N/A | | |
| SCH50MO | SCHOOL DIST #50 EP & O | N/A | N/A | N/A | N/A | | |
| CONSERVE | CONSERVATION FUTURES | N/A | N/A | N/A | N/A | | |
| EMS1 | FIRE DIST #1 EMS | N/A | N/A | N/A | N/A | | |
| FD1 | FIRE DIST #1 GENERAL | N/A | N/A | N/A | N/A | | |
| LIB1 | LIBRARY DIST #1 GENERAL | N/A | N/A | N/A | N/A | | |
| PORTPT | PORT OF PT GENERAL | N/A | N/A | N/A | N/A | | |
| PORTPTIDD | PORT OF PT IDD 2019 | N/A | N/A | N/A | N/A | | |
| PUD1 | PUD #1 GENERAL | N/A | N/A | N/A | N/A | | |
| STATE | STATE SCHOOL PART 1 | N/A | N/A | N/A | N/A | | |
| STATE2 | STATE SCHOOL PART 2 | N/A | N/A | N/A | N/A | | |
| | Total Tax Rate: | N/A | | | | | |
| | | | | Taxes w/Current Exemptions: | N/A | | |
| | | | | Taxes w/o Exemptions: | N/A | | |
Improvement / Building
| Improvement #1: | Manufactured Home | State Code: | 11 | 1296.0 sqft | Value: | $155,334 |
| Bathrooms (#): | 2 (FULL) | Bedrooms (#): | 2 | | Exterior Wall: | PL/T1 | Fireplace: | WD ST-AVG | | Foundation: | PO&BL | Heating/Cooling: | F/A | | Roof Cover: | COMP |   |   |
|
| | Type | Description | Class CD | Sub Class CD | Year Built | Area |
| | MA | Main Area | 3+ | MDBL | 1989 | 1296.0 |
| | MWPOR | MH Wood Porch | 3 | * | 1989 | 48.0 |
| | MDECK | MH Deck | 3 | * | 1989 | 400.0 |
| | CARPTN | Carport W/O Floor | 3 | * | 1989 | 400.0 |
| | MSKIRT_WD | MH Skirting - Wood | 3 | * | 1989 | 150.0 |
| | SHED | Shed (Table Not Dep) | 2 | * | 1989 | 77.0 |
| | SHED | Shed (Table Not Dep) | 5 | * | 1989 | 192.0 |
Sketch
Property Image
Land
| 1 | 5330-1371S | | 1.0000 | 43560.00 | 0.00 | 0.00 | 1.00 | $127,875 | $0 |
Roll Value History
| 2025 | N/A | N/A | N/A | N/A | N/A |
| 2024 | $155,334 | $127,875 | $0 | $283,209 | $283,209 |
| 2023 | $133,214 | $116,813 | $0 | $250,027 | $250,027 |
| 2022 | $121,104 | $106,250 | $0 | $227,354 | $227,354 |
| 2021 | $91,745 | $96,525 | $0 | $188,270 | $188,270 |
Deed and Sales History
| 1 | 03/11/2002 | SWD | Statutory Warranty Deed | MCKENZIE, BRIAN T/SUSAN H | PIERSON, JAN | 0 | 0 | $96,000.00 | 94204 | 0 |
| 2 | 10/22/1998 | SWD | Statutory Warranty Deed | MCKENZIE, ELDEN D/SHARON | MCKENZIE, BRIAN T/SUSAN HOPE | 0 | 0 | $88,000.00 | 85569 | 0 |
| 3 | 02/27/1996 | QCD | Quit Claim Deed | NORCUTT, M L & D W/ANKERB | MCKENZIE, ELDEN D | 0 | 0 | $0.00 | 78950 | 0 |
Payout Agreement
| No payout information available.. |