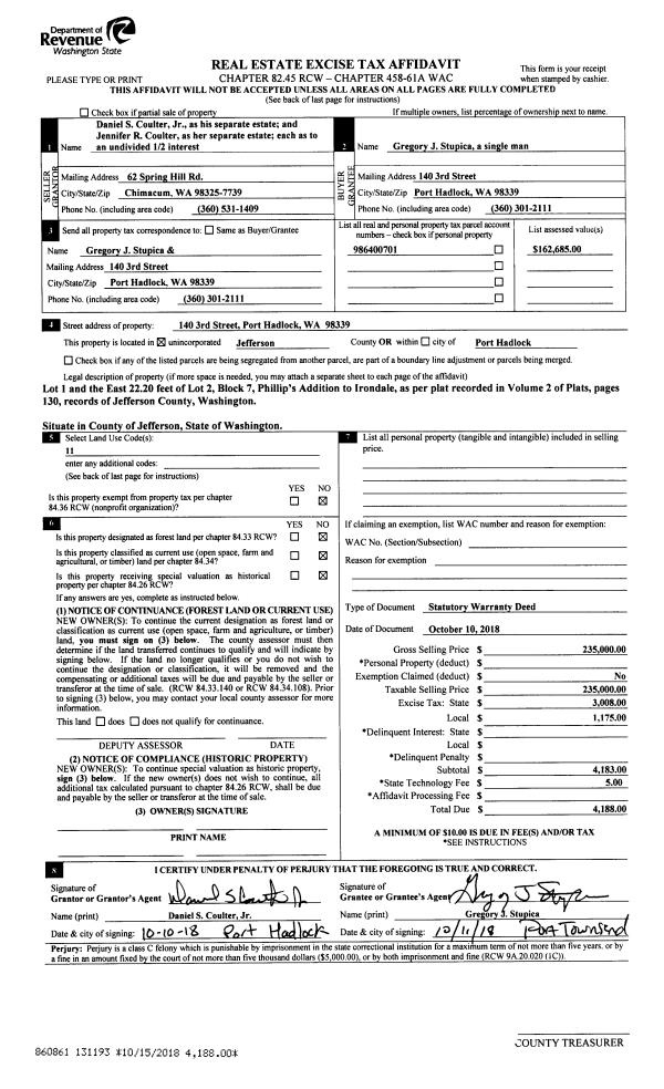
Property
Account |
| Property ID: | 10634 | Abbreviated Legal Description: | S9 T30 R1W TAX 10 |
| Parcel # / Geo ID: | 001093002 | Agent Code: | |
| Type: | Real | | |
| Tax Area: | 0110 - C-50F1E1H2 | Land Use Code | 83 |
| Open Space: | Y | DFL | N |
| Historic Property: | N | Remodel Property: | N |
| Multi-Family Redevelopment: | N | | |
| Township: | 30N | Section: | 9 |
| Range: | 1W |
Location |
| Address: | 3057 7TH ST PORT TOWNSEND, WA 98368 | Mapsco: | 157/018 |
| Neighborhood: | ACREAGE NORTH OF SUNNYSIDE PARK & SOUTH OF WATER TOWER | Map ID: | |
| Neighborhood CD: | 6130 |
Owner |
| Name: | NATEMBEA NORTHWEST LLC | Owner ID: | 95521 |
| Mailing Address: | 3059 7TH ST PORT TOWNSEND, WA 98368 | % Ownership: | 100.0000000000% |
| | | Exemptions: | |
Pay Tax Due
Select the appropriate checkbox next to the year to be paid. Multiple years may be selected.
*Convenience Fee not included
Taxes and Assessment Details
Property Tax Information as of
10/23/2025
Click on "Statement Details" to expand or collapse a tax statement.
* Please enter a valid date ** Please enter a valid date *
Statement Details |
| 2025 | 609 | STATE - STATE LEVY (SCHOOL) | $278.25 | $278.25 | $0.00 | $0.00 | $278.25 | $278.25 |
| 2025 | 609 | COUNTY - COUNTY LEVIES (CE, DD, VET, MH) | $109.43 | $109.41 | $0.00 | $0.00 | $109.43 | $109.41 |
| 2025 | 609 | CONSERVE - CONSERVATION FUTURES | $3.28 | $3.28 | $0.00 | $0.00 | $3.28 | $3.28 |
| 2025 | 609 | CITYPT - CITY OF PT | $157.80 | $157.79 | $0.00 | $0.00 | $157.80 | $157.79 |
| 2025 | 609 | PORTPT - PORT DISTRICT | $44.65 | $44.65 | $0.00 | $0.00 | $44.65 | $44.65 |
| 2025 | 609 | PUD1 - PUD #1 | $7.16 | $7.16 | $0.00 | $0.00 | $7.16 | $7.16 |
| 2025 | 609 | HD2 - HOSP DIST #2 | $6.39 | $6.38 | $0.00 | $0.00 | $6.39 | $6.38 |
| 2025 | 609 | SD50 - SCHOOL DIST #50 | $203.36 | $203.35 | $0.00 | $0.00 | $203.36 | $203.35 |
| 2025 | 609 | FD1 - FIRE DISTRICT #1 | $144.39 | $144.39 | $0.00 | $0.00 | $144.39 | $144.39 |
| 2025 | 609 | EMS1 - FIRE DIST #1 EMS | $55.54 | $55.53 | $0.00 | $0.00 | $55.54 | $55.53 |
| 2025 | 609 | FPLCA - DNR Landowner Contingency Assmt | $3.00 | $3.00 | $0.00 | $0.00 | $3.00 | $3.00 |
| 2025 | 609 | JCCD - JC Conservation District | $4.05 | $4.04 | $0.00 | $0.00 | $4.05 | $4.04 |
| 2025 | 609 | NWA - Noxious Weed Assessment | $6.65 | $6.65 | $0.00 | $0.00 | $6.65 | $6.65 |
| 2025 | 609 | OSS - On Site Septic | $21.50 | $21.50 | $0.00 | $0.00 | $21.50 | $21.50 |
| 2025 | 609 | WAT - Clean Water District | $13.00 | $13.00 | $0.00 | $0.00 | $13.00 | $13.00 |
| 2025 | 609 | TOTAL: | $1058.45 | $1058.38 | $0.00 | $0.00 | $1058.45 | $1058.38 |
|
| 2025 | 609 | $1058.45 | $1058.38 | $0.00 | $0.00 | $1058.45 | $1058.38 |
Statement Details |
| 2024 | 610 | STATE - STATE LEVY (SCHOOL) | $181.58 | $181.57 | $0.00 | $0.00 | $363.15 | $0.00 |
| 2024 | 610 | COUNTY - COUNTY LEVIES (CE, DD, VET, MH) | $77.71 | $77.69 | $0.00 | $0.00 | $155.40 | $0.00 |
| 2024 | 610 | CONSERVE - CONSERVATION FUTURES | $2.33 | $2.33 | $0.00 | $0.00 | $4.66 | $0.00 |
| 2024 | 610 | CITYPT - CITY OF PT | $111.02 | $111.01 | $0.00 | $0.00 | $222.03 | $0.00 |
| 2024 | 610 | PORTPT - PORT DISTRICT | $32.10 | $32.09 | $0.00 | $0.00 | $64.19 | $0.00 |
| 2024 | 610 | PUD1 - PUD #1 | $5.11 | $5.10 | $0.00 | $0.00 | $10.21 | $0.00 |
| 2024 | 610 | HD2 - HOSP DIST #2 | $4.54 | $4.53 | $0.00 | $0.00 | $9.07 | $0.00 |
| 2024 | 610 | SD50 - SCHOOL DIST #50 | $146.91 | $146.89 | $0.00 | $0.00 | $293.80 | $0.00 |
| 2024 | 610 | FD1 - FIRE DISTRICT #1 | $102.74 | $102.73 | $0.00 | $0.00 | $205.47 | $0.00 |
| 2024 | 610 | EMS1 - FIRE DIST #1 EMS | $39.24 | $39.24 | $0.00 | $0.00 | $78.48 | $0.00 |
| 2024 | 610 | JCCD - JC Conservation District | $4.05 | $4.04 | $0.00 | $0.00 | $8.09 | $0.00 |
| 2024 | 610 | NWA - Noxious Weed Assessment | $6.65 | $6.65 | $0.00 | $0.00 | $13.30 | $0.00 |
| 2024 | 610 | OSS - On Site Septic | $21.00 | $21.00 | $0.00 | $0.00 | $42.00 | $0.00 |
| 2024 | 610 | WAT - Clean Water District | $12.50 | $12.50 | $0.00 | $0.00 | $25.00 | $0.00 |
| 2024 | 610 | TOTAL: | $747.48 | $747.37 | $0.00 | $0.00 | $1494.85 | $0.00 |
|
| 2024 | 610 | $747.48 | $747.37 | $0.00 | $0.00 | $1494.85 | $0.00 |
Statement Details |
| 2023 | 610 | STATE - STATE LEVY (SCHOOL) | $184.76 | $184.75 | $0.00 | $0.00 | $369.51 | $0.00 |
| 2023 | 610 | COUNTY - COUNTY LEVIES (CE, DD, VET, MH) | $80.64 | $80.62 | $0.00 | $0.00 | $161.26 | $0.00 |
| 2023 | 610 | CONSERVE - CONSERVATION FUTURES | $2.42 | $2.42 | $0.00 | $0.00 | $4.84 | $0.00 |
| 2023 | 610 | CITYPT - CITY OF PT | $113.95 | $113.95 | $0.00 | $0.00 | $227.90 | $0.00 |
| 2023 | 610 | PORTPT - PORT DISTRICT | $33.97 | $33.96 | $0.00 | $0.00 | $67.93 | $0.00 |
| 2023 | 610 | PUD1 - PUD #1 | $5.35 | $5.34 | $0.00 | $0.00 | $10.69 | $0.00 |
| 2023 | 610 | HD2 - HOSP DIST #2 | $4.71 | $4.70 | $0.00 | $0.00 | $9.41 | $0.00 |
| 2023 | 610 | SD50 - SCHOOL DIST #50 | $146.62 | $146.60 | $0.00 | $0.00 | $293.22 | $0.00 |
| 2023 | 610 | FD1 - FIRE DISTRICT #1 | $66.42 | $66.41 | $0.00 | $0.00 | $132.83 | $0.00 |
| 2023 | 610 | EMS1 - FIRE DIST #1 EMS | $28.25 | $28.25 | $0.00 | $0.00 | $56.50 | $0.00 |
| 2023 | 610 | JCCD - JC Conservation District | $4.05 | $4.04 | $0.00 | $0.00 | $8.09 | $0.00 |
| 2023 | 610 | NWA - Noxious Weed Assessment | $6.65 | $6.65 | $0.00 | $0.00 | $13.30 | $0.00 |
| 2023 | 610 | OSS - On Site Septic | $20.50 | $20.50 | $0.00 | $0.00 | $41.00 | $0.00 |
| 2023 | 610 | WAT - Clean Water District | $12.00 | $12.00 | $0.00 | $0.00 | $24.00 | $0.00 |
| 2023 | 610 | TOTAL: | $710.29 | $710.19 | $0.00 | $0.00 | $1420.48 | $0.00 |
|
| 2023 | 610 | $710.29 | $710.19 | $0.00 | $0.00 | $1420.48 | $0.00 |
Statement Details |
| 2022 | 612 | STATE - STATE LEVY (SCHOOL) | $179.97 | $179.96 | $0.00 | $0.00 | $359.93 | $0.00 |
| 2022 | 612 | COUNTY - COUNTY LEVIES (CE, DD, VET, MH) | $80.20 | $80.17 | $0.00 | $0.00 | $160.37 | $0.00 |
| 2022 | 612 | CONSERVE - CONSERVATION FUTURES | $2.41 | $2.40 | $0.00 | $0.00 | $4.81 | $0.00 |
| 2022 | 612 | CITYPT - CITY OF PT | $103.19 | $103.17 | $0.00 | $0.00 | $206.36 | $0.00 |
| 2022 | 612 | PORTPT - PORT DISTRICT | $34.33 | $34.32 | $0.00 | $0.00 | $68.65 | $0.00 |
| 2022 | 612 | PUD1 - PUD #1 | $5.36 | $5.36 | $0.00 | $0.00 | $10.72 | $0.00 |
| 2022 | 612 | HD2 - HOSP DIST #2 | $4.68 | $4.68 | $0.00 | $0.00 | $9.36 | $0.00 |
| 2022 | 612 | SD50 - SCHOOL DIST #50 | $133.37 | $133.36 | $0.00 | $0.00 | $266.73 | $0.00 |
| 2022 | 612 | FD1 - FIRE DISTRICT #1 | $65.78 | $65.78 | $0.00 | $0.00 | $131.56 | $0.00 |
| 2022 | 612 | EMS1 - FIRE DIST #1 EMS | $27.98 | $27.98 | $0.00 | $0.00 | $55.96 | $0.00 |
| 2022 | 612 | JCCD - JC Conservation District | $4.05 | $4.04 | $0.00 | $0.00 | $8.09 | $0.00 |
| 2022 | 612 | NWA - Noxious Weed Assessment | $6.65 | $6.65 | $0.00 | $0.00 | $13.30 | $0.00 |
| 2022 | 612 | OSS - On Site Septic | $19.50 | $19.50 | $0.00 | $0.00 | $39.00 | $0.00 |
| 2022 | 612 | WAT - Clean Water District | $11.50 | $11.50 | $0.00 | $0.00 | $23.00 | $0.00 |
| 2022 | 612 | TOTAL: | $678.97 | $678.87 | $0.00 | $0.00 | $1357.84 | $0.00 |
|
| 2022 | 612 | $678.97 | $678.87 | $0.00 | $0.00 | $1357.84 | $0.00 |
Values
| (+) Improvement Homesite Value: | + | $0 | |
| (+) Improvement Non-Homesite Value: | + | $235,266 | |
| (+) Land Homesite Value: | + | $0 | |
| (+) Land Non-Homesite Value: | + | $0 | |
| (+) Curr Use (HS): | + | $0 | $0 |
| (+) Curr Use (NHS): | + | $365,030 | $2,426 |
| | | -------------------------- | |
| (=) Market Value: | = | $600,296 | |
| (–) Productivity Loss: | – | $362,604 | |
| | | -------------------------- | |
| (=) Subtotal: | = | $237,692 | |
| (+) Senior Appraised Value: | + | $0 | |
| (+) Non-Senior Appraised Value: | + | $237,692 | |
| | | -------------------------- | |
| (=) Total Appraised Value: | = | $237,692 | |
| (–) Senior Exemption Loss: | – | $0 | |
| (–) Exemption Loss: | – | $0 | |
| | | -------------------------- | |
| (=) Taxable Value: | = | $237,692 | |
Taxing Jurisdiction
| Owner: | NATEMBEA NORTHWEST LLC | | |
| % Ownership: | 100.0000000000% | | |
| Total Value: | N/A | | |
| Tax Area: | 0110 - C-50F1E1H2 |
| CE | COUNTY CURRENT EXPENSE | N/A | N/A | N/A | N/A | | |
| CNTYDD | DEVELOPMENTAL DISABILITIES | N/A | N/A | N/A | N/A | | |
| CNTYVET | VETERANS RELIEF | N/A | N/A | N/A | N/A | | |
| MENTAL | MENTAL HEALTH | N/A | N/A | N/A | N/A | | |
| PTGEN | CITY OF PT GENERAL | N/A | N/A | N/A | N/A | | |
| PTLLL | CITY OF PT - LIBRARY LID LIFT | N/A | N/A | N/A | N/A | | |
| PTMVBOND | CITY OF PT MV BOND | N/A | N/A | N/A | N/A | | |
| HOSP2CASH | HOSP DIST #2 GENERAL | N/A | N/A | N/A | N/A | | |
| SCH50BOND | SCHOOL DIST #50 BOND 2016 | N/A | N/A | N/A | N/A | | |
| SCH50CP | SCHOOL DIST #50 CAP PROJ | N/A | N/A | N/A | N/A | | |
| SCH50MO | SCHOOL DIST #50 EP & O | N/A | N/A | N/A | N/A | | |
| CONSERVE | CONSERVATION FUTURES | N/A | N/A | N/A | N/A | | |
| EMS1 | FIRE DIST #1 EMS | N/A | N/A | N/A | N/A | | |
| FD1 | FIRE DIST #1 GENERAL | N/A | N/A | N/A | N/A | | |
| PORTPT | PORT OF PT GENERAL | N/A | N/A | N/A | N/A | | |
| PORTPTIDD | PORT OF PT IDD 2019 | N/A | N/A | N/A | N/A | | |
| PUD1 | PUD #1 GENERAL | N/A | N/A | N/A | N/A | | |
| STATE | STATE SCHOOL PART 1 | N/A | N/A | N/A | N/A | | |
| STATE2 | STATE SCHOOL PART 2 | N/A | N/A | N/A | N/A | | |
| | Total Tax Rate: | N/A | | | | | |
| | | | | Taxes w/Current Exemptions: | N/A | | |
| | | | | Taxes w/o Exemptions: | N/A | | |
Improvement / Building
| Improvement #1: | Residential Bldg | State Code: | 11 | 1172.0 sqft | Value: | $166,206 |
| Bathrooms (#): | 1 (FULL) | Bedrooms (#): | 2 | | Exterior Wall: | SI/ST | Fireplace: | SIN 1-AVG | | Floor Construction: | FRAME | Foundation: | CONBL | | Heating/Cooling: | F/A | Inside Verify: | YES-FIX | | Roof Cover: | SHAKE |   |   |
|
| | Type | Description | Class CD | Sub Class CD | Year Built | Area |
| | MA | Main Area | 2 | 1S | 1950 | 1172.0 |
| | HCPOR | House Concrete Porch | 2 | * | 1950 | 243.0 |
| | GDET | Detached Garage | 2 | 1S | 1950 | 621.0 |
| | BARN | Barn (Table Not Dep) | 4 | * | 1950 | 1800.0 |
| | OTHER | Other | * | * | 1950 | 0.0 |
| | SOLAR | Solar Panel | 4 | * | 1950 | 0.0 |
| | CARPT | Carport (Table Not Dep) | 4 | * | 1950 | 0.0 |
| Improvement #2: | Manufactured Home | State Code: | 11M | 409.0 sqft | Value: | $69,060 |
| Bathrooms (#): | 1 (FULL) | Bedrooms (#): | 1 | | Exterior Wall: | SI/ST | Foundation: | PO&BL | | Heating/Cooling: | HPUMP | Roof Cover: | METAL |
|
| | Type | Description | Class CD | Sub Class CD | Year Built | Area |
| | MA | Main Area | 4 | MSG | 2024 | 409.0 |
| | MRPO | MH Roof Porch | 4 | MSG | 2024 | 88.0 |
| | MDECK | MH Deck | 4 | * | 2024 | 24.0 |
Sketch
Property Image
Land
| 1 | 6130-1375S | | 1.0000 | 43560.00 | 0.00 | 0.00 | 1.00 | $174,500 | $236 |
| 2 | 1777A | | 29.2000 | 1271952.00 | 0.00 | 0.00 | 0.00 | $190,530 | $2,190 |
Roll Value History
| 2025 | N/A | N/A | N/A | N/A | N/A |
| 2024 | $229,640 | $360,560 | $2,426 | $232,066 | $232,066 |
| 2023 | $154,536 | $331,820 | $2,426 | $156,962 | $156,962 |
| 2022 | $154,536 | $313,680 | $2,426 | $156,962 | $156,962 |
| 2021 | $129,211 | $291,525 | $2,426 | $131,637 | $131,637 |
Deed and Sales History
| 1 | 05/25/2016 | SWD | Statutory Warranty Deed | ALTON C SWANSON TRUSTEE | NATEMBEA NORTHWEST LLC | | | $1,200,000.00 | 125527 | |
|   | |
| 2 | 08/14/2002 | SWD | Statutory Warranty Deed | SWANSON, ALTON/BEVERLEY | SWANSON, ALTON C/BEVERLY A TRU | 0 | 0 | $0.00 | 95703 | 0 |
Payout Agreement
| No payout information available.. |