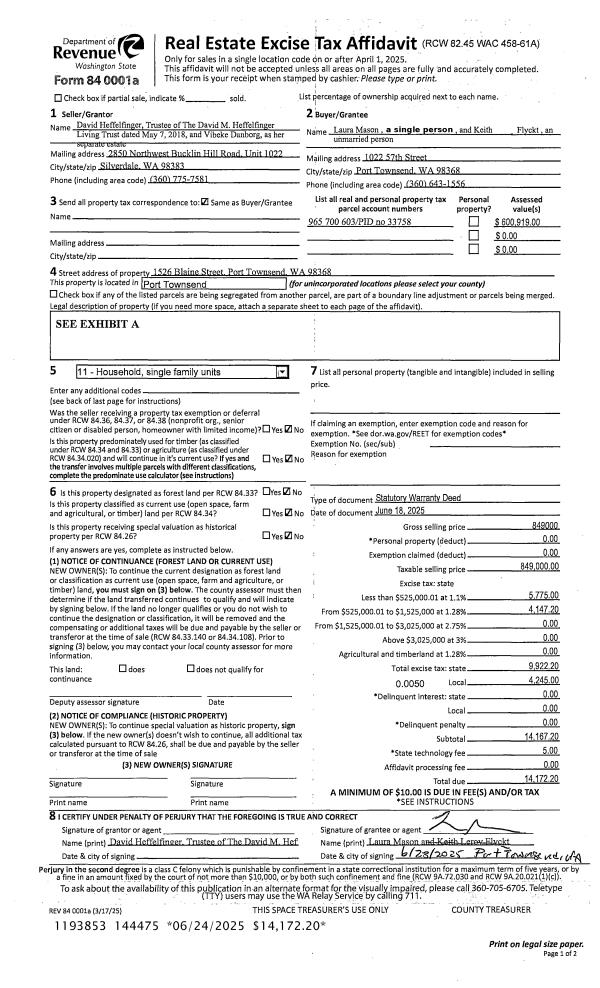
Property
Account |
| Property ID: | 10679 | Abbreviated Legal Description: | S10 T30 R1W TAX 9 |
| Parcel # / Geo ID: | 001104005 | Agent Code: | |
| Type: | Real | | |
| Tax Area: | 0110 - C-50F1E1H2 | Land Use Code | 11 |
| Open Space: | N | DFL | N |
| Historic Property: | N | Remodel Property: | N |
| Multi-Family Redevelopment: | N | | |
| Township: | 30N | Section: | 10 |
| Range: | 1W |
Location |
| Address: | 789 SIMS WAY PORT TOWNSEND, WA 98368 | Mapsco: | 158/006 |
| Neighborhood: | GALLEON VIEW ESTATES, ISLAND VISTA, and TAX #14 15/30/1W | Map ID: | |
| Neighborhood CD: | 6230 |
Owner |
| Name: | KRISTINE A MORRIS | Owner ID: | 110611 |
| Mailing Address: | 789 W SIMS WAY PORT TOWNSEND, WA 98368-1814 | % Ownership: | 100.0000000000% |
| | | Exemptions: | |
Pay Tax Due
Select the appropriate checkbox next to the year to be paid. Multiple years may be selected.
*Convenience Fee not included
Taxes and Assessment Details
Property Tax Information as of
10/23/2025
Click on "Statement Details" to expand or collapse a tax statement.
* Please enter a valid date ** Please enter a valid date *
Statement Details |
| 2025 | 652 | STATE - STATE LEVY (SCHOOL) | $2208.02 | $2208.01 | $0.00 | $0.00 | $2208.02 | $2208.01 |
| 2025 | 652 | COUNTY - COUNTY LEVIES (CE, DD, VET, MH) | $868.29 | $868.28 | $0.00 | $0.00 | $868.29 | $868.28 |
| 2025 | 652 | CONSERVE - CONSERVATION FUTURES | $26.04 | $26.03 | $0.00 | $0.00 | $26.04 | $26.03 |
| 2025 | 652 | CITYPT - CITY OF PT | $1252.17 | $1252.16 | $0.00 | $0.00 | $1252.17 | $1252.16 |
| 2025 | 652 | PORTPT - PORT DISTRICT | $354.31 | $354.31 | $0.00 | $0.00 | $354.31 | $354.31 |
| 2025 | 652 | PUD1 - PUD #1 | $56.82 | $56.81 | $0.00 | $0.00 | $56.82 | $56.81 |
| 2025 | 652 | HD2 - HOSP DIST #2 | $50.66 | $50.66 | $0.00 | $0.00 | $50.66 | $50.66 |
| 2025 | 652 | SD50 - SCHOOL DIST #50 | $1613.69 | $1613.69 | $0.00 | $0.00 | $1613.69 | $1613.69 |
| 2025 | 652 | FD1 - FIRE DISTRICT #1 | $1145.80 | $1145.80 | $0.00 | $0.00 | $1145.80 | $1145.80 |
| 2025 | 652 | EMS1 - FIRE DIST #1 EMS | $440.71 | $440.70 | $0.00 | $0.00 | $440.71 | $440.70 |
| 2025 | 652 | JCCD - JC Conservation District | $2.60 | $2.60 | $0.00 | $0.00 | $2.60 | $2.60 |
| 2025 | 652 | NWA - Noxious Weed Assessment | $2.30 | $2.30 | $0.00 | $0.00 | $2.30 | $2.30 |
| 2025 | 652 | TOTAL: | $8021.41 | $8021.35 | $0.00 | $0.00 | $8021.41 | $8021.35 |
|
| 2025 | 652 | $8021.41 | $8021.35 | $0.00 | $0.00 | $8021.41 | $8021.35 |
Statement Details |
| 2024 | 653 | STATE - STATE LEVY (SCHOOL) | $2124.50 | $2124.48 | $0.00 | $0.00 | $4248.98 | $0.00 |
| 2024 | 653 | COUNTY - COUNTY LEVIES (CE, DD, VET, MH) | $909.11 | $909.08 | $0.00 | $0.00 | $1818.19 | $0.00 |
| 2024 | 653 | CONSERVE - CONSERVATION FUTURES | $27.26 | $27.26 | $0.00 | $0.00 | $54.52 | $0.00 |
| 2024 | 653 | CITYPT - CITY OF PT | $1298.96 | $1298.95 | $0.00 | $0.00 | $2597.91 | $0.00 |
| 2024 | 653 | PORTPT - PORT DISTRICT | $375.49 | $375.49 | $0.00 | $0.00 | $750.98 | $0.00 |
| 2024 | 653 | PUD1 - PUD #1 | $59.72 | $59.71 | $0.00 | $0.00 | $119.43 | $0.00 |
| 2024 | 653 | HD2 - HOSP DIST #2 | $53.05 | $53.04 | $0.00 | $0.00 | $106.09 | $0.00 |
| 2024 | 653 | SD50 - SCHOOL DIST #50 | $1718.82 | $1718.80 | $0.00 | $0.00 | $3437.62 | $0.00 |
| 2024 | 653 | FD1 - FIRE DISTRICT #1 | $1202.04 | $1202.03 | $0.00 | $0.00 | $2404.07 | $0.00 |
| 2024 | 653 | EMS1 - FIRE DIST #1 EMS | $459.13 | $459.13 | $0.00 | $0.00 | $918.26 | $0.00 |
| 2024 | 653 | JCCD - JC Conservation District | $2.60 | $2.60 | $0.00 | $0.00 | $5.20 | $0.00 |
| 2024 | 653 | NWA - Noxious Weed Assessment | $2.30 | $2.30 | $0.00 | $0.00 | $4.60 | $0.00 |
| 2024 | 653 | TOTAL: | $8232.98 | $8232.87 | $0.00 | $0.00 | $16465.85 | $0.00 |
|
| 2024 | 653 | $8232.98 | $8232.87 | $0.00 | $0.00 | $16465.85 | $0.00 |
Statement Details |
| 2023 | 653 | STATE - STATE LEVY (SCHOOL) | $2155.86 | $2155.85 | $0.00 | $0.00 | $4311.71 | $0.00 |
| 2023 | 653 | COUNTY - COUNTY LEVIES (CE, DD, VET, MH) | $940.75 | $940.75 | $0.00 | $0.00 | $1881.50 | $0.00 |
| 2023 | 653 | CONSERVE - CONSERVATION FUTURES | $28.21 | $28.21 | $0.00 | $0.00 | $56.42 | $0.00 |
| 2023 | 653 | CITYPT - CITY OF PT | $1329.60 | $1329.59 | $0.00 | $0.00 | $2659.19 | $0.00 |
| 2023 | 653 | PORTPT - PORT DISTRICT | $396.30 | $396.29 | $0.00 | $0.00 | $792.59 | $0.00 |
| 2023 | 653 | PUD1 - PUD #1 | $62.36 | $62.36 | $0.00 | $0.00 | $124.72 | $0.00 |
| 2023 | 653 | HD2 - HOSP DIST #2 | $54.90 | $54.90 | $0.00 | $0.00 | $109.80 | $0.00 |
| 2023 | 653 | SD50 - SCHOOL DIST #50 | $1710.72 | $1710.70 | $0.00 | $0.00 | $3421.42 | $0.00 |
| 2023 | 653 | FD1 - FIRE DISTRICT #1 | $774.99 | $774.99 | $0.00 | $0.00 | $1549.98 | $0.00 |
| 2023 | 653 | EMS1 - FIRE DIST #1 EMS | $329.67 | $329.66 | $0.00 | $0.00 | $659.33 | $0.00 |
| 2023 | 653 | JCCD - JC Conservation District | $2.60 | $2.60 | $0.00 | $0.00 | $5.20 | $0.00 |
| 2023 | 653 | NWA - Noxious Weed Assessment | $2.30 | $2.30 | $0.00 | $0.00 | $4.60 | $0.00 |
| 2023 | 653 | TOTAL: | $7788.26 | $7788.20 | $0.00 | $0.00 | $15576.46 | $0.00 |
|
| 2023 | 653 | $7788.26 | $7788.20 | $0.00 | $0.00 | $15576.46 | $0.00 |
Statement Details |
| 2022 | 655 | STATE - STATE LEVY (SCHOOL) | $2085.46 | $2085.45 | $0.00 | $0.00 | $4170.91 | $0.00 |
| 2022 | 655 | COUNTY - COUNTY LEVIES (CE, DD, VET, MH) | $929.20 | $929.18 | $0.00 | $0.00 | $1858.38 | $0.00 |
| 2022 | 655 | CONSERVE - CONSERVATION FUTURES | $27.87 | $27.86 | $0.00 | $0.00 | $55.73 | $0.00 |
| 2022 | 655 | CITYPT - CITY OF PT | $1195.66 | $1195.65 | $0.00 | $0.00 | $2391.31 | $0.00 |
| 2022 | 655 | PORTPT - PORT DISTRICT | $397.78 | $397.78 | $0.00 | $0.00 | $795.56 | $0.00 |
| 2022 | 655 | PUD1 - PUD #1 | $62.14 | $62.13 | $0.00 | $0.00 | $124.27 | $0.00 |
| 2022 | 655 | HD2 - HOSP DIST #2 | $54.25 | $54.23 | $0.00 | $0.00 | $108.48 | $0.00 |
| 2022 | 655 | SD50 - SCHOOL DIST #50 | $1545.44 | $1545.41 | $0.00 | $0.00 | $3090.85 | $0.00 |
| 2022 | 655 | FD1 - FIRE DISTRICT #1 | $762.27 | $762.27 | $0.00 | $0.00 | $1524.54 | $0.00 |
| 2022 | 655 | EMS1 - FIRE DIST #1 EMS | $324.24 | $324.24 | $0.00 | $0.00 | $648.48 | $0.00 |
| 2022 | 655 | JCCD - JC Conservation District | $2.60 | $2.60 | $0.00 | $0.00 | $5.20 | $0.00 |
| 2022 | 655 | NWA - Noxious Weed Assessment | $2.30 | $2.30 | $0.00 | $0.00 | $4.60 | $0.00 |
| 2022 | 655 | TOTAL: | $7389.21 | $7389.10 | $0.00 | $0.00 | $14778.31 | $0.00 |
|
| 2022 | 655 | $7389.21 | $7389.10 | $0.00 | $0.00 | $14778.31 | $0.00 |
Values
| (+) Improvement Homesite Value: | + | $0 | |
| (+) Improvement Non-Homesite Value: | + | $1,268,005 | |
| (+) Land Homesite Value: | + | $0 | |
| (+) Land Non-Homesite Value: | + | $610,640 | |
| (+) Curr Use (HS): | + | $0 | $0 |
| (+) Curr Use (NHS): | + | $0 | $0 |
| | | -------------------------- | |
| (=) Market Value: | = | $1,878,645 | |
| (–) Productivity Loss: | – | $0 | |
| | | -------------------------- | |
| (=) Subtotal: | = | $1,878,645 | |
| (+) Senior Appraised Value: | + | $0 | |
| (+) Non-Senior Appraised Value: | + | $1,878,645 | |
| | | -------------------------- | |
| (=) Total Appraised Value: | = | $1,878,645 | |
| (–) Senior Exemption Loss: | – | $0 | |
| (–) Exemption Loss: | – | $0 | |
| | | -------------------------- | |
| (=) Taxable Value: | = | $1,878,645 | |
Taxing Jurisdiction
| Owner: | KRISTINE A MORRIS | | |
| % Ownership: | 100.0000000000% | | |
| Total Value: | N/A | | |
| Tax Area: | 0110 - C-50F1E1H2 |
| CE | COUNTY CURRENT EXPENSE | N/A | N/A | N/A | N/A | | |
| CNTYDD | DEVELOPMENTAL DISABILITIES | N/A | N/A | N/A | N/A | | |
| CNTYVET | VETERANS RELIEF | N/A | N/A | N/A | N/A | | |
| MENTAL | MENTAL HEALTH | N/A | N/A | N/A | N/A | | |
| PTGEN | CITY OF PT GENERAL | N/A | N/A | N/A | N/A | | |
| PTLLL | CITY OF PT - LIBRARY LID LIFT | N/A | N/A | N/A | N/A | | |
| PTMVBOND | CITY OF PT MV BOND | N/A | N/A | N/A | N/A | | |
| HOSP2CASH | HOSP DIST #2 GENERAL | N/A | N/A | N/A | N/A | | |
| SCH50BOND | SCHOOL DIST #50 BOND 2016 | N/A | N/A | N/A | N/A | | |
| SCH50CP | SCHOOL DIST #50 CAP PROJ | N/A | N/A | N/A | N/A | | |
| SCH50MO | SCHOOL DIST #50 EP & O | N/A | N/A | N/A | N/A | | |
| CONSERVE | CONSERVATION FUTURES | N/A | N/A | N/A | N/A | | |
| EMS1 | FIRE DIST #1 EMS | N/A | N/A | N/A | N/A | | |
| FD1 | FIRE DIST #1 GENERAL | N/A | N/A | N/A | N/A | | |
| PORTPT | PORT OF PT GENERAL | N/A | N/A | N/A | N/A | | |
| PORTPTIDD | PORT OF PT IDD 2019 | N/A | N/A | N/A | N/A | | |
| PUD1 | PUD #1 GENERAL | N/A | N/A | N/A | N/A | | |
| STATE | STATE SCHOOL PART 1 | N/A | N/A | N/A | N/A | | |
| STATE2 | STATE SCHOOL PART 2 | N/A | N/A | N/A | N/A | | |
| | Total Tax Rate: | N/A | | | | | |
| | | | | Taxes w/Current Exemptions: | N/A | | |
| | | | | Taxes w/o Exemptions: | N/A | | |
Improvement / Building
| Improvement #1: | Residential Bldg | State Code: | 11 | 3478.0 sqft | Value: | $1,268,005 |
| Bathrooms (#): | 3 (FULL) | Bedrooms (#): | 2 | | Exterior Wall: | SI/ST | Fireplace: | SIN 2-GOOD | | Floor Construction: | FRAME | Foundation: | CONPR | | Heating/Cooling: | HTWTR | Inside Verify: | YES-FIX | | Roof Cover: | SHNGL |   |   |
|
| | Type | Description | Class CD | Sub Class CD | Year Built | Area |
| | MA | Main Area | 6 | 2S | 1999 | 2472.0 |
| | MA2 | Second Floor Main Area | 6 | 2S | 1999 | 848.0 |
| | MA3 | Third Floor Main Area | 6 | 2S | 1999 | 158.0 |
| | PATIO | House Patio | 6 | 2S | 1999 | 940.0 |
| | HCPOR | House Concrete Porch | 6 | 2S | 1999 | 198.0 |
| | HDECK | House Deck | 6 | 2S | 1999 | 840.0 |
| | HENCL | House Enclosure | 6 | 2S | 1999 | 160.0 |
| | GATT | House Attached Garage | 6 | 2S | 1999 | 973.0 |
| | CARPTF | Carport W/Floor | 5 | 2S | 1999 | 260.0 |
| | PATIO | House Patio | 5 | 2S | 1999 | 1800.0 |
| | ASPHD | Asphalt Drive | 6 | 2S | 1999 | 4000.0 |
Sketch
| No sketches available for this property. |
Property Image
Land
| 1 | 6230-1535F | | 0.0000 | 0.00 | 0.00 | 0.00 | 0.00 | $410,000 | $0 |
| 2 | 6230-1535F | | 0.0000 | 0.00 | 0.00 | 0.00 | 0.00 | $200,640 | $0 |
Roll Value History
| 2025 | N/A | N/A | N/A | N/A | N/A |
| 2024 | $1,230,888 | $610,640 | $0 | $1,841,528 | $1,841,528 |
| 2023 | $1,230,888 | $605,640 | $0 | $1,836,528 | $1,836,528 |
| 2022 | $1,230,888 | $600,640 | $0 | $1,831,528 | $1,831,528 |
| 2021 | $1,029,171 | $496,250 | $0 | $1,525,421 | $1,525,421 |
Deed and Sales History
| 1 | 05/17/2023 | DTH CERT | Death Certificate | BRIGIDA A KNAUER | | | | | 0 | 665391 |
| 2 | 10/30/2013 | TRED | Trustee Deed | KRISTINE A MORRIS TRUSTEE | KRISTINE MORRIS & BRIGIDA KNAUER | | | | 120220 | |
| 3 | 07/13/2006 | SWD | Statutory Warranty Deed | HARVEY, W C/LORA | MORRIS,KRISTINE/KNAUER,BRIGIDA | | | $1,300,000.00 | 107157 | 0 |
| 4 | 08/26/1996 | SWD | Statutory Warranty Deed | LLOYD, E & I/CALL, HELEN | HARVEY, W C/LORA | 0 | 0 | $166,500.00 | 80269 | 0 |
Payout Agreement
| No payout information available.. |