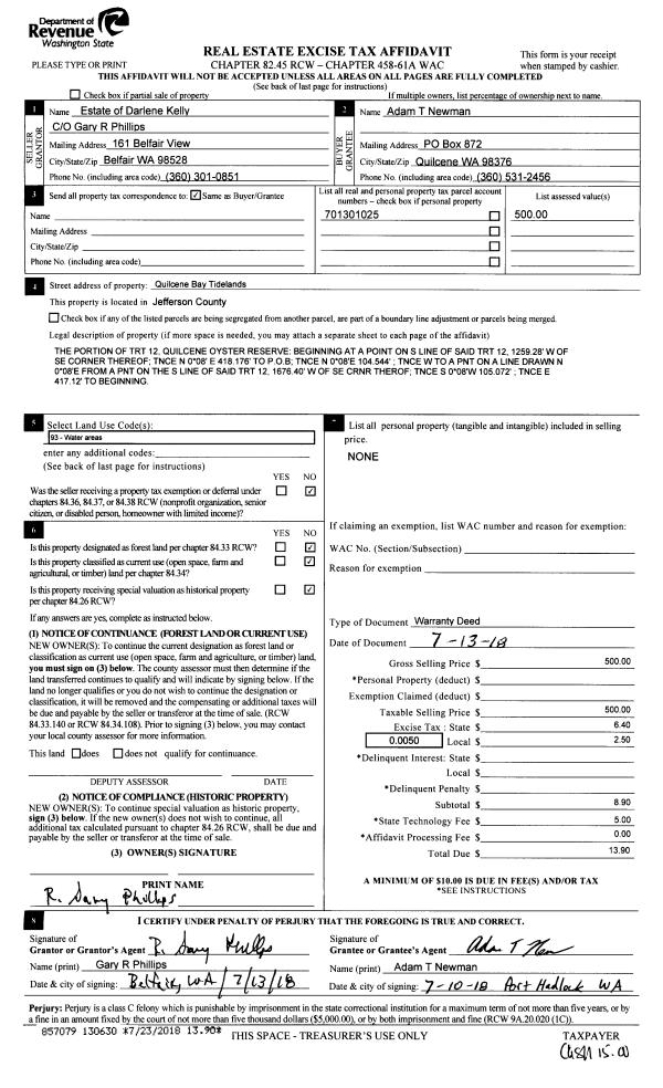
Property
Account |
| Property ID: | 10701 | Abbreviated Legal Description: | GREEN SHORT PLAT AMENDED LOT C W/EASE SUBJ/JLT CONSERV EASE V535/P566 |
| Parcel # / Geo ID: | 001104029 | Agent Code: | |
| Type: | Real | | |
| Tax Area: | 0110 - C-50F1E1H2 | Land Use Code | 11 |
| Open Space: | N | DFL | N |
| Historic Property: | N | Remodel Property: | N |
| Multi-Family Redevelopment: | N | | |
| Township: | 30N | Section: | 10 |
| Range: | 1W |
Location |
| Address: | 902 SIMS WAY PORT TOWNSEND, WA 98368 | Mapsco: | 161/062 |
| Neighborhood: | EISENBEIS, OC HASTINGS & SUPP, PINKS LESS VICTORIAN VILLAGE | Map ID: | |
| Neighborhood CD: | 6210 |
Owner |
| Name: | KELLY FAMILY TRUST | Owner ID: | 57779 |
| Mailing Address: | KENNETH F KELLY TRUSTEE JANE KELLY TRUSTEE 2000 W SIMS WAY PORT TOWNSEND, WA 98368 | % Ownership: | 100.0000000000% |
| | | Exemptions: | |
Pay Tax Due
Select the appropriate checkbox next to the year to be paid. Multiple years may be selected.
*Convenience Fee not included
Taxes and Assessment Details
Property Tax Information as of
10/23/2025
Click on "Statement Details" to expand or collapse a tax statement.
* Please enter a valid date ** Please enter a valid date *
Statement Details |
| 2025 | 673 | STATE - STATE LEVY (SCHOOL) | $1848.69 | $1848.68 | $0.00 | $0.00 | $1848.69 | $1848.68 |
| 2025 | 673 | COUNTY - COUNTY LEVIES (CE, DD, VET, MH) | $727.00 | $726.97 | $0.00 | $0.00 | $727.00 | $726.97 |
| 2025 | 673 | CONSERVE - CONSERVATION FUTURES | $21.80 | $21.80 | $0.00 | $0.00 | $21.80 | $21.80 |
| 2025 | 673 | CITYPT - CITY OF PT | $1048.40 | $1048.39 | $0.00 | $0.00 | $1048.40 | $1048.39 |
| 2025 | 673 | PORTPT - PORT DISTRICT | $296.66 | $296.64 | $0.00 | $0.00 | $296.66 | $296.64 |
| 2025 | 673 | PUD1 - PUD #1 | $47.57 | $47.57 | $0.00 | $0.00 | $47.57 | $47.57 |
| 2025 | 673 | HD2 - HOSP DIST #2 | $42.42 | $42.41 | $0.00 | $0.00 | $42.42 | $42.41 |
| 2025 | 673 | SD50 - SCHOOL DIST #50 | $1351.09 | $1351.07 | $0.00 | $0.00 | $1351.09 | $1351.07 |
| 2025 | 673 | FD1 - FIRE DISTRICT #1 | $959.34 | $959.33 | $0.00 | $0.00 | $959.34 | $959.33 |
| 2025 | 673 | EMS1 - FIRE DIST #1 EMS | $368.99 | $368.98 | $0.00 | $0.00 | $368.99 | $368.98 |
| 2025 | 673 | JCCD - JC Conservation District | $2.60 | $2.60 | $0.00 | $0.00 | $2.60 | $2.60 |
| 2025 | 673 | NWA - Noxious Weed Assessment | $2.30 | $2.30 | $0.00 | $0.00 | $2.30 | $2.30 |
| 2025 | 673 | TOTAL: | $6716.86 | $6716.74 | $0.00 | $0.00 | $6716.86 | $6716.74 |
|
| 2025 | 673 | $6716.86 | $6716.74 | $0.00 | $0.00 | $6716.86 | $6716.74 |
Statement Details |
| 2024 | 674 | STATE - STATE LEVY (SCHOOL) | $1697.48 | $1697.46 | $0.00 | $0.00 | $3394.94 | $0.00 |
| 2024 | 674 | COUNTY - COUNTY LEVIES (CE, DD, VET, MH) | $726.37 | $726.36 | $0.00 | $0.00 | $1452.73 | $0.00 |
| 2024 | 674 | CONSERVE - CONSERVATION FUTURES | $21.78 | $21.78 | $0.00 | $0.00 | $43.56 | $0.00 |
| 2024 | 674 | CITYPT - CITY OF PT | $1037.88 | $1037.87 | $0.00 | $0.00 | $2075.75 | $0.00 |
| 2024 | 674 | PORTPT - PORT DISTRICT | $300.02 | $300.02 | $0.00 | $0.00 | $600.04 | $0.00 |
| 2024 | 674 | PUD1 - PUD #1 | $47.71 | $47.71 | $0.00 | $0.00 | $95.42 | $0.00 |
| 2024 | 674 | HD2 - HOSP DIST #2 | $42.38 | $42.38 | $0.00 | $0.00 | $84.76 | $0.00 |
| 2024 | 674 | SD50 - SCHOOL DIST #50 | $1373.34 | $1373.33 | $0.00 | $0.00 | $2746.67 | $0.00 |
| 2024 | 674 | FD1 - FIRE DISTRICT #1 | $960.43 | $960.42 | $0.00 | $0.00 | $1920.85 | $0.00 |
| 2024 | 674 | EMS1 - FIRE DIST #1 EMS | $366.85 | $366.85 | $0.00 | $0.00 | $733.70 | $0.00 |
| 2024 | 674 | JCCD - JC Conservation District | $2.60 | $2.60 | $0.00 | $0.00 | $5.20 | $0.00 |
| 2024 | 674 | NWA - Noxious Weed Assessment | $2.30 | $2.30 | $0.00 | $0.00 | $4.60 | $0.00 |
| 2024 | 674 | TOTAL: | $6579.14 | $6579.08 | $0.00 | $0.00 | $13158.22 | $0.00 |
|
| 2024 | 674 | $6579.14 | $6579.08 | $0.00 | $0.00 | $13158.22 | $0.00 |
Statement Details |
| 2023 | 674 | STATE - STATE LEVY (SCHOOL) | $1721.35 | $1721.35 | $0.00 | $0.00 | $3442.70 | $0.00 |
| 2023 | 674 | COUNTY - COUNTY LEVIES (CE, DD, VET, MH) | $751.16 | $751.13 | $0.00 | $0.00 | $1502.29 | $0.00 |
| 2023 | 674 | CONSERVE - CONSERVATION FUTURES | $22.53 | $22.52 | $0.00 | $0.00 | $45.05 | $0.00 |
| 2023 | 674 | CITYPT - CITY OF PT | $1061.63 | $1061.61 | $0.00 | $0.00 | $2123.24 | $0.00 |
| 2023 | 674 | PORTPT - PORT DISTRICT | $316.43 | $316.42 | $0.00 | $0.00 | $632.85 | $0.00 |
| 2023 | 674 | PUD1 - PUD #1 | $49.79 | $49.79 | $0.00 | $0.00 | $99.58 | $0.00 |
| 2023 | 674 | HD2 - HOSP DIST #2 | $43.84 | $43.83 | $0.00 | $0.00 | $87.67 | $0.00 |
| 2023 | 674 | SD50 - SCHOOL DIST #50 | $1365.93 | $1365.91 | $0.00 | $0.00 | $2731.84 | $0.00 |
| 2023 | 674 | FD1 - FIRE DISTRICT #1 | $618.80 | $618.79 | $0.00 | $0.00 | $1237.59 | $0.00 |
| 2023 | 674 | EMS1 - FIRE DIST #1 EMS | $263.23 | $263.22 | $0.00 | $0.00 | $526.45 | $0.00 |
| 2023 | 674 | JCCD - JC Conservation District | $2.60 | $2.60 | $0.00 | $0.00 | $5.20 | $0.00 |
| 2023 | 674 | NWA - Noxious Weed Assessment | $2.30 | $2.30 | $0.00 | $0.00 | $4.60 | $0.00 |
| 2023 | 674 | TOTAL: | $6219.59 | $6219.47 | $0.00 | $0.00 | $12439.06 | $0.00 |
|
| 2023 | 674 | $6219.59 | $6219.47 | $0.00 | $0.00 | $12439.06 | $0.00 |
Statement Details |
| 2022 | 676 | STATE - STATE LEVY (SCHOOL) | $1635.91 | $1635.89 | $0.00 | $0.00 | $3271.80 | $0.00 |
| 2022 | 676 | COUNTY - COUNTY LEVIES (CE, DD, VET, MH) | $728.90 | $728.87 | $0.00 | $0.00 | $1457.77 | $0.00 |
| 2022 | 676 | CONSERVE - CONSERVATION FUTURES | $21.86 | $21.85 | $0.00 | $0.00 | $43.71 | $0.00 |
| 2022 | 676 | CITYPT - CITY OF PT | $937.91 | $937.91 | $0.00 | $0.00 | $1875.82 | $0.00 |
| 2022 | 676 | PORTPT - PORT DISTRICT | $312.04 | $312.03 | $0.00 | $0.00 | $624.07 | $0.00 |
| 2022 | 676 | PUD1 - PUD #1 | $48.74 | $48.74 | $0.00 | $0.00 | $97.48 | $0.00 |
| 2022 | 676 | HD2 - HOSP DIST #2 | $42.55 | $42.55 | $0.00 | $0.00 | $85.10 | $0.00 |
| 2022 | 676 | SD50 - SCHOOL DIST #50 | $1212.29 | $1212.28 | $0.00 | $0.00 | $2424.57 | $0.00 |
| 2022 | 676 | FD1 - FIRE DISTRICT #1 | $597.95 | $597.95 | $0.00 | $0.00 | $1195.90 | $0.00 |
| 2022 | 676 | EMS1 - FIRE DIST #1 EMS | $254.35 | $254.34 | $0.00 | $0.00 | $508.69 | $0.00 |
| 2022 | 676 | JCCD - JC Conservation District | $2.60 | $2.60 | $0.00 | $0.00 | $5.20 | $0.00 |
| 2022 | 676 | NWA - Noxious Weed Assessment | $2.30 | $2.30 | $0.00 | $0.00 | $4.60 | $0.00 |
| 2022 | 676 | TOTAL: | $5797.40 | $5797.31 | $0.00 | $0.00 | $11594.71 | $0.00 |
|
| 2022 | 676 | $5797.40 | $5797.31 | $0.00 | $0.00 | $11594.71 | $0.00 |
Values
| (+) Improvement Homesite Value: | + | $0 | |
| (+) Improvement Non-Homesite Value: | + | $964,173 | |
| (+) Land Homesite Value: | + | $0 | |
| (+) Land Non-Homesite Value: | + | $586,000 | |
| (+) Curr Use (HS): | + | $0 | $0 |
| (+) Curr Use (NHS): | + | $0 | $0 |
| | | -------------------------- | |
| (=) Market Value: | = | $1,550,173 | |
| (–) Productivity Loss: | – | $0 | |
| | | -------------------------- | |
| (=) Subtotal: | = | $1,550,173 | |
| (+) Senior Appraised Value: | + | $0 | |
| (+) Non-Senior Appraised Value: | + | $1,550,173 | |
| | | -------------------------- | |
| (=) Total Appraised Value: | = | $1,550,173 | |
| (–) Senior Exemption Loss: | – | $0 | |
| (–) Exemption Loss: | – | $0 | |
| | | -------------------------- | |
| (=) Taxable Value: | = | $1,550,173 | |
Taxing Jurisdiction
| Owner: | KELLY FAMILY TRUST | | |
| % Ownership: | 100.0000000000% | | |
| Total Value: | N/A | | |
| Tax Area: | 0110 - C-50F1E1H2 |
| CE | COUNTY CURRENT EXPENSE | N/A | N/A | N/A | N/A | | |
| CNTYDD | DEVELOPMENTAL DISABILITIES | N/A | N/A | N/A | N/A | | |
| CNTYVET | VETERANS RELIEF | N/A | N/A | N/A | N/A | | |
| MENTAL | MENTAL HEALTH | N/A | N/A | N/A | N/A | | |
| PTGEN | CITY OF PT GENERAL | N/A | N/A | N/A | N/A | | |
| PTLLL | CITY OF PT - LIBRARY LID LIFT | N/A | N/A | N/A | N/A | | |
| PTMVBOND | CITY OF PT MV BOND | N/A | N/A | N/A | N/A | | |
| HOSP2CASH | HOSP DIST #2 GENERAL | N/A | N/A | N/A | N/A | | |
| SCH50BOND | SCHOOL DIST #50 BOND 2016 | N/A | N/A | N/A | N/A | | |
| SCH50CP | SCHOOL DIST #50 CAP PROJ | N/A | N/A | N/A | N/A | | |
| SCH50MO | SCHOOL DIST #50 EP & O | N/A | N/A | N/A | N/A | | |
| CONSERVE | CONSERVATION FUTURES | N/A | N/A | N/A | N/A | | |
| EMS1 | FIRE DIST #1 EMS | N/A | N/A | N/A | N/A | | |
| FD1 | FIRE DIST #1 GENERAL | N/A | N/A | N/A | N/A | | |
| PORTPT | PORT OF PT GENERAL | N/A | N/A | N/A | N/A | | |
| PORTPTIDD | PORT OF PT IDD 2019 | N/A | N/A | N/A | N/A | | |
| PUD1 | PUD #1 GENERAL | N/A | N/A | N/A | N/A | | |
| STATE | STATE SCHOOL PART 1 | N/A | N/A | N/A | N/A | | |
| STATE2 | STATE SCHOOL PART 2 | N/A | N/A | N/A | N/A | | |
| | Total Tax Rate: | N/A | | | | | |
| | | | | Taxes w/Current Exemptions: | N/A | | |
| | | | | Taxes w/o Exemptions: | N/A | | |
Improvement / Building
| Improvement #1: | Residential Bldg | State Code: | 11 | 5635.0 sqft | Value: | $631,212 |
| Bathrooms (#): | 2 (FULL) | Bedrooms (#): | 5 | | Exterior Wall: | SI/ST | Fireplace: | DBL 2-GOOD | | Floor Construction: | FRAME | Foundation: | CONPR | | Heating/Cooling: | OTHER | Roof Cover: | SHNGL |
|
| | Type | Description | Class CD | Sub Class CD | Year Built | Area |
| | MA | Main Area | 5 | 2S | 1890 | 2050.0 |
| | MA2 | Second Floor Main Area | 5 | 2S | 1890 | 2035.0 |
| | MA3 | Third Floor Main Area | 5 | 2S | 1890 | 1550.0 |
| | HWPOR | House Wood Porch | 5 | 2S | 1890 | 470.0 |
| | HBAL | House Balcony | 5 | 2S | 1890 | 60.0 |
| | HDECK | House Deck | 5 | 2S | 1890 | 48.0 |
| | BSMTU | House basement unfinished | 5 | 2S | 1890 | 1500.0 |
| Improvement #2: | Residential Bldg | State Code: | 11 | 1880.0 sqft | Value: | $257,894 |
| Bathrooms (#): | 2 (FULL) | Bedrooms (#): | 2 | | Exterior Wall: | SI/ST | Fireplace: | SIN 2-AVG | | Floor Construction: | FRAME | Foundation: | CONPR | | Heating/Cooling: | ELBB | Inside Verify: | YES-FIX | | Roof Cover: | SHNGL |   |   |
|
| | Type | Description | Class CD | Sub Class CD | Year Built | Area |
| | MA | Main Area | 3 | 15SF | 1980 | 1290.0 |
| | MA2 | Second Floor Main Area | 3 | 15SF | 1980 | 590.0 |
| | HCPOR | House Concrete Porch | 3 | 15SF | 1980 | 192.0 |
| | HDECK | House Deck | 3 | 15SF | 1980 | 425.0 |
| Improvement #3: | Residential Bldg | State Code: | 11 | 496.0 sqft | Value: | $75,067 |
| Bathrooms (#): | 1 (FULL) | Bedrooms (#): | 1 | | Exterior Wall: | SI/ST | Fireplace: | WD ST-AVG | | Floor Construction: | FRAME | Foundation: | CONBL | | Heating/Cooling: | WD/NO | Inside Verify: | YES-FIX | | Roof Cover: | SHNGL |   |   |
|
| | Type | Description | Class CD | Sub Class CD | Year Built | Area |
| | MA | Main Area | 3 | 1S | 1900 | 496.0 |
| | GBSMT | Basement Garage | 2 | 1S | 1900 | 594.0 |
Sketch
| No sketches available for this property. |
Property Image
Land
| 1 | 6210-1165L | | 1.0000 | 43560.00 | 0.00 | 0.00 | 1.00 | $190,000 | $0 |
| 2 | 6210-1165L | | 0.0000 | 0.00 | 0.00 | 0.00 | 11.00 | $396,000 | $0 |
Roll Value History
| 2025 | N/A | N/A | N/A | N/A | N/A |
| 2024 | $959,089 | $582,750 | $0 | $1,541,839 | $1,541,839 |
| 2023 | $917,390 | $550,000 | $0 | $1,467,390 | $1,467,390 |
| 2022 | $917,390 | $545,000 | $0 | $1,462,390 | $1,462,390 |
| 2021 | $784,092 | $412,500 | $0 | $1,196,592 | $1,196,592 |
Deed and Sales History
| 1 | 10/27/2016 | QCD | Quit Claim Deed | KENNETH & JANE KELLY | KELLY FAMILY TRUST | | | | 126557 | |
| 2 | 03/25/2013 | QCD | Quit Claim Deed | | | | | | 119010 | |
| 3 | 01/06/2009 | SWD | Statutory Warranty Deed | NASON, NORMAN A/NANCY J | KELLY, KENNETH F/JANE F | 0 | 0 | $950,000.00 | 112387 | 0 |
| 4 | 07/05/2002 | QCD | Quit Claim Deed | NORMAN A NASON | NORMAN A/NANCY J NASON | 0 | 0 | $0.00 | 95593 | 0 |
| 5 | 02/25/2002 | SWD | Statutory Warranty Deed | APEC TRUST | NASON, NORMAN | 0 | 0 | $0.00 | 94197 | 0 |
| 6 | 10/03/2000 | SWD | Statutory Warranty Deed | MOREHEAD, RONALD J | NASON, NORMAN A/APEC TRUST | 0 | 0 | $0.00 | 90751 | 0 |
| 7 | 09/13/1995 | SWD | Statutory Warranty Deed | GREEN, DAVID L | MOREHEAD, RONALD J | 0 | 0 | $0.00 | 77767 | 0 |
Payout Agreement
| No payout information available.. |