Property
Account |
| Property ID: | 10731 | Abbreviated Legal Description: | S15 T30 R1W TAX 13 & TL TAX R |
| Parcel # / Geo ID: | 001152006 | Agent Code: | |
| Type: | Real | | |
| Tax Area: | 0111 - 1-50F1E1H2L1 | Land Use Code | 26 |
| Open Space: | N | DFL | N |
| Historic Property: | N | Remodel Property: | N |
| Multi-Family Redevelopment: | N | | |
| Township: | 30N | Section: | 15 |
| Range: | 1W |
Location |
| Address: | 100 MILL RD PORT TOWNSEND, WA 98368 | Mapsco: | 088/004 |
| Neighborhood: | THOMAS ST COMMERCIAL / EASTVIEW INDUSTRIAL | Map ID: | |
| Neighborhood CD: | 5345C |
Owner |
| Name: | PORT TOWNSEND PAPER CORP | Owner ID: | 25039 |
| Mailing Address: | 100 MILL RD PORT TOWNSEND, WA 98368-2246 | % Ownership: | 100.0000000000% |
| | | Exemptions: | |
Pay Tax Due
Select the appropriate checkbox next to the year to be paid. Multiple years may be selected.
*Convenience Fee not included
Taxes and Assessment Details
Property Tax Information as of
10/23/2025
Click on "Statement Details" to expand or collapse a tax statement.
* Please enter a valid date ** Please enter a valid date *
Statement Details |
| 2025 | 697 | STATE - STATE LEVY (SCHOOL) | $24378.77 | $24378.75 | $0.00 | $0.00 | $24378.77 | $24378.75 |
| 2025 | 697 | COUNTY - COUNTY LEVIES (CE, DD, VET, MH) | $9586.79 | $9586.78 | $0.00 | $0.00 | $9586.79 | $9586.78 |
| 2025 | 697 | CONSERVE - CONSERVATION FUTURES | $287.47 | $287.47 | $0.00 | $0.00 | $287.47 | $287.47 |
| 2025 | 697 | COROADS - COUNTY ROADS (ROADS, DIV TO CE) | $7680.53 | $7680.53 | $0.00 | $0.00 | $7680.53 | $7680.53 |
| 2025 | 697 | PORTPT - PORT DISTRICT | $3911.96 | $3911.96 | $0.00 | $0.00 | $3911.96 | $3911.96 |
| 2025 | 697 | PUD1 - PUD #1 | $627.30 | $627.30 | $0.00 | $0.00 | $627.30 | $627.30 |
| 2025 | 697 | LIB1 - LIBRARY DIST #1 | $2971.54 | $2971.53 | $0.00 | $0.00 | $2971.54 | $2971.53 |
| 2025 | 697 | HD2 - HOSP DIST #2 | $559.32 | $559.31 | $0.00 | $0.00 | $559.32 | $559.31 |
| 2025 | 697 | SD50 - SCHOOL DIST #50 | $17816.81 | $17816.81 | $0.00 | $0.00 | $17816.81 | $17816.81 |
| 2025 | 697 | FD1 - FIRE DISTRICT #1 | $12650.83 | $12650.82 | $0.00 | $0.00 | $12650.83 | $12650.82 |
| 2025 | 697 | EMS1 - FIRE DIST #1 EMS | $4865.85 | $4865.84 | $0.00 | $0.00 | $4865.85 | $4865.84 |
| 2025 | 697 | JCCD - JC Conservation District | $4.13 | $4.13 | $0.00 | $0.00 | $4.13 | $4.13 |
| 2025 | 697 | NWA - Noxious Weed Assessment | $8.15 | $8.15 | $0.00 | $0.00 | $8.15 | $8.15 |
| 2025 | 697 | WAT - Clean Water District | $13.00 | $13.00 | $0.00 | $0.00 | $13.00 | $13.00 |
| 2025 | 697 | TOTAL: | $85362.45 | $85362.38 | $0.00 | $0.00 | $85362.45 | $85362.38 |
|
| 2025 | 697 | $85362.45 | $85362.38 | $0.00 | $0.00 | $85362.45 | $85362.38 |
Statement Details |
| 2024 | 698 | STATE - STATE LEVY (SCHOOL) | $23520.44 | $23520.44 | $0.00 | $0.00 | $47040.88 | $0.00 |
| 2024 | 698 | COUNTY - COUNTY LEVIES (CE, DD, VET, MH) | $10064.63 | $10064.61 | $0.00 | $0.00 | $20129.24 | $0.00 |
| 2024 | 698 | CONSERVE - CONSERVATION FUTURES | $301.80 | $301.80 | $0.00 | $0.00 | $603.60 | $0.00 |
| 2024 | 698 | COROADS - COUNTY ROADS (ROADS, DIV TO CE) | $8098.67 | $8098.67 | $0.00 | $0.00 | $16197.34 | $0.00 |
| 2024 | 698 | PORTPT - PORT DISTRICT | $4157.12 | $4157.11 | $0.00 | $0.00 | $8314.23 | $0.00 |
| 2024 | 698 | PUD1 - PUD #1 | $661.09 | $661.08 | $0.00 | $0.00 | $1322.17 | $0.00 |
| 2024 | 698 | LIB1 - LIBRARY DIST #1 | $3133.31 | $3133.31 | $0.00 | $0.00 | $6266.62 | $0.00 |
| 2024 | 698 | HD2 - HOSP DIST #2 | $587.25 | $587.24 | $0.00 | $0.00 | $1174.49 | $0.00 |
| 2024 | 698 | SD50 - SCHOOL DIST #50 | $19029.15 | $19029.13 | $0.00 | $0.00 | $38058.28 | $0.00 |
| 2024 | 698 | FD1 - FIRE DISTRICT #1 | $13307.81 | $13307.81 | $0.00 | $0.00 | $26615.62 | $0.00 |
| 2024 | 698 | EMS1 - FIRE DIST #1 EMS | $5083.09 | $5083.09 | $0.00 | $0.00 | $10166.18 | $0.00 |
| 2024 | 698 | JCCD - JC Conservation District | $4.13 | $4.13 | $0.00 | $0.00 | $8.26 | $0.00 |
| 2024 | 698 | NWA - Noxious Weed Assessment | $8.15 | $8.15 | $0.00 | $0.00 | $16.30 | $0.00 |
| 2024 | 698 | WAT - Clean Water District | $12.50 | $12.50 | $0.00 | $0.00 | $25.00 | $0.00 |
| 2024 | 698 | TOTAL: | $87969.14 | $87969.07 | $0.00 | $0.00 | $175938.21 | $0.00 |
|
| 2024 | 698 | $87969.14 | $87969.07 | $0.00 | $0.00 | $175938.21 | $0.00 |
Statement Details |
| 2023 | 698 | STATE - STATE LEVY (SCHOOL) | $31343.74 | $31343.73 | $0.00 | $0.00 | $62687.47 | $0.00 |
| 2023 | 698 | COUNTY - COUNTY LEVIES (CE, DD, VET, MH) | $13677.43 | $13677.40 | $0.00 | $0.00 | $27354.83 | $0.00 |
| 2023 | 698 | CONSERVE - CONSERVATION FUTURES | $410.13 | $410.13 | $0.00 | $0.00 | $820.26 | $0.00 |
| 2023 | 698 | COROADS - COUNTY ROADS (ROADS, DIV TO CE) | $11066.02 | $11066.02 | $0.00 | $0.00 | $22132.04 | $0.00 |
| 2023 | 698 | PORTPT - PORT DISTRICT | $5761.69 | $5761.68 | $0.00 | $0.00 | $11523.37 | $0.00 |
| 2023 | 698 | PUD1 - PUD #1 | $906.63 | $906.63 | $0.00 | $0.00 | $1813.26 | $0.00 |
| 2023 | 698 | LIB1 - LIBRARY DIST #1 | $4281.35 | $4281.35 | $0.00 | $0.00 | $8562.70 | $0.00 |
| 2023 | 698 | HD2 - HOSP DIST #2 | $798.15 | $798.15 | $0.00 | $0.00 | $1596.30 | $0.00 |
| 2023 | 698 | SD50 - SCHOOL DIST #50 | $24871.82 | $24871.82 | $0.00 | $0.00 | $49743.64 | $0.00 |
| 2023 | 698 | FD1 - FIRE DISTRICT #1 | $11267.49 | $11267.48 | $0.00 | $0.00 | $22534.97 | $0.00 |
| 2023 | 698 | EMS1 - FIRE DIST #1 EMS | $4792.98 | $4792.98 | $0.00 | $0.00 | $9585.96 | $0.00 |
| 2023 | 698 | JCCD - JC Conservation District | $4.13 | $4.13 | $0.00 | $0.00 | $8.26 | $0.00 |
| 2023 | 698 | NWA - Noxious Weed Assessment | $8.15 | $8.15 | $0.00 | $0.00 | $16.30 | $0.00 |
| 2023 | 698 | WAT - Clean Water District | $12.00 | $12.00 | $0.00 | $0.00 | $24.00 | $0.00 |
| 2023 | 698 | TOTAL: | $109201.71 | $109201.65 | $0.00 | $0.00 | $218403.36 | $0.00 |
|
| 2023 | 698 | $109201.71 | $109201.65 | $0.00 | $0.00 | $218403.36 | $0.00 |
Statement Details |
| 2022 | 700 | STATE - STATE LEVY (SCHOOL) | $85093.33 | $85093.31 | $0.00 | $0.00 | $170186.64 | $0.00 |
| 2022 | 700 | COUNTY - COUNTY LEVIES (CE, DD, VET, MH) | $37913.71 | $37913.69 | $0.00 | $0.00 | $75827.40 | $0.00 |
| 2022 | 700 | CONSERVE - CONSERVATION FUTURES | $1136.88 | $1136.88 | $0.00 | $0.00 | $2273.76 | $0.00 |
| 2022 | 700 | COROADS - COUNTY ROADS (ROADS, DIV TO CE) | $30814.51 | $30814.49 | $0.00 | $0.00 | $61629.00 | $0.00 |
| 2022 | 700 | PORTPT - PORT DISTRICT | $16230.73 | $16230.72 | $0.00 | $0.00 | $32461.45 | $0.00 |
| 2022 | 700 | PUD1 - PUD #1 | $2535.37 | $2535.36 | $0.00 | $0.00 | $5070.73 | $0.00 |
| 2022 | 700 | LIB1 - LIBRARY DIST #1 | $11921.88 | $11921.87 | $0.00 | $0.00 | $23843.75 | $0.00 |
| 2022 | 700 | HD2 - HOSP DIST #2 | $2213.08 | $2213.06 | $0.00 | $0.00 | $4426.14 | $0.00 |
| 2022 | 700 | SD50 - SCHOOL DIST #50 | $63058.29 | $63058.29 | $0.00 | $0.00 | $126116.58 | $0.00 |
| 2022 | 700 | FD1 - FIRE DISTRICT #1 | $31103.18 | $31103.17 | $0.00 | $0.00 | $62206.35 | $0.00 |
| 2022 | 700 | EMS1 - FIRE DIST #1 EMS | $13230.05 | $13230.05 | $0.00 | $0.00 | $26460.10 | $0.00 |
| 2022 | 700 | JCCD - JC Conservation District | $4.13 | $4.13 | $0.00 | $0.00 | $8.26 | $0.00 |
| 2022 | 700 | NWA - Noxious Weed Assessment | $8.15 | $8.15 | $0.00 | $0.00 | $16.30 | $0.00 |
| 2022 | 700 | WAT - Clean Water District | $11.50 | $11.50 | $0.00 | $0.00 | $23.00 | $0.00 |
| 2022 | 700 | TOTAL: | $295274.79 | $295274.67 | $0.00 | $0.00 | $590549.46 | $0.00 |
|
| 2022 | 700 | $295274.79 | $295274.67 | $0.00 | $0.00 | $590549.46 | $0.00 |
Values
| (+) Improvement Homesite Value: | + | $0 | |
| (+) Improvement Non-Homesite Value: | + | $17,025,553 | |
| (+) Land Homesite Value: | + | $0 | |
| (+) Land Non-Homesite Value: | + | $3,306,800 | |
| (+) Curr Use (HS): | + | $0 | $0 |
| (+) Curr Use (NHS): | + | $0 | $0 |
| | | -------------------------- | |
| (=) Market Value: | = | $20,332,353 | |
| (–) Productivity Loss: | – | $0 | |
| | | -------------------------- | |
| (=) Subtotal: | = | $20,332,353 | |
| (+) Senior Appraised Value: | + | $0 | |
| (+) Non-Senior Appraised Value: | + | $20,332,353 | |
| | | -------------------------- | |
| (=) Total Appraised Value: | = | $20,332,353 | |
| (–) Senior Exemption Loss: | – | $0 | |
| (–) Exemption Loss: | – | $0 | |
| | | -------------------------- | |
| (=) Taxable Value: | = | $20,332,353 | |
Taxing Jurisdiction
| Owner: | PORT TOWNSEND PAPER CORP | | |
| % Ownership: | 100.0000000000% | | |
| Total Value: | N/A | | |
| Tax Area: | 0111 - 1-50F1E1H2L1 |
| CE | COUNTY CURRENT EXPENSE | N/A | N/A | N/A | N/A | | |
| CNTYDD | DEVELOPMENTAL DISABILITIES | N/A | N/A | N/A | N/A | | |
| CNTYVET | VETERANS RELIEF | N/A | N/A | N/A | N/A | | |
| MENTAL | MENTAL HEALTH | N/A | N/A | N/A | N/A | | |
| ROADS | COUNTY ROADS | N/A | N/A | N/A | N/A | | |
| ROADSCU | COUNTY ROADS TO CUR EXP | N/A | N/A | N/A | N/A | | |
| HOSP2CASH | HOSP DIST #2 GENERAL | N/A | N/A | N/A | N/A | | |
| SCH50BOND | SCHOOL DIST #50 BOND 2016 | N/A | N/A | N/A | N/A | | |
| SCH50CP | SCHOOL DIST #50 CAP PROJ | N/A | N/A | N/A | N/A | | |
| SCH50MO | SCHOOL DIST #50 EP & O | N/A | N/A | N/A | N/A | | |
| CONSERVE | CONSERVATION FUTURES | N/A | N/A | N/A | N/A | | |
| EMS1 | FIRE DIST #1 EMS | N/A | N/A | N/A | N/A | | |
| FD1 | FIRE DIST #1 GENERAL | N/A | N/A | N/A | N/A | | |
| LIB1 | LIBRARY DIST #1 GENERAL | N/A | N/A | N/A | N/A | | |
| PORTPT | PORT OF PT GENERAL | N/A | N/A | N/A | N/A | | |
| PORTPTIDD | PORT OF PT IDD 2019 | N/A | N/A | N/A | N/A | | |
| PUD1 | PUD #1 GENERAL | N/A | N/A | N/A | N/A | | |
| STATE | STATE SCHOOL PART 1 | N/A | N/A | N/A | N/A | | |
| STATE2 | STATE SCHOOL PART 2 | N/A | N/A | N/A | N/A | | |
| | Total Tax Rate: | N/A | | | | | |
| | | | | Taxes w/Current Exemptions: | N/A | | |
| | | | | Taxes w/o Exemptions: | N/A | | |
Improvement / Building
| Improvement #1: | Commercial/Industrial/Government Bldg | State Code: | 26 | 0.0 sqft | Value: | $17,025,553 |
Sketch
| No sketches available for this property. |
Property Image
Land
| 1 | 5345-5515S | | 47.2400 | 2057774.40 | 0.00 | 0.00 | 1.00 | $3,306,800 | $0 |
Roll Value History
| 2025 | N/A | N/A | N/A | N/A | N/A |
| 2024 | $17,025,553 | $3,306,800 | $0 | $20,332,353 | $20,332,353 |
| 2023 | $17,025,553 | $3,306,800 | $0 | $20,332,353 | $20,332,353 |
| 2022 | $23,321,579 | $3,306,800 | $0 | $26,628,379 | $26,628,379 |
| 2021 | $57,378,530 | $4,863,600 | $0 | $62,242,130 | $62,242,130 |
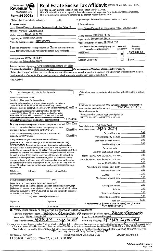
Deed and Sales History
| 1 | 10/11/2022 | CONTR INT | CONTROL INT TRANSFER | PORT TOWNSEND CR MGMT LP | CROWN PAPER GROUP HOLDINGS LLC | | | $1,820,000.00 | 0 | CONTROLLING INT REET |
Payout Agreement
| No payout information available.. |