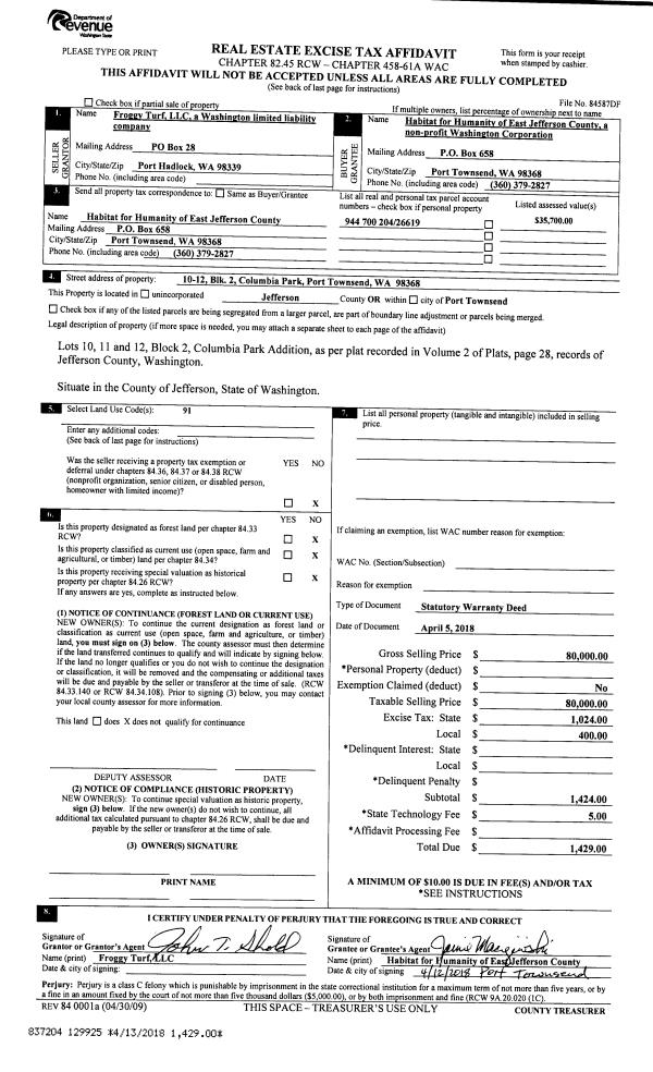
Property
Account |
| Property ID: | 10821 | Abbreviated Legal Description: | S17 T30 R1W TAX 95 (EXCLUDES CO RD R/W & RR R/W) BND THRU BLA #91748 |
| Parcel # / Geo ID: | 001173008 | Agent Code: | |
| Type: | Real | | |
| Tax Area: | 0111 - 1-50F1E1H2L1 | Land Use Code | 11 |
| Open Space: | N | DFL | N |
| Historic Property: | N | Remodel Property: | N |
| Multi-Family Redevelopment: | N | | |
| Township: | 30N | Section: | 17 |
| Range: | 1W |
Location |
| Address: | 732 CAPE GEORGE RD PORT TOWNSEND, WA 98368 | Mapsco: | 090/041 |
| Neighborhood: | S16&17 T30 R1W SALEM,EVERGRN,IRVING&SUNNYSIDE PKS,PIONEER AC | Map ID: | |
| Neighborhood CD: | 5340 |
Owner |
| Name: | TRACY J RALLS | Owner ID: | 25415 |
| Mailing Address: | JAN M RALLS PO BOX 1841 PORT TOWNSEND, WA 98368-0056 | % Ownership: | 100.0000000000% |
| | | Exemptions: | |
Pay Tax Due
There is currently No Amount Due on this property.
Taxes and Assessment Details
Property Tax Information as of
10/23/2025
Click on "Statement Details" to expand or collapse a tax statement.
* Please enter a valid date ** Please enter a valid date *
Statement Details |
| 2025 | 785 | STATE - STATE LEVY (SCHOOL) | $390.10 | $390.10 | $0.00 | $0.00 | $780.20 | $0.00 |
| 2025 | 785 | COUNTY - COUNTY LEVIES (CE, DD, VET, MH) | $153.41 | $153.41 | $0.00 | $0.00 | $306.82 | $0.00 |
| 2025 | 785 | CONSERVE - CONSERVATION FUTURES | $4.60 | $4.60 | $0.00 | $0.00 | $9.20 | $0.00 |
| 2025 | 785 | COROADS - COUNTY ROADS (ROADS, DIV TO CE) | $122.91 | $122.89 | $0.00 | $0.00 | $245.80 | $0.00 |
| 2025 | 785 | PORTPT - PORT DISTRICT | $62.60 | $62.59 | $0.00 | $0.00 | $125.19 | $0.00 |
| 2025 | 785 | PUD1 - PUD #1 | $10.04 | $10.04 | $0.00 | $0.00 | $20.08 | $0.00 |
| 2025 | 785 | LIB1 - LIBRARY DIST #1 | $47.55 | $47.55 | $0.00 | $0.00 | $95.10 | $0.00 |
| 2025 | 785 | HD2 - HOSP DIST #2 | $8.95 | $8.95 | $0.00 | $0.00 | $17.90 | $0.00 |
| 2025 | 785 | SD50 - SCHOOL DIST #50 | $285.11 | $285.09 | $0.00 | $0.00 | $570.20 | $0.00 |
| 2025 | 785 | FD1 - FIRE DISTRICT #1 | $202.44 | $202.43 | $0.00 | $0.00 | $404.87 | $0.00 |
| 2025 | 785 | EMS1 - FIRE DIST #1 EMS | $77.86 | $77.86 | $0.00 | $0.00 | $155.72 | $0.00 |
| 2025 | 785 | FP - DNR Forest Fire Protection Assmt | $8.50 | $8.50 | $0.00 | $0.00 | $17.00 | $0.00 |
| 2025 | 785 | FPLCA - DNR Landowner Contingency Assmt | $3.00 | $3.00 | $0.00 | $0.00 | $6.00 | $0.00 |
| 2025 | 785 | JCCD - JC Conservation District | $2.70 | $2.70 | $0.00 | $0.00 | $5.40 | $0.00 |
| 2025 | 785 | NWA - Noxious Weed Assessment | $2.60 | $2.60 | $0.00 | $0.00 | $5.20 | $0.00 |
| 2025 | 785 | OSS - On Site Septic | $21.50 | $21.50 | $0.00 | $0.00 | $43.00 | $0.00 |
| 2025 | 785 | WAT - Clean Water District | $13.00 | $13.00 | $0.00 | $0.00 | $26.00 | $0.00 |
| 2025 | 785 | FP ADMIN - FP ADMIN | $0.50 | $0.00 | $0.00 | $0.00 | $0.50 | $0.00 |
| 2025 | 785 | TOTAL: | $1417.37 | $1416.81 | $0.00 | $0.00 | $2834.18 | $0.00 |
|
| 2025 | 785 | $1417.37 | $1416.81 | $0.00 | $0.00 | $2834.18 | $0.00 |
Statement Details |
| 2024 | 787 | STATE - STATE LEVY (SCHOOL) | $354.07 | $354.07 | $0.00 | $0.00 | $708.14 | $0.00 |
| 2024 | 787 | COUNTY - COUNTY LEVIES (CE, DD, VET, MH) | $151.53 | $151.49 | $0.00 | $0.00 | $303.02 | $0.00 |
| 2024 | 787 | CONSERVE - CONSERVATION FUTURES | $4.55 | $4.54 | $0.00 | $0.00 | $9.09 | $0.00 |
| 2024 | 787 | COROADS - COUNTY ROADS (ROADS, DIV TO CE) | $121.92 | $121.91 | $0.00 | $0.00 | $243.83 | $0.00 |
| 2024 | 787 | PORTPT - PORT DISTRICT | $62.59 | $62.58 | $0.00 | $0.00 | $125.17 | $0.00 |
| 2024 | 787 | PUD1 - PUD #1 | $9.95 | $9.95 | $0.00 | $0.00 | $19.90 | $0.00 |
| 2024 | 787 | LIB1 - LIBRARY DIST #1 | $47.17 | $47.17 | $0.00 | $0.00 | $94.34 | $0.00 |
| 2024 | 787 | HD2 - HOSP DIST #2 | $8.84 | $8.84 | $0.00 | $0.00 | $17.68 | $0.00 |
| 2024 | 787 | SD50 - SCHOOL DIST #50 | $286.47 | $286.45 | $0.00 | $0.00 | $572.92 | $0.00 |
| 2024 | 787 | FD1 - FIRE DISTRICT #1 | $200.34 | $200.33 | $0.00 | $0.00 | $400.67 | $0.00 |
| 2024 | 787 | EMS1 - FIRE DIST #1 EMS | $76.52 | $76.52 | $0.00 | $0.00 | $153.04 | $0.00 |
| 2024 | 787 | FP - DNR Forest Fire Protection Assmt | $8.50 | $8.50 | $0.00 | $0.00 | $17.00 | $0.00 |
| 2024 | 787 | FPLCA - DNR Landowner Contingency Assmt | $3.00 | $3.00 | $0.00 | $0.00 | $6.00 | $0.00 |
| 2024 | 787 | JCCD - JC Conservation District | $2.70 | $2.70 | $0.00 | $0.00 | $5.40 | $0.00 |
| 2024 | 787 | NWA - Noxious Weed Assessment | $2.60 | $2.60 | $0.00 | $0.00 | $5.20 | $0.00 |
| 2024 | 787 | OSS - On Site Septic | $21.00 | $21.00 | $0.00 | $0.00 | $42.00 | $0.00 |
| 2024 | 787 | WAT - Clean Water District | $12.50 | $12.50 | $0.00 | $0.00 | $25.00 | $0.00 |
| 2024 | 787 | FP ADMIN - FP ADMIN | $0.50 | $0.00 | $0.00 | $0.00 | $0.50 | $0.00 |
| 2024 | 787 | TOTAL: | $1374.75 | $1374.15 | $0.00 | $0.00 | $2748.90 | $0.00 |
|
| 2024 | 787 | $1374.75 | $1374.15 | $0.00 | $0.00 | $2748.90 | $0.00 |
Statement Details |
| 2023 | 787 | STATE - STATE LEVY (SCHOOL) | $325.41 | $325.41 | $0.00 | $0.00 | $650.82 | $0.00 |
| 2023 | 787 | COUNTY - COUNTY LEVIES (CE, DD, VET, MH) | $142.01 | $141.98 | $0.00 | $0.00 | $283.99 | $0.00 |
| 2023 | 787 | CONSERVE - CONSERVATION FUTURES | $4.26 | $4.26 | $0.00 | $0.00 | $8.52 | $0.00 |
| 2023 | 787 | COROADS - COUNTY ROADS (ROADS, DIV TO CE) | $114.89 | $114.88 | $0.00 | $0.00 | $229.77 | $0.00 |
| 2023 | 787 | PORTPT - PORT DISTRICT | $59.83 | $59.81 | $0.00 | $0.00 | $119.64 | $0.00 |
| 2023 | 787 | PUD1 - PUD #1 | $9.42 | $9.41 | $0.00 | $0.00 | $18.83 | $0.00 |
| 2023 | 787 | LIB1 - LIBRARY DIST #1 | $44.45 | $44.45 | $0.00 | $0.00 | $88.90 | $0.00 |
| 2023 | 787 | HD2 - HOSP DIST #2 | $8.29 | $8.28 | $0.00 | $0.00 | $16.57 | $0.00 |
| 2023 | 787 | SD50 - SCHOOL DIST #50 | $258.23 | $258.21 | $0.00 | $0.00 | $516.44 | $0.00 |
| 2023 | 787 | FD1 - FIRE DISTRICT #1 | $116.98 | $116.98 | $0.00 | $0.00 | $233.96 | $0.00 |
| 2023 | 787 | EMS1 - FIRE DIST #1 EMS | $49.76 | $49.76 | $0.00 | $0.00 | $99.52 | $0.00 |
| 2023 | 787 | FP - DNR Forest Fire Protection Assmt | $8.50 | $8.50 | $0.00 | $0.00 | $17.00 | $0.00 |
| 2023 | 787 | FPLCA - DNR Landowner Contingency Assmt | $3.00 | $3.00 | $0.00 | $0.00 | $6.00 | $0.00 |
| 2023 | 787 | JCCD - JC Conservation District | $2.70 | $2.70 | $0.00 | $0.00 | $5.40 | $0.00 |
| 2023 | 787 | NWA - Noxious Weed Assessment | $2.60 | $2.60 | $0.00 | $0.00 | $5.20 | $0.00 |
| 2023 | 787 | OSS - On Site Septic | $20.50 | $20.50 | $0.00 | $0.00 | $41.00 | $0.00 |
| 2023 | 787 | WAT - Clean Water District | $12.00 | $12.00 | $0.00 | $0.00 | $24.00 | $0.00 |
| 2023 | 787 | FP ADMIN - FP ADMIN | $0.50 | $0.00 | $0.00 | $0.00 | $0.50 | $0.00 |
| 2023 | 787 | TOTAL: | $1183.33 | $1182.73 | $0.00 | $0.00 | $2366.06 | $0.00 |
|
| 2023 | 787 | $1183.33 | $1182.73 | $0.00 | $0.00 | $2366.06 | $0.00 |
Statement Details |
| 2022 | 789 | STATE - STATE LEVY (SCHOOL) | $305.07 | $305.07 | $0.00 | $0.00 | $610.14 | $0.00 |
| 2022 | 789 | COUNTY - COUNTY LEVIES (CE, DD, VET, MH) | $135.93 | $135.92 | $0.00 | $0.00 | $271.85 | $0.00 |
| 2022 | 789 | CONSERVE - CONSERVATION FUTURES | $4.08 | $4.07 | $0.00 | $0.00 | $8.15 | $0.00 |
| 2022 | 789 | COROADS - COUNTY ROADS (ROADS, DIV TO CE) | $110.48 | $110.47 | $0.00 | $0.00 | $220.95 | $0.00 |
| 2022 | 789 | PORTPT - PORT DISTRICT | $58.20 | $58.18 | $0.00 | $0.00 | $116.38 | $0.00 |
| 2022 | 789 | PUD1 - PUD #1 | $9.09 | $9.09 | $0.00 | $0.00 | $18.18 | $0.00 |
| 2022 | 789 | LIB1 - LIBRARY DIST #1 | $42.74 | $42.74 | $0.00 | $0.00 | $85.48 | $0.00 |
| 2022 | 789 | HD2 - HOSP DIST #2 | $7.93 | $7.93 | $0.00 | $0.00 | $15.86 | $0.00 |
| 2022 | 789 | SD50 - SCHOOL DIST #50 | $226.08 | $226.07 | $0.00 | $0.00 | $452.15 | $0.00 |
| 2022 | 789 | FD1 - FIRE DISTRICT #1 | $111.51 | $111.51 | $0.00 | $0.00 | $223.02 | $0.00 |
| 2022 | 789 | EMS1 - FIRE DIST #1 EMS | $47.43 | $47.43 | $0.00 | $0.00 | $94.86 | $0.00 |
| 2022 | 789 | FP - DNR Forest Fire Protection Assmt | $8.50 | $8.50 | $0.00 | $0.00 | $17.00 | $0.00 |
| 2022 | 789 | FPLCA - DNR Landowner Contingency Assmt | $3.00 | $3.00 | $0.00 | $0.00 | $6.00 | $0.00 |
| 2022 | 789 | JCCD - JC Conservation District | $2.70 | $2.70 | $0.00 | $0.00 | $5.40 | $0.00 |
| 2022 | 789 | NWA - Noxious Weed Assessment | $2.60 | $2.60 | $0.00 | $0.00 | $5.20 | $0.00 |
| 2022 | 789 | OSS - On Site Septic | $19.50 | $19.50 | $0.00 | $0.00 | $39.00 | $0.00 |
| 2022 | 789 | WAT - Clean Water District | $11.50 | $11.50 | $0.00 | $0.00 | $23.00 | $0.00 |
| 2022 | 789 | FP ADMIN - FP ADMIN | $0.50 | $0.00 | $0.00 | $0.00 | $0.50 | $0.00 |
| 2022 | 789 | TOTAL: | $1106.84 | $1106.28 | $0.00 | $0.00 | $2213.12 | $0.00 |
|
| 2022 | 789 | $1106.84 | $1106.28 | $0.00 | $0.00 | $2213.12 | $0.00 |
Values
| (+) Improvement Homesite Value: | + | $0 | |
| (+) Improvement Non-Homesite Value: | + | $163,582 | |
| (+) Land Homesite Value: | + | $0 | |
| (+) Land Non-Homesite Value: | + | $161,768 | |
| (+) Curr Use (HS): | + | $0 | $0 |
| (+) Curr Use (NHS): | + | $0 | $0 |
| | | -------------------------- | |
| (=) Market Value: | = | $325,350 | |
| (–) Productivity Loss: | – | $0 | |
| | | -------------------------- | |
| (=) Subtotal: | = | $325,350 | |
| (+) Senior Appraised Value: | + | $0 | |
| (+) Non-Senior Appraised Value: | + | $325,350 | |
| | | -------------------------- | |
| (=) Total Appraised Value: | = | $325,350 | |
| (–) Senior Exemption Loss: | – | $0 | |
| (–) Exemption Loss: | – | $0 | |
| | | -------------------------- | |
| (=) Taxable Value: | = | $325,350 | |
Taxing Jurisdiction
| Owner: | TRACY J RALLS | | |
| % Ownership: | 100.0000000000% | | |
| Total Value: | N/A | | |
| Tax Area: | 0111 - 1-50F1E1H2L1 |
| CE | COUNTY CURRENT EXPENSE | N/A | N/A | N/A | N/A | | |
| CNTYDD | DEVELOPMENTAL DISABILITIES | N/A | N/A | N/A | N/A | | |
| CNTYVET | VETERANS RELIEF | N/A | N/A | N/A | N/A | | |
| MENTAL | MENTAL HEALTH | N/A | N/A | N/A | N/A | | |
| ROADS | COUNTY ROADS | N/A | N/A | N/A | N/A | | |
| ROADSCU | COUNTY ROADS TO CUR EXP | N/A | N/A | N/A | N/A | | |
| HOSP2CASH | HOSP DIST #2 GENERAL | N/A | N/A | N/A | N/A | | |
| SCH50BOND | SCHOOL DIST #50 BOND 2016 | N/A | N/A | N/A | N/A | | |
| SCH50CP | SCHOOL DIST #50 CAP PROJ | N/A | N/A | N/A | N/A | | |
| SCH50MO | SCHOOL DIST #50 EP & O | N/A | N/A | N/A | N/A | | |
| CONSERVE | CONSERVATION FUTURES | N/A | N/A | N/A | N/A | | |
| EMS1 | FIRE DIST #1 EMS | N/A | N/A | N/A | N/A | | |
| FD1 | FIRE DIST #1 GENERAL | N/A | N/A | N/A | N/A | | |
| LIB1 | LIBRARY DIST #1 GENERAL | N/A | N/A | N/A | N/A | | |
| PORTPT | PORT OF PT GENERAL | N/A | N/A | N/A | N/A | | |
| PORTPTIDD | PORT OF PT IDD 2019 | N/A | N/A | N/A | N/A | | |
| PUD1 | PUD #1 GENERAL | N/A | N/A | N/A | N/A | | |
| STATE | STATE SCHOOL PART 1 | N/A | N/A | N/A | N/A | | |
| STATE2 | STATE SCHOOL PART 2 | N/A | N/A | N/A | N/A | | |
| | Total Tax Rate: | N/A | | | | | |
| | | | | Taxes w/Current Exemptions: | N/A | | |
| | | | | Taxes w/o Exemptions: | N/A | | |
Improvement / Building
| Improvement #1: | Manufactured Home | State Code: | 11 | 1404.0 sqft | Value: | $163,582 |
| Bathrooms (#): | 3 (FULL) | Bedrooms (#): | 3 | | Exterior Wall: | PL/T1 | Fireplace: | WD ST-AVG | | Floor Construction: | FRAME | Foundation: | CONPR | | Heating/Cooling: | F/A | Roof Cover: | COMP |
|
| | Type | Description | Class CD | Sub Class CD | Year Built | Area |
| | MA | Main Area | 4 | MDBL | 1997 | 1404.0 |
| | MDECK | MH Deck | 3 | MDBL | 1997 | 72.0 |
| | MDET | MH Detached Garage | 3 | MDBL | 1997 | 864.0 |
| | SHED | Shed (Table Not Dep) | 3 | MDBL | 1997 | 0.0 |
| | MSKIRT_WD | MH Skirting - Wood | 3 | MDBL | 1997 | 158.0 |
Sketch
Property Image
Land
| 1 | 1574A | | 2.8300 | 123274.80 | 0.00 | 0.00 | 0.00 | $29,768 | $0 |
| 2 | 5340-1373S | | 1.0000 | 43560.00 | 0.00 | 0.00 | 1.00 | $132,000 | $0 |
Roll Value History
| 2025 | N/A | N/A | N/A | N/A | N/A |
| 2024 | $163,582 | $161,768 | $0 | $325,350 | $325,350 |
| 2023 | $158,586 | $147,494 | $0 | $306,080 | $306,080 |
| 2022 | $144,169 | $132,286 | $0 | $276,455 | $276,455 |
| 2021 | $109,219 | $113,929 | $0 | $223,148 | $223,148 |
Deed and Sales History
| 1 | 03/12/2003 | SWD | Statutory Warranty Deed | RICHARDSON, ANITA D | RALLS, TRACY J & JAN M | 0 | 0 | $183,000.00 | 96875 | 0 |
| 2 | 01/31/2001 | QCD | Quit Claim Deed | RICHARDSON, ANITA D | JEFFERSON COUNTY | 0 | 0 | $6,642.00 | 91746 | 0 |
| 3 | 01/16/2001 | BLA | Boundary Line Adjustment | JEFFERSON COUNTY | RICHARDSON, ANITA D | 0 | 0 | $0.00 | 91748 | 0 |
| 4 | 07/18/1997 | SWD | Statutory Warranty Deed | FOUNTAIN, ROCK E/CATHIE | RICHARDSON, ANITA D | 0 | 0 | $40,000.00 | 82386 | 0 |
Payout Agreement
| No payout information available.. |