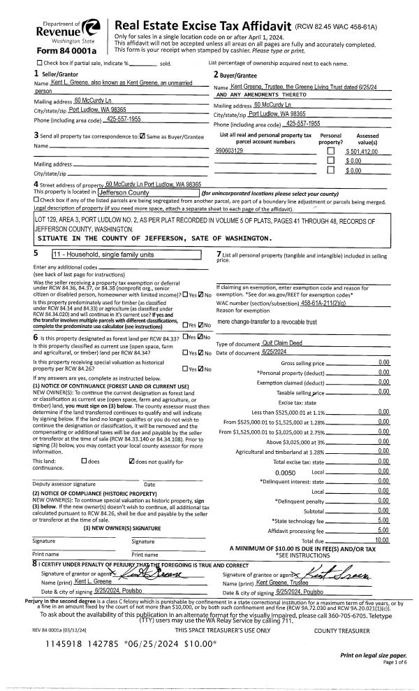
Property
Account |
| Property ID: | 10840 | Abbreviated Legal Description: | S17 T30N R1W TAX 53(LESS TAX 63) |
| Parcel # / Geo ID: | 001174010 | Agent Code: | |
| Type: | Real | | |
| Tax Area: | 0111 - 1-50F1E1H2L1 | Land Use Code | 11 |
| Open Space: | N | DFL | N |
| Historic Property: | N | Remodel Property: | N |
| Multi-Family Redevelopment: | N | | |
| Township: | 30N | Section: | 17 |
| Range: | 1W |
Location |
| Address: | 1233 S DISCOVERY RD PORT TOWNSEND, WA 98368 | Mapsco: | 090/024 |
| Neighborhood: | S16&17 T30 R1W SALEM,EVERGRN,IRVING&SUNNYSIDE PKS,PIONEER AC | Map ID: | |
| Neighborhood CD: | 5340 |
Owner |
| Name: | CASEY L QUAYLE | Owner ID: | 25296 |
| Mailing Address: | 1233 S DISCOVERY RD PORT TOWNSEND, WA 98368-9246 | % Ownership: | 100.0000000000% |
| | | Exemptions: | |
Pay Tax Due
There is currently No Amount Due on this property.
Taxes and Assessment Details
Property Tax Information as of
10/23/2025
Click on "Statement Details" to expand or collapse a tax statement.
* Please enter a valid date ** Please enter a valid date *
Statement Details |
| 2025 | 804 | STATE - STATE LEVY (SCHOOL) | $296.40 | $296.39 | $0.00 | $0.00 | $592.79 | $0.00 |
| 2025 | 804 | COUNTY - COUNTY LEVIES (CE, DD, VET, MH) | $116.56 | $116.56 | $0.00 | $0.00 | $233.12 | $0.00 |
| 2025 | 804 | CONSERVE - CONSERVATION FUTURES | $3.50 | $3.49 | $0.00 | $0.00 | $6.99 | $0.00 |
| 2025 | 804 | COROADS - COUNTY ROADS (ROADS, DIV TO CE) | $93.38 | $93.37 | $0.00 | $0.00 | $186.75 | $0.00 |
| 2025 | 804 | PORTPT - PORT DISTRICT | $47.56 | $47.56 | $0.00 | $0.00 | $95.12 | $0.00 |
| 2025 | 804 | PUD1 - PUD #1 | $7.63 | $7.62 | $0.00 | $0.00 | $15.25 | $0.00 |
| 2025 | 804 | LIB1 - LIBRARY DIST #1 | $36.13 | $36.13 | $0.00 | $0.00 | $72.26 | $0.00 |
| 2025 | 804 | HD2 - HOSP DIST #2 | $6.80 | $6.80 | $0.00 | $0.00 | $13.60 | $0.00 |
| 2025 | 804 | SD50 - SCHOOL DIST #50 | $216.62 | $216.61 | $0.00 | $0.00 | $433.23 | $0.00 |
| 2025 | 804 | FD1 - FIRE DISTRICT #1 | $153.81 | $153.80 | $0.00 | $0.00 | $307.61 | $0.00 |
| 2025 | 804 | EMS1 - FIRE DIST #1 EMS | $59.16 | $59.16 | $0.00 | $0.00 | $118.32 | $0.00 |
| 2025 | 804 | FP - DNR Forest Fire Protection Assmt | $8.50 | $8.50 | $0.00 | $0.00 | $17.00 | $0.00 |
| 2025 | 804 | FPLCA - DNR Landowner Contingency Assmt | $3.00 | $3.00 | $0.00 | $0.00 | $6.00 | $0.00 |
| 2025 | 804 | JCCD - JC Conservation District | $2.65 | $2.65 | $0.00 | $0.00 | $5.30 | $0.00 |
| 2025 | 804 | NWA - Noxious Weed Assessment | $2.45 | $2.45 | $0.00 | $0.00 | $4.90 | $0.00 |
| 2025 | 804 | OSS - On Site Septic | $21.50 | $21.50 | $0.00 | $0.00 | $43.00 | $0.00 |
| 2025 | 804 | WAT - Clean Water District | $13.00 | $13.00 | $0.00 | $0.00 | $26.00 | $0.00 |
| 2025 | 804 | FP ADMIN - FP ADMIN | $0.50 | $0.00 | $0.00 | $0.00 | $0.50 | $0.00 |
| 2025 | 804 | TOTAL: | $1089.15 | $1088.59 | $0.00 | $0.00 | $2177.74 | $0.00 |
|
| 2025 | 804 | $1089.15 | $1088.59 | $0.00 | $0.00 | $2177.74 | $0.00 |
Statement Details |
| 2024 | 806 | STATE - STATE LEVY (SCHOOL) | $260.04 | $260.04 | $0.00 | $0.00 | $520.08 | $0.00 |
| 2024 | 806 | COUNTY - COUNTY LEVIES (CE, DD, VET, MH) | $111.28 | $111.27 | $0.00 | $0.00 | $222.55 | $0.00 |
| 2024 | 806 | CONSERVE - CONSERVATION FUTURES | $3.34 | $3.33 | $0.00 | $0.00 | $6.67 | $0.00 |
| 2024 | 806 | COROADS - COUNTY ROADS (ROADS, DIV TO CE) | $89.54 | $89.54 | $0.00 | $0.00 | $179.08 | $0.00 |
| 2024 | 806 | PORTPT - PORT DISTRICT | $45.96 | $45.96 | $0.00 | $0.00 | $91.92 | $0.00 |
| 2024 | 806 | PUD1 - PUD #1 | $7.31 | $7.31 | $0.00 | $0.00 | $14.62 | $0.00 |
| 2024 | 806 | LIB1 - LIBRARY DIST #1 | $34.64 | $34.64 | $0.00 | $0.00 | $69.28 | $0.00 |
| 2024 | 806 | HD2 - HOSP DIST #2 | $6.50 | $6.49 | $0.00 | $0.00 | $12.99 | $0.00 |
| 2024 | 806 | SD50 - SCHOOL DIST #50 | $210.39 | $210.38 | $0.00 | $0.00 | $420.77 | $0.00 |
| 2024 | 806 | FD1 - FIRE DISTRICT #1 | $147.13 | $147.13 | $0.00 | $0.00 | $294.26 | $0.00 |
| 2024 | 806 | EMS1 - FIRE DIST #1 EMS | $56.20 | $56.20 | $0.00 | $0.00 | $112.40 | $0.00 |
| 2024 | 806 | FP - DNR Forest Fire Protection Assmt | $8.50 | $8.50 | $0.00 | $0.00 | $17.00 | $0.00 |
| 2024 | 806 | FPLCA - DNR Landowner Contingency Assmt | $3.00 | $3.00 | $0.00 | $0.00 | $6.00 | $0.00 |
| 2024 | 806 | JCCD - JC Conservation District | $2.65 | $2.65 | $0.00 | $0.00 | $5.30 | $0.00 |
| 2024 | 806 | NWA - Noxious Weed Assessment | $2.45 | $2.45 | $0.00 | $0.00 | $4.90 | $0.00 |
| 2024 | 806 | OSS - On Site Septic | $21.00 | $21.00 | $0.00 | $0.00 | $42.00 | $0.00 |
| 2024 | 806 | WAT - Clean Water District | $12.50 | $12.50 | $0.00 | $0.00 | $25.00 | $0.00 |
| 2024 | 806 | FP ADMIN - FP ADMIN | $0.50 | $0.00 | $0.00 | $0.00 | $0.50 | $0.00 |
| 2024 | 806 | TOTAL: | $1022.93 | $1022.39 | $0.00 | $0.00 | $2045.32 | $0.00 |
|
| 2024 | 806 | $1022.93 | $1022.39 | $0.00 | $0.00 | $2045.32 | $0.00 |
Statement Details |
| 2023 | 806 | STATE - STATE LEVY (SCHOOL) | $239.03 | $239.02 | $0.00 | $0.00 | $478.05 | $0.00 |
| 2023 | 806 | COUNTY - COUNTY LEVIES (CE, DD, VET, MH) | $104.30 | $104.30 | $0.00 | $0.00 | $208.60 | $0.00 |
| 2023 | 806 | CONSERVE - CONSERVATION FUTURES | $3.13 | $3.13 | $0.00 | $0.00 | $6.26 | $0.00 |
| 2023 | 806 | COROADS - COUNTY ROADS (ROADS, DIV TO CE) | $84.39 | $84.39 | $0.00 | $0.00 | $168.78 | $0.00 |
| 2023 | 806 | PORTPT - PORT DISTRICT | $43.94 | $43.94 | $0.00 | $0.00 | $87.88 | $0.00 |
| 2023 | 806 | PUD1 - PUD #1 | $6.92 | $6.91 | $0.00 | $0.00 | $13.83 | $0.00 |
| 2023 | 806 | LIB1 - LIBRARY DIST #1 | $32.65 | $32.65 | $0.00 | $0.00 | $65.30 | $0.00 |
| 2023 | 806 | HD2 - HOSP DIST #2 | $6.09 | $6.08 | $0.00 | $0.00 | $12.17 | $0.00 |
| 2023 | 806 | SD50 - SCHOOL DIST #50 | $189.69 | $189.66 | $0.00 | $0.00 | $379.35 | $0.00 |
| 2023 | 806 | FD1 - FIRE DISTRICT #1 | $85.93 | $85.92 | $0.00 | $0.00 | $171.85 | $0.00 |
| 2023 | 806 | EMS1 - FIRE DIST #1 EMS | $36.55 | $36.55 | $0.00 | $0.00 | $73.10 | $0.00 |
| 2023 | 806 | FP - DNR Forest Fire Protection Assmt | $8.50 | $8.50 | $0.00 | $0.00 | $17.00 | $0.00 |
| 2023 | 806 | FPLCA - DNR Landowner Contingency Assmt | $3.00 | $3.00 | $0.00 | $0.00 | $6.00 | $0.00 |
| 2023 | 806 | JCCD - JC Conservation District | $2.65 | $2.65 | $0.00 | $0.00 | $5.30 | $0.00 |
| 2023 | 806 | NWA - Noxious Weed Assessment | $2.45 | $2.45 | $0.00 | $0.00 | $4.90 | $0.00 |
| 2023 | 806 | OSS - On Site Septic | $20.50 | $20.50 | $0.00 | $0.00 | $41.00 | $0.00 |
| 2023 | 806 | WAT - Clean Water District | $12.00 | $12.00 | $0.00 | $0.00 | $24.00 | $0.00 |
| 2023 | 806 | FP ADMIN - FP ADMIN | $0.50 | $0.00 | $0.00 | $0.00 | $0.50 | $0.00 |
| 2023 | 806 | TOTAL: | $882.22 | $881.65 | $0.00 | $0.00 | $1763.87 | $0.00 |
|
| 2023 | 806 | $882.22 | $881.65 | $0.00 | $0.00 | $1763.87 | $0.00 |
Statement Details |
| 2022 | 808 | STATE - STATE LEVY (SCHOOL) | $227.85 | $227.85 | $0.00 | $0.00 | $455.70 | $0.00 |
| 2022 | 808 | COUNTY - COUNTY LEVIES (CE, DD, VET, MH) | $101.54 | $101.50 | $0.00 | $0.00 | $203.04 | $0.00 |
| 2022 | 808 | CONSERVE - CONSERVATION FUTURES | $3.05 | $3.04 | $0.00 | $0.00 | $6.09 | $0.00 |
| 2022 | 808 | COROADS - COUNTY ROADS (ROADS, DIV TO CE) | $82.51 | $82.51 | $0.00 | $0.00 | $165.02 | $0.00 |
| 2022 | 808 | PORTPT - PORT DISTRICT | $43.47 | $43.45 | $0.00 | $0.00 | $86.92 | $0.00 |
| 2022 | 808 | PUD1 - PUD #1 | $6.79 | $6.79 | $0.00 | $0.00 | $13.58 | $0.00 |
| 2022 | 808 | LIB1 - LIBRARY DIST #1 | $31.92 | $31.92 | $0.00 | $0.00 | $63.84 | $0.00 |
| 2022 | 808 | HD2 - HOSP DIST #2 | $5.94 | $5.92 | $0.00 | $0.00 | $11.86 | $0.00 |
| 2022 | 808 | SD50 - SCHOOL DIST #50 | $168.86 | $168.84 | $0.00 | $0.00 | $337.70 | $0.00 |
| 2022 | 808 | FD1 - FIRE DISTRICT #1 | $83.29 | $83.28 | $0.00 | $0.00 | $166.57 | $0.00 |
| 2022 | 808 | EMS1 - FIRE DIST #1 EMS | $35.43 | $35.42 | $0.00 | $0.00 | $70.85 | $0.00 |
| 2022 | 808 | FP - DNR Forest Fire Protection Assmt | $8.50 | $8.50 | $0.00 | $0.00 | $17.00 | $0.00 |
| 2022 | 808 | FPLCA - DNR Landowner Contingency Assmt | $3.00 | $3.00 | $0.00 | $0.00 | $6.00 | $0.00 |
| 2022 | 808 | JCCD - JC Conservation District | $2.65 | $2.65 | $0.00 | $0.00 | $5.30 | $0.00 |
| 2022 | 808 | NWA - Noxious Weed Assessment | $2.45 | $2.45 | $0.00 | $0.00 | $4.90 | $0.00 |
| 2022 | 808 | OSS - On Site Septic | $19.50 | $19.50 | $0.00 | $0.00 | $39.00 | $0.00 |
| 2022 | 808 | WAT - Clean Water District | $11.50 | $11.50 | $0.00 | $0.00 | $23.00 | $0.00 |
| 2022 | 808 | FP ADMIN - FP ADMIN | $0.50 | $0.00 | $0.00 | $0.00 | $0.50 | $0.00 |
| 2022 | 808 | TOTAL: | $838.75 | $838.12 | $0.00 | $0.00 | $1676.87 | $0.00 |
|
| 2022 | 808 | $838.75 | $838.12 | $0.00 | $0.00 | $1676.87 | $0.00 |
Values
| (+) Improvement Homesite Value: | + | $0 | |
| (+) Improvement Non-Homesite Value: | + | $92,898 | |
| (+) Land Homesite Value: | + | $0 | |
| (+) Land Non-Homesite Value: | + | $154,300 | |
| (+) Curr Use (HS): | + | $0 | $0 |
| (+) Curr Use (NHS): | + | $0 | $0 |
| | | -------------------------- | |
| (=) Market Value: | = | $247,198 | |
| (–) Productivity Loss: | – | $0 | |
| | | -------------------------- | |
| (=) Subtotal: | = | $247,198 | |
| (+) Senior Appraised Value: | + | $0 | |
| (+) Non-Senior Appraised Value: | + | $247,198 | |
| | | -------------------------- | |
| (=) Total Appraised Value: | = | $247,198 | |
| (–) Senior Exemption Loss: | – | $0 | |
| (–) Exemption Loss: | – | $0 | |
| | | -------------------------- | |
| (=) Taxable Value: | = | $247,198 | |
Taxing Jurisdiction
| Owner: | CASEY L QUAYLE | | |
| % Ownership: | 100.0000000000% | | |
| Total Value: | N/A | | |
| Tax Area: | 0111 - 1-50F1E1H2L1 |
| CE | COUNTY CURRENT EXPENSE | N/A | N/A | N/A | N/A | | |
| CNTYDD | DEVELOPMENTAL DISABILITIES | N/A | N/A | N/A | N/A | | |
| CNTYVET | VETERANS RELIEF | N/A | N/A | N/A | N/A | | |
| MENTAL | MENTAL HEALTH | N/A | N/A | N/A | N/A | | |
| ROADS | COUNTY ROADS | N/A | N/A | N/A | N/A | | |
| ROADSCU | COUNTY ROADS TO CUR EXP | N/A | N/A | N/A | N/A | | |
| HOSP2CASH | HOSP DIST #2 GENERAL | N/A | N/A | N/A | N/A | | |
| SCH50BOND | SCHOOL DIST #50 BOND 2016 | N/A | N/A | N/A | N/A | | |
| SCH50CP | SCHOOL DIST #50 CAP PROJ | N/A | N/A | N/A | N/A | | |
| SCH50MO | SCHOOL DIST #50 EP & O | N/A | N/A | N/A | N/A | | |
| CONSERVE | CONSERVATION FUTURES | N/A | N/A | N/A | N/A | | |
| EMS1 | FIRE DIST #1 EMS | N/A | N/A | N/A | N/A | | |
| FD1 | FIRE DIST #1 GENERAL | N/A | N/A | N/A | N/A | | |
| LIB1 | LIBRARY DIST #1 GENERAL | N/A | N/A | N/A | N/A | | |
| PORTPT | PORT OF PT GENERAL | N/A | N/A | N/A | N/A | | |
| PORTPTIDD | PORT OF PT IDD 2019 | N/A | N/A | N/A | N/A | | |
| PUD1 | PUD #1 GENERAL | N/A | N/A | N/A | N/A | | |
| STATE | STATE SCHOOL PART 1 | N/A | N/A | N/A | N/A | | |
| STATE2 | STATE SCHOOL PART 2 | N/A | N/A | N/A | N/A | | |
| | Total Tax Rate: | N/A | | | | | |
| | | | | Taxes w/Current Exemptions: | N/A | | |
| | | | | Taxes w/o Exemptions: | N/A | | |
Improvement / Building
| Improvement #1: | Manufactured Home | State Code: | 11 | 1080.0 sqft | Value: | $92,898 |
| Bathrooms (#): | 2 (FULL) | Bedrooms (#): | 3 | | Exterior Wall: | PL/T1 | Floor Construction: | FRAME | | Foundation: | CONPR | Heating/Cooling: | F/A | | Inside Verify: | YES-FIX | Roof Cover: | COMP |
|
| | Type | Description | Class CD | Sub Class CD | Year Built | Area |
| | MA | Main Area | 3+ | MDBL | 1997 | 1080.0 |
| | CARPTN | Carport W/O Floor | 1 | MDBL | 1997 | 120.0 |
| | MSKIRT_WD | MH Skirting - Wood | 3 | MDBL | 1997 | 134.0 |
Sketch
Property Image
Land
| 1 | 5340-1373S | | 1.0000 | 43560.00 | 0.00 | 0.00 | 1.00 | $132,000 | $0 |
| 2 | 1574A | | 1.5900 | 69260.40 | 0.00 | 0.00 | 0.00 | $22,300 | $0 |
Roll Value History
| 2025 | N/A | N/A | N/A | N/A | N/A |
| 2024 | $92,898 | $154,300 | $0 | $247,198 | $247,198 |
| 2023 | $84,010 | $140,784 | $0 | $224,794 | $224,794 |
| 2022 | $76,373 | $126,695 | $0 | $203,068 | $203,068 |
| 2021 | $57,858 | $108,804 | $0 | $166,662 | $166,662 |
Deed and Sales History
| 1 | 01/03/2013 | QCD | Quit Claim Deed | | | | | | 118838 | |
| 2 | 01/03/2013 | QCD | Quit Claim Deed | DARLENE E QUAYLE | CASEY L QUAYLE | | | | 118633 | |
| 3 | 04/25/1997 | SWD | Statutory Warranty Deed | CLARK, EDWARD S/REBECCA P | QUAYLE, CASEY/DARLENE | 0 | 0 | $0.00 | 82259 | 0 |
| 4 | 04/22/1997 | SWD | Statutory Warranty Deed | CLARK, EDWARD S/REBECCA P | QUAYLE, CASEY/DARLENE | 0 | 0 | $21,000.00 | 81919 | 0 |
| 5 | 06/08/1993 | BLA | Boundary Line Adjustment | CLARK, EDWARD | CLARK, EDWARD | 0 | 0 | $0.00 | 71331 | 0 |
Payout Agreement
| No payout information available.. |