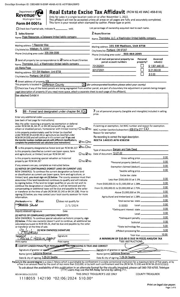
Property
Account |
| Property ID: | 10850 | Abbreviated Legal Description: | S17 T30N R1W TAX 25(NORTH OF RD) |
| Parcel # / Geo ID: | 001174020 | Agent Code: | |
| Type: | Real | | |
| Tax Area: | 0111 - 1-50F1E1H2L1 | Land Use Code | 11 |
| Open Space: | N | DFL | N |
| Historic Property: | N | Remodel Property: | N |
| Multi-Family Redevelopment: | N | | |
| Township: | 30N | Section: | 17 |
| Range: | 1W |
Location |
| Address: | 150 NELSON'S LANDING RD PORT TOWNSEND, WA 98368 | Mapsco: | 089/020 |
| Neighborhood: | S16&17 T30 R1W SALEM,EVERGRN,IRVING&SUNNYSIDE PKS,PIONEER AC | Map ID: | |
| Neighborhood CD: | 5340 |
Owner |
| Name: | MICHAEL A DOAN | Owner ID: | 14616 |
| Mailing Address: | ANGELA M DOAN 150 NELSONS LANDING RD PORT TOWNSEND, WA 98368-9648 | % Ownership: | 100.0000000000% |
| | | Exemptions: | |
Pay Tax Due
There is currently No Amount Due on this property.
Taxes and Assessment Details
Property Tax Information as of
10/23/2025
Click on "Statement Details" to expand or collapse a tax statement.
* Please enter a valid date ** Please enter a valid date *
Statement Details |
| 2025 | 814 | STATE - STATE LEVY (SCHOOL) | $379.92 | $379.91 | $0.00 | $0.00 | $759.83 | $0.00 |
| 2025 | 814 | COUNTY - COUNTY LEVIES (CE, DD, VET, MH) | $149.41 | $149.38 | $0.00 | $0.00 | $298.79 | $0.00 |
| 2025 | 814 | CONSERVE - CONSERVATION FUTURES | $4.48 | $4.48 | $0.00 | $0.00 | $8.96 | $0.00 |
| 2025 | 814 | COROADS - COUNTY ROADS (ROADS, DIV TO CE) | $119.69 | $119.69 | $0.00 | $0.00 | $239.38 | $0.00 |
| 2025 | 814 | PORTPT - PORT DISTRICT | $60.97 | $60.95 | $0.00 | $0.00 | $121.92 | $0.00 |
| 2025 | 814 | PUD1 - PUD #1 | $9.78 | $9.77 | $0.00 | $0.00 | $19.55 | $0.00 |
| 2025 | 814 | LIB1 - LIBRARY DIST #1 | $46.31 | $46.31 | $0.00 | $0.00 | $92.62 | $0.00 |
| 2025 | 814 | HD2 - HOSP DIST #2 | $8.72 | $8.71 | $0.00 | $0.00 | $17.43 | $0.00 |
| 2025 | 814 | SD50 - SCHOOL DIST #50 | $277.66 | $277.64 | $0.00 | $0.00 | $555.30 | $0.00 |
| 2025 | 814 | FD1 - FIRE DISTRICT #1 | $197.15 | $197.15 | $0.00 | $0.00 | $394.30 | $0.00 |
| 2025 | 814 | EMS1 - FIRE DIST #1 EMS | $75.83 | $75.83 | $0.00 | $0.00 | $151.66 | $0.00 |
| 2025 | 814 | FP - DNR Forest Fire Protection Assmt | $8.50 | $8.50 | $0.00 | $0.00 | $17.00 | $0.00 |
| 2025 | 814 | FPLCA - DNR Landowner Contingency Assmt | $3.00 | $3.00 | $0.00 | $0.00 | $6.00 | $0.00 |
| 2025 | 814 | JCCD - JC Conservation District | $2.65 | $2.65 | $0.00 | $0.00 | $5.30 | $0.00 |
| 2025 | 814 | NWA - Noxious Weed Assessment | $2.45 | $2.45 | $0.00 | $0.00 | $4.90 | $0.00 |
| 2025 | 814 | OSS - On Site Septic | $21.50 | $21.50 | $0.00 | $0.00 | $43.00 | $0.00 |
| 2025 | 814 | WAT - Clean Water District | $13.00 | $13.00 | $0.00 | $0.00 | $26.00 | $0.00 |
| 2025 | 814 | FP ADMIN - FP ADMIN | $0.50 | $0.00 | $0.00 | $0.00 | $0.50 | $0.00 |
| 2025 | 814 | TOTAL: | $1381.52 | $1380.92 | $0.00 | $0.00 | $2762.44 | $0.00 |
|
| 2025 | 814 | $1381.52 | $1380.92 | $0.00 | $0.00 | $2762.44 | $0.00 |
Statement Details |
| 2024 | 816 | STATE - STATE LEVY (SCHOOL) | $294.12 | $294.10 | $0.00 | $0.00 | $588.22 | $0.00 |
| 2024 | 816 | COUNTY - COUNTY LEVIES (CE, DD, VET, MH) | $125.86 | $125.85 | $0.00 | $0.00 | $251.71 | $0.00 |
| 2024 | 816 | CONSERVE - CONSERVATION FUTURES | $3.78 | $3.77 | $0.00 | $0.00 | $7.55 | $0.00 |
| 2024 | 816 | COROADS - COUNTY ROADS (ROADS, DIV TO CE) | $101.27 | $101.27 | $0.00 | $0.00 | $202.54 | $0.00 |
| 2024 | 816 | PORTPT - PORT DISTRICT | $51.99 | $51.98 | $0.00 | $0.00 | $103.97 | $0.00 |
| 2024 | 816 | PUD1 - PUD #1 | $8.27 | $8.26 | $0.00 | $0.00 | $16.53 | $0.00 |
| 2024 | 816 | LIB1 - LIBRARY DIST #1 | $39.18 | $39.18 | $0.00 | $0.00 | $78.36 | $0.00 |
| 2024 | 816 | HD2 - HOSP DIST #2 | $7.35 | $7.34 | $0.00 | $0.00 | $14.69 | $0.00 |
| 2024 | 816 | SD50 - SCHOOL DIST #50 | $237.96 | $237.94 | $0.00 | $0.00 | $475.90 | $0.00 |
| 2024 | 816 | FD1 - FIRE DISTRICT #1 | $166.41 | $166.41 | $0.00 | $0.00 | $332.82 | $0.00 |
| 2024 | 816 | EMS1 - FIRE DIST #1 EMS | $63.56 | $63.56 | $0.00 | $0.00 | $127.12 | $0.00 |
| 2024 | 816 | FP - DNR Forest Fire Protection Assmt | $8.50 | $8.50 | $0.00 | $0.00 | $17.00 | $0.00 |
| 2024 | 816 | FPLCA - DNR Landowner Contingency Assmt | $3.00 | $3.00 | $0.00 | $0.00 | $6.00 | $0.00 |
| 2024 | 816 | JCCD - JC Conservation District | $2.65 | $2.65 | $0.00 | $0.00 | $5.30 | $0.00 |
| 2024 | 816 | NWA - Noxious Weed Assessment | $2.45 | $2.45 | $0.00 | $0.00 | $4.90 | $0.00 |
| 2024 | 816 | OSS - On Site Septic | $21.00 | $21.00 | $0.00 | $0.00 | $42.00 | $0.00 |
| 2024 | 816 | WAT - Clean Water District | $12.50 | $12.50 | $0.00 | $0.00 | $25.00 | $0.00 |
| 2024 | 816 | FP ADMIN - FP ADMIN | $0.50 | $0.00 | $0.00 | $0.00 | $0.50 | $0.00 |
| 2024 | 816 | TOTAL: | $1150.35 | $1149.76 | $0.00 | $0.00 | $2300.11 | $0.00 |
|
| 2024 | 816 | $1150.35 | $1149.76 | $0.00 | $0.00 | $2300.11 | $0.00 |
Statement Details |
| 2023 | 816 | STATE - STATE LEVY (SCHOOL) | $271.65 | $271.64 | $0.00 | $0.00 | $543.29 | $0.00 |
| 2023 | 816 | COUNTY - COUNTY LEVIES (CE, DD, VET, MH) | $118.55 | $118.53 | $0.00 | $0.00 | $237.08 | $0.00 |
| 2023 | 816 | CONSERVE - CONSERVATION FUTURES | $3.56 | $3.55 | $0.00 | $0.00 | $7.11 | $0.00 |
| 2023 | 816 | COROADS - COUNTY ROADS (ROADS, DIV TO CE) | $95.91 | $95.90 | $0.00 | $0.00 | $191.81 | $0.00 |
| 2023 | 816 | PORTPT - PORT DISTRICT | $49.94 | $49.93 | $0.00 | $0.00 | $99.87 | $0.00 |
| 2023 | 816 | PUD1 - PUD #1 | $7.86 | $7.85 | $0.00 | $0.00 | $15.71 | $0.00 |
| 2023 | 816 | LIB1 - LIBRARY DIST #1 | $37.11 | $37.10 | $0.00 | $0.00 | $74.21 | $0.00 |
| 2023 | 816 | HD2 - HOSP DIST #2 | $6.92 | $6.92 | $0.00 | $0.00 | $13.84 | $0.00 |
| 2023 | 816 | SD50 - SCHOOL DIST #50 | $215.56 | $215.55 | $0.00 | $0.00 | $431.11 | $0.00 |
| 2023 | 816 | FD1 - FIRE DISTRICT #1 | $97.65 | $97.65 | $0.00 | $0.00 | $195.30 | $0.00 |
| 2023 | 816 | EMS1 - FIRE DIST #1 EMS | $41.54 | $41.54 | $0.00 | $0.00 | $83.08 | $0.00 |
| 2023 | 816 | FP - DNR Forest Fire Protection Assmt | $8.50 | $8.50 | $0.00 | $0.00 | $17.00 | $0.00 |
| 2023 | 816 | FPLCA - DNR Landowner Contingency Assmt | $3.00 | $3.00 | $0.00 | $0.00 | $6.00 | $0.00 |
| 2023 | 816 | JCCD - JC Conservation District | $2.65 | $2.65 | $0.00 | $0.00 | $5.30 | $0.00 |
| 2023 | 816 | NWA - Noxious Weed Assessment | $2.45 | $2.45 | $0.00 | $0.00 | $4.90 | $0.00 |
| 2023 | 816 | OSS - On Site Septic | $20.50 | $20.50 | $0.00 | $0.00 | $41.00 | $0.00 |
| 2023 | 816 | WAT - Clean Water District | $12.00 | $12.00 | $0.00 | $0.00 | $24.00 | $0.00 |
| 2023 | 816 | FP ADMIN - FP ADMIN | $0.50 | $0.00 | $0.00 | $0.00 | $0.50 | $0.00 |
| 2023 | 816 | TOTAL: | $995.85 | $995.26 | $0.00 | $0.00 | $1991.11 | $0.00 |
|
| 2023 | 816 | $995.85 | $995.26 | $0.00 | $0.00 | $1991.11 | $0.00 |
Statement Details |
| 2022 | 818 | STATE - STATE LEVY (SCHOOL) | $271.75 | $271.73 | $0.00 | $0.00 | $543.48 | $0.00 |
| 2022 | 818 | COUNTY - COUNTY LEVIES (CE, DD, VET, MH) | $121.09 | $121.05 | $0.00 | $0.00 | $242.14 | $0.00 |
| 2022 | 818 | CONSERVE - CONSERVATION FUTURES | $3.63 | $3.63 | $0.00 | $0.00 | $7.26 | $0.00 |
| 2022 | 818 | COROADS - COUNTY ROADS (ROADS, DIV TO CE) | $98.41 | $98.40 | $0.00 | $0.00 | $196.81 | $0.00 |
| 2022 | 818 | PORTPT - PORT DISTRICT | $51.83 | $51.83 | $0.00 | $0.00 | $103.66 | $0.00 |
| 2022 | 818 | PUD1 - PUD #1 | $8.10 | $8.09 | $0.00 | $0.00 | $16.19 | $0.00 |
| 2022 | 818 | LIB1 - LIBRARY DIST #1 | $38.07 | $38.07 | $0.00 | $0.00 | $76.14 | $0.00 |
| 2022 | 818 | HD2 - HOSP DIST #2 | $7.08 | $7.06 | $0.00 | $0.00 | $14.14 | $0.00 |
| 2022 | 818 | SD50 - SCHOOL DIST #50 | $201.38 | $201.37 | $0.00 | $0.00 | $402.75 | $0.00 |
| 2022 | 818 | FD1 - FIRE DISTRICT #1 | $99.33 | $99.32 | $0.00 | $0.00 | $198.65 | $0.00 |
| 2022 | 818 | EMS1 - FIRE DIST #1 EMS | $42.25 | $42.25 | $0.00 | $0.00 | $84.50 | $0.00 |
| 2022 | 818 | FP - DNR Forest Fire Protection Assmt | $8.50 | $8.50 | $0.00 | $0.00 | $17.00 | $0.00 |
| 2022 | 818 | FPLCA - DNR Landowner Contingency Assmt | $3.00 | $3.00 | $0.00 | $0.00 | $6.00 | $0.00 |
| 2022 | 818 | JCCD - JC Conservation District | $2.65 | $2.65 | $0.00 | $0.00 | $5.30 | $0.00 |
| 2022 | 818 | NWA - Noxious Weed Assessment | $2.45 | $2.45 | $0.00 | $0.00 | $4.90 | $0.00 |
| 2022 | 818 | OSS - On Site Septic | $19.50 | $19.50 | $0.00 | $0.00 | $39.00 | $0.00 |
| 2022 | 818 | WAT - Clean Water District | $11.50 | $11.50 | $0.00 | $0.00 | $23.00 | $0.00 |
| 2022 | 818 | FP ADMIN - FP ADMIN | $0.50 | $0.00 | $0.00 | $0.00 | $0.50 | $0.00 |
| 2022 | 818 | TOTAL: | $991.02 | $990.40 | $0.00 | $0.00 | $1981.42 | $0.00 |
|
| 2022 | 818 | $991.02 | $990.40 | $0.00 | $0.00 | $1981.42 | $0.00 |
Values
| (+) Improvement Homesite Value: | + | $0 | |
| (+) Improvement Non-Homesite Value: | + | $132,110 | |
| (+) Land Homesite Value: | + | $0 | |
| (+) Land Non-Homesite Value: | + | $184,745 | |
| (+) Curr Use (HS): | + | $0 | $0 |
| (+) Curr Use (NHS): | + | $0 | $0 |
| | | -------------------------- | |
| (=) Market Value: | = | $316,855 | |
| (–) Productivity Loss: | – | $0 | |
| | | -------------------------- | |
| (=) Subtotal: | = | $316,855 | |
| (+) Senior Appraised Value: | + | $0 | |
| (+) Non-Senior Appraised Value: | + | $316,855 | |
| | | -------------------------- | |
| (=) Total Appraised Value: | = | $316,855 | |
| (–) Senior Exemption Loss: | – | $0 | |
| (–) Exemption Loss: | – | $0 | |
| | | -------------------------- | |
| (=) Taxable Value: | = | $316,855 | |
Taxing Jurisdiction
| Owner: | MICHAEL A DOAN | | |
| % Ownership: | 100.0000000000% | | |
| Total Value: | N/A | | |
| Tax Area: | 0111 - 1-50F1E1H2L1 |
| CE | COUNTY CURRENT EXPENSE | N/A | N/A | N/A | N/A | | |
| CNTYDD | DEVELOPMENTAL DISABILITIES | N/A | N/A | N/A | N/A | | |
| CNTYVET | VETERANS RELIEF | N/A | N/A | N/A | N/A | | |
| MENTAL | MENTAL HEALTH | N/A | N/A | N/A | N/A | | |
| ROADS | COUNTY ROADS | N/A | N/A | N/A | N/A | | |
| ROADSCU | COUNTY ROADS TO CUR EXP | N/A | N/A | N/A | N/A | | |
| HOSP2CASH | HOSP DIST #2 GENERAL | N/A | N/A | N/A | N/A | | |
| SCH50BOND | SCHOOL DIST #50 BOND 2016 | N/A | N/A | N/A | N/A | | |
| SCH50CP | SCHOOL DIST #50 CAP PROJ | N/A | N/A | N/A | N/A | | |
| SCH50MO | SCHOOL DIST #50 EP & O | N/A | N/A | N/A | N/A | | |
| CONSERVE | CONSERVATION FUTURES | N/A | N/A | N/A | N/A | | |
| EMS1 | FIRE DIST #1 EMS | N/A | N/A | N/A | N/A | | |
| FD1 | FIRE DIST #1 GENERAL | N/A | N/A | N/A | N/A | | |
| LIB1 | LIBRARY DIST #1 GENERAL | N/A | N/A | N/A | N/A | | |
| PORTPT | PORT OF PT GENERAL | N/A | N/A | N/A | N/A | | |
| PORTPTIDD | PORT OF PT IDD 2019 | N/A | N/A | N/A | N/A | | |
| PUD1 | PUD #1 GENERAL | N/A | N/A | N/A | N/A | | |
| STATE | STATE SCHOOL PART 1 | N/A | N/A | N/A | N/A | | |
| STATE2 | STATE SCHOOL PART 2 | N/A | N/A | N/A | N/A | | |
| | Total Tax Rate: | N/A | | | | | |
| | | | | Taxes w/Current Exemptions: | N/A | | |
| | | | | Taxes w/o Exemptions: | N/A | | |
Improvement / Building
| Improvement #1: | Manufactured Home | State Code: | 11 | 1056.0 sqft | Value: | $132,110 |
| Bathrooms (#): | 2 (FULL) | Bedrooms (#): | 2 | | Exterior Wall: | PL/T1 | Floor Construction: | FRAME | | Foundation: | PO&BL | Heating/Cooling: | F/A | | Inside Verify: | YES-FIX | Roof Cover: | COMP |
|
| | Type | Description | Class CD | Sub Class CD | Year Built | Area |
| | MA | Main Area | 3+ | MDBL | 1987 | 1056.0 |
| | MWPOR | MH Wood Porch | 3 | MDBL | 1987 | 60.0 |
| | CARPTN | Carport W/O Floor | 3 | MDBL | 1987 | 484.0 |
| | MSKIRT_WD | MH Skirting - Wood | 3 | MDBL | 1987 | 136.0 |
| | MDET | MH Detached Garage | 3 | MDBL | 1987 | 1728.0 |
Sketch
Property Image
Land
| 1 | 5340-1371S | | 1.0000 | 43560.00 | 0.00 | 0.00 | 1.00 | $159,500 | $0 |
| 2 | 1574A | | 1.8000 | 78408.00 | 0.00 | 0.00 | 0.00 | $25,245 | $0 |
Roll Value History
| 2025 | N/A | N/A | N/A | N/A | N/A |
| 2024 | $132,110 | $184,745 | $0 | $316,855 | $316,855 |
| 2023 | $84,567 | $169,680 | $0 | $254,247 | $254,247 |
| 2022 | $76,879 | $153,900 | $0 | $230,779 | $230,779 |
| 2021 | $58,242 | $140,525 | $0 | $198,767 | $198,767 |
Deed and Sales History
| 1 | 10/15/2007 | SWD | Statutory Warranty Deed | MATTOS, LINDA/HANSON, CHR | DOAN, MICHAEL/ANGELA | 0 | 0 | $220,000.00 | 110224 | 0 |
| 2 | 09/20/1994 | QCD | Quit Claim Deed | MATTOS, LINDA | MATTOS, L/HANSON, CHRISTOPHER | 0 | 0 | $0.00 | 75165 | 0 |
Payout Agreement
| No payout information available.. |