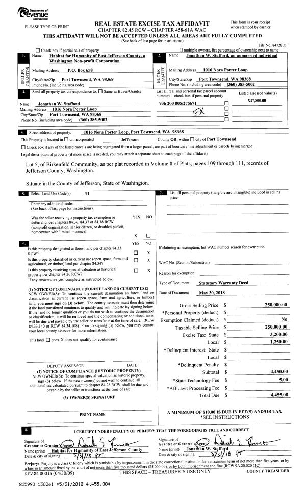
Property
Account |
| Property ID: | 10860 | Abbreviated Legal Description: | PIONEER ACRES PARCEL 8(REVISED V1/P56) SUBJ/EASE |
| Parcel # / Geo ID: | 001175008 | Agent Code: | |
| Type: | Real | | |
| Tax Area: | 0111 - 1-50F1E1H2L1 | Land Use Code | 11 |
| Open Space: | N | DFL | N |
| Historic Property: | N | Remodel Property: | N |
| Multi-Family Redevelopment: | N | | |
| Township: | 30N | Section: | 17 |
| Range: | 1W |
Location |
| Address: | 322 COUGAR RIDGE RD PORT TOWNSEND, WA 98368 | Mapsco: | 144/082 |
| Neighborhood: | S16&17 T30 R1W SALEM,EVERGRN,IRVING&SUNNYSIDE PKS,PIONEER AC | Map ID: | |
| Neighborhood CD: | 5340 |
Owner |
| Name: | MATT & TERESA FALKENSTEIN JOINT TRUST | Owner ID: | 111144 |
| Mailing Address: | MATTHEW A & TERESA R FALKENSTEIN TTES 324 COUGAR RIDGE RD PORT TOWNSEND, WA 98368 | % Ownership: | 100.0000000000% |
| | | Exemptions: | |
Pay Tax Due
Select the appropriate checkbox next to the year to be paid. Multiple years may be selected.
*Convenience Fee not included
Taxes and Assessment Details
Property Tax Information as of
10/23/2025
Click on "Statement Details" to expand or collapse a tax statement.
* Please enter a valid date ** Please enter a valid date *
Statement Details |
| 2025 | 824 | STATE - STATE LEVY (SCHOOL) | $908.18 | $908.16 | $0.00 | $0.00 | $908.18 | $908.16 |
| 2025 | 824 | COUNTY - COUNTY LEVIES (CE, DD, VET, MH) | $357.14 | $357.12 | $0.00 | $0.00 | $357.14 | $357.12 |
| 2025 | 824 | CONSERVE - CONSERVATION FUTURES | $10.71 | $10.71 | $0.00 | $0.00 | $10.71 | $10.71 |
| 2025 | 824 | COROADS - COUNTY ROADS (ROADS, DIV TO CE) | $286.13 | $286.11 | $0.00 | $0.00 | $286.13 | $286.11 |
| 2025 | 824 | PORTPT - PORT DISTRICT | $145.74 | $145.72 | $0.00 | $0.00 | $145.74 | $145.72 |
| 2025 | 824 | PUD1 - PUD #1 | $23.37 | $23.37 | $0.00 | $0.00 | $23.37 | $23.37 |
| 2025 | 824 | LIB1 - LIBRARY DIST #1 | $110.70 | $110.69 | $0.00 | $0.00 | $110.70 | $110.69 |
| 2025 | 824 | HD2 - HOSP DIST #2 | $20.84 | $20.83 | $0.00 | $0.00 | $20.84 | $20.83 |
| 2025 | 824 | SD50 - SCHOOL DIST #50 | $663.72 | $663.71 | $0.00 | $0.00 | $663.72 | $663.71 |
| 2025 | 824 | FD1 - FIRE DISTRICT #1 | $471.28 | $471.27 | $0.00 | $0.00 | $471.28 | $471.27 |
| 2025 | 824 | EMS1 - FIRE DIST #1 EMS | $181.27 | $181.26 | $0.00 | $0.00 | $181.27 | $181.26 |
| 2025 | 824 | FP - DNR Forest Fire Protection Assmt | $8.50 | $8.50 | $0.00 | $0.00 | $8.50 | $8.50 |
| 2025 | 824 | FPLCA - DNR Landowner Contingency Assmt | $3.00 | $3.00 | $0.00 | $0.00 | $3.00 | $3.00 |
| 2025 | 824 | JCCD - JC Conservation District | $2.80 | $2.80 | $0.00 | $0.00 | $2.80 | $2.80 |
| 2025 | 824 | NWA - Noxious Weed Assessment | $2.90 | $2.90 | $0.00 | $0.00 | $2.90 | $2.90 |
| 2025 | 824 | OSS - On Site Septic | $21.50 | $21.50 | $0.00 | $0.00 | $21.50 | $21.50 |
| 2025 | 824 | WAT - Clean Water District | $13.00 | $13.00 | $0.00 | $0.00 | $13.00 | $13.00 |
| 2025 | 824 | FP ADMIN - FP ADMIN | $0.50 | $0.00 | $0.00 | $0.00 | $0.50 | $0.00 |
| 2025 | 824 | TOTAL: | $3231.28 | $3230.65 | $0.00 | $0.00 | $3231.28 | $3230.65 |
|
| 2025 | 824 | $3231.28 | $3230.65 | $0.00 | $0.00 | $3231.28 | $3230.65 |
Statement Details |
| 2024 | 826 | STATE - STATE LEVY (SCHOOL) | $822.83 | $822.82 | $0.00 | $0.00 | $1645.65 | $0.00 |
| 2024 | 826 | COUNTY - COUNTY LEVIES (CE, DD, VET, MH) | $352.11 | $352.09 | $0.00 | $0.00 | $704.20 | $0.00 |
| 2024 | 826 | CONSERVE - CONSERVATION FUTURES | $10.56 | $10.56 | $0.00 | $0.00 | $21.12 | $0.00 |
| 2024 | 826 | COROADS - COUNTY ROADS (ROADS, DIV TO CE) | $283.32 | $283.32 | $0.00 | $0.00 | $566.64 | $0.00 |
| 2024 | 826 | PORTPT - PORT DISTRICT | $145.44 | $145.42 | $0.00 | $0.00 | $290.86 | $0.00 |
| 2024 | 826 | PUD1 - PUD #1 | $23.13 | $23.12 | $0.00 | $0.00 | $46.25 | $0.00 |
| 2024 | 826 | LIB1 - LIBRARY DIST #1 | $109.62 | $109.61 | $0.00 | $0.00 | $219.23 | $0.00 |
| 2024 | 826 | HD2 - HOSP DIST #2 | $20.55 | $20.54 | $0.00 | $0.00 | $41.09 | $0.00 |
| 2024 | 826 | SD50 - SCHOOL DIST #50 | $665.72 | $665.69 | $0.00 | $0.00 | $1331.41 | $0.00 |
| 2024 | 826 | FD1 - FIRE DISTRICT #1 | $465.56 | $465.55 | $0.00 | $0.00 | $931.11 | $0.00 |
| 2024 | 826 | EMS1 - FIRE DIST #1 EMS | $177.83 | $177.82 | $0.00 | $0.00 | $355.65 | $0.00 |
| 2024 | 826 | FP - DNR Forest Fire Protection Assmt | $8.50 | $8.50 | $0.00 | $0.00 | $17.00 | $0.00 |
| 2024 | 826 | FPLCA - DNR Landowner Contingency Assmt | $3.00 | $3.00 | $0.00 | $0.00 | $6.00 | $0.00 |
| 2024 | 826 | JCCD - JC Conservation District | $2.80 | $2.80 | $0.00 | $0.00 | $5.60 | $0.00 |
| 2024 | 826 | NWA - Noxious Weed Assessment | $2.90 | $2.90 | $0.00 | $0.00 | $5.80 | $0.00 |
| 2024 | 826 | OSS - On Site Septic | $21.00 | $21.00 | $0.00 | $0.00 | $42.00 | $0.00 |
| 2024 | 826 | WAT - Clean Water District | $12.50 | $12.50 | $0.00 | $0.00 | $25.00 | $0.00 |
| 2024 | 826 | FP ADMIN - FP ADMIN | $0.50 | $0.00 | $0.00 | $0.00 | $0.50 | $0.00 |
| 2024 | 826 | TOTAL: | $3127.87 | $3127.24 | $0.00 | $0.00 | $6255.11 | $0.00 |
|
| 2024 | 826 | $3127.87 | $3127.24 | $0.00 | $0.00 | $6255.11 | $0.00 |
Statement Details |
| 2023 | 826 | STATE - STATE LEVY (SCHOOL) | $760.77 | $760.76 | $0.00 | $0.00 | $1521.53 | $0.00 |
| 2023 | 826 | COUNTY - COUNTY LEVIES (CE, DD, VET, MH) | $331.99 | $331.96 | $0.00 | $0.00 | $663.95 | $0.00 |
| 2023 | 826 | CONSERVE - CONSERVATION FUTURES | $9.96 | $9.95 | $0.00 | $0.00 | $19.91 | $0.00 |
| 2023 | 826 | COROADS - COUNTY ROADS (ROADS, DIV TO CE) | $268.60 | $268.58 | $0.00 | $0.00 | $537.18 | $0.00 |
| 2023 | 826 | PORTPT - PORT DISTRICT | $139.85 | $139.84 | $0.00 | $0.00 | $279.69 | $0.00 |
| 2023 | 826 | PUD1 - PUD #1 | $22.01 | $22.00 | $0.00 | $0.00 | $44.01 | $0.00 |
| 2023 | 826 | LIB1 - LIBRARY DIST #1 | $103.92 | $103.91 | $0.00 | $0.00 | $207.83 | $0.00 |
| 2023 | 826 | HD2 - HOSP DIST #2 | $19.38 | $19.37 | $0.00 | $0.00 | $38.75 | $0.00 |
| 2023 | 826 | SD50 - SCHOOL DIST #50 | $603.69 | $603.67 | $0.00 | $0.00 | $1207.36 | $0.00 |
| 2023 | 826 | FD1 - FIRE DISTRICT #1 | $273.48 | $273.48 | $0.00 | $0.00 | $546.96 | $0.00 |
| 2023 | 826 | EMS1 - FIRE DIST #1 EMS | $116.34 | $116.33 | $0.00 | $0.00 | $232.67 | $0.00 |
| 2023 | 826 | FP - DNR Forest Fire Protection Assmt | $8.50 | $8.50 | $0.00 | $0.00 | $17.00 | $0.00 |
| 2023 | 826 | FPLCA - DNR Landowner Contingency Assmt | $3.00 | $3.00 | $0.00 | $0.00 | $6.00 | $0.00 |
| 2023 | 826 | JCCD - JC Conservation District | $2.80 | $2.80 | $0.00 | $0.00 | $5.60 | $0.00 |
| 2023 | 826 | NWA - Noxious Weed Assessment | $2.90 | $2.90 | $0.00 | $0.00 | $5.80 | $0.00 |
| 2023 | 826 | OSS - On Site Septic | $20.50 | $20.50 | $0.00 | $0.00 | $41.00 | $0.00 |
| 2023 | 826 | WAT - Clean Water District | $12.00 | $12.00 | $0.00 | $0.00 | $24.00 | $0.00 |
| 2023 | 826 | FP ADMIN - FP ADMIN | $0.50 | $0.00 | $0.00 | $0.00 | $0.50 | $0.00 |
| 2023 | 826 | TOTAL: | $2700.19 | $2699.55 | $0.00 | $0.00 | $5399.74 | $0.00 |
|
| 2023 | 826 | $2700.19 | $2699.55 | $0.00 | $0.00 | $5399.74 | $0.00 |
Statement Details |
| 2022 | 828 | STATE - STATE LEVY (SCHOOL) | $702.03 | $702.02 | $0.00 | $0.00 | $1404.05 | $0.00 |
| 2022 | 828 | COUNTY - COUNTY LEVIES (CE, DD, VET, MH) | $312.80 | $312.77 | $0.00 | $0.00 | $625.57 | $0.00 |
| 2022 | 828 | CONSERVE - CONSERVATION FUTURES | $9.38 | $9.38 | $0.00 | $0.00 | $18.76 | $0.00 |
| 2022 | 828 | COROADS - COUNTY ROADS (ROADS, DIV TO CE) | $254.22 | $254.22 | $0.00 | $0.00 | $508.44 | $0.00 |
| 2022 | 828 | PORTPT - PORT DISTRICT | $133.90 | $133.90 | $0.00 | $0.00 | $267.80 | $0.00 |
| 2022 | 828 | PUD1 - PUD #1 | $20.92 | $20.91 | $0.00 | $0.00 | $41.83 | $0.00 |
| 2022 | 828 | LIB1 - LIBRARY DIST #1 | $98.36 | $98.35 | $0.00 | $0.00 | $196.71 | $0.00 |
| 2022 | 828 | HD2 - HOSP DIST #2 | $18.26 | $18.26 | $0.00 | $0.00 | $36.52 | $0.00 |
| 2022 | 828 | SD50 - SCHOOL DIST #50 | $520.24 | $520.22 | $0.00 | $0.00 | $1040.46 | $0.00 |
| 2022 | 828 | FD1 - FIRE DISTRICT #1 | $256.60 | $256.60 | $0.00 | $0.00 | $513.20 | $0.00 |
| 2022 | 828 | EMS1 - FIRE DIST #1 EMS | $109.15 | $109.15 | $0.00 | $0.00 | $218.30 | $0.00 |
| 2022 | 828 | FP - DNR Forest Fire Protection Assmt | $8.50 | $8.50 | $0.00 | $0.00 | $17.00 | $0.00 |
| 2022 | 828 | FPLCA - DNR Landowner Contingency Assmt | $3.00 | $3.00 | $0.00 | $0.00 | $6.00 | $0.00 |
| 2022 | 828 | JCCD - JC Conservation District | $2.80 | $2.80 | $0.00 | $0.00 | $5.60 | $0.00 |
| 2022 | 828 | NWA - Noxious Weed Assessment | $2.90 | $2.90 | $0.00 | $0.00 | $5.80 | $0.00 |
| 2022 | 828 | OSS - On Site Septic | $19.50 | $19.50 | $0.00 | $0.00 | $39.00 | $0.00 |
| 2022 | 828 | WAT - Clean Water District | $11.50 | $11.50 | $0.00 | $0.00 | $23.00 | $0.00 |
| 2022 | 828 | FP ADMIN - FP ADMIN | $0.50 | $0.00 | $0.00 | $0.00 | $0.50 | $0.00 |
| 2022 | 828 | TOTAL: | $2484.56 | $2483.98 | $0.00 | $0.00 | $4968.54 | $0.00 |
|
| 2022 | 828 | $2484.56 | $2483.98 | $0.00 | $0.00 | $4968.54 | $0.00 |
Values
| (+) Improvement Homesite Value: | + | $0 | |
| (+) Improvement Non-Homesite Value: | + | $573,245 | |
| (+) Land Homesite Value: | + | $0 | |
| (+) Land Non-Homesite Value: | + | $184,184 | |
| (+) Curr Use (HS): | + | $0 | $0 |
| (+) Curr Use (NHS): | + | $0 | $0 |
| | | -------------------------- | |
| (=) Market Value: | = | $757,429 | |
| (–) Productivity Loss: | – | $0 | |
| | | -------------------------- | |
| (=) Subtotal: | = | $757,429 | |
| (+) Senior Appraised Value: | + | $0 | |
| (+) Non-Senior Appraised Value: | + | $757,429 | |
| | | -------------------------- | |
| (=) Total Appraised Value: | = | $757,429 | |
| (–) Senior Exemption Loss: | – | $0 | |
| (–) Exemption Loss: | – | $0 | |
| | | -------------------------- | |
| (=) Taxable Value: | = | $757,429 | |
Taxing Jurisdiction
| Owner: | MATT & TERESA FALKENSTEIN JOINT TRUST | | |
| % Ownership: | 100.0000000000% | | |
| Total Value: | N/A | | |
| Tax Area: | 0111 - 1-50F1E1H2L1 |
| CE | COUNTY CURRENT EXPENSE | N/A | N/A | N/A | N/A | | |
| CNTYDD | DEVELOPMENTAL DISABILITIES | N/A | N/A | N/A | N/A | | |
| CNTYVET | VETERANS RELIEF | N/A | N/A | N/A | N/A | | |
| MENTAL | MENTAL HEALTH | N/A | N/A | N/A | N/A | | |
| ROADS | COUNTY ROADS | N/A | N/A | N/A | N/A | | |
| ROADSCU | COUNTY ROADS TO CUR EXP | N/A | N/A | N/A | N/A | | |
| HOSP2CASH | HOSP DIST #2 GENERAL | N/A | N/A | N/A | N/A | | |
| SCH50BOND | SCHOOL DIST #50 BOND 2016 | N/A | N/A | N/A | N/A | | |
| SCH50CP | SCHOOL DIST #50 CAP PROJ | N/A | N/A | N/A | N/A | | |
| SCH50MO | SCHOOL DIST #50 EP & O | N/A | N/A | N/A | N/A | | |
| CONSERVE | CONSERVATION FUTURES | N/A | N/A | N/A | N/A | | |
| EMS1 | FIRE DIST #1 EMS | N/A | N/A | N/A | N/A | | |
| FD1 | FIRE DIST #1 GENERAL | N/A | N/A | N/A | N/A | | |
| LIB1 | LIBRARY DIST #1 GENERAL | N/A | N/A | N/A | N/A | | |
| PORTPT | PORT OF PT GENERAL | N/A | N/A | N/A | N/A | | |
| PORTPTIDD | PORT OF PT IDD 2019 | N/A | N/A | N/A | N/A | | |
| PUD1 | PUD #1 GENERAL | N/A | N/A | N/A | N/A | | |
| STATE | STATE SCHOOL PART 1 | N/A | N/A | N/A | N/A | | |
| STATE2 | STATE SCHOOL PART 2 | N/A | N/A | N/A | N/A | | |
| | Total Tax Rate: | N/A | | | | | |
| | | | | Taxes w/Current Exemptions: | N/A | | |
| | | | | Taxes w/o Exemptions: | N/A | | |
Improvement / Building
| Improvement #1: | Residential Bldg | State Code: | 11 | 1924.0 sqft | Value: | $573,245 |
| Bathrooms (#): | 2 (FULL) | Bedrooms (#): | 2 | | Exterior Wall: | SI/ST | Fireplace: | WD ST-GOOD | | Floor Construction: | FRAME | Foundation: | CONPR | | Heating/Cooling: | ELBB | Inside Verify: | YES-FIX | | Roof Cover: | COMP |   |   |
|
| | Type | Description | Class CD | Sub Class CD | Year Built | Area |
| | MA | Main Area | 4+ | 2S | 1997 | 1284.0 |
| | MA2 | Second Floor Main Area | 4+ | 2S | 1997 | 640.0 |
| | PATIO | House Patio | 4 | 2S | 1997 | 114.0 |
| | HWPOR | House Wood Porch | 4 | 2S | 1997 | 124.0 |
| | HDECK | House Deck | 4 | 2S | 1997 | 330.0 |
| | GDET | Detached Garage | 4 | 2S | 1997 | 582.0 |
| | ADDN-D | Addition (Table Depreciated) | 5 | 2S | 1997 | 462.0 |
Sketch
| No sketches available for this property. |
Property Image
Land
| 1 | 5340-1371S | | 1.0000 | 43560.00 | 0.00 | 0.00 | 1.00 | $159,500 | $0 |
| 2 | 1574A | | 1.7600 | 76665.60 | 0.00 | 0.00 | 0.00 | $24,684 | $0 |
Roll Value History
| 2025 | N/A | N/A | N/A | N/A | N/A |
| 2024 | $573,245 | $184,184 | $0 | $757,429 | $757,429 |
| 2023 | $542,119 | $169,176 | $0 | $711,295 | $711,295 |
| 2022 | $492,835 | $153,480 | $0 | $646,315 | $646,315 |
| 2021 | $373,360 | $140,140 | $0 | $513,500 | $513,500 |
Deed and Sales History
| 1 | 07/15/2024 | SWD | Statutory Warranty Deed | WILLIAM E & MARGARET H TAYLOR | MATT & TERESA FALKENSTEIN JOINT TRUST | | | $886,000.00 | 142909 | |
|   | |
| 2 | 06/17/2021 | SWD | Statutory Warranty Deed | MARGARET H TAYLOR TRUST | WILLIAM E & MARGARET H TAYLOR | | | | 137162 | |
| 3 | 06/24/2013 | SWD | Statutory Warranty Deed | JULIA A NORTH TRUSTEE | MARGARET H TAYLOR TRUST | | | $430,000.00 | 119498 | |
|   | |
| 4 | 08/25/2006 | QCD | Quit Claim Deed | NORTH, JULIA ANN, MARTS, | NORTH, JULIA ANN TRUSTEE OF TH | 0 | 0 | $0.00 | 107559 | 0 |
| 5 | 11/28/1994 | SWD | Statutory Warranty Deed | MARTS, JAN | LEAVITT, WILLIAM/DALE | 0 | 0 | $25,000.00 | 75658 | 0 |
| 6 | 08/04/1993 | SWD | Statutory Warranty Deed | FALSTAD, ROBERT/TANYA | MARTS, JAN | 0 | 0 | $0.00 | 71817 | 0 |
Payout Agreement
| No payout information available.. |