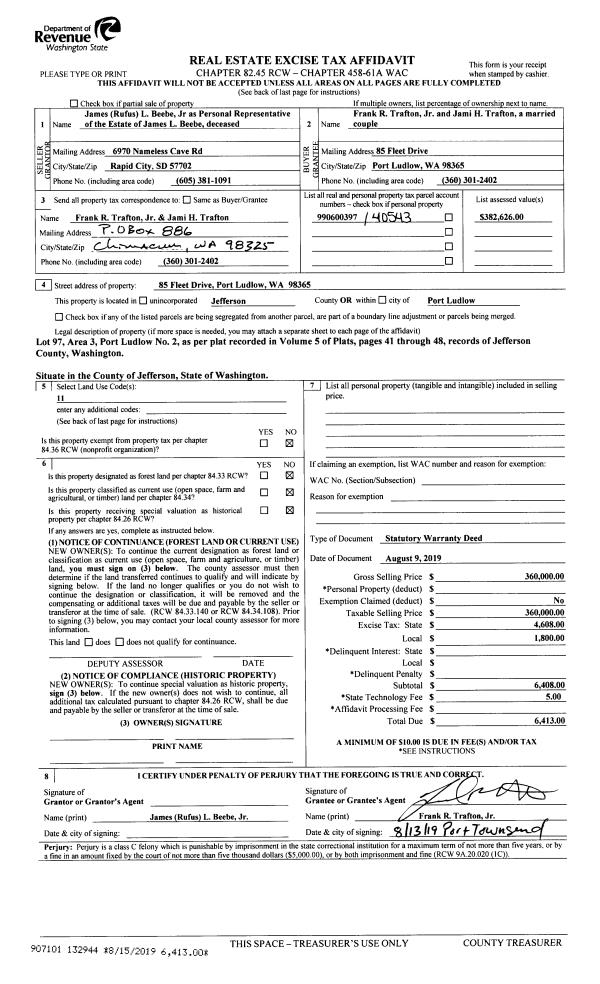
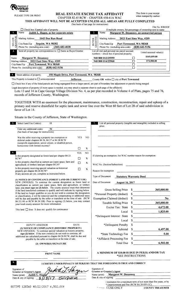
Property
Account |
| Property ID: | 10902 | Abbreviated Legal Description: | S18 T30N R1W TAX 25 SUBJ/EASE |
| Parcel # / Geo ID: | 001184004 | Agent Code: | |
| Type: | Real | | |
| Tax Area: | 0111 - 1-50F1E1H2L1 | Land Use Code | 11 |
| Open Space: | N | DFL | N |
| Historic Property: | N | Remodel Property: | N |
| Multi-Family Redevelopment: | N | | |
| Township: | 30N | Section: | 18 |
| Range: | 1W |
Location |
| Address: | 240 SAND RD 292 PORT TOWNSEND, WA 98368 | Mapsco: | 091/045 |
| Neighborhood: | S18 T30 R1W, AUSTEN, MAGNOLIA PARK, GAGLIARDI | Map ID: | |
| Neighborhood CD: | 5335 |
Owner |
| Name: | DAVID HILLMAN | Owner ID: | 18170 |
| Mailing Address: | MICHELLE HENSEL 240 SAND RD PORT TOWNSEND, WA 98368 | % Ownership: | 100.0000000000% |
| | | Exemptions: | |
Pay Tax Due
There is currently No Amount Due on this property.
Taxes and Assessment Details
Property Tax Information as of
10/23/2025
Click on "Statement Details" to expand or collapse a tax statement.
* Please enter a valid date ** Please enter a valid date *
Statement Details |
| 2025 | 866 | STATE - STATE LEVY (SCHOOL) | $1283.00 | $1283.00 | $0.00 | $0.00 | $2566.00 | $0.00 |
| 2025 | 866 | COUNTY - COUNTY LEVIES (CE, DD, VET, MH) | $504.54 | $504.52 | $0.00 | $0.00 | $1009.06 | $0.00 |
| 2025 | 866 | CONSERVE - CONSERVATION FUTURES | $15.13 | $15.13 | $0.00 | $0.00 | $30.26 | $0.00 |
| 2025 | 866 | COROADS - COUNTY ROADS (ROADS, DIV TO CE) | $404.21 | $404.21 | $0.00 | $0.00 | $808.42 | $0.00 |
| 2025 | 866 | PORTPT - PORT DISTRICT | $205.88 | $205.87 | $0.00 | $0.00 | $411.75 | $0.00 |
| 2025 | 866 | PUD1 - PUD #1 | $33.02 | $33.01 | $0.00 | $0.00 | $66.03 | $0.00 |
| 2025 | 866 | LIB1 - LIBRARY DIST #1 | $156.39 | $156.38 | $0.00 | $0.00 | $312.77 | $0.00 |
| 2025 | 866 | HD2 - HOSP DIST #2 | $29.44 | $29.43 | $0.00 | $0.00 | $58.87 | $0.00 |
| 2025 | 866 | SD50 - SCHOOL DIST #50 | $937.67 | $937.65 | $0.00 | $0.00 | $1875.32 | $0.00 |
| 2025 | 866 | FD1 - FIRE DISTRICT #1 | $665.79 | $665.78 | $0.00 | $0.00 | $1331.57 | $0.00 |
| 2025 | 866 | EMS1 - FIRE DIST #1 EMS | $256.08 | $256.08 | $0.00 | $0.00 | $512.16 | $0.00 |
| 2025 | 866 | FP - DNR Forest Fire Protection Assmt | $8.50 | $8.50 | $0.00 | $0.00 | $17.00 | $0.00 |
| 2025 | 866 | FPLCA - DNR Landowner Contingency Assmt | $3.00 | $3.00 | $0.00 | $0.00 | $6.00 | $0.00 |
| 2025 | 866 | JCCD - JC Conservation District | $3.10 | $3.10 | $0.00 | $0.00 | $6.20 | $0.00 |
| 2025 | 866 | NWA - Noxious Weed Assessment | $3.80 | $3.80 | $0.00 | $0.00 | $7.60 | $0.00 |
| 2025 | 866 | OSS - On Site Septic | $43.00 | $43.00 | $0.00 | $0.00 | $86.00 | $0.00 |
| 2025 | 866 | WAT - Clean Water District | $13.00 | $13.00 | $0.00 | $0.00 | $26.00 | $0.00 |
| 2025 | 866 | FP ADMIN - FP ADMIN | $0.50 | $0.00 | $0.00 | $0.00 | $0.50 | $0.00 |
| 2025 | 866 | TOTAL: | $4566.05 | $4565.46 | $0.00 | $0.00 | $9131.51 | $0.00 |
|
| 2025 | 866 | $4566.05 | $4565.46 | $0.00 | $0.00 | $9131.51 | $0.00 |
Statement Details |
| 2024 | 868 | STATE - STATE LEVY (SCHOOL) | $1177.43 | $1177.41 | $0.00 | $0.00 | $2354.84 | $0.00 |
| 2024 | 868 | COUNTY - COUNTY LEVIES (CE, DD, VET, MH) | $503.84 | $503.82 | $0.00 | $0.00 | $1007.66 | $0.00 |
| 2024 | 868 | CONSERVE - CONSERVATION FUTURES | $15.11 | $15.11 | $0.00 | $0.00 | $30.22 | $0.00 |
| 2024 | 868 | COROADS - COUNTY ROADS (ROADS, DIV TO CE) | $405.42 | $405.41 | $0.00 | $0.00 | $810.83 | $0.00 |
| 2024 | 868 | PORTPT - PORT DISTRICT | $208.10 | $208.10 | $0.00 | $0.00 | $416.20 | $0.00 |
| 2024 | 868 | PUD1 - PUD #1 | $33.10 | $33.09 | $0.00 | $0.00 | $66.19 | $0.00 |
| 2024 | 868 | LIB1 - LIBRARY DIST #1 | $156.85 | $156.85 | $0.00 | $0.00 | $313.70 | $0.00 |
| 2024 | 868 | HD2 - HOSP DIST #2 | $29.40 | $29.39 | $0.00 | $0.00 | $58.79 | $0.00 |
| 2024 | 868 | SD50 - SCHOOL DIST #50 | $952.60 | $952.58 | $0.00 | $0.00 | $1905.18 | $0.00 |
| 2024 | 868 | FD1 - FIRE DISTRICT #1 | $666.18 | $666.18 | $0.00 | $0.00 | $1332.36 | $0.00 |
| 2024 | 868 | EMS1 - FIRE DIST #1 EMS | $254.46 | $254.45 | $0.00 | $0.00 | $508.91 | $0.00 |
| 2024 | 868 | FP - DNR Forest Fire Protection Assmt | $8.50 | $8.50 | $0.00 | $0.00 | $17.00 | $0.00 |
| 2024 | 868 | FPLCA - DNR Landowner Contingency Assmt | $3.00 | $3.00 | $0.00 | $0.00 | $6.00 | $0.00 |
| 2024 | 868 | JCCD - JC Conservation District | $3.10 | $3.10 | $0.00 | $0.00 | $6.20 | $0.00 |
| 2024 | 868 | NWA - Noxious Weed Assessment | $3.80 | $3.80 | $0.00 | $0.00 | $7.60 | $0.00 |
| 2024 | 868 | OSS - On Site Septic | $42.00 | $42.00 | $0.00 | $0.00 | $84.00 | $0.00 |
| 2024 | 868 | WAT - Clean Water District | $12.50 | $12.50 | $0.00 | $0.00 | $25.00 | $0.00 |
| 2024 | 868 | FP ADMIN - FP ADMIN | $0.50 | $0.00 | $0.00 | $0.00 | $0.50 | $0.00 |
| 2024 | 868 | TOTAL: | $4475.89 | $4475.29 | $0.00 | $0.00 | $8951.18 | $0.00 |
|
| 2024 | 868 | $4475.89 | $4475.29 | $0.00 | $0.00 | $8951.18 | $0.00 |
Statement Details |
| 2023 | 868 | STATE - STATE LEVY (SCHOOL) | $1071.50 | $1071.49 | $0.00 | $0.00 | $2142.99 | $0.00 |
| 2023 | 868 | COUNTY - COUNTY LEVIES (CE, DD, VET, MH) | $467.58 | $467.56 | $0.00 | $0.00 | $935.14 | $0.00 |
| 2023 | 868 | CONSERVE - CONSERVATION FUTURES | $14.02 | $14.02 | $0.00 | $0.00 | $28.04 | $0.00 |
| 2023 | 868 | COROADS - COUNTY ROADS (ROADS, DIV TO CE) | $378.30 | $378.29 | $0.00 | $0.00 | $756.59 | $0.00 |
| 2023 | 868 | PORTPT - PORT DISTRICT | $196.97 | $196.96 | $0.00 | $0.00 | $393.93 | $0.00 |
| 2023 | 868 | PUD1 - PUD #1 | $31.00 | $30.99 | $0.00 | $0.00 | $61.99 | $0.00 |
| 2023 | 868 | LIB1 - LIBRARY DIST #1 | $146.36 | $146.36 | $0.00 | $0.00 | $292.72 | $0.00 |
| 2023 | 868 | HD2 - HOSP DIST #2 | $27.29 | $27.28 | $0.00 | $0.00 | $54.57 | $0.00 |
| 2023 | 868 | SD50 - SCHOOL DIST #50 | $850.26 | $850.24 | $0.00 | $0.00 | $1700.50 | $0.00 |
| 2023 | 868 | FD1 - FIRE DISTRICT #1 | $385.18 | $385.18 | $0.00 | $0.00 | $770.36 | $0.00 |
| 2023 | 868 | EMS1 - FIRE DIST #1 EMS | $163.85 | $163.85 | $0.00 | $0.00 | $327.70 | $0.00 |
| 2023 | 868 | FP - DNR Forest Fire Protection Assmt | $8.50 | $8.50 | $0.00 | $0.00 | $17.00 | $0.00 |
| 2023 | 868 | FPLCA - DNR Landowner Contingency Assmt | $3.00 | $3.00 | $0.00 | $0.00 | $6.00 | $0.00 |
| 2023 | 868 | JCCD - JC Conservation District | $3.10 | $3.10 | $0.00 | $0.00 | $6.20 | $0.00 |
| 2023 | 868 | NWA - Noxious Weed Assessment | $3.80 | $3.80 | $0.00 | $0.00 | $7.60 | $0.00 |
| 2023 | 868 | OSS - On Site Septic | $41.00 | $41.00 | $0.00 | $0.00 | $82.00 | $0.00 |
| 2023 | 868 | WAT - Clean Water District | $12.00 | $12.00 | $0.00 | $0.00 | $24.00 | $0.00 |
| 2023 | 868 | FP ADMIN - FP ADMIN | $0.50 | $0.00 | $0.00 | $0.00 | $0.50 | $0.00 |
| 2023 | 868 | TOTAL: | $3804.21 | $3803.62 | $0.00 | $0.00 | $7607.83 | $0.00 |
|
| 2023 | 868 | $3804.21 | $3803.62 | $0.00 | $0.00 | $7607.83 | $0.00 |
Statement Details |
| 2022 | 870 | STATE - STATE LEVY (SCHOOL) | $933.79 | $933.78 | $0.00 | $0.00 | $1867.57 | $0.00 |
| 2022 | 870 | COUNTY - COUNTY LEVIES (CE, DD, VET, MH) | $416.05 | $416.05 | $0.00 | $0.00 | $832.10 | $0.00 |
| 2022 | 870 | CONSERVE - CONSERVATION FUTURES | $12.48 | $12.47 | $0.00 | $0.00 | $24.95 | $0.00 |
| 2022 | 870 | COROADS - COUNTY ROADS (ROADS, DIV TO CE) | $338.15 | $338.14 | $0.00 | $0.00 | $676.29 | $0.00 |
| 2022 | 870 | PORTPT - PORT DISTRICT | $178.11 | $178.11 | $0.00 | $0.00 | $356.22 | $0.00 |
| 2022 | 870 | PUD1 - PUD #1 | $27.82 | $27.82 | $0.00 | $0.00 | $55.64 | $0.00 |
| 2022 | 870 | LIB1 - LIBRARY DIST #1 | $130.83 | $130.82 | $0.00 | $0.00 | $261.65 | $0.00 |
| 2022 | 870 | HD2 - HOSP DIST #2 | $24.29 | $24.28 | $0.00 | $0.00 | $48.57 | $0.00 |
| 2022 | 870 | SD50 - SCHOOL DIST #50 | $691.99 | $691.97 | $0.00 | $0.00 | $1383.96 | $0.00 |
| 2022 | 870 | FD1 - FIRE DISTRICT #1 | $341.32 | $341.31 | $0.00 | $0.00 | $682.63 | $0.00 |
| 2022 | 870 | EMS1 - FIRE DIST #1 EMS | $145.18 | $145.18 | $0.00 | $0.00 | $290.36 | $0.00 |
| 2022 | 870 | FP - DNR Forest Fire Protection Assmt | $8.50 | $8.50 | $0.00 | $0.00 | $17.00 | $0.00 |
| 2022 | 870 | FPLCA - DNR Landowner Contingency Assmt | $3.00 | $3.00 | $0.00 | $0.00 | $6.00 | $0.00 |
| 2022 | 870 | JCCD - JC Conservation District | $3.10 | $3.10 | $0.00 | $0.00 | $6.20 | $0.00 |
| 2022 | 870 | NWA - Noxious Weed Assessment | $3.80 | $3.80 | $0.00 | $0.00 | $7.60 | $0.00 |
| 2022 | 870 | OSS - On Site Septic | $39.00 | $39.00 | $0.00 | $0.00 | $78.00 | $0.00 |
| 2022 | 870 | WAT - Clean Water District | $11.50 | $11.50 | $0.00 | $0.00 | $23.00 | $0.00 |
| 2022 | 870 | FP ADMIN - FP ADMIN | $0.50 | $0.00 | $0.00 | $0.00 | $0.50 | $0.00 |
| 2022 | 870 | TOTAL: | $3309.41 | $3308.83 | $0.00 | $0.00 | $6618.24 | $0.00 |
|
| 2022 | 870 | $3309.41 | $3308.83 | $0.00 | $0.00 | $6618.24 | $0.00 |
Values
| (+) Improvement Homesite Value: | + | $0 | |
| (+) Improvement Non-Homesite Value: | + | $721,685 | |
| (+) Land Homesite Value: | + | $0 | |
| (+) Land Non-Homesite Value: | + | $378,433 | |
| (+) Curr Use (HS): | + | $0 | $0 |
| (+) Curr Use (NHS): | + | $0 | $0 |
| | | -------------------------- | |
| (=) Market Value: | = | $1,100,118 | |
| (–) Productivity Loss: | – | $0 | |
| | | -------------------------- | |
| (=) Subtotal: | = | $1,100,118 | |
| (+) Senior Appraised Value: | + | $0 | |
| (+) Non-Senior Appraised Value: | + | $1,100,118 | |
| | | -------------------------- | |
| (=) Total Appraised Value: | = | $1,100,118 | |
| (–) Senior Exemption Loss: | – | $0 | |
| (–) Exemption Loss: | – | $0 | |
| | | -------------------------- | |
| (=) Taxable Value: | = | $1,100,118 | |
Taxing Jurisdiction
| Owner: | DAVID HILLMAN | | |
| % Ownership: | 100.0000000000% | | |
| Total Value: | N/A | | |
| Tax Area: | 0111 - 1-50F1E1H2L1 |
| CE | COUNTY CURRENT EXPENSE | N/A | N/A | N/A | N/A | | |
| CNTYDD | DEVELOPMENTAL DISABILITIES | N/A | N/A | N/A | N/A | | |
| CNTYVET | VETERANS RELIEF | N/A | N/A | N/A | N/A | | |
| MENTAL | MENTAL HEALTH | N/A | N/A | N/A | N/A | | |
| ROADS | COUNTY ROADS | N/A | N/A | N/A | N/A | | |
| ROADSCU | COUNTY ROADS TO CUR EXP | N/A | N/A | N/A | N/A | | |
| HOSP2CASH | HOSP DIST #2 GENERAL | N/A | N/A | N/A | N/A | | |
| SCH50BOND | SCHOOL DIST #50 BOND 2016 | N/A | N/A | N/A | N/A | | |
| SCH50CP | SCHOOL DIST #50 CAP PROJ | N/A | N/A | N/A | N/A | | |
| SCH50MO | SCHOOL DIST #50 EP & O | N/A | N/A | N/A | N/A | | |
| CONSERVE | CONSERVATION FUTURES | N/A | N/A | N/A | N/A | | |
| EMS1 | FIRE DIST #1 EMS | N/A | N/A | N/A | N/A | | |
| FD1 | FIRE DIST #1 GENERAL | N/A | N/A | N/A | N/A | | |
| LIB1 | LIBRARY DIST #1 GENERAL | N/A | N/A | N/A | N/A | | |
| PORTPT | PORT OF PT GENERAL | N/A | N/A | N/A | N/A | | |
| PORTPTIDD | PORT OF PT IDD 2019 | N/A | N/A | N/A | N/A | | |
| PUD1 | PUD #1 GENERAL | N/A | N/A | N/A | N/A | | |
| STATE | STATE SCHOOL PART 1 | N/A | N/A | N/A | N/A | | |
| STATE2 | STATE SCHOOL PART 2 | N/A | N/A | N/A | N/A | | |
| | Total Tax Rate: | N/A | | | | | |
| | | | | Taxes w/Current Exemptions: | N/A | | |
| | | | | Taxes w/o Exemptions: | N/A | | |
Improvement / Building
| Improvement #1: | Residential Bldg | State Code: | 11 | 1280.0 sqft | Value: | $486,467 |
| Bathrooms (#): | 2 (FULL) | Bedrooms (#): | 3 | | Exterior Wall: | SI/ST | Fireplace: | WD ST-AVG | | Floor Construction: | FRAME | Foundation: | CONPR | | Heating/Cooling: | OTHER | Inside Verify: | YES-FIX | | Roof Cover: | SHAKE |   |   |
|
| | Type | Description | Class CD | Sub Class CD | Year Built | Area |
| | MA | Main Area | 4+ | 1S | 1982 | 1280.0 |
| | PATIO | House Patio | 4 | 1S | 1982 | 500.0 |
| | HWPOR | House Wood Porch | 4 | 1S | 1982 | 294.0 |
| | HDECK | House Deck | 4 | 1S | 1982 | 150.0 |
| | GDET | Detached Garage | 4 | 1S | 1982 | 576.0 |
| | OTHER | Other | 4 | 1S | 1982 | 0.0 |
| | CONCD | Concrete Drive | 4 | 1S | 1982 | 996.0 |
| | BSMTF | House basement finished | 4 | 1S | 1982 | 1280.0 |
| Improvement #2: | Residential Bldg | State Code: | 11 | 1152.0 sqft | Value: | $235,218 |
| Bathrooms (#): | 2 (FULL) | Bedrooms (#): | 1 | | Exterior Wall: | SI/ST | Floor Construction: | FRAME | | Foundation: | CONPR | Heating/Cooling: | ELBB | | Inside Verify: | YES-FIX | Roof Cover: | COMP |
|
| | Type | Description | Class CD | Sub Class CD | Year Built | Area |
| | MA | Main Area | 4- | 1S | 0 | 1152.0 |
| | PATIO | House Patio | 3 | 1S | 0 | 400.0 |
| | GATT | House Attached Garage | 3 | 1S | 0 | 288.0 |
Sketch
Property Image
Land
| 1 | 5335-1373S | | 1.0000 | 43560.00 | 0.00 | 0.00 | 1.00 | $189,750 | $0 |
| 2 | 5335-1671A | | 10.0900 | 439520.40 | 0.00 | 0.00 | 0.00 | $188,683 | $0 |
Roll Value History
| 2025 | N/A | N/A | N/A | N/A | N/A |
| 2024 | $691,614 | $378,433 | $0 | $1,070,047 | $1,070,047 |
| 2023 | $667,093 | $350,732 | $0 | $1,017,825 | $1,017,825 |
| 2022 | $606,448 | $303,850 | $0 | $910,298 | $910,298 |
| 2021 | $459,430 | $223,592 | $0 | $683,022 | $683,022 |
Deed and Sales History
| 1 | 04/15/2020 | SWD | Statutory Warranty Deed | ANDREW M & SARAH WILKE | DAVID HILLMAN | | | $760,000.00 | 134262 | |
| 2 | 09/12/2017 | SWD | Statutory Warranty Deed | ROBERT M CHANDLER | ANDREW M & SARAH WILKE | | | $665,000.00 | 128587 | |
| 3 | 06/15/2005 | SWD | Statutory Warranty Deed | FREDERICKSON, ERIK & MARN | CHANDLER, ROBERT M & BARBARA | | | $620,000.00 | 104011 | 0 |
Payout Agreement
| No payout information available.. |