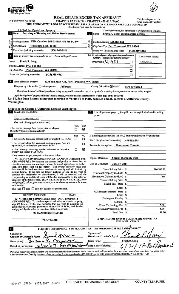
Property
Account |
| Property ID: | 10947 | Abbreviated Legal Description: | DISCOVERY RIDGE DIV II PARCEL 1 |
| Parcel # / Geo ID: | 001195001 | Agent Code: | |
| Type: | Real | | |
| Tax Area: | 0111 - 1-50F1E1H2L1 | Land Use Code | 18 |
| Open Space: | N | DFL | N |
| Historic Property: | N | Remodel Property: | N |
| Multi-Family Redevelopment: | N | | |
| Township: | 30N | Section: | 19 |
| Range: | 1W |
Location |
| Address: | 72 KRUSE ST PORT TOWNSEND, WA 98368 | Mapsco: | 141/030 |
| Neighborhood: | S19,30&31T30NR1W,S25T30R2W,ARBUTUS,BAYVIEW CHEVY,DISCO RIDGE | Map ID: | |
| Neighborhood CD: | 5360 |
Owner |
| Name: | KIP & SHARON DE WEES | Owner ID: | 97227 |
| Mailing Address: | 72 KRUSE ST PORT TOWNSEND, WA 98368 | % Ownership: | 100.0000000000% |
| | | Exemptions: | |
Pay Tax Due
There is currently No Amount Due on this property.
Taxes and Assessment Details
Property Tax Information as of
10/23/2025
Click on "Statement Details" to expand or collapse a tax statement.
* Please enter a valid date ** Please enter a valid date *
Statement Details |
| 2025 | 909 | STATE - STATE LEVY (SCHOOL) | $721.33 | $721.33 | $0.00 | $0.00 | $1442.66 | $0.00 |
| 2025 | 909 | COUNTY - COUNTY LEVIES (CE, DD, VET, MH) | $283.68 | $283.64 | $0.00 | $0.00 | $567.32 | $0.00 |
| 2025 | 909 | CONSERVE - CONSERVATION FUTURES | $8.51 | $8.50 | $0.00 | $0.00 | $17.01 | $0.00 |
| 2025 | 909 | COROADS - COUNTY ROADS (ROADS, DIV TO CE) | $227.26 | $227.25 | $0.00 | $0.00 | $454.51 | $0.00 |
| 2025 | 909 | PORTPT - PORT DISTRICT | $115.76 | $115.74 | $0.00 | $0.00 | $231.50 | $0.00 |
| 2025 | 909 | PUD1 - PUD #1 | $18.56 | $18.56 | $0.00 | $0.00 | $37.12 | $0.00 |
| 2025 | 909 | LIB1 - LIBRARY DIST #1 | $87.93 | $87.92 | $0.00 | $0.00 | $175.85 | $0.00 |
| 2025 | 909 | HD2 - HOSP DIST #2 | $16.55 | $16.55 | $0.00 | $0.00 | $33.10 | $0.00 |
| 2025 | 909 | SD50 - SCHOOL DIST #50 | $527.18 | $527.16 | $0.00 | $0.00 | $1054.34 | $0.00 |
| 2025 | 909 | FD1 - FIRE DISTRICT #1 | $374.32 | $374.32 | $0.00 | $0.00 | $748.64 | $0.00 |
| 2025 | 909 | EMS1 - FIRE DIST #1 EMS | $143.98 | $143.97 | $0.00 | $0.00 | $287.95 | $0.00 |
| 2025 | 909 | FP - DNR Forest Fire Protection Assmt | $8.50 | $8.50 | $0.00 | $0.00 | $17.00 | $0.00 |
| 2025 | 909 | FPLCA - DNR Landowner Contingency Assmt | $3.00 | $3.00 | $0.00 | $0.00 | $6.00 | $0.00 |
| 2025 | 909 | JCCD - JC Conservation District | $2.75 | $2.75 | $0.00 | $0.00 | $5.50 | $0.00 |
| 2025 | 909 | NWA - Noxious Weed Assessment | $2.75 | $2.75 | $0.00 | $0.00 | $5.50 | $0.00 |
| 2025 | 909 | OSS - On Site Septic | $21.50 | $21.50 | $0.00 | $0.00 | $43.00 | $0.00 |
| 2025 | 909 | WAT - Clean Water District | $13.00 | $13.00 | $0.00 | $0.00 | $26.00 | $0.00 |
| 2025 | 909 | FP ADMIN - FP ADMIN | $0.50 | $0.00 | $0.00 | $0.00 | $0.50 | $0.00 |
| 2025 | 909 | TOTAL: | $2577.06 | $2576.44 | $0.00 | $0.00 | $5153.50 | $0.00 |
|
| 2025 | 909 | $2577.06 | $2576.44 | $0.00 | $0.00 | $5153.50 | $0.00 |
Statement Details |
| 2024 | 911 | STATE - STATE LEVY (SCHOOL) | $633.62 | $633.61 | $0.00 | $0.00 | $1267.23 | $0.00 |
| 2024 | 911 | COUNTY - COUNTY LEVIES (CE, DD, VET, MH) | $271.13 | $271.13 | $0.00 | $0.00 | $542.26 | $0.00 |
| 2024 | 911 | CONSERVE - CONSERVATION FUTURES | $8.13 | $8.13 | $0.00 | $0.00 | $16.26 | $0.00 |
| 2024 | 911 | COROADS - COUNTY ROADS (ROADS, DIV TO CE) | $218.18 | $218.16 | $0.00 | $0.00 | $436.34 | $0.00 |
| 2024 | 911 | PORTPT - PORT DISTRICT | $111.99 | $111.99 | $0.00 | $0.00 | $223.98 | $0.00 |
| 2024 | 911 | PUD1 - PUD #1 | $17.81 | $17.81 | $0.00 | $0.00 | $35.62 | $0.00 |
| 2024 | 911 | LIB1 - LIBRARY DIST #1 | $84.41 | $84.41 | $0.00 | $0.00 | $168.82 | $0.00 |
| 2024 | 911 | HD2 - HOSP DIST #2 | $15.82 | $15.82 | $0.00 | $0.00 | $31.64 | $0.00 |
| 2024 | 911 | SD50 - SCHOOL DIST #50 | $512.64 | $512.61 | $0.00 | $0.00 | $1025.25 | $0.00 |
| 2024 | 911 | FD1 - FIRE DISTRICT #1 | $358.50 | $358.50 | $0.00 | $0.00 | $717.00 | $0.00 |
| 2024 | 911 | EMS1 - FIRE DIST #1 EMS | $136.94 | $136.93 | $0.00 | $0.00 | $273.87 | $0.00 |
| 2024 | 911 | FP - DNR Forest Fire Protection Assmt | $8.50 | $8.50 | $0.00 | $0.00 | $17.00 | $0.00 |
| 2024 | 911 | FPLCA - DNR Landowner Contingency Assmt | $3.00 | $3.00 | $0.00 | $0.00 | $6.00 | $0.00 |
| 2024 | 911 | JCCD - JC Conservation District | $2.75 | $2.75 | $0.00 | $0.00 | $5.50 | $0.00 |
| 2024 | 911 | NWA - Noxious Weed Assessment | $2.75 | $2.75 | $0.00 | $0.00 | $5.50 | $0.00 |
| 2024 | 911 | OSS - On Site Septic | $21.00 | $21.00 | $0.00 | $0.00 | $42.00 | $0.00 |
| 2024 | 911 | WAT - Clean Water District | $12.50 | $12.50 | $0.00 | $0.00 | $25.00 | $0.00 |
| 2024 | 911 | FP ADMIN - FP ADMIN | $0.50 | $0.00 | $0.00 | $0.00 | $0.50 | $0.00 |
| 2024 | 911 | TOTAL: | $2420.17 | $2419.60 | $0.00 | $0.00 | $4839.77 | $0.00 |
|
| 2024 | 911 | $2420.17 | $2419.60 | $0.00 | $0.00 | $4839.77 | $0.00 |
Statement Details |
| 2023 | 911 | STATE - STATE LEVY (SCHOOL) | $586.07 | $586.06 | $0.00 | $0.00 | $1172.13 | $0.00 |
| 2023 | 911 | COUNTY - COUNTY LEVIES (CE, DD, VET, MH) | $255.74 | $255.73 | $0.00 | $0.00 | $511.47 | $0.00 |
| 2023 | 911 | CONSERVE - CONSERVATION FUTURES | $7.67 | $7.67 | $0.00 | $0.00 | $15.34 | $0.00 |
| 2023 | 911 | COROADS - COUNTY ROADS (ROADS, DIV TO CE) | $206.91 | $206.91 | $0.00 | $0.00 | $413.82 | $0.00 |
| 2023 | 911 | PORTPT - PORT DISTRICT | $107.74 | $107.72 | $0.00 | $0.00 | $215.46 | $0.00 |
| 2023 | 911 | PUD1 - PUD #1 | $16.95 | $16.95 | $0.00 | $0.00 | $33.90 | $0.00 |
| 2023 | 911 | LIB1 - LIBRARY DIST #1 | $80.05 | $80.05 | $0.00 | $0.00 | $160.10 | $0.00 |
| 2023 | 911 | HD2 - HOSP DIST #2 | $14.93 | $14.92 | $0.00 | $0.00 | $29.85 | $0.00 |
| 2023 | 911 | SD50 - SCHOOL DIST #50 | $465.05 | $465.04 | $0.00 | $0.00 | $930.09 | $0.00 |
| 2023 | 911 | FD1 - FIRE DISTRICT #1 | $210.68 | $210.68 | $0.00 | $0.00 | $421.36 | $0.00 |
| 2023 | 911 | EMS1 - FIRE DIST #1 EMS | $89.62 | $89.62 | $0.00 | $0.00 | $179.24 | $0.00 |
| 2023 | 911 | FP - DNR Forest Fire Protection Assmt | $8.50 | $8.50 | $0.00 | $0.00 | $17.00 | $0.00 |
| 2023 | 911 | FPLCA - DNR Landowner Contingency Assmt | $3.00 | $3.00 | $0.00 | $0.00 | $6.00 | $0.00 |
| 2023 | 911 | JCCD - JC Conservation District | $2.75 | $2.75 | $0.00 | $0.00 | $5.50 | $0.00 |
| 2023 | 911 | NWA - Noxious Weed Assessment | $2.75 | $2.75 | $0.00 | $0.00 | $5.50 | $0.00 |
| 2023 | 911 | OSS - On Site Septic | $20.50 | $20.50 | $0.00 | $0.00 | $41.00 | $0.00 |
| 2023 | 911 | WAT - Clean Water District | $12.00 | $12.00 | $0.00 | $0.00 | $24.00 | $0.00 |
| 2023 | 911 | FP ADMIN - FP ADMIN | $0.50 | $0.00 | $0.00 | $0.00 | $0.50 | $0.00 |
| 2023 | 911 | TOTAL: | $2091.41 | $2090.85 | $0.00 | $0.00 | $4182.26 | $0.00 |
|
| 2023 | 911 | $2091.41 | $2090.85 | $0.00 | $0.00 | $4182.26 | $0.00 |
Statement Details |
| 2022 | 913 | STATE - STATE LEVY (SCHOOL) | $541.17 | $541.16 | $0.00 | $0.00 | $1082.33 | $0.00 |
| 2022 | 913 | COUNTY - COUNTY LEVIES (CE, DD, VET, MH) | $241.13 | $241.11 | $0.00 | $0.00 | $482.24 | $0.00 |
| 2022 | 913 | CONSERVE - CONSERVATION FUTURES | $7.23 | $7.23 | $0.00 | $0.00 | $14.46 | $0.00 |
| 2022 | 913 | COROADS - COUNTY ROADS (ROADS, DIV TO CE) | $195.97 | $195.96 | $0.00 | $0.00 | $391.93 | $0.00 |
| 2022 | 913 | PORTPT - PORT DISTRICT | $103.22 | $103.22 | $0.00 | $0.00 | $206.44 | $0.00 |
| 2022 | 913 | PUD1 - PUD #1 | $16.13 | $16.12 | $0.00 | $0.00 | $32.25 | $0.00 |
| 2022 | 913 | LIB1 - LIBRARY DIST #1 | $75.82 | $75.82 | $0.00 | $0.00 | $151.64 | $0.00 |
| 2022 | 913 | HD2 - HOSP DIST #2 | $14.08 | $14.07 | $0.00 | $0.00 | $28.15 | $0.00 |
| 2022 | 913 | SD50 - SCHOOL DIST #50 | $401.04 | $401.01 | $0.00 | $0.00 | $802.05 | $0.00 |
| 2022 | 913 | FD1 - FIRE DISTRICT #1 | $197.81 | $197.80 | $0.00 | $0.00 | $395.61 | $0.00 |
| 2022 | 913 | EMS1 - FIRE DIST #1 EMS | $84.14 | $84.14 | $0.00 | $0.00 | $168.28 | $0.00 |
| 2022 | 913 | FP - DNR Forest Fire Protection Assmt | $8.50 | $8.50 | $0.00 | $0.00 | $17.00 | $0.00 |
| 2022 | 913 | FPLCA - DNR Landowner Contingency Assmt | $3.00 | $3.00 | $0.00 | $0.00 | $6.00 | $0.00 |
| 2022 | 913 | JCCD - JC Conservation District | $2.75 | $2.75 | $0.00 | $0.00 | $5.50 | $0.00 |
| 2022 | 913 | NWA - Noxious Weed Assessment | $2.75 | $2.75 | $0.00 | $0.00 | $5.50 | $0.00 |
| 2022 | 913 | OSS - On Site Septic | $19.50 | $19.50 | $0.00 | $0.00 | $39.00 | $0.00 |
| 2022 | 913 | WAT - Clean Water District | $11.50 | $11.50 | $0.00 | $0.00 | $23.00 | $0.00 |
| 2022 | 913 | FP ADMIN - FP ADMIN | $0.50 | $0.00 | $0.00 | $0.00 | $0.50 | $0.00 |
| 2022 | 913 | TOTAL: | $1926.24 | $1925.64 | $0.00 | $0.00 | $3851.88 | $0.00 |
|
| 2022 | 913 | $1926.24 | $1925.64 | $0.00 | $0.00 | $3851.88 | $0.00 |
Values
| (+) Improvement Homesite Value: | + | $0 | |
| (+) Improvement Non-Homesite Value: | + | $426,703 | |
| (+) Land Homesite Value: | + | $0 | |
| (+) Land Non-Homesite Value: | + | $174,900 | |
| (+) Curr Use (HS): | + | $0 | $0 |
| (+) Curr Use (NHS): | + | $0 | $0 |
| | | -------------------------- | |
| (=) Market Value: | = | $601,603 | |
| (–) Productivity Loss: | – | $0 | |
| | | -------------------------- | |
| (=) Subtotal: | = | $601,603 | |
| (+) Senior Appraised Value: | + | $0 | |
| (+) Non-Senior Appraised Value: | + | $601,603 | |
| | | -------------------------- | |
| (=) Total Appraised Value: | = | $601,603 | |
| (–) Senior Exemption Loss: | – | $0 | |
| (–) Exemption Loss: | – | $0 | |
| | | -------------------------- | |
| (=) Taxable Value: | = | $601,603 | |
Taxing Jurisdiction
| Owner: | KIP & SHARON DE WEES | | |
| % Ownership: | 100.0000000000% | | |
| Total Value: | N/A | | |
| Tax Area: | 0111 - 1-50F1E1H2L1 |
| CE | COUNTY CURRENT EXPENSE | N/A | N/A | N/A | N/A | | |
| CNTYDD | DEVELOPMENTAL DISABILITIES | N/A | N/A | N/A | N/A | | |
| CNTYVET | VETERANS RELIEF | N/A | N/A | N/A | N/A | | |
| MENTAL | MENTAL HEALTH | N/A | N/A | N/A | N/A | | |
| ROADS | COUNTY ROADS | N/A | N/A | N/A | N/A | | |
| ROADSCU | COUNTY ROADS TO CUR EXP | N/A | N/A | N/A | N/A | | |
| HOSP2CASH | HOSP DIST #2 GENERAL | N/A | N/A | N/A | N/A | | |
| SCH50BOND | SCHOOL DIST #50 BOND 2016 | N/A | N/A | N/A | N/A | | |
| SCH50CP | SCHOOL DIST #50 CAP PROJ | N/A | N/A | N/A | N/A | | |
| SCH50MO | SCHOOL DIST #50 EP & O | N/A | N/A | N/A | N/A | | |
| CONSERVE | CONSERVATION FUTURES | N/A | N/A | N/A | N/A | | |
| EMS1 | FIRE DIST #1 EMS | N/A | N/A | N/A | N/A | | |
| FD1 | FIRE DIST #1 GENERAL | N/A | N/A | N/A | N/A | | |
| LIB1 | LIBRARY DIST #1 GENERAL | N/A | N/A | N/A | N/A | | |
| PORTPT | PORT OF PT GENERAL | N/A | N/A | N/A | N/A | | |
| PORTPTIDD | PORT OF PT IDD 2019 | N/A | N/A | N/A | N/A | | |
| PUD1 | PUD #1 GENERAL | N/A | N/A | N/A | N/A | | |
| STATE | STATE SCHOOL PART 1 | N/A | N/A | N/A | N/A | | |
| STATE2 | STATE SCHOOL PART 2 | N/A | N/A | N/A | N/A | | |
| | Total Tax Rate: | N/A | | | | | |
| | | | | Taxes w/Current Exemptions: | N/A | | |
| | | | | Taxes w/o Exemptions: | N/A | | |
Improvement / Building
| Improvement #1: | Residential Bldg | State Code: | 11 | 1577.9 sqft | Value: | $372,055 |
| Bathrooms (#): | 2 (FULL) | Bedrooms (#): | 2 | | Exterior Wall: | SI/ST | Foundation: | CONPR | | Roof Cover: | METAL |   |   |
|
| | Type | Description | Class CD | Sub Class CD | Year Built | Area |
| | GDET | Detached Garage | 3 | 1S | 2018 | 1200.0 |
| | MA | Main Area | 3- | 1S | 2018 | 1577.9 |
| | HWPOR | House Wood Porch | 3 | 1S | 2018 | 324.0 |
| | GDET | Detached Garage | 3 | 1S | 2018 | 576.0 |
| Improvement #2: | Residential Bldg | State Code: | 11 | 0.0 sqft | Value: | $54,648 |
Sketch
Property Image
Land
| 1 | 1579A | | 4.0000 | 174240.00 | 0.00 | 0.00 | 0.00 | $31,900 | $0 |
| 2 | 5360-1355S | | 1.0000 | 43560.00 | 0.00 | 0.00 | 1.00 | $143,000 | $0 |
Roll Value History
| 2025 | N/A | N/A | N/A | N/A | N/A |
| 2024 | $426,703 | $174,900 | $0 | $601,603 | $601,603 |
| 2023 | $387,083 | $160,650 | $0 | $547,733 | $547,733 |
| 2022 | $351,894 | $146,000 | $0 | $497,894 | $497,894 |
| 2021 | $266,586 | $129,250 | $0 | $395,836 | $395,836 |
Deed and Sales History
| 1 | 05/15/2017 | SWD | Statutory Warranty Deed | FOUR SEASONS DEVELOPMENT CO | KIP & SHARON DE WEES | | | $135,000.00 | 127690 | |
| 2 | 09/07/2015 | QCD | Quit Claim Deed | | | | | | 123922 | |
Payout Agreement
| No payout information available.. |