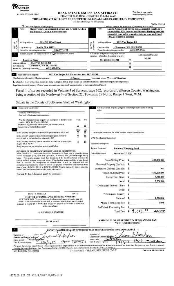
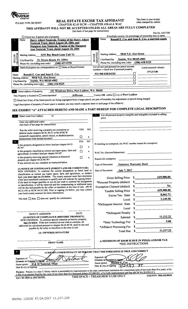
Property
Account |
| Property ID: | 10961 | Abbreviated Legal Description: | DISCOVERY RIDGE DIV II PARCEL 39 |
| Parcel # / Geo ID: | 001195039 | Agent Code: | |
| Type: | Real | | |
| Tax Area: | 0111 - 1-50F1E1H2L1 | Land Use Code | 11 |
| Open Space: | N | DFL | N |
| Historic Property: | N | Remodel Property: | N |
| Multi-Family Redevelopment: | N | | |
| Township: | 30N | Section: | 19 |
| Range: | 1W |
Location |
| Address: | 292 BLUE SKY DR PORT TOWNSEND, WA 98368 | Mapsco: | 141/044 |
| Neighborhood: | S19,30&31T30NR1W,S25T30R2W,ARBUTUS,BAYVIEW CHEVY,DISCO RIDGE | Map ID: | |
| Neighborhood CD: | 5360 |
Owner |
| Name: | KAY RICHARDSON & ERIC MARTIN | Owner ID: | 99788 |
| Mailing Address: | 292 BLUE SKY DR PORT TOWNSEND, WA 98368 | % Ownership: | 100.0000000000% |
| | | Exemptions: | |
Pay Tax Due
There is currently No Amount Due on this property.
Taxes and Assessment Details
Property Tax Information as of
10/23/2025
Click on "Statement Details" to expand or collapse a tax statement.
* Please enter a valid date ** Please enter a valid date *
Statement Details |
| 2025 | 923 | STATE - STATE LEVY (SCHOOL) | $996.21 | $996.20 | $0.00 | $0.00 | $1992.41 | $0.00 |
| 2025 | 923 | COUNTY - COUNTY LEVIES (CE, DD, VET, MH) | $391.77 | $391.73 | $0.00 | $0.00 | $783.50 | $0.00 |
| 2025 | 923 | CONSERVE - CONSERVATION FUTURES | $11.75 | $11.74 | $0.00 | $0.00 | $23.49 | $0.00 |
| 2025 | 923 | COROADS - COUNTY ROADS (ROADS, DIV TO CE) | $313.86 | $313.85 | $0.00 | $0.00 | $627.71 | $0.00 |
| 2025 | 923 | PORTPT - PORT DISTRICT | $159.86 | $159.85 | $0.00 | $0.00 | $319.71 | $0.00 |
| 2025 | 923 | PUD1 - PUD #1 | $25.64 | $25.63 | $0.00 | $0.00 | $51.27 | $0.00 |
| 2025 | 923 | LIB1 - LIBRARY DIST #1 | $121.43 | $121.43 | $0.00 | $0.00 | $242.86 | $0.00 |
| 2025 | 923 | HD2 - HOSP DIST #2 | $22.86 | $22.85 | $0.00 | $0.00 | $45.71 | $0.00 |
| 2025 | 923 | SD50 - SCHOOL DIST #50 | $728.07 | $728.06 | $0.00 | $0.00 | $1456.13 | $0.00 |
| 2025 | 923 | FD1 - FIRE DISTRICT #1 | $516.96 | $516.96 | $0.00 | $0.00 | $1033.92 | $0.00 |
| 2025 | 923 | EMS1 - FIRE DIST #1 EMS | $198.84 | $198.83 | $0.00 | $0.00 | $397.67 | $0.00 |
| 2025 | 923 | FP - DNR Forest Fire Protection Assmt | $8.50 | $8.50 | $0.00 | $0.00 | $17.00 | $0.00 |
| 2025 | 923 | FPLCA - DNR Landowner Contingency Assmt | $3.00 | $3.00 | $0.00 | $0.00 | $6.00 | $0.00 |
| 2025 | 923 | JCCD - JC Conservation District | $2.80 | $2.80 | $0.00 | $0.00 | $5.60 | $0.00 |
| 2025 | 923 | NWA - Noxious Weed Assessment | $2.90 | $2.90 | $0.00 | $0.00 | $5.80 | $0.00 |
| 2025 | 923 | OSS - On Site Septic | $21.50 | $21.50 | $0.00 | $0.00 | $43.00 | $0.00 |
| 2025 | 923 | WAT - Clean Water District | $13.00 | $13.00 | $0.00 | $0.00 | $26.00 | $0.00 |
| 2025 | 923 | FP ADMIN - FP ADMIN | $0.50 | $0.00 | $0.00 | $0.00 | $0.50 | $0.00 |
| 2025 | 923 | TOTAL: | $3539.45 | $3538.83 | $0.00 | $0.00 | $7078.28 | $0.00 |
|
| 2025 | 923 | $3539.45 | $3538.83 | $0.00 | $0.00 | $7078.28 | $0.00 |
Statement Details |
| 2024 | 925 | STATE - STATE LEVY (SCHOOL) | $884.25 | $884.23 | $0.00 | $0.00 | $1768.48 | $0.00 |
| 2024 | 925 | COUNTY - COUNTY LEVIES (CE, DD, VET, MH) | $378.39 | $378.36 | $0.00 | $0.00 | $756.75 | $0.00 |
| 2024 | 925 | CONSERVE - CONSERVATION FUTURES | $11.35 | $11.34 | $0.00 | $0.00 | $22.69 | $0.00 |
| 2024 | 925 | COROADS - COUNTY ROADS (ROADS, DIV TO CE) | $304.47 | $304.46 | $0.00 | $0.00 | $608.93 | $0.00 |
| 2024 | 925 | PORTPT - PORT DISTRICT | $156.29 | $156.28 | $0.00 | $0.00 | $312.57 | $0.00 |
| 2024 | 925 | PUD1 - PUD #1 | $24.86 | $24.85 | $0.00 | $0.00 | $49.71 | $0.00 |
| 2024 | 925 | LIB1 - LIBRARY DIST #1 | $117.80 | $117.79 | $0.00 | $0.00 | $235.59 | $0.00 |
| 2024 | 925 | HD2 - HOSP DIST #2 | $22.08 | $22.07 | $0.00 | $0.00 | $44.15 | $0.00 |
| 2024 | 925 | SD50 - SCHOOL DIST #50 | $715.40 | $715.38 | $0.00 | $0.00 | $1430.78 | $0.00 |
| 2024 | 925 | FD1 - FIRE DISTRICT #1 | $500.30 | $500.30 | $0.00 | $0.00 | $1000.60 | $0.00 |
| 2024 | 925 | EMS1 - FIRE DIST #1 EMS | $191.10 | $191.09 | $0.00 | $0.00 | $382.19 | $0.00 |
| 2024 | 925 | FP - DNR Forest Fire Protection Assmt | $8.50 | $8.50 | $0.00 | $0.00 | $17.00 | $0.00 |
| 2024 | 925 | FPLCA - DNR Landowner Contingency Assmt | $3.00 | $3.00 | $0.00 | $0.00 | $6.00 | $0.00 |
| 2024 | 925 | JCCD - JC Conservation District | $2.80 | $2.80 | $0.00 | $0.00 | $5.60 | $0.00 |
| 2024 | 925 | NWA - Noxious Weed Assessment | $2.90 | $2.90 | $0.00 | $0.00 | $5.80 | $0.00 |
| 2024 | 925 | OSS - On Site Septic | $21.00 | $21.00 | $0.00 | $0.00 | $42.00 | $0.00 |
| 2024 | 925 | WAT - Clean Water District | $12.50 | $12.50 | $0.00 | $0.00 | $25.00 | $0.00 |
| 2024 | 925 | FP ADMIN - FP ADMIN | $0.50 | $0.00 | $0.00 | $0.00 | $0.50 | $0.00 |
| 2024 | 925 | TOTAL: | $3357.49 | $3356.85 | $0.00 | $0.00 | $6714.34 | $0.00 |
|
| 2024 | 925 | $3357.49 | $3356.85 | $0.00 | $0.00 | $6714.34 | $0.00 |
Statement Details |
| 2023 | 925 | STATE - STATE LEVY (SCHOOL) | $817.90 | $817.89 | $0.00 | $0.00 | $1635.79 | $0.00 |
| 2023 | 925 | COUNTY - COUNTY LEVIES (CE, DD, VET, MH) | $356.91 | $356.89 | $0.00 | $0.00 | $713.80 | $0.00 |
| 2023 | 925 | CONSERVE - CONSERVATION FUTURES | $10.70 | $10.70 | $0.00 | $0.00 | $21.40 | $0.00 |
| 2023 | 925 | COROADS - COUNTY ROADS (ROADS, DIV TO CE) | $288.76 | $288.76 | $0.00 | $0.00 | $577.52 | $0.00 |
| 2023 | 925 | PORTPT - PORT DISTRICT | $150.35 | $150.35 | $0.00 | $0.00 | $300.70 | $0.00 |
| 2023 | 925 | PUD1 - PUD #1 | $23.66 | $23.66 | $0.00 | $0.00 | $47.32 | $0.00 |
| 2023 | 925 | LIB1 - LIBRARY DIST #1 | $111.72 | $111.72 | $0.00 | $0.00 | $223.44 | $0.00 |
| 2023 | 925 | HD2 - HOSP DIST #2 | $20.83 | $20.83 | $0.00 | $0.00 | $41.66 | $0.00 |
| 2023 | 925 | SD50 - SCHOOL DIST #50 | $649.02 | $649.00 | $0.00 | $0.00 | $1298.02 | $0.00 |
| 2023 | 925 | FD1 - FIRE DISTRICT #1 | $294.02 | $294.02 | $0.00 | $0.00 | $588.04 | $0.00 |
| 2023 | 925 | EMS1 - FIRE DIST #1 EMS | $125.07 | $125.07 | $0.00 | $0.00 | $250.14 | $0.00 |
| 2023 | 925 | FP - DNR Forest Fire Protection Assmt | $8.50 | $8.50 | $0.00 | $0.00 | $17.00 | $0.00 |
| 2023 | 925 | FPLCA - DNR Landowner Contingency Assmt | $3.00 | $3.00 | $0.00 | $0.00 | $6.00 | $0.00 |
| 2023 | 925 | JCCD - JC Conservation District | $2.80 | $2.80 | $0.00 | $0.00 | $5.60 | $0.00 |
| 2023 | 925 | NWA - Noxious Weed Assessment | $2.90 | $2.90 | $0.00 | $0.00 | $5.80 | $0.00 |
| 2023 | 925 | OSS - On Site Septic | $20.50 | $20.50 | $0.00 | $0.00 | $41.00 | $0.00 |
| 2023 | 925 | WAT - Clean Water District | $12.00 | $12.00 | $0.00 | $0.00 | $24.00 | $0.00 |
| 2023 | 925 | FP ADMIN - FP ADMIN | $0.50 | $0.00 | $0.00 | $0.00 | $0.50 | $0.00 |
| 2023 | 925 | TOTAL: | $2899.14 | $2898.59 | $0.00 | $0.00 | $5797.73 | $0.00 |
|
| 2023 | 925 | $2899.14 | $2898.59 | $0.00 | $0.00 | $5797.73 | $0.00 |
Statement Details |
| 2022 | 927 | STATE - STATE LEVY (SCHOOL) | $745.15 | $745.15 | $0.00 | $0.00 | $1490.30 | $0.00 |
| 2022 | 927 | COUNTY - COUNTY LEVIES (CE, DD, VET, MH) | $332.02 | $332.00 | $0.00 | $0.00 | $664.02 | $0.00 |
| 2022 | 927 | CONSERVE - CONSERVATION FUTURES | $9.96 | $9.95 | $0.00 | $0.00 | $19.91 | $0.00 |
| 2022 | 927 | COROADS - COUNTY ROADS (ROADS, DIV TO CE) | $269.85 | $269.83 | $0.00 | $0.00 | $539.68 | $0.00 |
| 2022 | 927 | PORTPT - PORT DISTRICT | $142.14 | $142.12 | $0.00 | $0.00 | $284.26 | $0.00 |
| 2022 | 927 | PUD1 - PUD #1 | $22.20 | $22.20 | $0.00 | $0.00 | $44.40 | $0.00 |
| 2022 | 927 | LIB1 - LIBRARY DIST #1 | $104.40 | $104.40 | $0.00 | $0.00 | $208.80 | $0.00 |
| 2022 | 927 | HD2 - HOSP DIST #2 | $19.38 | $19.38 | $0.00 | $0.00 | $38.76 | $0.00 |
| 2022 | 927 | SD50 - SCHOOL DIST #50 | $552.19 | $552.19 | $0.00 | $0.00 | $1104.38 | $0.00 |
| 2022 | 927 | FD1 - FIRE DISTRICT #1 | $272.37 | $272.36 | $0.00 | $0.00 | $544.73 | $0.00 |
| 2022 | 927 | EMS1 - FIRE DIST #1 EMS | $115.86 | $115.85 | $0.00 | $0.00 | $231.71 | $0.00 |
| 2022 | 927 | FP - DNR Forest Fire Protection Assmt | $8.50 | $8.50 | $0.00 | $0.00 | $17.00 | $0.00 |
| 2022 | 927 | FPLCA - DNR Landowner Contingency Assmt | $3.00 | $3.00 | $0.00 | $0.00 | $6.00 | $0.00 |
| 2022 | 927 | JCCD - JC Conservation District | $2.80 | $2.80 | $0.00 | $0.00 | $5.60 | $0.00 |
| 2022 | 927 | NWA - Noxious Weed Assessment | $2.90 | $2.90 | $0.00 | $0.00 | $5.80 | $0.00 |
| 2022 | 927 | OSS - On Site Septic | $19.50 | $19.50 | $0.00 | $0.00 | $39.00 | $0.00 |
| 2022 | 927 | WAT - Clean Water District | $11.50 | $11.50 | $0.00 | $0.00 | $23.00 | $0.00 |
| 2022 | 927 | FP ADMIN - FP ADMIN | $0.50 | $0.00 | $0.00 | $0.00 | $0.50 | $0.00 |
| 2022 | 927 | TOTAL: | $2634.22 | $2633.63 | $0.00 | $0.00 | $5267.85 | $0.00 |
|
| 2022 | 927 | $2634.22 | $2633.63 | $0.00 | $0.00 | $5267.85 | $0.00 |
Values
| (+) Improvement Homesite Value: | + | $0 | |
| (+) Improvement Non-Homesite Value: | + | $655,955 | |
| (+) Land Homesite Value: | + | $0 | |
| (+) Land Non-Homesite Value: | + | $174,900 | |
| (+) Curr Use (HS): | + | $0 | $0 |
| (+) Curr Use (NHS): | + | $0 | $0 |
| | | -------------------------- | |
| (=) Market Value: | = | $830,855 | |
| (–) Productivity Loss: | – | $0 | |
| | | -------------------------- | |
| (=) Subtotal: | = | $830,855 | |
| (+) Senior Appraised Value: | + | $0 | |
| (+) Non-Senior Appraised Value: | + | $830,855 | |
| | | -------------------------- | |
| (=) Total Appraised Value: | = | $830,855 | |
| (–) Senior Exemption Loss: | – | $0 | |
| (–) Exemption Loss: | – | $0 | |
| | | -------------------------- | |
| (=) Taxable Value: | = | $830,855 | |
Taxing Jurisdiction
| Owner: | KAY RICHARDSON & ERIC MARTIN | | |
| % Ownership: | 100.0000000000% | | |
| Total Value: | N/A | | |
| Tax Area: | 0111 - 1-50F1E1H2L1 |
| CE | COUNTY CURRENT EXPENSE | N/A | N/A | N/A | N/A | | |
| CNTYDD | DEVELOPMENTAL DISABILITIES | N/A | N/A | N/A | N/A | | |
| CNTYVET | VETERANS RELIEF | N/A | N/A | N/A | N/A | | |
| MENTAL | MENTAL HEALTH | N/A | N/A | N/A | N/A | | |
| ROADS | COUNTY ROADS | N/A | N/A | N/A | N/A | | |
| ROADSCU | COUNTY ROADS TO CUR EXP | N/A | N/A | N/A | N/A | | |
| HOSP2CASH | HOSP DIST #2 GENERAL | N/A | N/A | N/A | N/A | | |
| SCH50BOND | SCHOOL DIST #50 BOND 2016 | N/A | N/A | N/A | N/A | | |
| SCH50CP | SCHOOL DIST #50 CAP PROJ | N/A | N/A | N/A | N/A | | |
| SCH50MO | SCHOOL DIST #50 EP & O | N/A | N/A | N/A | N/A | | |
| CONSERVE | CONSERVATION FUTURES | N/A | N/A | N/A | N/A | | |
| EMS1 | FIRE DIST #1 EMS | N/A | N/A | N/A | N/A | | |
| FD1 | FIRE DIST #1 GENERAL | N/A | N/A | N/A | N/A | | |
| LIB1 | LIBRARY DIST #1 GENERAL | N/A | N/A | N/A | N/A | | |
| PORTPT | PORT OF PT GENERAL | N/A | N/A | N/A | N/A | | |
| PORTPTIDD | PORT OF PT IDD 2019 | N/A | N/A | N/A | N/A | | |
| PUD1 | PUD #1 GENERAL | N/A | N/A | N/A | N/A | | |
| STATE | STATE SCHOOL PART 1 | N/A | N/A | N/A | N/A | | |
| STATE2 | STATE SCHOOL PART 2 | N/A | N/A | N/A | N/A | | |
| | Total Tax Rate: | N/A | | | | | |
| | | | | Taxes w/Current Exemptions: | N/A | | |
| | | | | Taxes w/o Exemptions: | N/A | | |
Improvement / Building
| Improvement #1: | Residential Bldg | State Code: | 11 | 2469.0 sqft | Value: | $655,955 |
| Bathrooms (#): | 2 (FULL) | Bathrooms (#): | 1 (HALF) | | Bedrooms (#): | 2 | Exterior Wall: | SI/ST | | Floor Construction: | FRAME | Foundation: | CONPR | | Heating/Cooling: | HTWTR | Roof Cover: | COMP |
|
| | Type | Description | Class CD | Sub Class CD | Year Built | Area |
| | MA | Main Area | 5- | 2S | 1999 | 1857.0 |
| | MA2 | Second Floor Main Area | 5- | 2S | 1999 | 612.0 |
| | PATIO | House Patio | 5 | 2S | 1999 | 384.0 |
| | HWPOR | House Wood Porch | 5 | 2S | 1999 | 735.0 |
| | HBAL | House Balcony | 5 | 2S | 1999 | 120.0 |
| | GDET | Detached Garage | 5 | 2S | 1999 | 1520.0 |
Sketch
| No sketches available for this property. |
Property Image
Land
| 1 | 1579A | | 4.0000 | 174240.00 | 0.00 | 0.00 | 0.00 | $31,900 | $0 |
| 2 | 5360-1355S | | 1.0000 | 43560.00 | 0.00 | 0.00 | 1.00 | $143,000 | $0 |
Roll Value History
| 2025 | N/A | N/A | N/A | N/A | N/A |
| 2024 | $655,955 | $174,900 | $0 | $830,855 | $830,855 |
| 2023 | $603,735 | $160,650 | $0 | $764,385 | $764,385 |
| 2022 | $548,850 | $146,000 | $0 | $694,850 | $694,850 |
| 2021 | $415,795 | $129,250 | $0 | $545,045 | $545,045 |
Deed and Sales History
| 1 | 08/16/2018 | SWD | Statutory Warranty Deed | KRISTI KOBETICH | KAY RICHARDSON & ERIC MARTIN | | | $486,000.00 | 130847 | |
| 2 | 12/08/1997 | SWD | Statutory Warranty Deed | BAJORAITIS, RIMVYDIS/ANIT | KOBETICH, KRISTI/SANDERS,CRAIG | 0 | 0 | $56,000.00 | 83364 | 0 |
Payout Agreement
| No payout information available.. |